Скачать Типовой проект 503-2-13.86 Альбом I. Общая пояснительная записка. Архитектурные решения. Конструкции железобетонныеДата актуализации: 01.01.2021
|
| Обозначение: | Типовой проект 503-2-13.86 |
| Обозначение англ: | 503-2-13.86 |
| Статус: | не определен законодательством |
| Название рус.: | Альбом I. Общая пояснительная записка. Архитектурные решения. Конструкции железобетонные |
| Дата добавления в базу: | 01.10.2014 |
| Дата актуализации: | 01.01.2021 |
| Дата введения: | 15.04.1986 |
| Дата окончания срока действия: | 30.06.2003 |
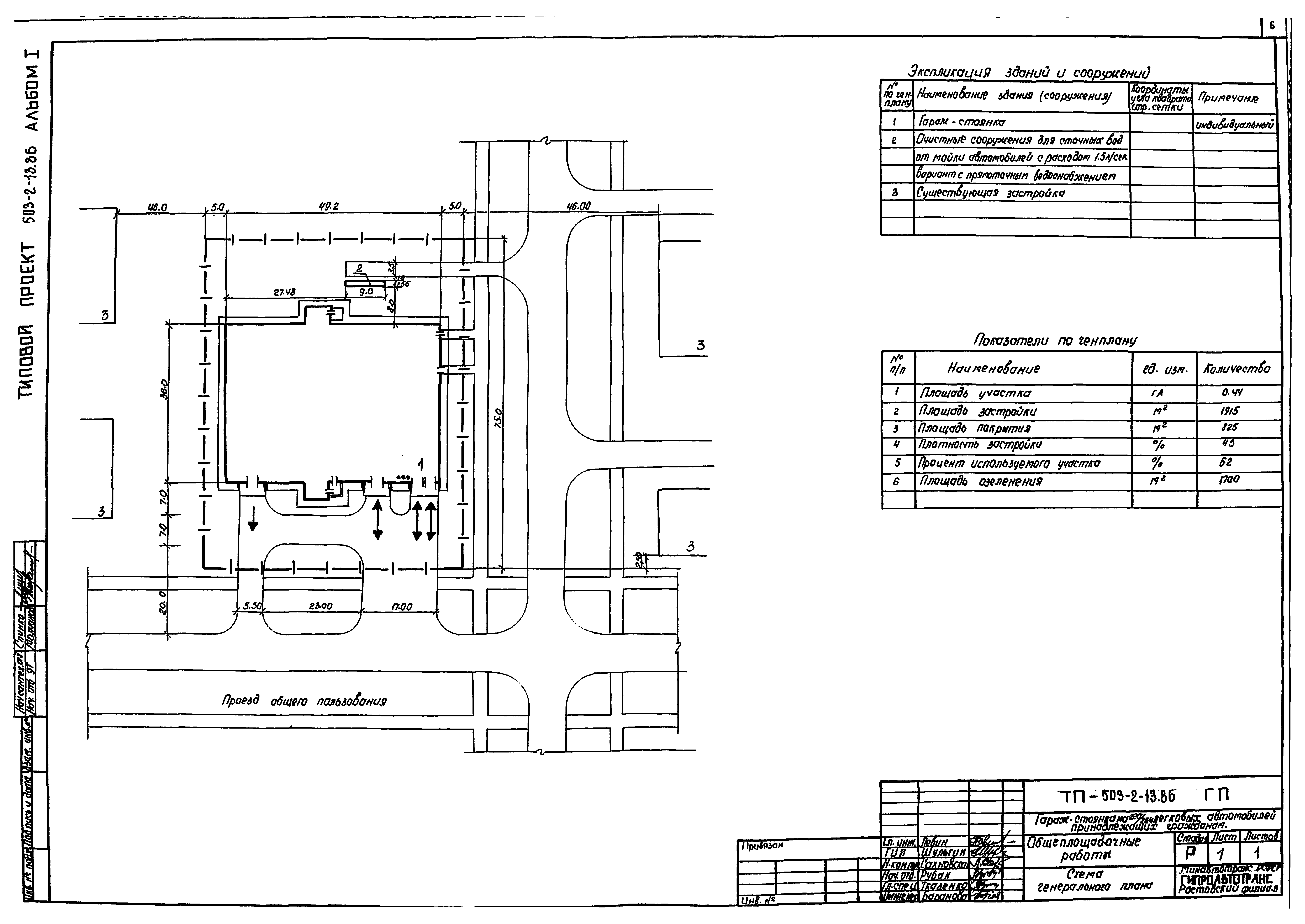
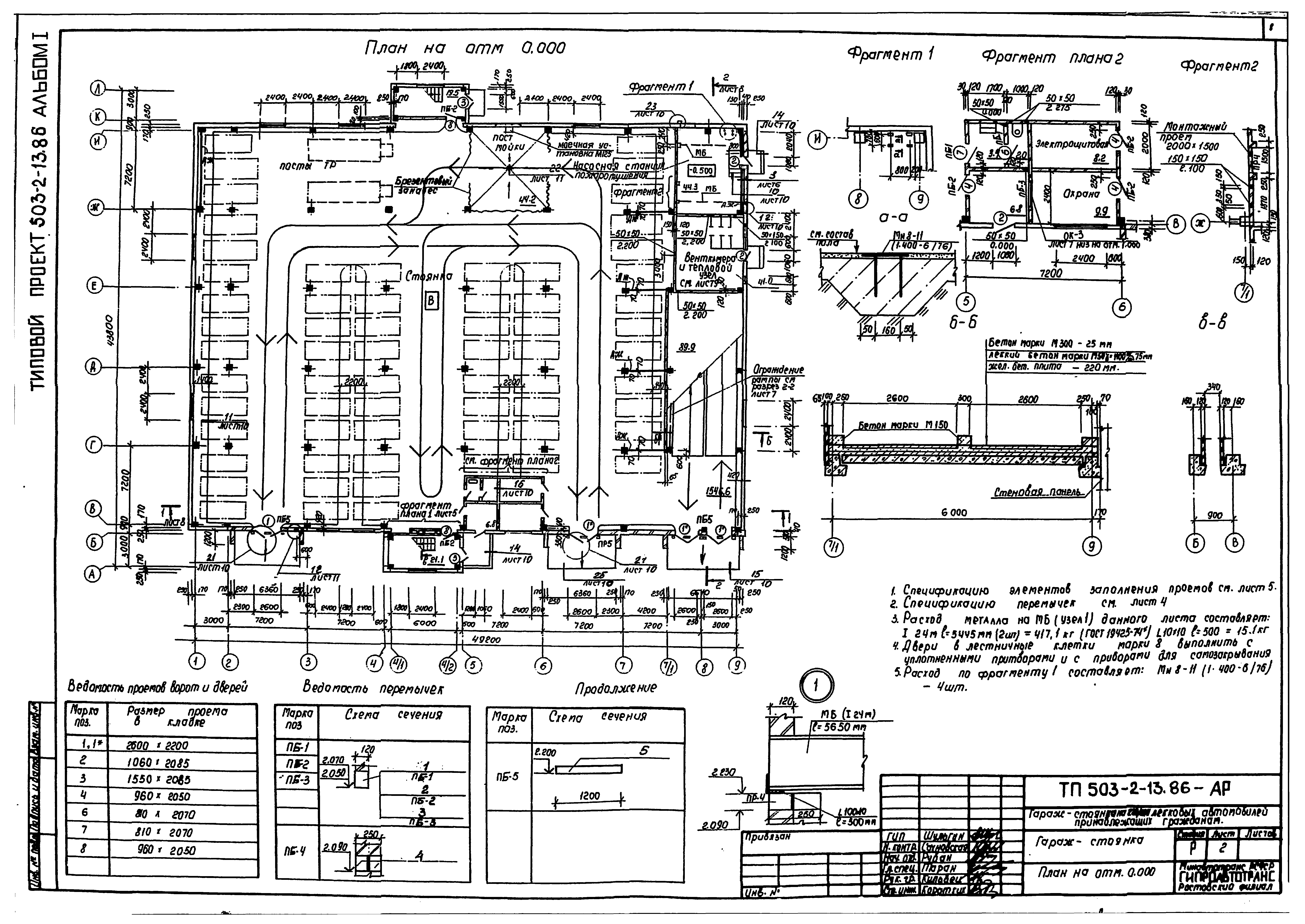
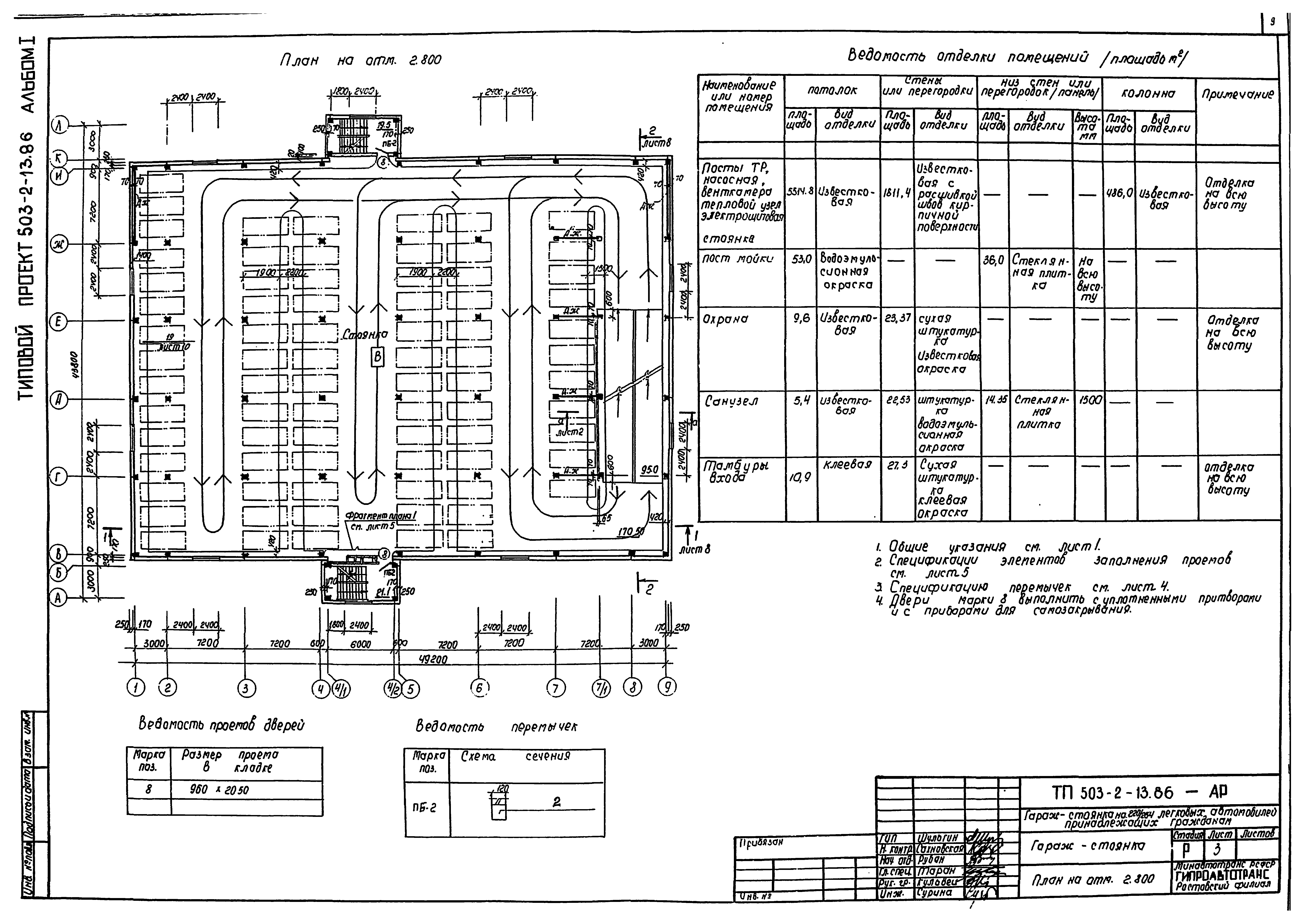
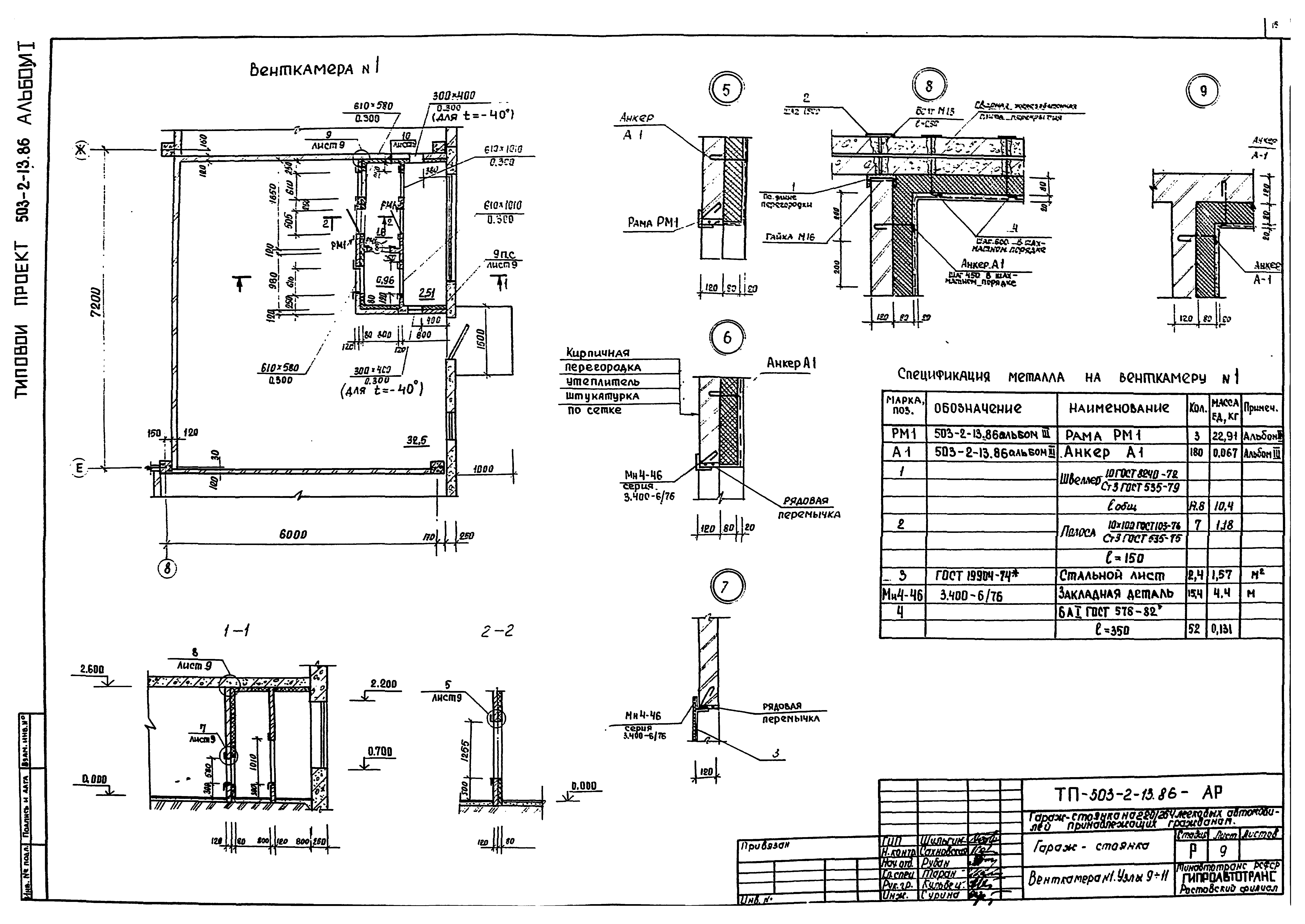
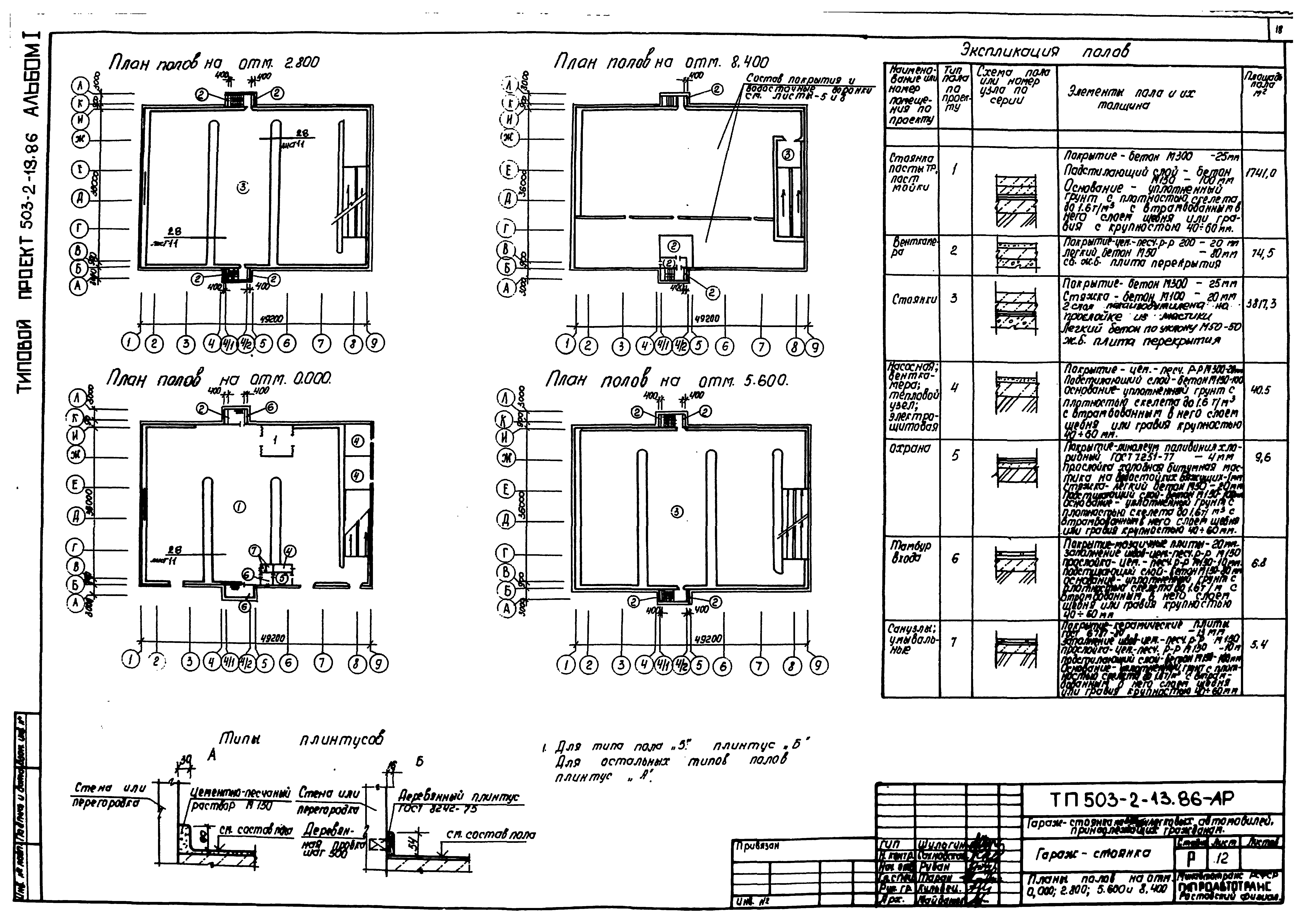
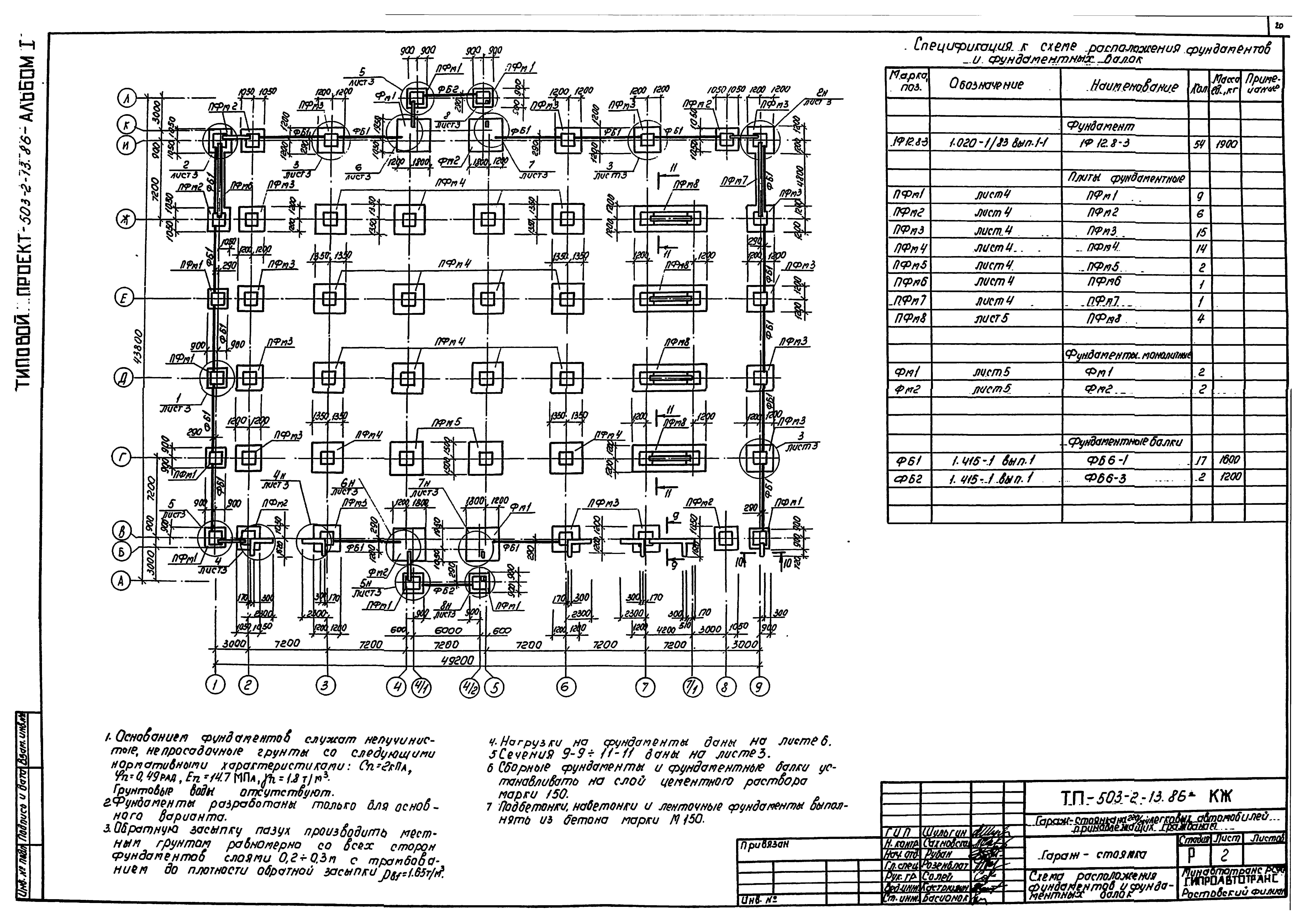
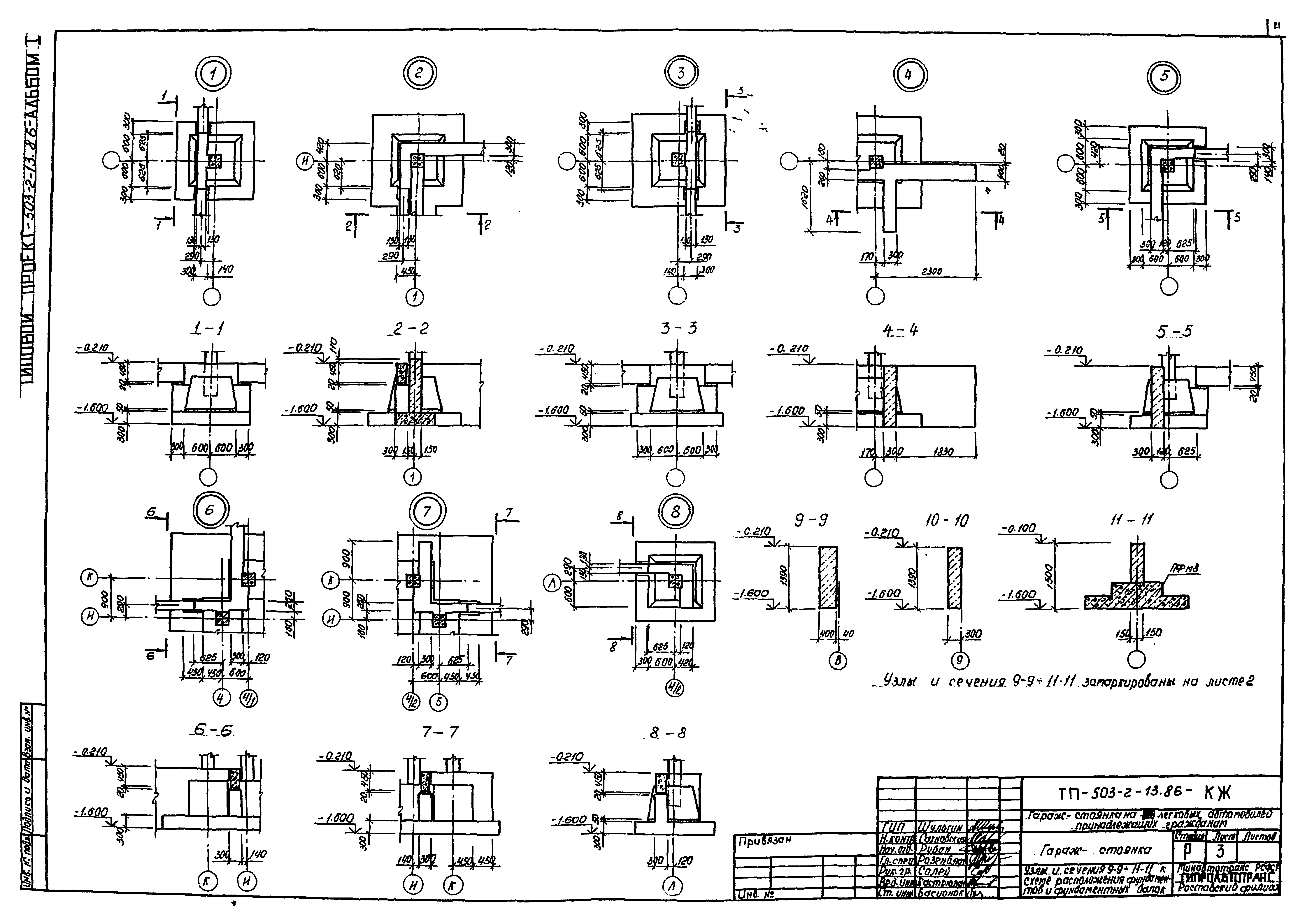
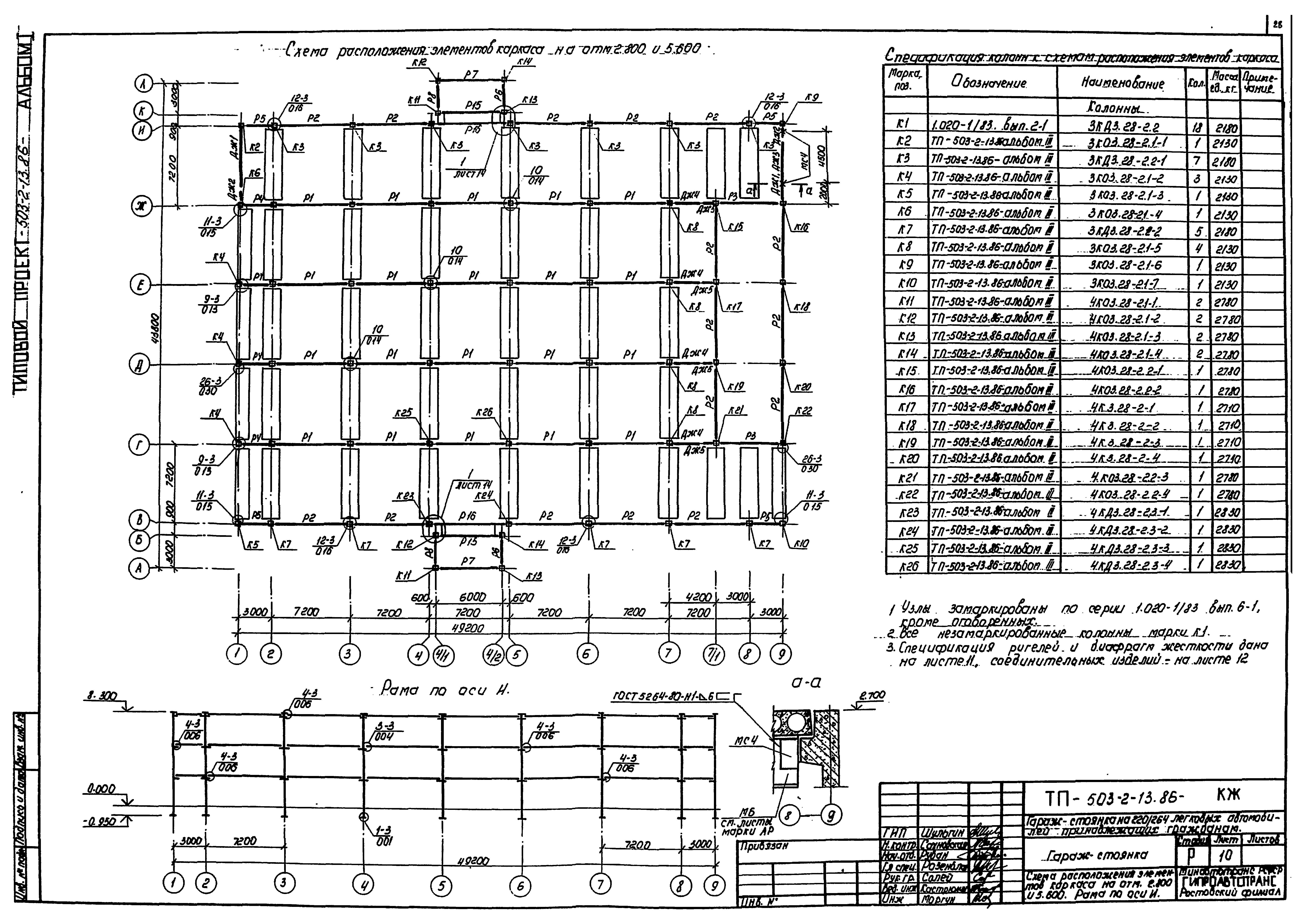
| Оглавление: | Содержание альбома Пояснительная записка Схема генерального плана Чертежи основного комплекта марки АР Общие данные План на отм. 0.000 План на отм. 2.800 План на отм. 5.800 План на отм. 8.400 Фрагменты плана кровли. Узлы 1 - 4 Фасады Разрезы 1-1 и 2-2 Венткамера №1. Узлы 5 - 9 Узлы 10 - 23 Ворота Планы полов на отм. 0.000; 2.800; 5.600 и 8.400 Чертежи основного комплекта марки КЖ Общие данные Схема расположения фундаментов и фундаментных балок Узлы и сечения 9-9 - 11-11 к схеме расположения фундаментов и фундаментных балок Плиты фундаментные Фундаменты Фм1, Фм2. Плита фундаментная ПФм8 Нормативные нагрузки на фундаменты Схема расположения элементов подземного хозяйства. Фундаменты ФОм2 - ФОм5 Фундамент ФОм1 Приямки ПРм1 - ПРм5 Схема расположения элементов каркаса на отм. 2.800 и 5.600. Рама по оси И Схема расположения элементов каркаса на отм. 8.400. Рама по оси Ж Рамы по осям В - Е Схемы расположения элементов каркаса на отм. 11.200. Рамы по осям 1; 4/1; 4/2; 7/1; 9; А и Л; Б и К Узлы каркаса 1 - 7 Схемы расположения элементов лестниц Схема расположения плит перекрытий на отм. 2.800 и 5.600 Схема расположения плит покрытий на отм. 8.400 и 11.200 Монолитные участки Ум1 - Ум5 Схемы расположения стеновых панелей по осям В; И; 1; 4; 4/1; 4/2 и 5 Схемы расположения стеновых панелей по осям 9; А; Л; Ж; Г; К; 7/1 Схемы расположения стеновых панелей. Сечения 1-1 - 7-7. Узлы 1 - 3 |
| Разработан: | Ростовский филиал Гипроавтотранса Минавтотранса РСФСР |
| Утверждён: | 15.04.1986 Минавтотранс РСФСР (Russian Federation Minavtotrans 10) |







































