Скачать Типовой проект 506-142.86 Альбом II. Конструкции железобетонные. Конструкции металлическиеДата актуализации: 01.01.2021
|
| Обозначение: | Типовой проект 506-142.86 |
| Обозначение англ: | 506-142.86 |
| Статус: | не определен законодательством |
| Название рус.: | Альбом II. Конструкции железобетонные. Конструкции металлические |
| Дата добавления в базу: | 01.10.2014 |
| Дата актуализации: | 01.01.2021 |
| Дата введения: | 31.12.1990 |
| Дата окончания срока действия: | 30.06.2003 |
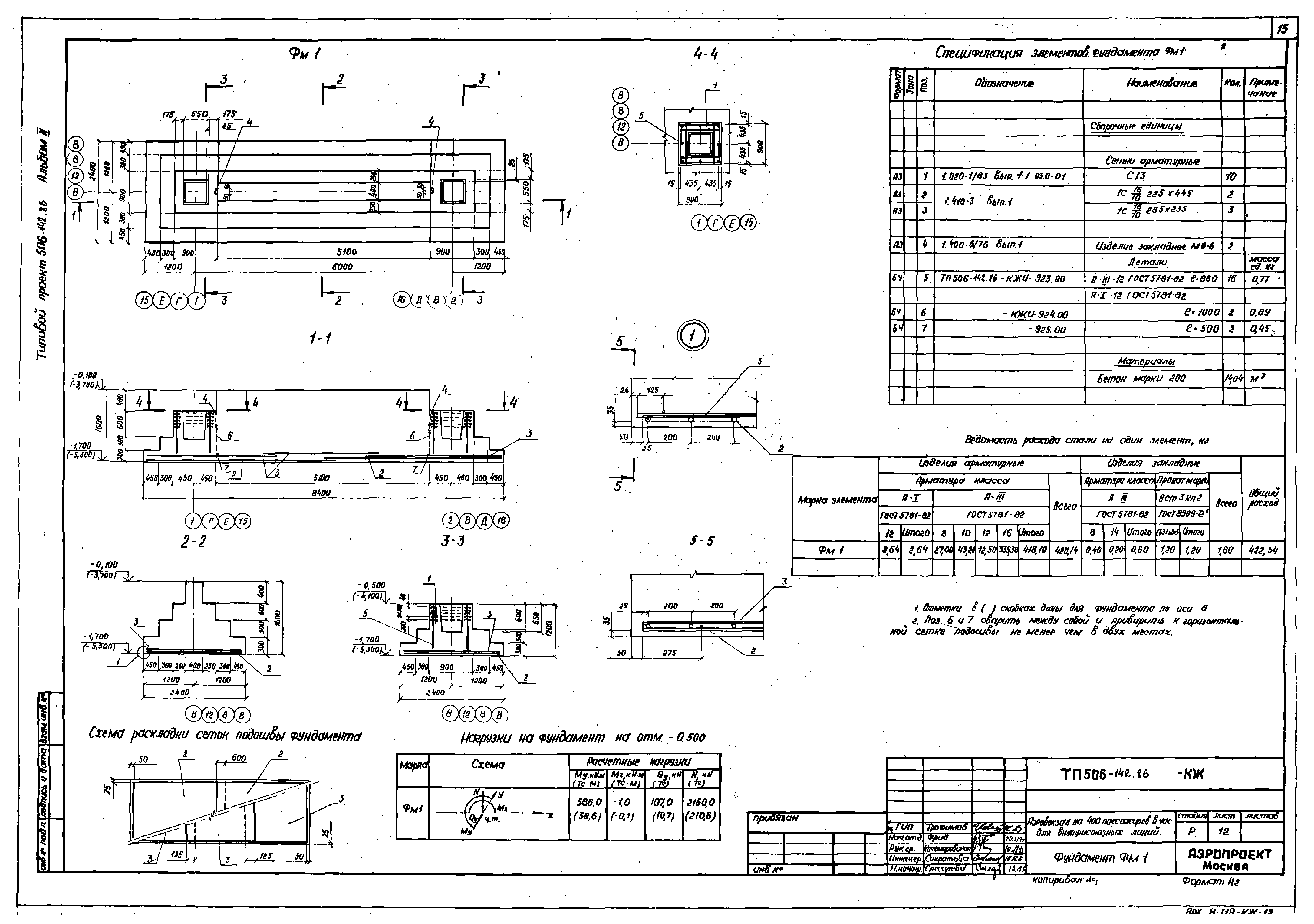
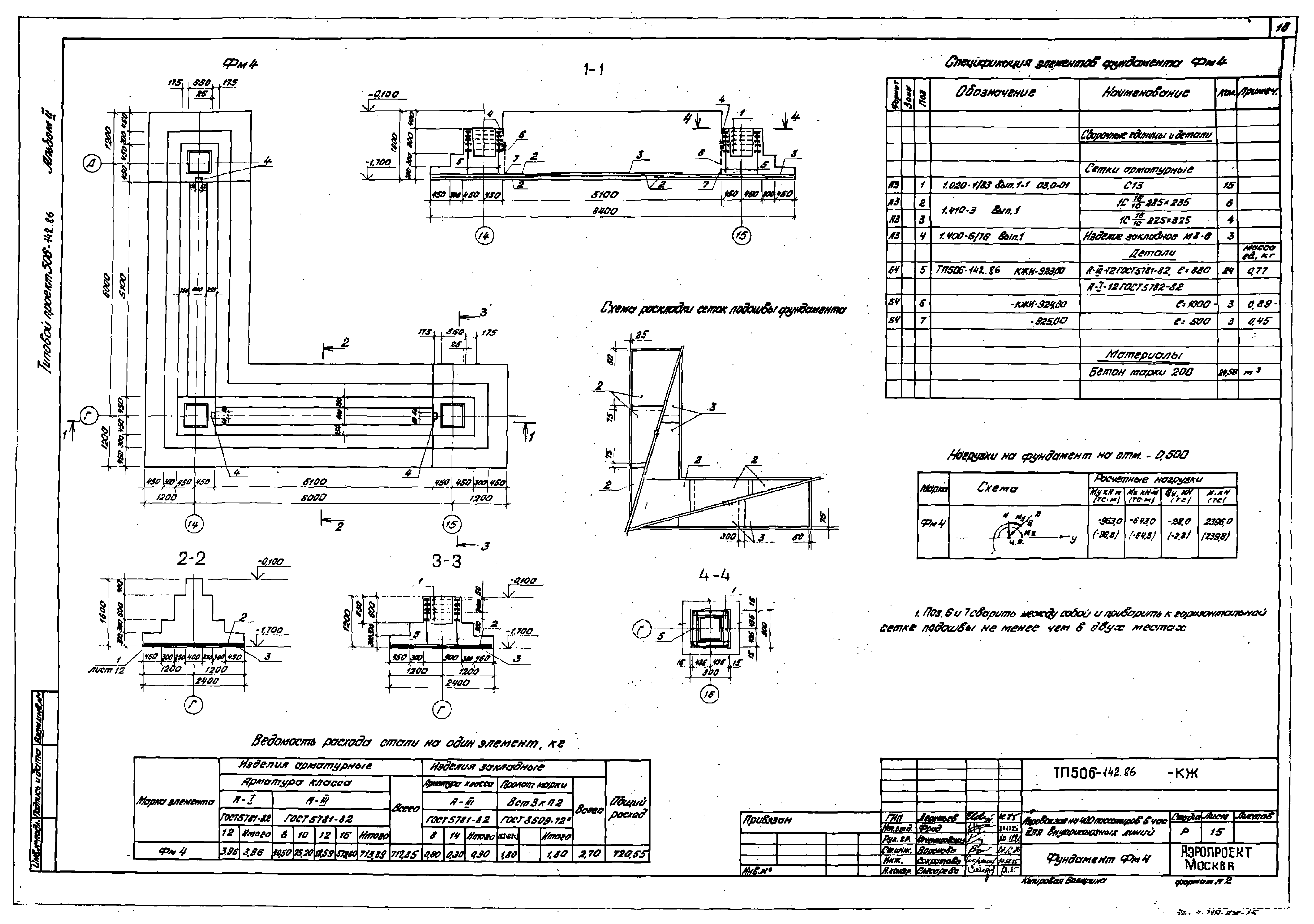
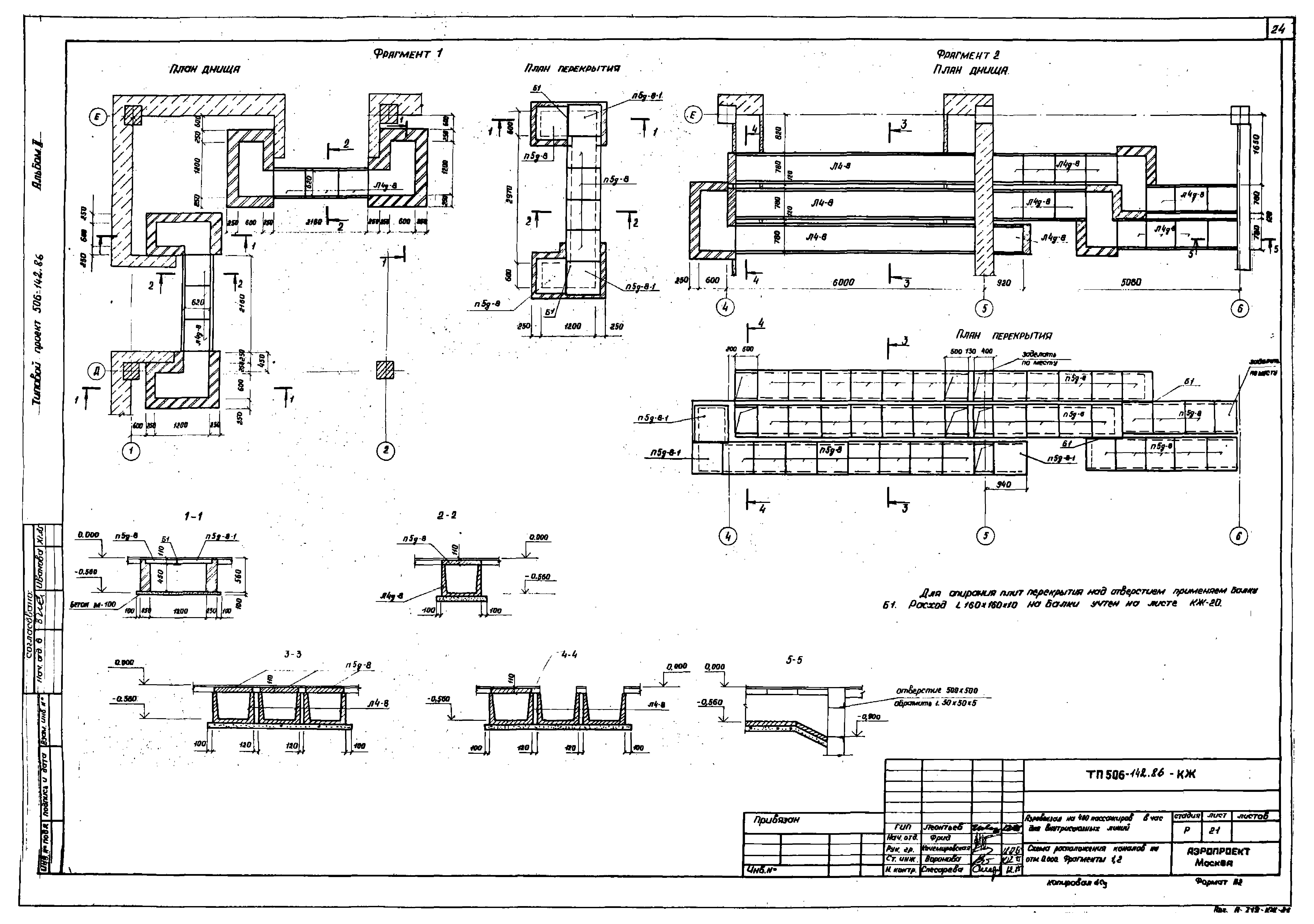
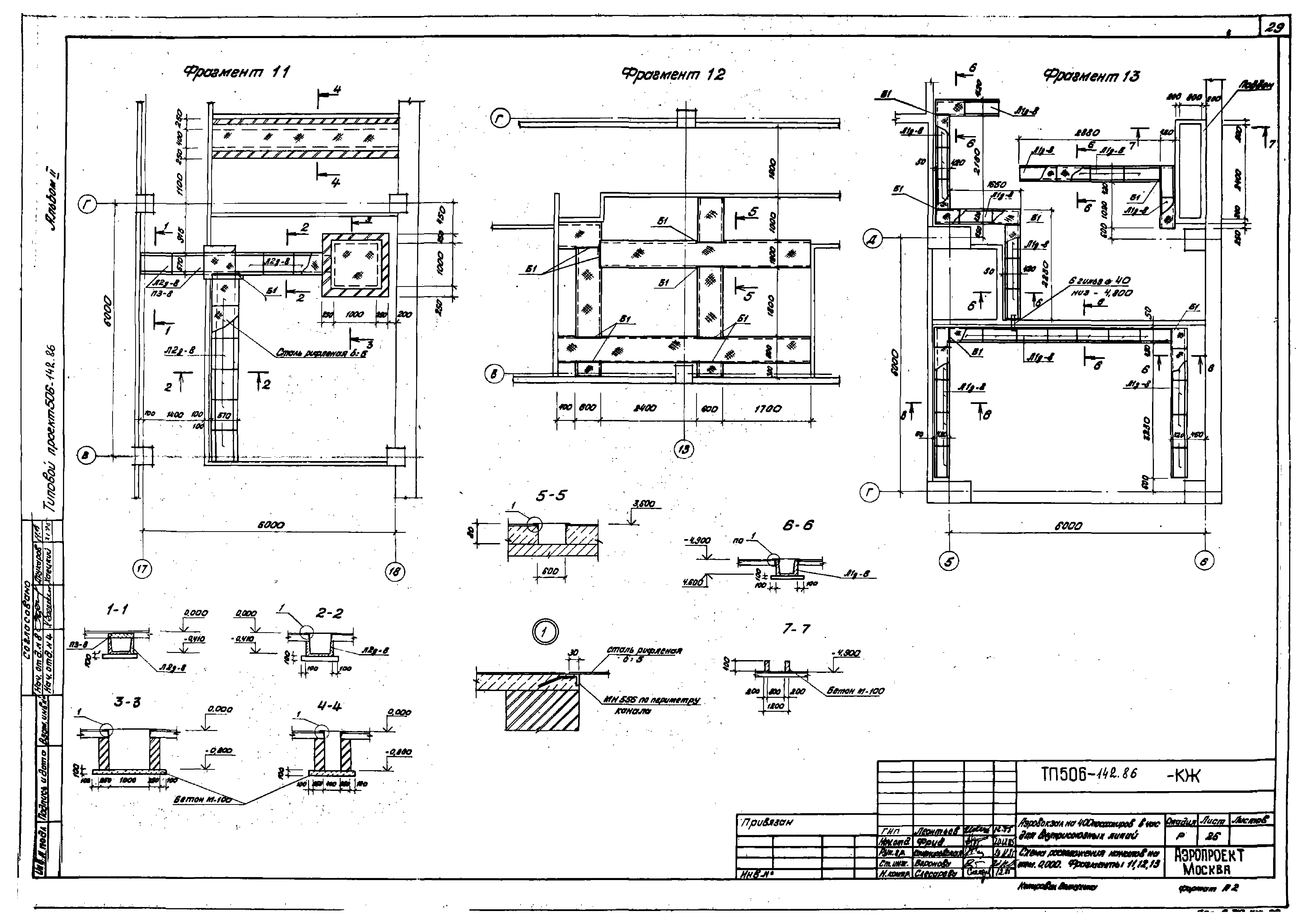
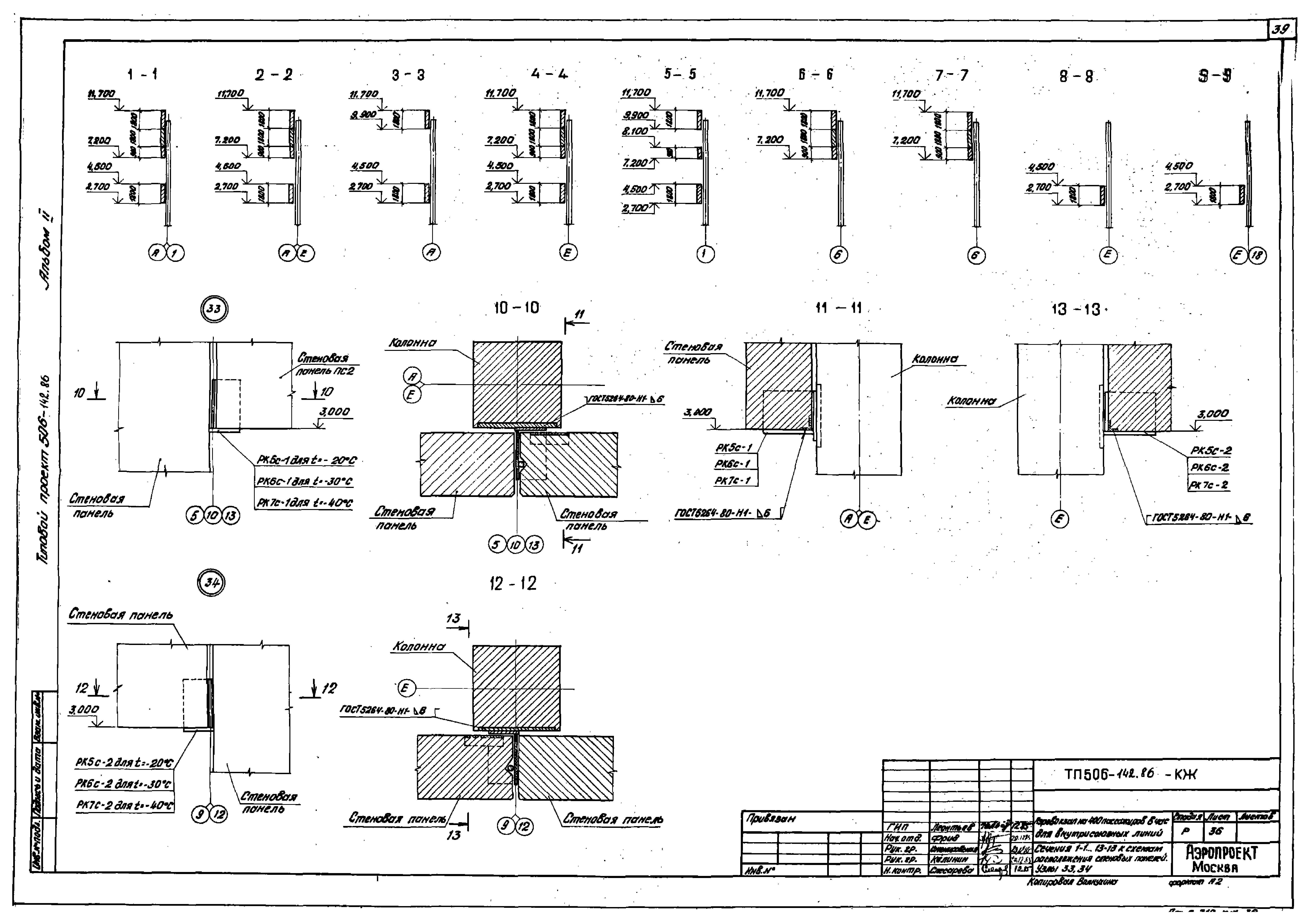
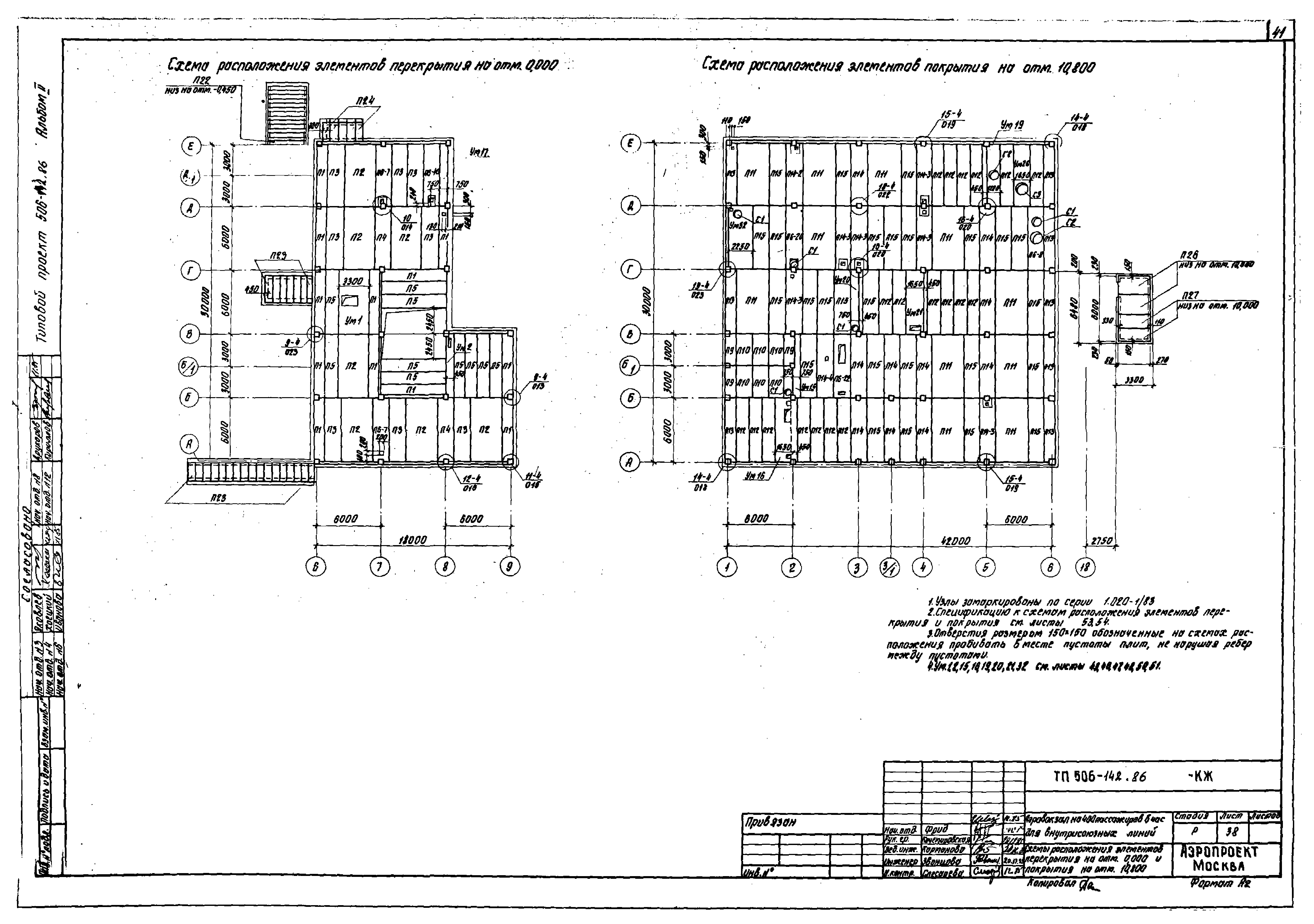
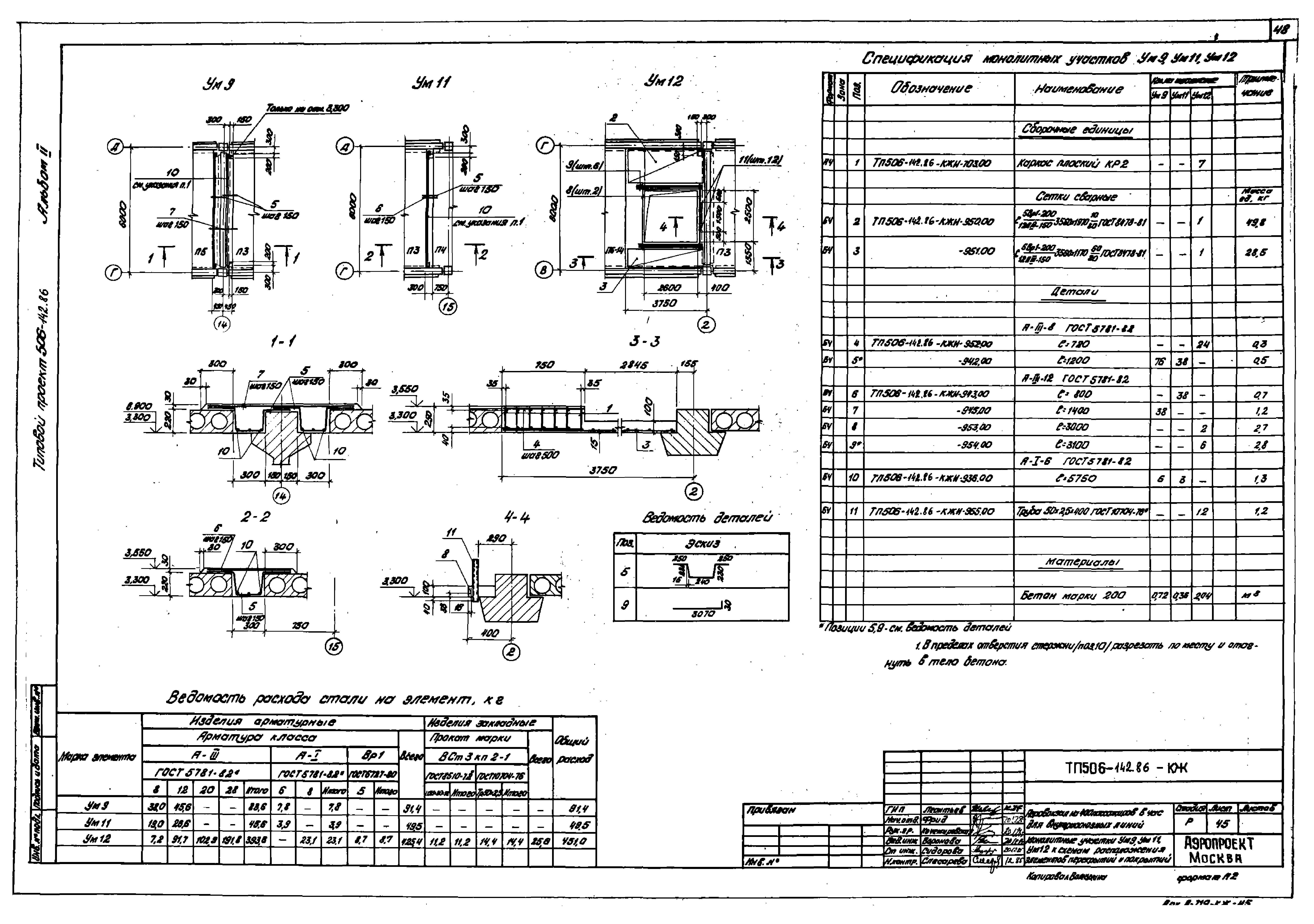
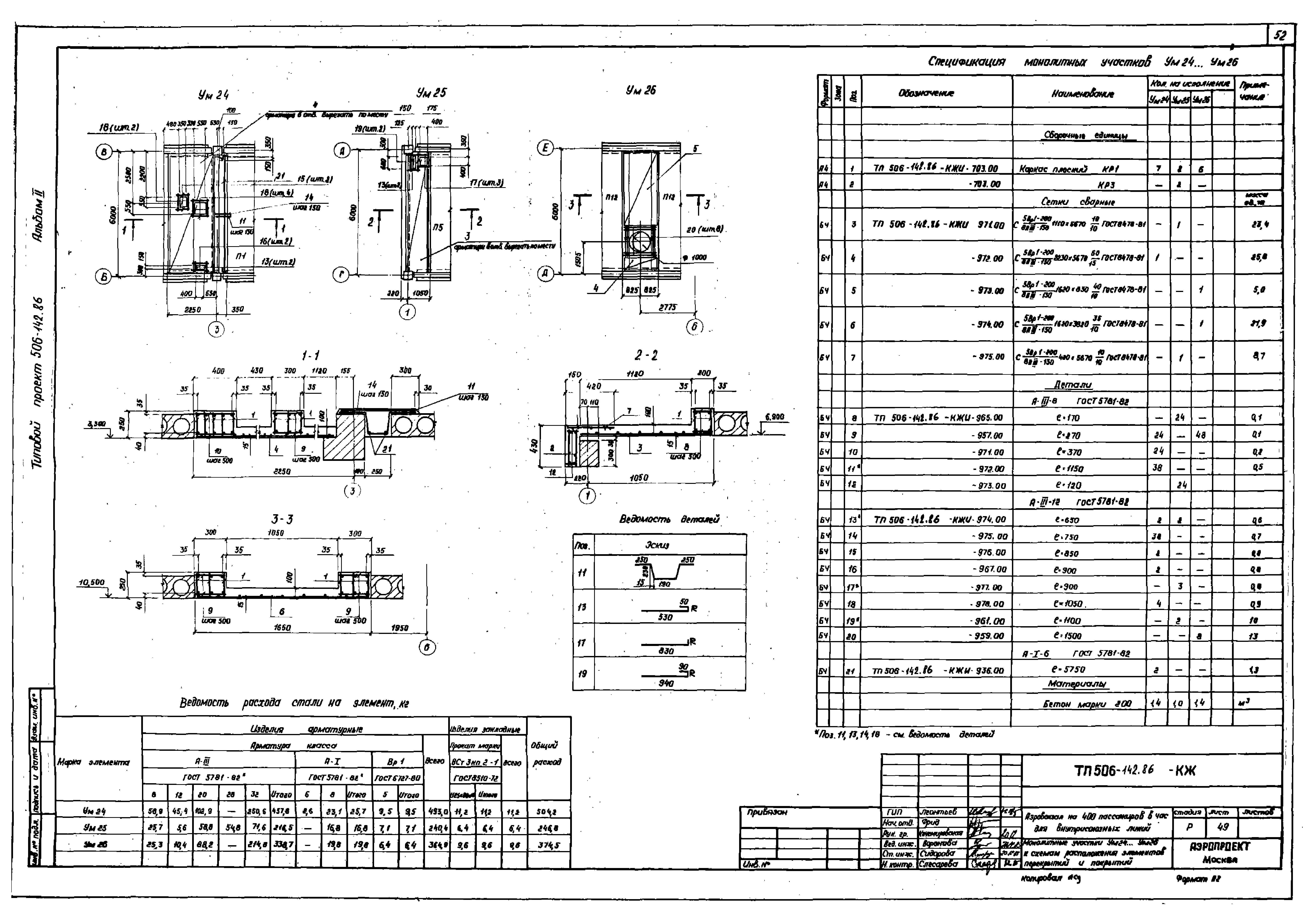
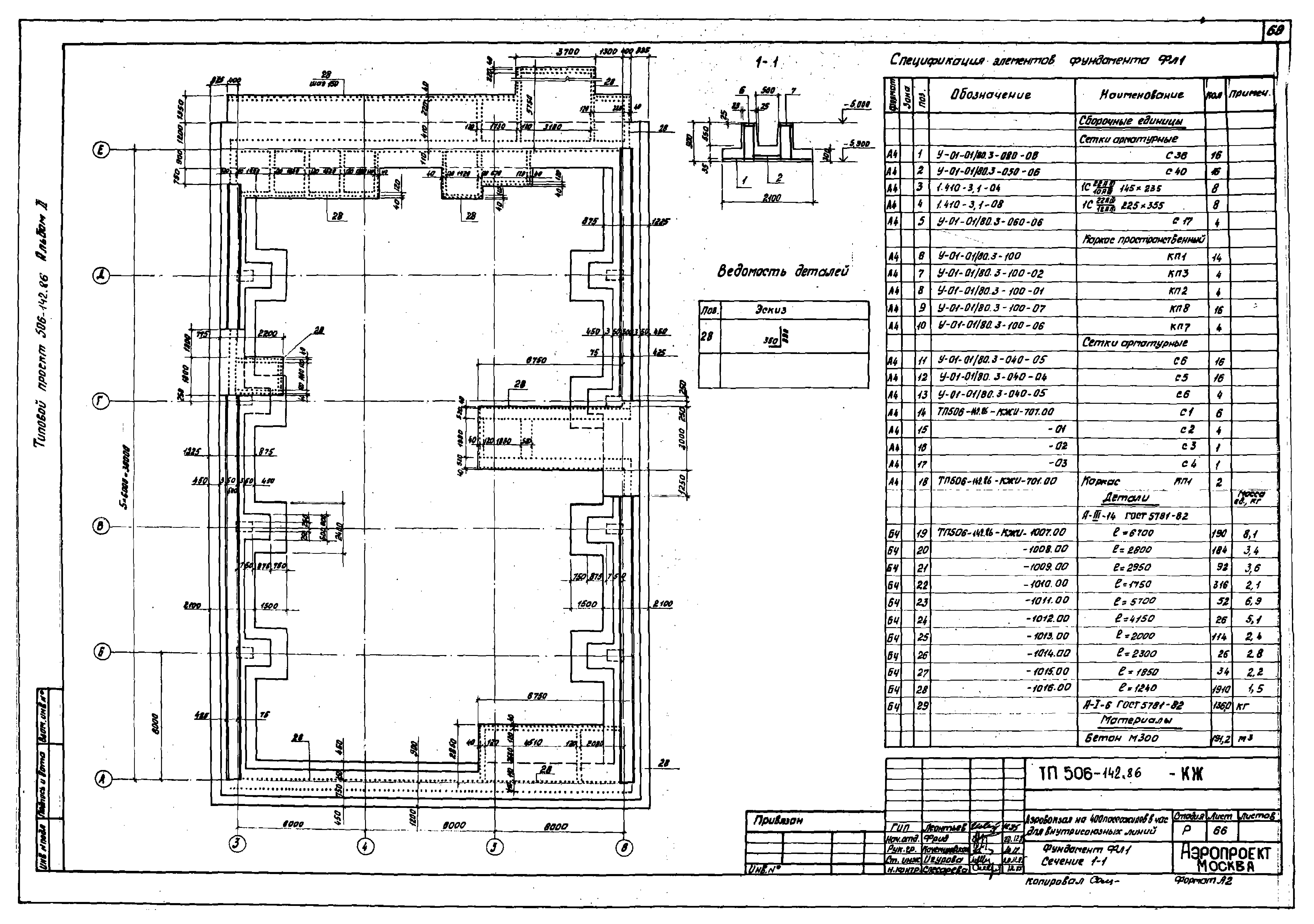
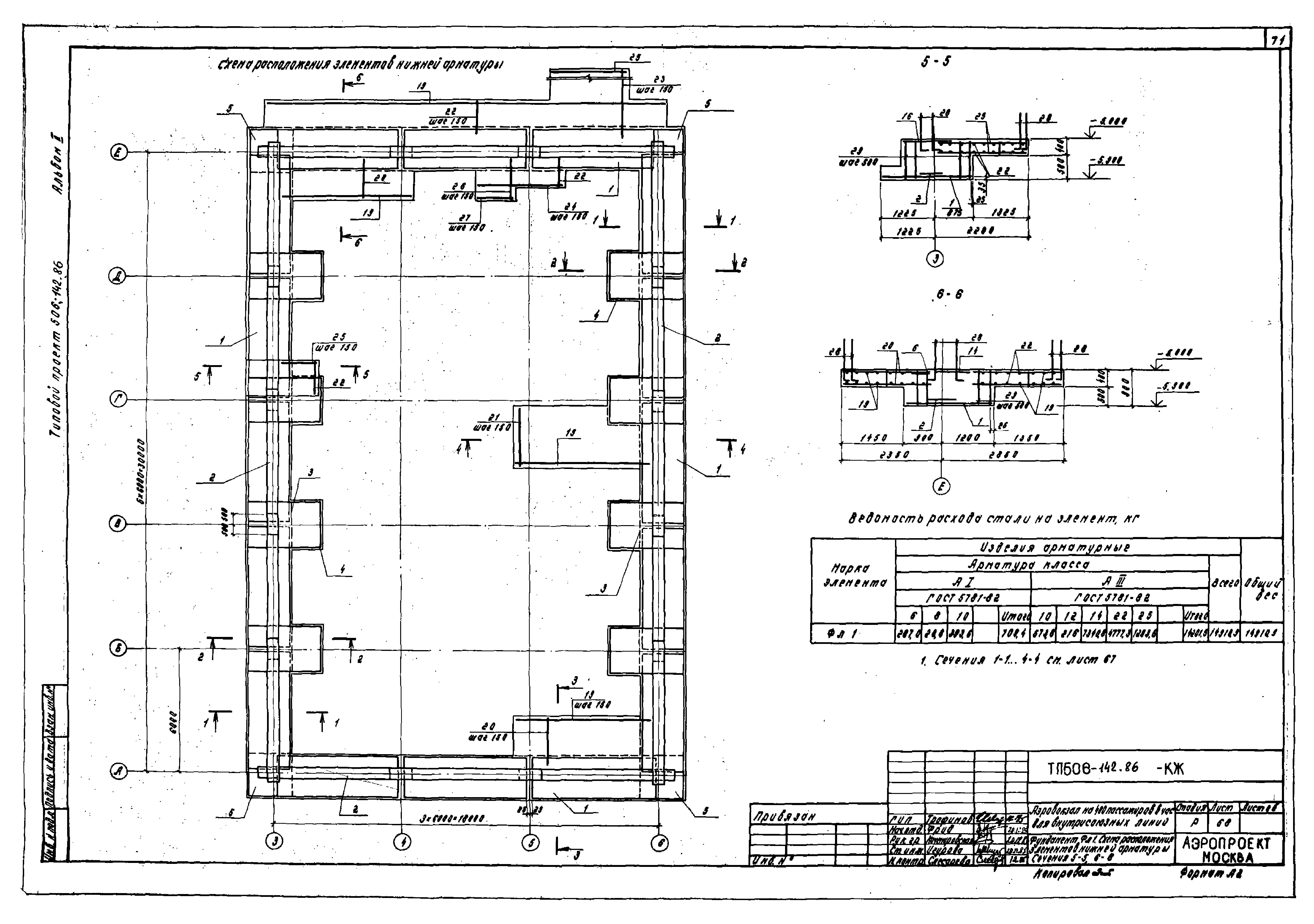
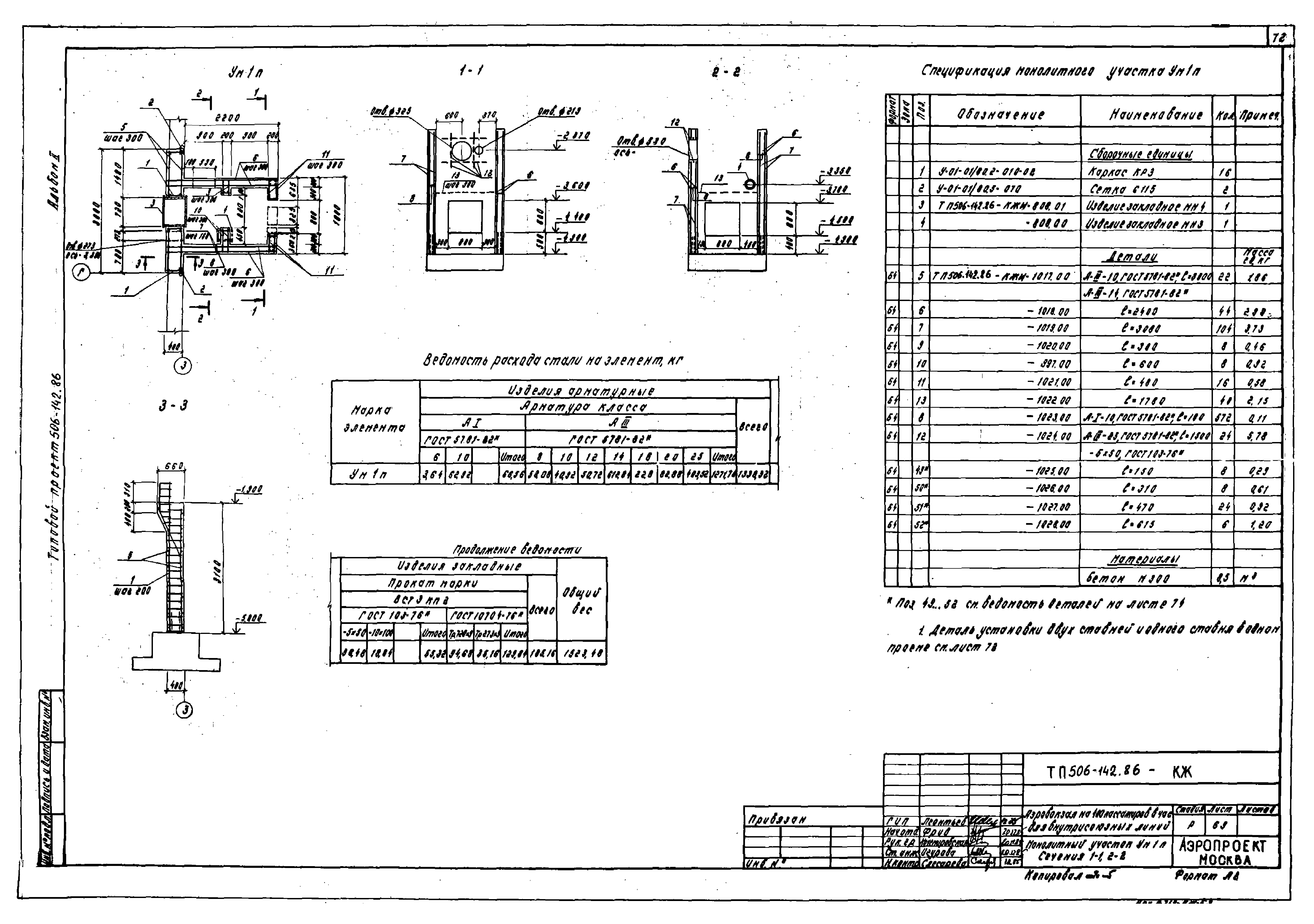
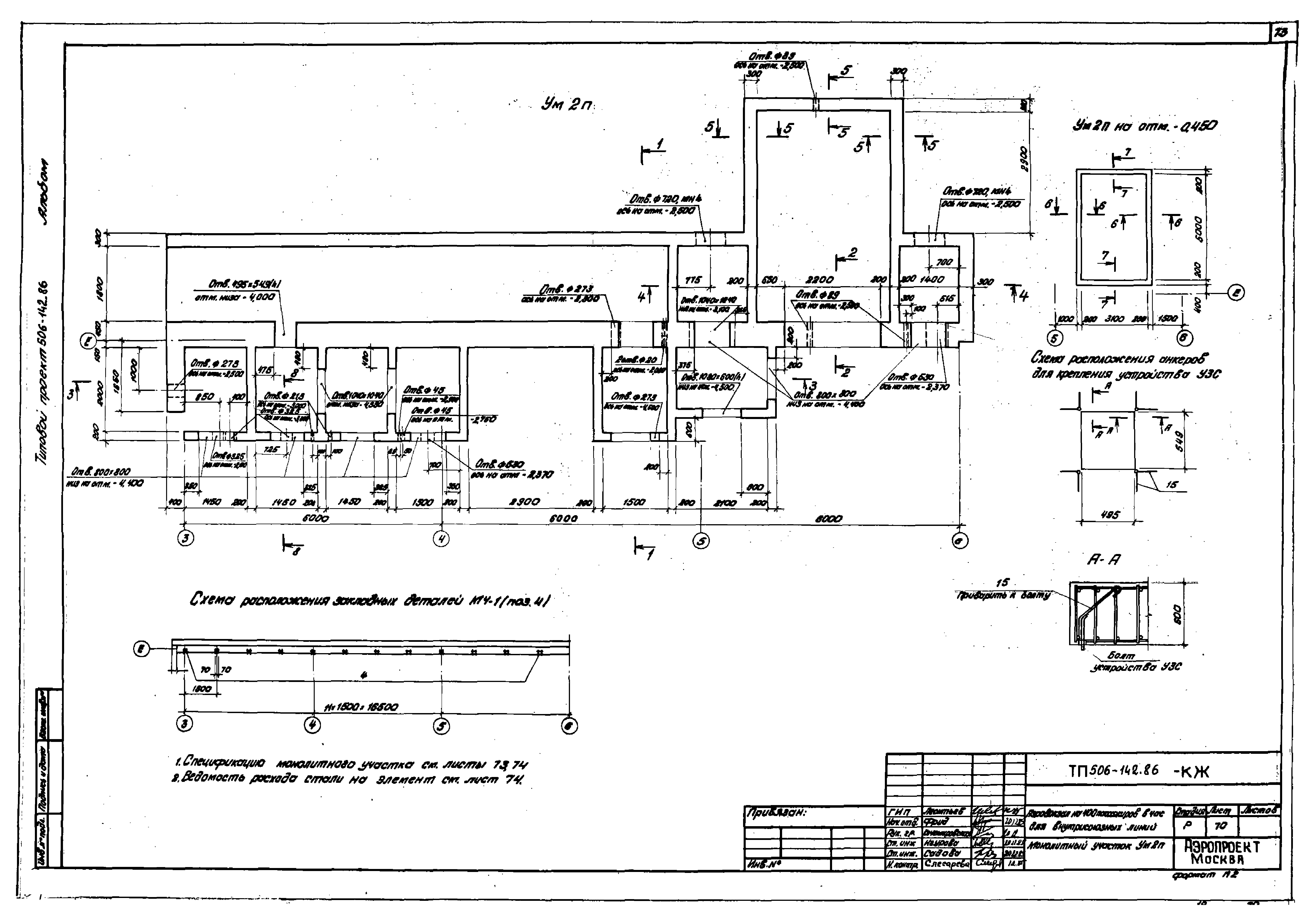
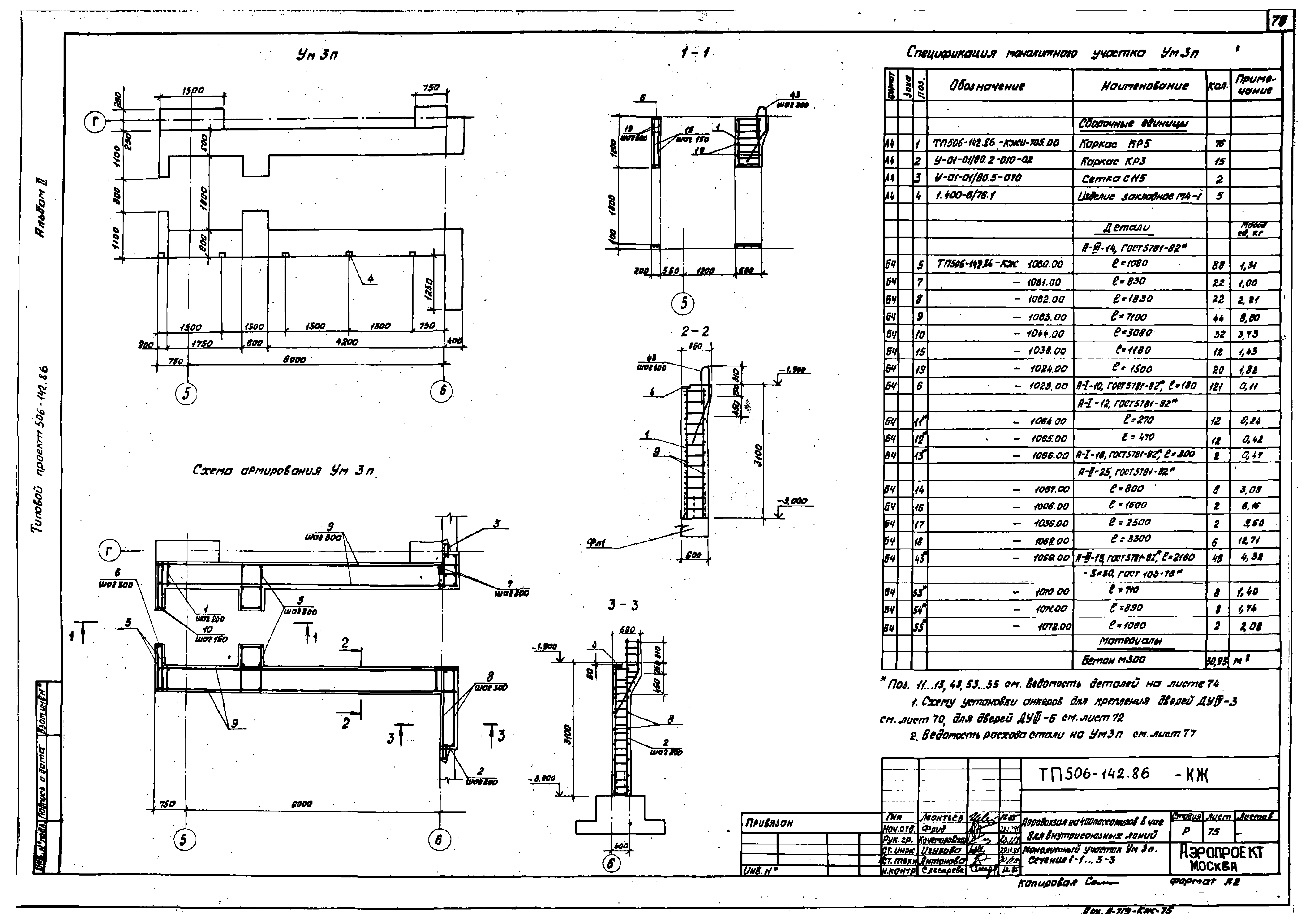
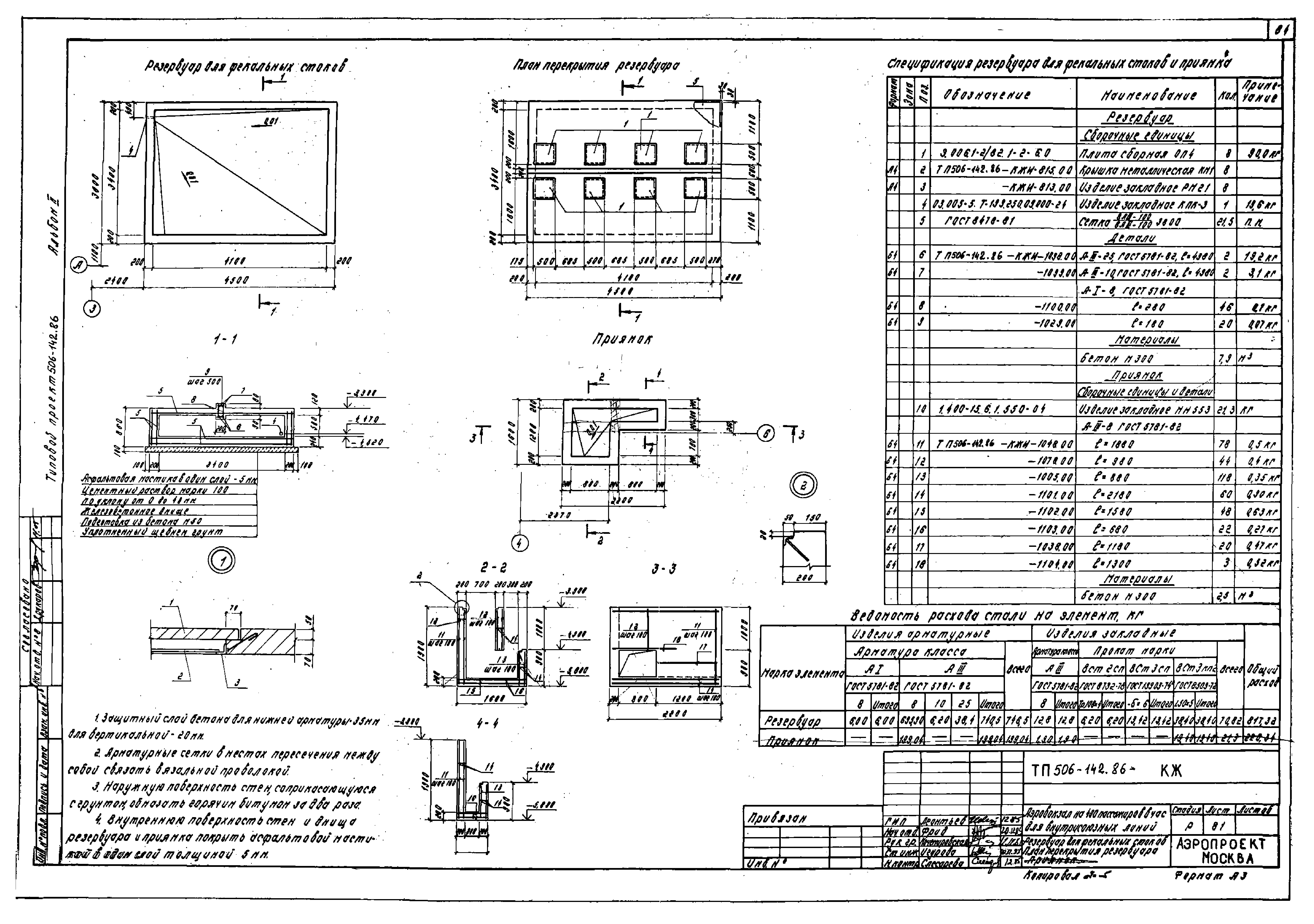
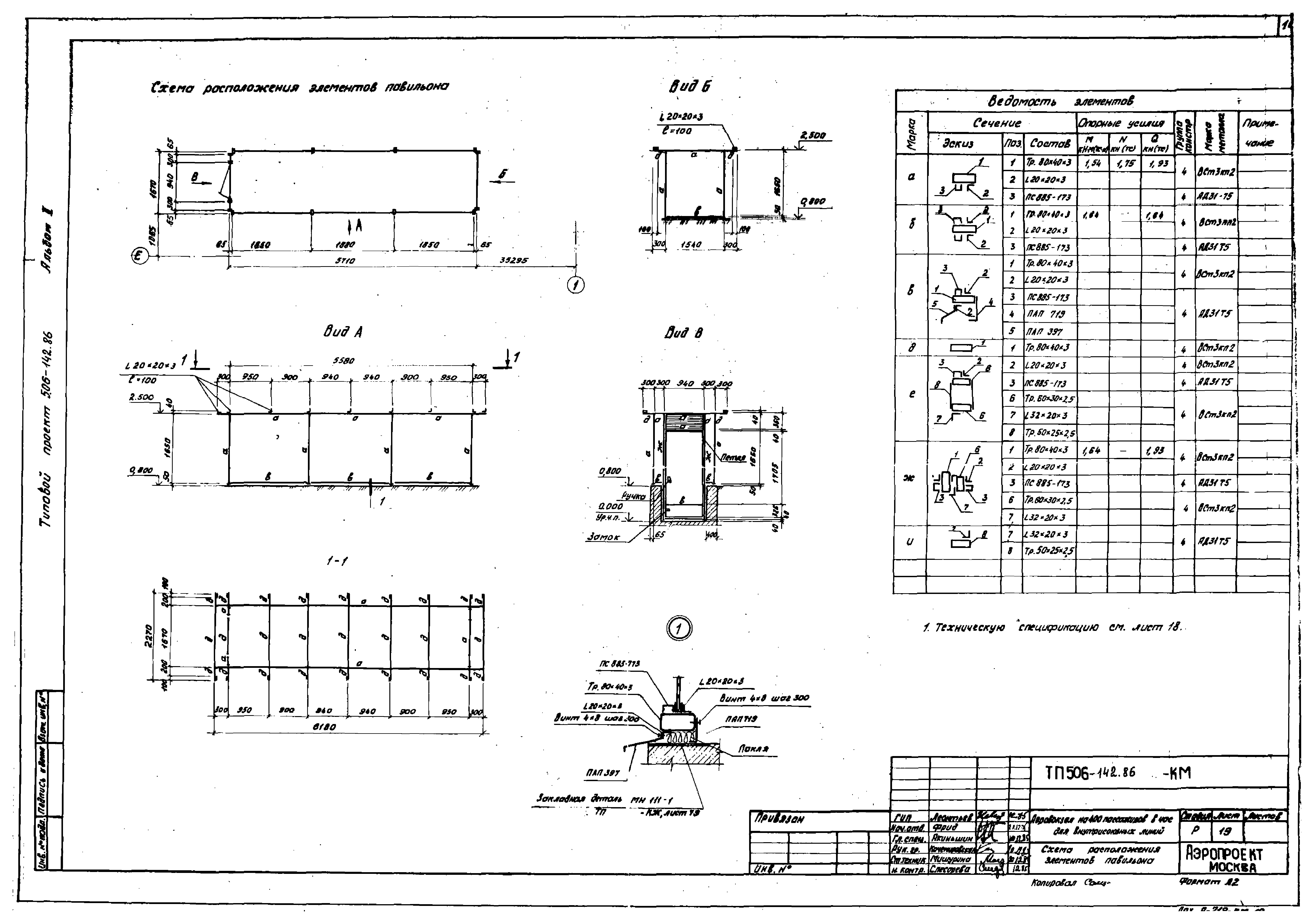
| Оглавление: | Содержание альбома Чертежи основного комплекта марки КЖ Общие данные Схема расположения элементов фундаментов между осями 1 - 8 Схема расположения элементов фундаментов между осями 8 - 18 Фрагмент 1 Фрагменты 2, 3. Развертка блоков по оси Б Фрагмент 4 Развертки блоков по оси Е между осями 6 - 8, по оси 8 между осями В - Е, по оси 9 между осями А - В, по оси В между осями 8 - 9 Схемы расположения монолитных железобетонных поясов Пм1…Пм3 и вставок фундамента Вм1…Вм9 Спецификации монолитных железобетонных поясов Пм1…Пм3 и вставок фундамента Вм1…Вм9. Ведомость расхода стали на элемент Фундамент Фм1 Фундамент Фм2 Фундамент Фм3 Фундамент Фм4 Фундамент Фм5 Фундамент Фм6, Фм7 Спецификация к схемам расположения элементов фундаментов Схемы расположения элементов каналов на отм. 0.000 Схемы расположения элементов каналов на отм. 3.600 и - 4.900. Схемы расположения фундаментов под оборудование на отм. 0.000 и - 4.900 Схема расположения элементов каналов на отм. 0.000. Фрагменты 1, 2 Схема расположения элементов каналов на отм. 0.000. Фрагмент 3 Схема расположения элементов каналов на отм. 0.000. Фрагменты 4, 5 Схема расположения элементов каналов на отм. 0.000. Фрагменты 6, 7 Схема расположения элементов каналов на отм. 0.000. Фрагменты 8, 9, 10 Схема расположения элементов каналов на отм. 0.000; 3.600 и - 4.900. Фрагменты 11, 12, 13 Схема расположения элементов каркаса на отм. 0.000 и 10.800 Схема расположения элементов каркаса на отм. 3.600 Схема расположения элементов каркаса на отм. 7.200. Узлы 1 и 2 Разрезы 1-1…4-4 к схемам расположения элементов каркаса Разрезы 5-5…9-9; 12-12…15-15; 18-18…22-22 к схемам расположения элементов каркаса Разрезы 10-10, 11-11 к схеме расположения элементов каркаса Разрезы 16-16, 17-17 к схемам расположения элементов каркаса Спецификация к схемам расположения элементов каркаса Схемы расположения стеновых панелей по оси А между осями 1 - 6, по оси Б между осями А - Е, по оси Е между осями 18-1, по оси 1 между осями Е - А, по оси 18 между осями Г - Е Сечение 1-1…13-13 к схемам расположения стеновых панелей. Узлы 33, 34 Спецификация к схемам расположения стеновых панелей Схемы расположения элементов перекрытия на отм. 0.000 и покрытия на отм. 10.800 Схема расположения элементов перекрытия на отм. 3.600 Схема расположения элементов покрытия и перекрытия на отм. 7.200 Пробивка отверстий в плитах перекрытий П6-1…П6-25, П14-1…П14-4, П6-45 Пробивка отверстий в плитах перекрытий П6-26…П6-37, П16-1, П19-1 Монолитные участки Ум1…Ум3 к схемам расположения элементов перекрытий и покрытий Монолитные участки Ум4, Ум5, Ум7 к схемам расположения элементов перекрытий Монолитные участки Ум9, Ум11, Ум12 к схемам расположения элементов перекрытий и покрытий Монолитные участки Ум13…Ум15 к схемам расположения элементов перекрытий и покрытий Монолитные участки Ум16, Ум17, Ум19 к схемам расположения элементов перекрытий и покрытий Монолитные участки Ум20, Ум21, Ум23 к схемам расположения элементов перекрытий и покрытий Монолитные участки Ум24…Ум26 к схемам расположения элементов перекрытий и покрытий Монолитные участки Ум18, Ум32 к схемам расположения элементов перекрытий и покрытий Сечения 5-5…14-14 к схемам расположения элементов перекрытий и покрытий Спецификация монолитных участков Ум6, Ум8, Ум10, Ум22, Ум28…Ум31, Ум33, Ум34 Спецификация к схемам расположения элементов перекрытий и покрытий Схемы расположения элементов лестниц Л1, Л5. Схема расположения проступей Схемы расположения элементов лестниц Л2, Л3. Схема расположения проступей Схемы расположения элементов лестниц Л7, Л9. Схемы расположения проступей лестницы Л7 Лестница Л4. Схема расположения лестничных площадок ЛП1. Лестничная площадка ЛП1 Лестница Л8. Схема расположения лестничных площадок. Лестничные площадки ЛП2, ЛП3 Схемы расположения элементов покрытий входов по осям А, Е, 1 между осями Б/1 и Г; Е и Д, 15 и 16 Схема расположения элементов каркаса и перекрытия подвала между осями 3 - 6 Схема расположения верхней и нижней арматуры монолитной части перекрытия подвала между осями 3 - 6 Схема расположения закладных деталей монолитной части перекрытия подвала между осями 3 - 6 отм. - 1.400. Узлы 1…7 Схема расположения элементов фундаментов и колонн подвала между осями 3 - 6. Сечения 1-1…5-5 Сечения 6-6…12-12 к схеме расположения элементов фундаментов и колонн подвала между осями 3 - 6 Фундамент Фл1. Сечение 1-1 Фундамент Фл1. Схема расположения элементов верхней арматуры. Сечения 2-2…4-4 Фундамент Фл1. Схема расположения элементов нижней арматуры. Сечения 5-5, 6-6 Монолитный участок Ум1п (сечения 1-1, 2-2) Монолитный участок Ум2п Монолитный участок Ум2п. Схема армирования. Сечения 1-1, 2-2 Сечения 3-3…5-5 к монолитному участку Ум2п. Схемы расположения анкеров для крепления ставень и дверей Монолитный участок Ум2п на отм. - 0.450. Сечения 6-6…8-8. Спецификация монолитного участка Ум2п Спецификация монолитного участка Ум2п. Ведомость деталей. Ведомость расхода стали на элемент Монолитный участок Ум3п. Сечения 1-1…3-3 Монолитный участок Ум4п. Сечения 1-1…4-4 Монолитный участок Ум5п Монолитный участок Ум6п. Сечения 1-1, 2-2 Лестничный аварийный выход. Сечение 1-1 Лестничный аварийный выход. Сечения 2-2, 3-3 Резервуар для фекальных стоков. План и план перекрытия резервуара. Приямок Чертежи основного комплекта марки КМ Общие данные Техническая спецификация металла окон, витражей и пилонов Схемы расположения элементов окон и витражей по оси А (наружное и внутреннее остекление) Схемы расположения элементов окон и витражей по оси Е Схемы расположения элементов окон и витражей по оси 1 и 18 Схема расположения элементов остекления витражей по оси В. Фрагменты планов на отм. 0.000 и 3.600. Ведомость элементов Ведомость элементов витражей Узлы 1…5 Схемы расположения элементов пилонов по оси Е и А Техническая спецификация металла козырька Схемы расположения элементов козырька на уровне верхних и нижних прогонов Схемы расположения элементов козырька, верхних и нижних прогонов. Узлы 1, 2. Сечения 1-1…14-14 Схемы расположения элементов лестницы Л8. Сечения 1-1…3-3. Узлы 1…5 Схемы расположения элементов лестницы Л4. Сечения 1-1…3-3. Узлы 1…5 Техническая спецификация металла павильона Схема расположения элементов павильона Решетки для лотков ЛР1, ЛР2. Решетка для вытирания ног РВ1. Напольная решетка ЛР3, ЛР4 и ЗД1 |
| Разработан: | ГПИ и НИИ ГА Аэропроект |
| Утверждён: | 10.03.1986 МГА |






































































































