Скачать Типовой проект 701-3-26с.88 Альбом 1. Общая пояснительная записка, технология производства, автоматизированная система управления, холодоснабжениеДата актуализации: 01.01.2021
|
| Обозначение: | Типовой проект 701-3-26с.88 |
| Обозначение англ: | 701-3-26с.88 |
| Статус: | не определен законодательством |
| Название рус.: | Альбом 1. Общая пояснительная записка, технология производства, автоматизированная система управления, холодоснабжение |
| Дата добавления в базу: | 01.10.2014 |
| Дата актуализации: | 01.01.2021 |
| Дата введения: | 14.04.1988 |
| Дата окончания срока действия: | 30.06.2003 |
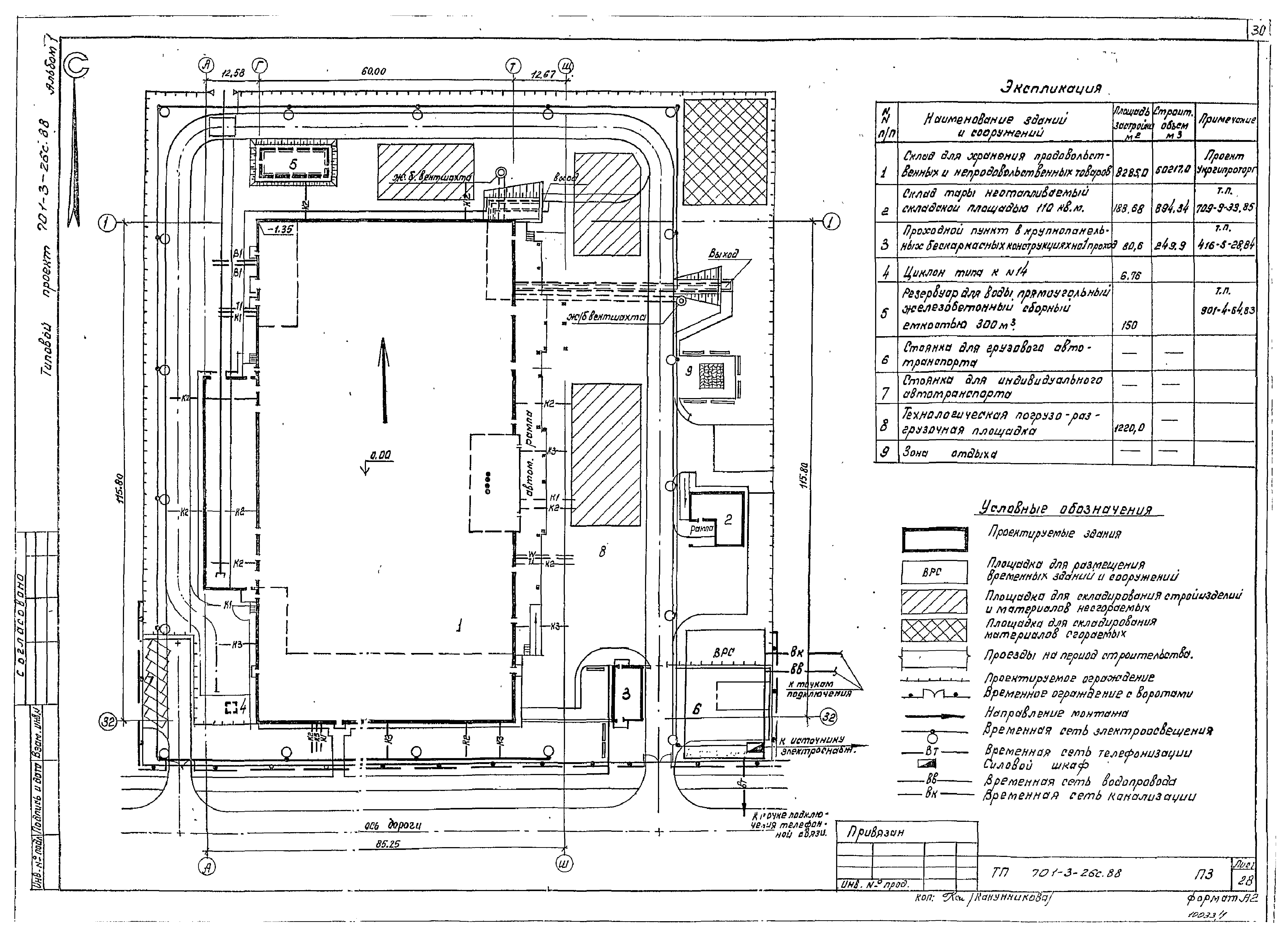
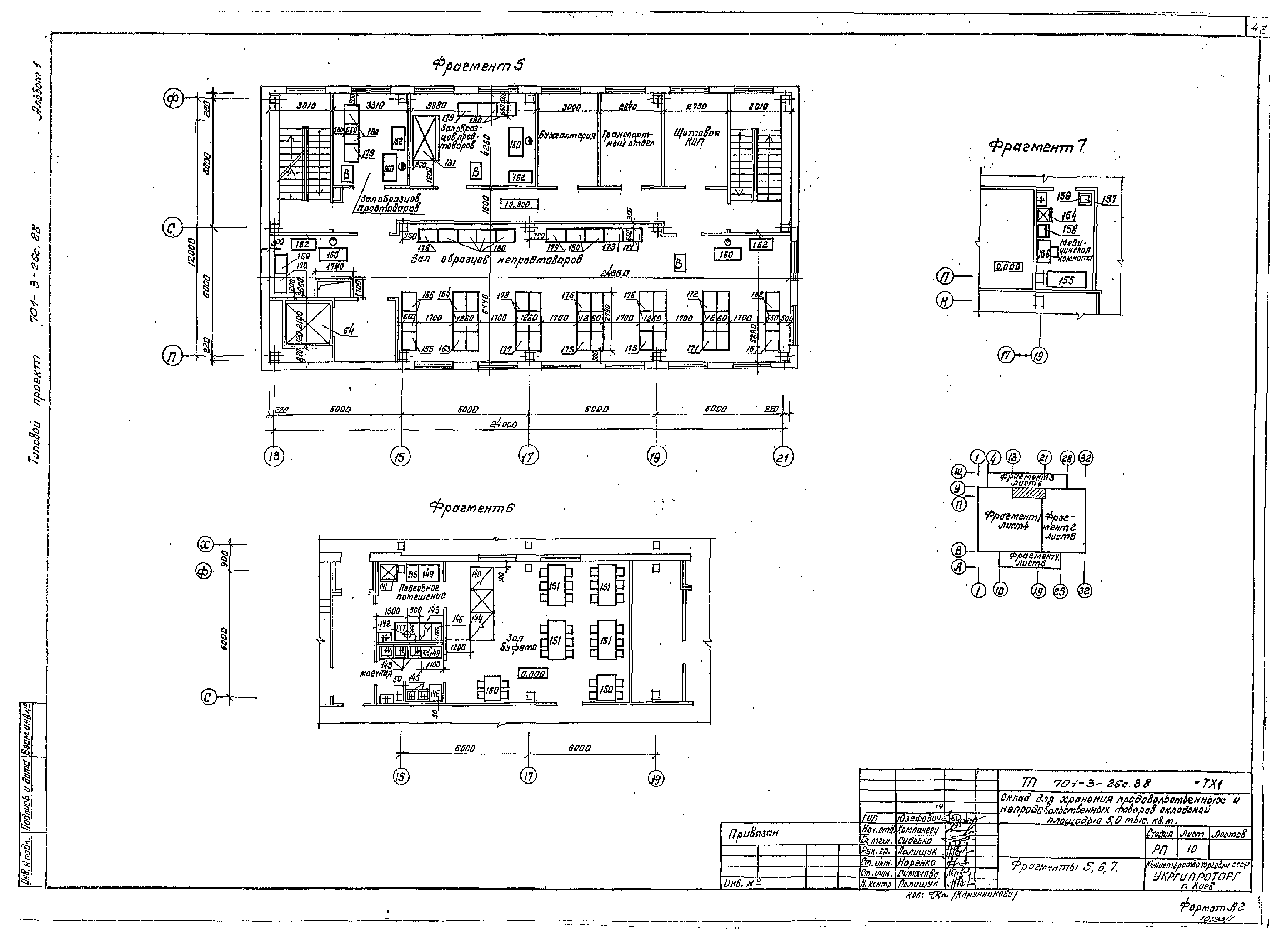
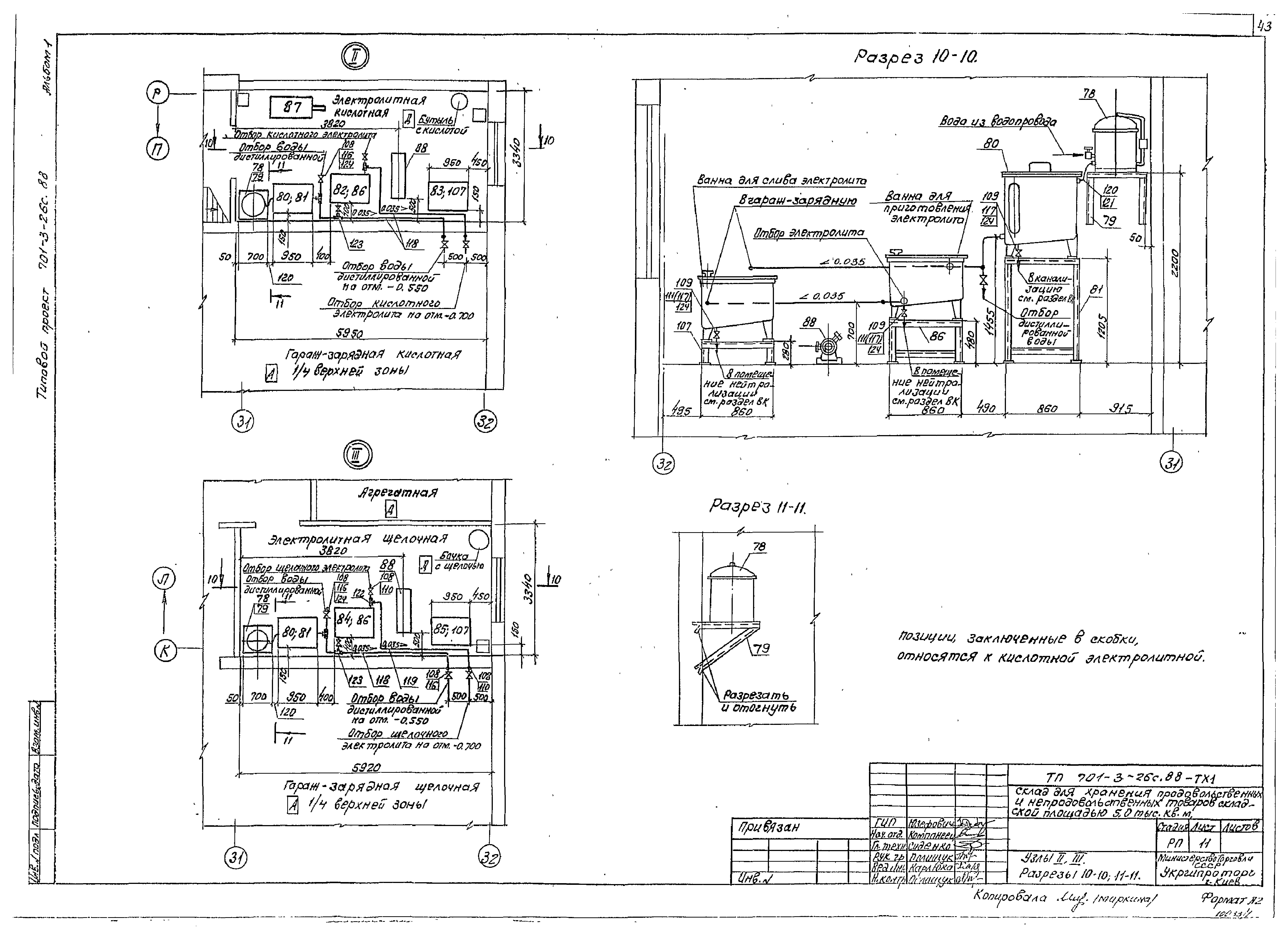
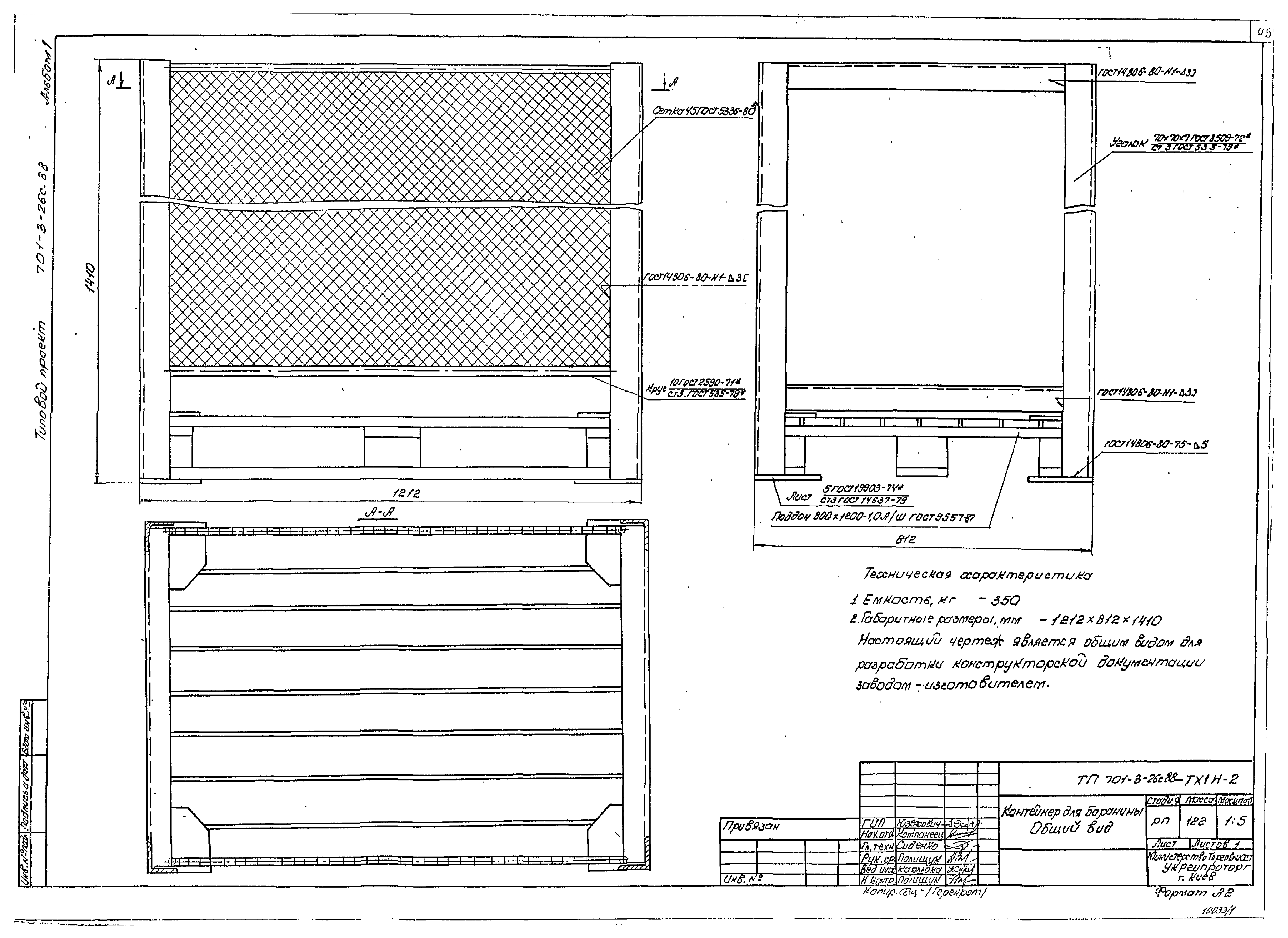
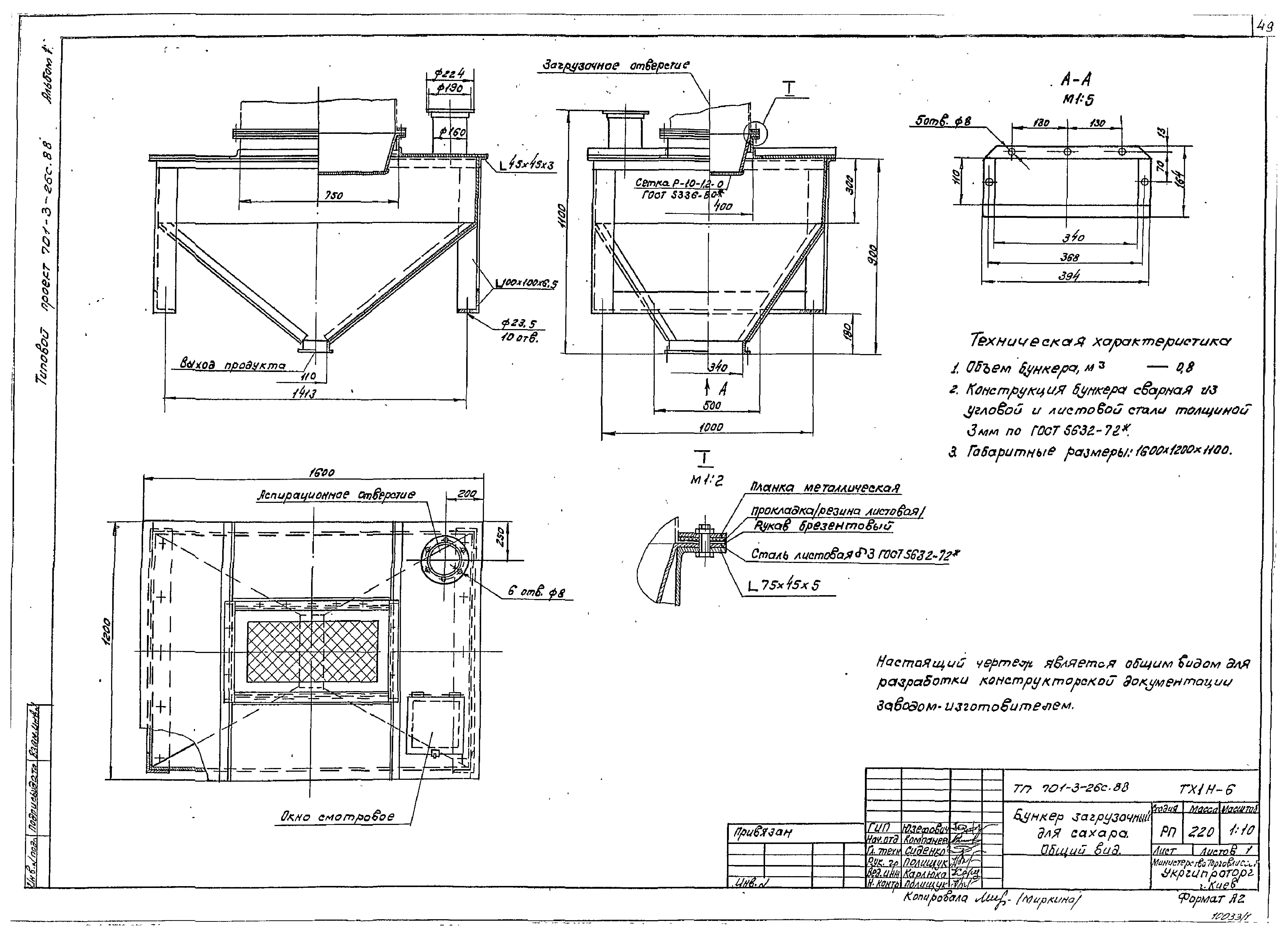
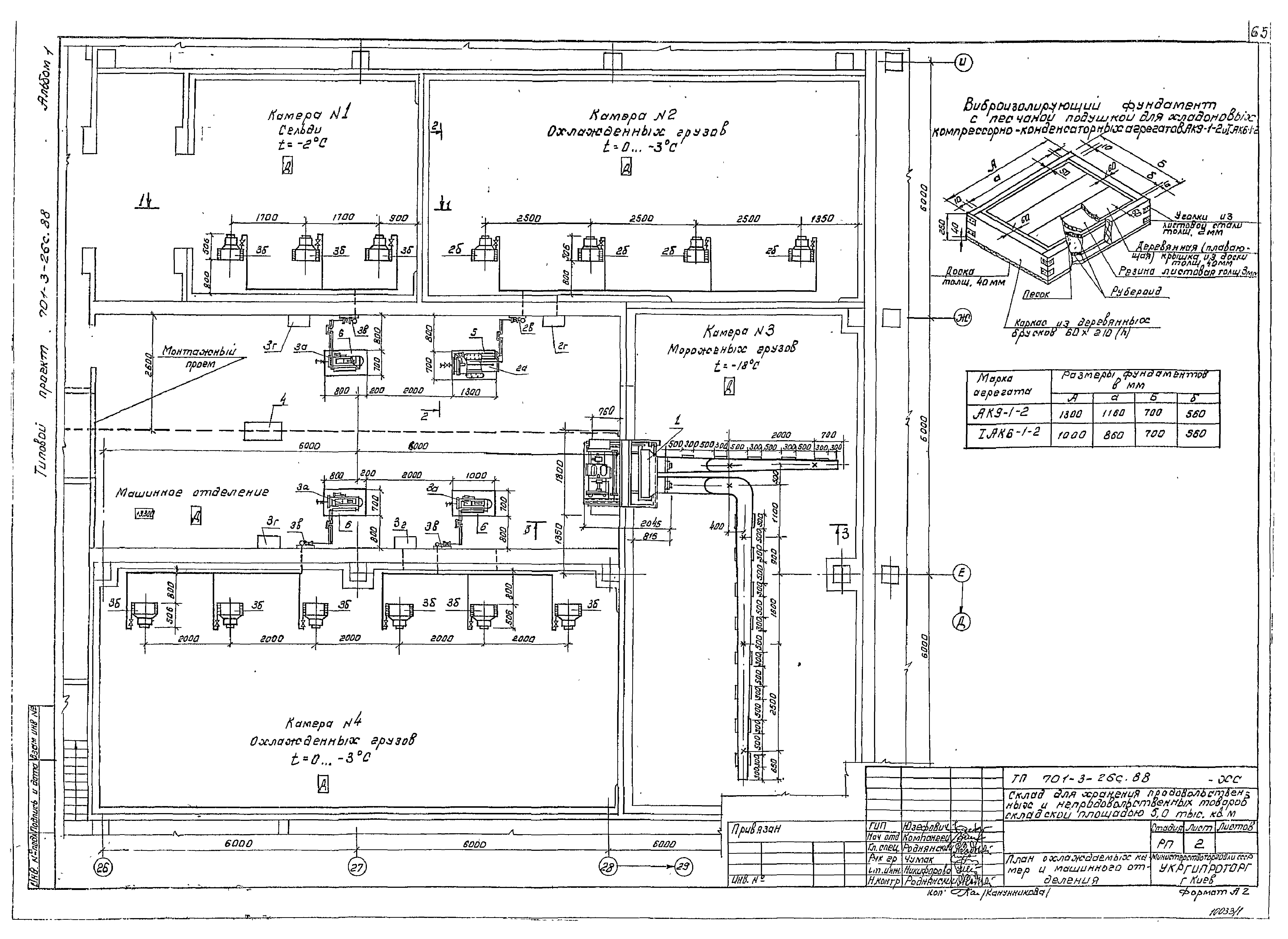
| Оглавление: | Содержание альбома Общая пояснительная записка Схема генерального плана Технология производства Общие данные Транспортно-технологическая схема перемещения товаров. Схема погрузочно-разгрузочных работ Общекомпоновочный план. Грузопотоки Фрагмент 1 Фрагмент 2. Разрезы 1-1, 2-2 Фрагменты 3, 4. Разрез 3-3 Узел I. План площадки на отм. 3.000. Разрез 4-4 Разрезы 5-5, 6-6 Разрезы 7-7, 8-8, 9-9 Фрагменты 5, 6, 7 Узлы II, III. Разрезы 10-10, 11-11 Нестандартизированное оборудование Поддон стоечный для мяса. Общий вид Контейнер для баранины. Общий вид Поддон для готового платья. Общий вид Шибер. Общий вид Бункер для фасовки кондитерских изделий. Общий вид Бункер загрузочный. Общий вид Мостик для автомобильного транспорта. Общий вид Мостик для железнодорожного транспорта. Общий вид Грузозахватное устройство. Общий вид Подставка под выпрямители ЕПК 80/60-25. Общий вид Кронштейн под дистиллятор. Общий вид Ванна для дистиллированной воды. Общий вид Подставки под ванны. Общий вид Ванна для приготовления и слива кислотного электролита. Общий вид Ванна для приготовления и слива щелочного электролита. Общий вид Тележка для аккумуляторов. Общий вид Верстак столярный. Общий вид Подставка под оборудование. Общий вид Поддон сетчатый. Общий вид Автоматизированная система управления Общие данные План размещения оборудования на отм. 3.600 и 10.800 между осями 17 - 19 и П - Ф и на отм. 7.200 между осями 13 - 21 и П - Ф Холодоснабжение Общие данные План охлаждаемых камер и машинного отделения Разрезы 1-1, 2-2 и 3-3 Схема хладоновых трубопроводов |
| Разработан: | Укргипроторг |
| Утверждён: | 04.04.1988 Министерство торговли СССР (USSR Ministry of Commerce 1) |



































































