Скачать Типовой проект 701-3-26с.88 Альбом 2. Архитектурные решенияДата актуализации: 01.01.2021
|
| Обозначение: | Типовой проект 701-3-26с.88 |
| Обозначение англ: | 701-3-26с.88 |
| Статус: | не определен законодательством |
| Название рус.: | Альбом 2. Архитектурные решения |
| Дата добавления в базу: | 01.10.2014 |
| Дата актуализации: | 01.01.2021 |
| Дата введения: | 14.04.1988 |
| Дата окончания срока действия: | 30.06.2003 |
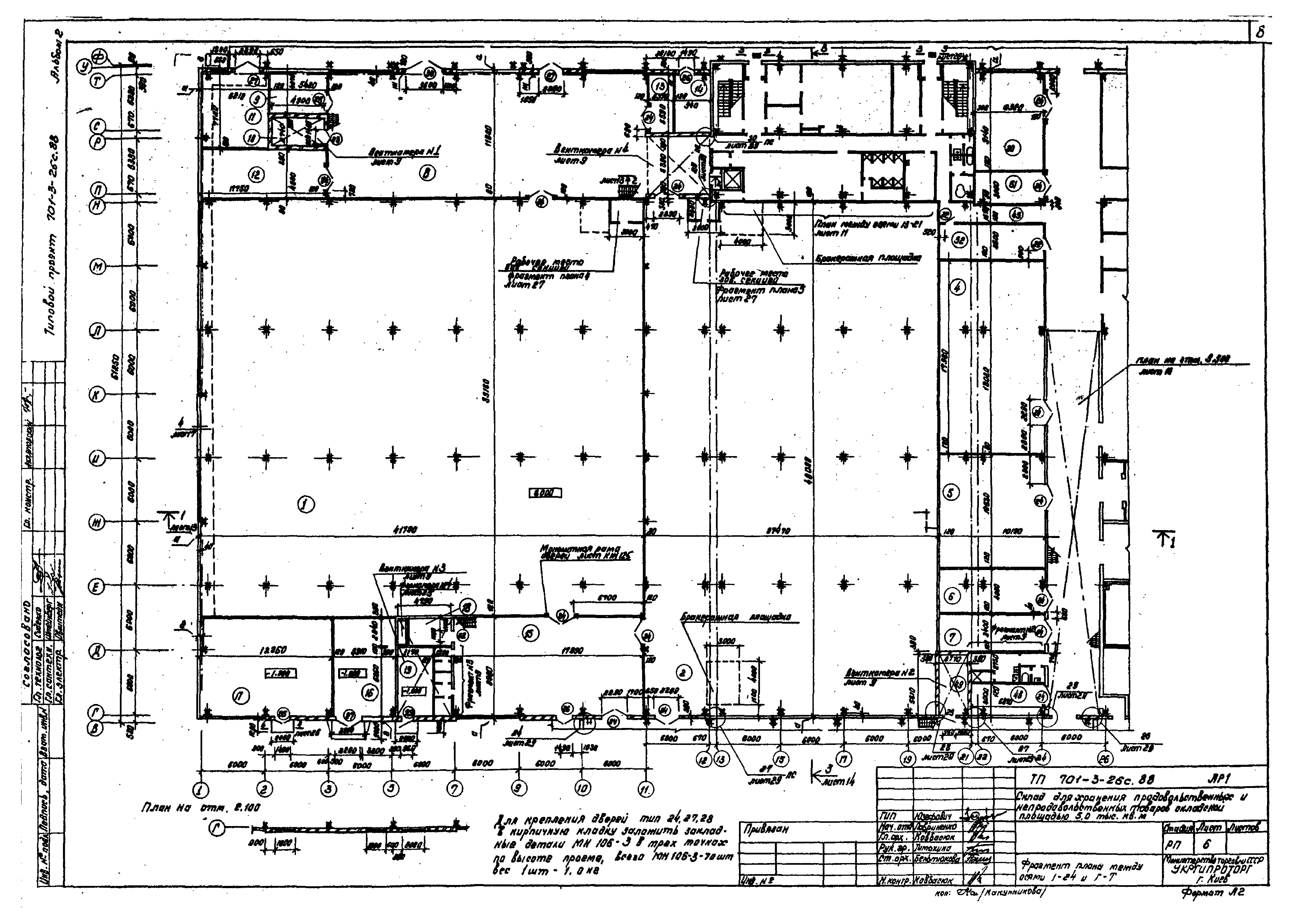
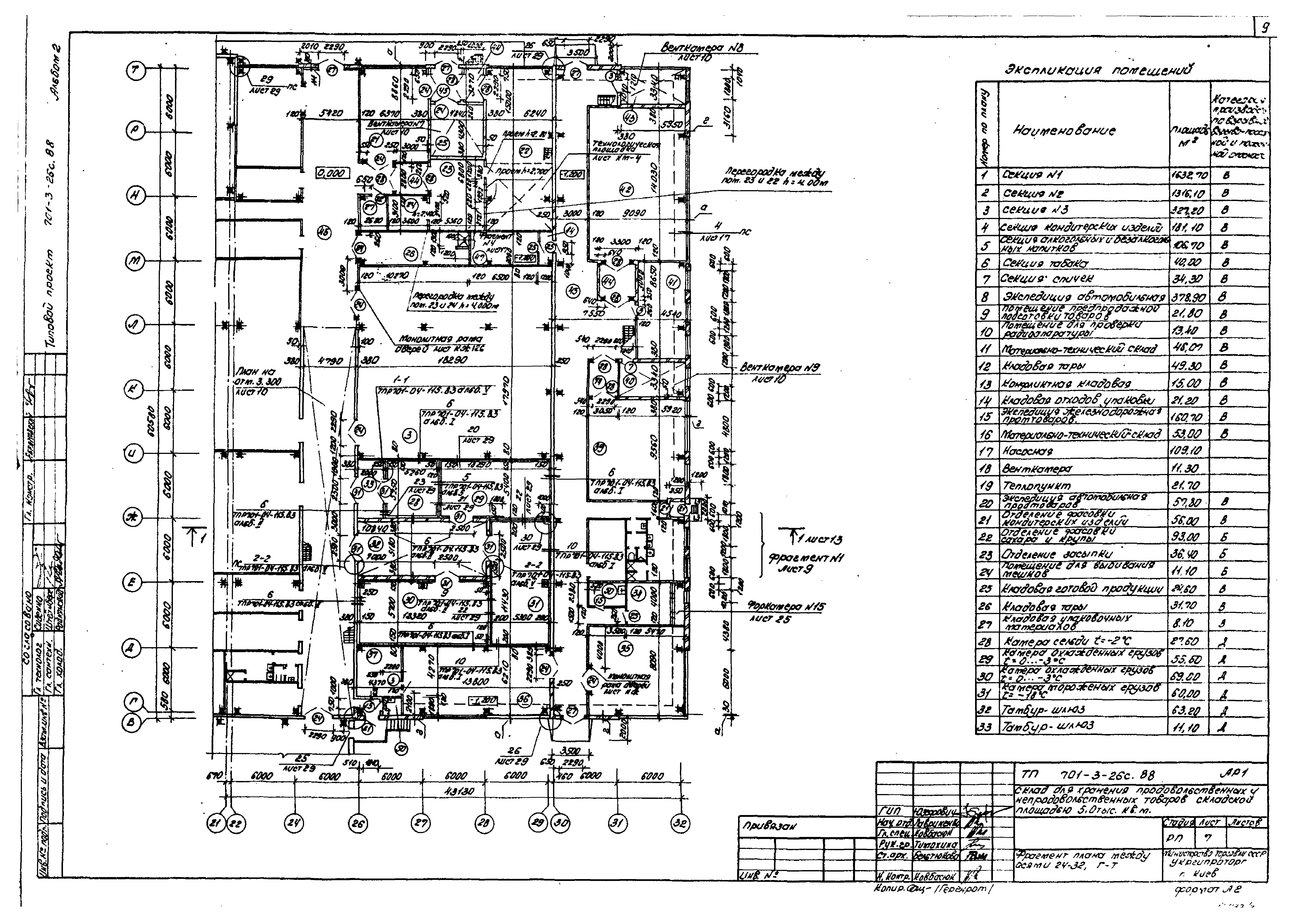
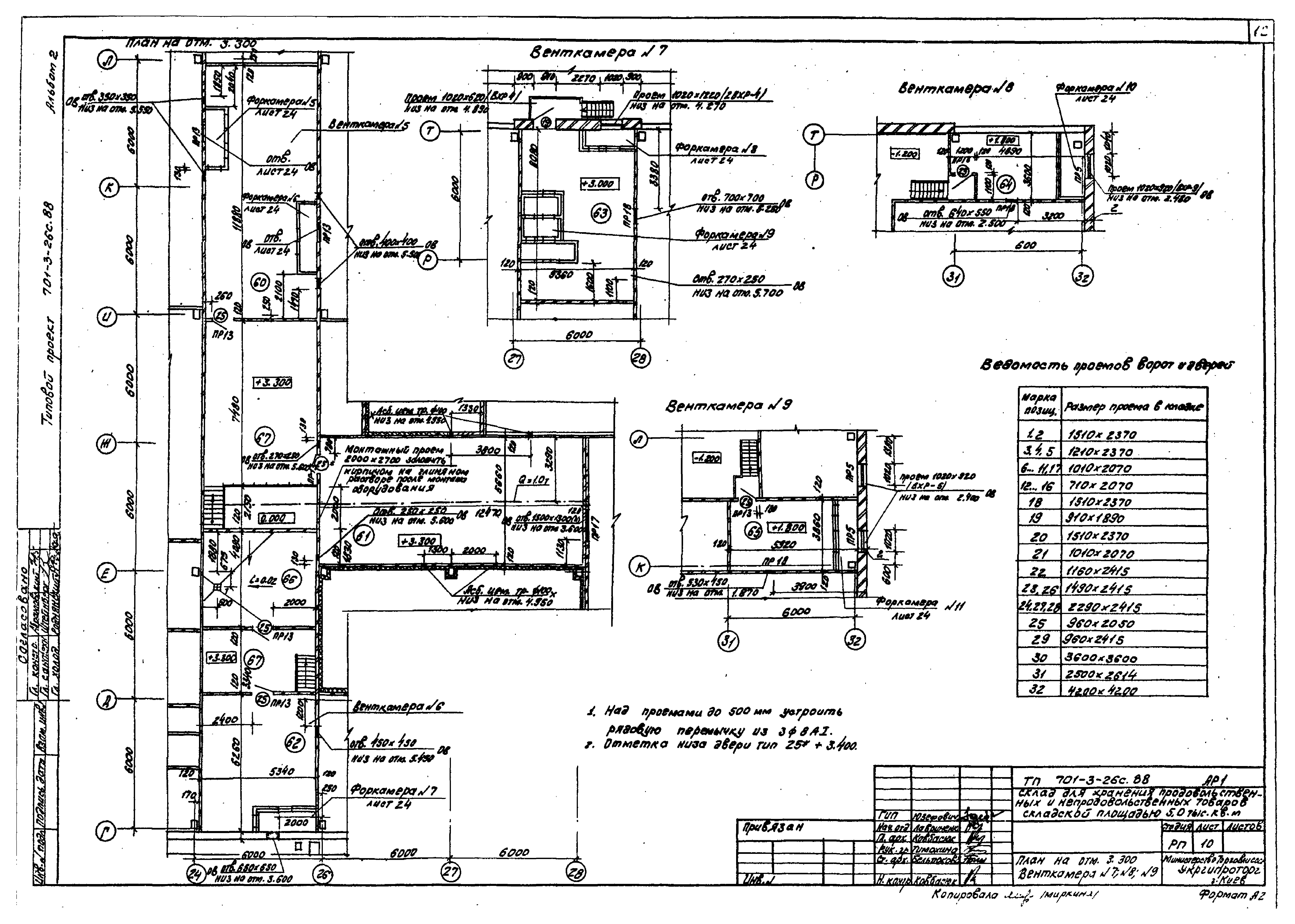
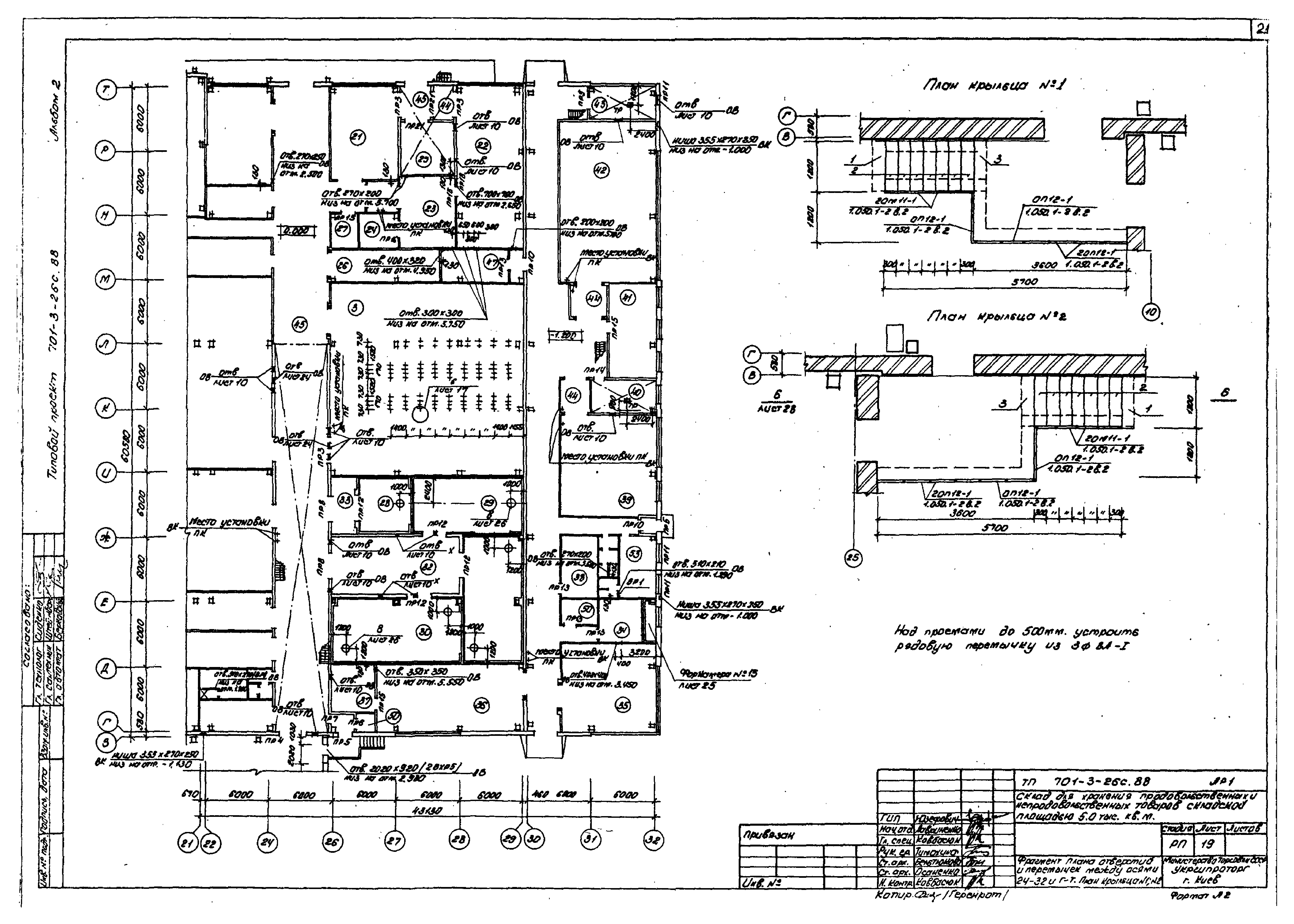
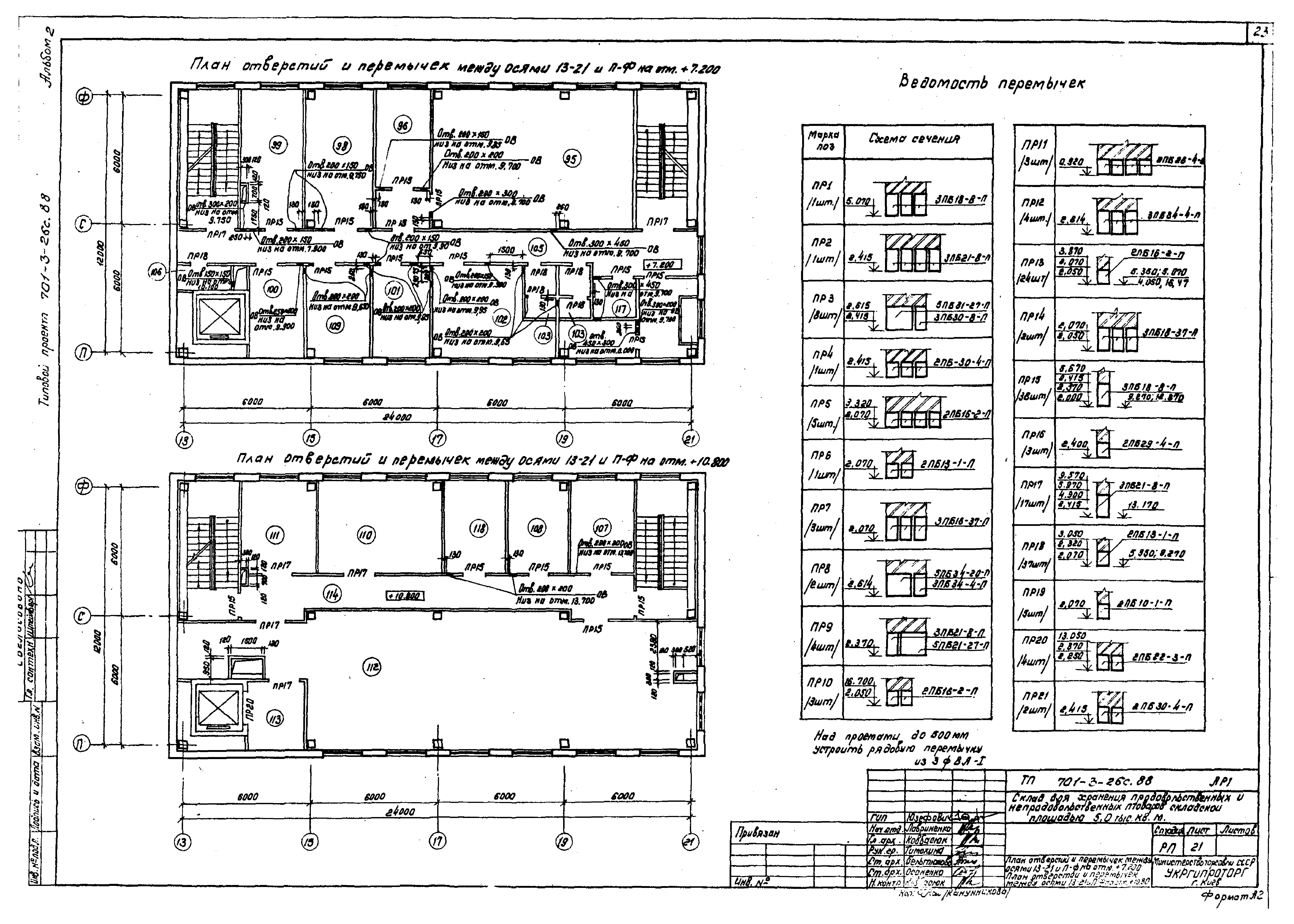
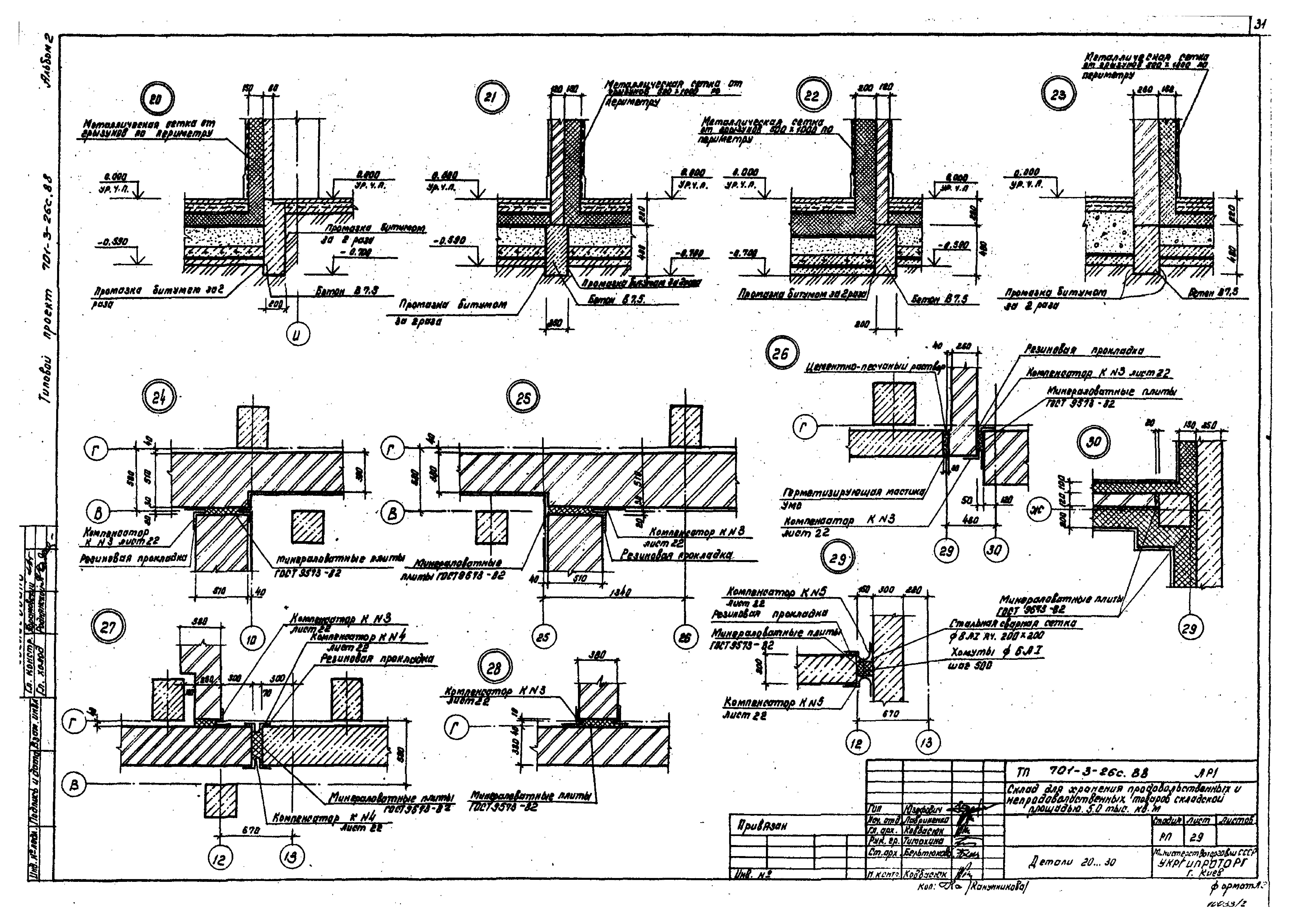
| Оглавление: | Содержание альбома Общие данные Спецификация к чертежам архитектурных решений План на отм. 0.000 Фрагмент плана между осями 1 - 24 и Г - Т Фрагмент плана между осями 24 - 32 и Г - Т Фрагмент плана между осями 4 - 28 и Т - Щ; 10 - 25 и А - В Фрагмент плана № 1, № 2, № 3. Венткамера № 1, № 2, № 3, № 4 План на отм. 3.300. Венткамера № 7, № 8, № 9 План между осями 13 - 21 и П - Ф на отм. 0.000. План между осями 13 - 21 и П - Ф на отм. 3.600 План между осями 13 - 21 и П - Ф на отм. 7.200. План между осями 13 - 21 и П - Ф на отм. 10.800 Разрез 1-1, 2-2. Детали 1, 2 Разрез 3-3, 4-4. Деталь 3 Фасад Щ - А, 1 - 32 Фасад Г - Щ, 32 - 1 План между осями 13 - 15 и П - Ф на отм. 14.400. Детали 4…6. Фрагмент № 4 Фрагмент плана отверстий и перемычек между осями 1 - 24 и Г - Т Фрагмент плана отверстий и перемычек между осями 24 - 32 и Г - Т. План крыльца № 1 и №2 План отверстий и перемычек между осями 13 - 21 и П - Ф на отм. 0.000. План отверстий и перемычек между осями 13 - 21 и П - Ф на отм. 3.600 План отверстий и перемычек между осями 13 - 21 и П - Ф на отм. 7.200. План отверстий и перемычек между осями 13 - 21 и П - Ф на отм. 10.800 План кровли. Деталь 7 Форкамера № 1, № 2, № 3, № 4 Форкамера № 5, № 6, № 7, № 8, № 9, № 10, № 11 Форкамера № 12, № 13, № 14, № 15 Детали 8…11. Сечения 1-1…4-4 Фрагмент плана № 4, № 5. Детали 12…16 Облицовка потолка машинного узла. Детали 17…19. Сечения 5-5, 6-6 Детали 20…29 План машинного помещения. План шахты. Разрез 6-6. Детали 30 - 32 Вид А, Б, В, Г. Разрез 7-7 |
| Разработан: | Укргипроторг |
| Утверждён: | 04.04.1988 Министерство торговли СССР (USSR Ministry of Commerce 1) |

































