Скачать Типовой проект 701-3-26с.88 Альбом 4. Отопление и вентиляция, внутренние водопровод и канализацияДата актуализации: 01.01.2021
|
| Обозначение: | Типовой проект 701-3-26с.88 |
| Обозначение англ: | 701-3-26с.88 |
| Статус: | не определен законодательством |
| Название рус.: | Альбом 4. Отопление и вентиляция, внутренние водопровод и канализация |
| Дата добавления в базу: | 01.10.2014 |
| Дата актуализации: | 01.01.2021 |
| Дата введения: | 14.04.1988 |
| Дата окончания срока действия: | 30.06.2003 |
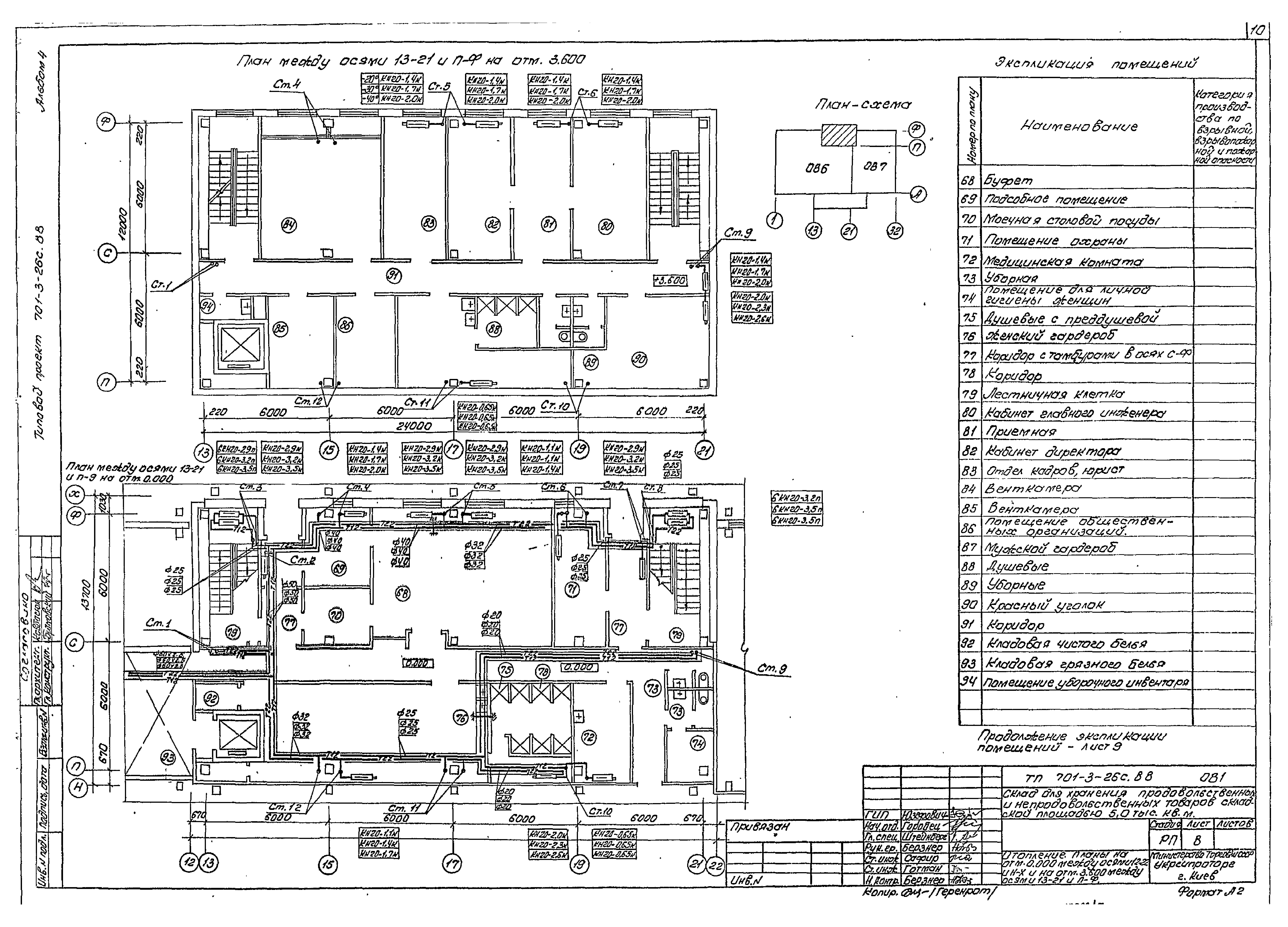
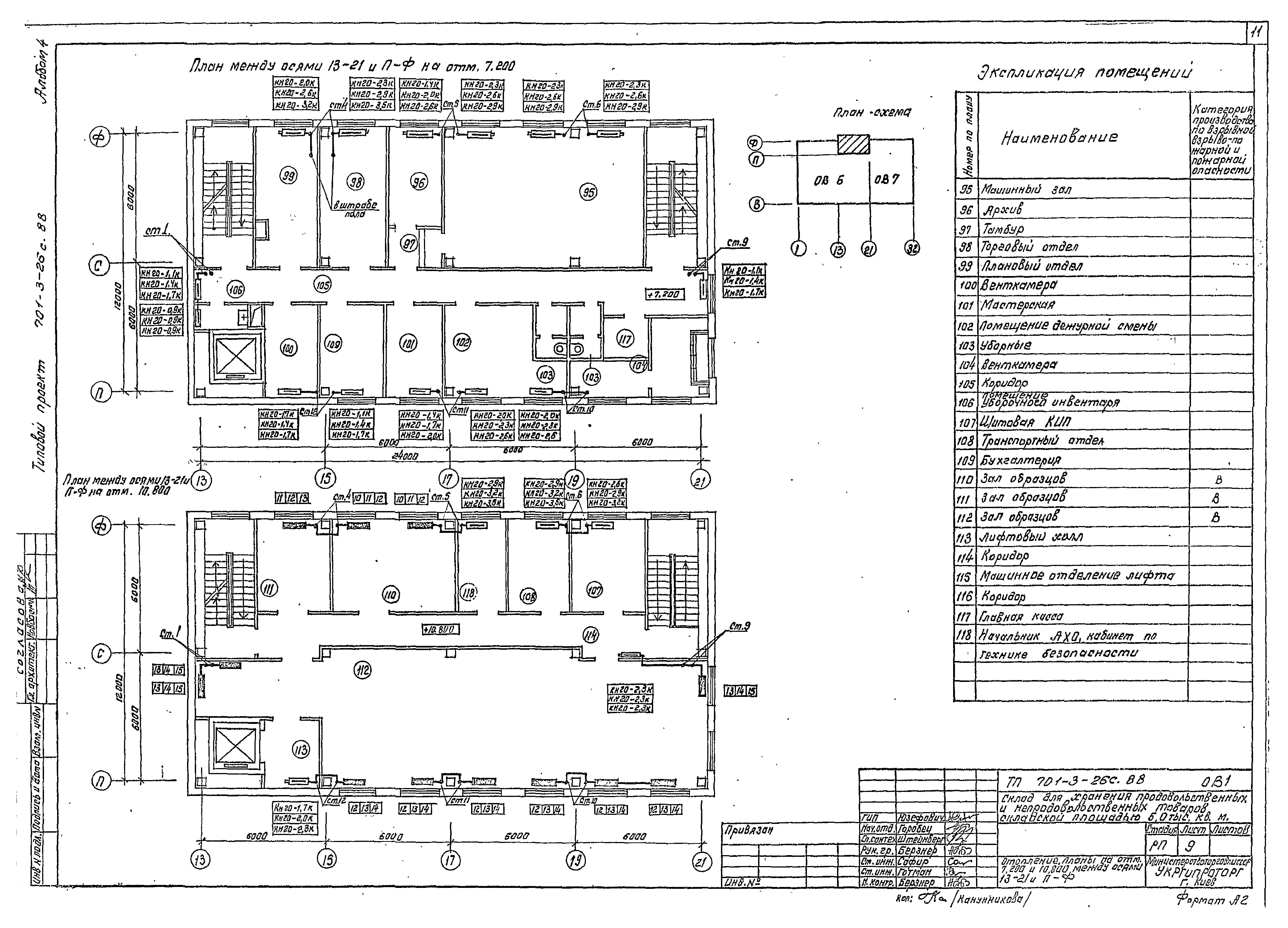
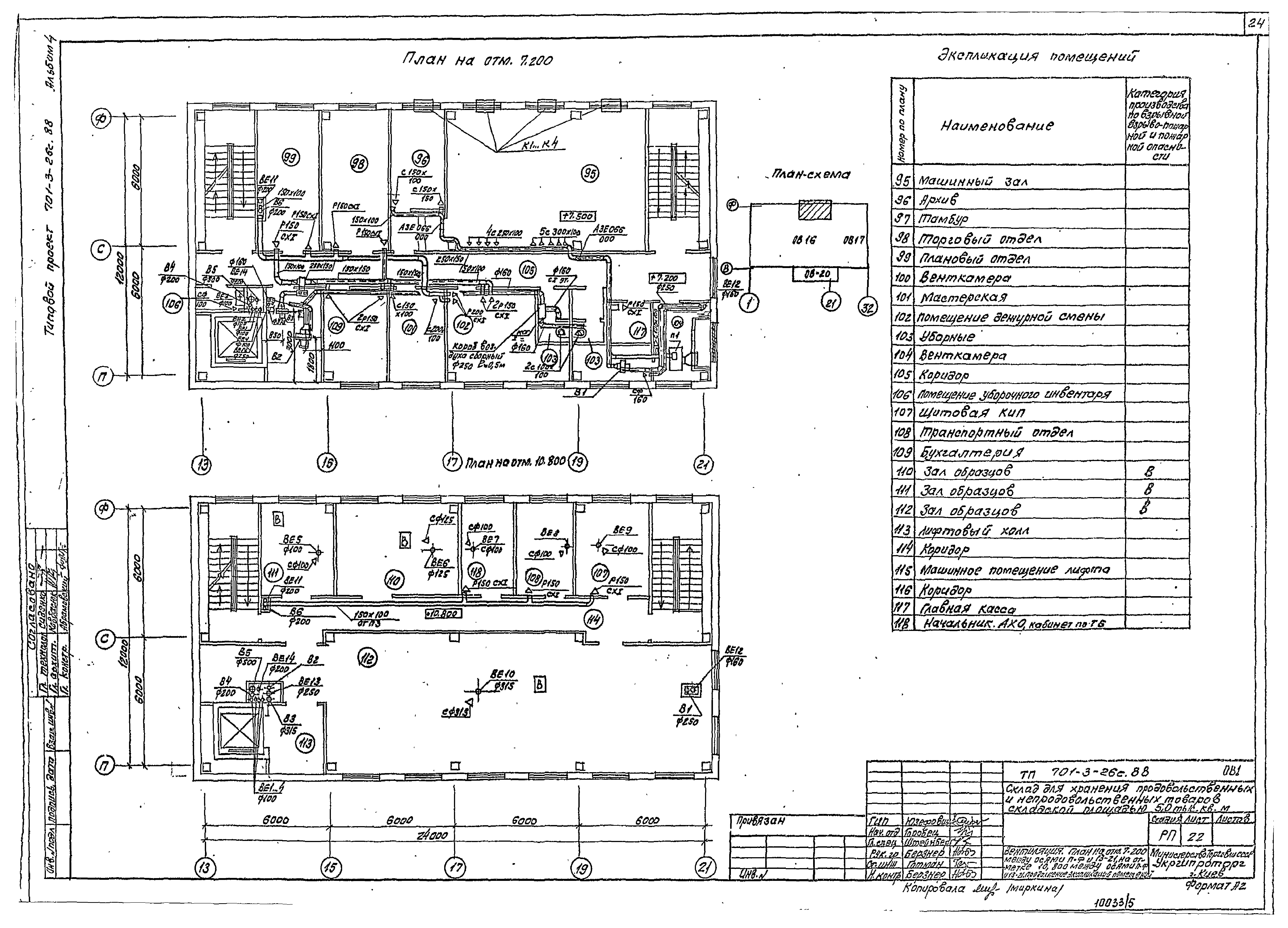
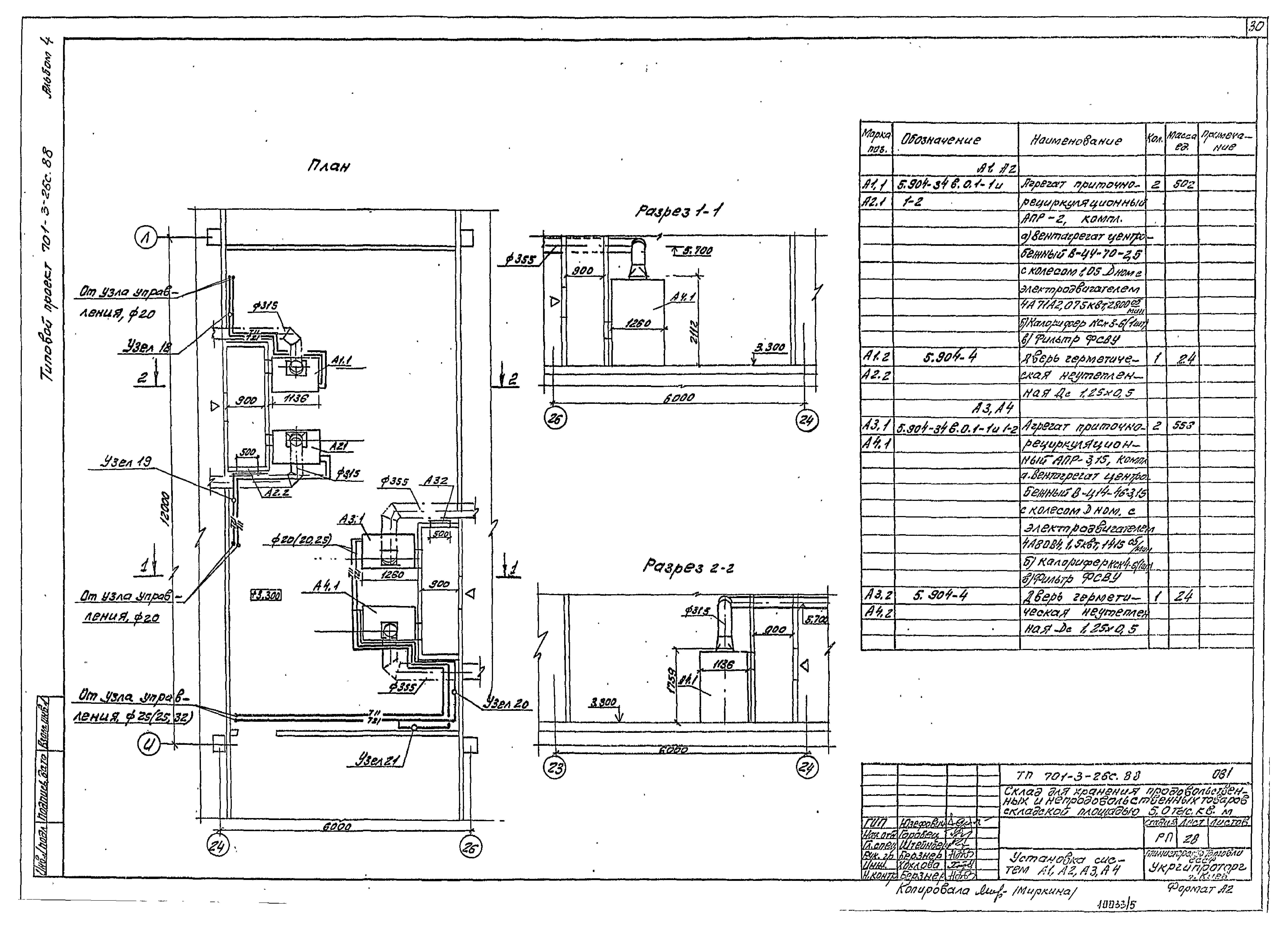
| Оглавление: | Содержание альбома Отопление, вентиляция Общие данные Отопление. План на отм. 0.000 между осями В - Ф и 1 - 26 Отопление. План на отм. 0.000 и - 1.200 между осями 21 - 32 и Г - Т Отопление. Планы на отм. 0.000 между осями 12 - 22 и Н - Х и на отм. 3.600 между осями 13 - 21 и П - Ф Отопление. Планы на отм. 7.200 и 10.800 между осями 13 - 21 и П - Ф Схема системы отопления СТ1 - 12 Схемы системы отопления СТ13 - 59 Теплоснабжение. План на отм. 0.000 между осями В - У и 1 - 26 Теплоснабжение. План на отм. 0.000 и - 1.200 между осями В - Т и 26 - 32. Принципиальные схемы обвязки калориферов систем П1…П12; П14…П17 Схема системы теплоснабжения установок П1…П12; П14…П17, А1…А6; У1 Теплоснабжение. Принципиальные схемы обвязок калориферов систем А1…А6, У1 Вентиляция. План на отм. 0.000 и - 1.200 между осями В - Р и 1 - 26 Вентиляция. План на отм. 0.000 и - 1.200 между осями В - Р и 21 - 32 Вентиляция. Фрагмент плана №1. План площадки на отм. 3.600 Вентиляция. Разрезы 1-1 и 2-2 Вентиляция. План на отм. 0.000 между осями А - Г и 10 - 25. Экспликация помещений Вентиляция. План на отм. 0.000 между осями Н - Х и 12 - 22; на отм. 3.600 между осями П - Ф и 13 - 20. Экспликация помещений Вентиляция. План на отм. 7.200 между осями П - Ф и 13 - 21. Экспликация помещений Схемы систем А1…А4; В12; В13; В14; В16; П4; П9; П13; ВЕ15…ВЕ(Д)21; ВЕ(Д)31; ВЕ(Д)32; ВЕ40; ВЕ(Д)42…ВЕ57 Схемы систем В7, В8, П5, П8, П14…П17; ВЕ(Д)22; ВЕ30; ВЕ33…ВЕ39; Д1…Д14 Схемы систем В1…В6; П1; П2; ВЕ1…ВЕ3 Схемы систем В11; В15; В17; П3; П10; П11; П12; АС-1; ВЕ4….10; ВЕ37 Схемы систем В9; В10; В18; У1; П6; П7; ВЕ11…14; ВЕ58 Установка систем А1, А2, А3, А4 Установка систем В1, П1 Установка систем П2, П3, В6 Установка систем П4 Установка систем П5, П8 Установка систем П6, П7 Установка систем П9, В12 Установка систем П10 Установка систем П11, П12 Установка систем П14, П15 Установка систем П16, П17 Установка систем В9 Агрегат смесительный Теплопункт. План. Узлы управления Сборная воронка. Общий вид Водопровод и канализация Общие данные План кровли Фрагмент плана между осями 1 - 26; В - Ф Фрагмент плана между осями 22 - 32; Г - Р Фрагменты между осями У - Ц; 4 - 28 и А - Г; 10 - 25 Фрагменты планов № 1, № 2, № 3, №4 План между осями 13 - 21 и П - Ф на отм. 0.000 и 3.600 План между осями 13 - 21 и П - Ф на отм. 7.200 и 10.800 Спринклерное пожаротушение. План на отм. 0.000 между осями 1 - 26 и В - Ф Спринклерное пожаротушение. Насосная. План. Разрез. Схема Спринклерное пожаротушение. Фрагмент плана в осях 10 - 25; А - В. Схема системы № 3 Спринклерное пожаротушение. Схемы Схемы В1, Т3, К1, К3 Схемы В1, Т3 Схемы К1, К2, К3 Схемы К2 Оборотное водоснабжение План нейтрализационной. Разрезы. Схемы. Детали |
| Разработан: | Укргипроторг |
| Утверждён: | 04.04.1988 Министерство торговли СССР (USSR Ministry of Commerce 1) |






























































