Скачать Типовые проектные решения 820-1-098с.90 Альбом I. Пояснительная записка. Железобетонные конструкции. Строительные изделия. Спецификация оборудованияДата актуализации: 01.01.2021
|
| Обозначение: | Типовые проектные решения 820-1-098с.90 |
| Обозначение англ: | 820-1-098с.90 |
| Статус: | справочные материалы, мп, тпр |
| Название рус.: | Альбом I. Пояснительная записка. Железобетонные конструкции. Строительные изделия. Спецификация оборудования |
| Дата добавления в базу: | 01.10.2014 |
| Дата актуализации: | 01.01.2021 |
| Дата введения: | 02.03.1990 |
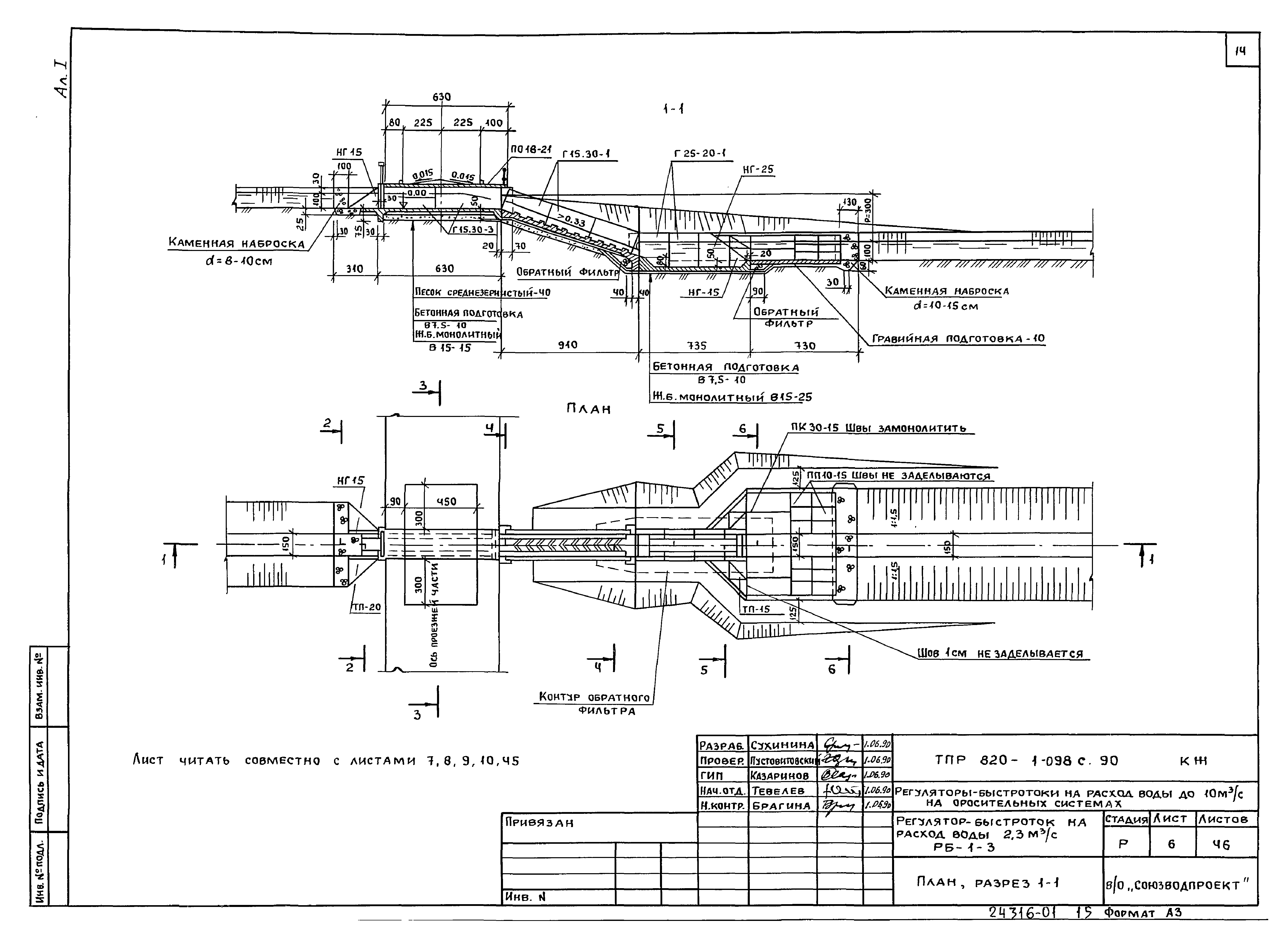
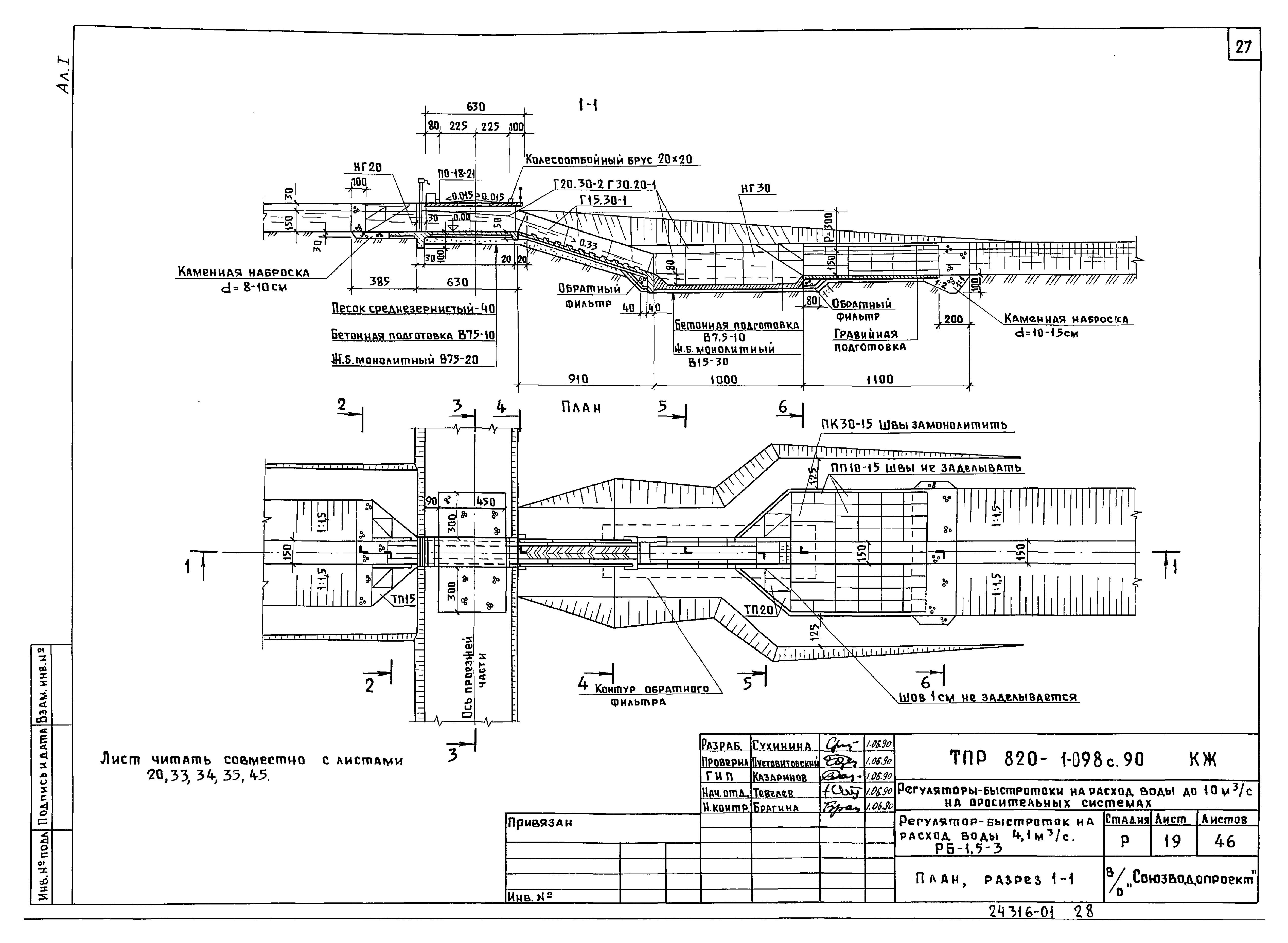
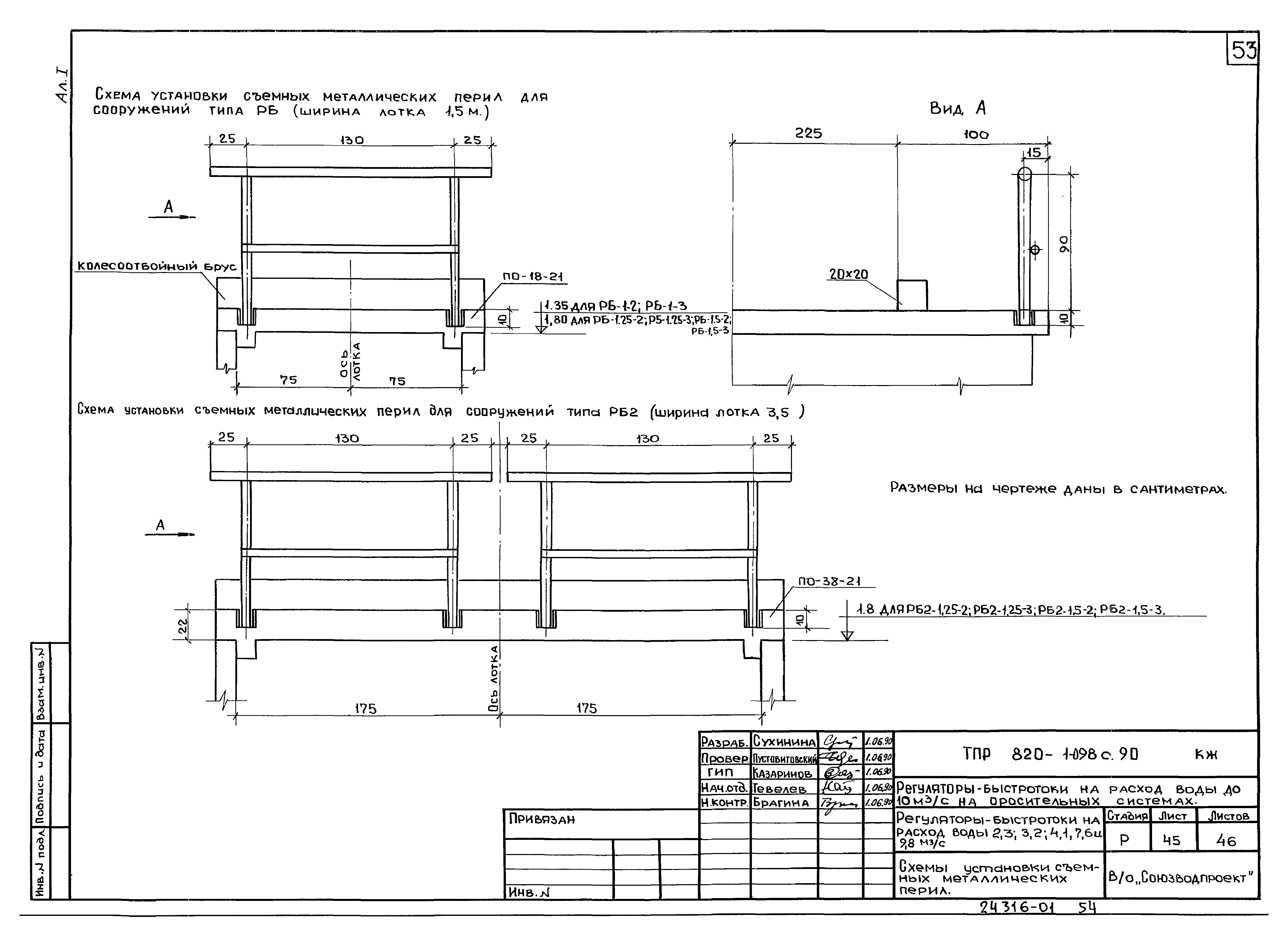
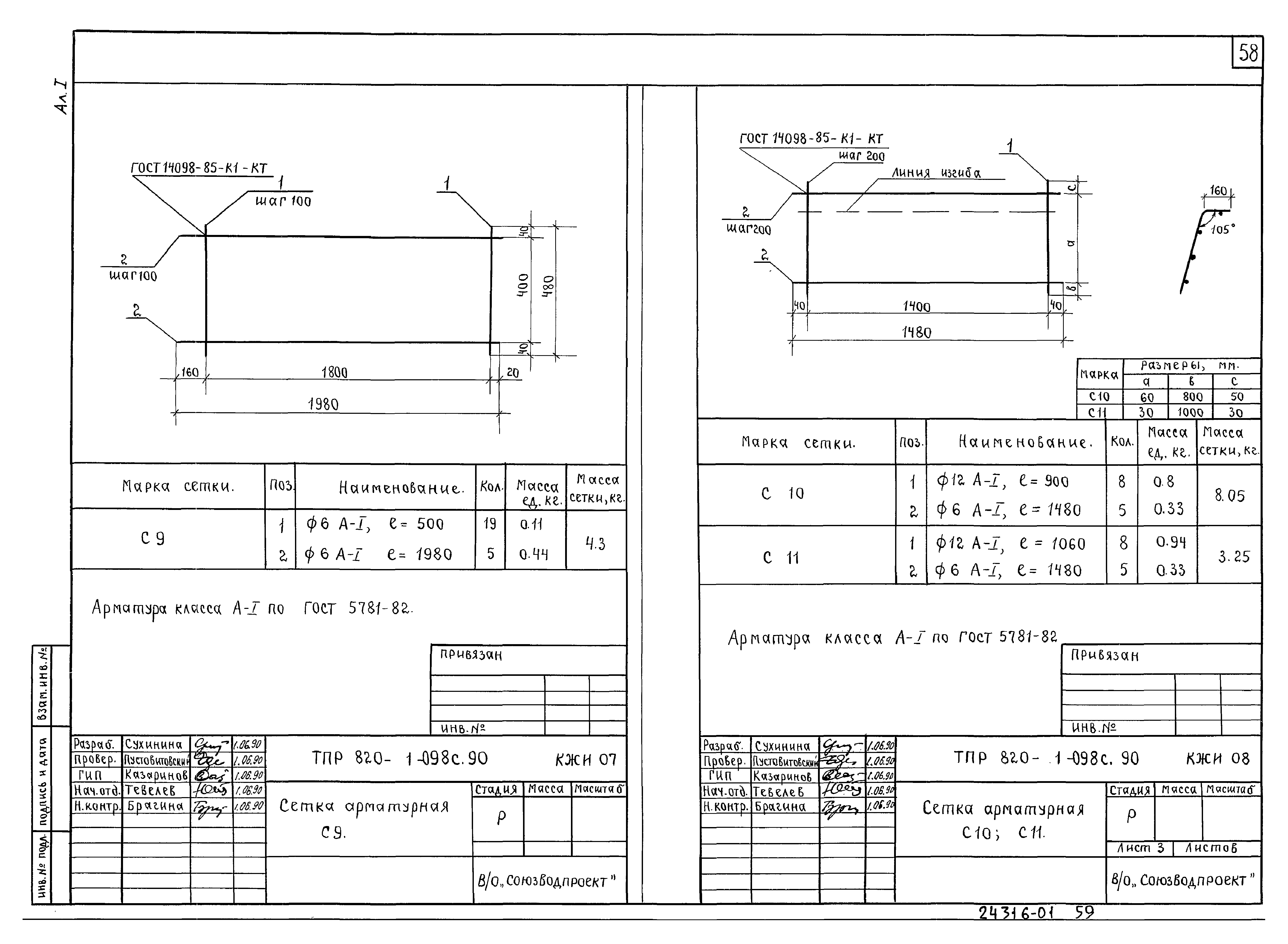
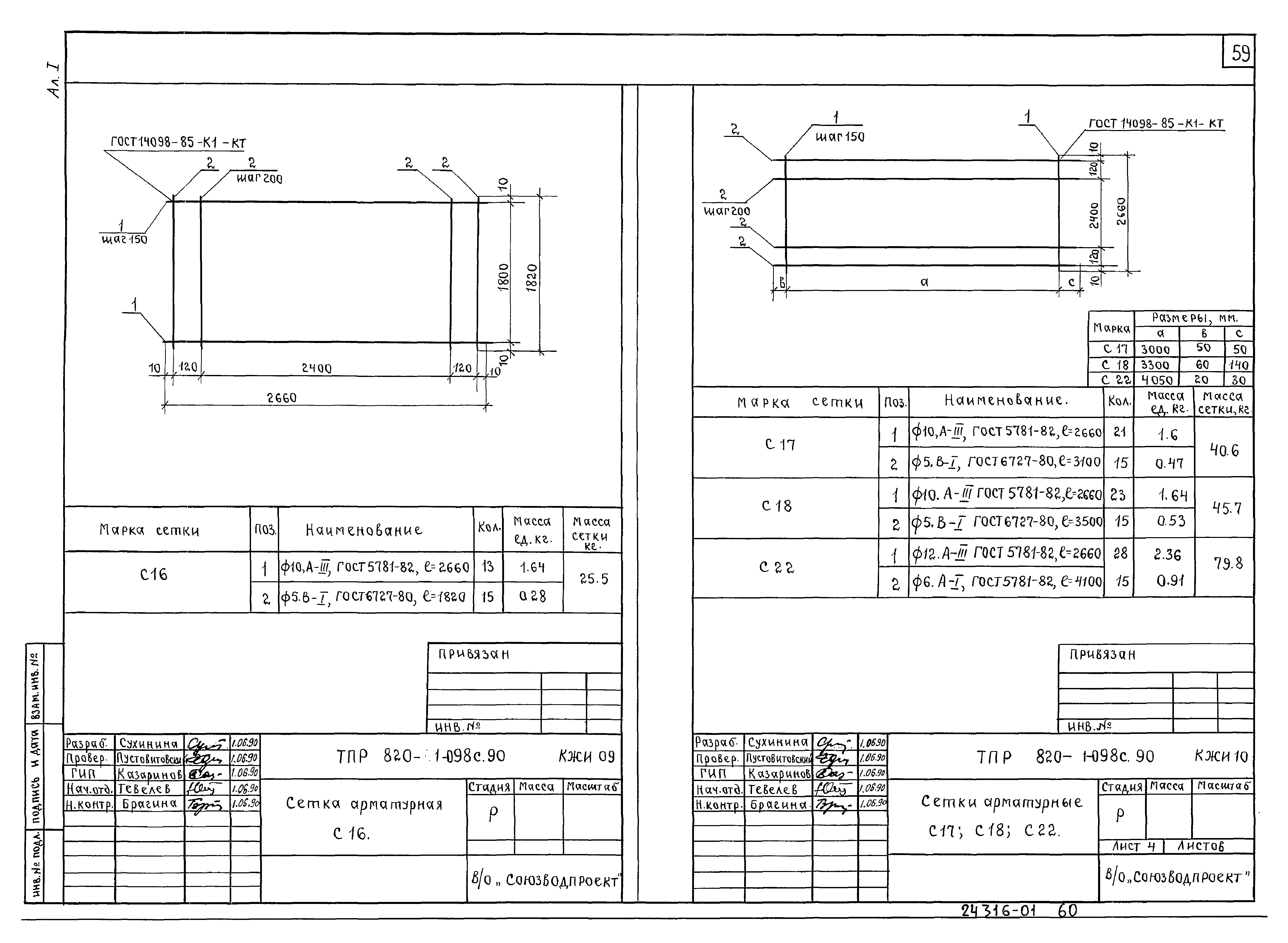
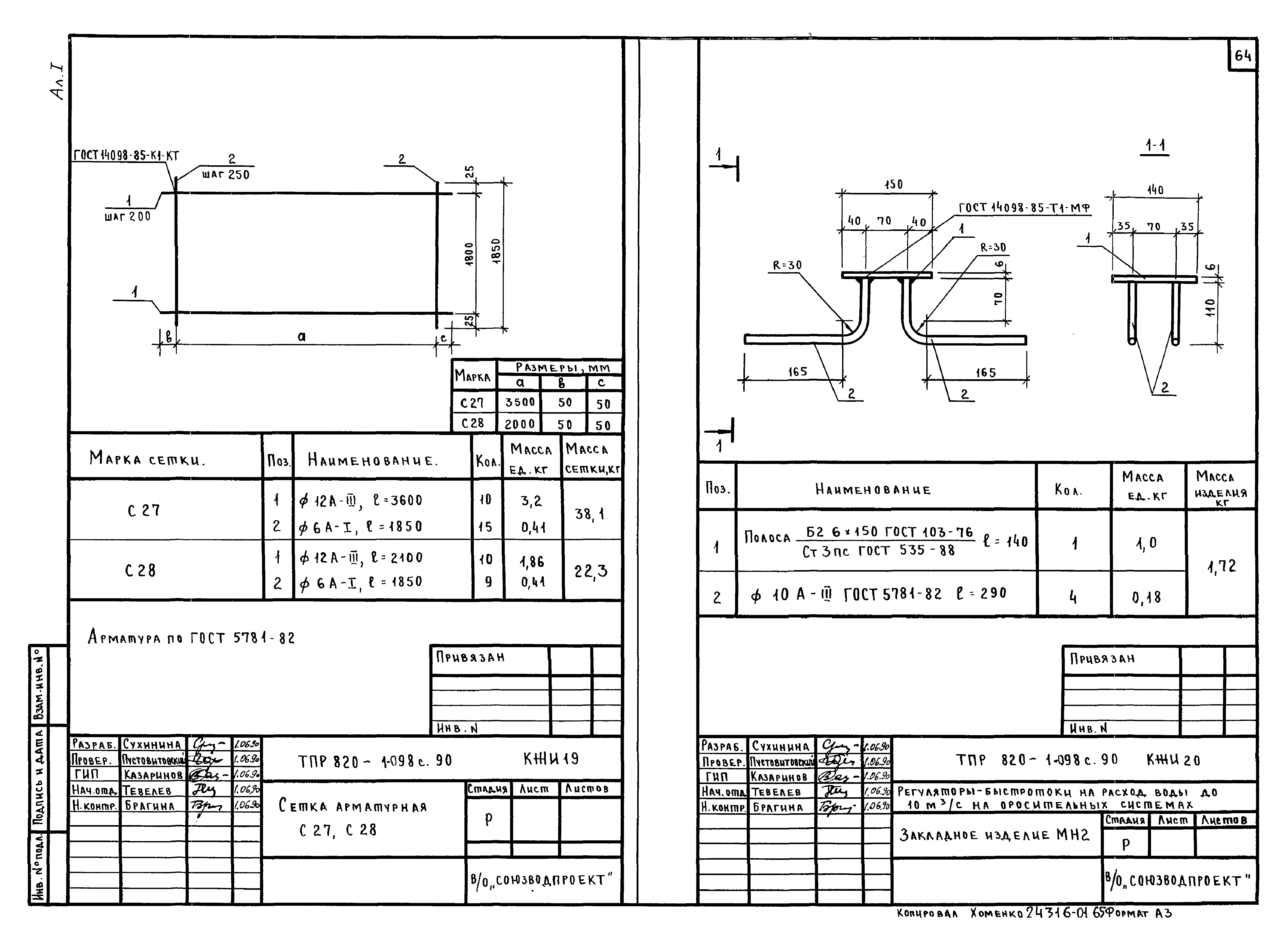
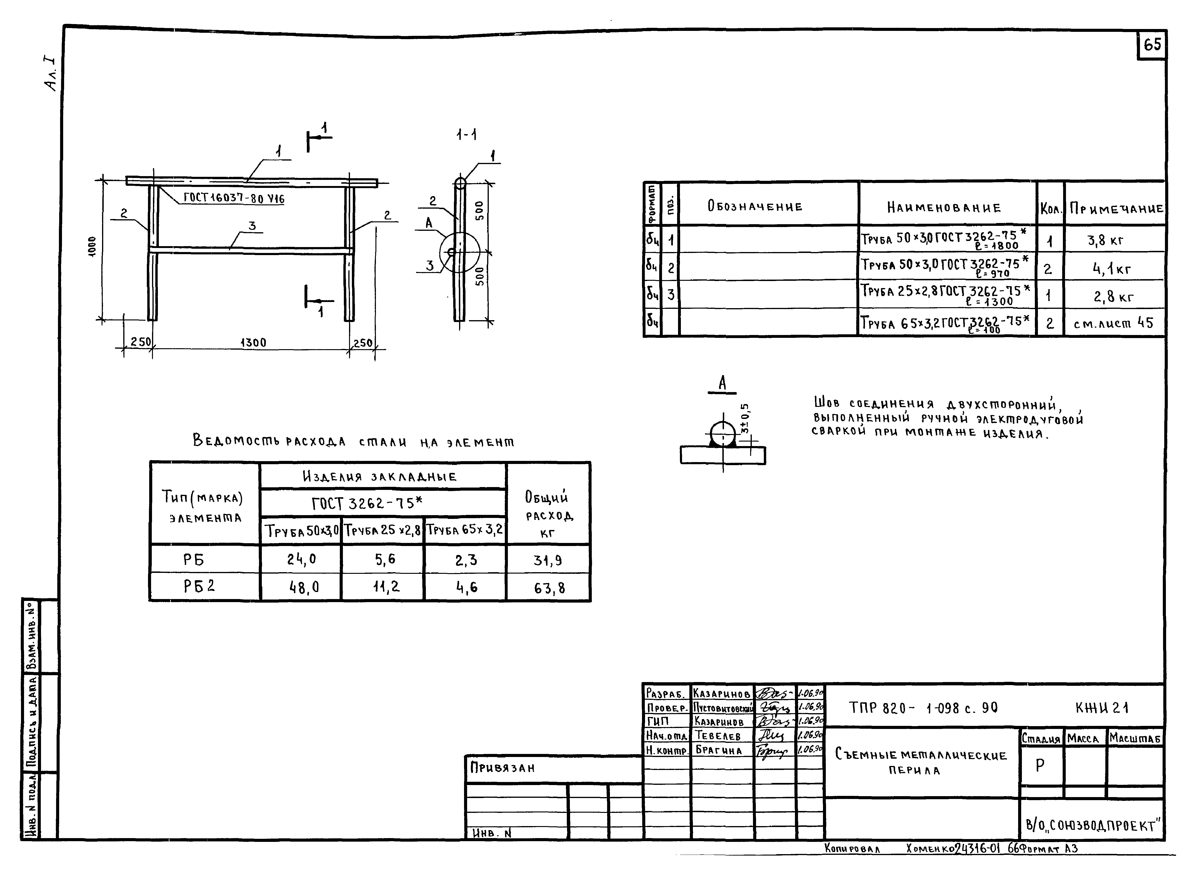
| Оглавление: | Пояснительная записка Конструкции железобетонные Общие данные Регуляторы-быстротоки на расход воды 2,3 куб. м/с РБ-1-2. План, разрез 1-1 РБ-1-3. План, разрез 1-1 РБ-1-2, РБ-1-3. Разрезы 2-2 - 6-6 Узел сопряжения входной части с быстротоком Узел сопряжения быстротока с колодцем Выходной участок колодца сборной конструкции Схема армирования сооружения Спецификация к схеме армирования Регуляторы-быстротоки на расход воды 3,2 куб. м/с РБ-1,25-2. План, разрез 1-1 РБ-1,25-3. План, разрез 1-1 РБ-1,25-2, РБ-1,25-3. Разрезы 2-2 - 6-6 Схема армирования сооружения Спецификация к схеме армирования Регуляторы-быстротоки на расход воды 4,1 куб. м/с РБ-1,5-2. План, разрез 1-1 РБ-1,5-3. План, разрез 1-1 РБ-1,5-2, РБ-1,5-3. Разрезы 2-2 - 6-6 Схема армирования сооружения Спецификация к схеме армирования Регуляторы-быстротоки на расход воды 7,6 куб. м/с РБ2-1,25-2. План, разрез 1-1 РБ2-1,25-3. План, разрез 1-1 РБ2-1,25-2, РБ2-1,25-3. Разрезы 2-2 - 6-6 Схема армирования сооружения Спецификация к схеме армирования Регуляторы-быстротоки на расход воды 9,8 куб. м/с РБ2-1,5-2. План, разрез 1-1 РБ2-1,5-3. План, разрез 1-1 РБ2-1,5-2, РБ2-1,5-3. Разрезы 2-2 - 6-6 Схема армирования сооружения Спецификация к схеме армирования Узлы и отдельные участки сооружений на расход воды 3,2; 4,1; 7,6; 9,8 куб. м/с Узел сопряжения входной части с быстротоком Узел сопряжения быстротока к колодцем РБ-1,25-2; РБ-1,25-3; РБ-1,5-2; РБ-1,5-3. Выходной участок колодца из монолитного железобетона РБ2-1,25-2; РБ2-1,25-3; РБ2-1,5-2; РБ2-1,5-3. Выходной участок колодца из монолитного железобетона Выходной оголовок колодца из монолитного железобетона. Опалубочный чертеж РБ-1,25-2; РБ-1,25-3; РБ-1,5-2; РБ-1,5-3. Выходной оголовок колодца из монолитного железобетона. Схема армирования РБ-1,25-2; РБ-1,25-3; РБ-1,5-2; РБ-1,5-3. Выходной оголовок колодца из монолитного железобетона. Спецификация к схеме армирования РБ2-1,25-2; РБ2-1,25-3; РБ2-1,5-2; РБ2-1,5-3. Выходной оголовок колодца из монолитного железобетона. Схема армирования РБ2-1,25-2; РБ2-1,25-3; РБ2-1,5-2; РБ2-1,5-3. Выходной оголовок колодца из монолитного железобетона. Спецификация к схеме армирования Узел сопряжения Г-образных конструкций РБ-1,5-2; РБ-1,5-3. Установочный чертеж рам и затворов. Разрез 1-1…3-3 РБ2-1,5-2; РБ2-1,5-3. Установочный чертеж рам и затворов. Разрез 1-1…4-4 Схемы установки съемных металлических перил Вариант защиты сооружения от контурной фильтрации Строительные изделия КЖИ Сетки арматурные С1, С2, С3, С4 Сетка арматурная С5 Сетка арматурная С6 Сетка арматурная С7 Сетки арматурные С8, С13 Сетка арматурная С9 Сетки арматурные С10, С11 Сетка арматурная С16 Сетки арматурные С17, С18, С22 Сетка арматурная С12 Сетка арматурная С20 Сетка арматурная С19 Каркасы пространственные КП1, КП2 Сетка арматурная С23 Сетка арматурная С24 Сетка арматурная С25 Сетка арматурная С26 Сетки арматурные С27, С28 Закладное изделие МН2 Съемные металлические перила Спецификация оборудования |
| Разработан: | Союзводпроект Минводстроя СССР |
| Утверждён: | 02.03.1990 Минводстрой СССР (818) |
| Заменяет собой: |
|




































































