Скачать Типовой проект 901-2-197.93 Альбом I. Пояснительная записка. Технология производства. Силовое электрооборудование. Автоматизация технологии производства. Конструкции железобетонныеДата актуализации: 01.01.2021
|
| Обозначение: | Типовой проект 901-2-197.93 |
| Обозначение англ: | 901-2-197.93 |
| Статус: | не определен законодательством |
| Название рус.: | Альбом I. Пояснительная записка. Технология производства. Силовое электрооборудование. Автоматизация технологии производства. Конструкции железобетонные |
| Дата добавления в базу: | 01.10.2014 |
| Дата актуализации: | 01.01.2021 |
| Дата введения: | 19.01.1994 |
| Дата окончания срока действия: | 30.06.2003 |
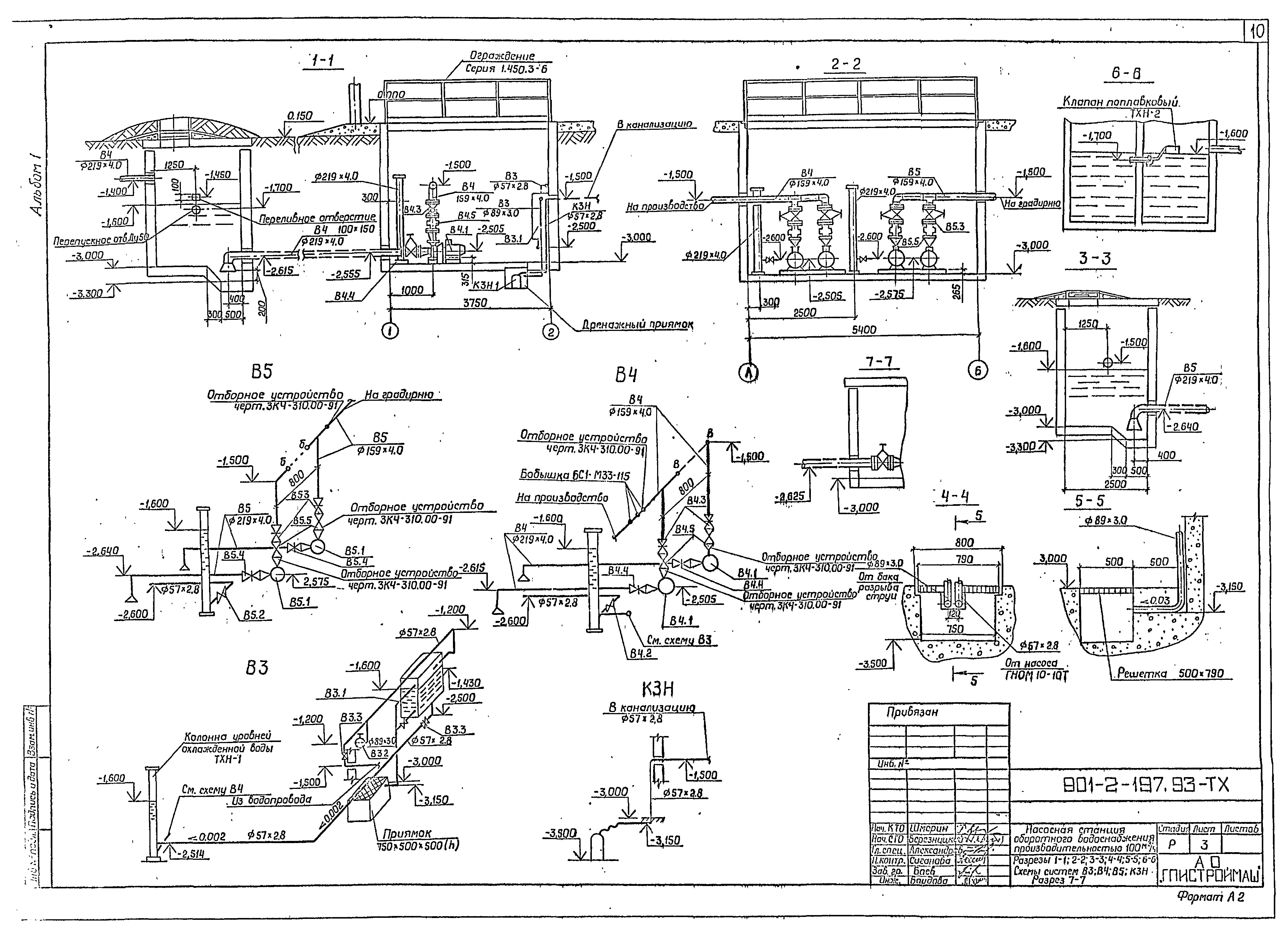
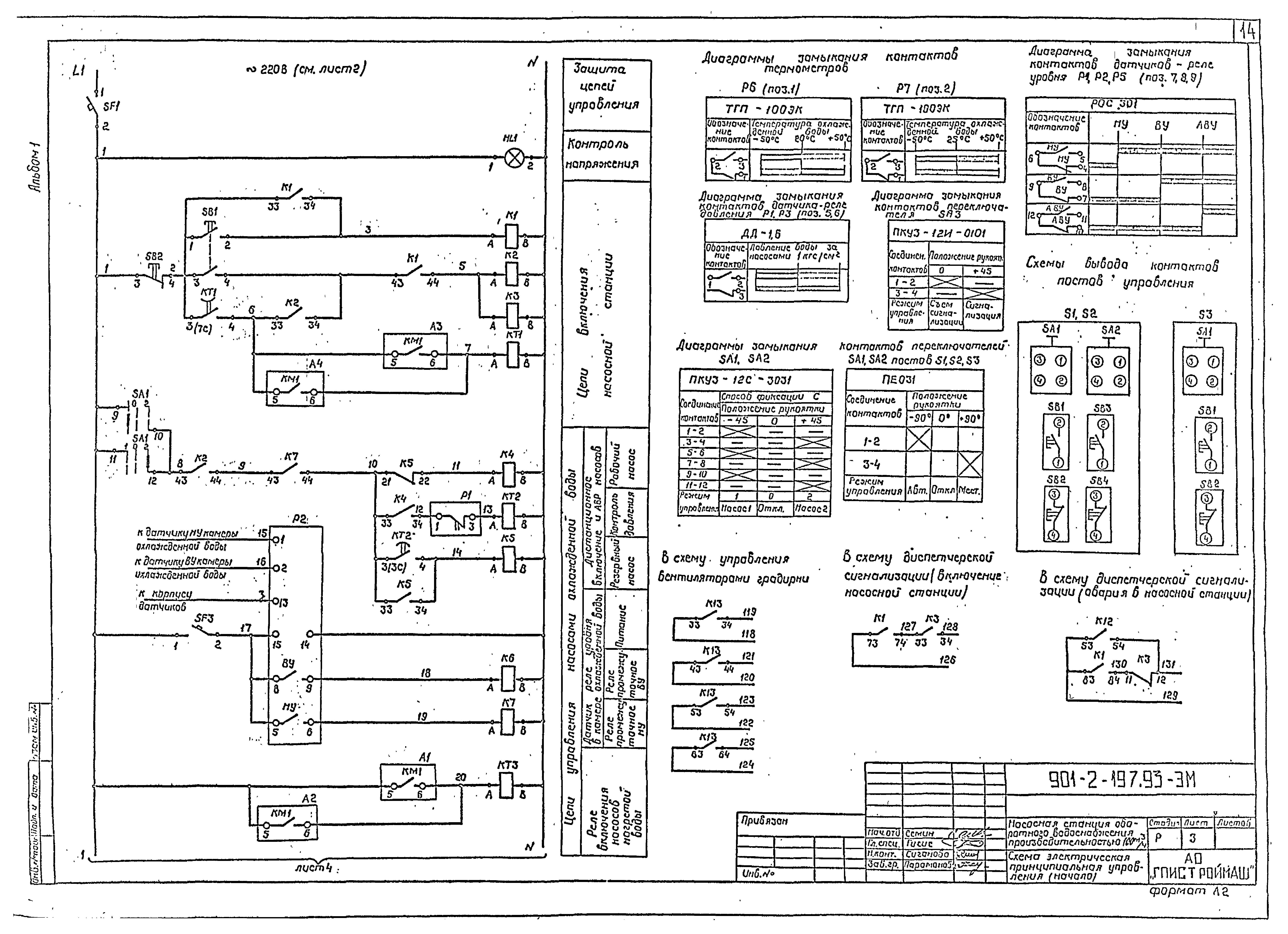
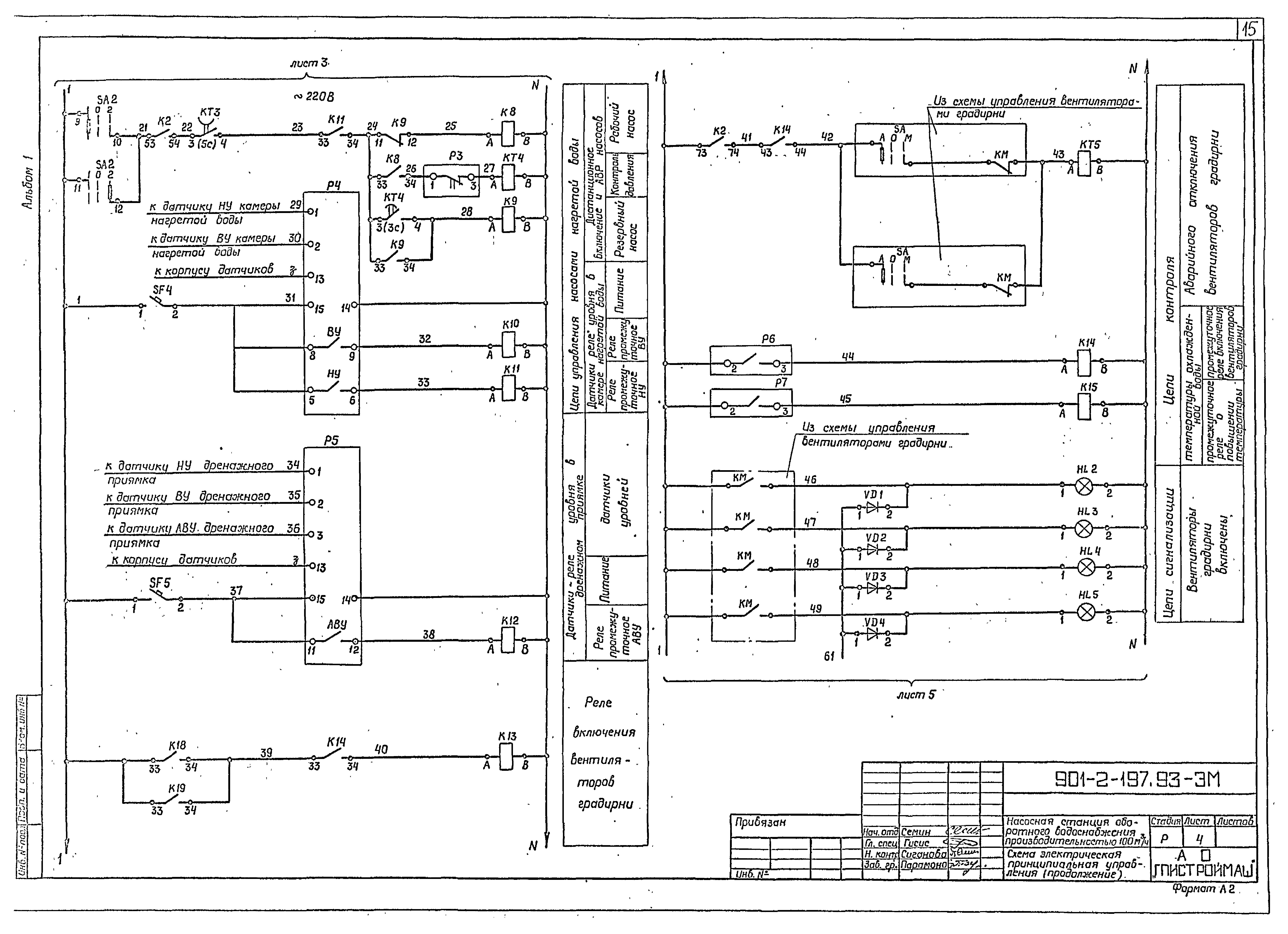
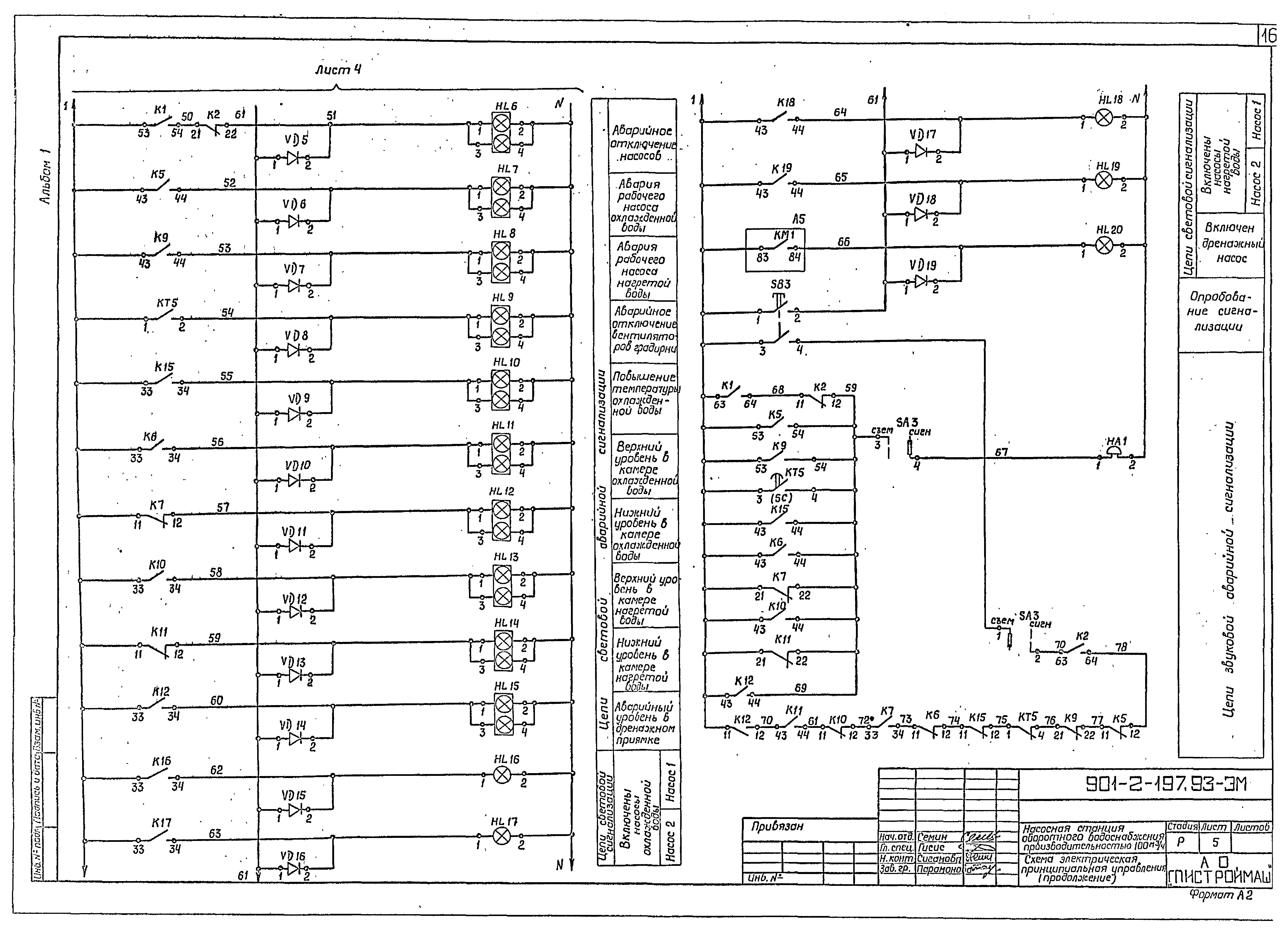
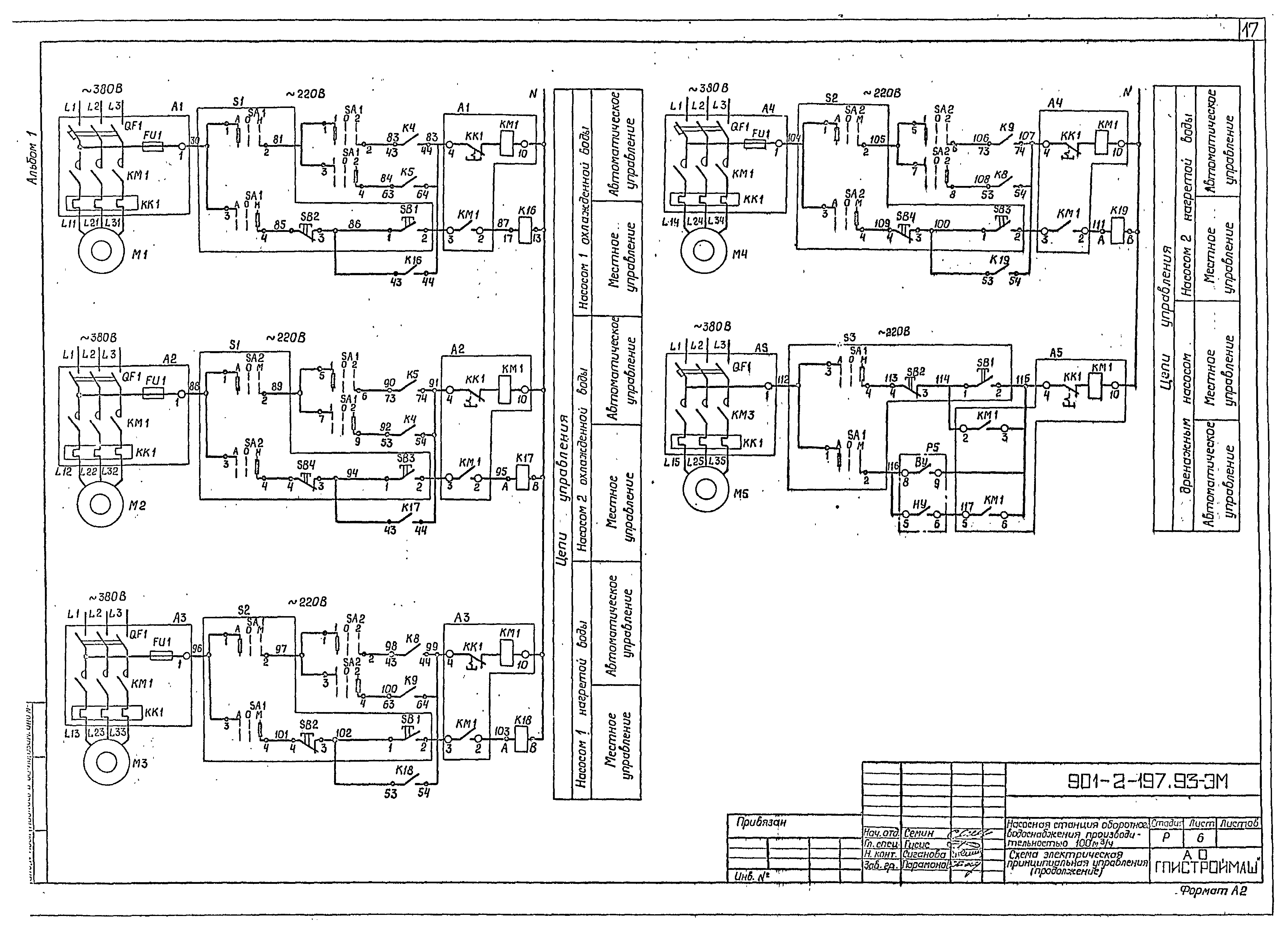
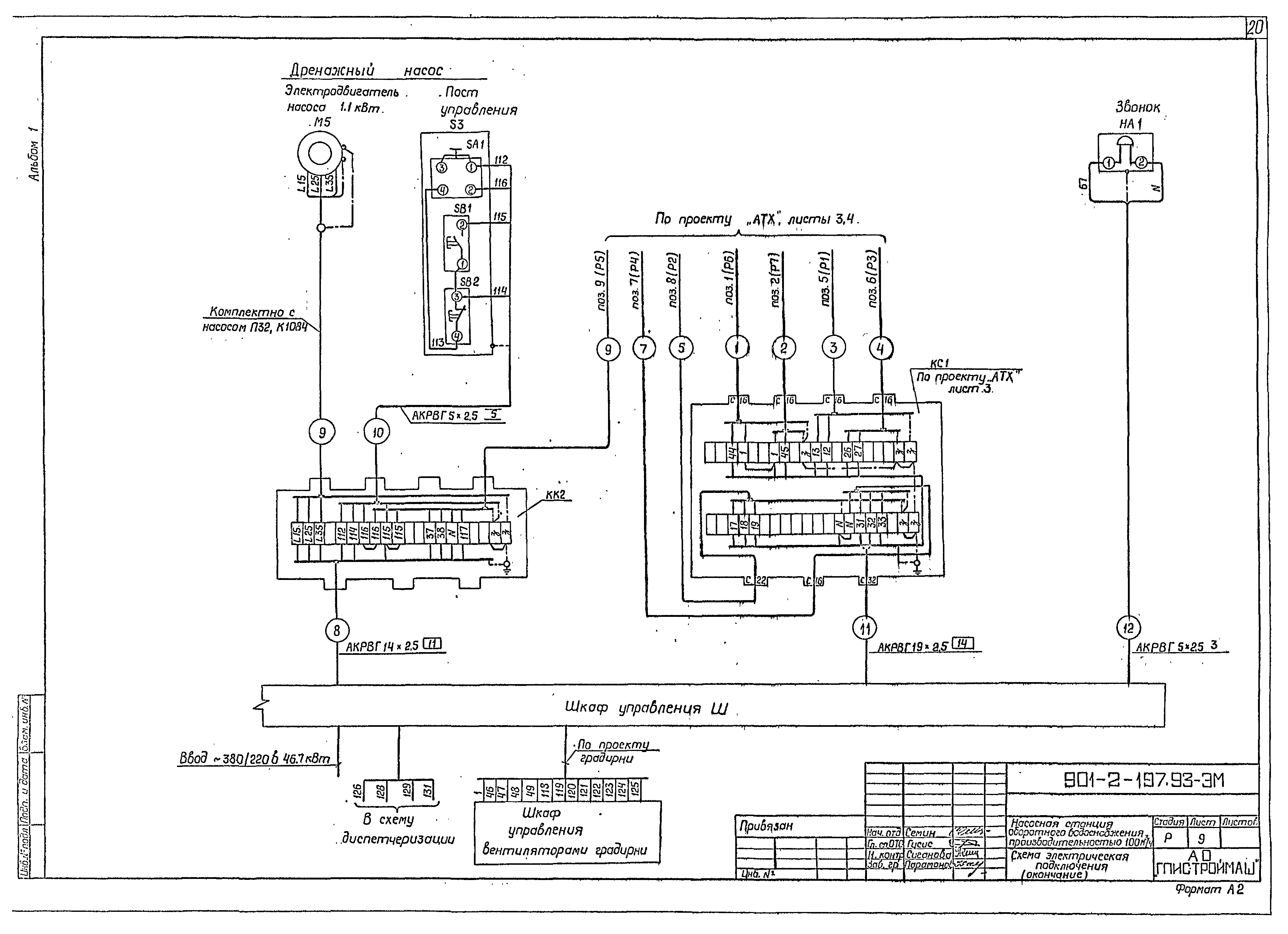
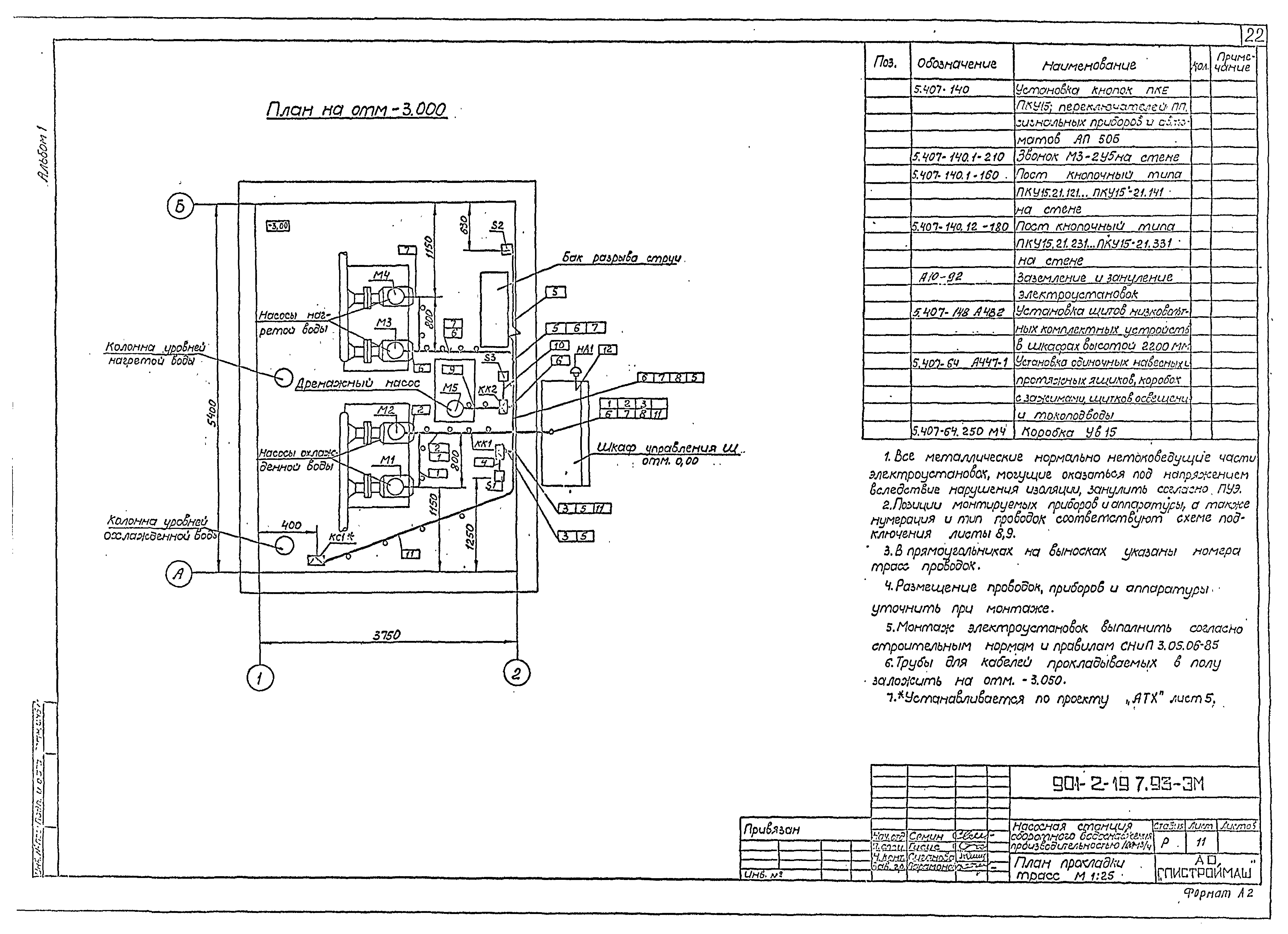
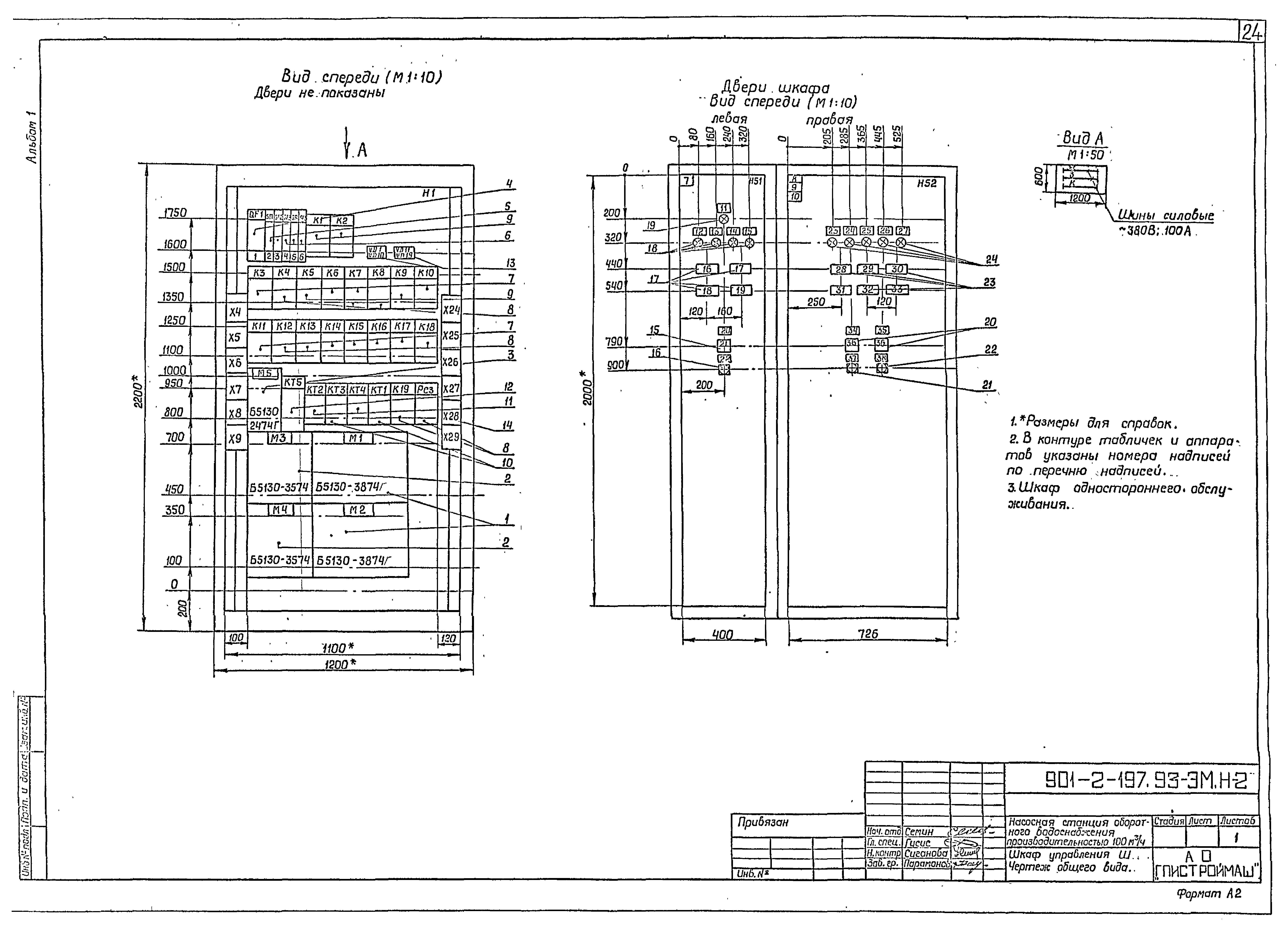
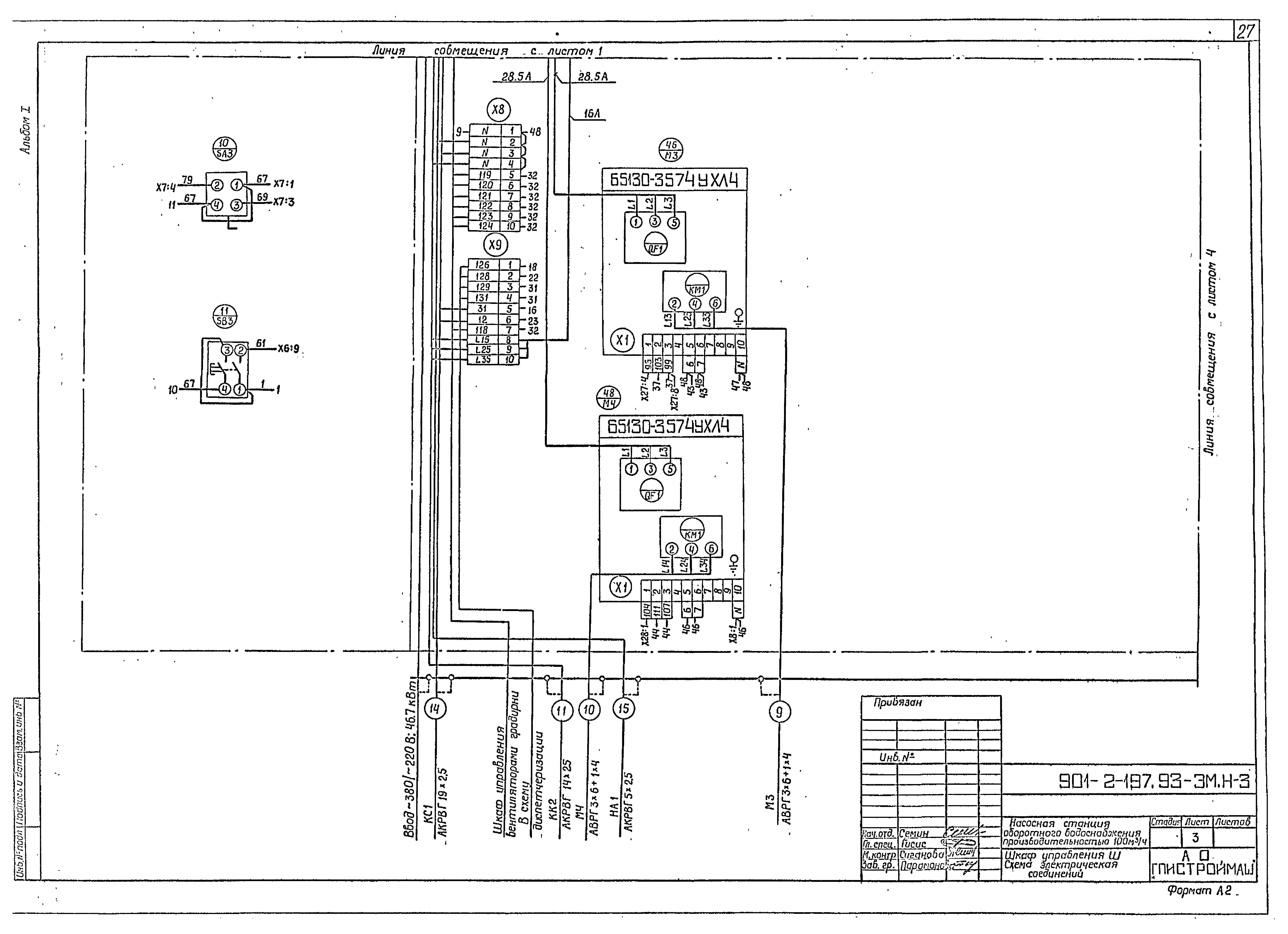
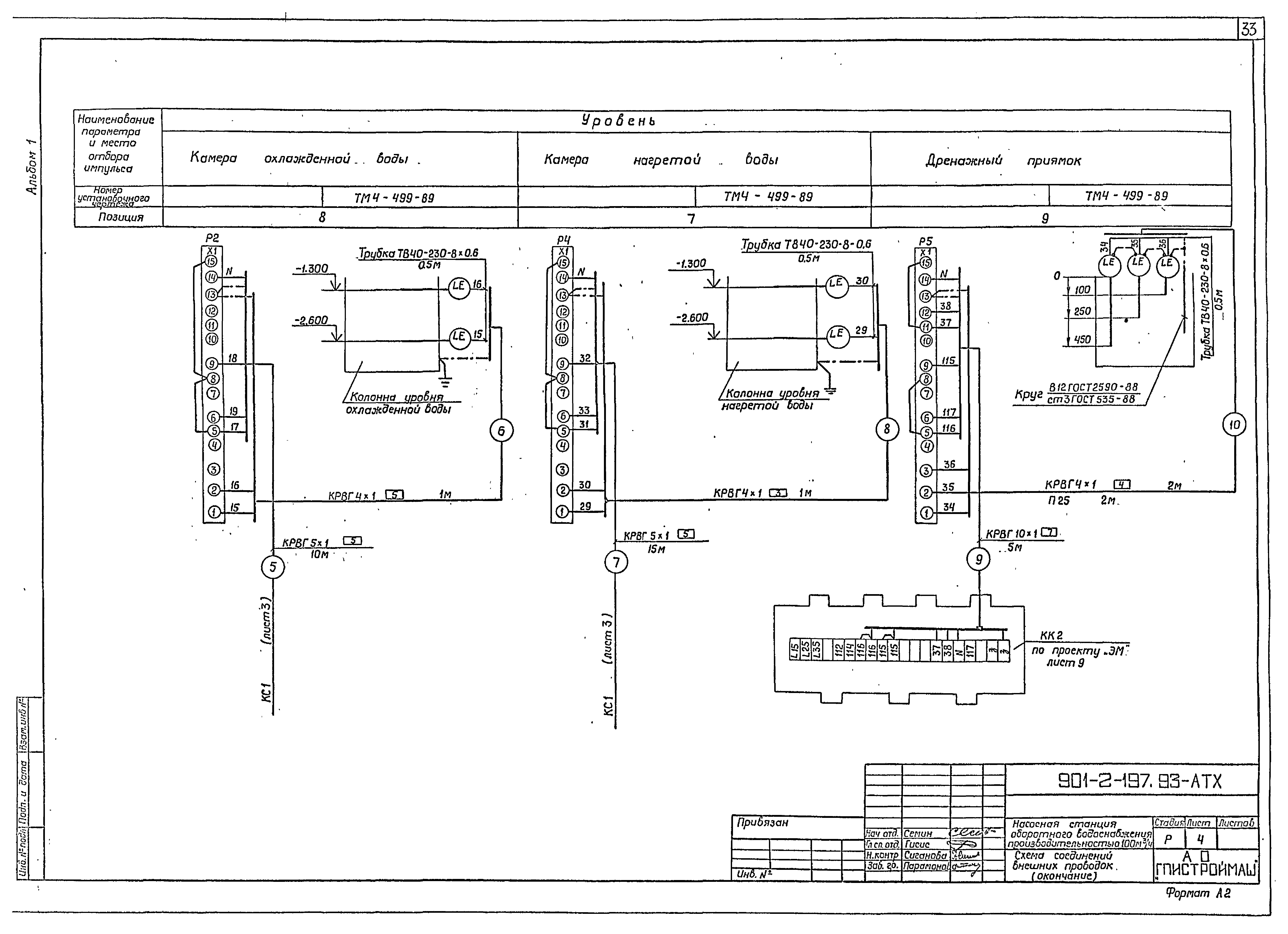
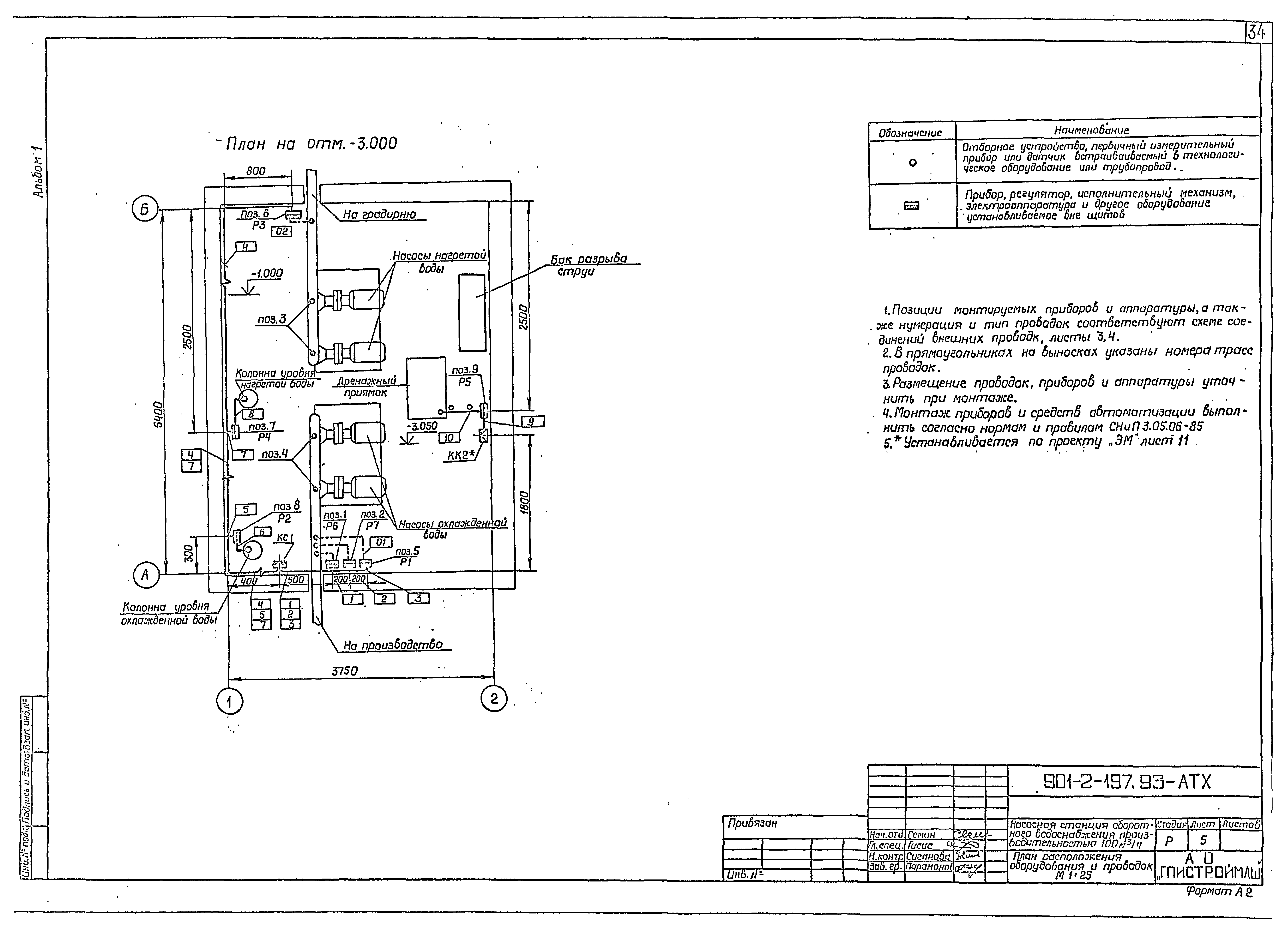
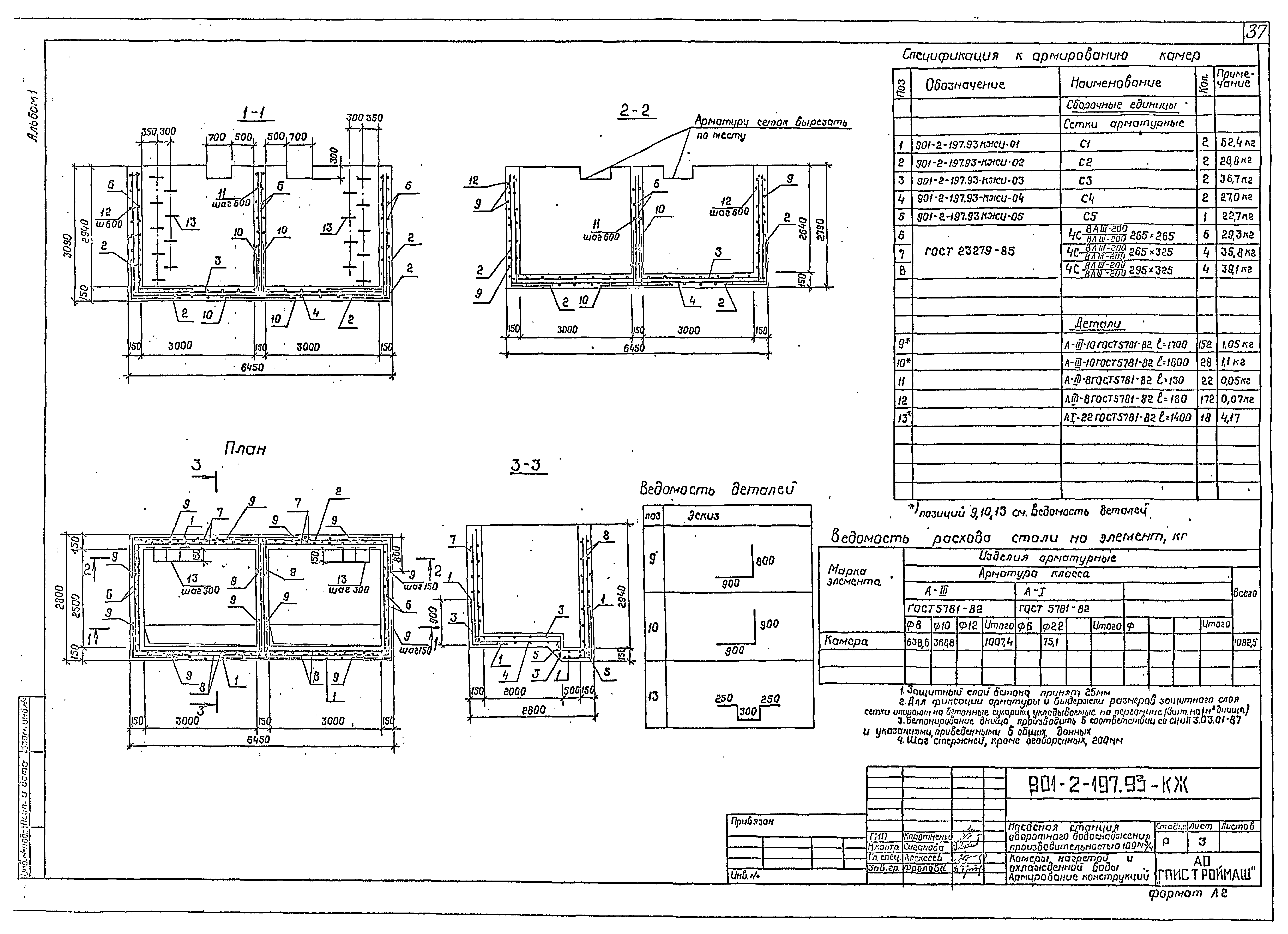
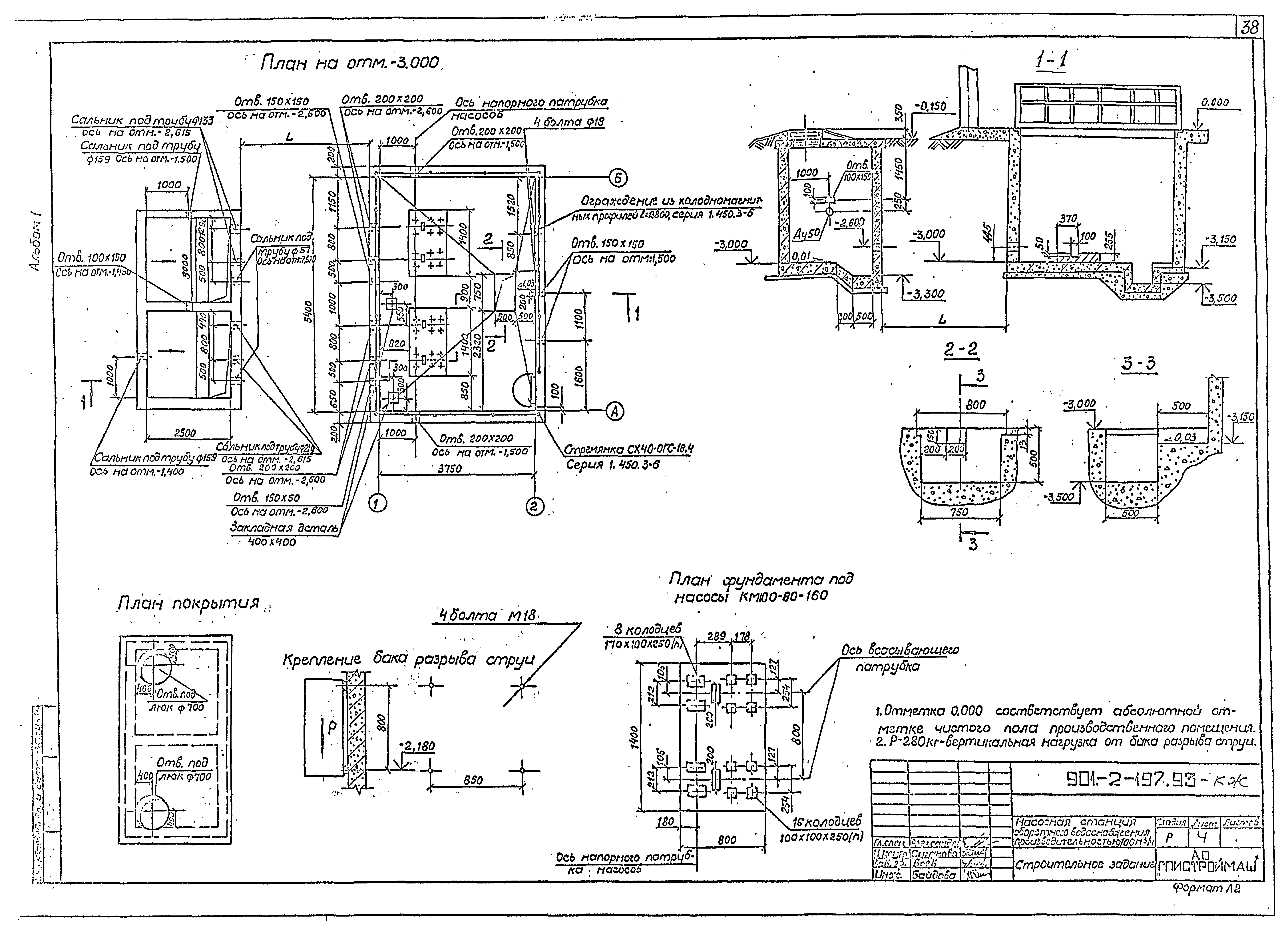
| Оглавление: | Пояснительная записка Технология производства Общие данные План на отм. - 3.000. Разрезы 2-2, 3-3, 4-4 Разрез 1-1. Схемы систем В3, В4, В5, К3Н Колонна для датчиков уровней. Эскизный чертеж общего вида Клапан поплавковый. Эскизный чертеж общего вида Силовое электрооборудование Общие данные Шкаф управления Ш. Схема электрическая принципиальная распределительной сети Схема электрическая принципиальная управления Схема электрическая подключения Кабельный журнал План прокладки трасс Шкаф управления Ш. Таблица технических данных Шкаф управления Ш. Чертеж общего вида Шкаф управления Ш. Схема электрическая соединений Шкаф управления Ш. Перечень надписей Автоматизация технологии производства Общие данные Управление и контроль. Схема автоматизации Схема соединений внешних проводок План расположения оборудования и проводок Конструкции железобетонные Общие данные План, разрезы. Схема расположения плит перекрытия Армирование конструкции Фундаменты под оборудование Узел 1. Установка сальника Строительные изделия |
| Разработан: | ГПИстроймаш |
| Утверждён: | 19.01.1994 ГПИстроймаш (19) |








































