Скачать Типовой проект 903-1-178 Альбом V. Конструкции железобетонные и металлическиеДата актуализации: 01.01.2021
|
| Обозначение: | Типовой проект 903-1-178 |
| Обозначение англ: | 903-1-178 |
| Статус: | заменен |
| Название рус.: | Альбом V. Конструкции железобетонные и металлические |
| Дата добавления в базу: | 01.10.2014 |
| Дата актуализации: | 01.01.2021 |
| Дата введения: | 09.01.1980 |
| Дата окончания срока действия: | 01.11.1987 |
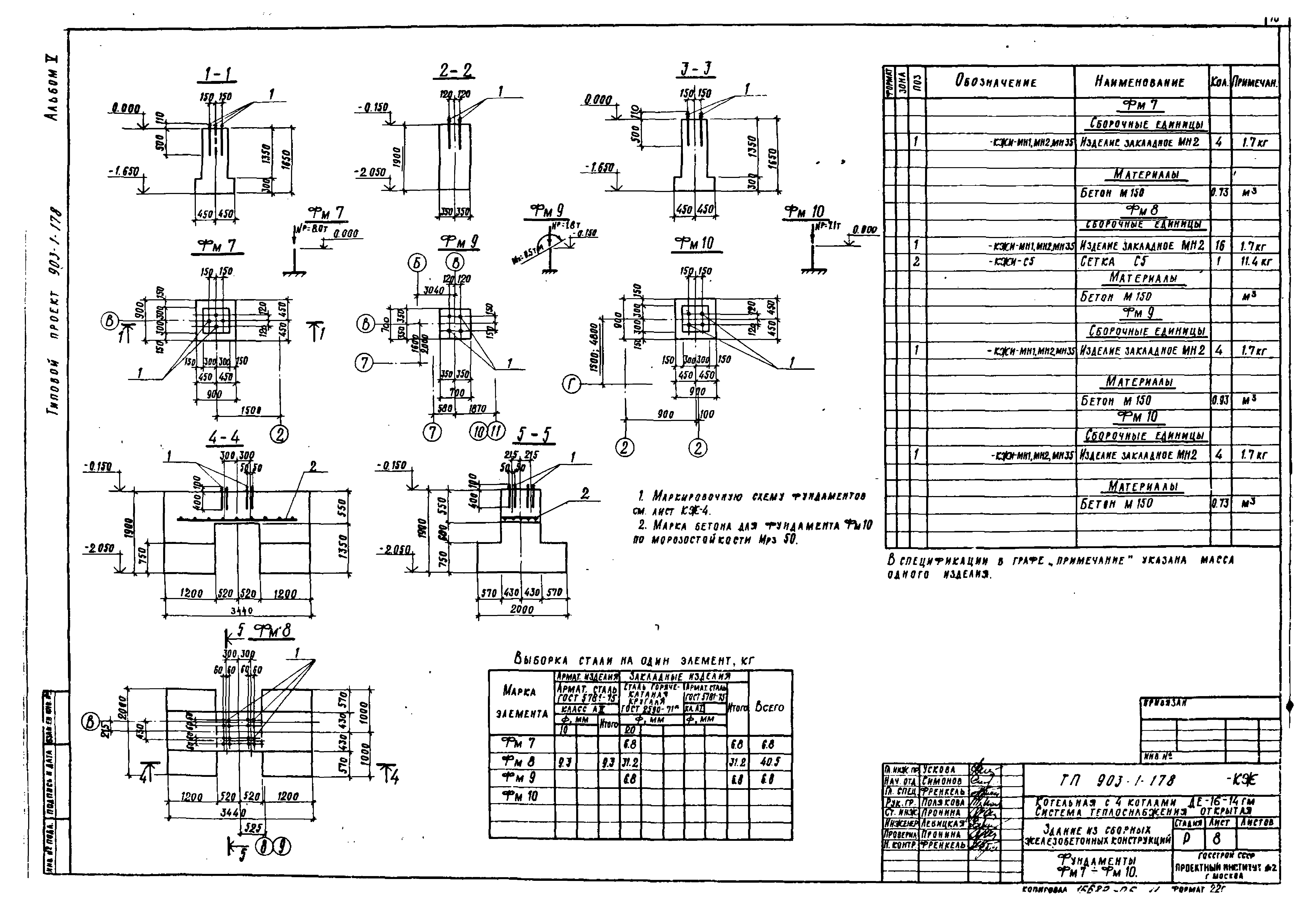
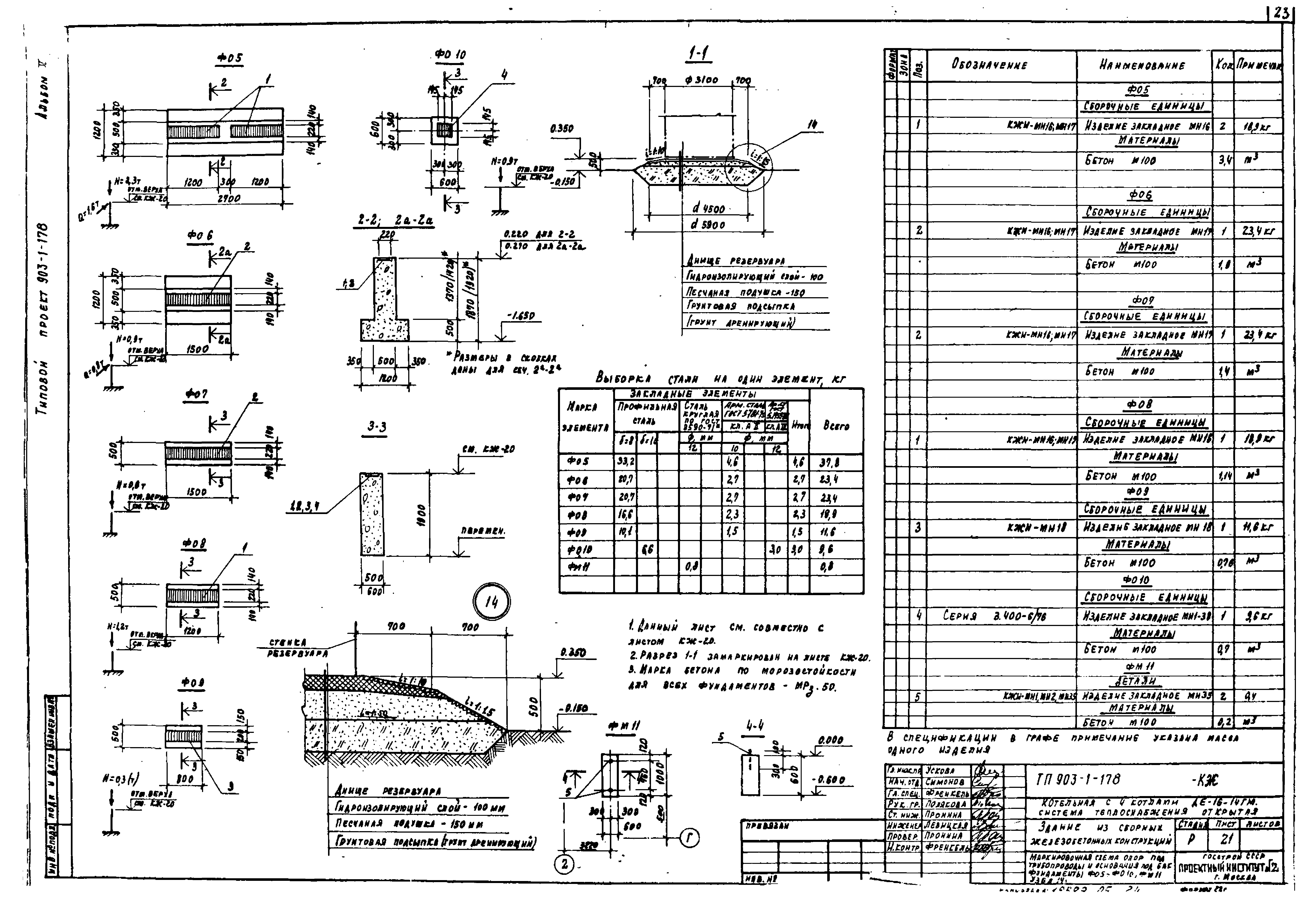
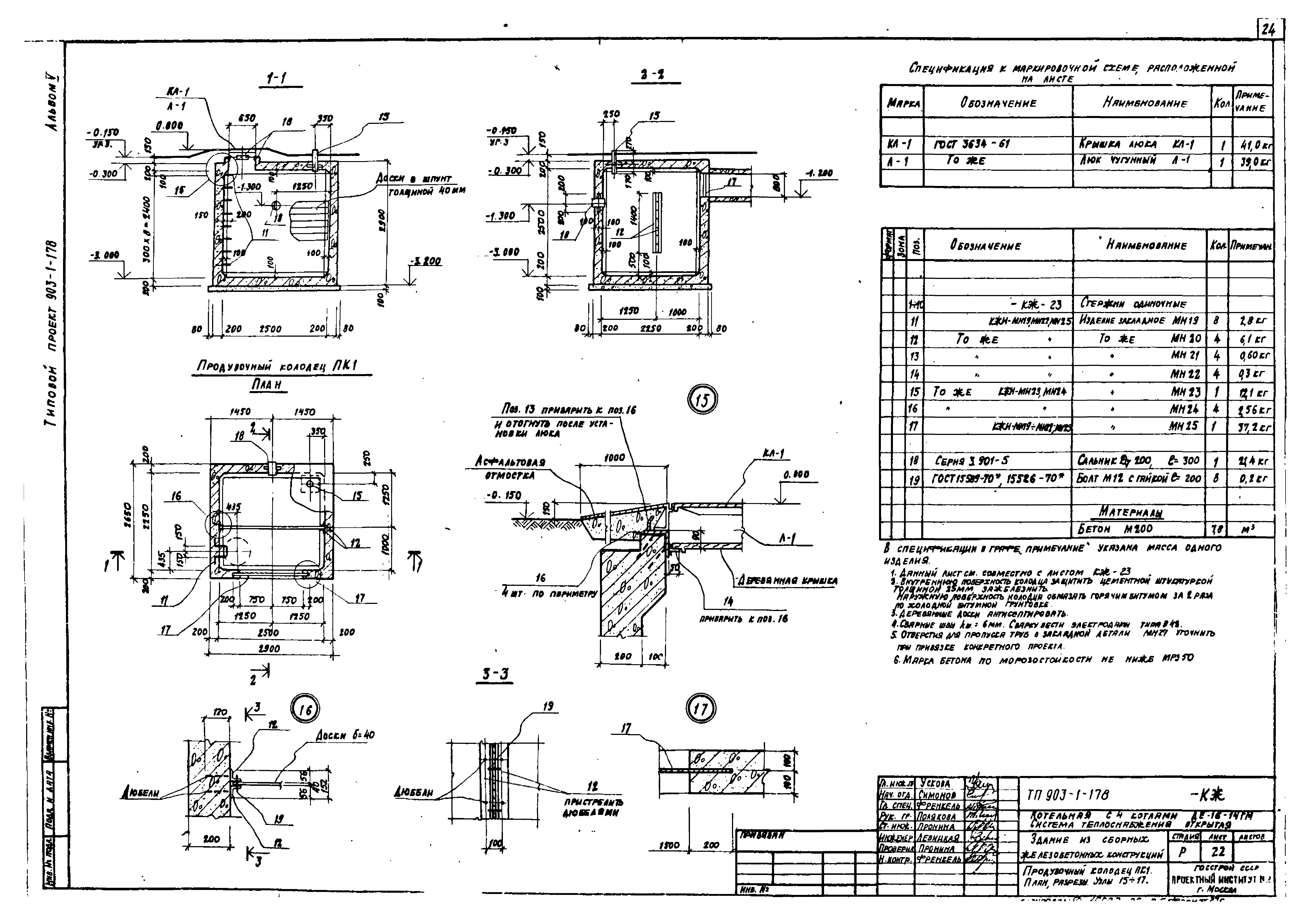
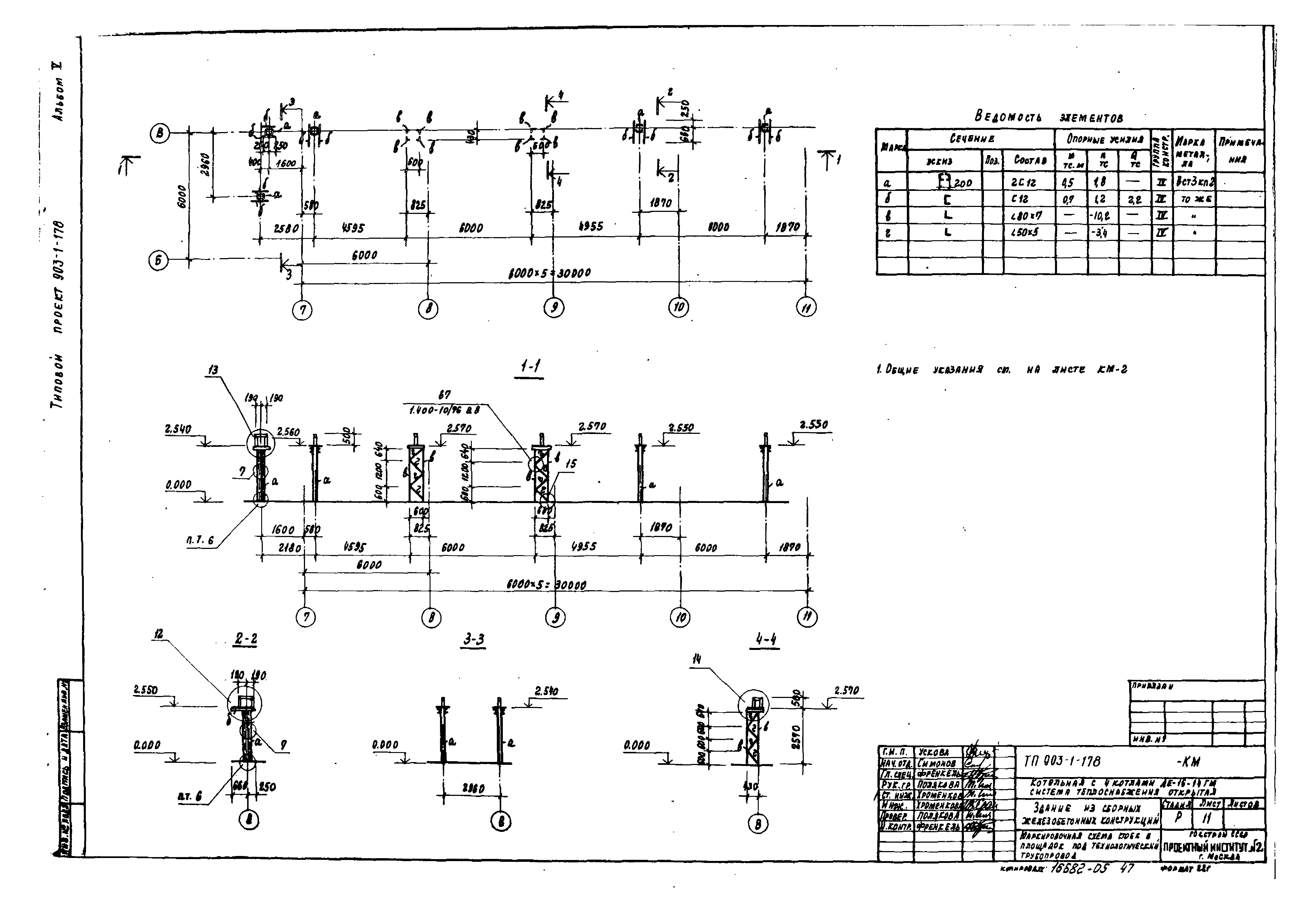
| Оглавление: | Содержание альбома Конструкции железобетонные Общие данные Маркировочная схема фундаментов и фундаментных балок Маркировочная схема фундаментов и фундаментных балок. Фрагменты плана 1 - 5 Фундаменты Фм1, Фм3, Фм5. Узлы 6, 7 Фундаменты Фм2, Фм4, Фм6. Узел В Фундаменты Фм7 - Фм10 Маркировочная схема подземного хозяйства в осях 1 - 6 Маркировочная схема подземного хозяйства в осях 6 - 11 Маркировочная схема люков и раскладки асбестоцементных труб в полу. Узлы 9, 10 Маркировочная схема подземного хозяйства. Фрагмент плана 1 (приямок ПР1). Фундаменты под оборудование ФО1, ФО2 Маркировочная схема подземного хозяйства. Фрагменты плана 2, 3(каналы К1, К2) Маркировочная схема подземного хозяйства. Фрагмент плана 4. Узлы 11 - 13 Маркировочная схема подземного хозяйства. Фрагмент плана 4. Сечения 1-1 - 5-5 Маркировочная схема подземного хозяйства. Фрагмент плана 4. Сечения 6-6 - 13-13 Маркировочная схема подземного хозяйства. Канал К3 Маркировочная схема подземного хозяйства. Канал К4 (маркировочная схема перекрытия канала К4) Фундаменты под оборудование ФО3, ФО4 Маркировочная схема опор под трубопроводы и основания под бак Маркировочная схема опор под трубопроводы и основания под бак. Фундаменты ФО5 - ФО10, Фм11. Узел 14 Продувочный колодец ПК1. План. Разрезы. Узлы 15 - 17 Продувочный колодец ПК1. Армирование Маркировочная схема перекрытия газоходов. Участки монолитные Ум4 - Ум6 Маркировочная схема колонн. Узел 18 Маркировочные схемы ферм и плит покрытия Маркировочная схема подвесок в покрытии Маркировочные схемы перекрытий на отм. 3.600; 2.700; 6.600. Узел 19 Участки монолитные Ум7 - Ум12 Участки монолитные Ум13 - Ум16 Маркировочная схема стеновых панелей. Маркировочная схема стоек фахверка и насадок Маркировочная схема стеновых панелей. Фрагменты 1 - 8 Маркировочная схема стеновых панелей. Фрагменты 9 - 11 Конструкции металлические Общие данные. Ведомость металлоконструкций по видам профилей на здание Техническая спецификация металла на здание Техническая спецификация металла на лестницы и площадки Маркировочная схема балок площадки на отм. 3.600 Узлы 1 - 3 Маркировочная схема балок площадок на отм. 4.200 и 6.600 Узлы 4 - 7 Маркировочная схема балок площадки на отм. 3.595 и стальных балок под монолитные участки на отм. 3.520. Лестницы и ограждения Узлы 8 - 11 Маркировочная схема стоек и площадок под технологический трубопровод Узлы 12 - 15 Маркировочная схема балок для подвески технологического трубопровода. Узлы 16 и 17 Маркировочная схема балок и кронштейнов для подвески электрического и технологического оборудования Узлы 18 и 19 Металлические рамы МР1, МР2, МР3. Узлы 20 - 24 Маркировочные схемы монорельсов, связей и подвесок в осях "В - Г", "7 - 11" и "А - В", "3 - 4" |
| Разработан: | ЦНИИпроектстальконструкция Проектный институт №2 Сантехпроект |
| Утверждён: | 09.01.1980 Сантехниипроект (4) |
| Чем заменён: |



















































