Скачать Типовые проектные решения 411-03-4.84 Альбом II. Технологические чертежиДата актуализации: 01.01.2021
|
| Обозначение: | Типовые проектные решения 411-03-4.84 |
| Обозначение англ: | 411-03-4.84 |
| Статус: | справочные материалы, мп, тпр |
| Название рус.: | Альбом II. Технологические чертежи |
| Дата добавления в базу: | 01.10.2014 |
| Дата актуализации: | 01.01.2021 |
| Дата введения: | 03.05.1983 |
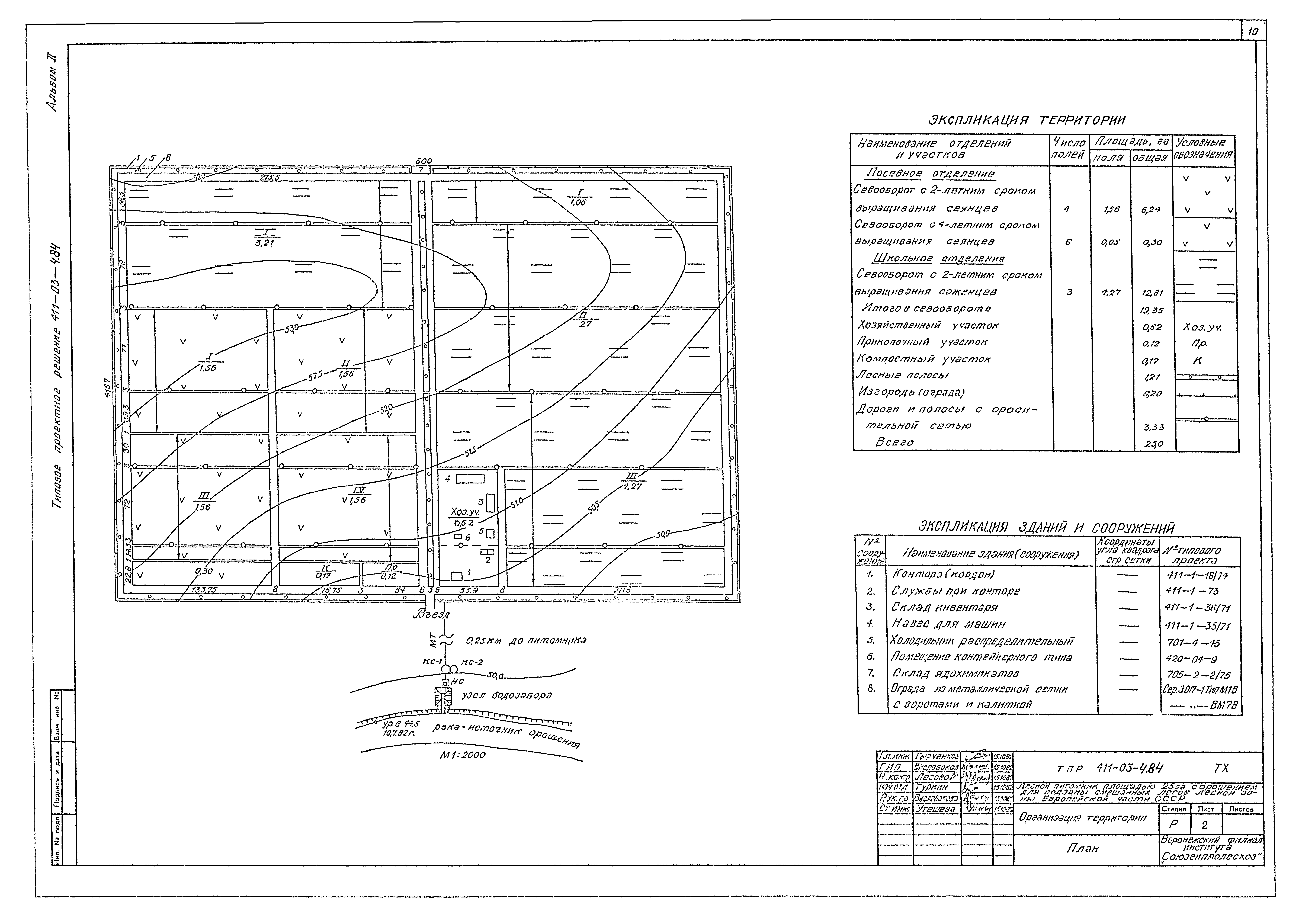
| Оглавление: | Пояснительная записка Чертежи основного комплекта марки ТХ Общие данные Организация территории. План Организация территории. План (вариант с теплицей) Оросительная сеть. План Оросительная сеть. План (вариант с теплицей) Разбивочный чертеж Продольный профиль по магистральному и поливному трубопроводам Деталировка Спецификация фасонных частей. Гидрант Узел водозабора Колодец с гидрантом. Колодец сбросной Распределительный колодец Колодец с вантузом Технологическая схема производства работ по строительству концевых и промежуточных сбросных колодцев |
| Разработан: | Воронежский филиал Союзгипролесхоза |
| Утверждён: | 10.06.1983 Гослесхоз СССР (USSR Gosleskhoz 18) |






















