Скачать Типовой проект 3584тм Альбом III. Монтажные чертежи РУ 10 кВДата актуализации: 01.01.2021
|
| Обозначение: | Типовой проект 3584тм |
| Обозначение англ: | 3584тм |
| Статус: | действует |
| Название рус.: | Альбом III. Монтажные чертежи РУ 10 кВ |
| Дата добавления в базу: | 01.10.2014 |
| Дата актуализации: | 01.01.2021 |
| Дата введения: | 01.10.1976 |
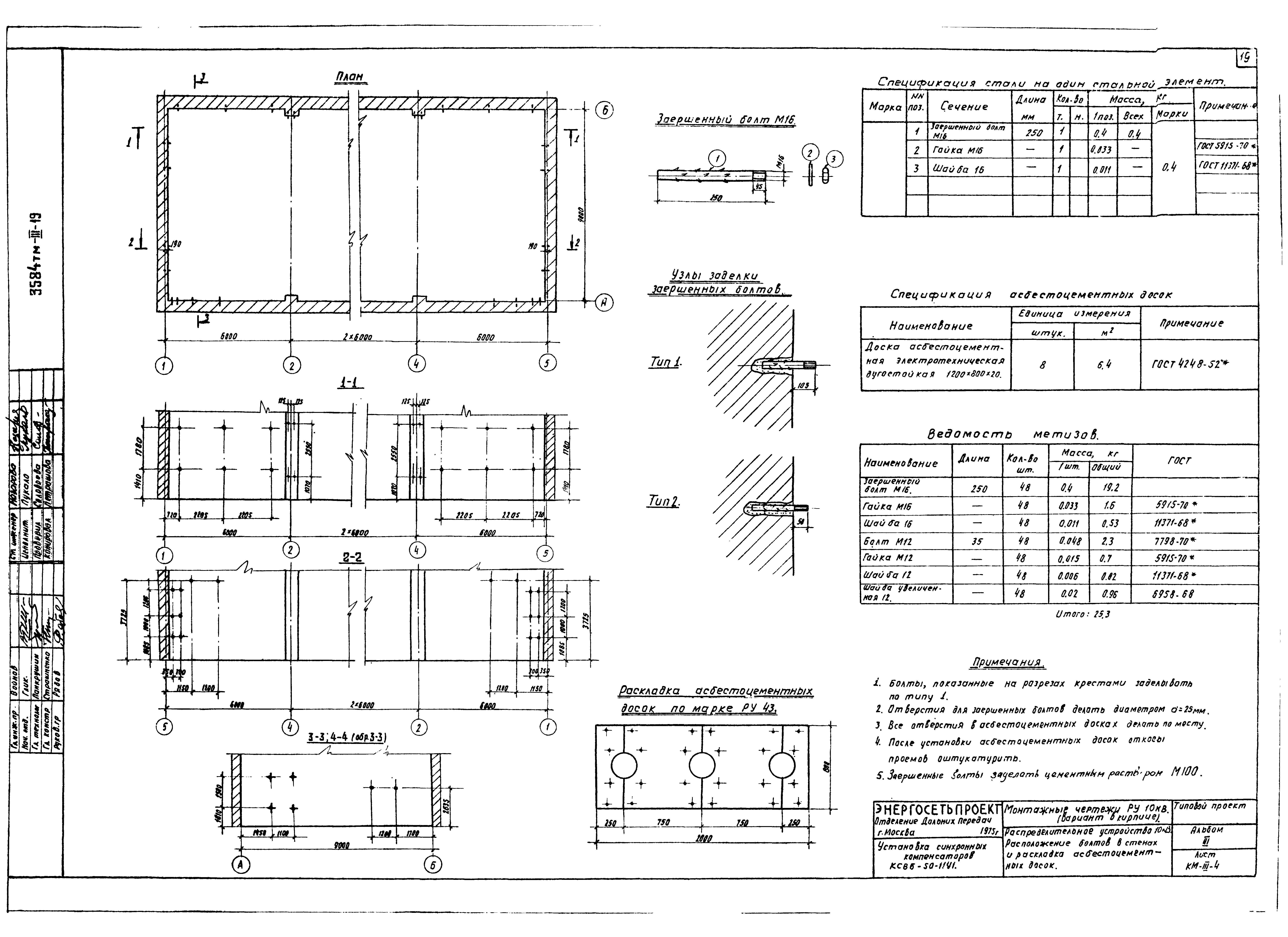
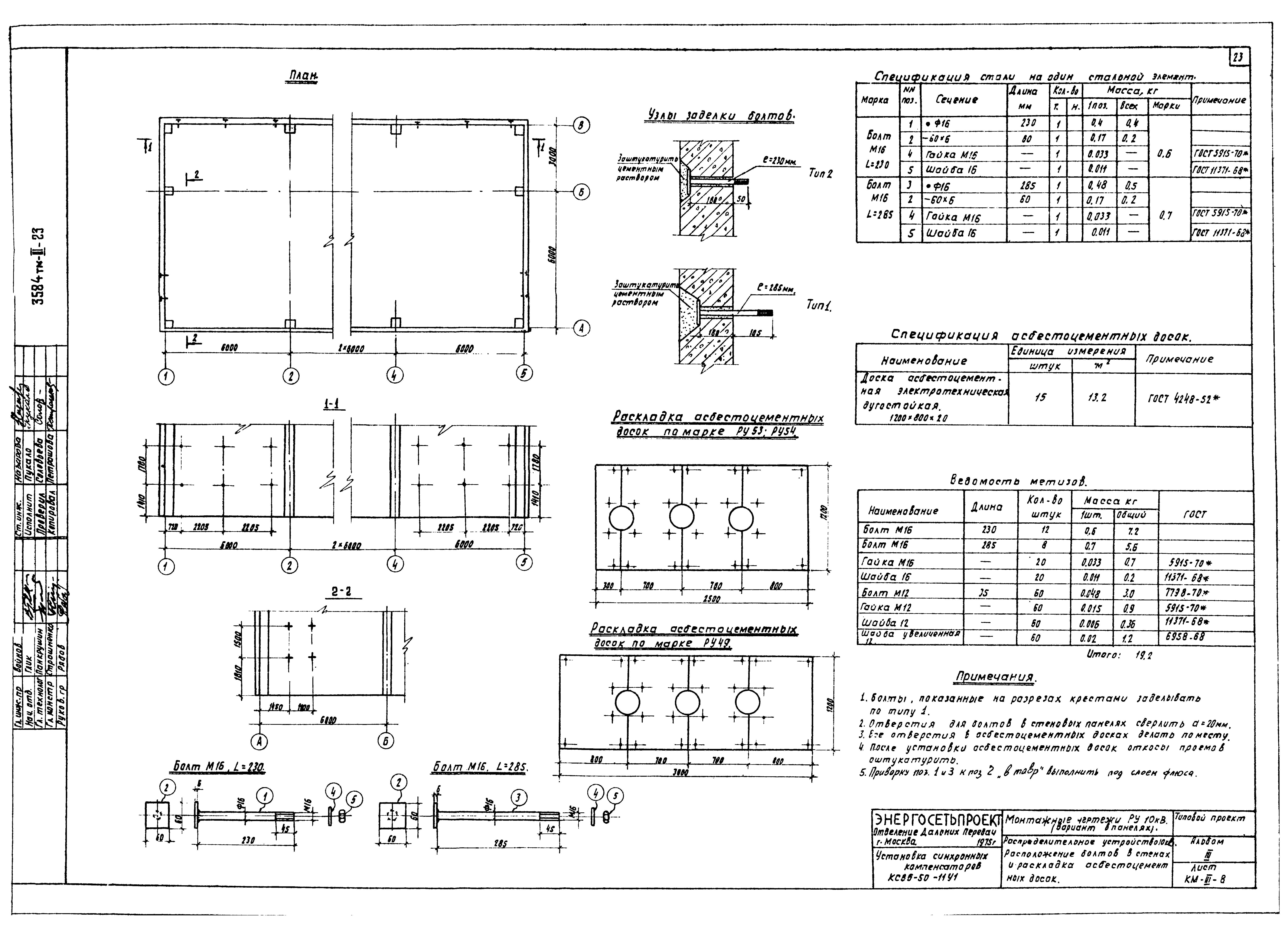
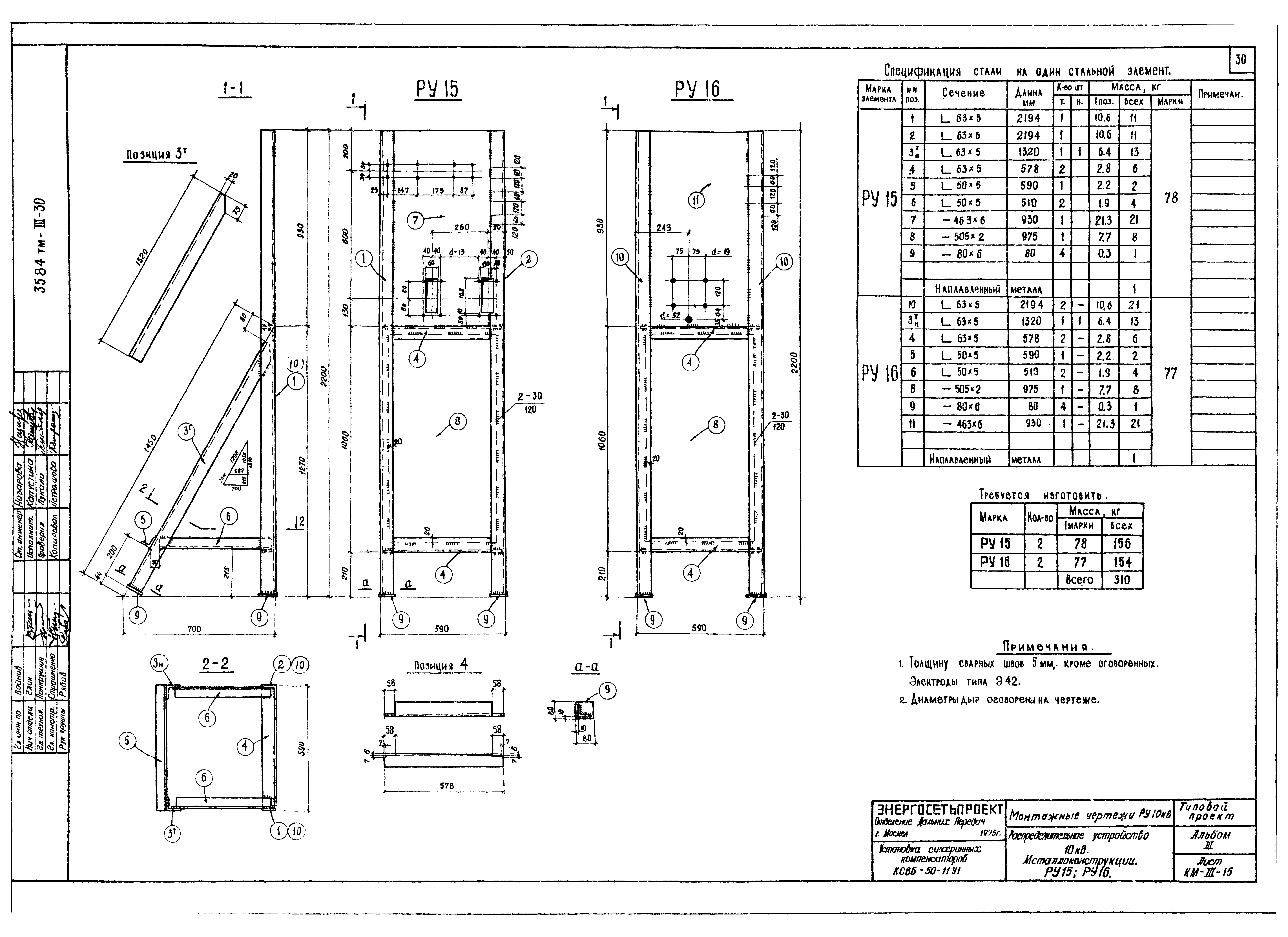
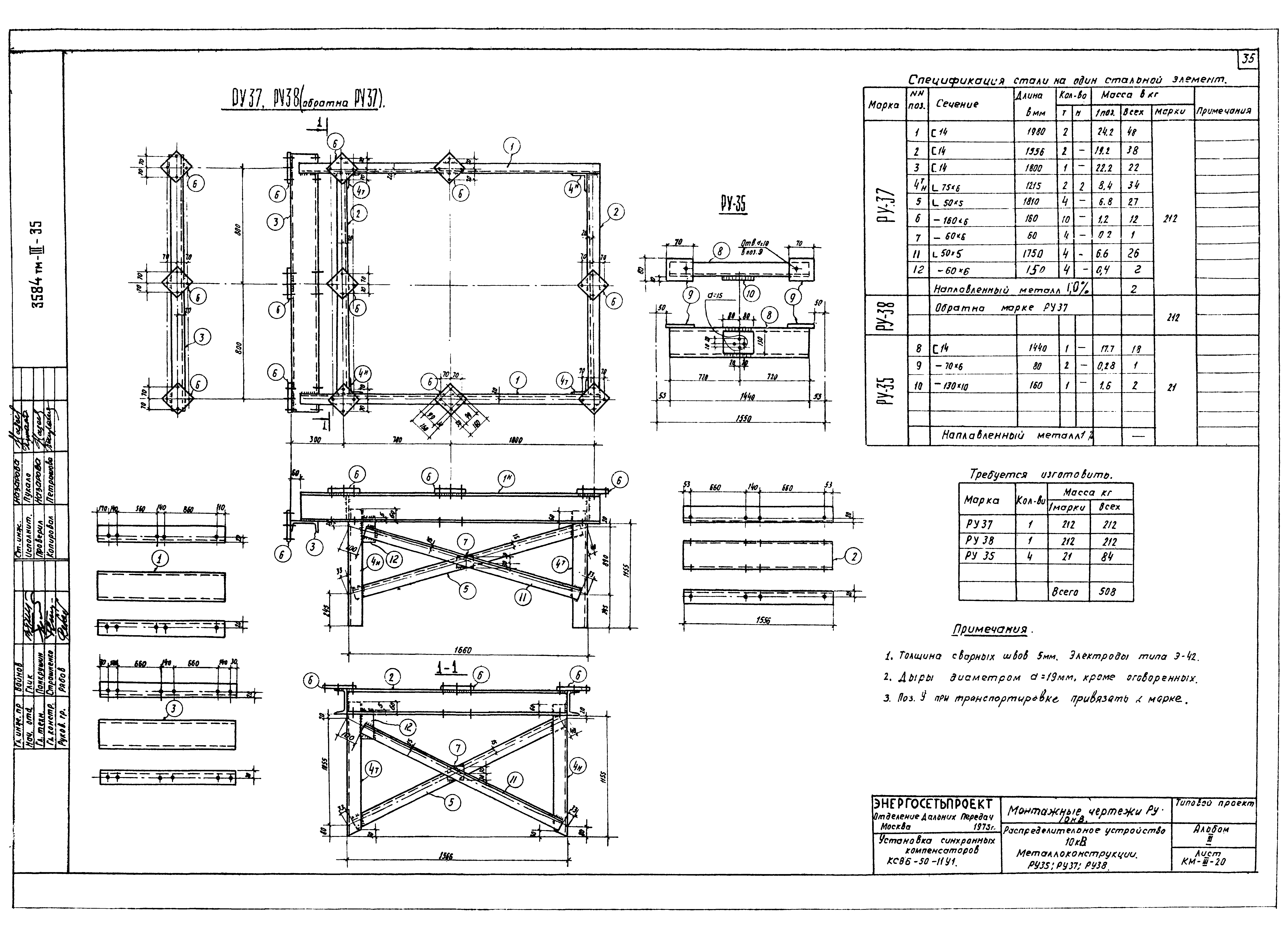
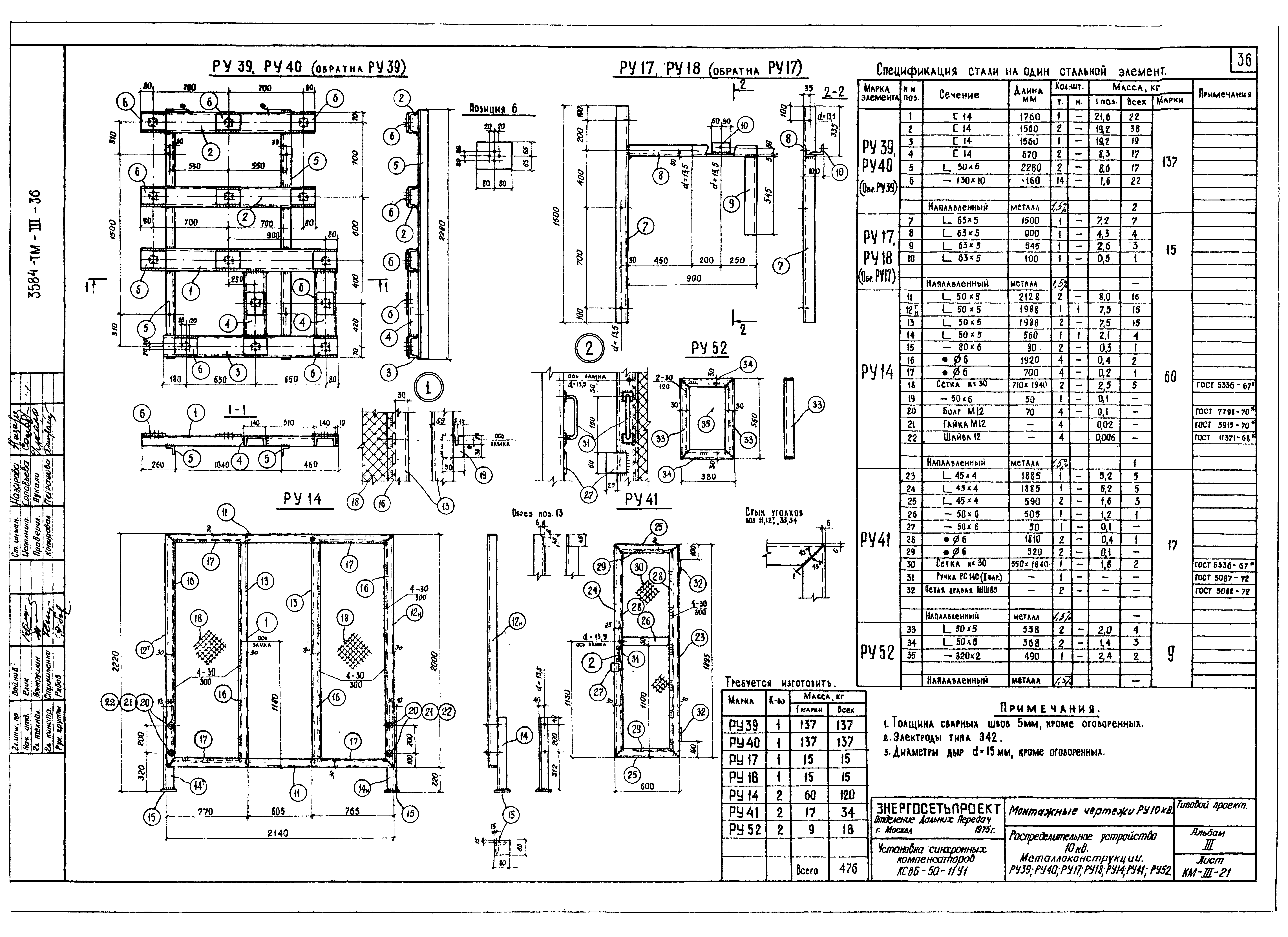
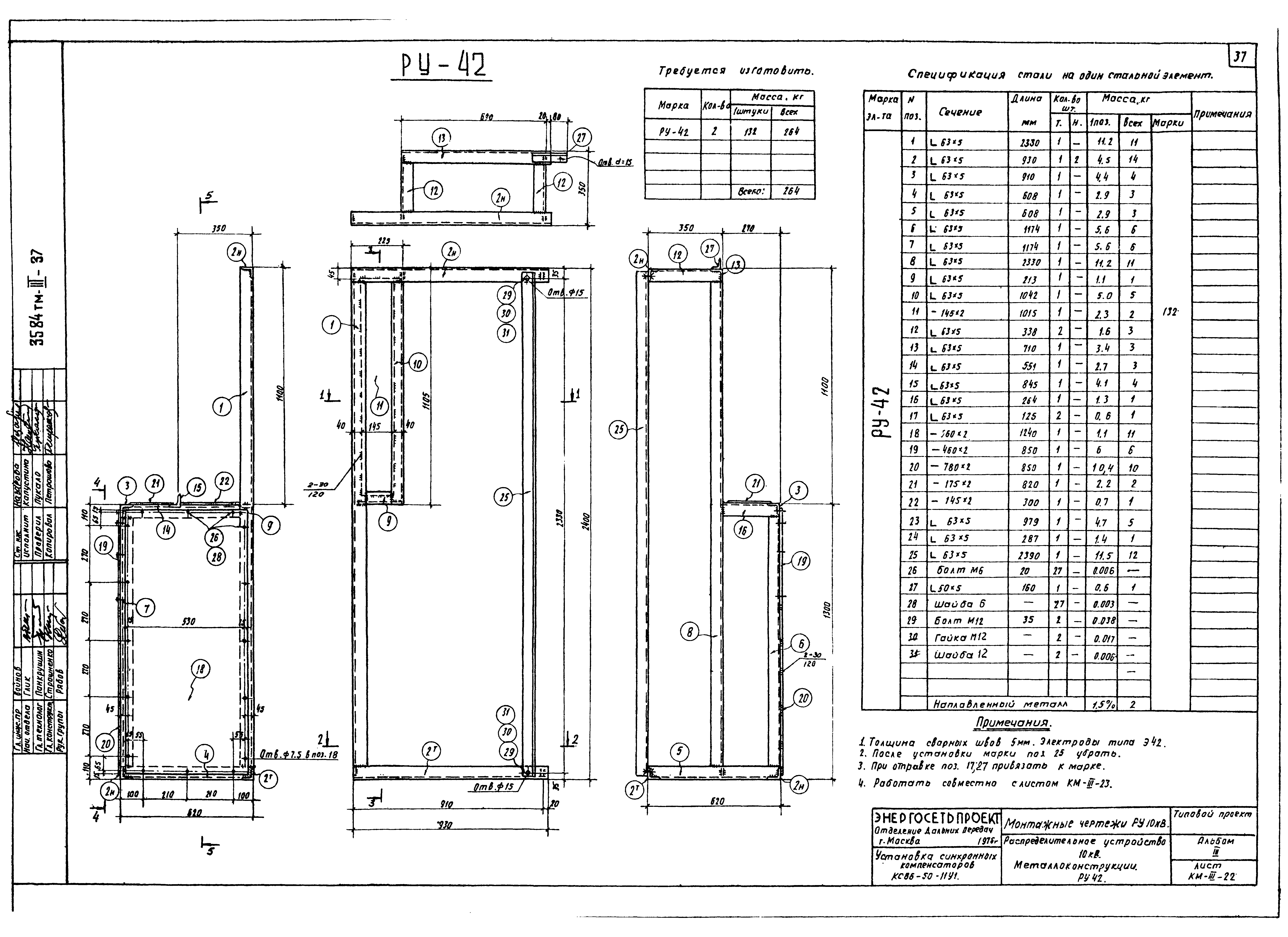
| Оглавление: | Чертежи основного комплекта марки ЭП Заглавный лист. Перечень чертежей. Пояснительная записка Распределительное устройство 10 кВ СК № 1. План и схема заполнения. Фасады I-I, II-II, III-III Распределительное устройство 10 кВ СК № 1. Шинные мосты тип I, II, III и установка проходных изоляторов Распределительное устройство 10 кВ СК № 1. Ячейка рабочего выключателя Распределительное устройство 10 кВ СК № 1. Ячейка пускового реактора Распределительное устройство 10 кВ СК № 1. Ячейка собственных нужд Распределительное устройство 10 кВ СК № 2. План и схема заполнения. Фасады I-I, II-II, III-III Распределительное устройство 10 кВ СК № 2. Шинные мосты тип I, II, III и установка проходных изоляторов Распределительное устройство 10 кВ СК № 2. Ячейка рабочего выключателя Распределительное устройство 10 кВ СК № 2. Ячейка пускового реактора Распределительное устройство 10 кВ СК № 2. Ячейка собственных нужд Шинодержатель для крепления 4-х шин сечением 10х100 на плоскость на 2-х изоляторах ИО-10-2000-У3 Гирлянда изоляторов 2хПС-66 натяжная одноцепная для 3-х проводов АС-500/64 Сводная спецификация Чертежи основного комплекта марки КМ Распределительное устройство 10 кВ. Заглавный лист. Перечень чертежей (вариант здания в кирпиче) Распределительное устройство 10 кВ. Металлоконструкции. Монтажная схема РУ Распределительное устройство 10 кВ. Расположение болтов в стенах и раскладка асбестоцементных досок Распределительное устройство 10 кВ. Заглавный лист. Перечень чертежей (вариант здания в панелях) Распределительное устройство 10 кВ. Металлоконструкции. Монтажная схема РУ Распределительное устройство 10 кВ. Расположение болтов в стенах и раскладка асбестоцементных досок Распределительное устройство 10 кВ. Металлоконструкции РУ1, РУ5 Распределительное устройство 10 кВ. Металлоконструкции РУ2, РУ6 Распределительное устройство 10 кВ. Металлоконструкции РУ3, РУ7 Распределительное устройство 10 кВ. Металлоконструкции РУ4, РУ12, РУ13 Распределительное устройство 10 кВ. Металлоконструкции РУ8, РУ9 Распределительное устройство 10 кВ. Металлоконструкции РУ10, РУ11 Распределительное устройство 10 кВ. Металлоконструкции РУ15, РУ16 Распределительное устройство 10 кВ. Металлоконструкции РУ19, РУ20, РУ27, РУ28, РУ29 Распределительное устройство 10 кВ. Металлоконструкции РУ21, РУ22, РУ23 Распределительное устройство 10 кВ. Металлоконструкции РУ24, РУ30, РУ31 Распределительное устройство 10 кВ. Металлоконструкции РУ25, РУ26, РУ32 - РУ34, РУ36 Распределительное устройство 10 кВ. Металлоконструкции РУ37, РУ35, РУ38 Распределительное устройство 10 кВ. Металлоконструкции РУ39, РУ40, РУ17, РУ18, РУ14, РУ41, РУ52 Распределительное устройство 10 кВ. Металлоконструкция РУ42 Распределительное устройство 10 кВ. Металлоконструкции. Замок с ключом Распределительное устройство 10 кВ. Металлоконструкции РУ43 - РУ48, РУ50, РУ51 Распределительное устройство 10 кВ. Металлоконструкции РУ59, РУ60, РУ61, РУ49, РУ53, РУ54, РУ55, РУ56, РУ57, РУ58 Распределительное устройство 10 кВ. Металлоконструкции. Монтажные узлы 1 - 9 |
| Разработан: | Энергосетьпроект Минэнерго СССР |
| Утверждён: | 20.08.1976 Энергосетьпроект (Energosetproject 138) |









































