Скачать Типовой проект 3584тм Альбом V. Здание вспомогательного оборудования (вариант со стеновыми панелями)Дата актуализации: 01.01.2021
|
| Обозначение: | Типовой проект 3584тм |
| Обозначение англ: | 3584тм |
| Статус: | действует |
| Название рус.: | Альбом V. Здание вспомогательного оборудования (вариант со стеновыми панелями) |
| Дата добавления в базу: | 01.10.2014 |
| Дата актуализации: | 01.01.2021 |
| Дата введения: | 01.10.1976 |
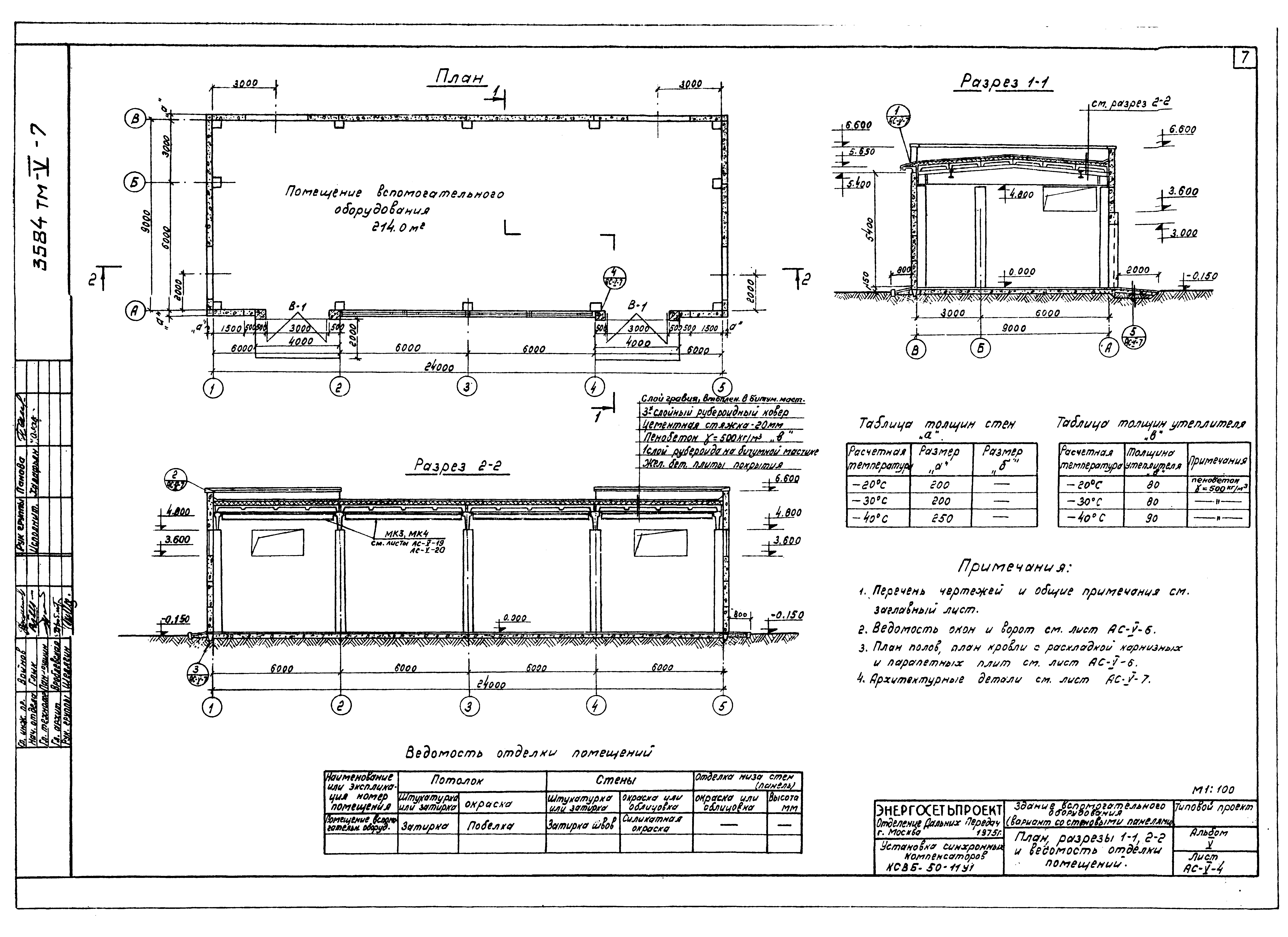
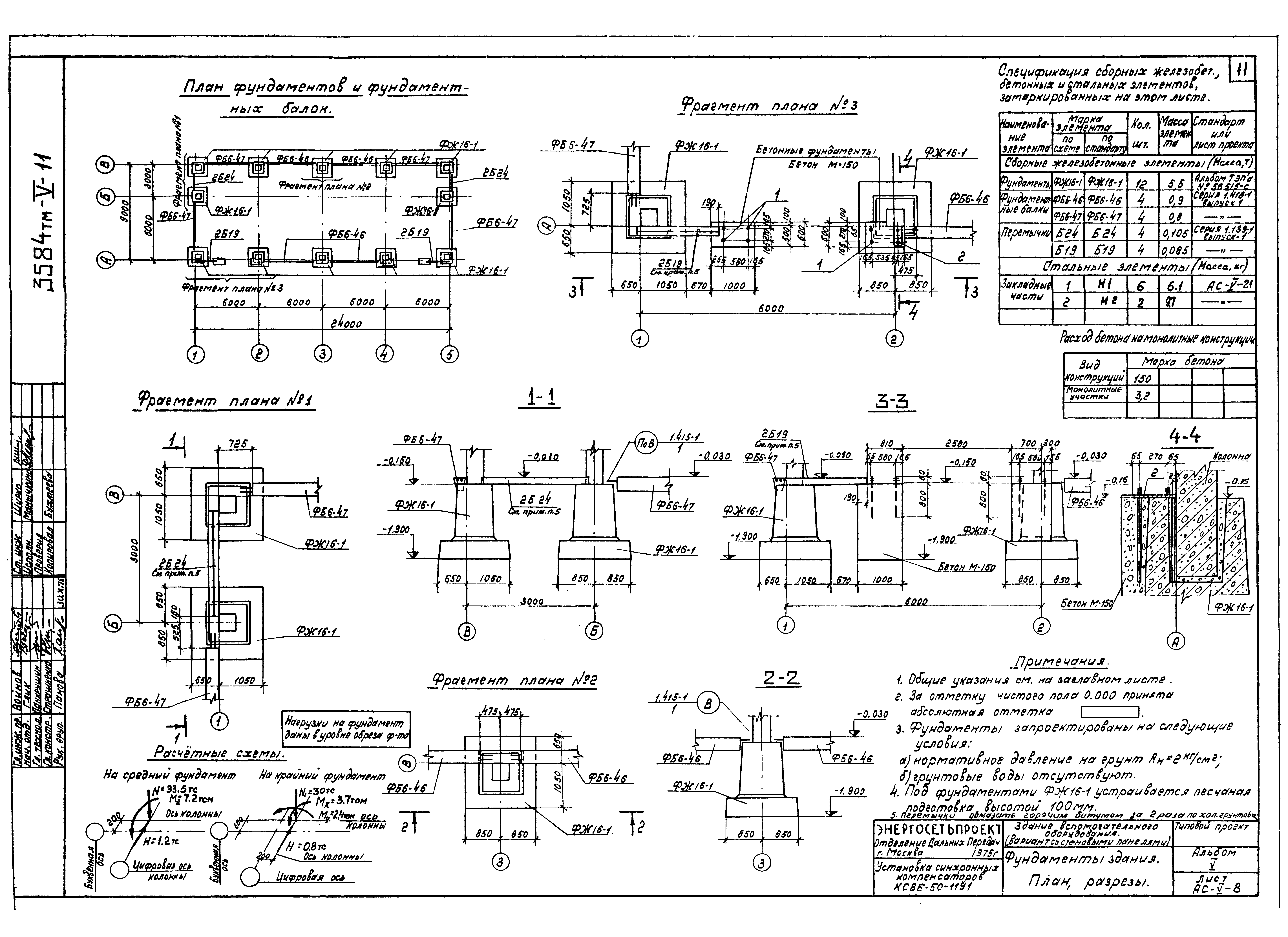
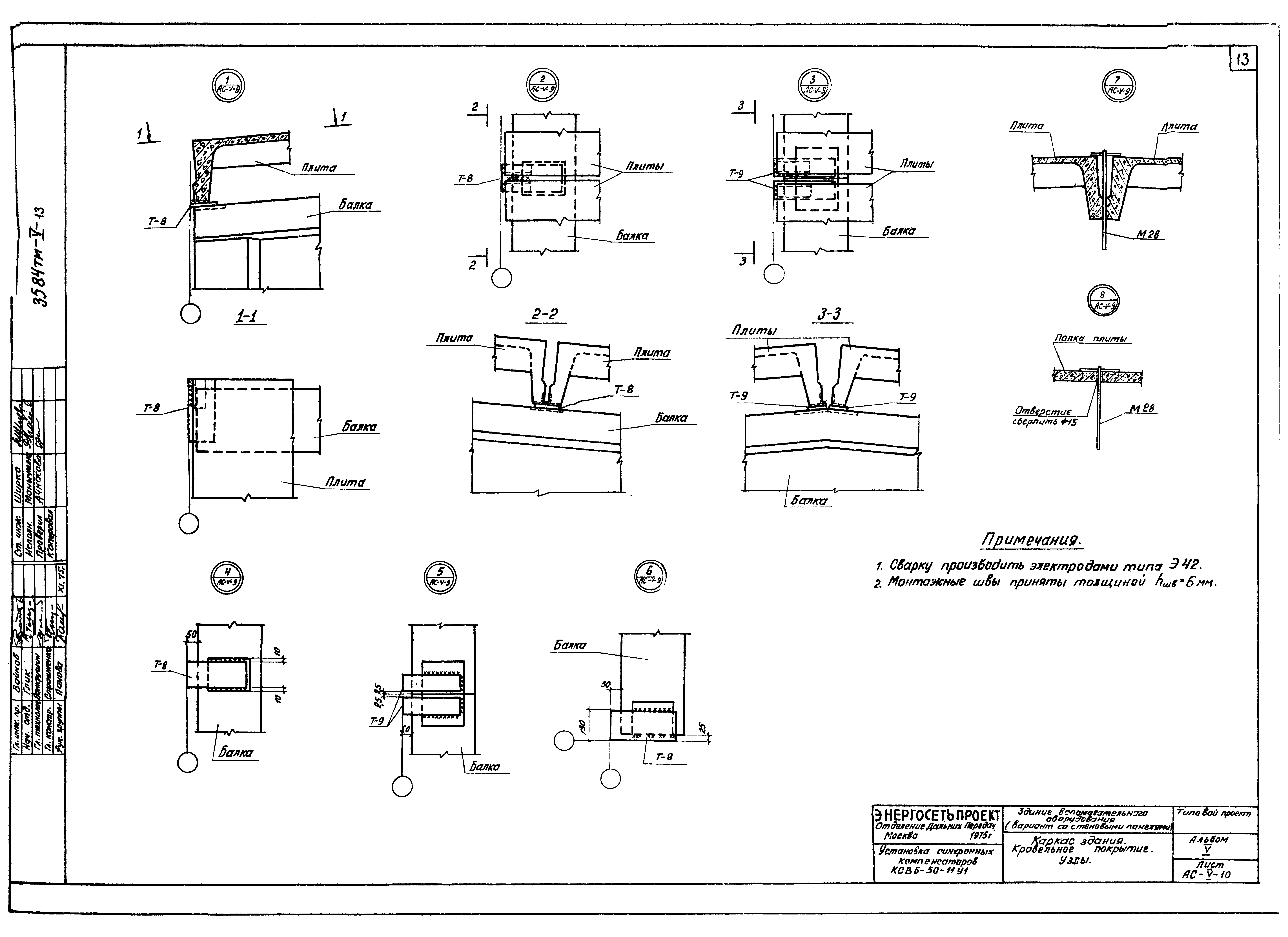
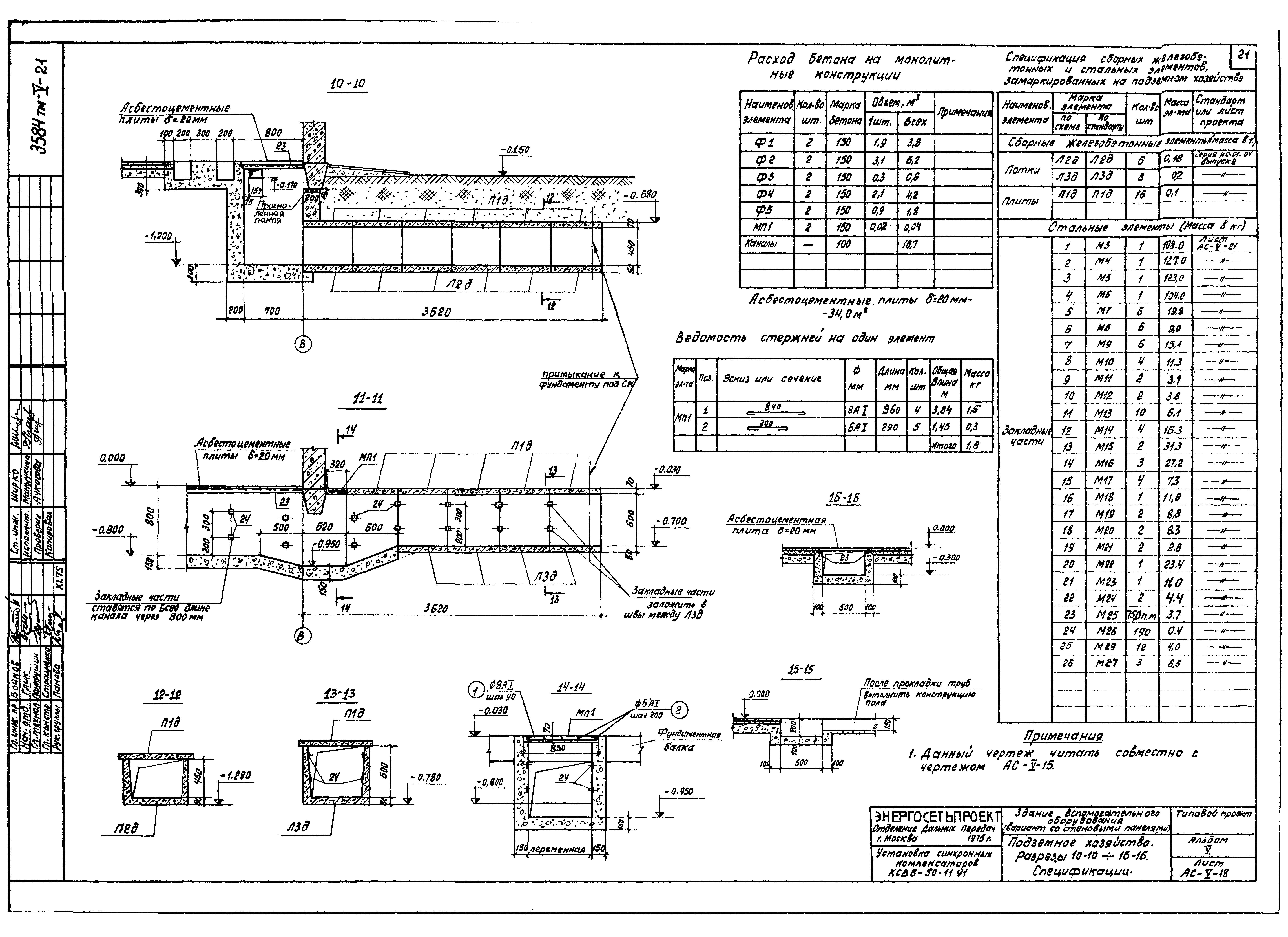
| Оглавление: | Содержание альбома Пояснительная записка Заглавный лист. Перечень чертежей Заглавный лист. Таблицы, условные обозначения. Общие указания Сводные спецификации Архитектурные чертежи План, разрезы 1-1, 2-2 и ведомость отделки помещений Фасады 1 - 5; 5 - 1; А - В и В - А Маркировочная схема окон. План кровли, раскладка карнизных и парапетных плит. План пола Архитектурные детали Конструктивные чертежи Фундаменты здания. План, разрезы Каркас здания. Кровельное покрытие. Планы, разрезы Каркас здания. Кровельное покрытие. Узлы Монтажные схемы раскладки стеновых панелей по фасадам Узлы крепления стеновых панелей Разбивка закладных частей в колоннах и плите ПАV/1,5х6-1а Монтажная схема насадок. Узлы Подземное хозяйство. План Подземное хозяйство. Фундаменты Ф1 - Ф5 Подземное хозяйство. Разрезы 1-1 - 9-9 Подземное хозяйство. Разрезы 10-10 - 16-16. Спецификации Монтажная схема металлоконструкций для подъема реакторов и выключателей. План, разрезы. Узлы Металлоконструкции. Марки МК1 - МК9 и крепежные детали марки Т1 - Т9 Закладные части |
| Разработан: | Энергосетьпроект Минэнерго СССР |
| Утверждён: | 20.08.1976 Энергосетьпроект (Energosetproject 138) |























