Скачать Типовой проект 3584тм Альбом VI. Здание вспомогательного оборудования (вариант в кирпиче)Дата актуализации: 01.01.2021
|
| Обозначение: | Типовой проект 3584тм |
| Обозначение англ: | 3584тм |
| Статус: | действует |
| Название рус.: | Альбом VI. Здание вспомогательного оборудования (вариант в кирпиче) |
| Дата добавления в базу: | 01.10.2014 |
| Дата актуализации: | 01.01.2021 |
| Дата введения: | 01.10.1976 |
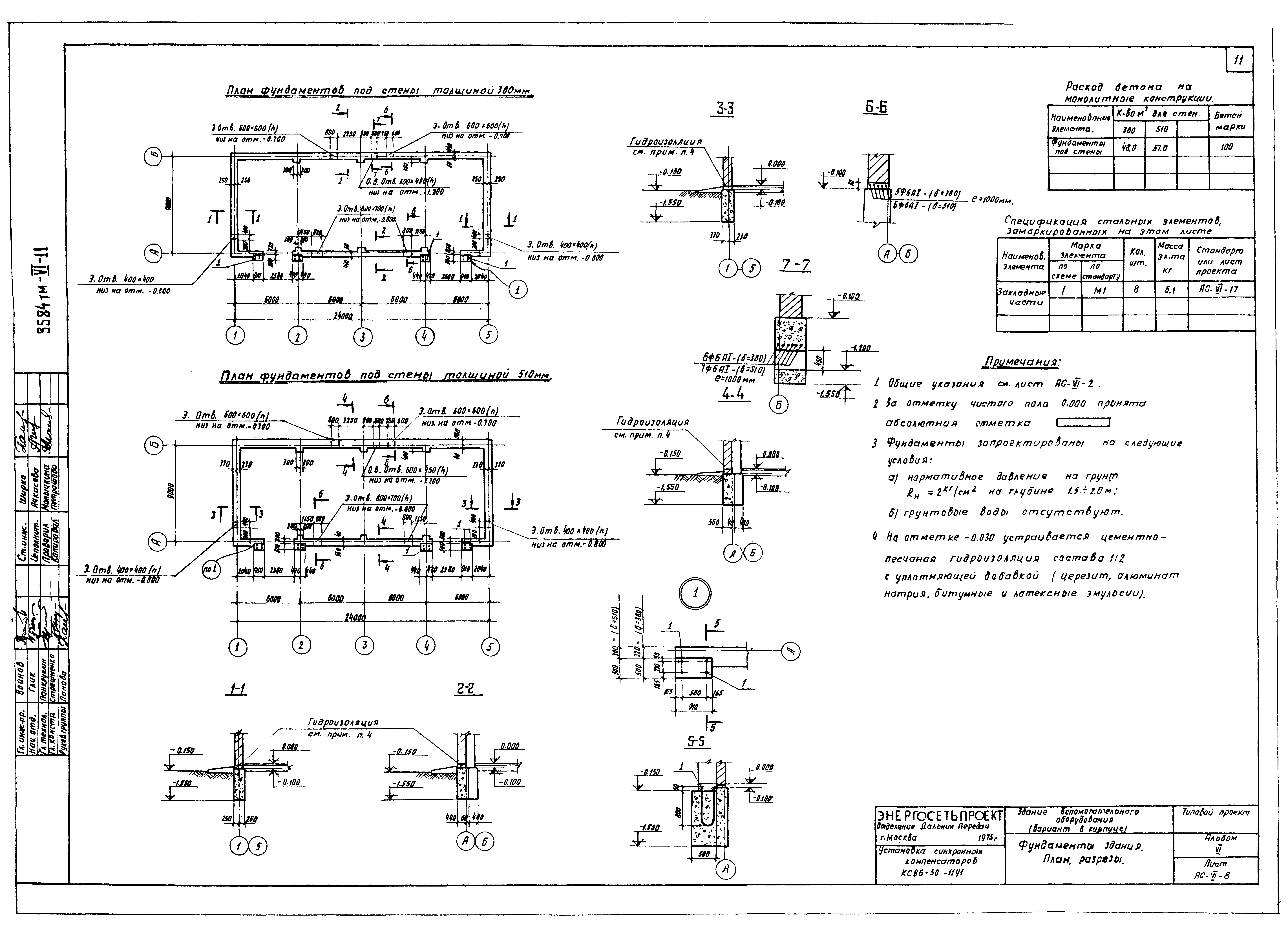
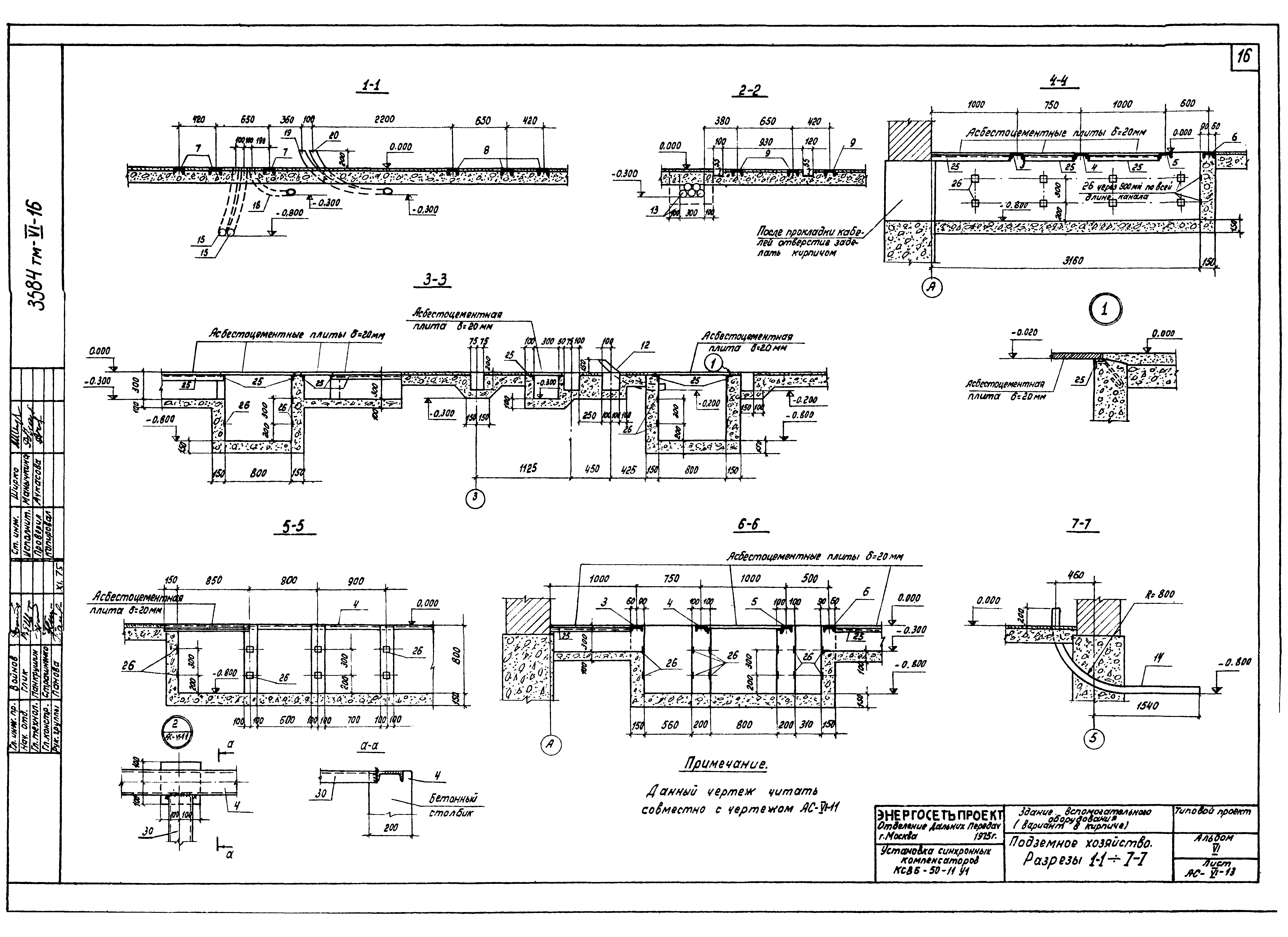
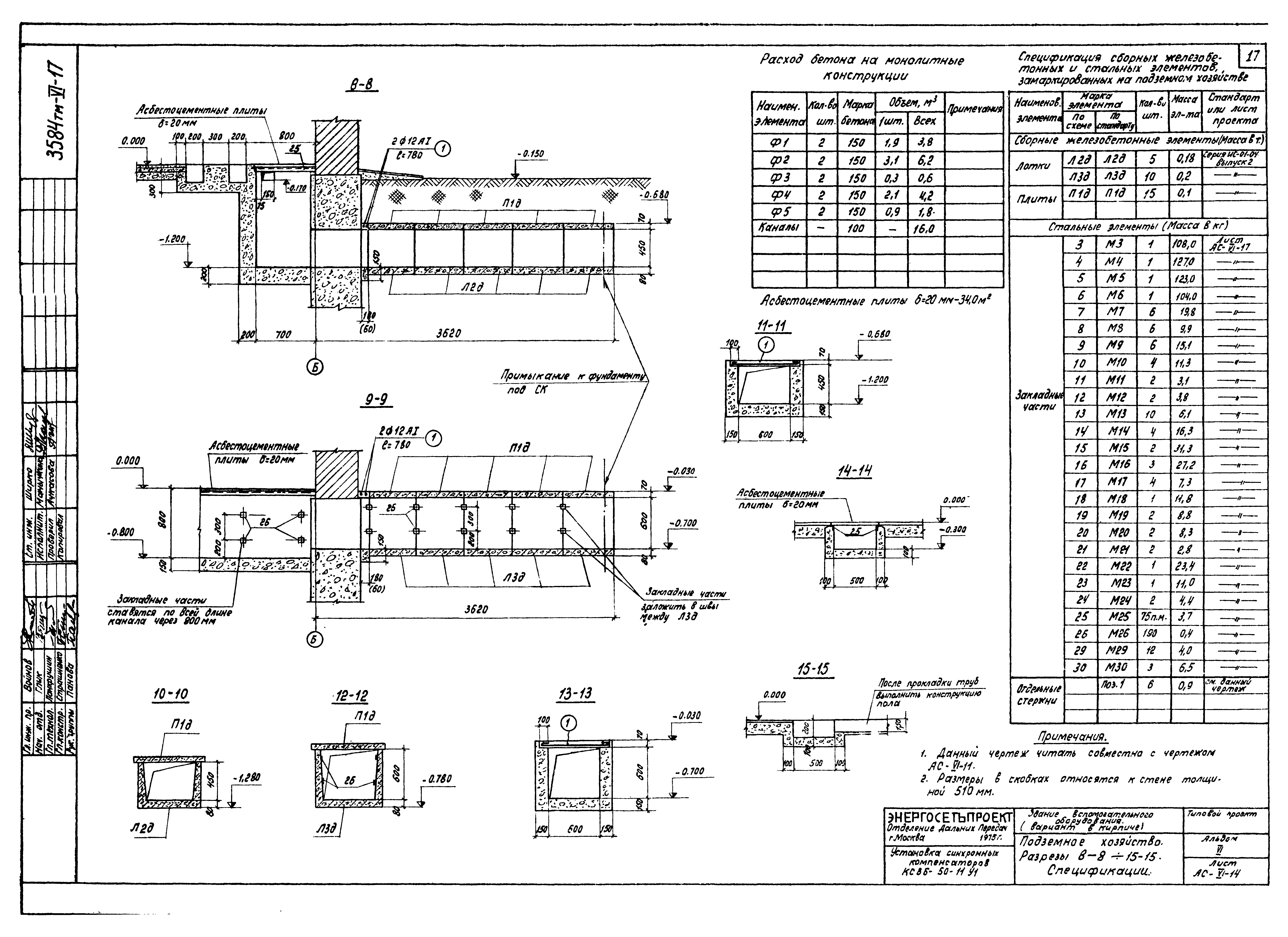
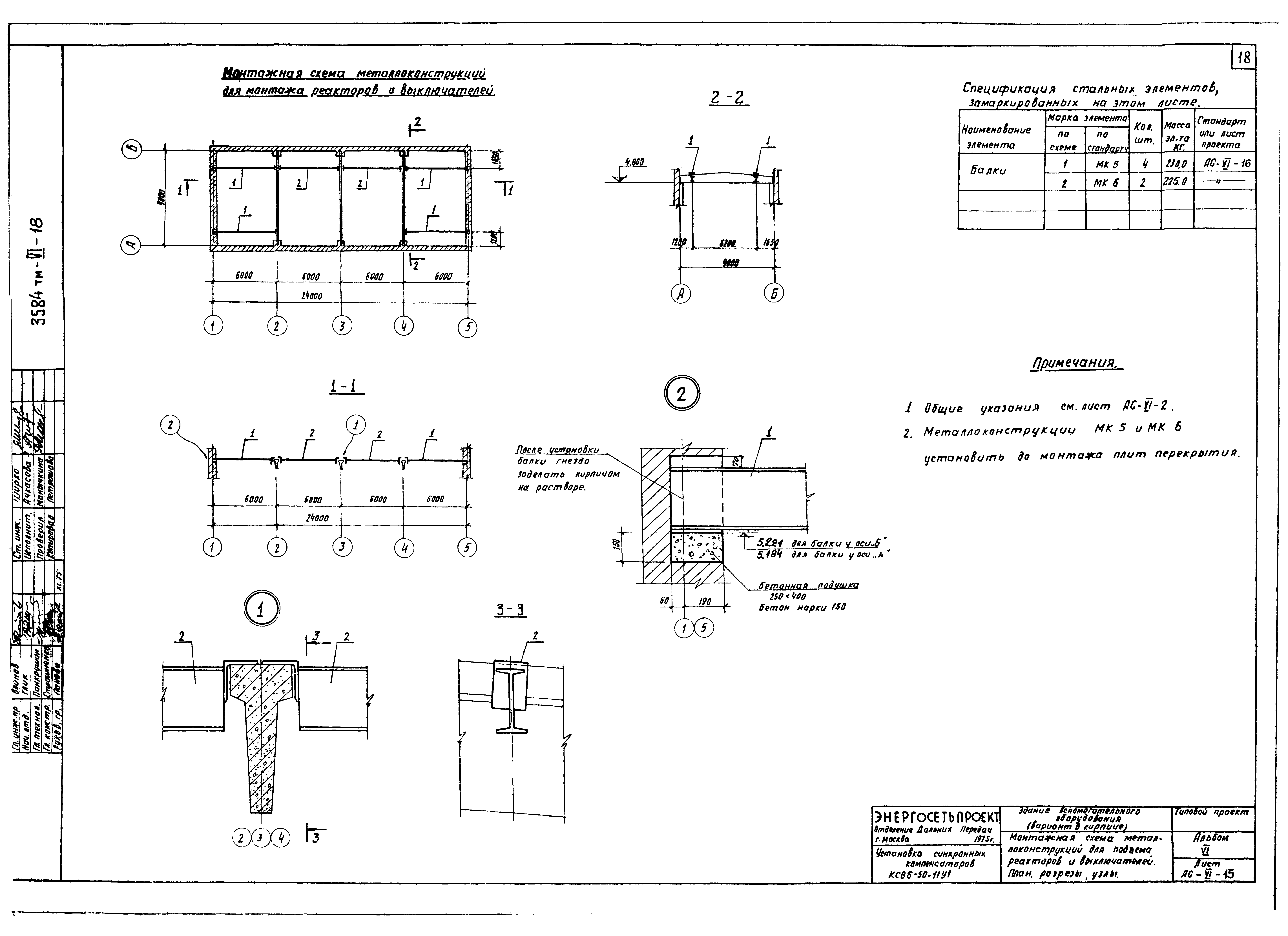
| Оглавление: | Содержание альбома Пояснительная записка Заглавный лист. Перечень чертежей Заглавный лист. Таблицы, условные обозначения. Общие указания Сводные спецификации Архитектурные чертежи План, разрезы 1-1, 2-2 и ведомость отделки помещений Фасады 1 - 5; 5 - 1; А - Б; Б - А Маркировочная схема окон. План кровли и раскладки парапетных плит. План пола и раскладки перемычек Архитектурные детали Конструктивные чертежи Фундаменты здания. План, разрезы Кровельное покрытие. Планы, разрезы. Опорная подушка ОП-1 Кровельное покрытие. Узлы Подземное хозяйство. План Подземное хозяйство. Фундаменты Ф1 - Ф5 Подземное хозяйство. Разрезы 1-1 - 7-7 Подземное хозяйство. Разрезы 8-8 - 15-15. Спецификации Монтажная схема металлоконструкций для подъема реакторов и выключателей. План, разрезы, узлы Металлоконструкции. Марки МК-1 - МК-7 Закладные части |
| Разработан: | Энергосетьпроект Минэнерго СССР |
| Утверждён: | 20.08.1976 Энергосетьпроект (Energosetproject 138) |



















