Скачать Типовой проект 3584тм Альбом VII. Фундамент для двух синхронных компенсаторовДата актуализации: 01.01.2021
|
| Обозначение: | Типовой проект 3584тм |
| Обозначение англ: | 3584тм |
| Статус: | действует |
| Название рус.: | Альбом VII. Фундамент для двух синхронных компенсаторов |
| Дата добавления в базу: | 01.10.2014 |
| Дата актуализации: | 01.01.2021 |
| Дата введения: | 01.10.1976 |
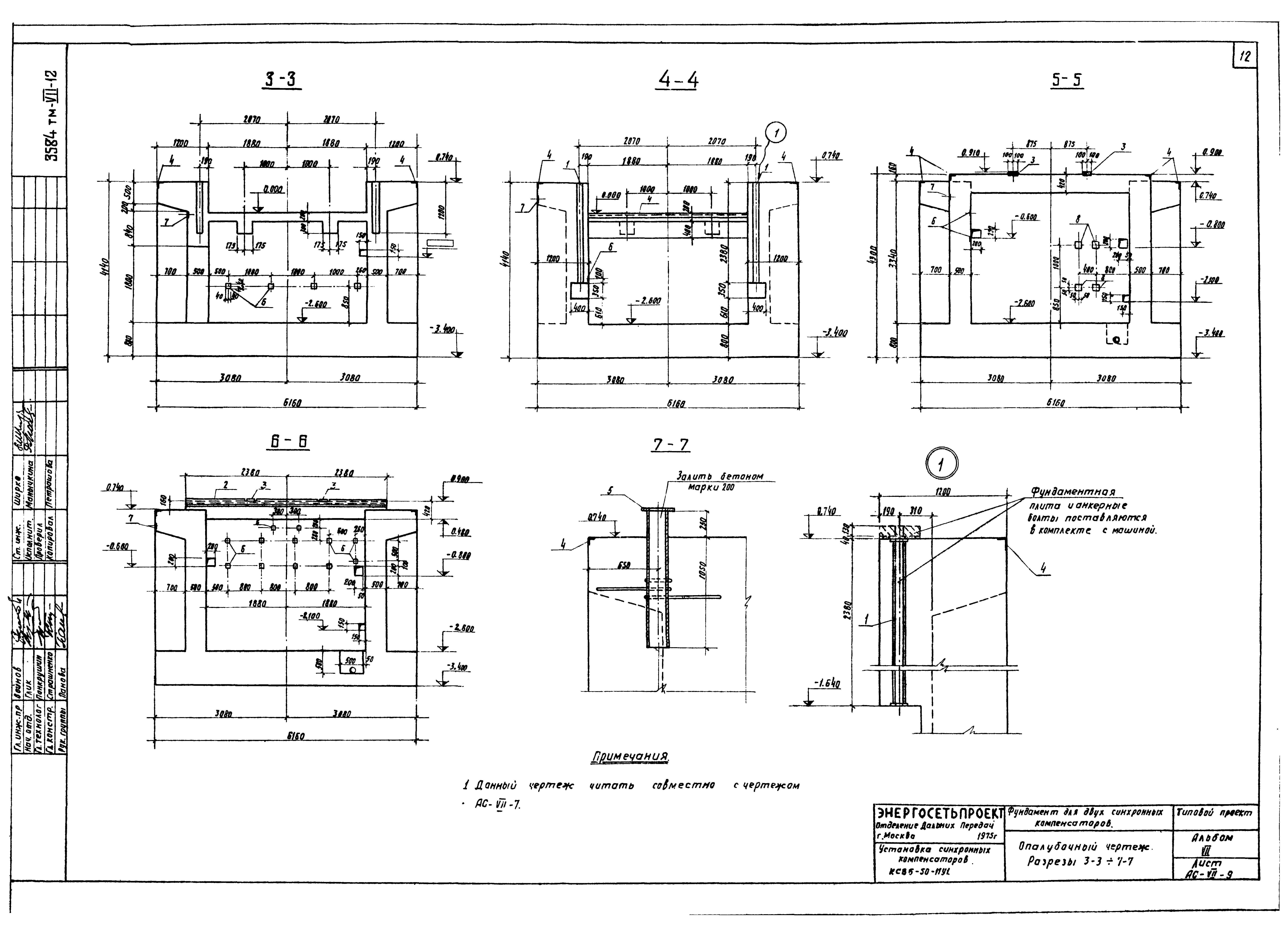
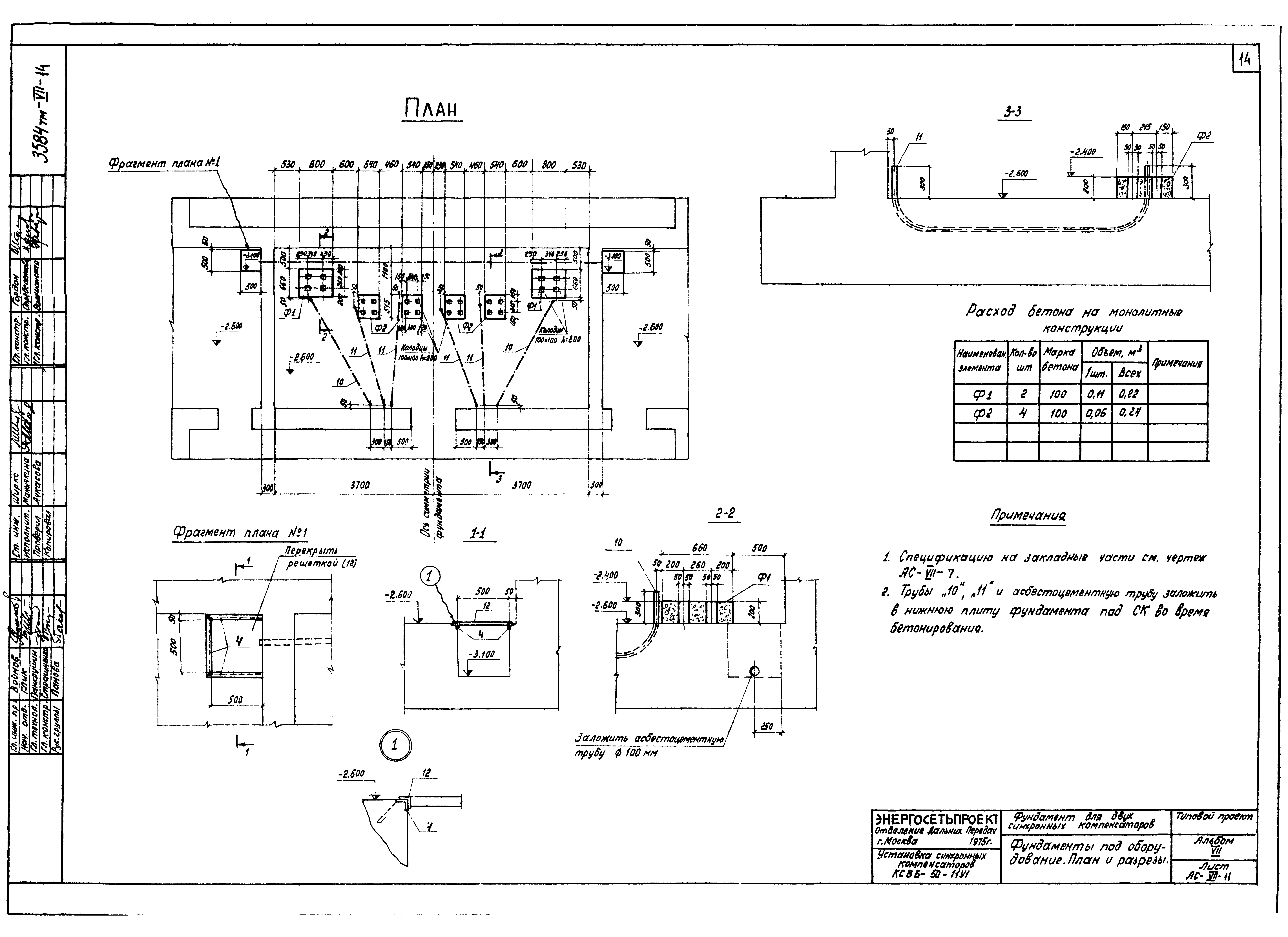
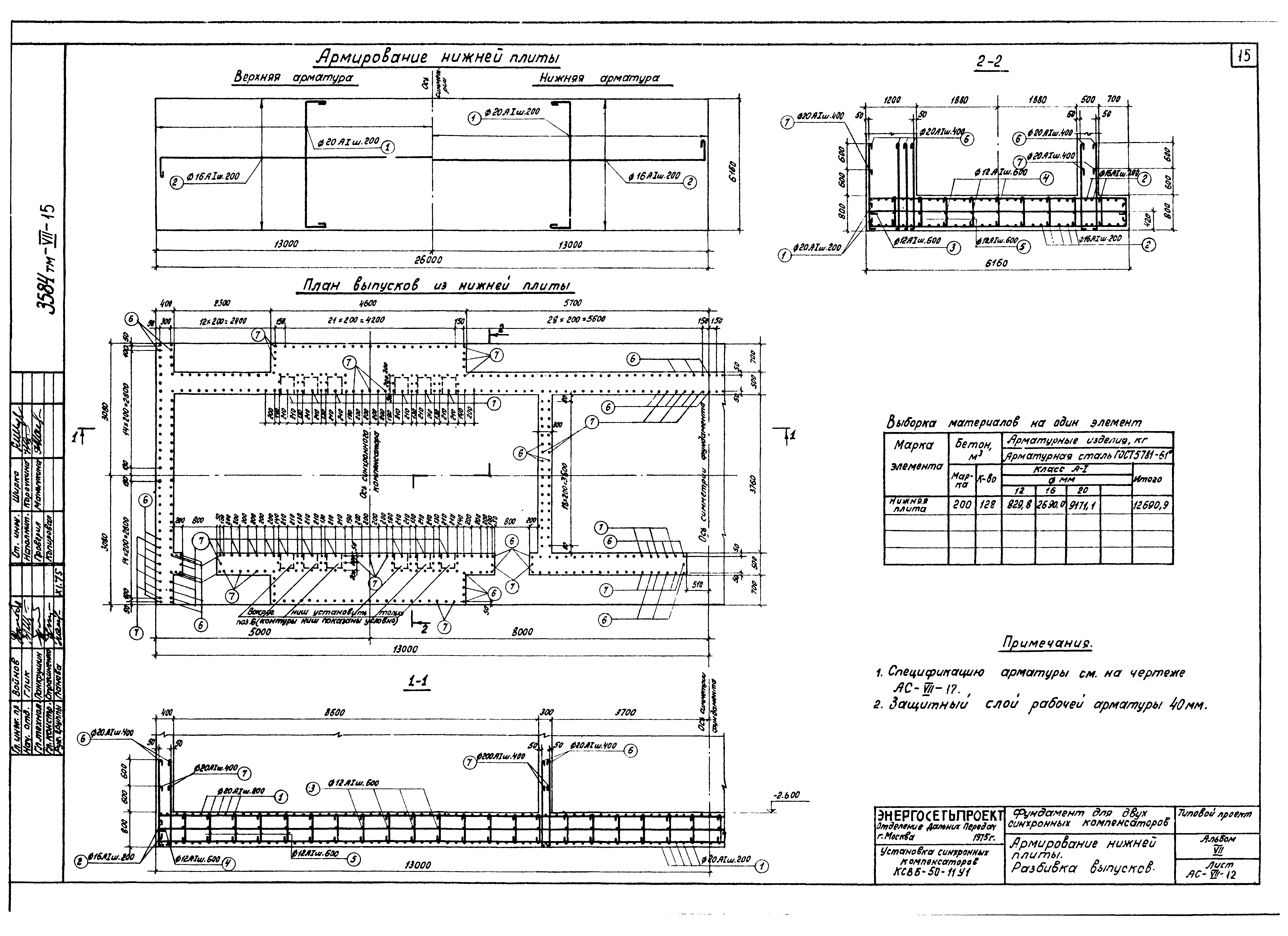
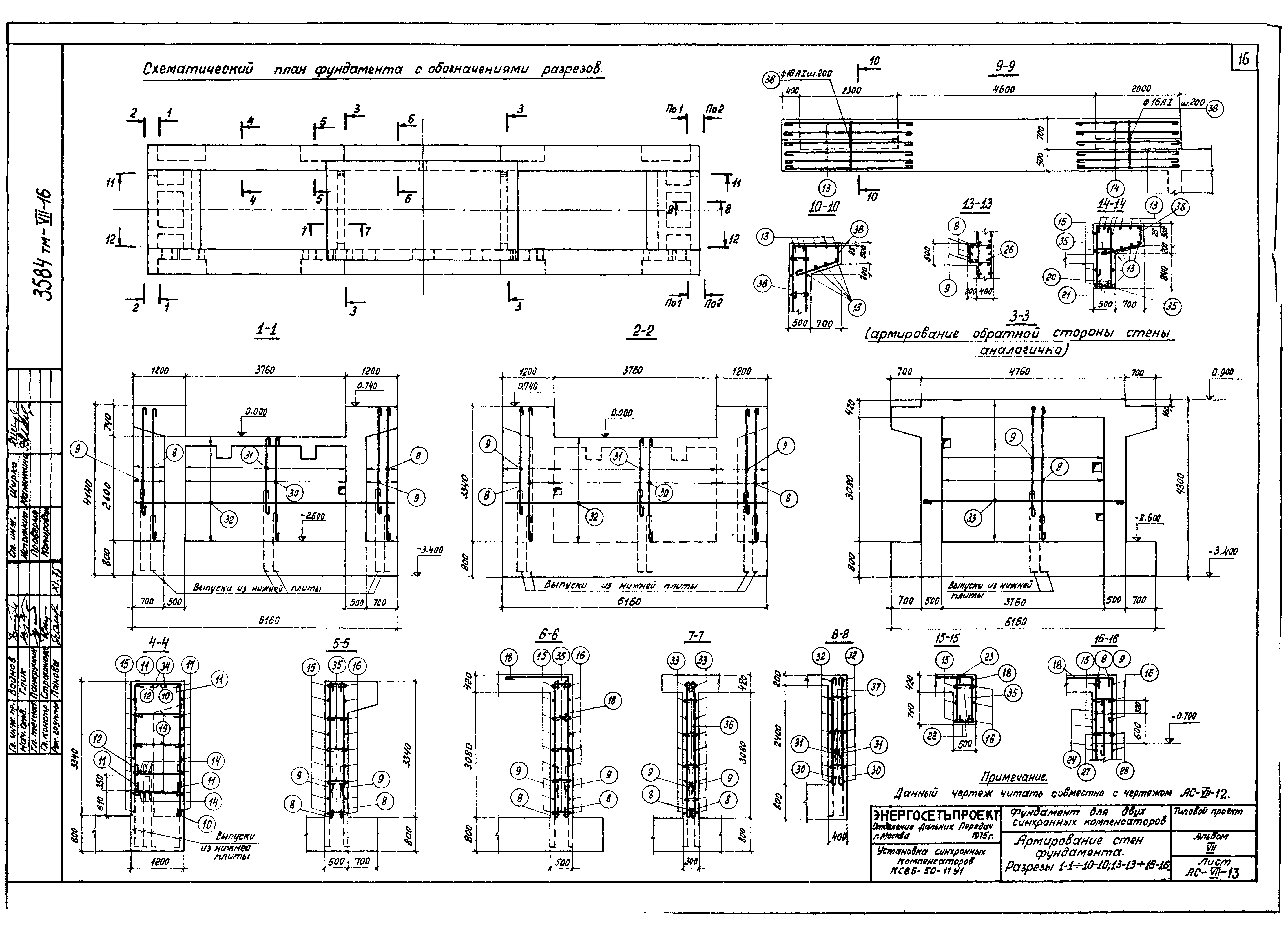
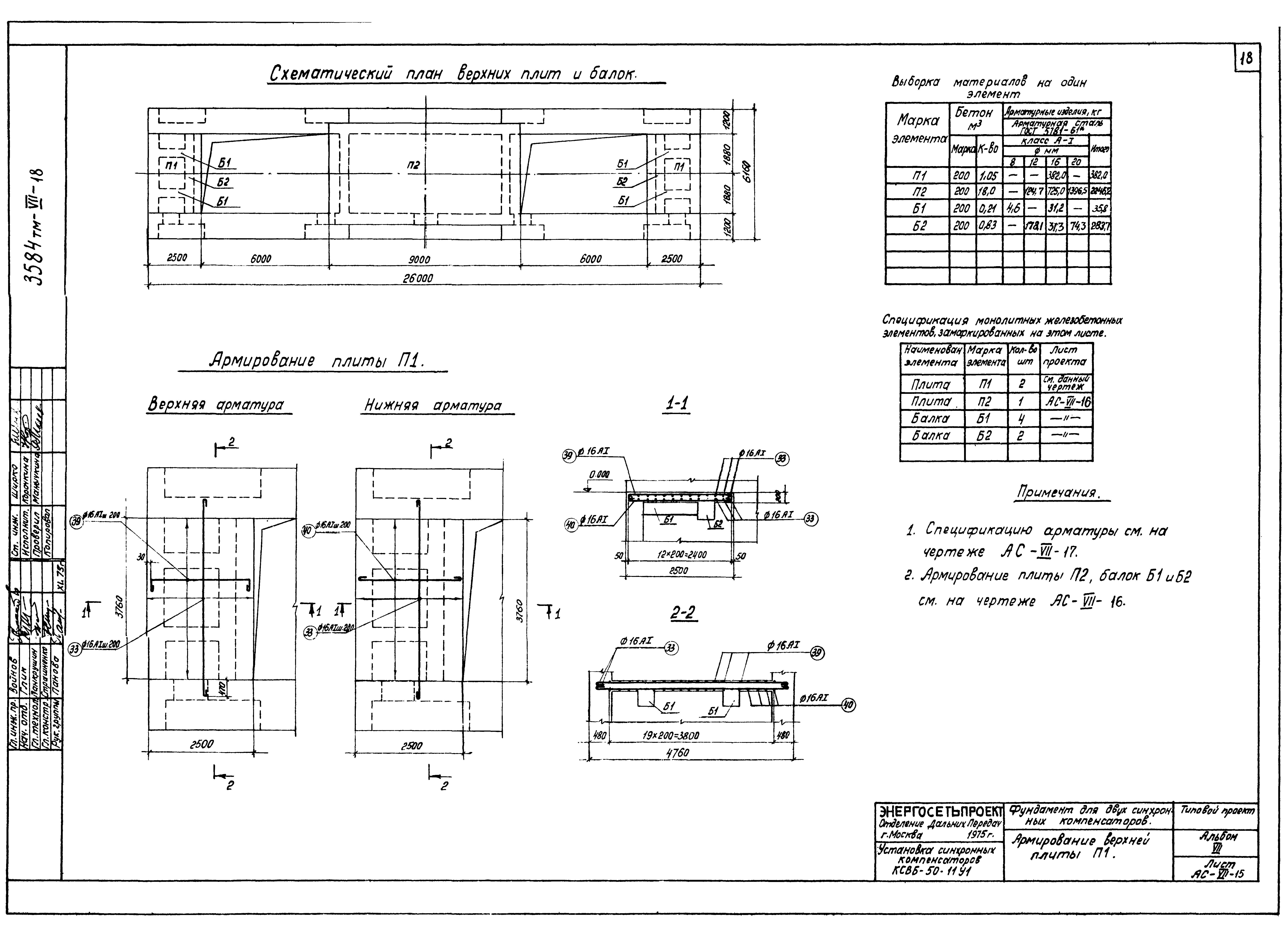
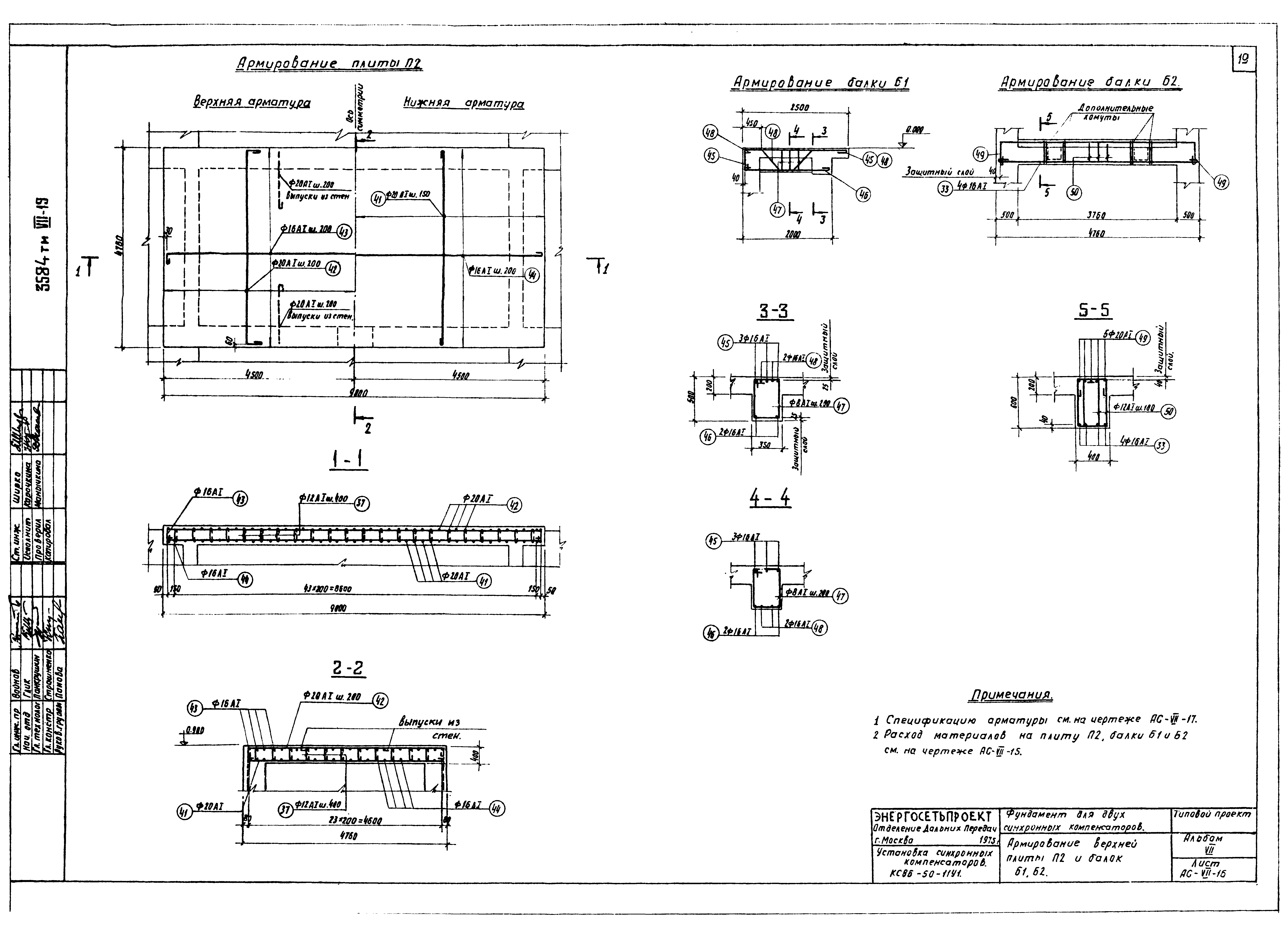
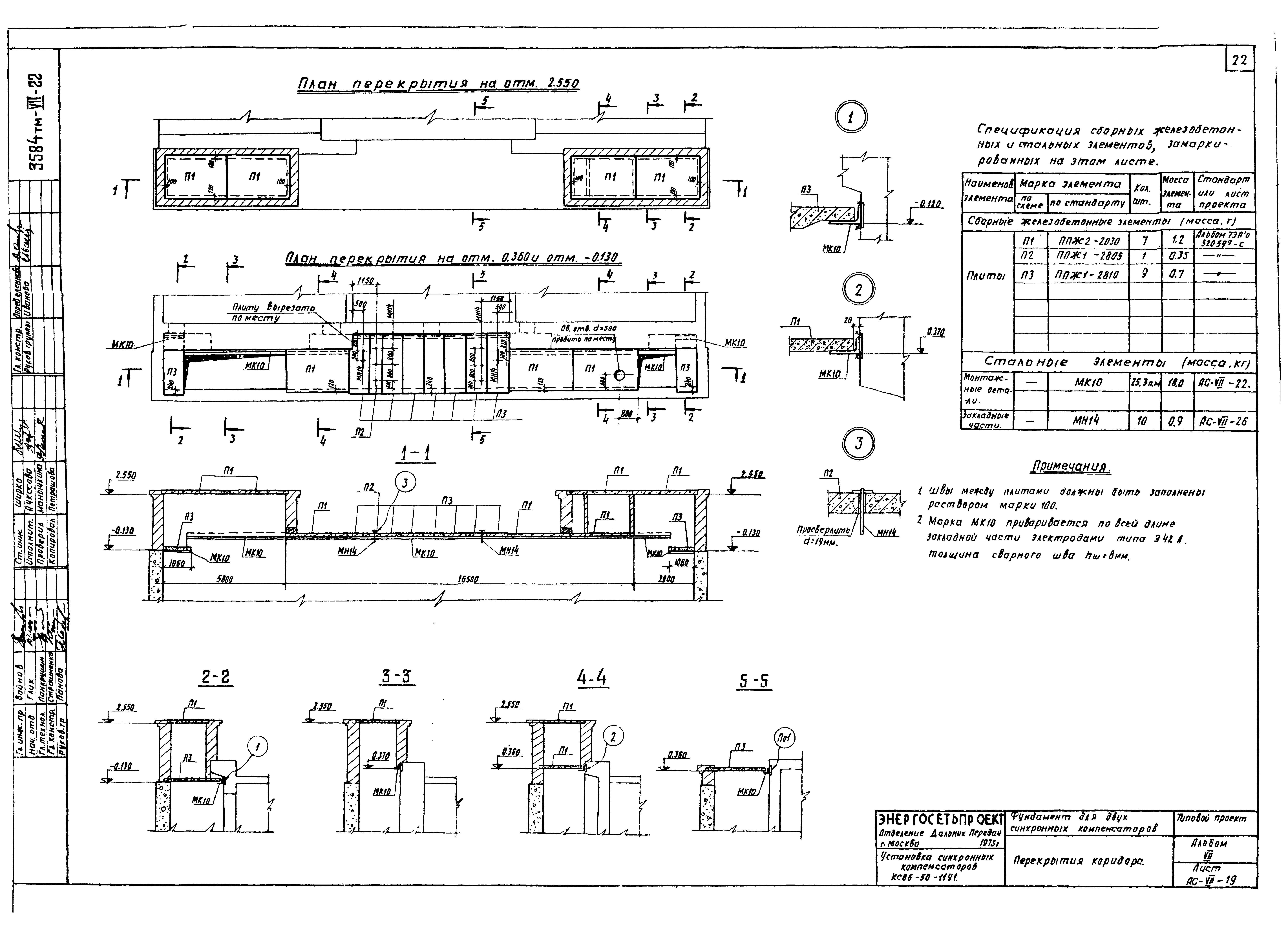
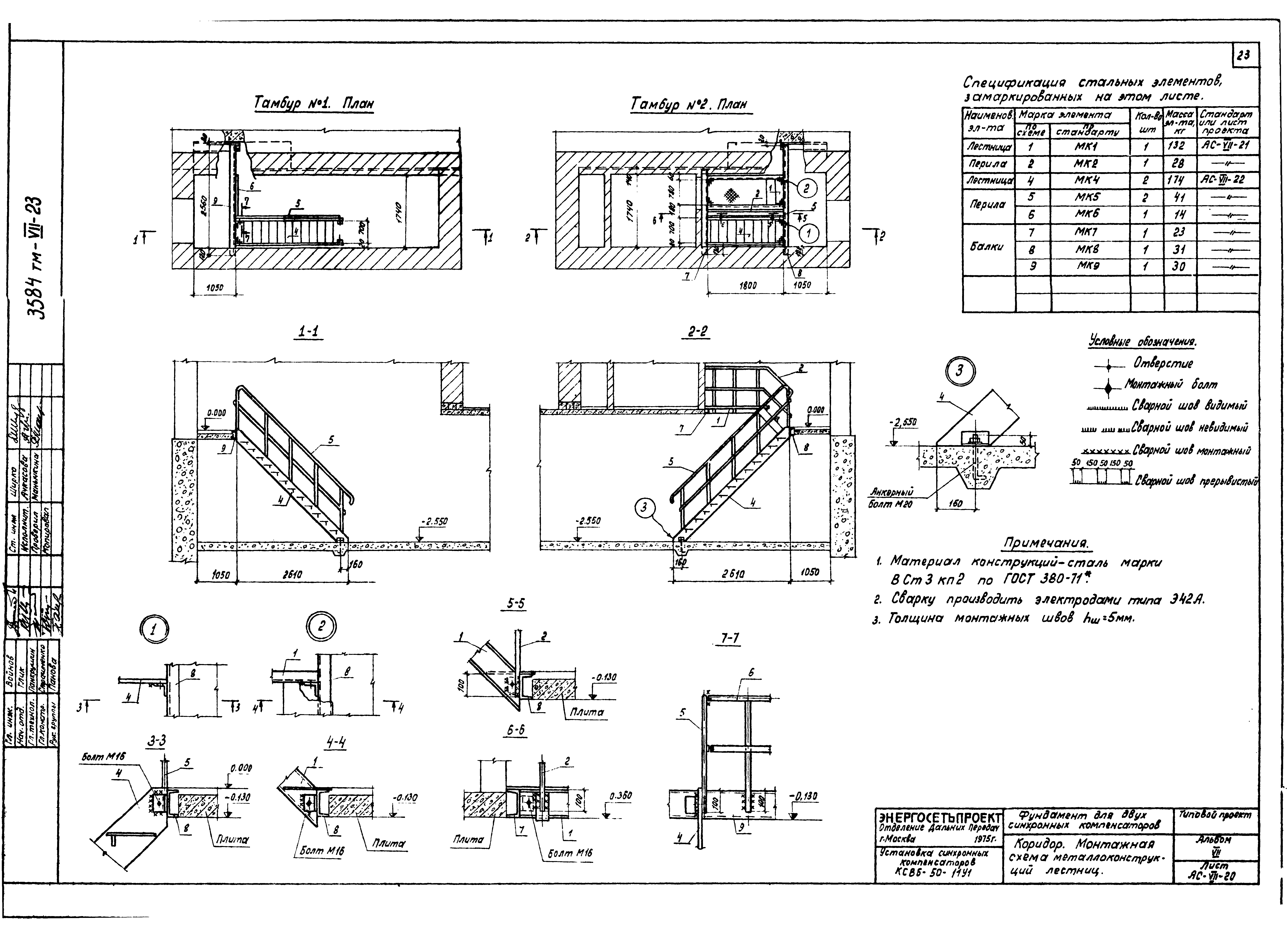
| Оглавление: | Содержание альбома Пояснительная записка Заглавный лист. Перечень чертежей Заглавный лист. План расположения фундамента под синхронные компенсаторы и якорей. Общие указания Сводные спецификации Архитектурные чертежи Планы на отм. 0.000 и отм. - 2.550, разрезы 1-1, 2-2. Ведомость проемов окон и дверей, экспликация полов, ведомость отделки помещений Фасады, тамбур, ведомость перемычек, таблицы толщин стен и утеплителя Архитектурные детали Конструктивные чертежи Опалубочный чертеж. План Опалубочный чертеж. Разрезы 1-1 и 2-2 Опалубочный чертеж. Разрезы 3-3 - 7-7 Опалубочный чертеж. Разрезы 8-8 - 10-10 Фундаменты под оборудование. План и разрезы Армирование нижней плиты. Разбивка выпусков Армирование стен фундамента. Разрезы 1-1 - 10-10; 13-13 - 16-16 Армирование стен фундамента. Разрезы 11-11 и 12-12 Армирование верхней плиты П1 Армирование верхней плиты П2 и балок Б1, Б2 Спецификация арматуры Фундаменты коридора Перекрытия коридора Коридор. Монтажная схема металлоконструкций лестниц Металлоконструкции. Марки МК1 - МК3 Металлоконструкции. Марки МК4 - МК10 Монтажные схемы раскладки щитов утепления Конструкции щитов утепления Узлы крепления щитов утепления. Спецификация Закладные части Якоря. Монтажные схемы. Узлы Якоря. Металлоконструкции. Марки МА1 - МА3; МА6, МА7 Якоря. Металлоконструкции. Марки МА4 - МА5 Приспособление для монтажа ротора и статора. Монтажная схема и спецификации Приспособление для монтажа ротора. Металлоконструкции. Марка МА8 |
| Разработан: | Энергосетьпроект Минэнерго СССР |
| Утверждён: | 20.08.1976 Энергосетьпроект (Energosetproject 138) |

































