Скачать Типовой проект 3584тм Альбом VIII. Отопление и вентиляцияДата актуализации: 01.01.2021
|
| Обозначение: | Типовой проект 3584тм |
| Обозначение англ: | 3584тм |
| Статус: | действует |
| Название рус.: | Альбом VIII. Отопление и вентиляция |
| Дата добавления в базу: | 01.10.2014 |
| Дата актуализации: | 01.01.2021 |
| Дата введения: | 01.10.1976 |
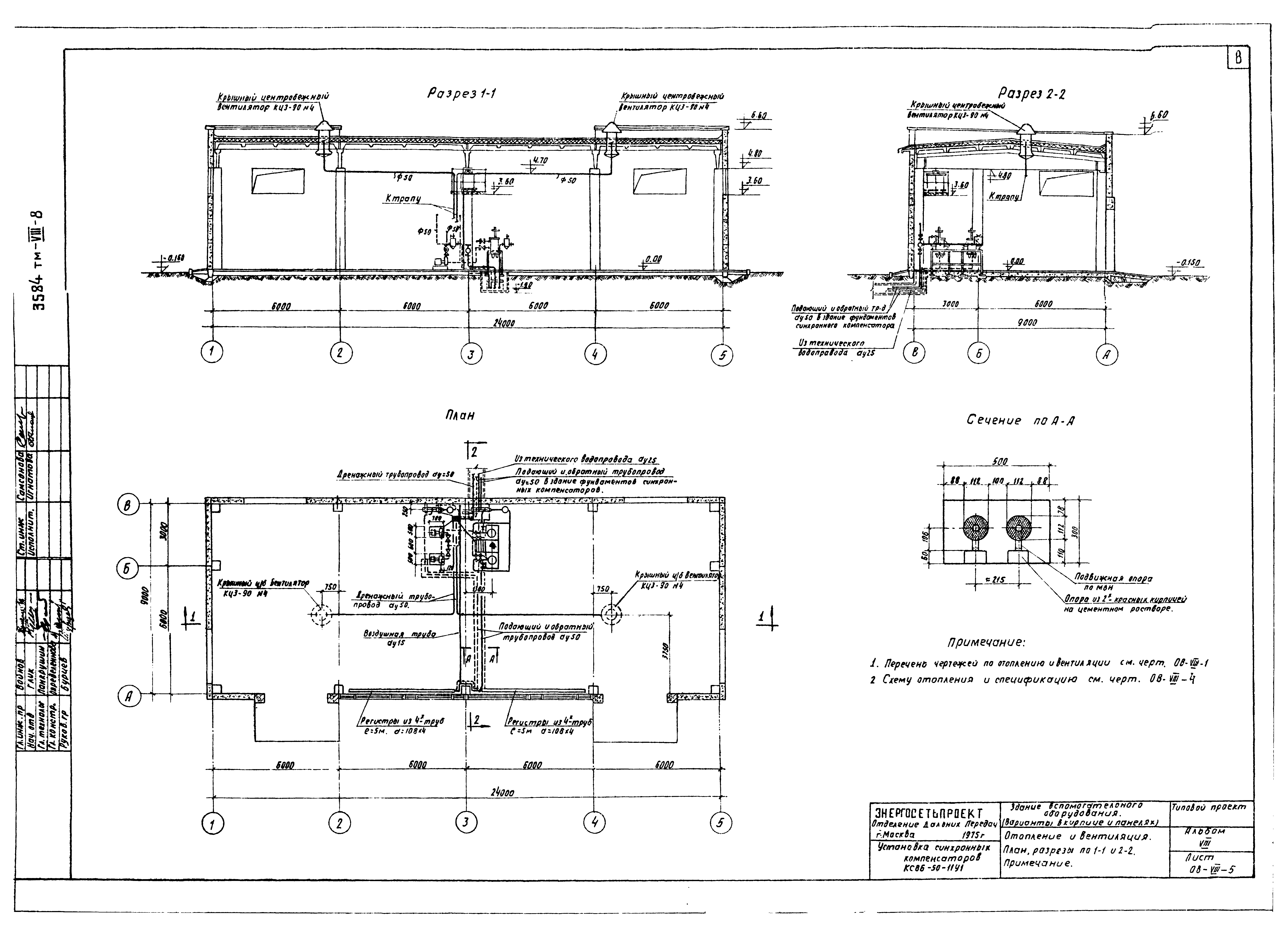
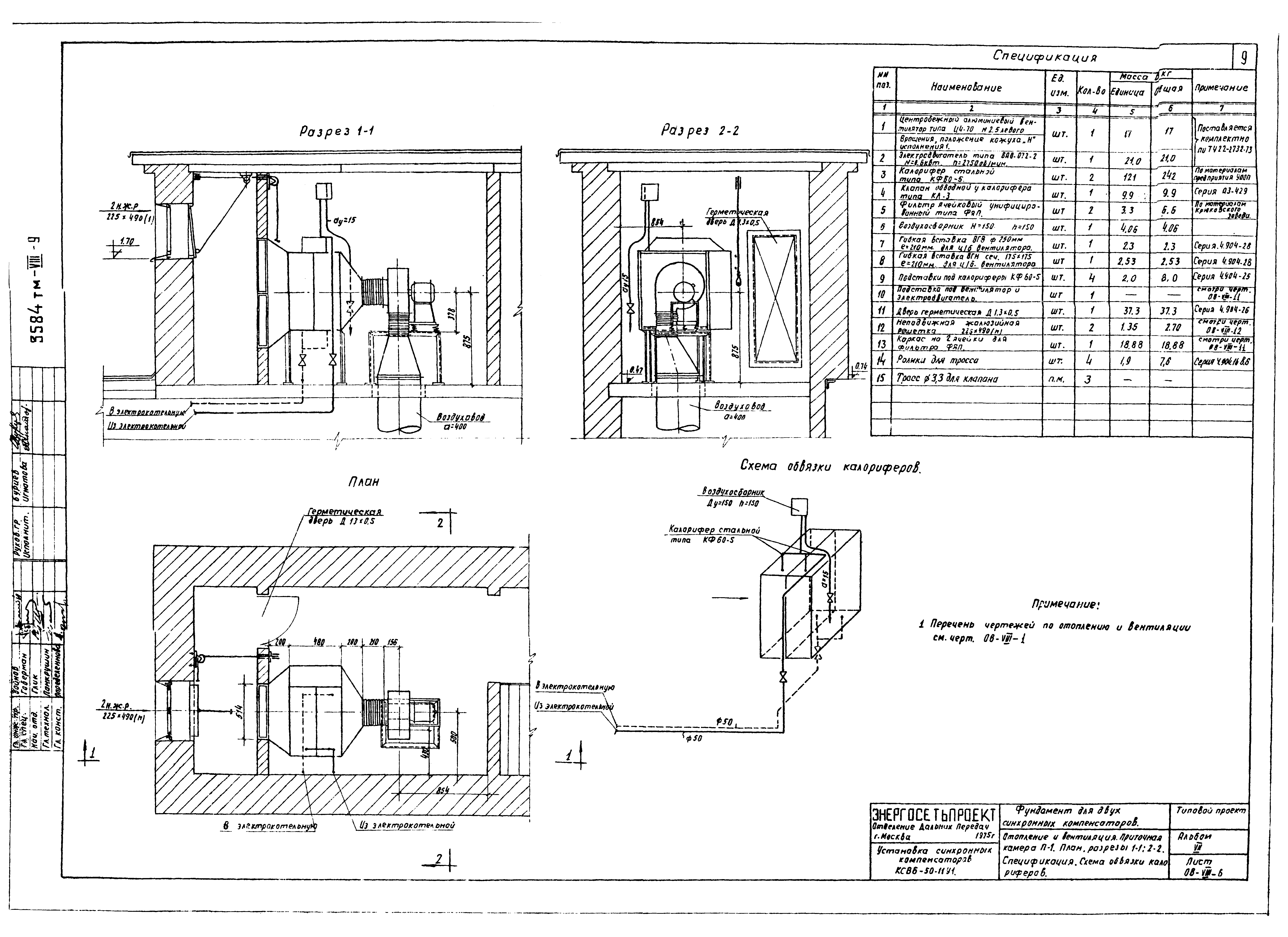
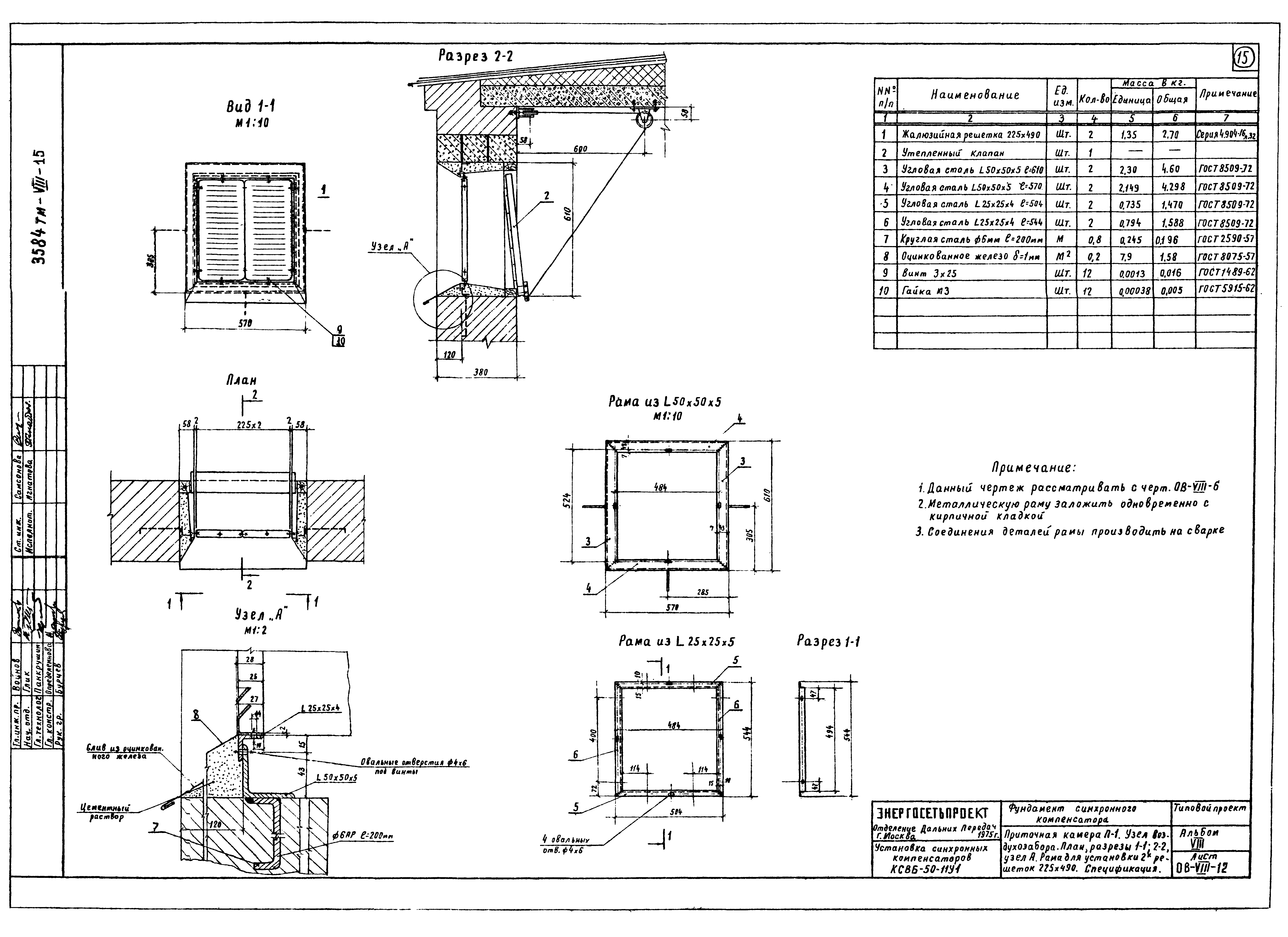
| Оглавление: | Содержание альбома Пояснительная записка Заглавный лист. Перечень чертежей по отоплению и вентиляции Заглавный лист. Таблицы, условные обозначения Чертежи по отоплению и вентиляции Отопление и вентиляция. Помещения фундамента синхронных компенсаторов на отм. - 2.550; 0.000. Разрез 1-1. Сечение канала по а-а Отопление и вентиляция. Схема приточной системы П-1. Схема подводки трубопроводов к калориферам П-1. Схемы В-1 и В-2. Схема отопления мест установки электропанелей. Спецификации Отопление и вентиляция. План здания вспомогательного оборудования на отм. 0.000. Сечение канала по А-А Отопление и вентиляция. Приточная камера П-1. План, разрезы 1-1, 2-2. Схема обвязки калориферов. Спецификация Электрокотельная. План, разрезы 1-1, 2-2. План и вид по а-а площадки под расширительный бак. Примечание Схема электрокотельной, спецификация Электрокотельная. Опора под 2 электрокотла типа КЭВ-63/0,4. План. Вид А. Разрез 1-1. Спецификация. Примечание Электрокотельная. Опора под 2 электрокотла типа КЭВ-63/0,4. Лестница (боковой вид). Узлы А и Б. Деталь поз. "3". Примечания Приточная камера П-1. Каркас на две ячейки фильтра ФЯП. Узлы и детали. Опора под вентилятор. Общий вид. Узлы, детали. Спецификация Приточная камера П-1. Узел воздухозабора. План, разрезы 1-1, 2-2. Узел А. Рама для установки 2-х решеток 225х440. Спецификация |
| Разработан: | Энергосетьпроект Минэнерго СССР |
| Утверждён: | 20.08.1976 Энергосетьпроект (Energosetproject 138) |














