Скачать Серия 3.501-107 Часть 2. Блоки заводского изготовленияДата актуализации: 01.01.2021
|
| Обозначение: | Серия 3.501-107 |
| Обозначение англ: | Series 3.501-107 |
| Статус: | заменен |
| Название рус.: | Часть 2. Блоки заводского изготовления |
| Дата добавления в базу: | 01.10.2014 |
| Дата актуализации: | 01.01.2021 |
| Дата введения: | 15.07.1978 |
| Дата окончания срока действия: | 01.02.1995 |
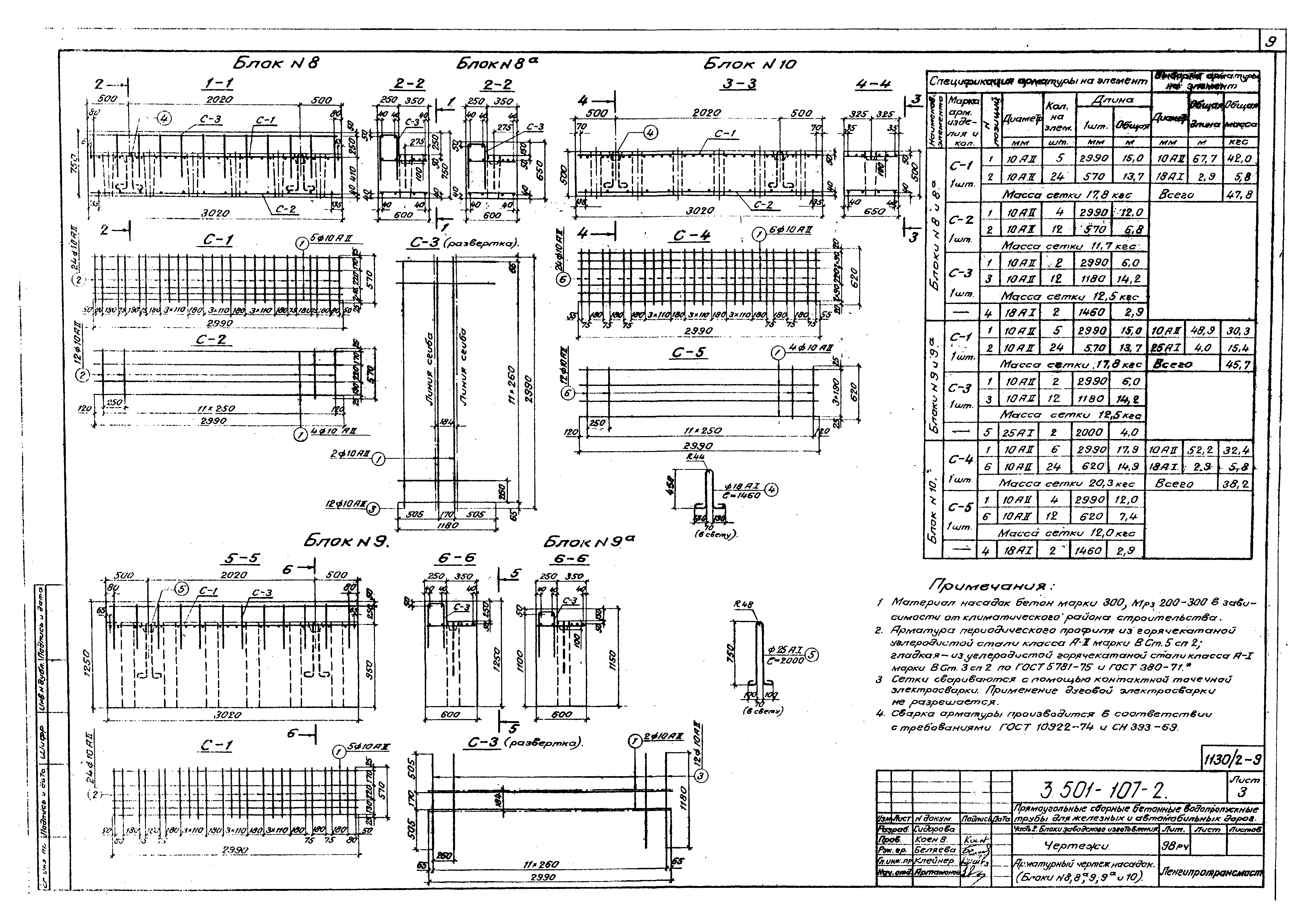
| Оглавление: | Содержание Пояснительная записка Блоки труб отверстиями 1,5х2,0; 2х1,5х2,0; 2,0х2,0; 2х2,0х2,0; 3,0х2,0 и 2х3,0х2,0 м. Основные данные Блоки труб отверстиями 2,0х3,0; 2х2,0х3,0; 3,0х3,0; 2х3,0х3,0; 4,0х3,0 и 2х4,0х3,0; 5,0х3,0; 2х5,0х3,0; 6,0х3,0 и 2х6,0х3,0 м. Основные данные Арматурный чертеж насадок (блоки № 8, 8а, 9, 9а и 10) Арматурный чертеж насадок (блоки № 11,12, 12а и 14) Арматурный чертеж плит перекрытий для труб отверстиями 1,5х2,0 и 2х1,5х2,0 м (блоки № 16, 17 и 18) Арматурный чертеж плит перекрытий для труб отверстиями 2,0х2,0; 2х2,0х2,0; 2,0х3,0 и 2х2,0х3,0 м (блоки № 19, 20 и 21) Арматурный чертеж плит перекрытий для труб отверстиями 3,0х2,0; 2х3,0х2,0; 3,0х3,0 и 2х3,0х3,0 м (блоки № 22, 23 и 24) Арматурный чертеж плит перекрытий для труб отверстиями 4,0х3,0; 2х4,0х3,0 м (блоки № 25, 26 и 27) Арматурный чертеж плит перекрытий для труб отверстиями 5,0х3,0; 2х5,0х3,0 м (блоки № 28, 29 и 30) Арматурный чертеж плит перекрытий для труб отверстиями 6,0х3,0; 2х6,0х3,0 м (блоки № 31, 32 и 33) Арматурный чертеж откосного крыла оголовка (блок № 34пл) Арматурный чертеж откосного крыла оголовка (блок № 35пл) Арматурный чертеж откосного крыла оголовка (блок № 36) Арматурный чертеж откосного крыла оголовка (блок № 37пл) Арматурный чертеж откосного крыла оголовка (блок № 38пл) Арматурный чертеж откосного крыла оголовка (блок № 39) Ведомость расхода материалов на блоки |
| Разработан: | Ленгипротрансмост |
| Утверждён: | 09.06.1978 Минтрансстрой СССР (USSR Mintransstroy П-19064/Л-578) |
| Чем заменён: |






















