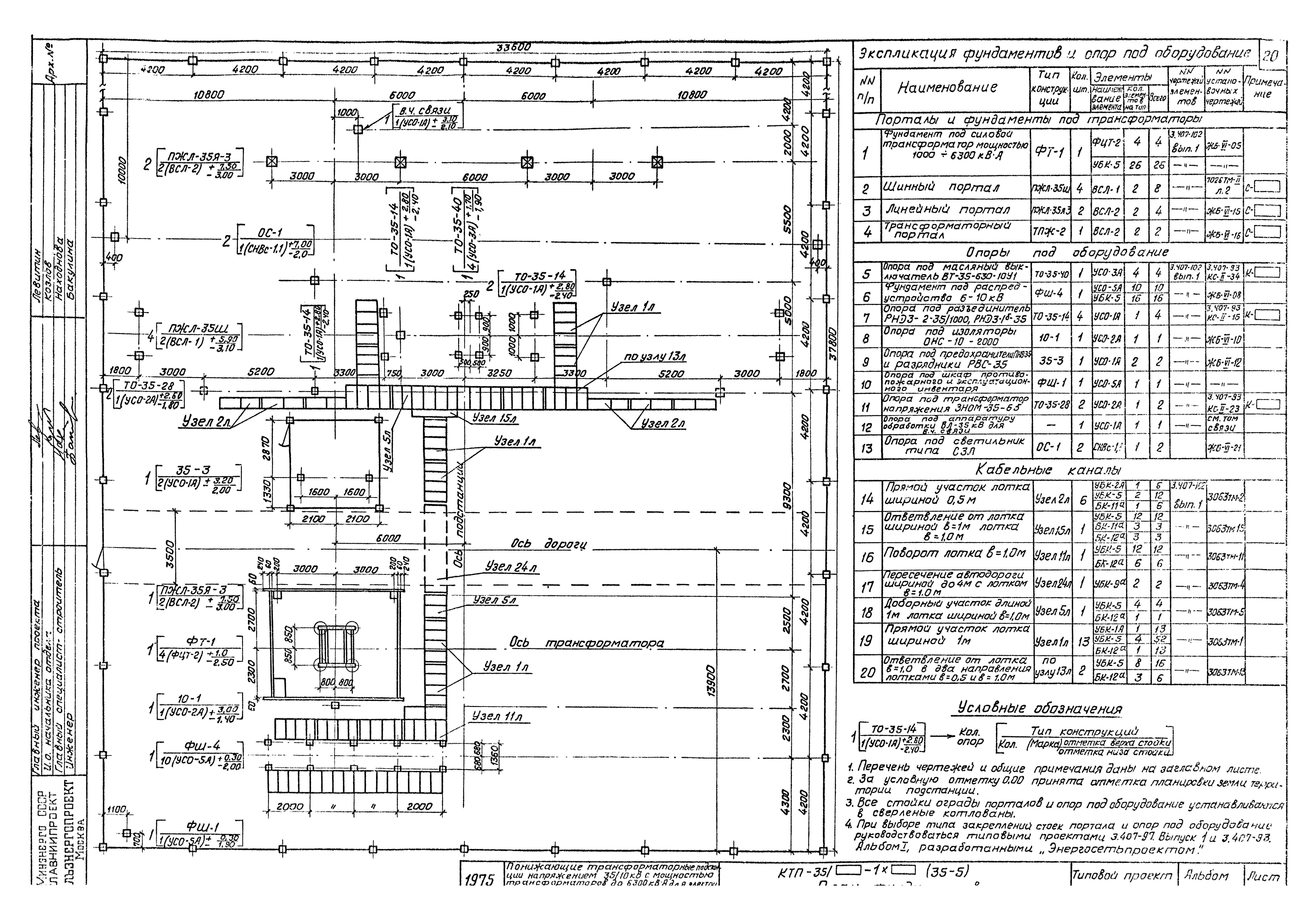
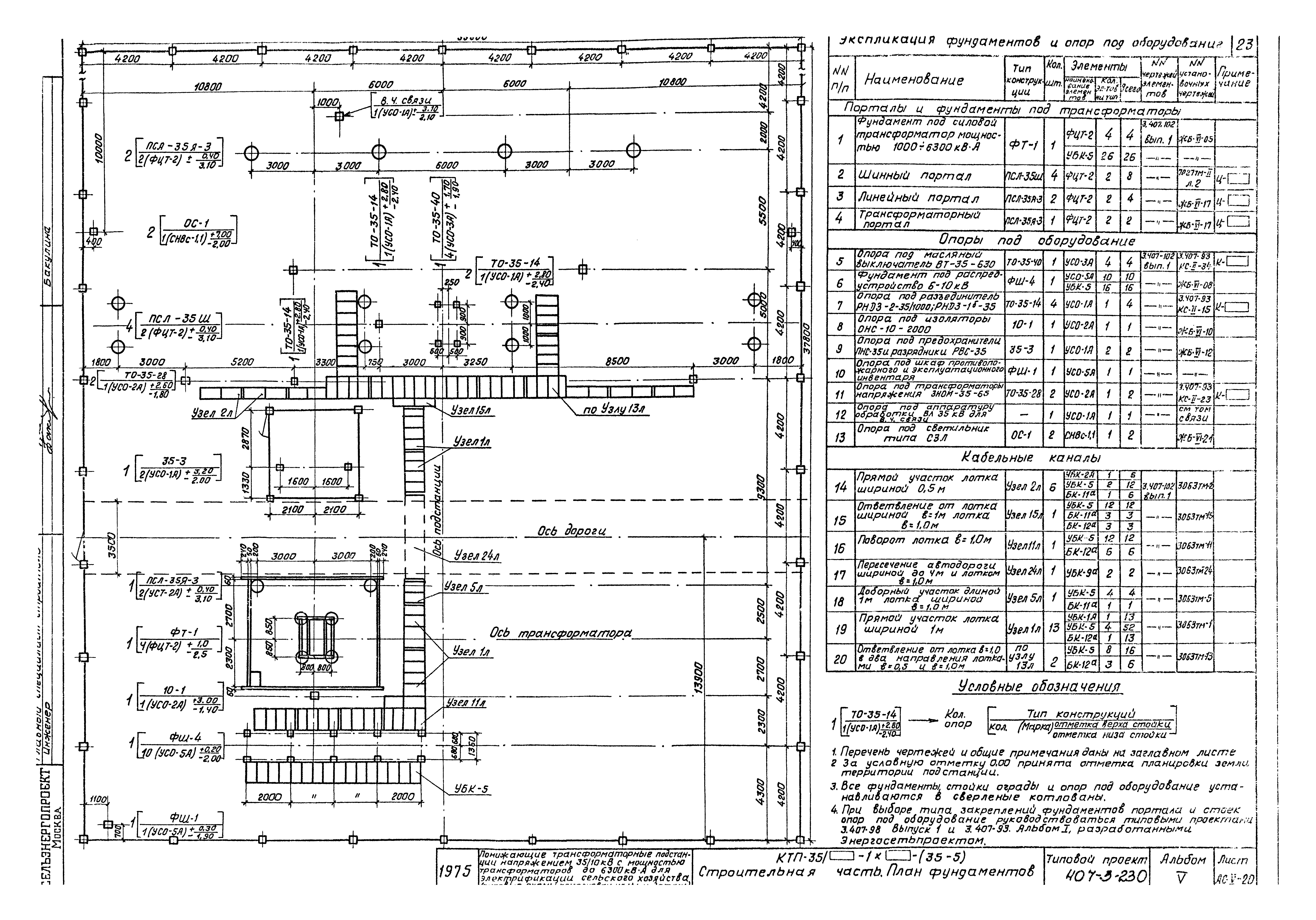
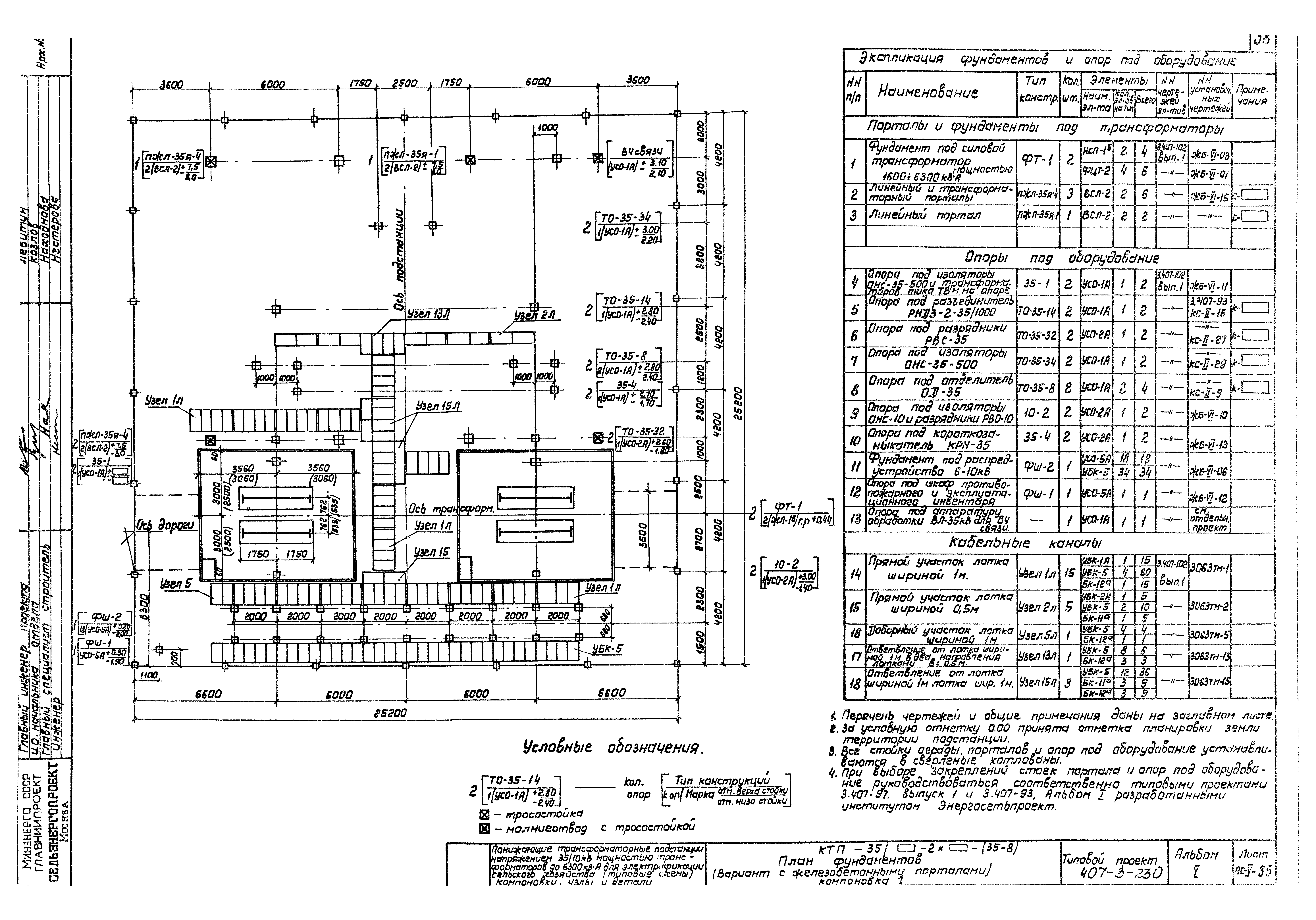
Скачать Типовой проект 407-3-230 Альбом V. Строительная частьДата актуализации: 01.01.2021
|
| Обозначение: | Типовой проект 407-3-230 |
| Обозначение англ: | 407-3-230 |
| Статус: | действует |
| Название рус.: | Альбом V. Строительная часть |
| Дата добавления в базу: | 01.10.2014 |
| Дата актуализации: | 01.01.2021 |
| Дата введения: | 14.11.1975 |
| Разработан: | Сельэнергопроект |
| Утверждён: | 22.12.1967 Госстрой СССР (7/4-245) |



























































































