Скачать Унифицированные деревянные опоры линий 35 - 220 кВ. Каталог опор

Дата актуализации: 01.01.2021

Унифицированные деревянные опоры линий 35 - 220 кВ. Каталог опор

Статус:не установлен срок действия
Название рус.:Унифицированные деревянные опоры линий 35 - 220 кВ. Каталог опор
Дата добавления в базу:01.10.2014
Дата актуализации:01.01.2021
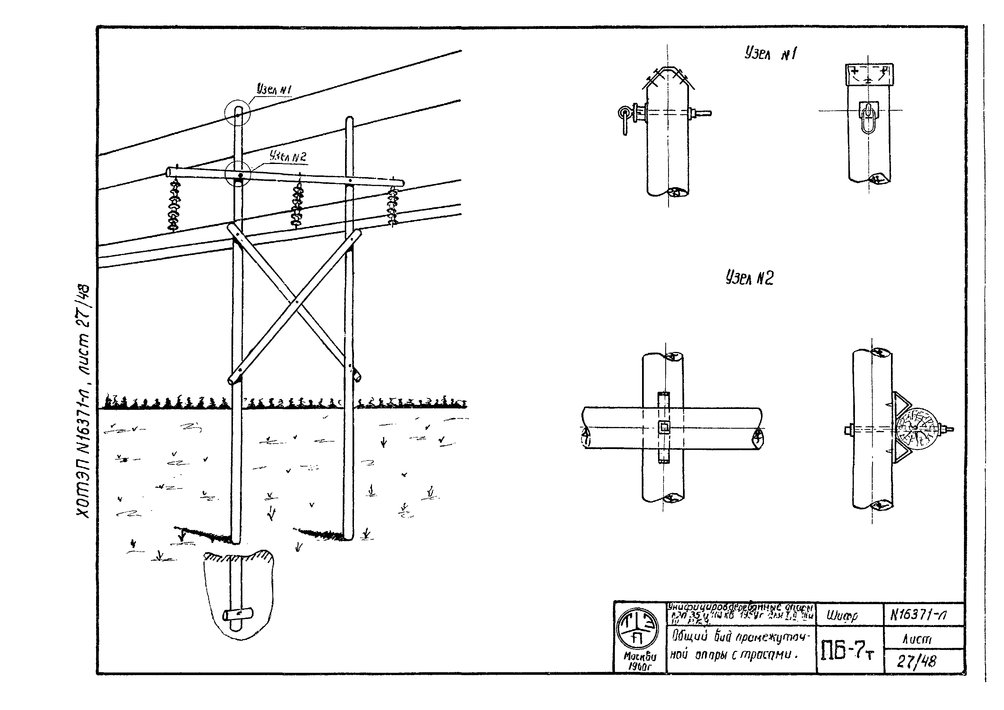
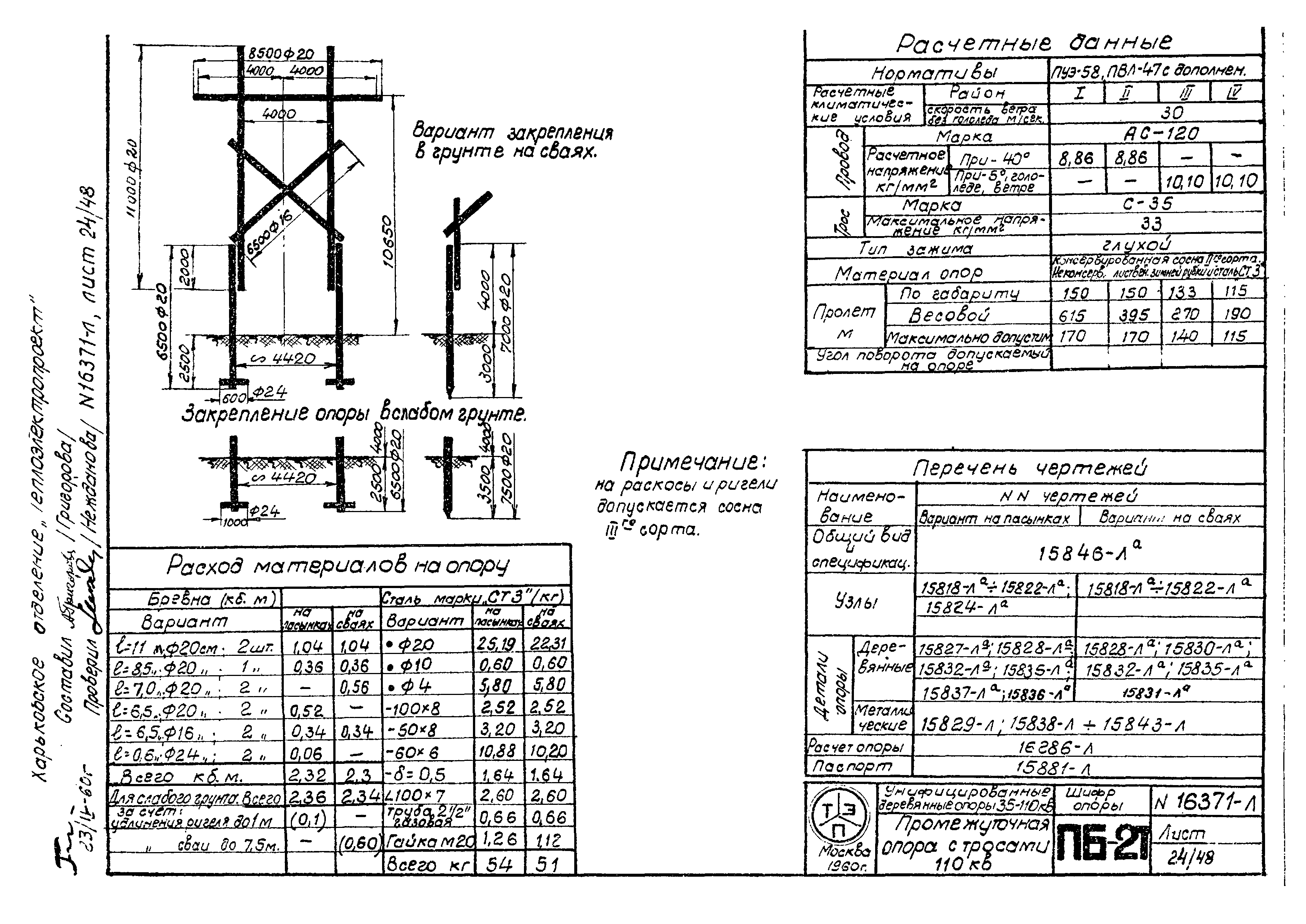
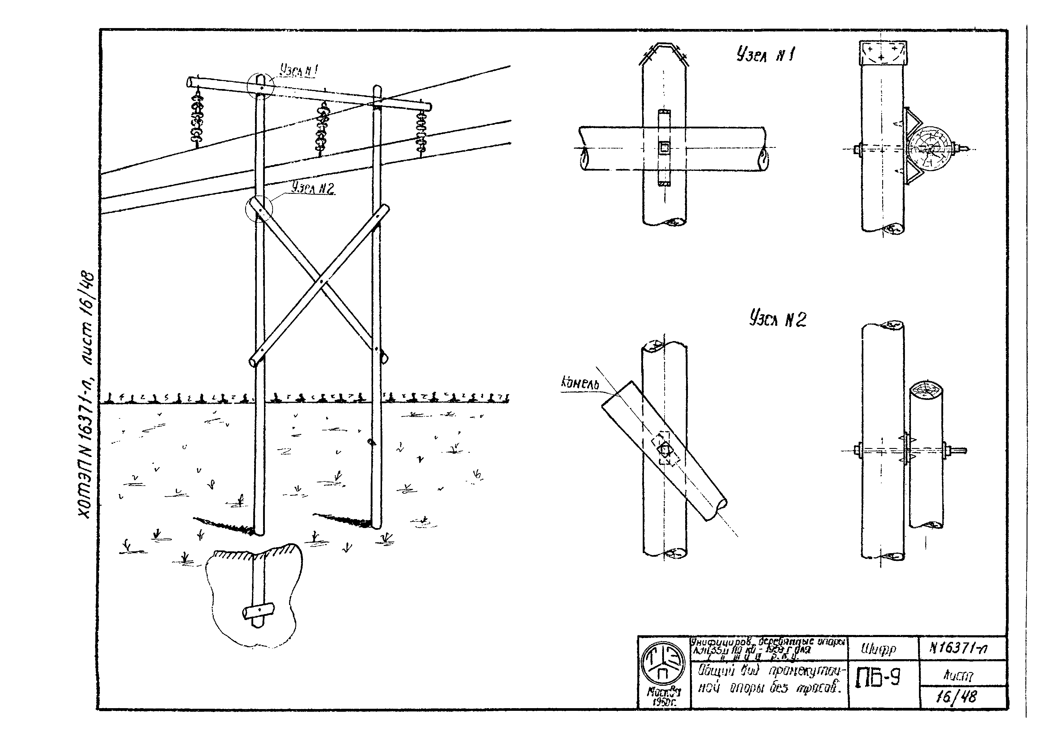
Область применения:В каталоге приведены конструкции унифицированных деревянных опор для линий электропередачи 35 - 110 и 220 кВ, разработанные институтом "Теплоэлектропроект" в 1959 - 1960 годах.
Оглавление:Введение
Напряжение 35 -110 кВ
   Промежуточные опоры без тросов
   Промежуточные опоры с тросами
   Угловые анкерные опоры без тросов
   Угловые анкерные опоры с тросами
Напряжение 220 кВ
   Промежуточные опоры без тросов
   Угловые анкерные опоры без тросов
Разработан: Харьковское отделение Теплоэлектропроекта
Утверждён: Теплоэлектропроект (Teploelektroproject )