Скачать Типовой проект 902-2-431.87 Альбом II. Технологические решения. Отопление и вентиляция. Внутренний водопровод и канализация. Архитектурные решения. Конструкции железобетонные и металлическиеДата актуализации: 01.01.2021
|
| Обозначение: | Типовой проект 902-2-431.87 |
| Обозначение англ: | 902-2-431.87 |
| Статус: | не определен законодательством |
| Название рус.: | Альбом II. Технологические решения. Отопление и вентиляция. Внутренний водопровод и канализация. Архитектурные решения. Конструкции железобетонные и металлические |
| Дата добавления в базу: | 01.10.2014 |
| Дата актуализации: | 01.01.2021 |
| Дата введения: | 28.05.1987 |
| Дата окончания срока действия: | 30.06.2003 |
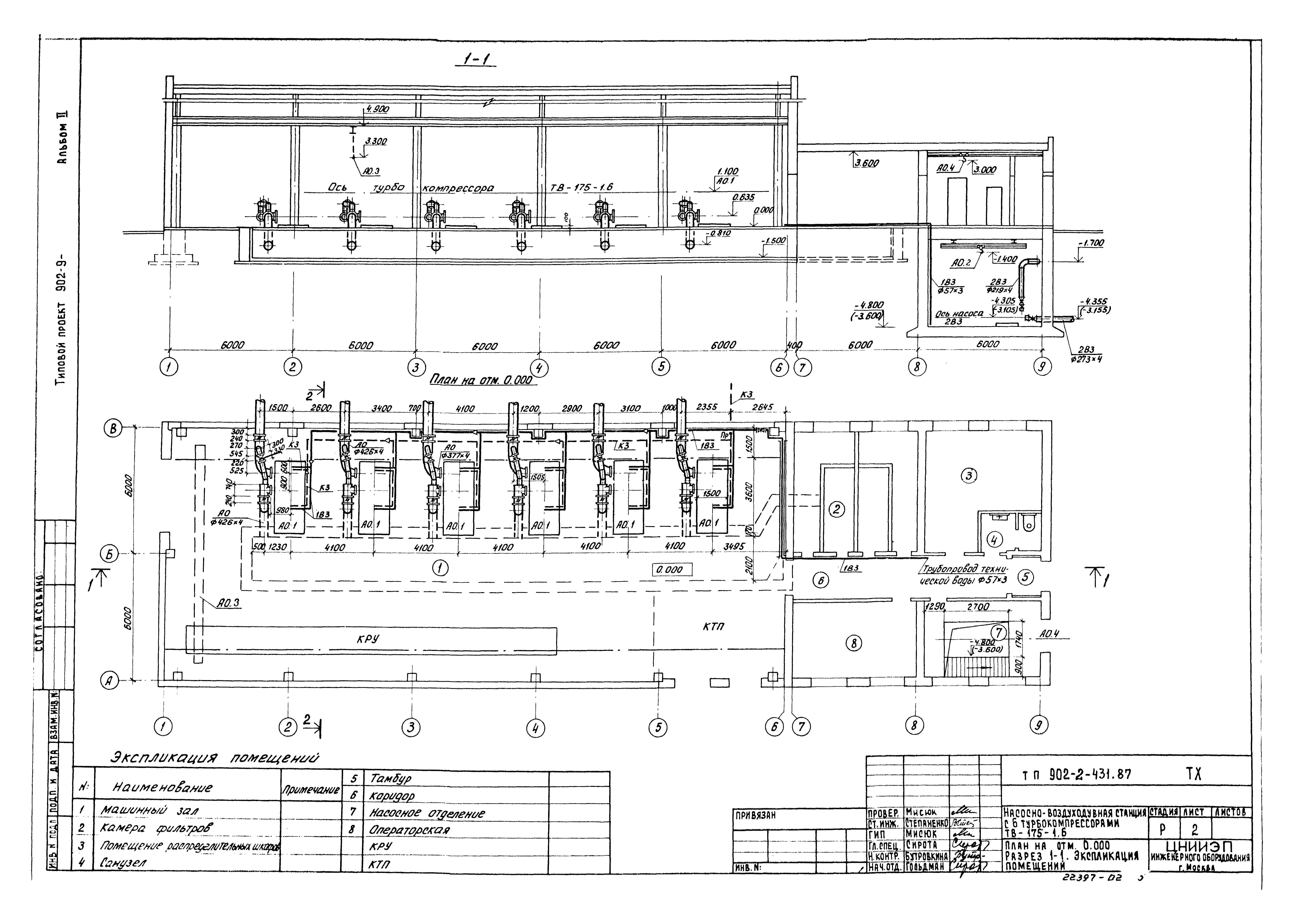
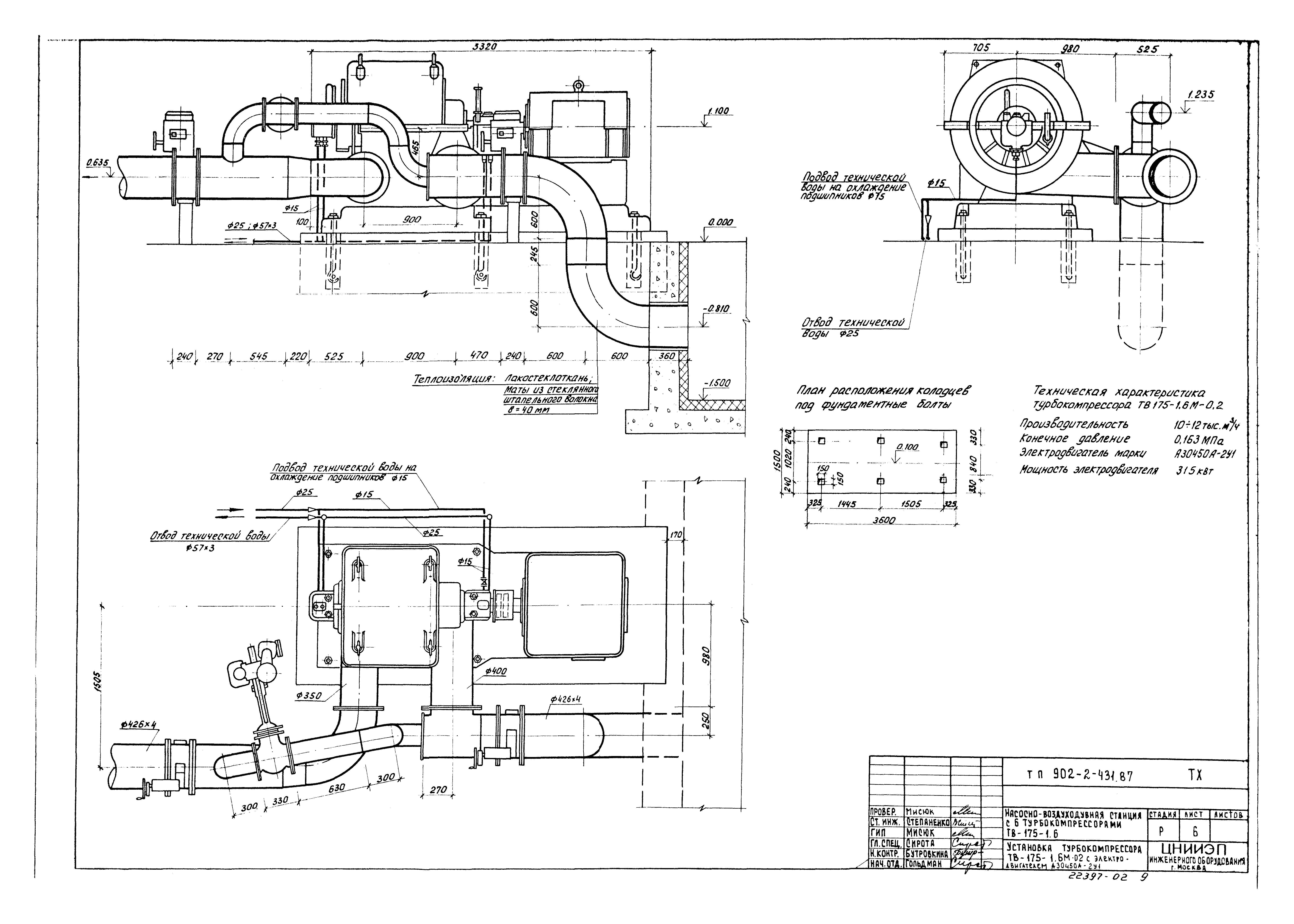
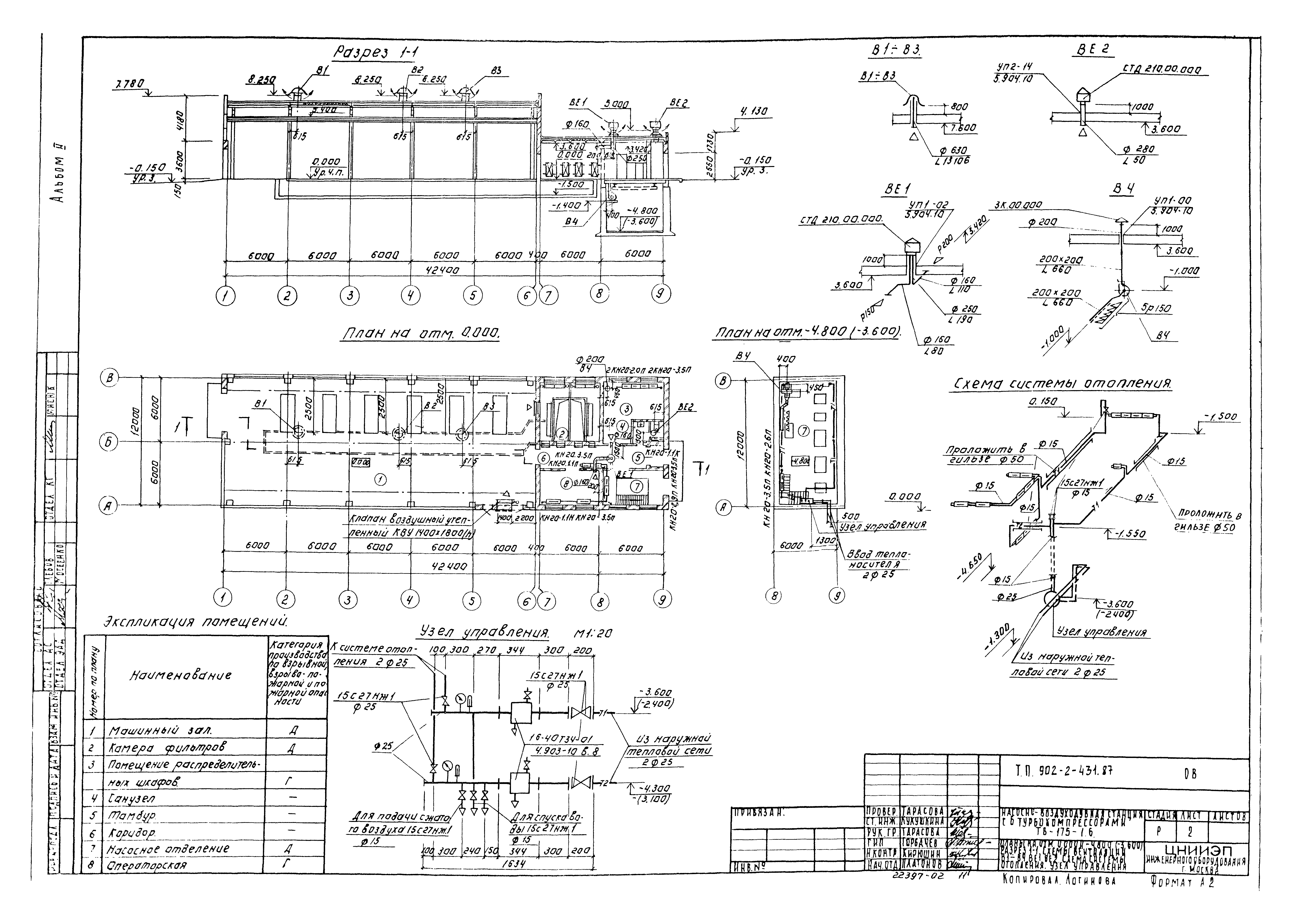
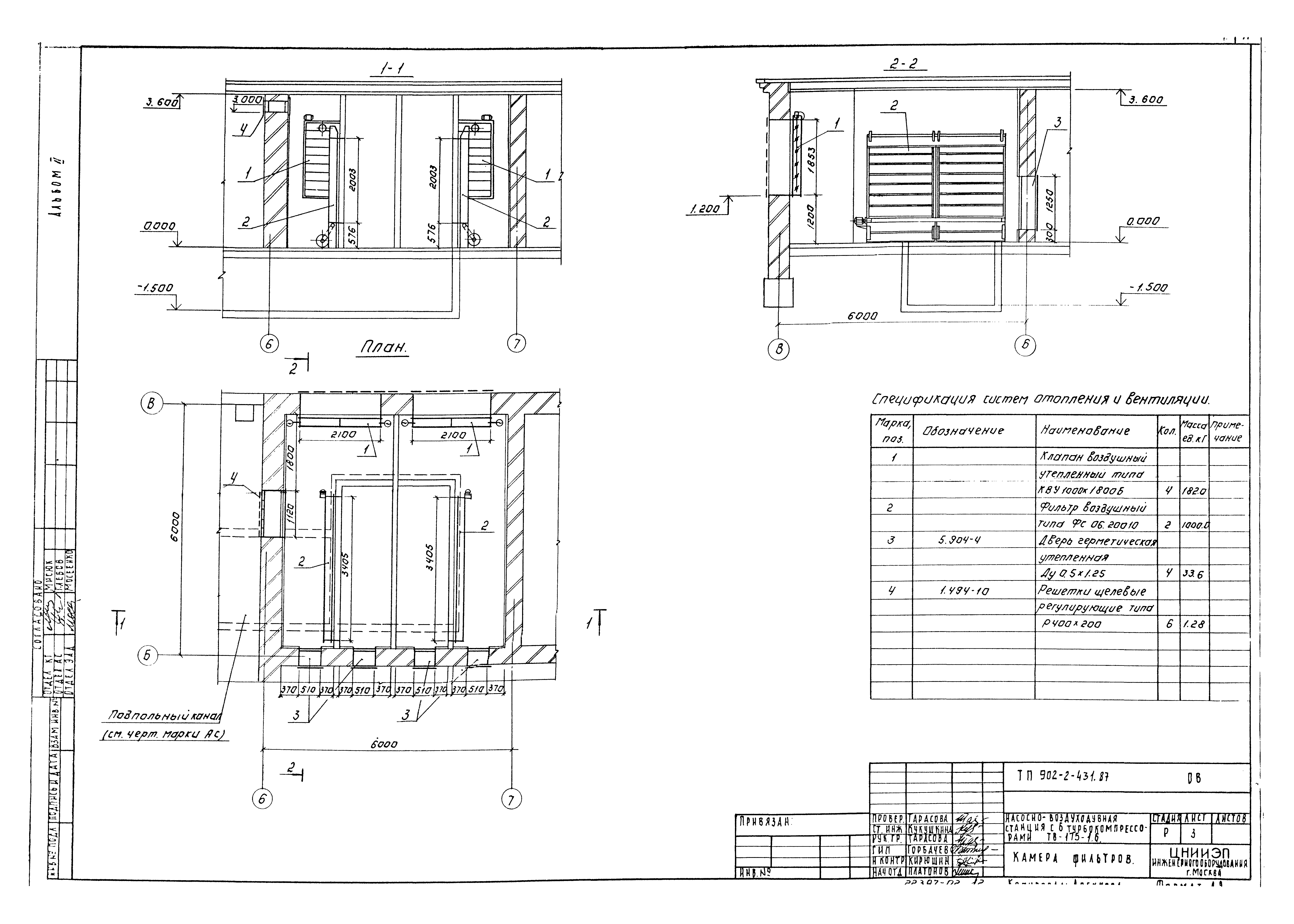
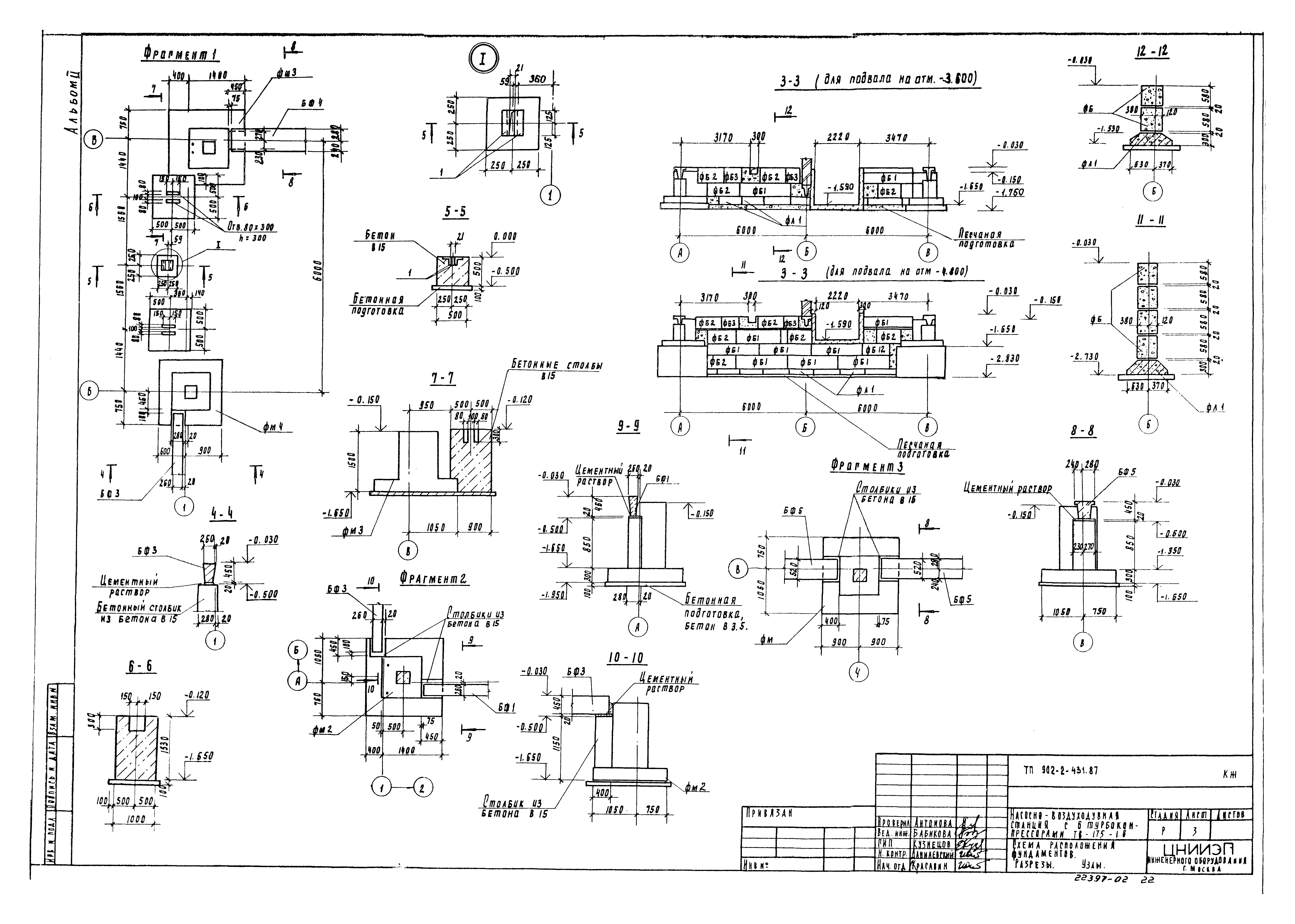
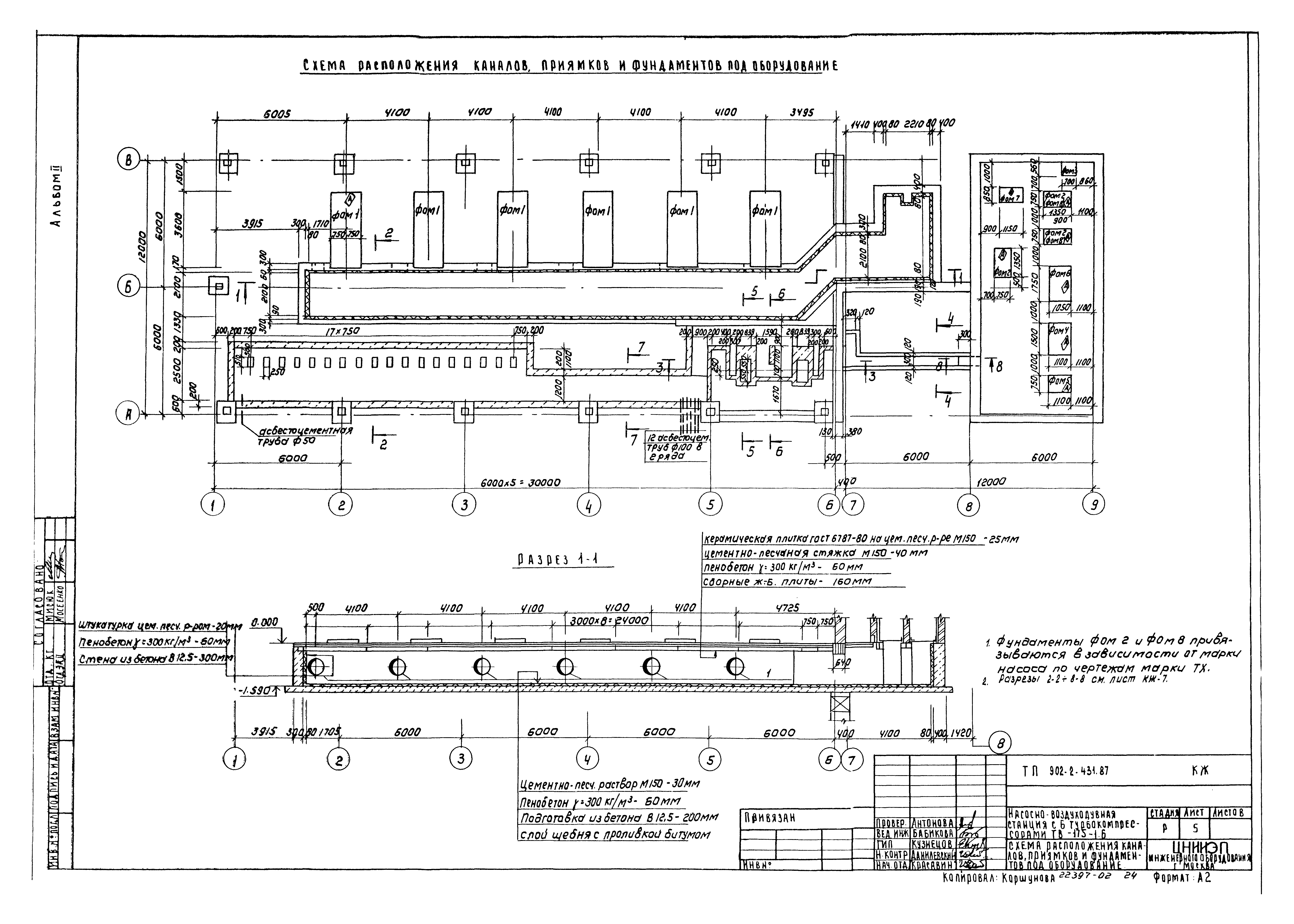
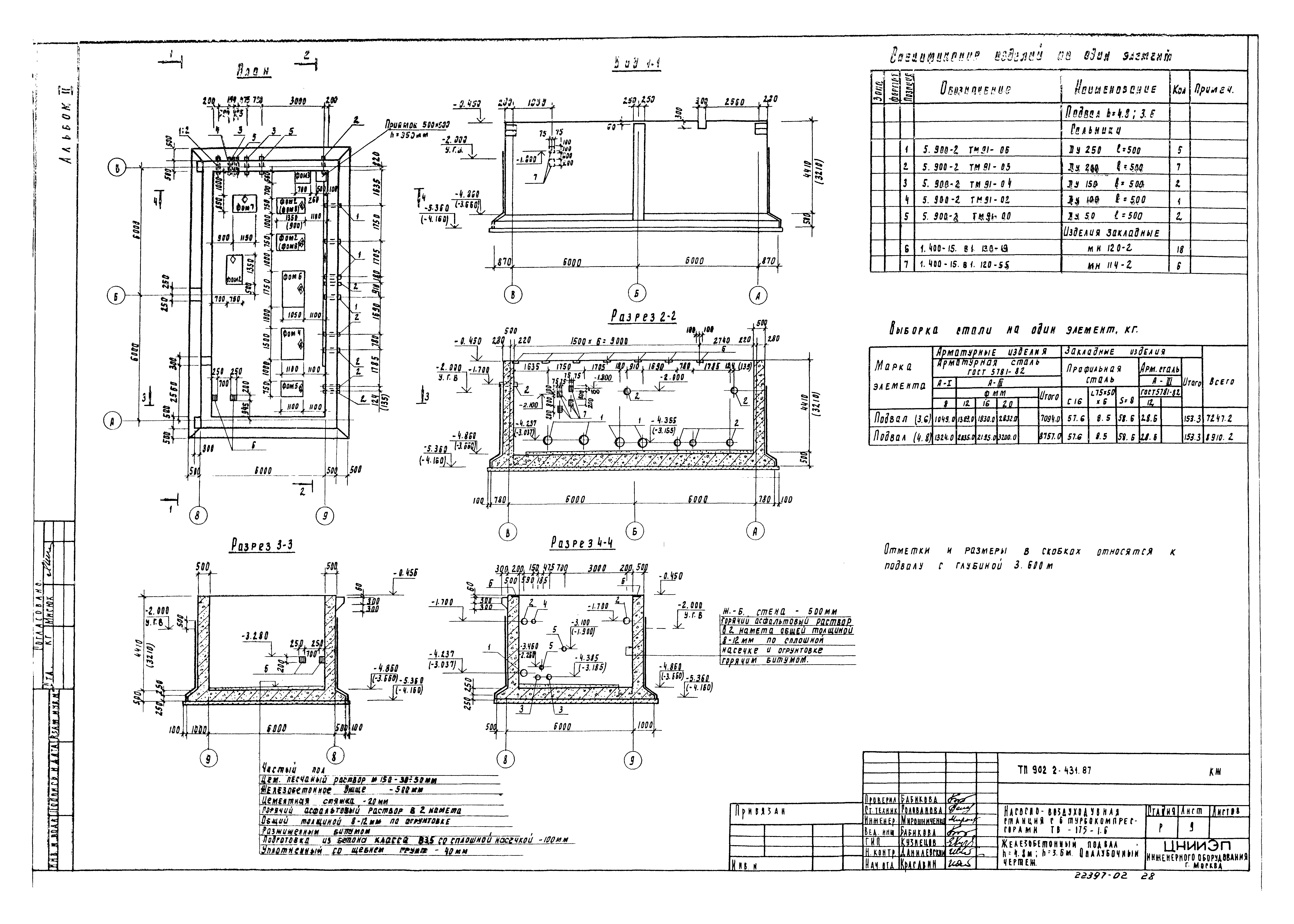
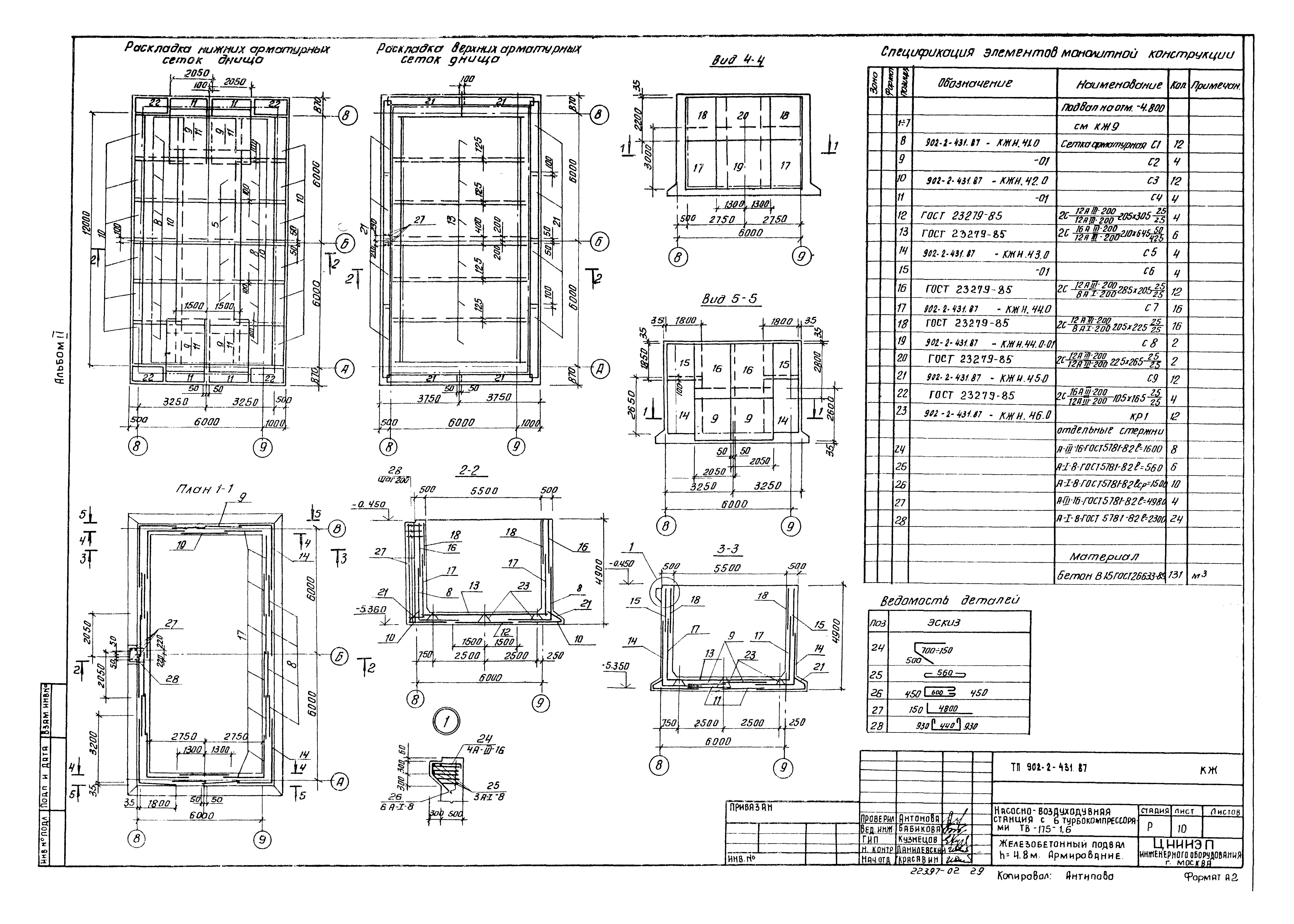
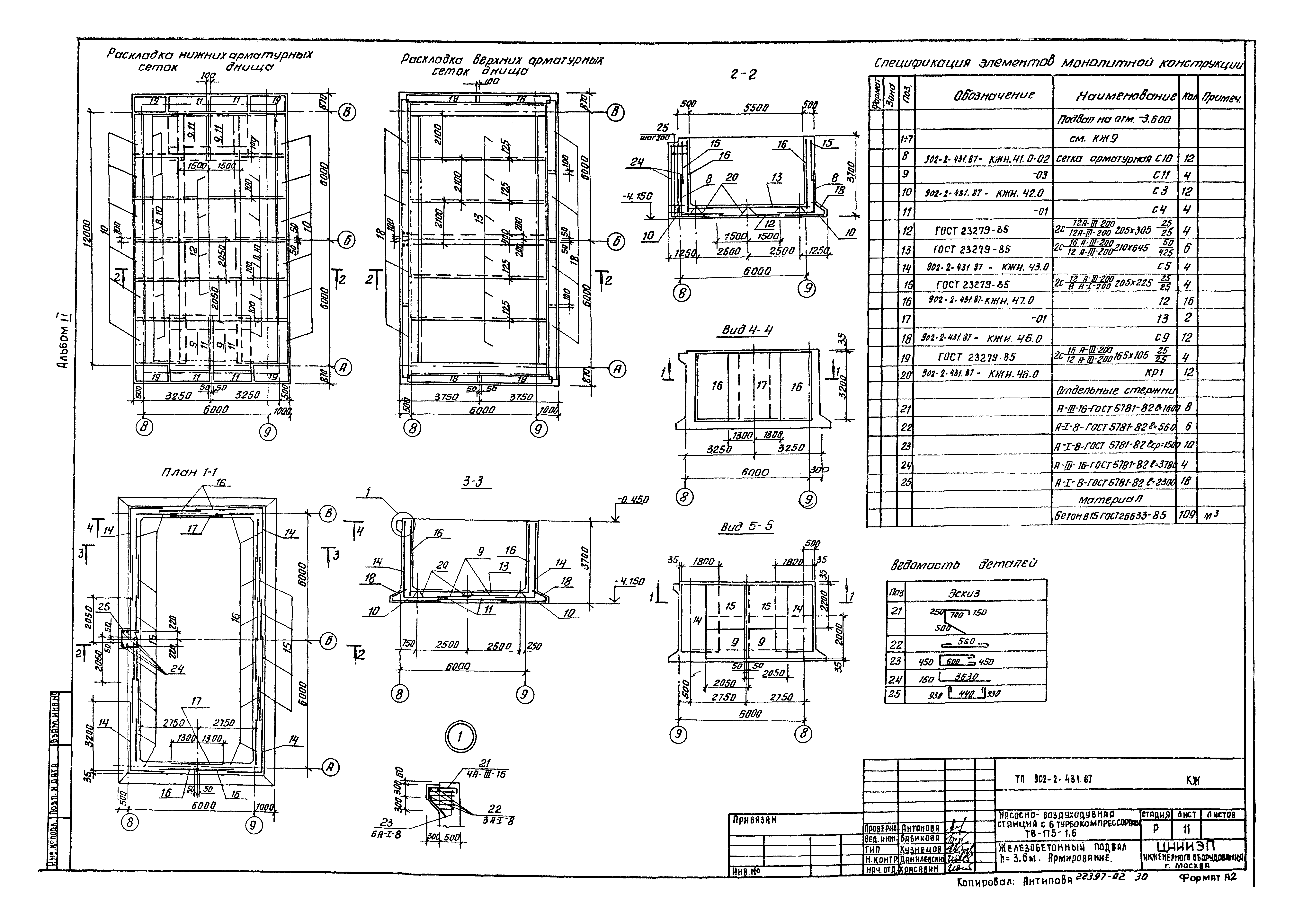
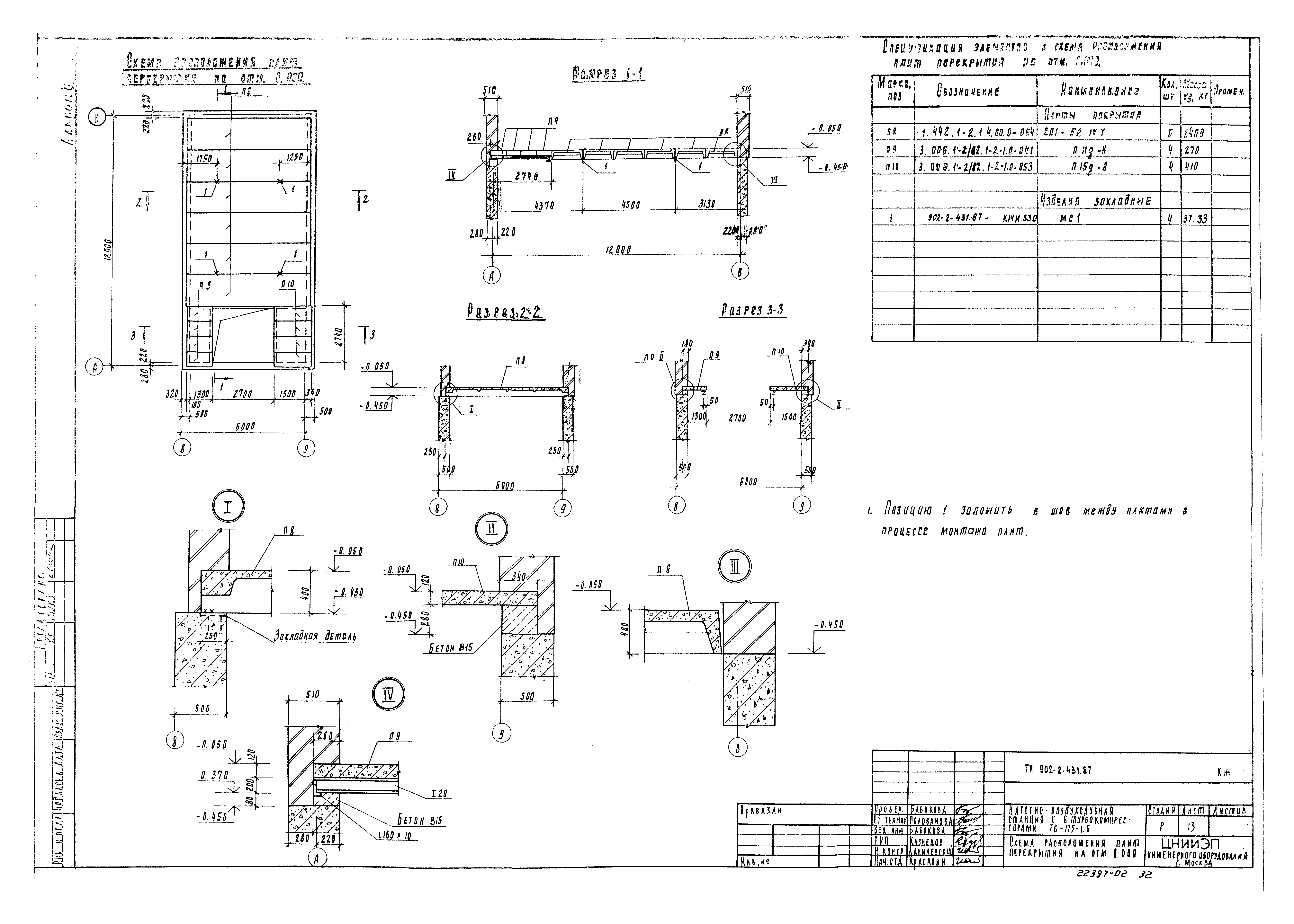
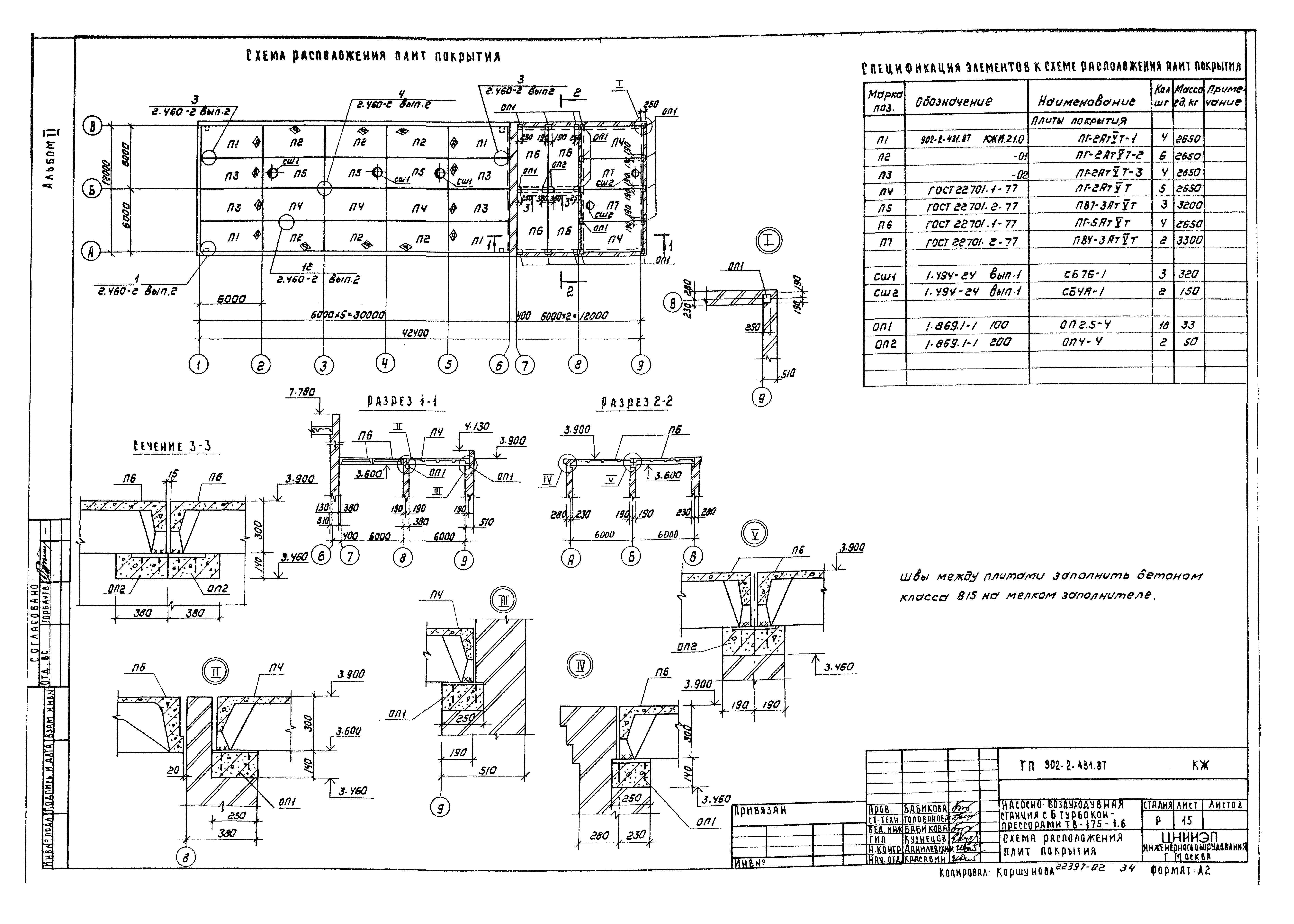
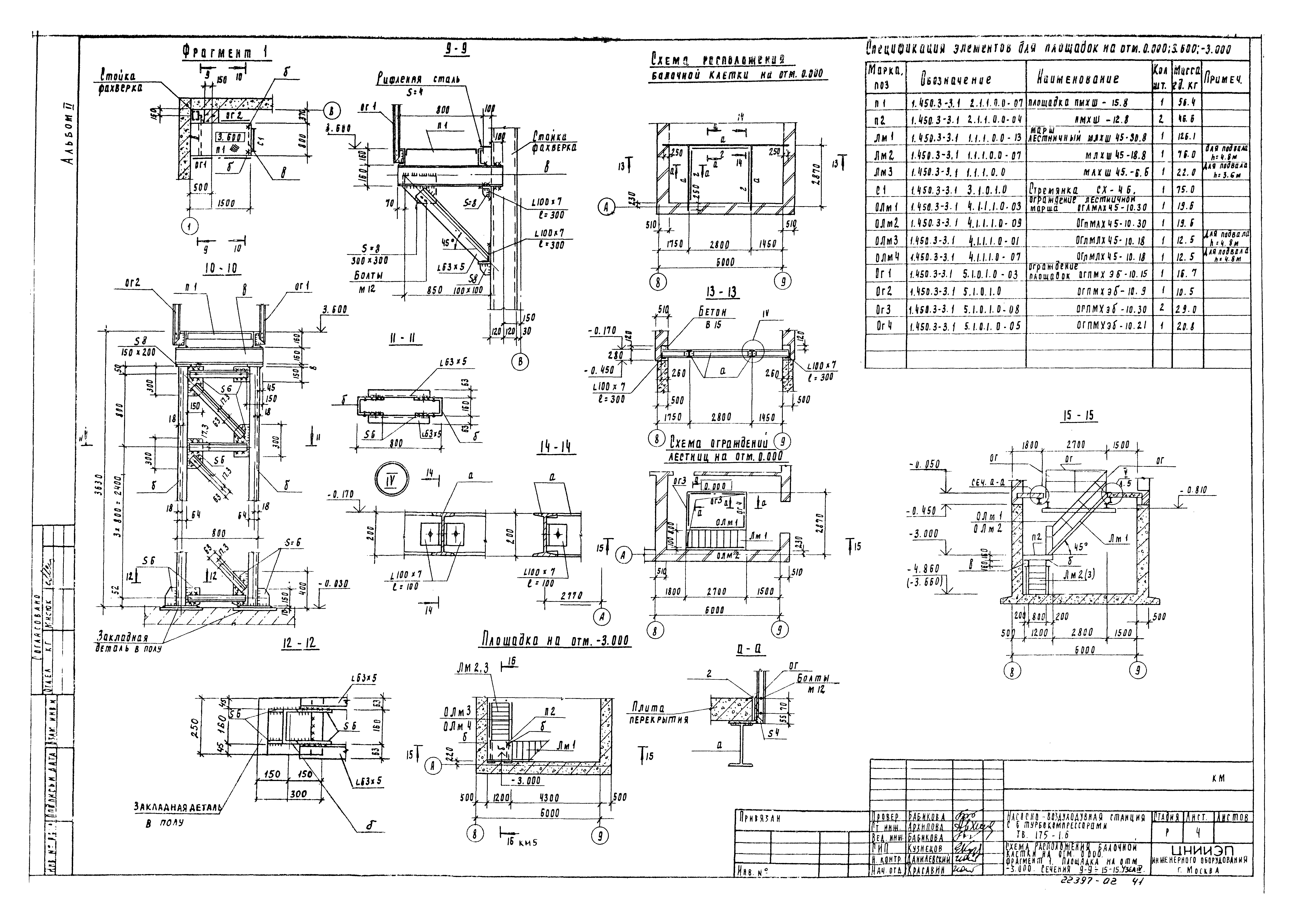
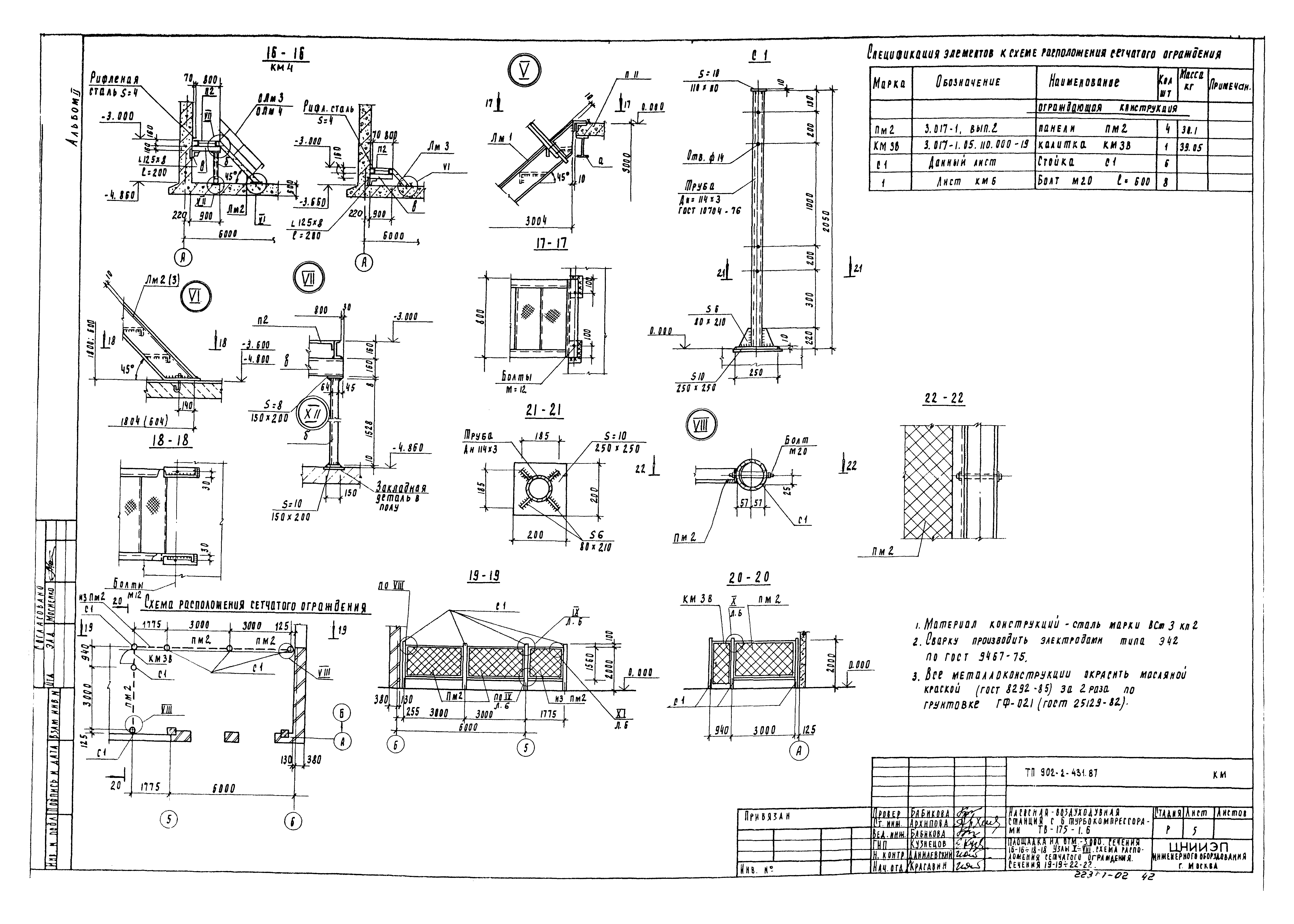
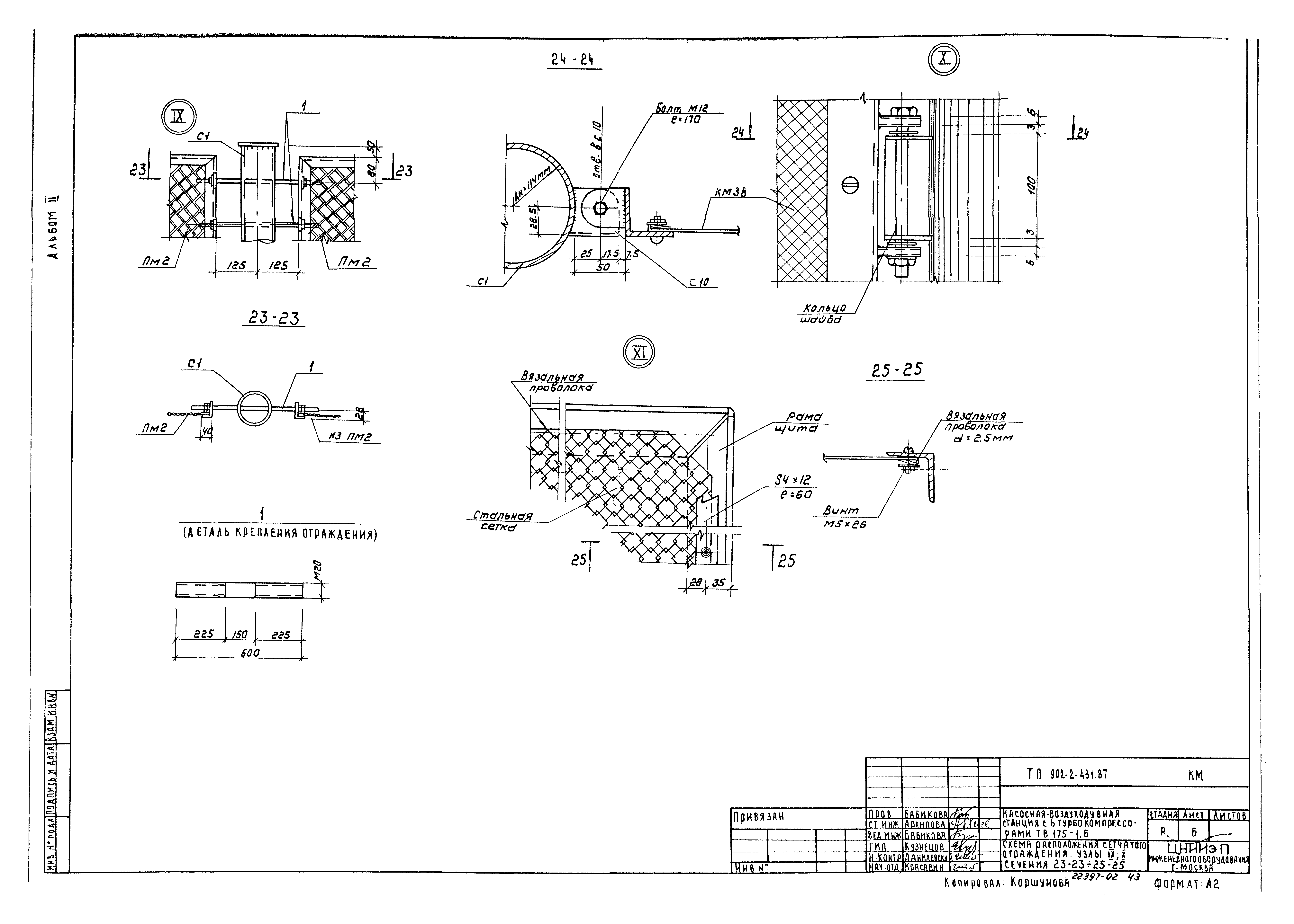
| Оглавление: | Содержание альбома Технологические решения Общие данные План на отм. 0.000. Разрез 1-1. Экспликация помещений Насосное отделение на отм. - 4.800 (- 3.600). План. Разрезы 3-3, 4-4 Разрезы 2-2, 5-5, 6-6, 7-7 Схемы технологических трубопроводов 1В3, К3, П1, И3, И4, 2В3, 1К1, И20 Установка турбокомпрессора ТВ-175-1,6М-0,2 с электродвигателем А30450А-2У1 Отопление и вентиляция Общие данные Планы на отм. 0.000 и - 4.800 (- 3.600). Разрез 1-1. Схема вентиляции В1 - В4; ВЕ1 - ВЕ2. Схема системы отопления. Узел управления Камера фильтров Внутренний водопровод и канализация Общие данные. Внутренний водопровод и канализация. Планы на отм. 0.000; - 4.800 (- 3.600). Схемы В1, 2К1 Архитектурно-строительные решения Общие данные Планы на отм. 0.000. Разрез 1-1 Фасады В - А; 1 - 9; А - В; 9 - 1. Разрезы 2-2, 3-3 Фрагмент плана. План на отм. - 4.800 (- 3.600). Детали 1, 2. Спецификация элементов заполнения проемов Ведомости проемов ворот и дверей, перемычек, отделки помещений. Спецификация перемычек Планы полов и кровли Конструкции железобетонные Общие данные Схема расположения фундаментов. Разрезы Схема расположения фундаментов. Узлы. Разрезы Фундаменты монолитные Фм1 - Фм5 Схемы расположения каналов, приямков и фундаментов под оборудования Схемы расположения плит перекрытия, каналов Разрезы. Узлы Балки БМ1 и БМ2. Плита МП1. Опалубка. Армирование Железобетонный подвал h = 4,8; h = 3,6 м. Опалубка Железобетонный подвал h = 4,8. Армирование Железобетонный подвал h = 3,6. Армирование Фундаменты под оборудование ФОм1 - ФОм8 Схема расположения плит перекрытия на отм. 0.000 Схема расположения колонн, балок покрытия. Разрезы Схема расположения плит покрытия Схема расположения стеновых панелей Камера фильтров. Схема расположения закладных деталей Схема расположения элементов резервуара бытовой канализации Конструкции металлические Общие данные. Ведомость металлоконструкций по видам профилей Общие данные. Техническая спецификация металла Схема расположения подвесных путей. Узлы I - III. Сечение 1-1, 8-8 Схема расположения балочной клетки на отм. 0.000. Фрагмент 1. Площадка на отм. - 3.000. Сечения 9-9, 15-15. Узел IV Площадка на отм. - 3.000. Сечение 16-16 - 18-18. Узел V - VIII. Схема расположения сетчатого ограждения. Сечение 19-19 - 22-22 Схема расположения сетчатого ограждения. Узлы IX, X. Сечение 23-23 - 25-25 Организация строительства График производства работ Схема стройгенплана |
| Разработан: | ЦНИИЭП инженерного оборудования |
| Утверждён: | 28.05.1987 Госгражданстрой (Gosgrazhdanstroy 166) |
| Издан: | ЦИТП Госстроя СССР (CITP, Gosstroy (USSR) 1988 г. ) |
| Заменяет собой: |
|












































