Скачать Типовой проект 902-5-8.84 Альбом II. Технологическая часть. Архитектурно-строительные решения. Конструкции железобетонные и металлические. Строительные изделия. Электротехническая часть. Спецификации оборудованияДата актуализации: 01.01.2021
|
| Обозначение: | Типовой проект 902-5-8.84 |
| Обозначение англ: | 902-5-8.84 |
| Статус: | не определен законодательством |
| Название рус.: | Альбом II. Технологическая часть. Архитектурно-строительные решения. Конструкции железобетонные и металлические. Строительные изделия. Электротехническая часть. Спецификации оборудования |
| Дата добавления в базу: | 01.10.2014 |
| Дата актуализации: | 01.01.2021 |
| Дата введения: | 04.06.1984 |
| Дата окончания срока действия: | 30.06.2003 |
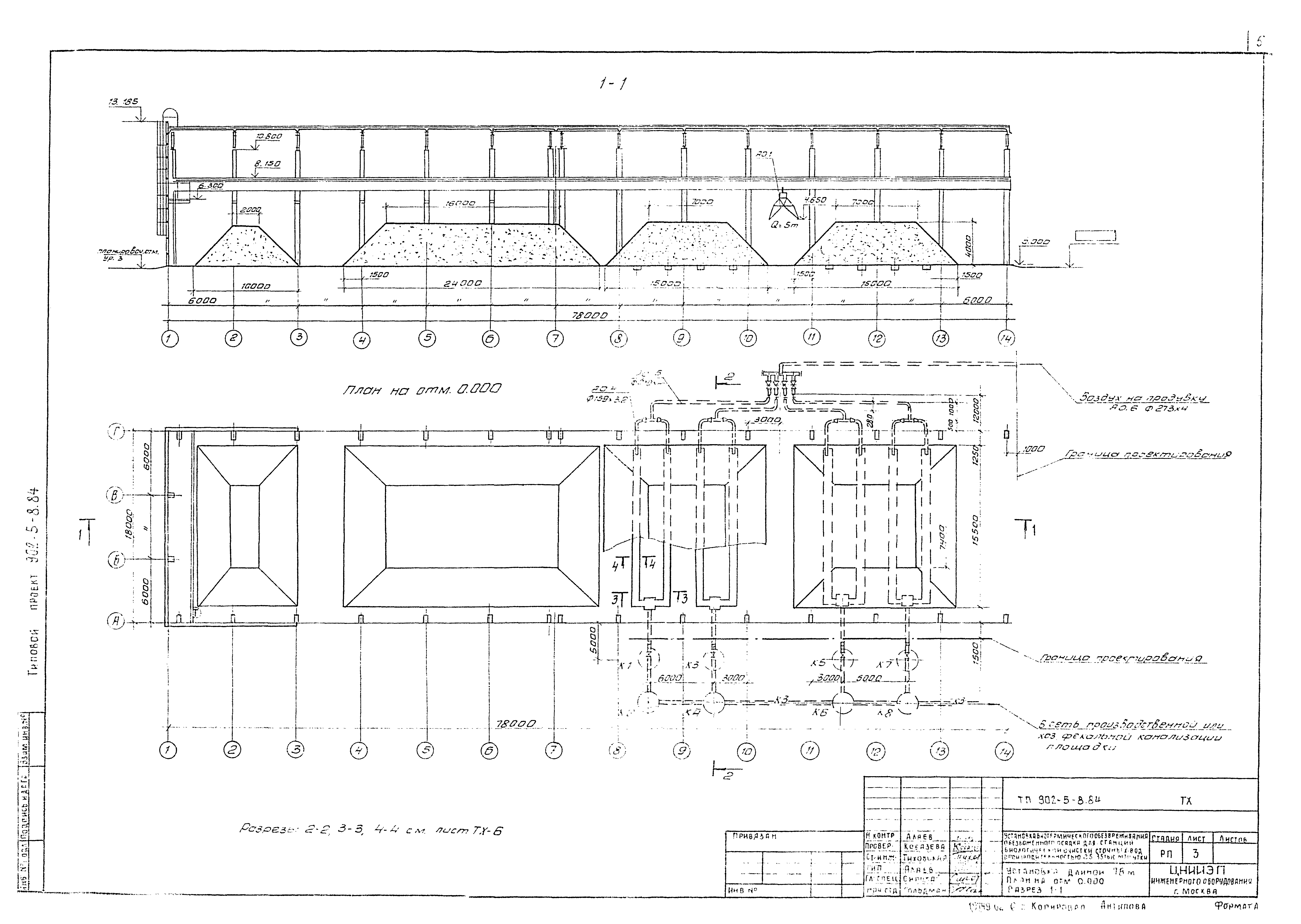
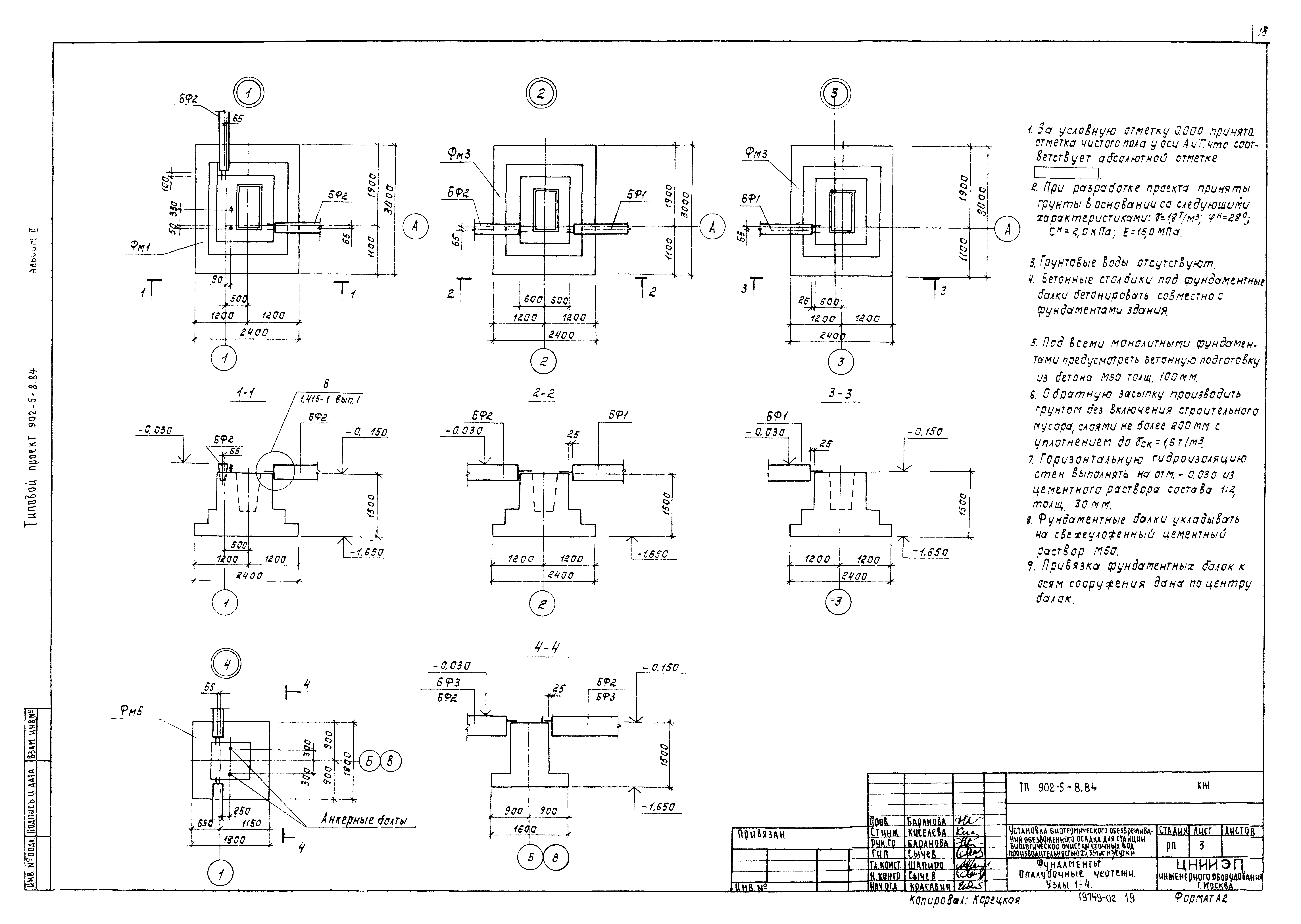
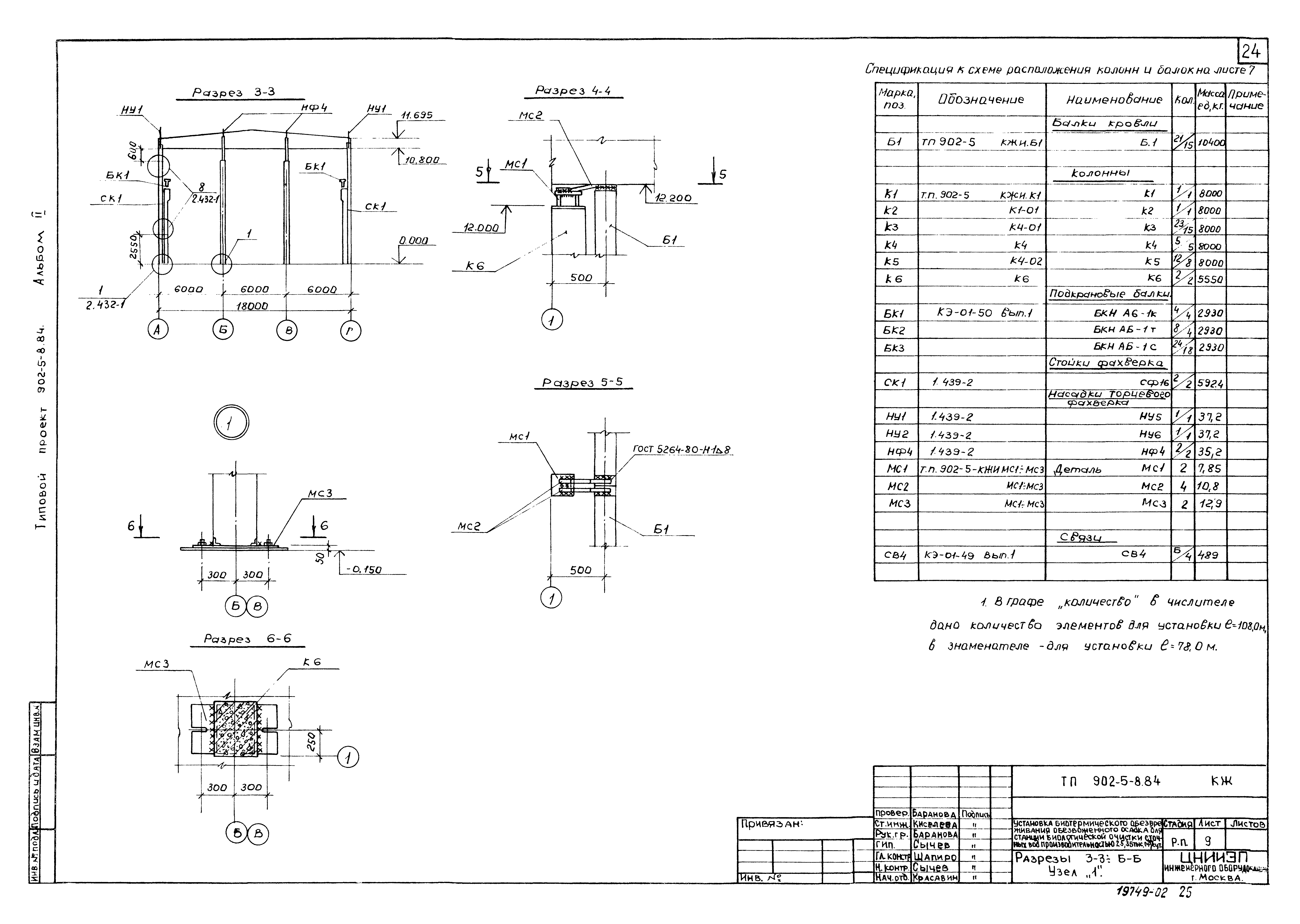
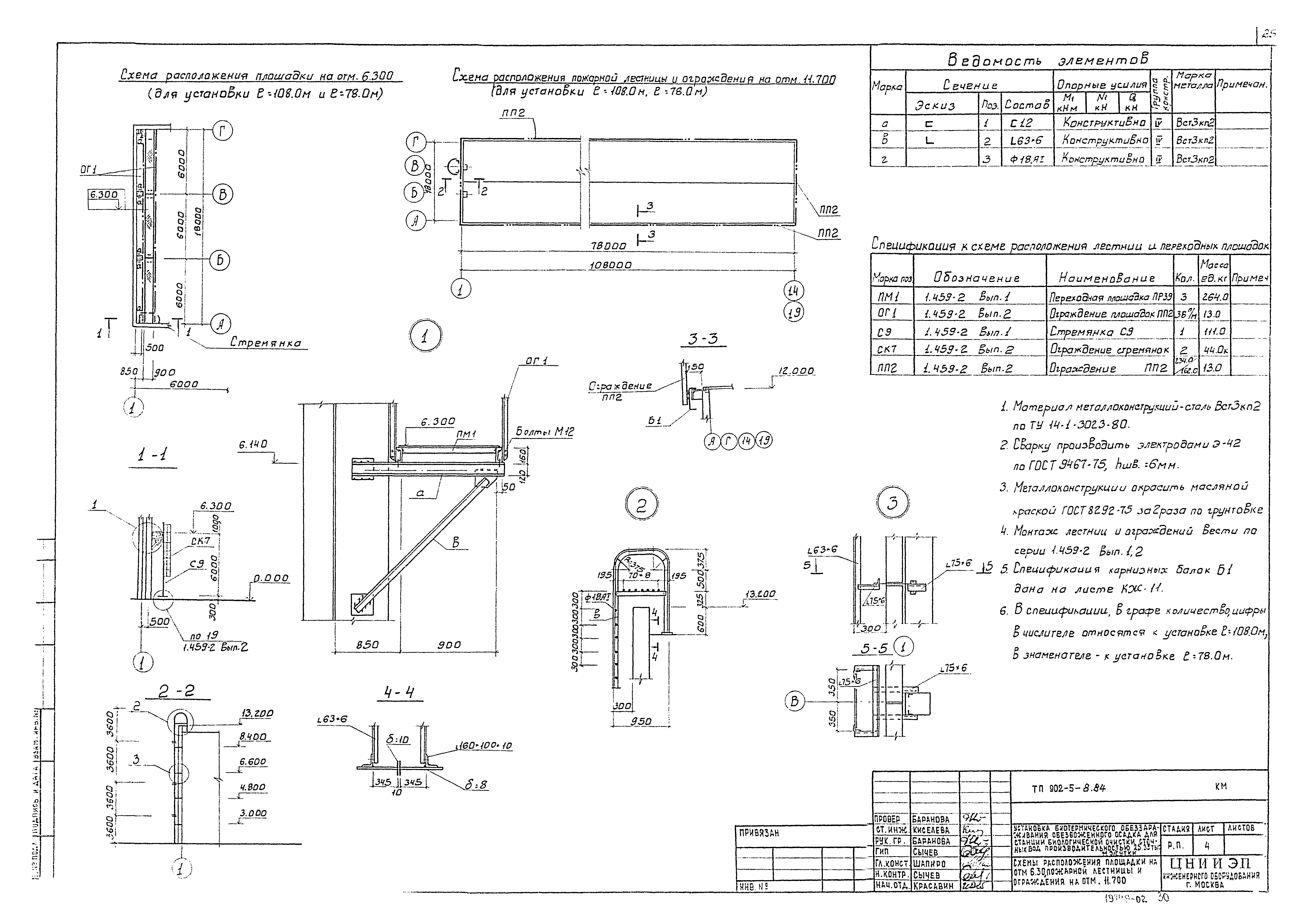
| Оглавление: | Содержание альбома Технологическая часть Общие данные Технологическая схема Установка длиной 78 м. План на отм. 0.000. Разрез 1-1 Установка длиной 108 м. План на отм. 0.000. Разрез 1-1 Разрезы 2-2, 3-3, 4-4. Схема К3. Спецификация К3 Схемы АО. Спецификация АО Установка длиной 78 м. Спецификация оборудования к основному комплекту рабочих чертежей марки ТХ Установка длиной 108 м. Спецификация оборудования к основному комплекту рабочих чертежей марки ТХ Архитектурно-строительная часть Общие данные Планы Фасады 1 - 19; 19 - 1; Г - А; А - Г Фасады 1 - 14; 14 - 1. Разрезы 3-3, 4-4 Разрезы 1-1, 2-2 Конструкции железобетонные Общие данные Схема расположения фундаментов и фундаментных балок Фундаменты. Опалубочный чертежи. Узлы 1 - 4 Фундаменты Фм1 - Фм3. Опалубочный чертежи. Армирование Фундаменты Фм4 - Фм5. Опалубочный чертежи. Армирование Схема расположения каналов и приямков Схема расположения колонн, балок кровли, подкрановых балок Разрезы 1-1 - 2-2 Разрезы 3-3 - 6-6. Узел 1 Схема расположения плит покрытия Схема расположения стеновых панелей Конструкции металлические Общие данные Техническая спецификация металла на типовые изделия. Выборка стали по видам профилей Схема расположения площадки на отм. 6.300, лестницы и ограждения на отм. 11.700 Схема расположения подкрановых рельсов Строительная часть. Изделия Колонны К1, К2, К6 Колонны К3, К4, К5, колонна К4 Плиты покрытия ПГ1 - ПГ3. Балка стропильная Б1 Изделия соединительные МС1 - МС3. Щит Щ1 Электротехническая часть Общие данные. Схема электрическая принципиальная питающей сети 380/220 В. Размещение электрооборудования и прокладка кабеля. Кабельный журнал Установка длиной 78 м. Прокладка троллейного шинопровода для крана К. План на отм. 0.000; 8.150 Установка длиной 108 м. Прокладка троллейного шинопровода для крана К. План на отм. 0.000; 8.150 Спецификация оборудования Общие данные Электрическое освещение. Установки длиной 78 м. План Электрическое освещение. Установки длиной 108 м Спецификация оборудования установки длиной 78 м Спецификация оборудования установки длиной 108 м |
| Разработан: | ЦНИИЭП инженерного оборудования |
| Утверждён: | 22.08.1983 Госгражданстрой (Gosgrazhdanstroy 245) |


















































