Скачать Типовой проект 902-9-31.85 Альбом II. Технологические, архитектурно-строительные, санитарно-технические решения. Внутренний водопровод и канализация. Нестандартизированное оборудованиеДата актуализации: 01.01.2021
|
| Обозначение: | Типовой проект 902-9-31.85 |
| Обозначение англ: | 902-9-31.85 |
| Статус: | не определен законодательством |
| Название рус.: | Альбом II. Технологические, архитектурно-строительные, санитарно-технические решения. Внутренний водопровод и канализация. Нестандартизированное оборудование |
| Дата добавления в базу: | 01.10.2014 |
| Дата актуализации: | 01.01.2021 |
| Дата введения: | 20.03.1985 |
| Дата окончания срока действия: | 30.06.2003 |
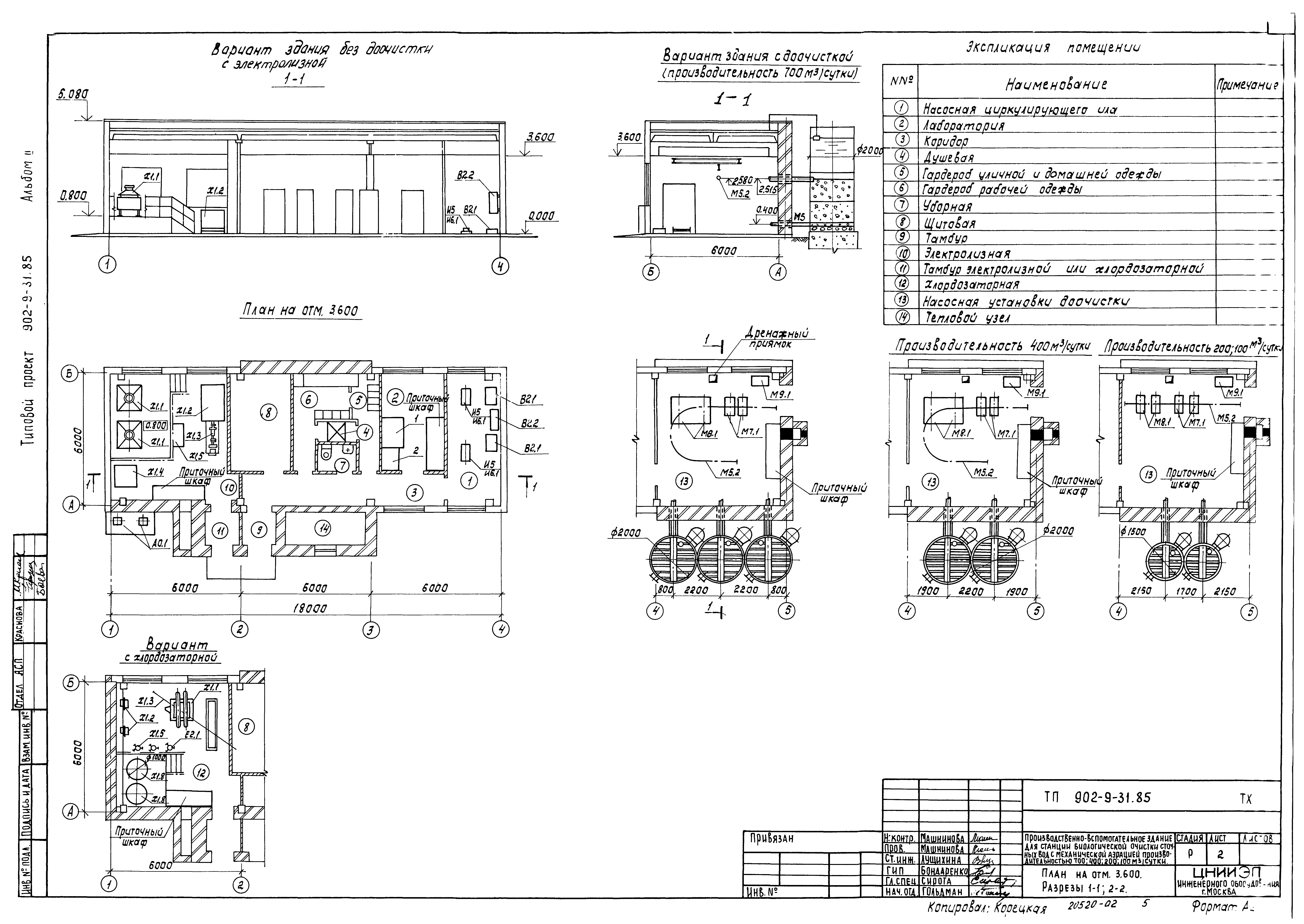
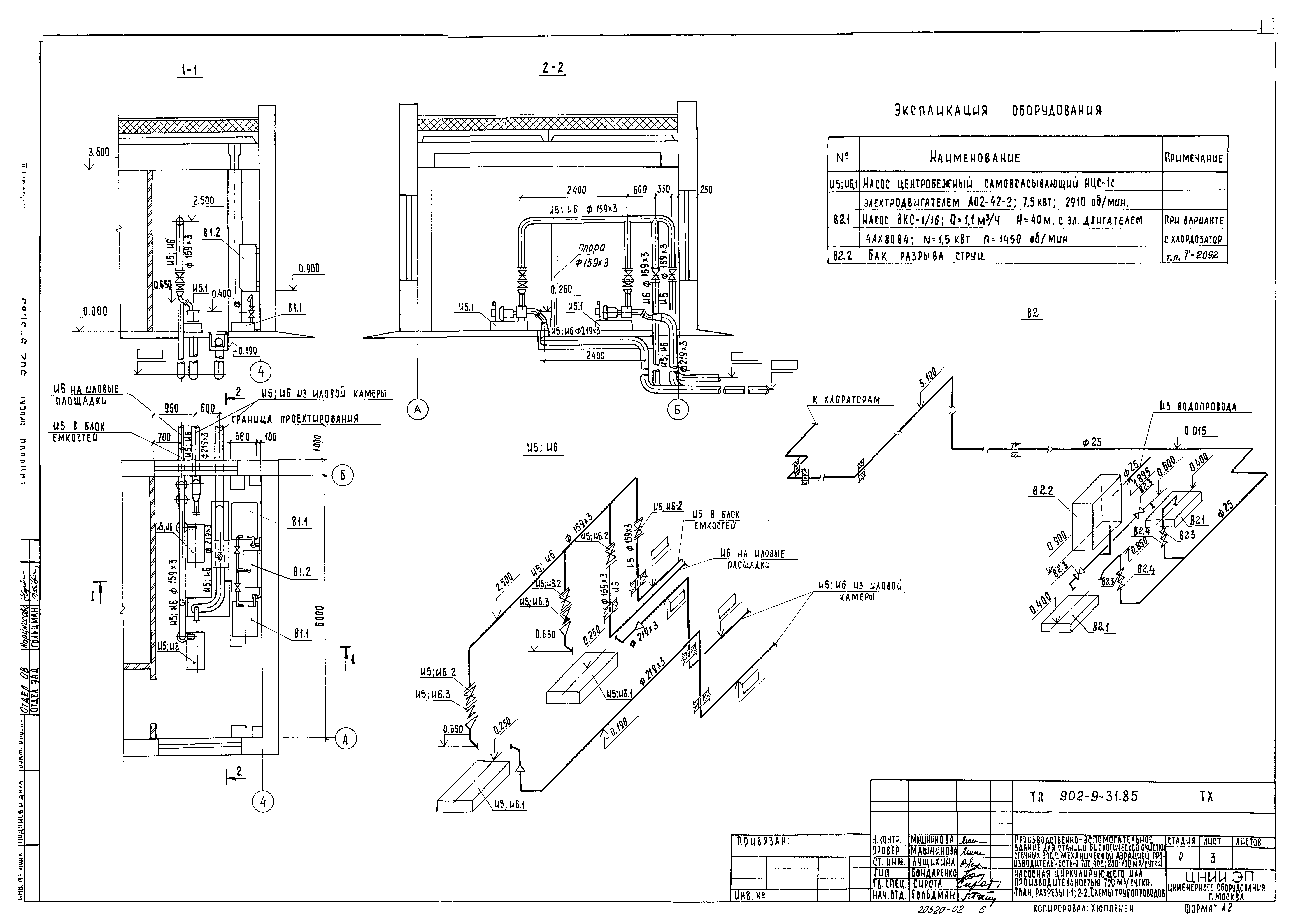
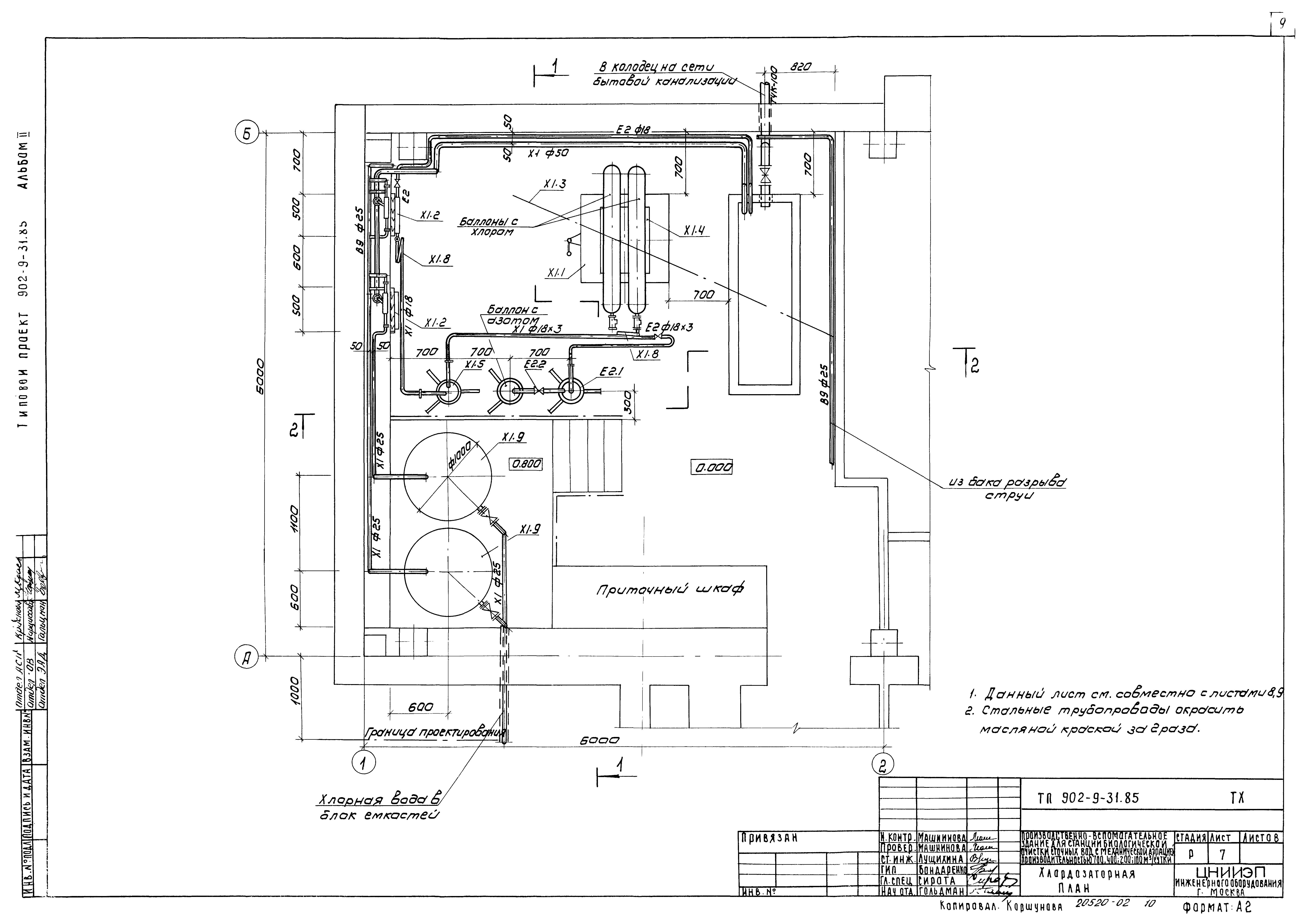
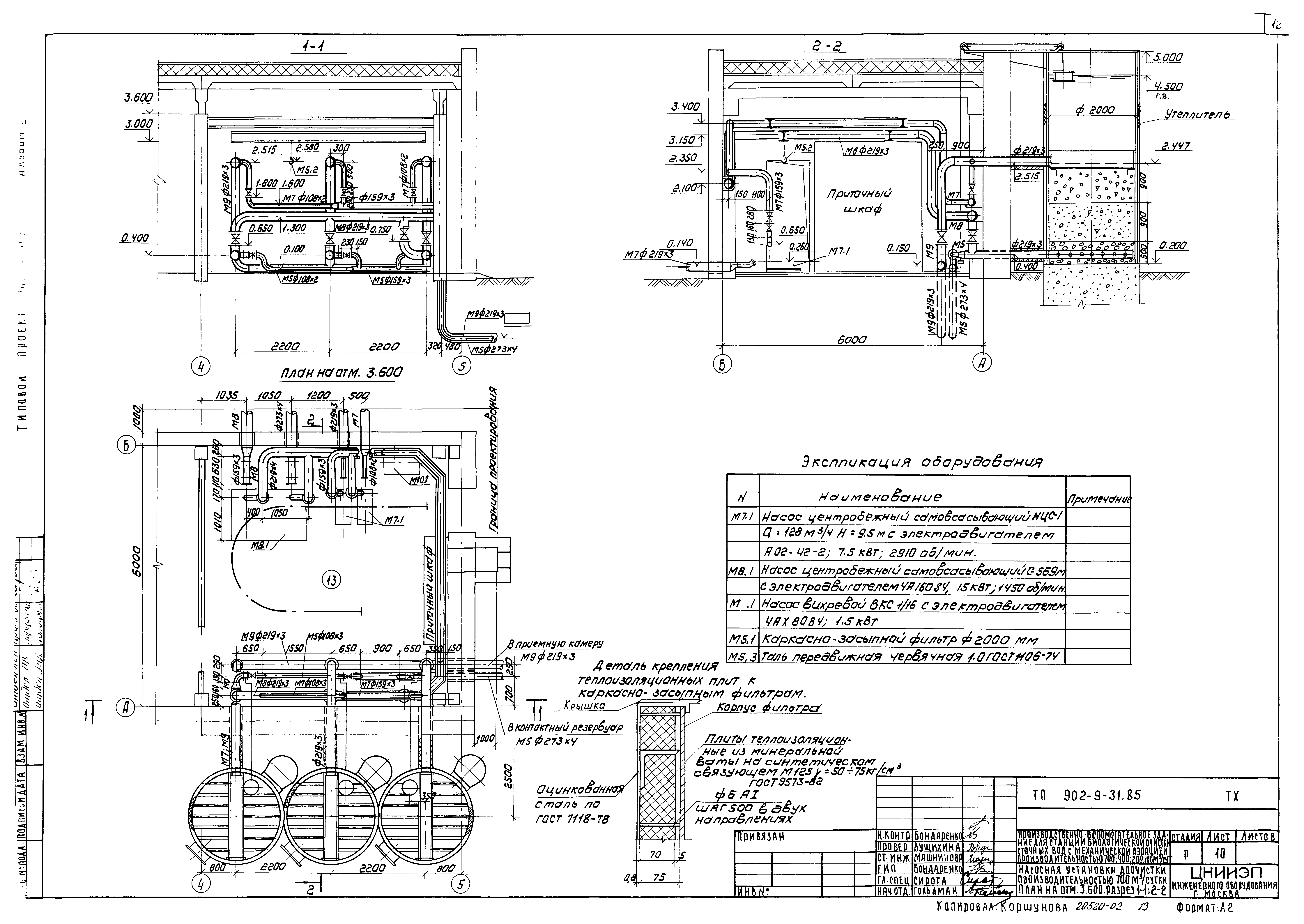
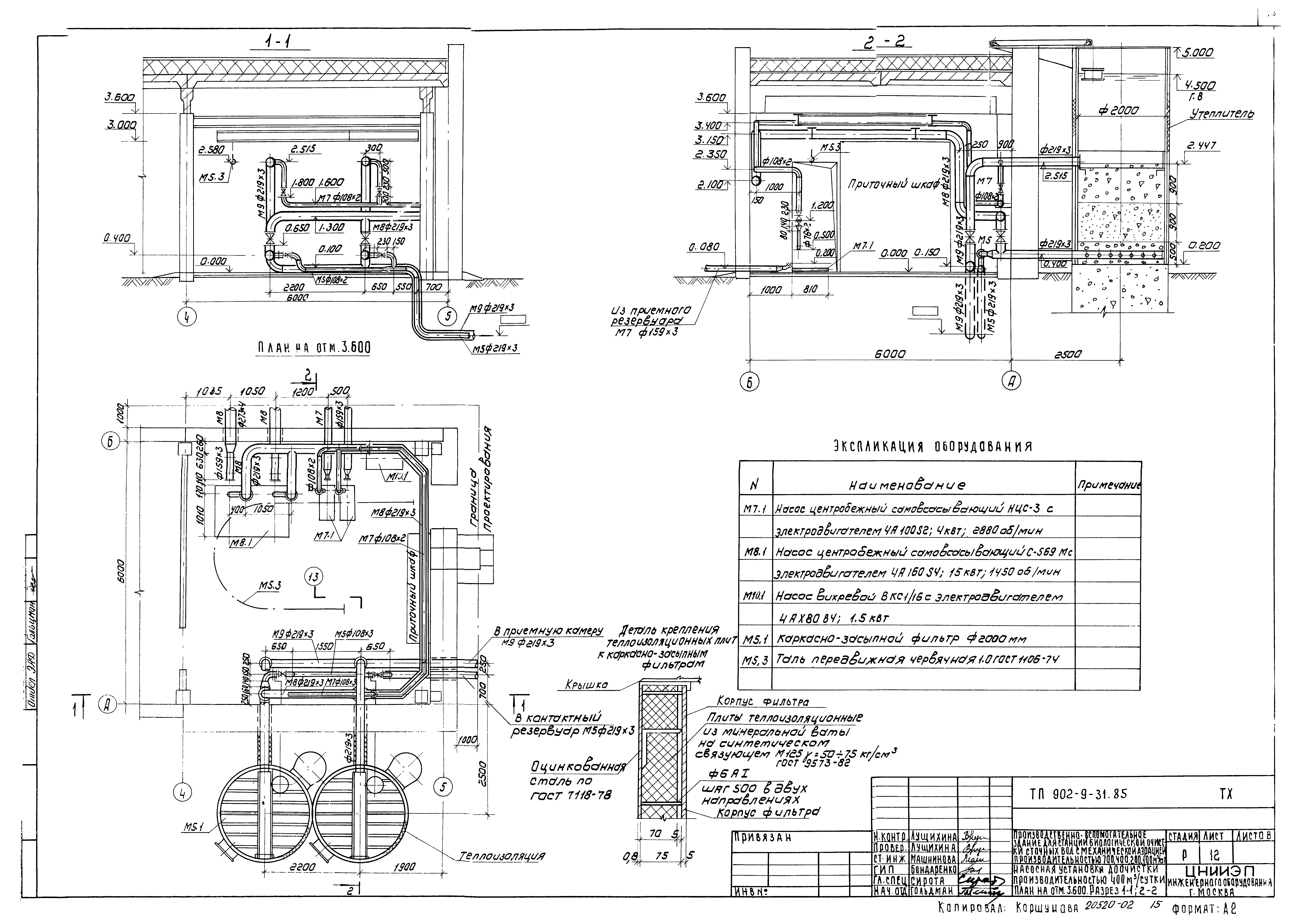
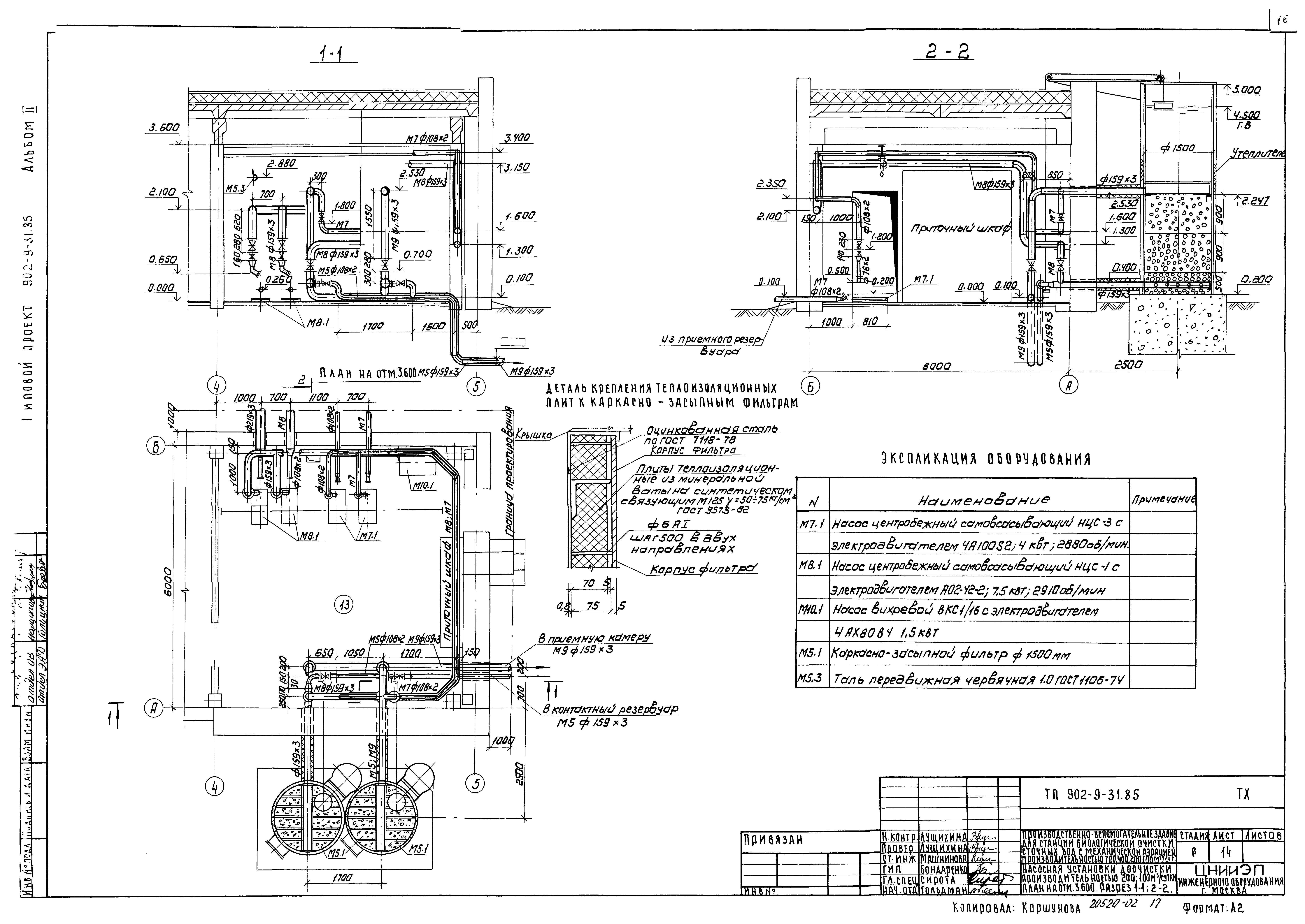
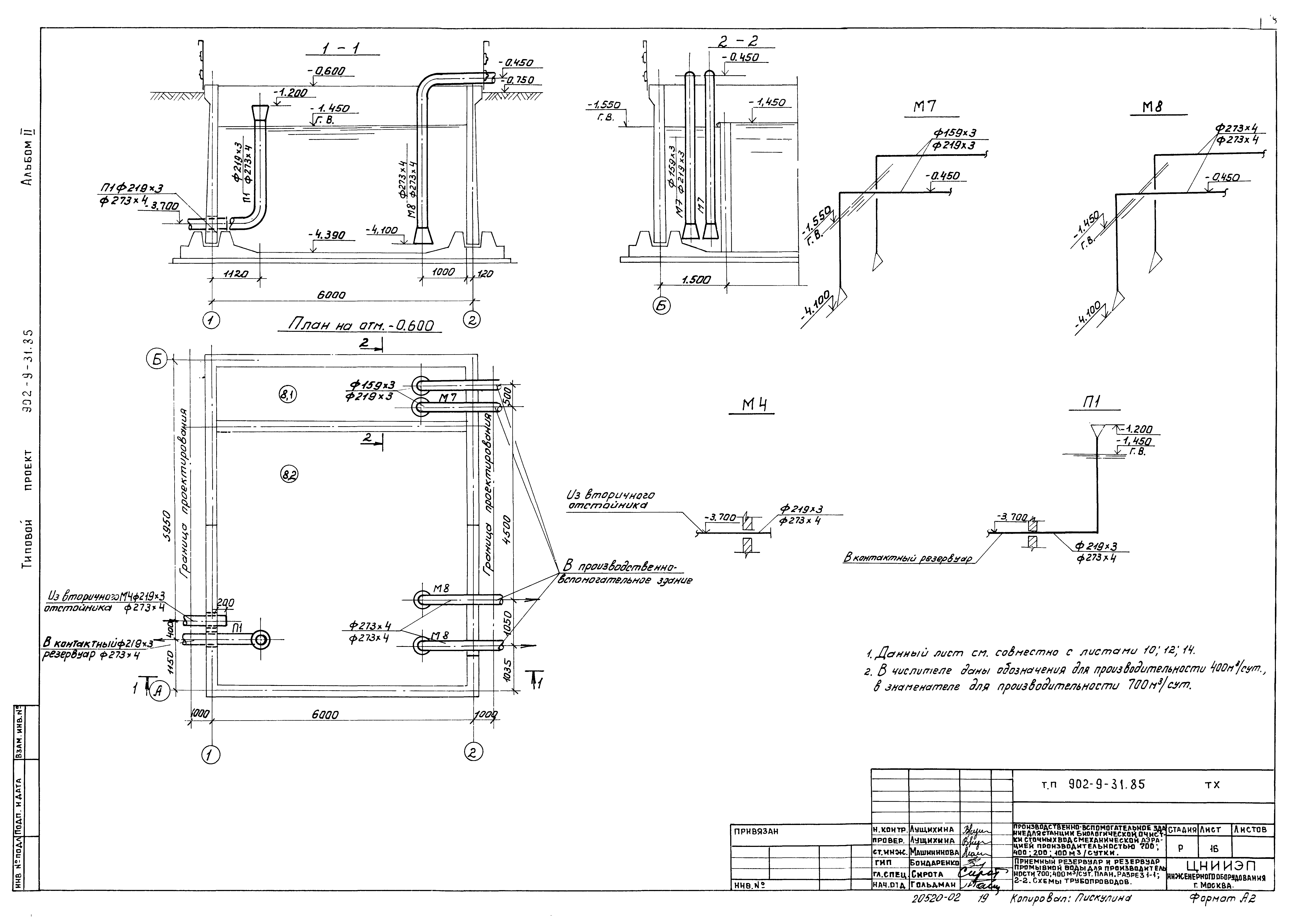
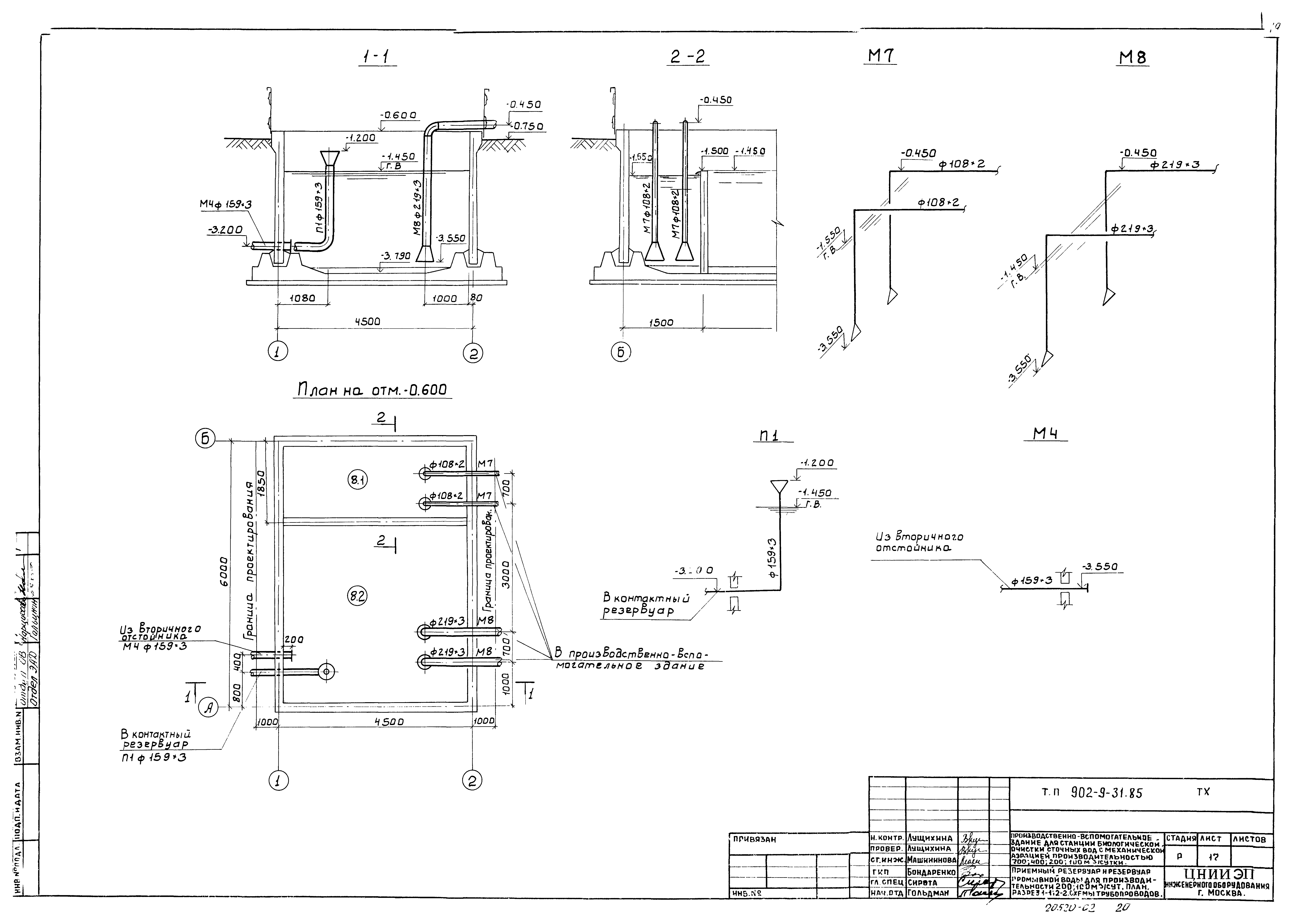
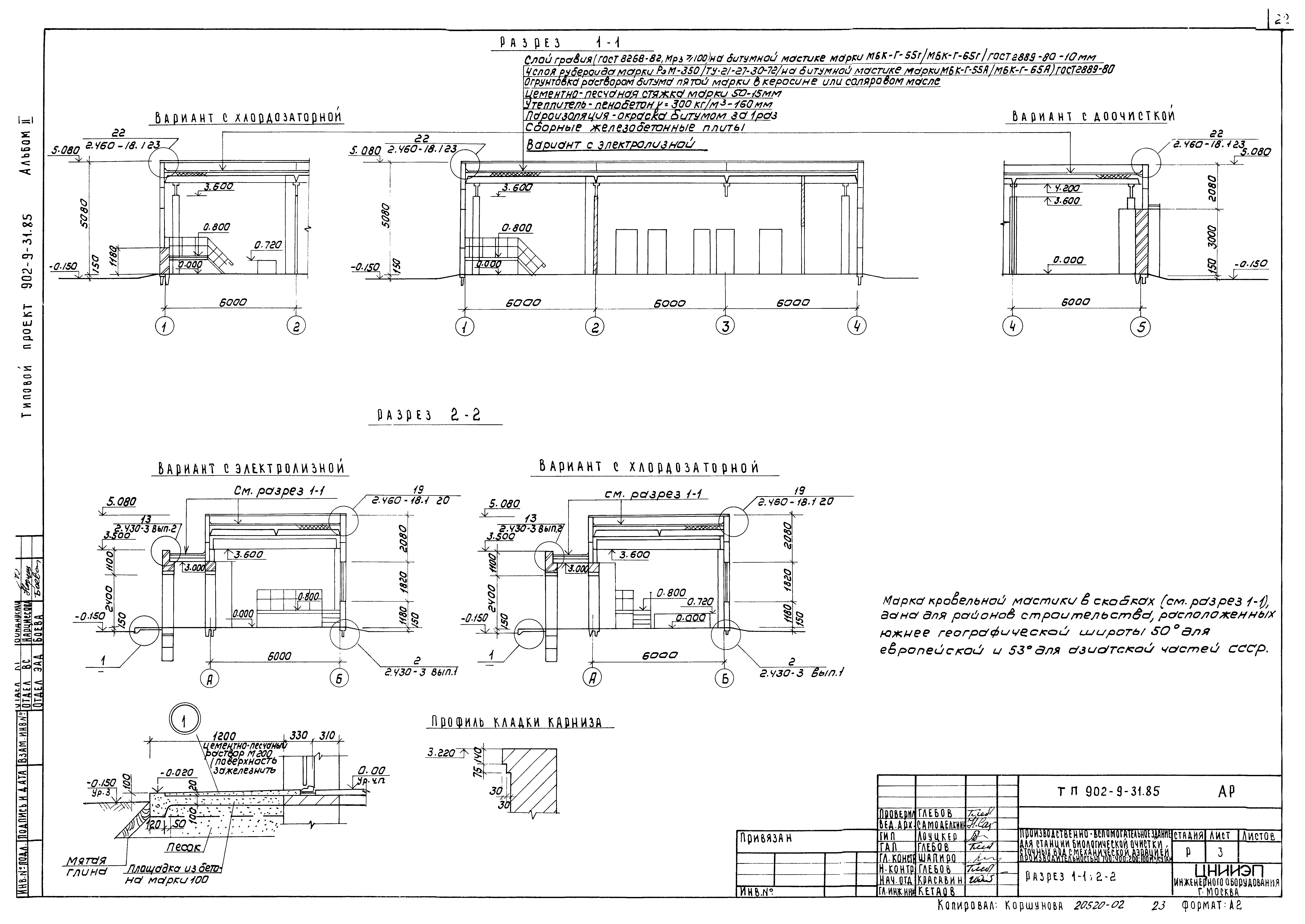
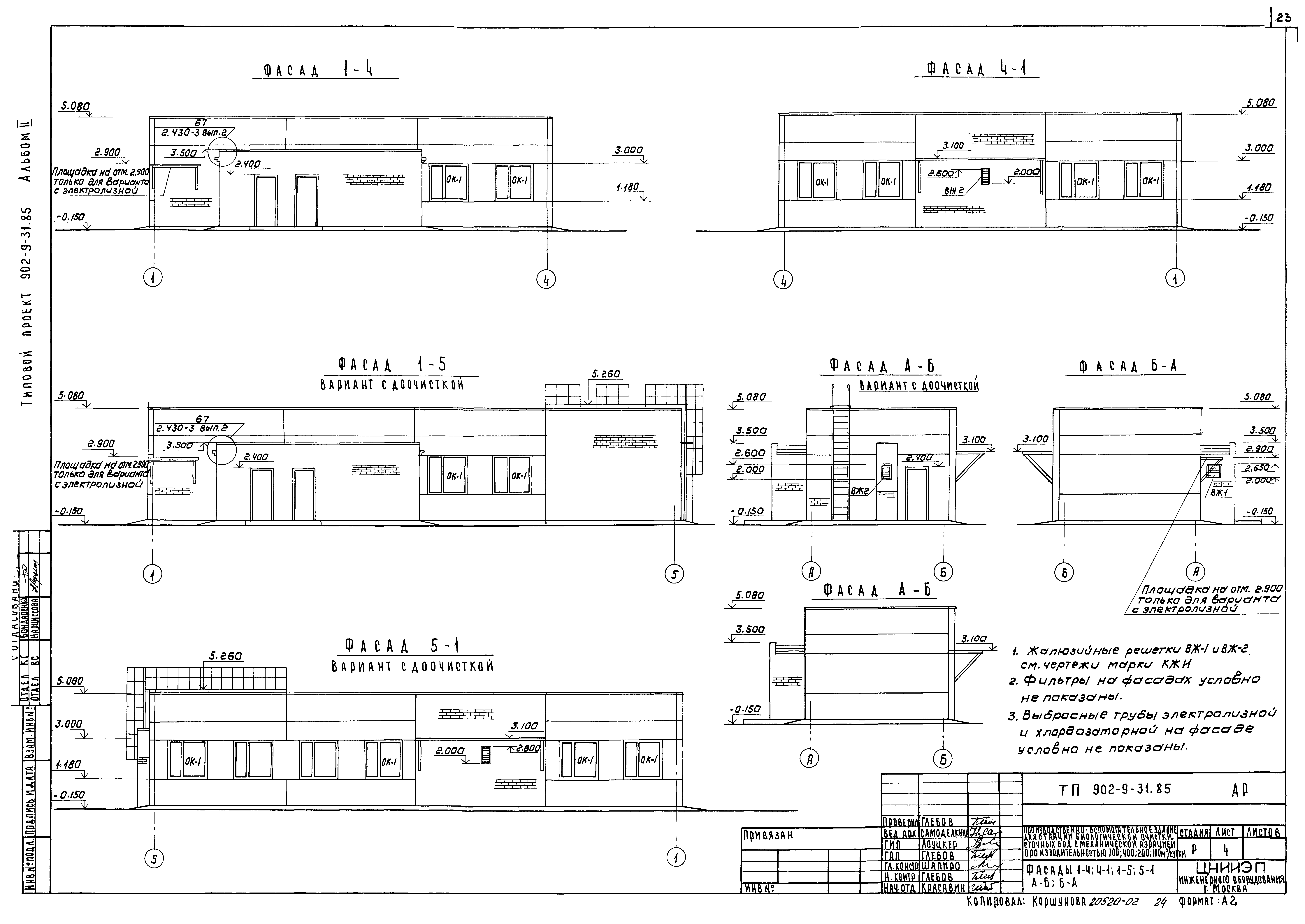
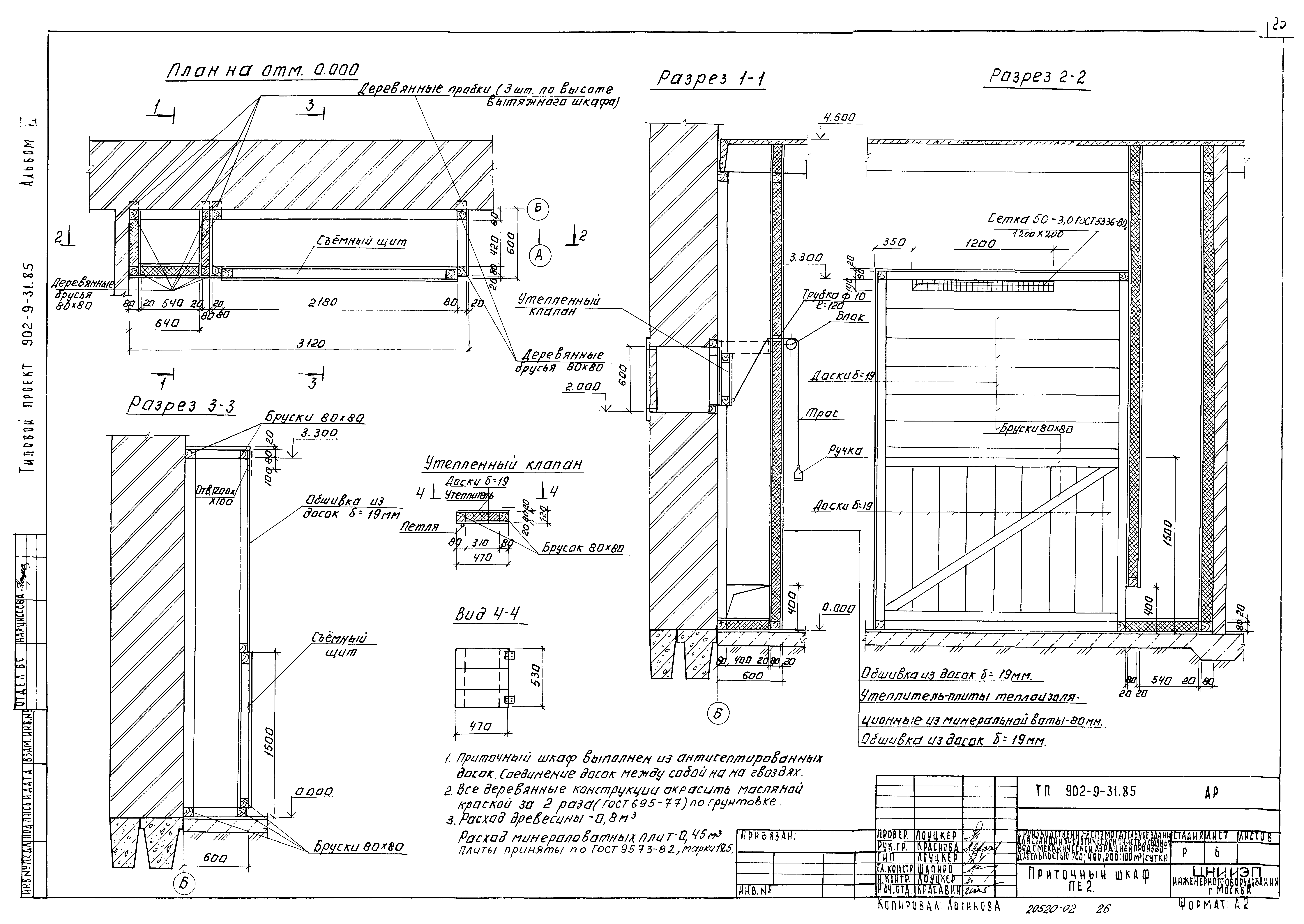
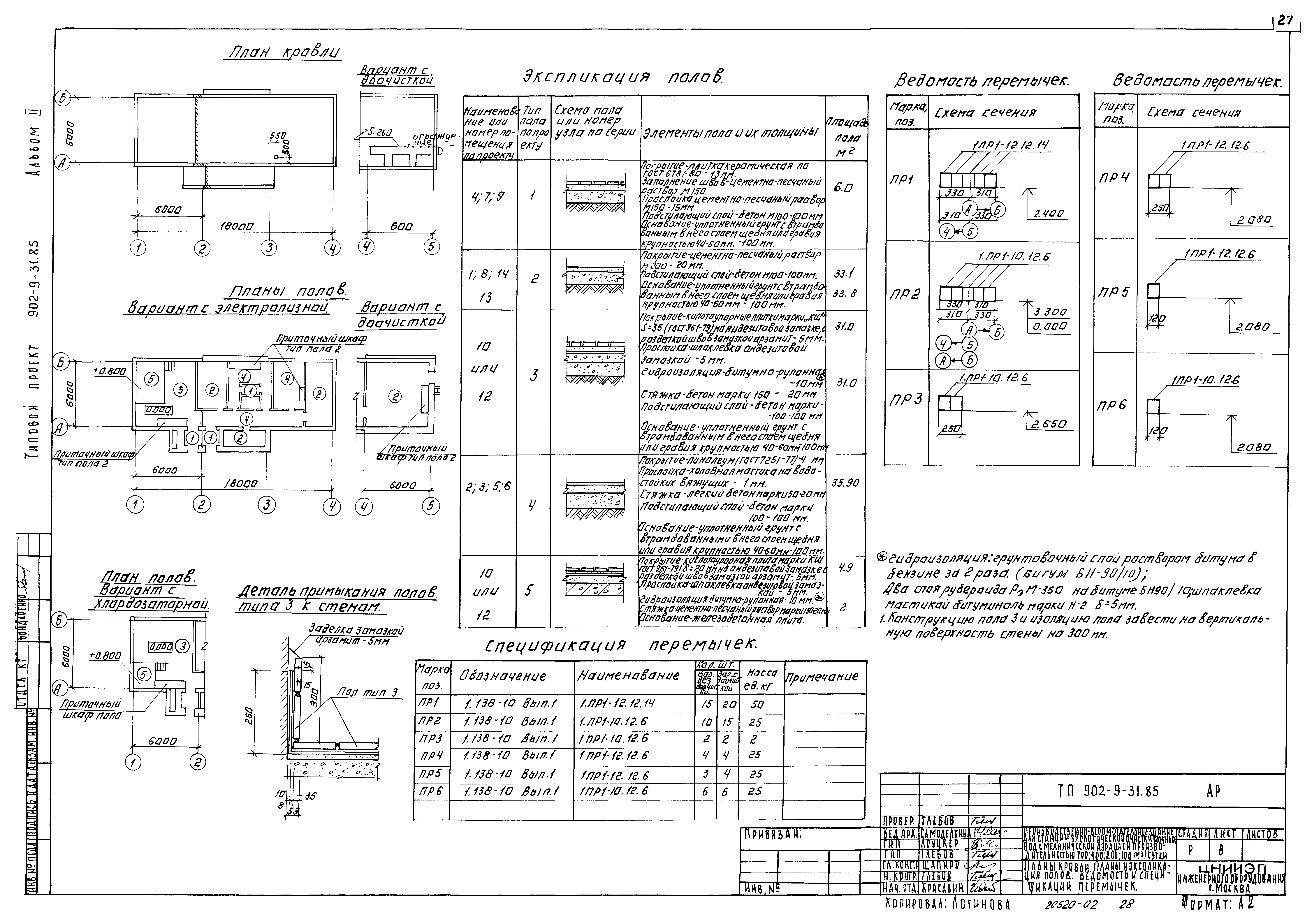
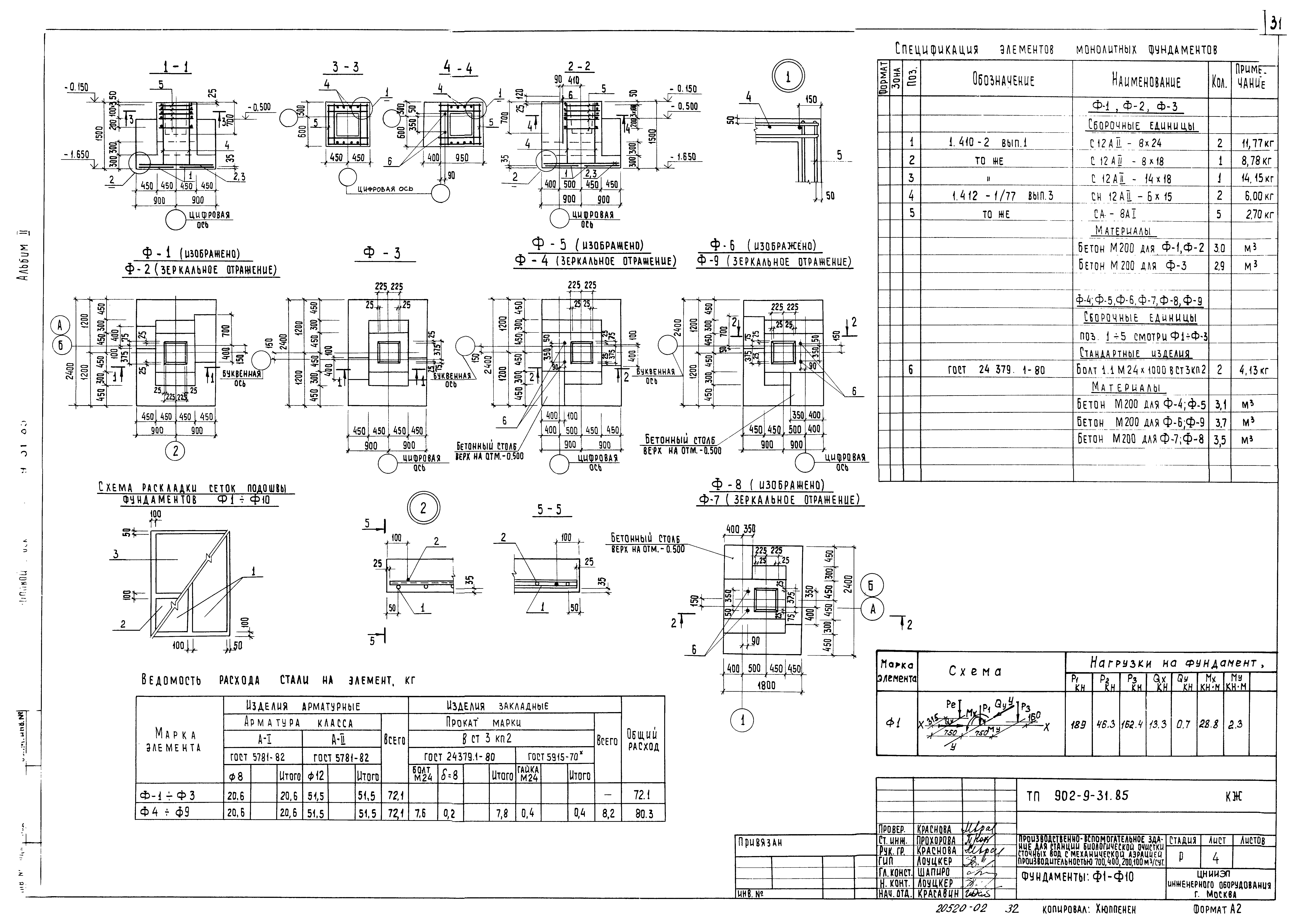
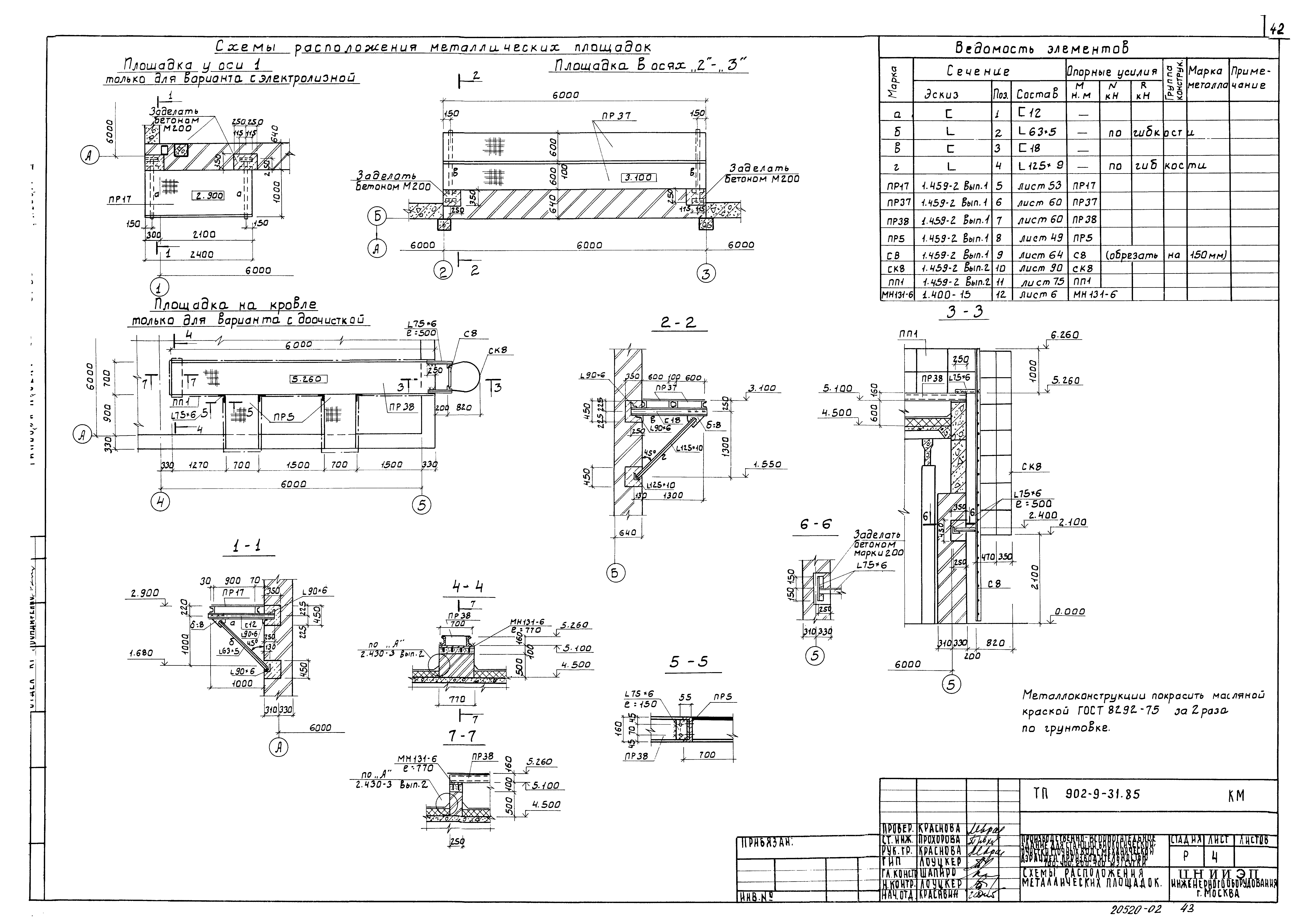
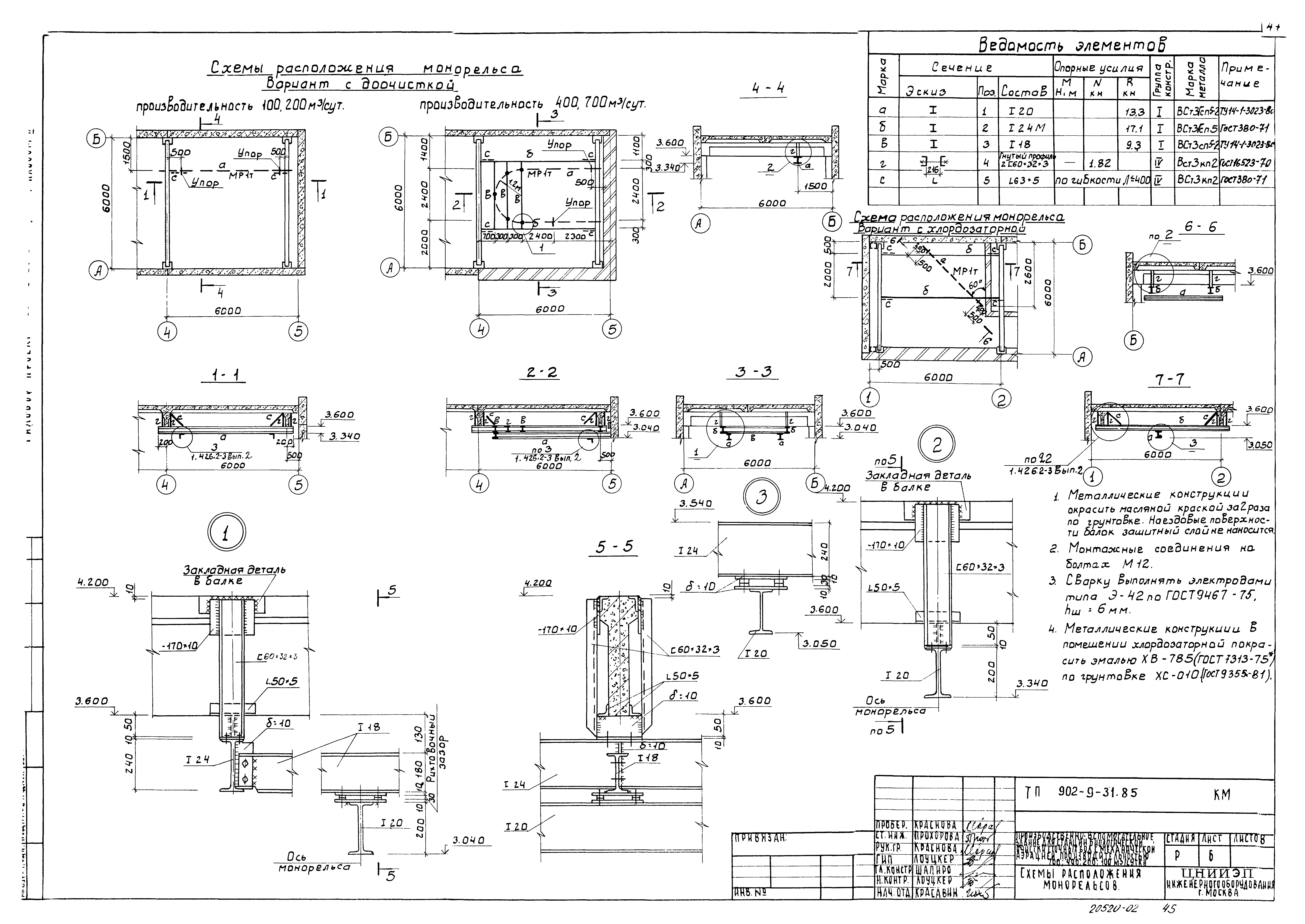
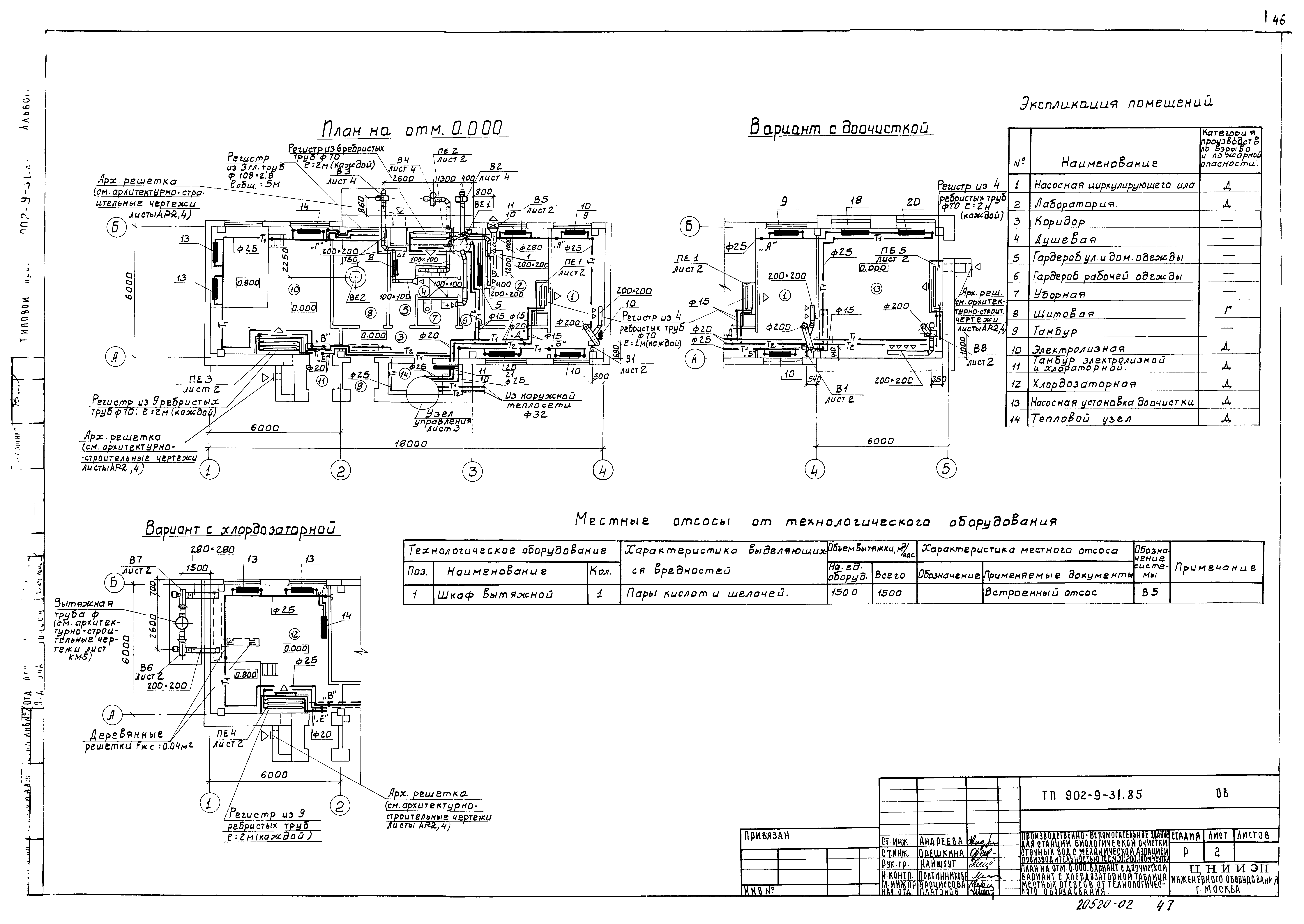
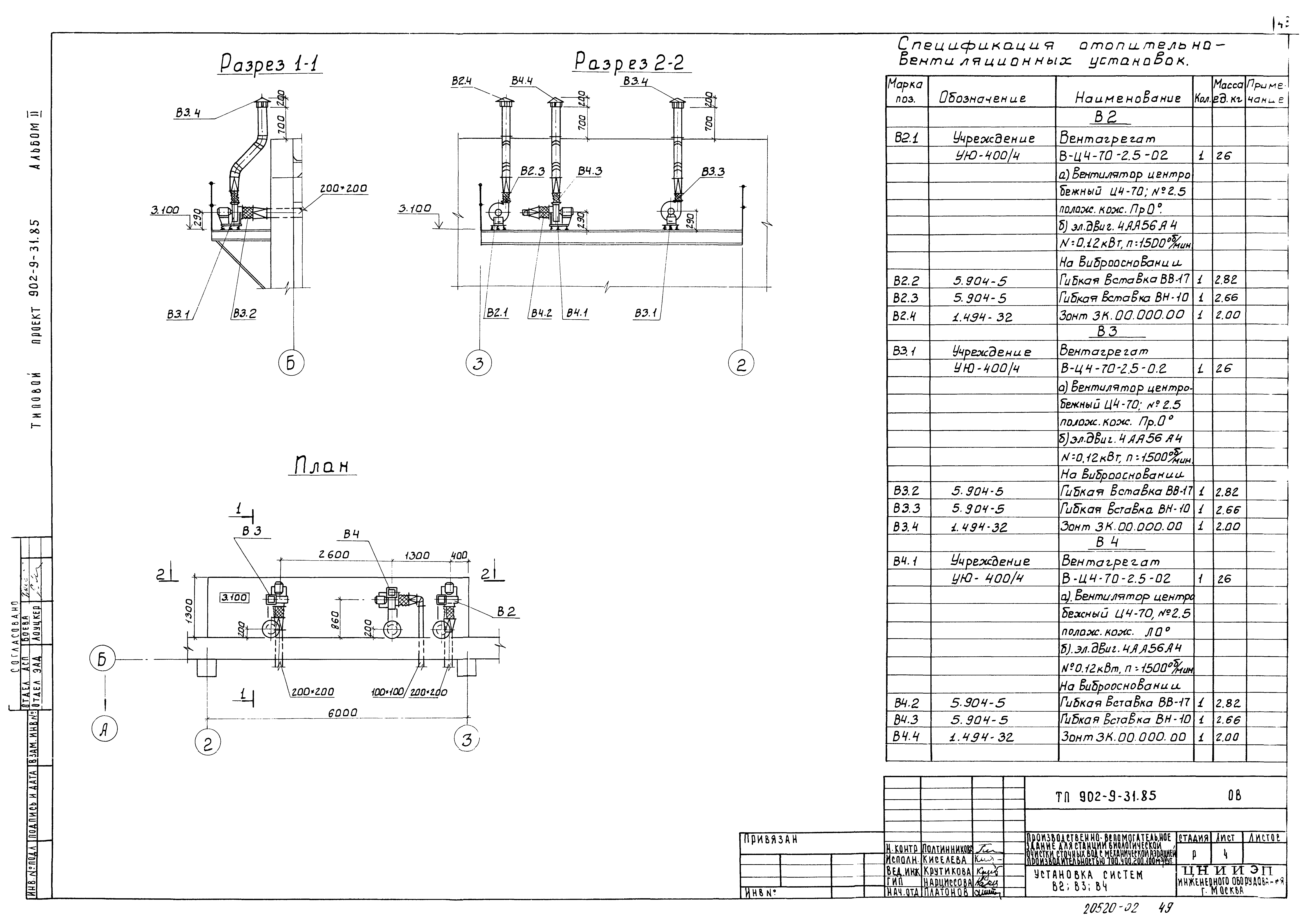
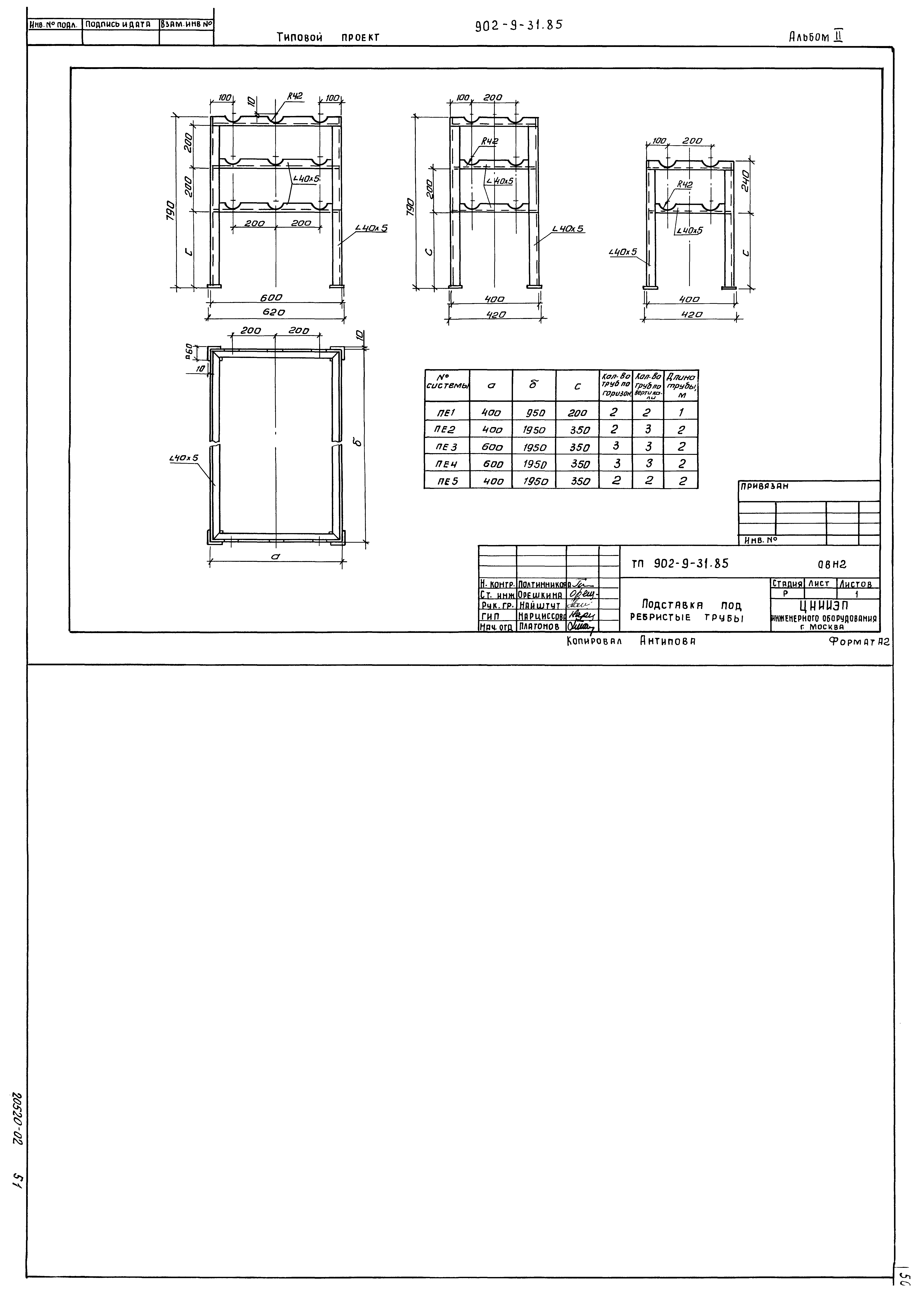
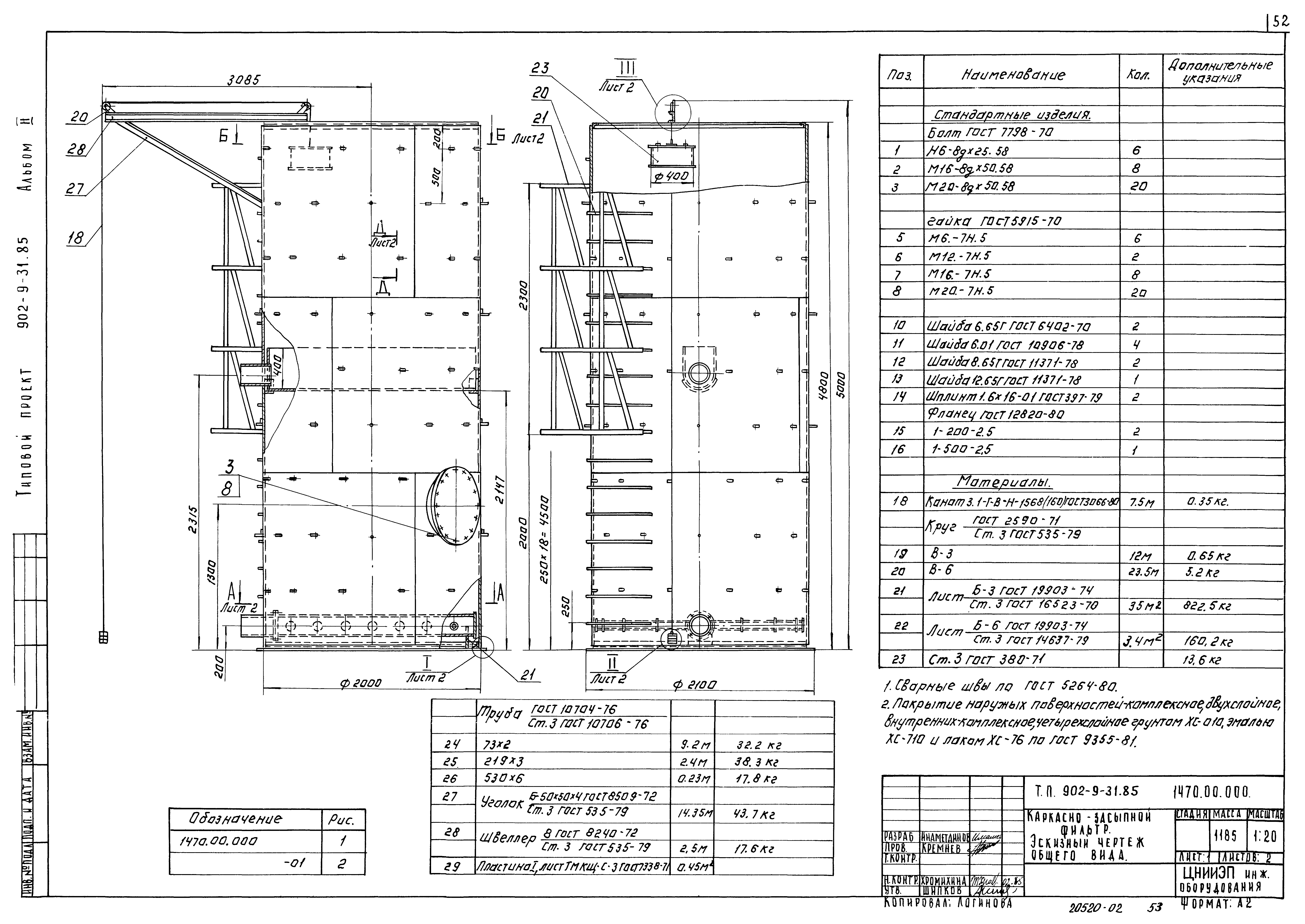
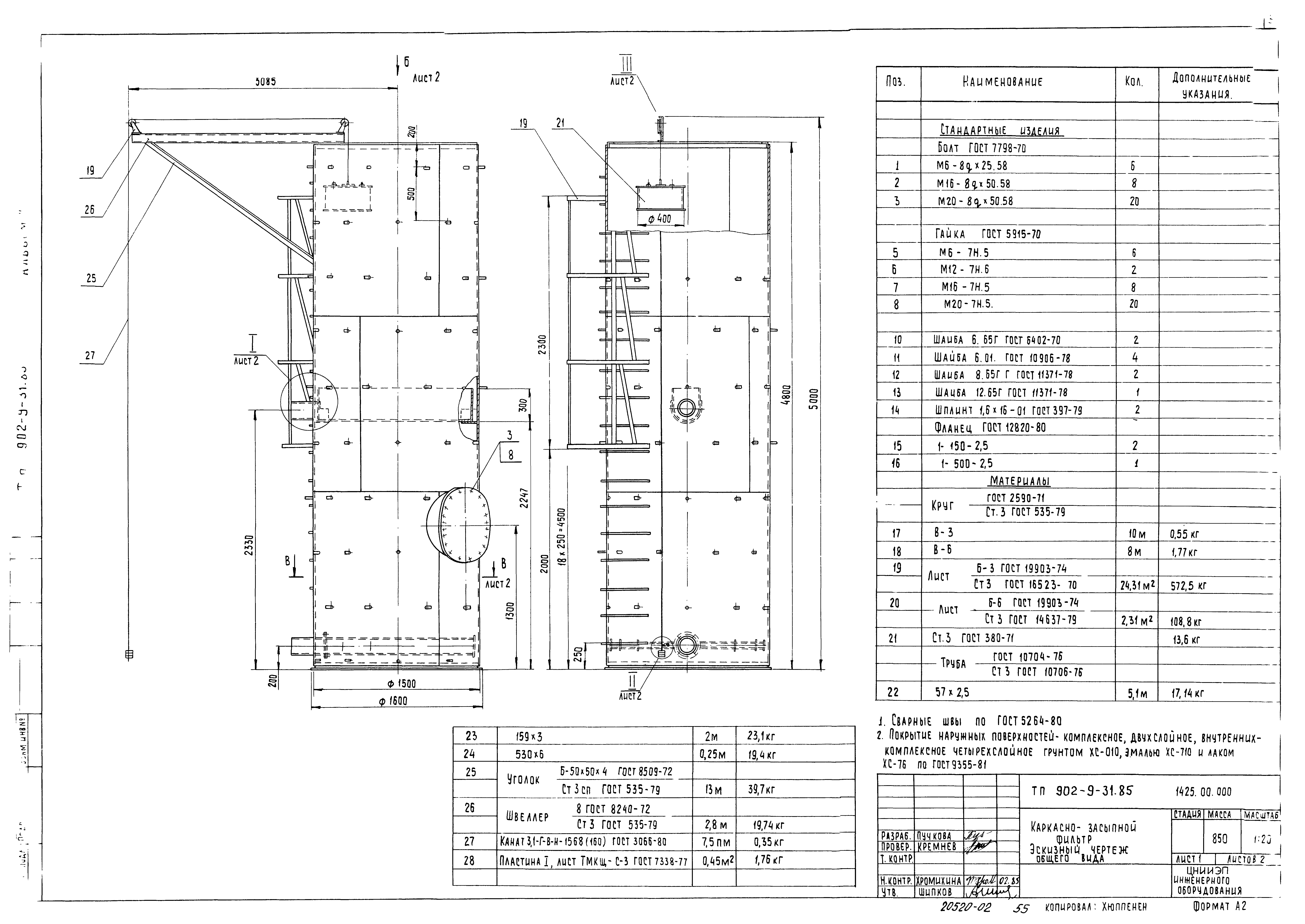
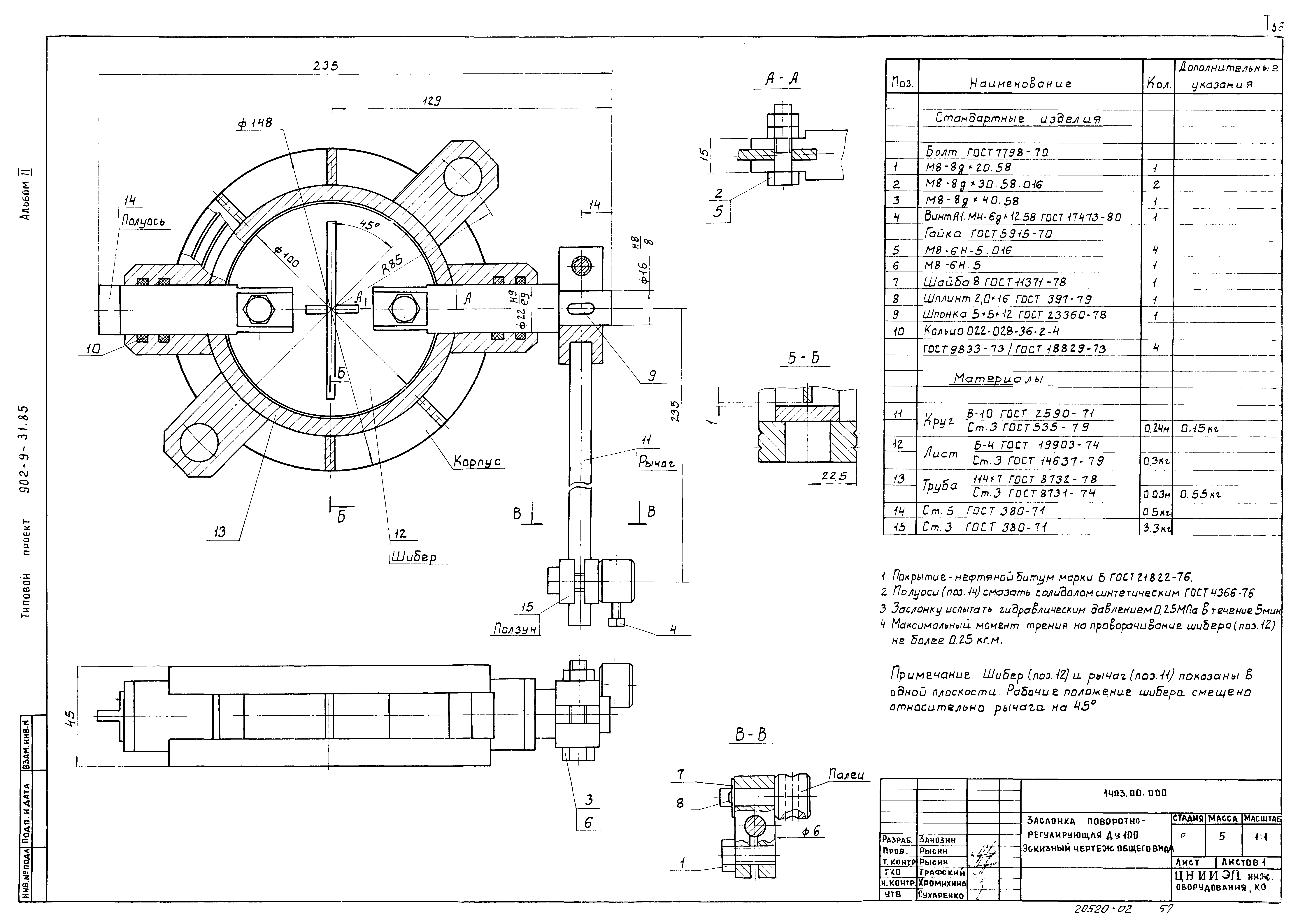
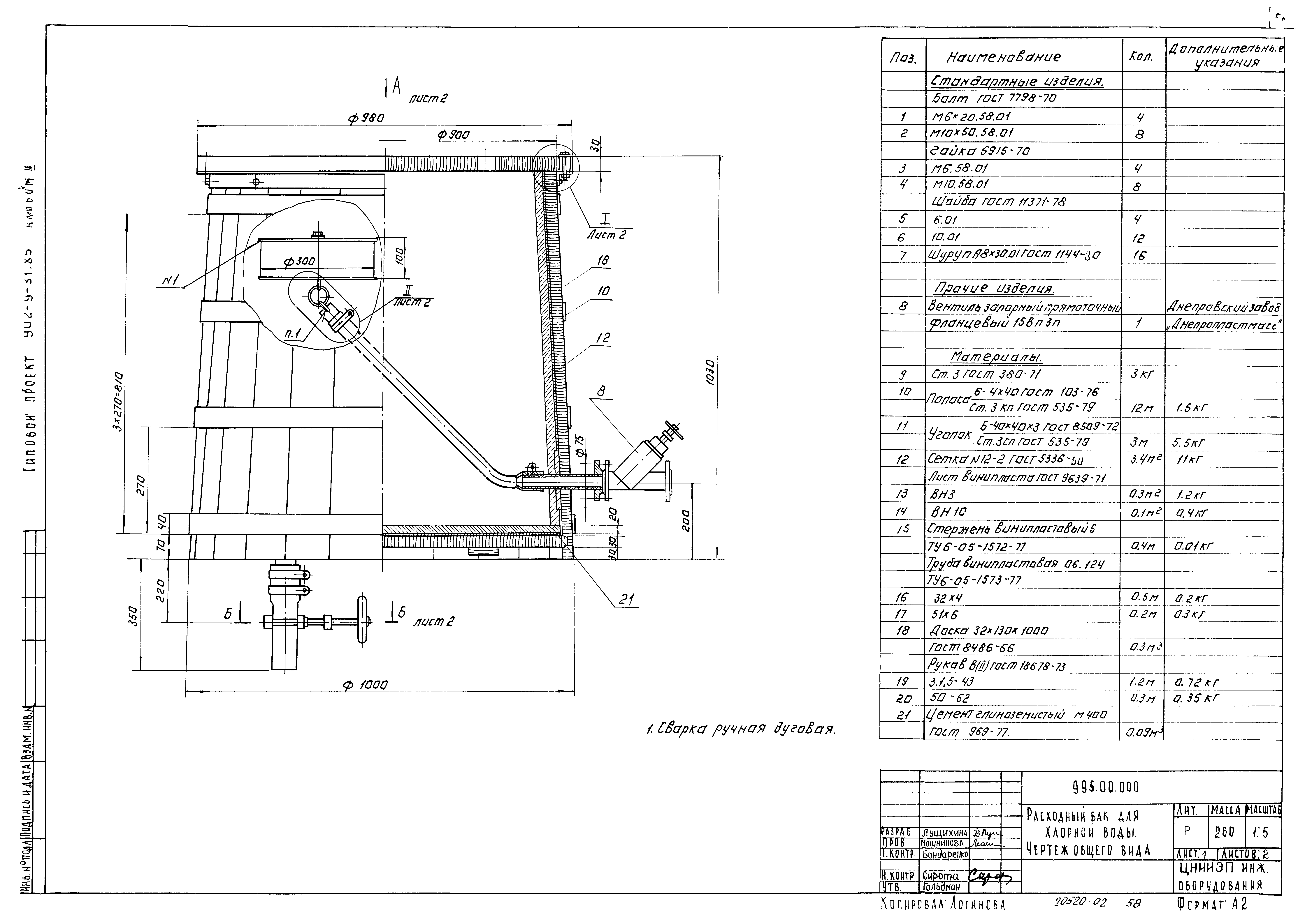
| Оглавление: | Содержание альбома Технологические решения Общие данные План на отм. 3.600. Разрезы 1-1, 2-2 Насосная циркулирующего ила производительностью 700 куб. м/сутки. План, разрез 1-1, 2-2. Схемы трубопроводов Насосная циркулирующего ила производительностью 400; 200; 100 куб. м/сутки. План, разрезы 1-1, 2-2. Схемы трубопроводов Электролизная. План. Разрезы 1-1, 2-2 Электролизная. Схемы трубопроводов Х1, А0 Хлордозаторная. План Хлордозаторная. Разрез 1-1, 2-2 Хлордозаторная. Схемы трубопроводов Х1, В1, Е2 Насосная установки доочистки производительностью 700 куб. м/сутки. План на отм. 3.600. Разрез 1-1, 2-2 Насосная установки доочистки производительностью 700 куб. м/сутки. Схемы трубопроводов М5, М7, М8, М9, М10 Насосная установки доочистки производительностью 400 куб. м/сутки. План на отм. 3.600. Разрез 1-1, 2-2 Насосная установки доочистки производительностью 400 куб. м/сутки. Схемы трубопроводов М5, М7, М8, М9, М10 Насосная установки доочистки производительностью 200; 100 куб. м/сутки. План на отм. 3.600. Разрез 1-1, 2-2 Насосная установки доочистки производительностью 200; 100 куб. м/сутки. Схемы трубопроводов М5, М7, М8, М9, М10 Приемный резервуар и резервуар промывной воды для производительности 700, 400 куб. м/сутки. План. Разрез 1-1, 2-2. Схемы трубопроводов Приемный резервуар и резервуар промывной воды для производительности 200, 100 куб. м/сутки. План. Разрез 1-1, 2-2. Схемы трубопроводов Архитектурно-строительные решения Общие данные Планы на отм. 0.000 Разрезы 1-1, 2-2 Фасады 1 - 4; 4 - 1; 1 - 5; 5 - 1; А - Б; Б - А Приточный шкаф ПЕ1 Приточный шкаф ПЕ2 Приточный шкаф ПЕ3, ПЕ4 Планы кровли. Планы и экспликация полов. Ведомость и экспликация перемычек Конструкции железобетонные Общие данные Схема расположения фундаментов и фундаментных балок. Узлы 1 - 5 Спецификация элементов к схеме расположения фундаментов и фундаментных балок Фундаменты Ф1 - Ф10 Схемы расположения фундаментов под оборудование. Разрезы 1-1, 3-3, 5-5, 6-6 Фундаменты под оборудование Фо-1; Фо-2; Фо-3. Разрезы 4-4, 7-7 - 16-16 Схемы расположения колонн и балок покрытия. Схемы расположения плит покрытия Схемы расположения стеновых панелей. Фрагменты 1 - 5 Приемный резервуар и резервуар промывной воды производительностью 400, 700 куб. м/сутки. Схемы расположения стеновых панелей УМ1, УМ2, УМ3 Приемный резервуар и резервуар промывной воды производительностью 400, 700 куб. м/сутки. Днище. Опалубочный чертеж. Армирование Приемный резервуар и резервуар промывной воды производительностью 100, 200 куб. м/сутки. Схемы расположения стеновых панелей УМ1, УМ2, УМ3, УМ4 Приемный резервуар и резервуар промывной воды производительностью 100, 200 куб. м/сутки. Днище. Опалубочный чертеж. Армирование Конструкции металлические Общие данные. Техническая спецификация металла Общие данные. Техническая спецификация металла на типовые конструкции Общие данные. Ведомость металлоконструкций по видам профилей Схемы расположения металлических площадок Выбросная труба. Варианты с электролизной и хлордозаторной Схемы расположения монорельсов Санитарно-технические решения Общие данные План на отм. 0.000. Вариант с доочисткой. Вариант с хлордозаторной. Таблица местных отсосов от технологического оборудования Схемы систем В1 - В8; ВЕ1, ВЕ2. Схемы системы отопления. Схема системы теплоснабжения установок ПЕ1 - ПЕ5. Узел управления Установка систем В2, В3, В4 Воздуховод из асбестоцементных листов. Узел соединений Подставка под ребристые трубы Внутренний водопровод и канализация Общие данные. Фрагмент плана на отм. 0.000. Схемы В1, К1, К2 Нестандартизированное оборудование 1470.00.000 Каркасно-засыпной фильтр. Эскизный чертеж общего вида 1470.00.000 Каркасно-засыпной фильтр. Разрезы А-А, Б-Б 1425.00.000 Каркасно-засыпной фильтр. Эскизный чертеж общего вида 1425.00.000 Каркасно-засыпной фильтр. Разрезы А-А, Б-Б 1403.00.000 Заслонка поворотно-регулирующая Ду100. Эскизный чертеж общего вида 995.00.000 Расходный бак для хлорной. Чертеж общего вида 995.00.000ВО Расходный бак для хлорной воды. Вид А. Разрезы Г-Г, В-В, Б-Б 860.00.000 Влагоотделитель. Чертеж общего вида Изоляция трубопроводов Ф159х3; Ф219х3 мягкими теплоизоляционными материалами |
| Разработан: | ЦНИИЭП инженерного оборудования |
| Утверждён: | 02.11.1984 Госгражданстрой (Gosgrazhdanstroy 316) |
| Издан: | ЦИТП Госстроя СССР (CITP, Gosstroy (USSR) 1986 г. ) |





























































