Скачать Типовой проект 902-9-42.87 Альбом III. Архитектурно-строительная часть. Конструкции железобетонные и металлическиеДата актуализации: 01.01.2021
|
| Обозначение: | Типовой проект 902-9-42.87 |
| Обозначение англ: | 902-9-42.87 |
| Статус: | не определен законодательством |
| Название рус.: | Альбом III. Архитектурно-строительная часть. Конструкции железобетонные и металлические |
| Дата добавления в базу: | 01.10.2014 |
| Дата актуализации: | 01.01.2021 |
| Дата введения: | 13.03.1987 |
| Дата окончания срока действия: | 30.06.2003 |
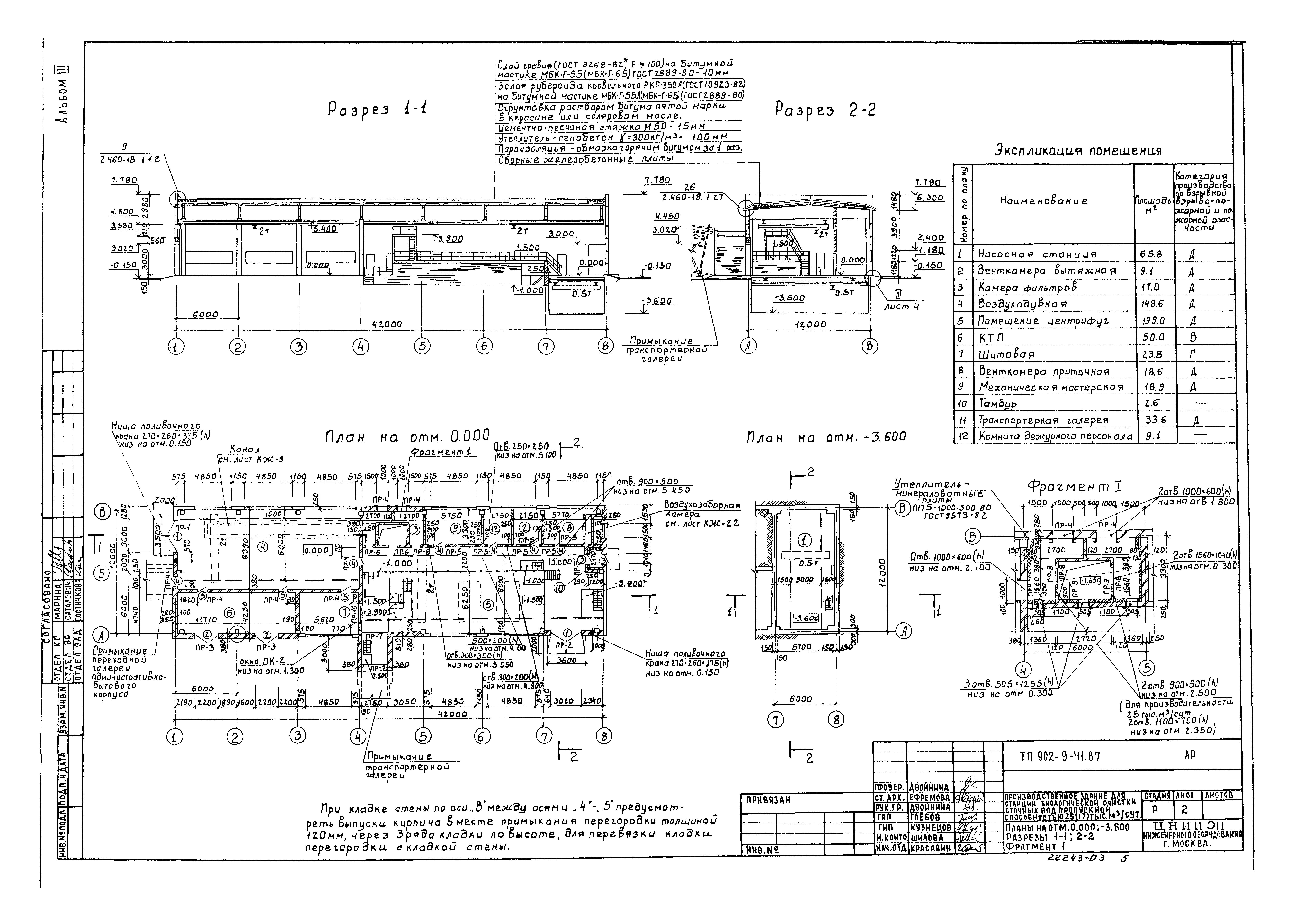
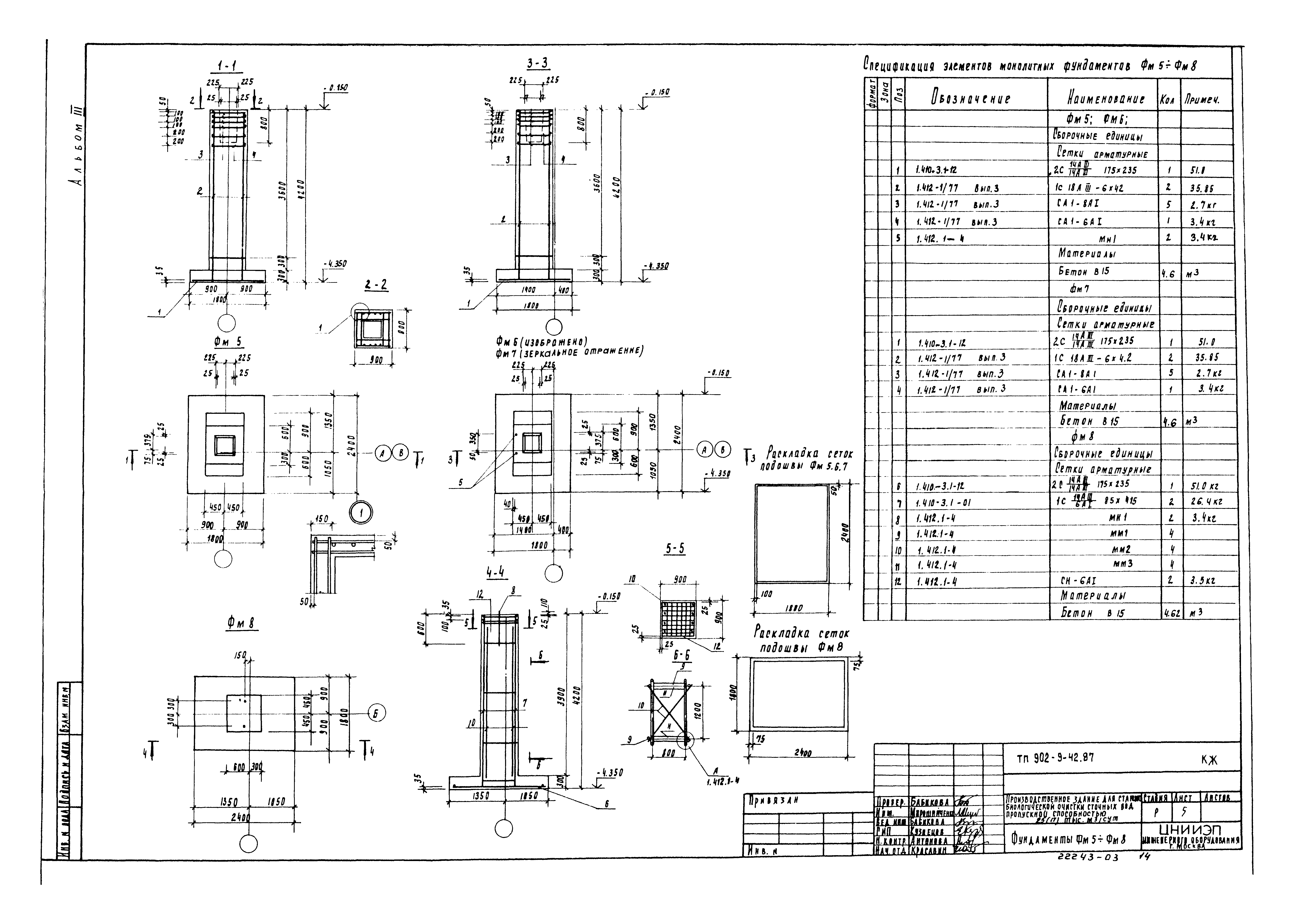
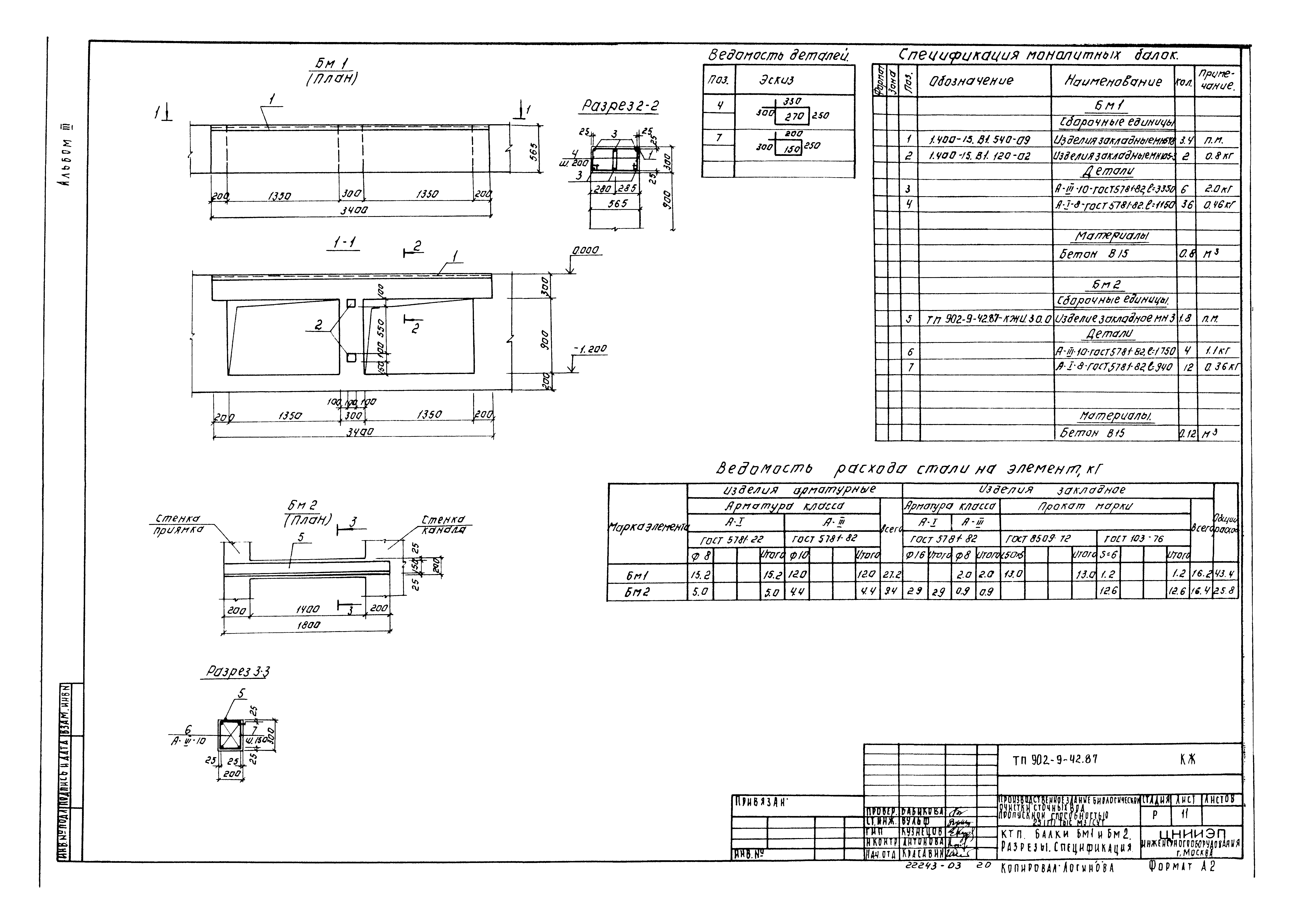
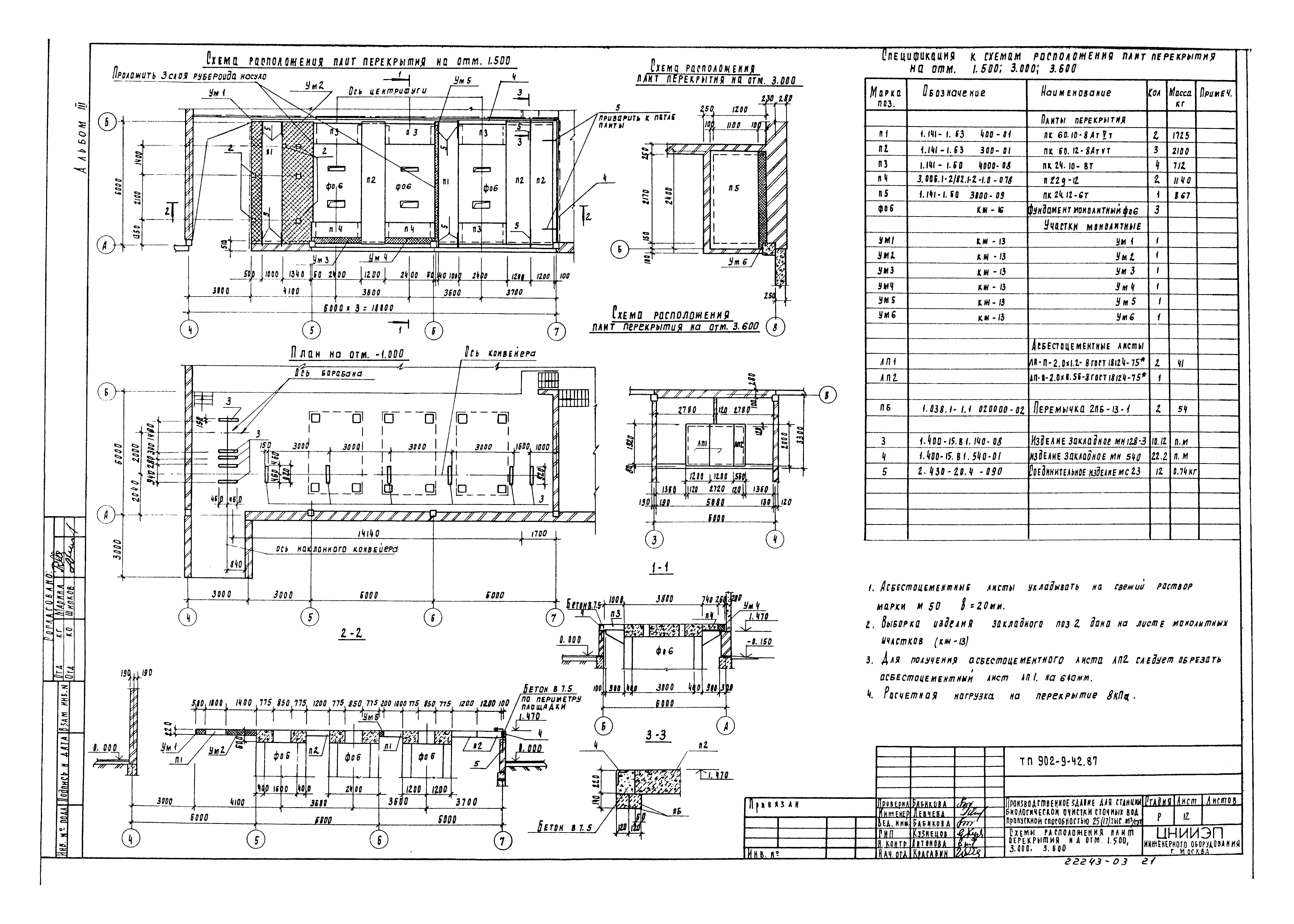
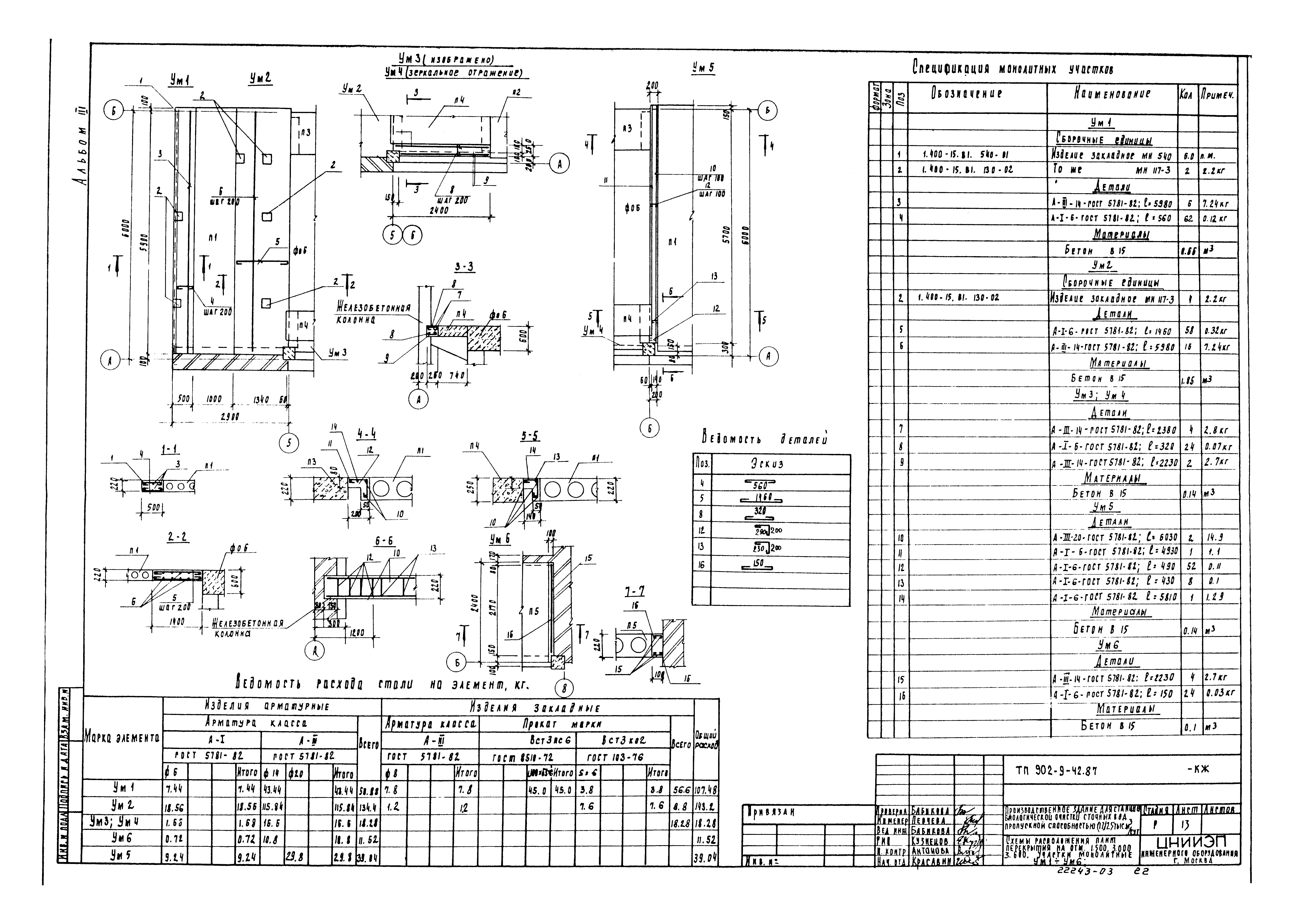
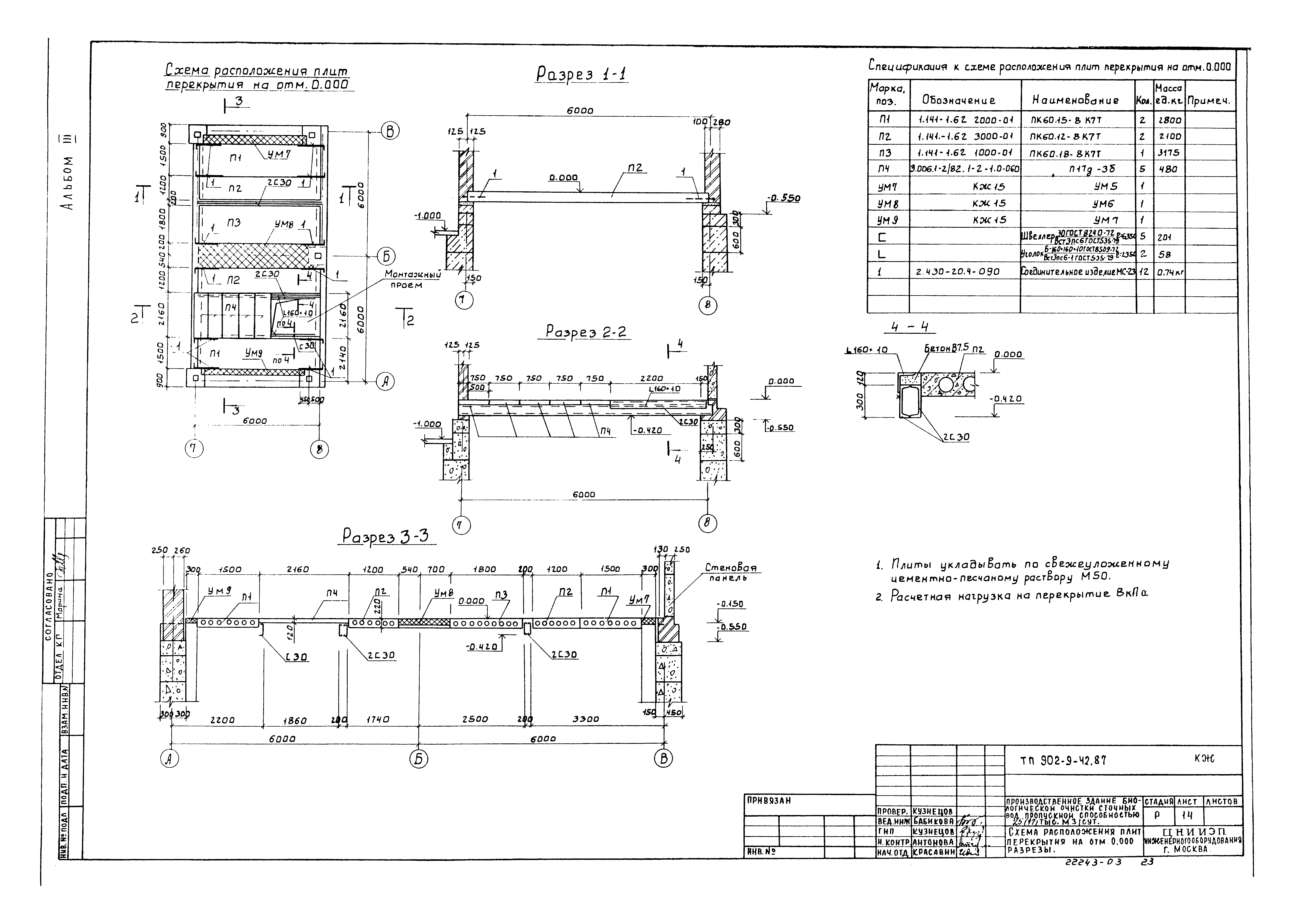
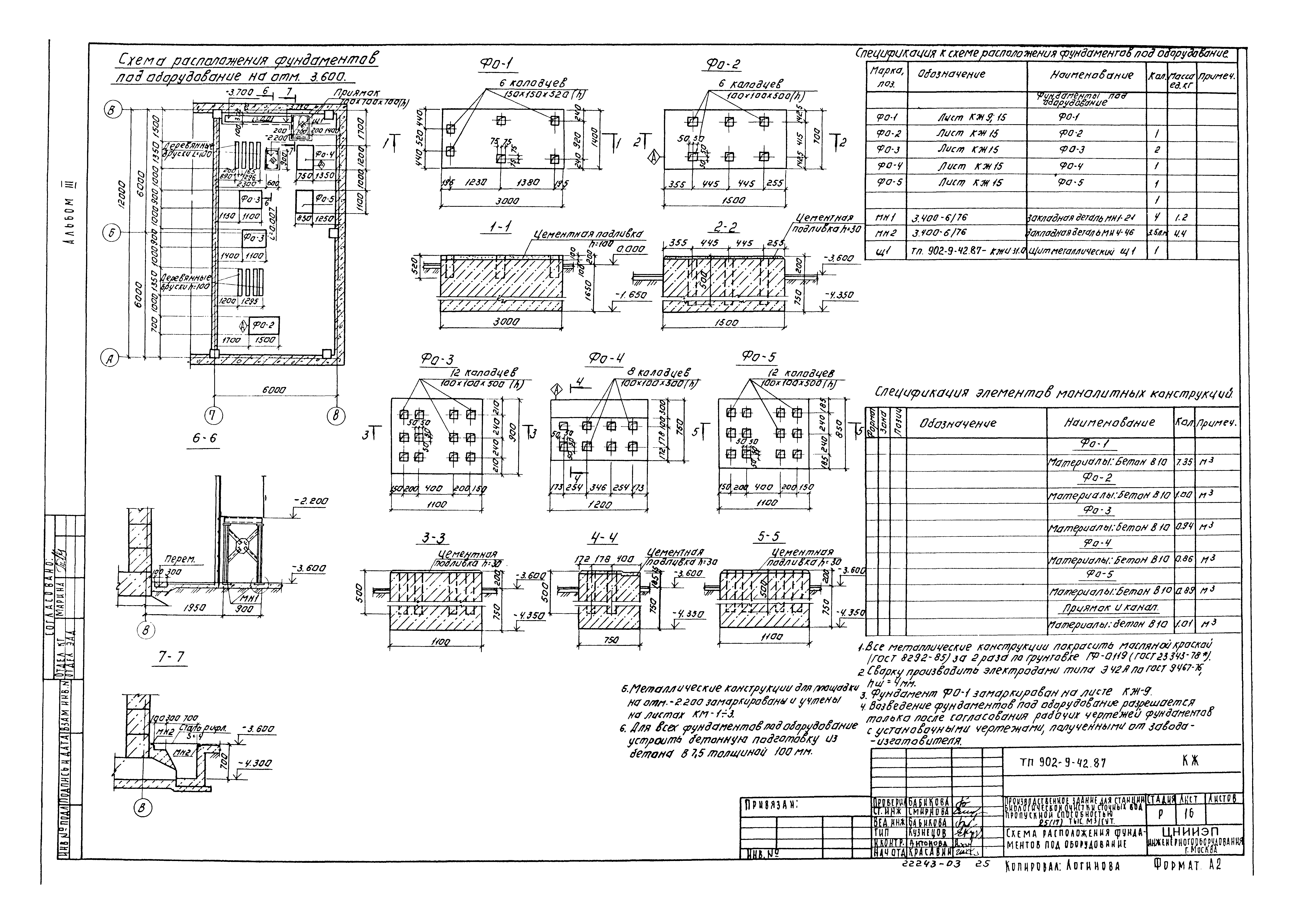
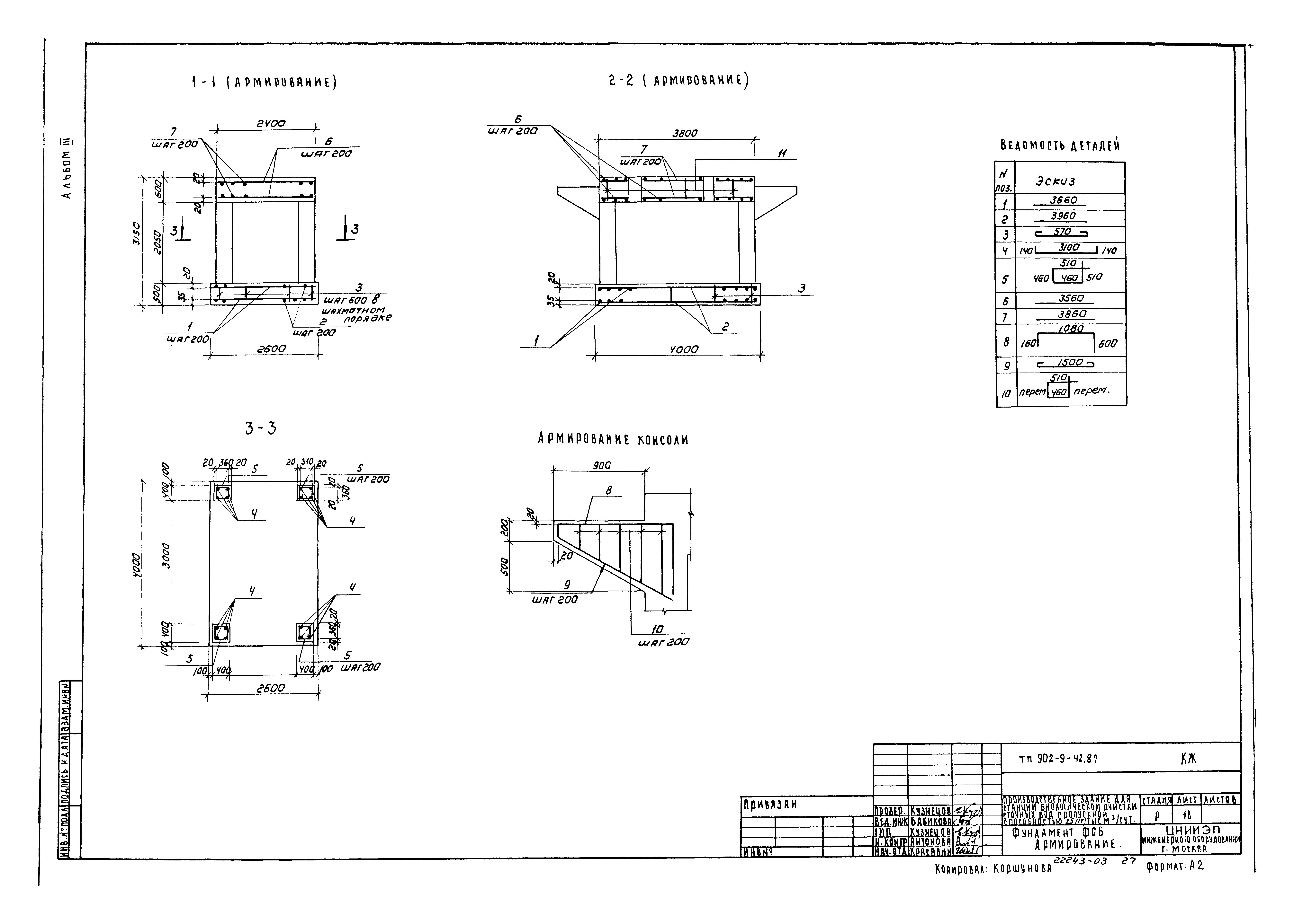
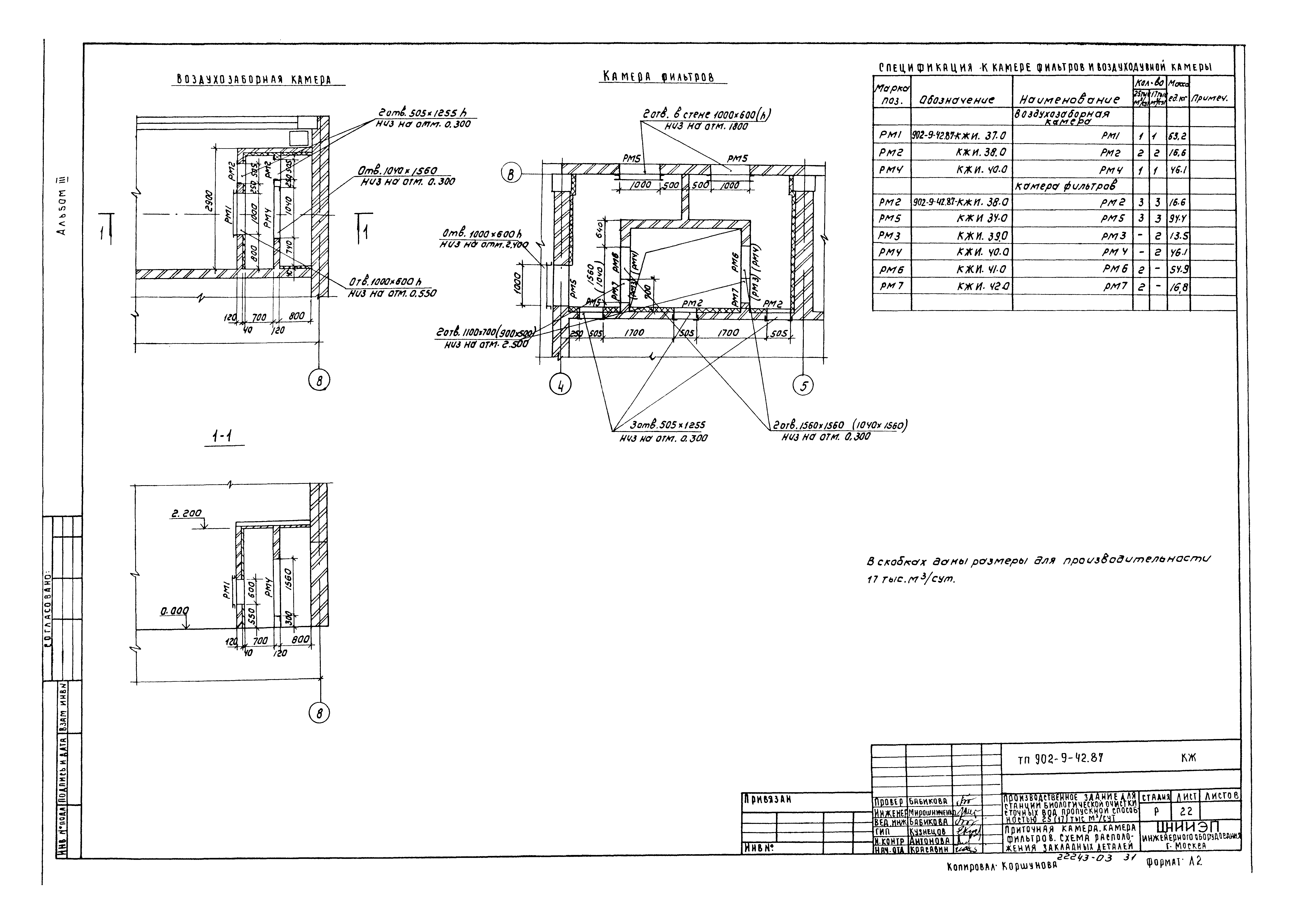
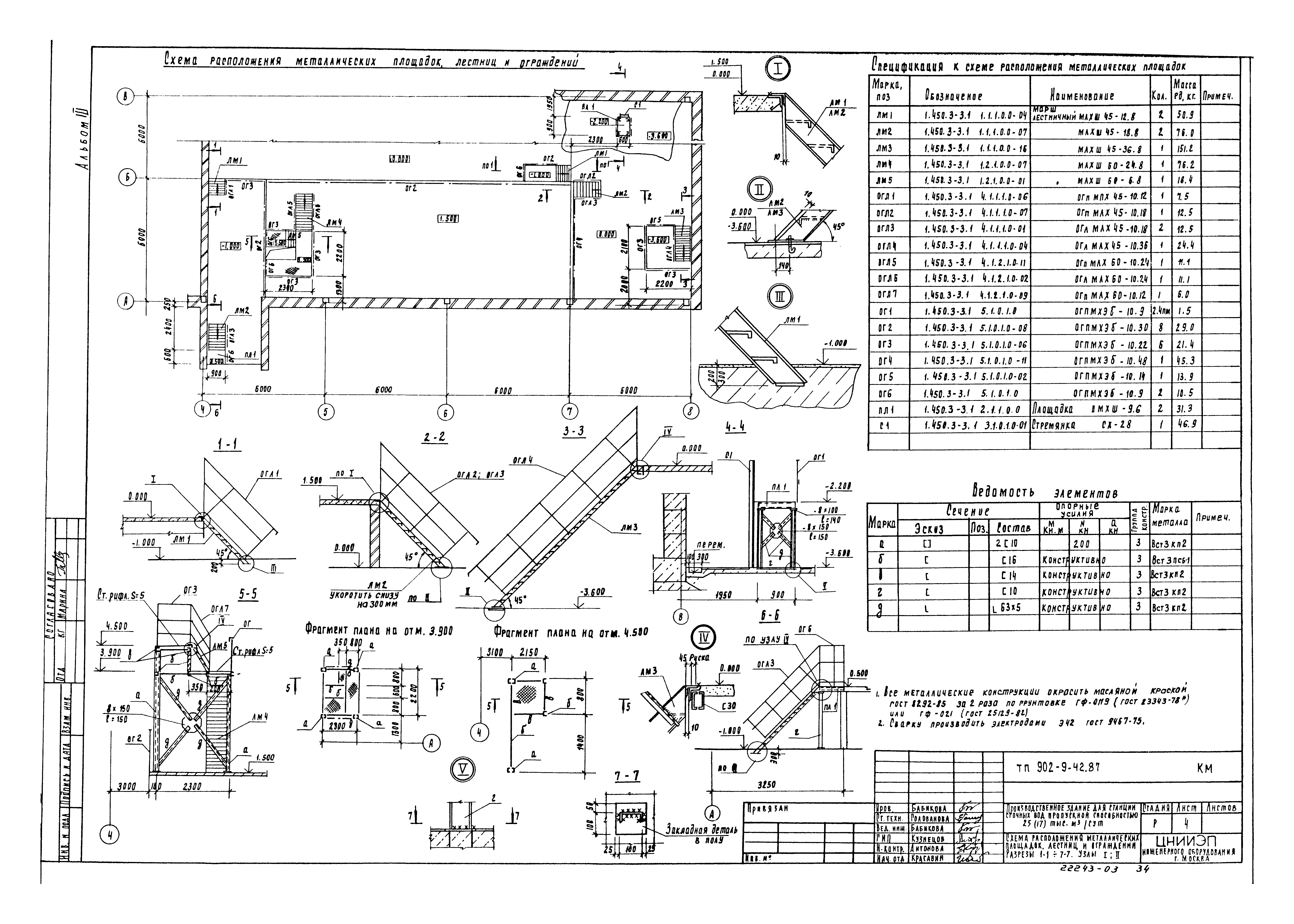
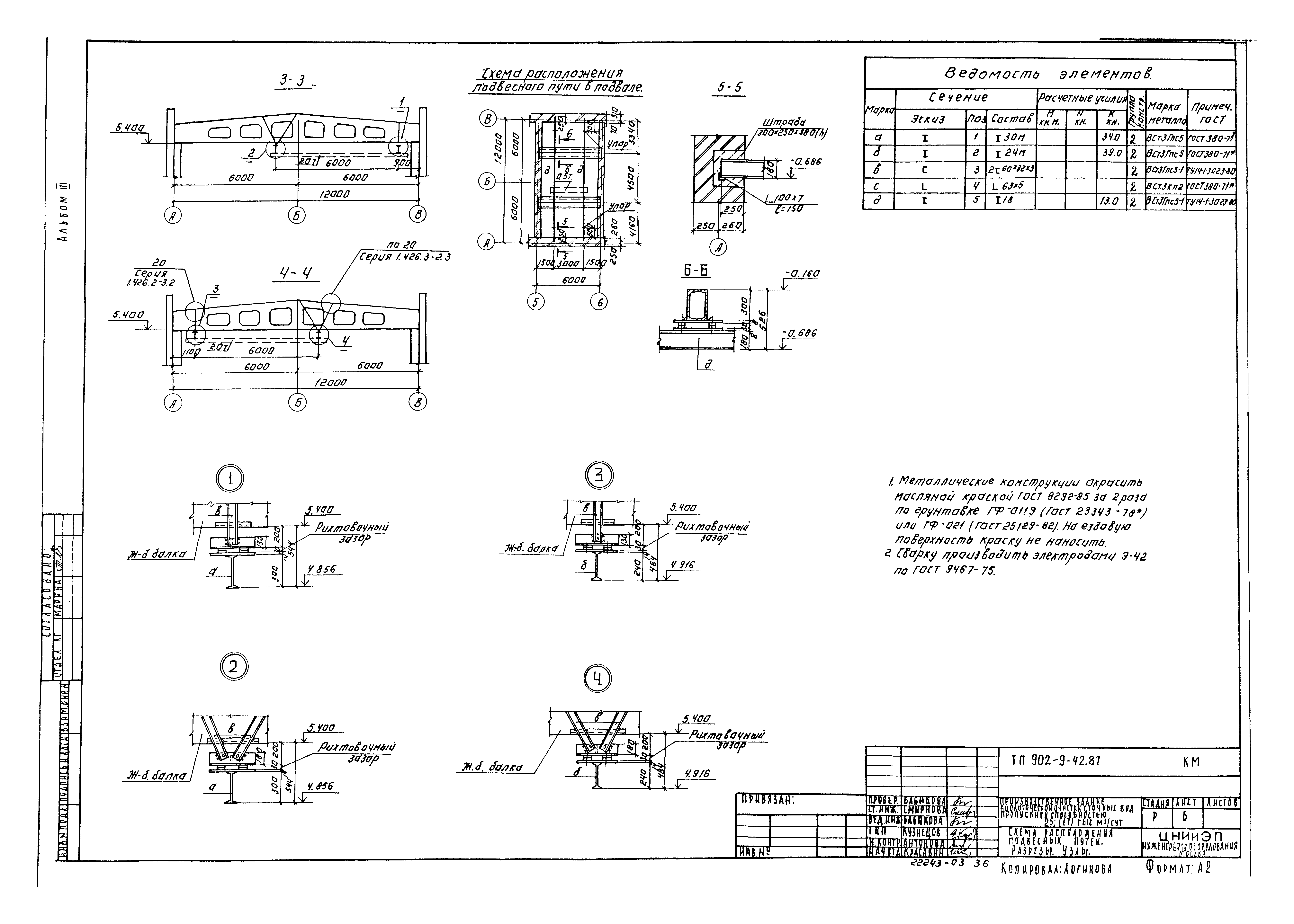
| Оглавление: | Архитектурно-строительные решения Общие данные Планы на отм. 0.000; - 3.600. Разрезы 1-1, 2-2. Фрагмент 1 Фасады 1 - 6; 6 - 1; А - В; В - А. Схемы заполнения оконных проемов Спецификация элементов заполнения проемов. Ведомость проемов ворот и дверей. Ведомость перемычек. Узлы I, II, III. Спецификация перемычек План кровли. Планы полов. Экспликация полов. Ведомость отделки помещений Транспортная галерея. План. Разрезы. Фасады Конструкции железобетонные Общие данные Схема расположения фундаментов и фундаментных балок Схема расположения фундаментов и фундаментных балок. Узлы. Сечения Фундаменты Фм1 - Фм4 Фундаменты Фм5 - Фм8 Схема расположения колонн, балок покрытия, плит покрытия. Разрезы Разрезы 3-3 - 6-6. Узлы А, Б, В. Спецификация соединительных элементов каркаса Схема расположения стеновых панелей План канала и фундаментов под оборудование. Схема расположения плит перекрытия канала. Разрезы КТП. Схема расположения каналов и приямков. Разрезы. Спецификация КТП. Балки Бм1 и Бм2. Разрезы. Спецификация Схемы расположения плит перекрытия на отм. 1.500; 3.000; 3.600 Схемы расположения плит перекрытия на отм. 1.500; 3.000; 3.600. Участки монолитные Ум1 - Ум4 Схемы расположения плит перекрытия на отм. 0.000. Разрезы Схемы расположения плит перекрытия на отм. 0.000. Участки монолитные Ум5 - Ум7 Схема расположения фундаментов под оборудование Фундамент Фо6. Опалубочный чертеж Фундамент Фо6. Армирование Транспортерная галерея. Схема расположения плит перекрытия, стеновых блоков и стеновых панелей Транспортерная галерея. Монолитные участки Ум1, Ум2 Транспортерная галерея. Схема расположения фундаментов под галерею Приточная камера. Камера фильтров. Схема расположения закладных деталей Конструкции металлические Общие данные. Ведомость металлоконструкций по видам профилей Техническая спецификация стали Схема расположения металлических площадок, лестниц и ограждений. Разрезы 1-1 - 7-7. Узлы I, II Схема расположения подвесных путей. Разрезы Схема расположения подвесных путей. Разрезы. Узлы Транспортерная галерея. Схема расположения балок, связей по верхним и нижним поясам ферм. Шарнирная опора О1 Организация строительства График производства работ |
| Разработан: | ЦНИИЭП инженерного оборудования |
| Утверждён: | 13.03.1987 Госгражданстрой (Gosgrazhdanstroy 79) Государственный комитет по гражданскому строительству и архитектуре при Госстрое СССР |
| Издан: | ЦИТП Госстроя СССР (CITP, Gosstroy (USSR) 1988 г. ) |
| Заменяет собой: |
|






































