Скачать Типовой проект 501-5-62.86 Альбом 1. Пояснительная записка. Технологические решения. Связь и сигнализация. Архитектурные решения. Конструкции железобетонныеДата актуализации: 01.01.2021
|
| Обозначение: | Типовой проект 501-5-62.86 |
| Обозначение англ: | 501-5-62.86 |
| Статус: | не определен законодательством |
| Название рус.: | Альбом 1. Пояснительная записка. Технологические решения. Связь и сигнализация. Архитектурные решения. Конструкции железобетонные |
| Дата добавления в базу: | 01.10.2014 |
| Дата актуализации: | 01.01.2021 |
| Дата введения: | 01.05.1986 |
| Дата окончания срока действия: | 30.06.2003 |
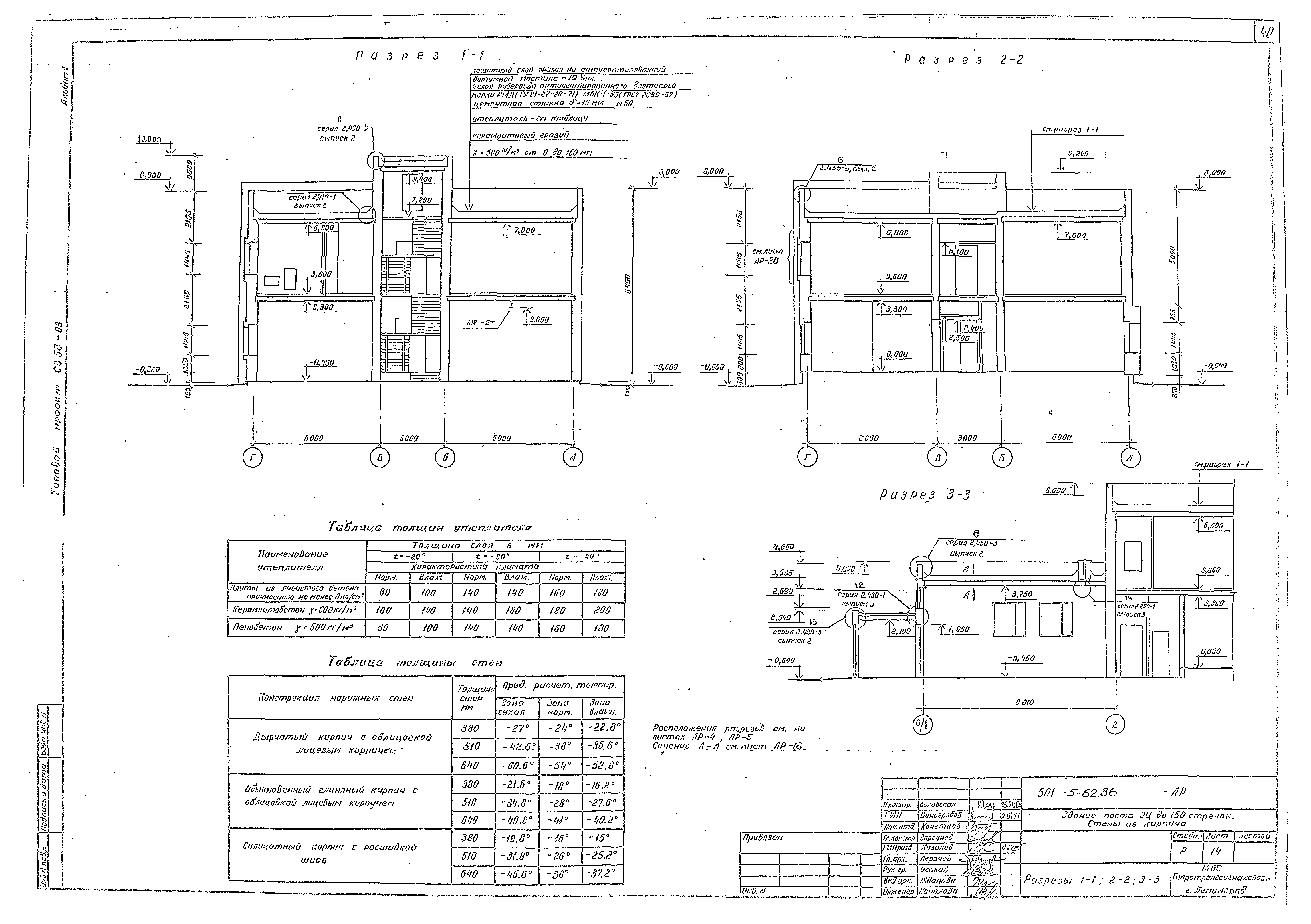
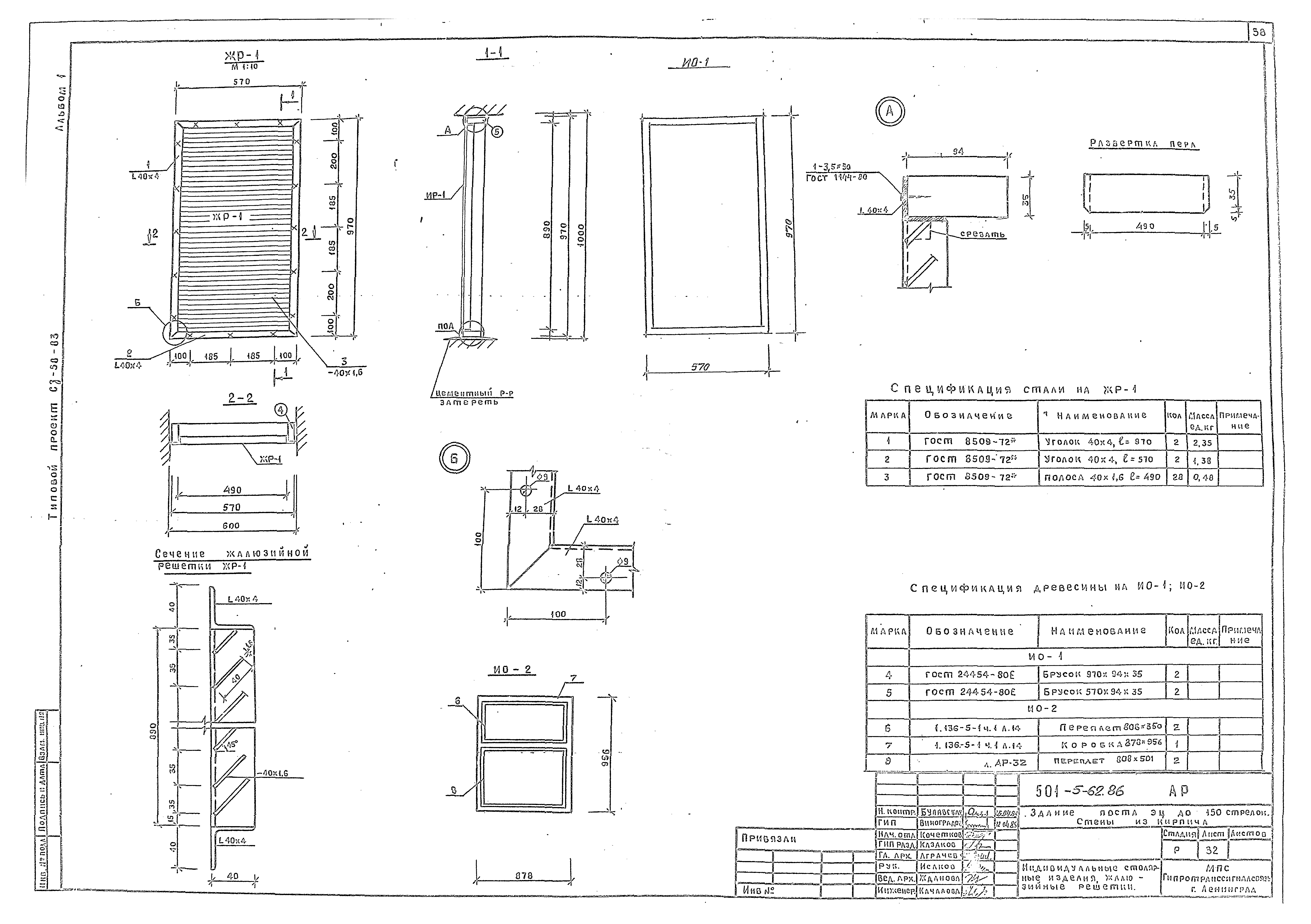
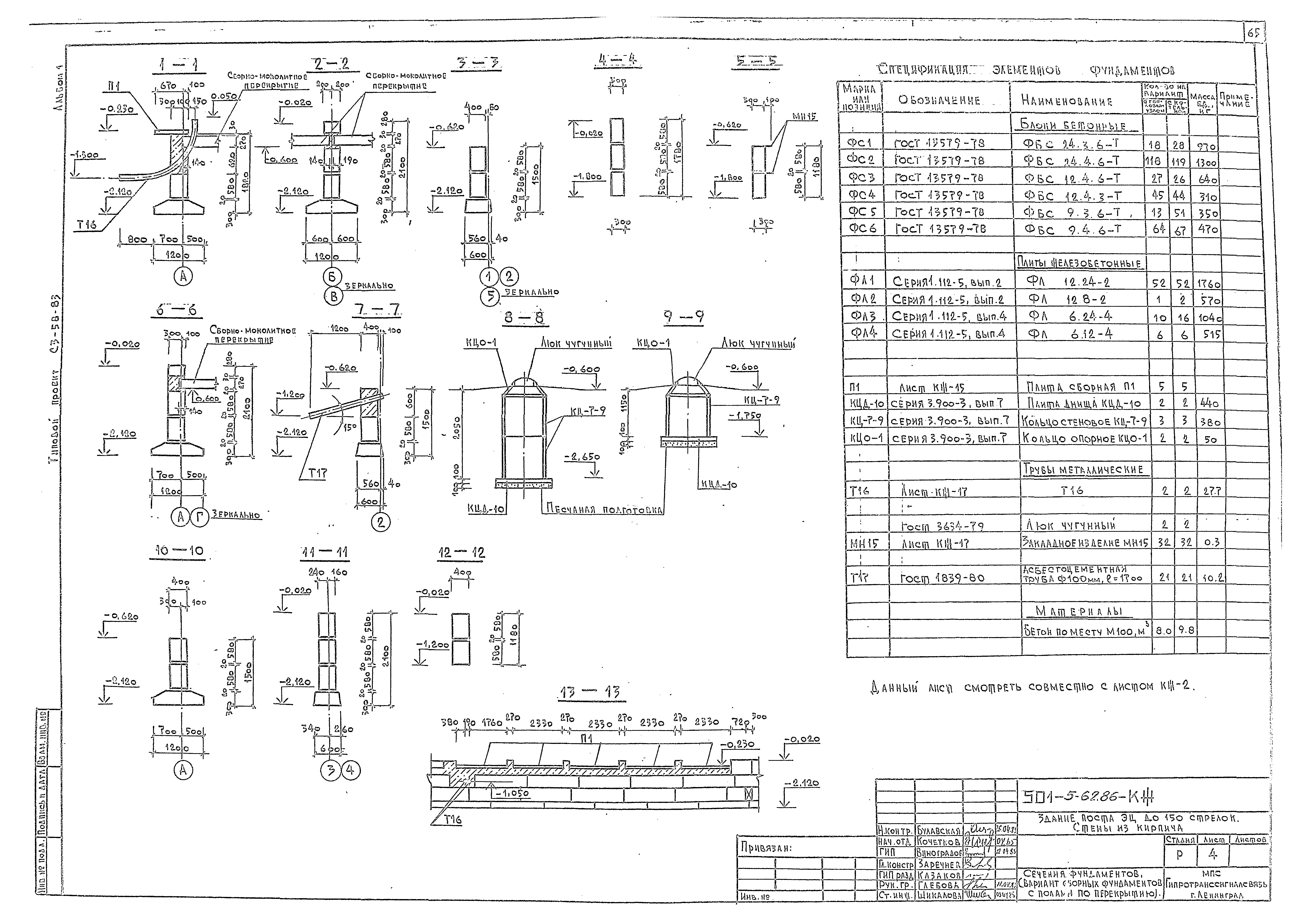
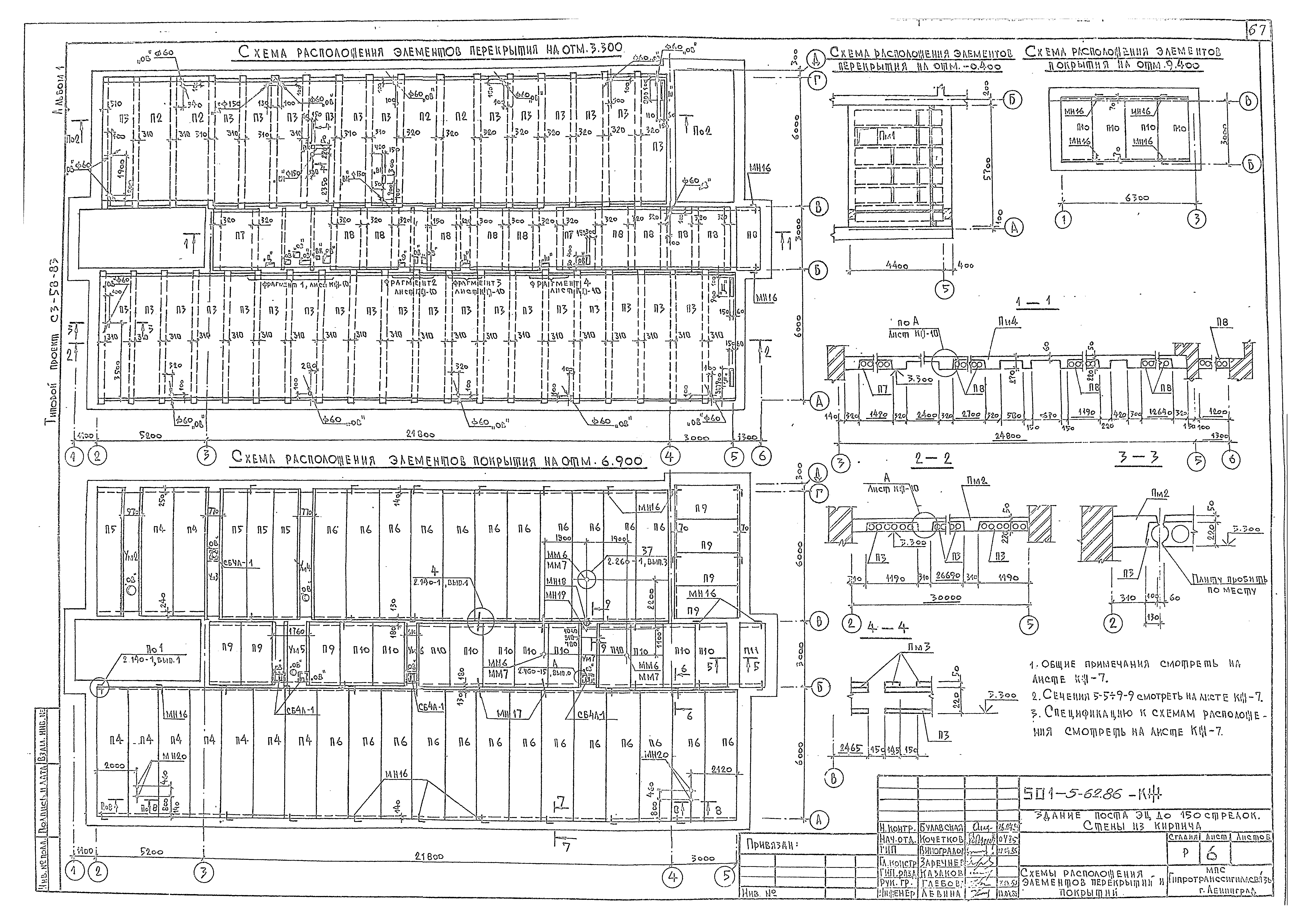
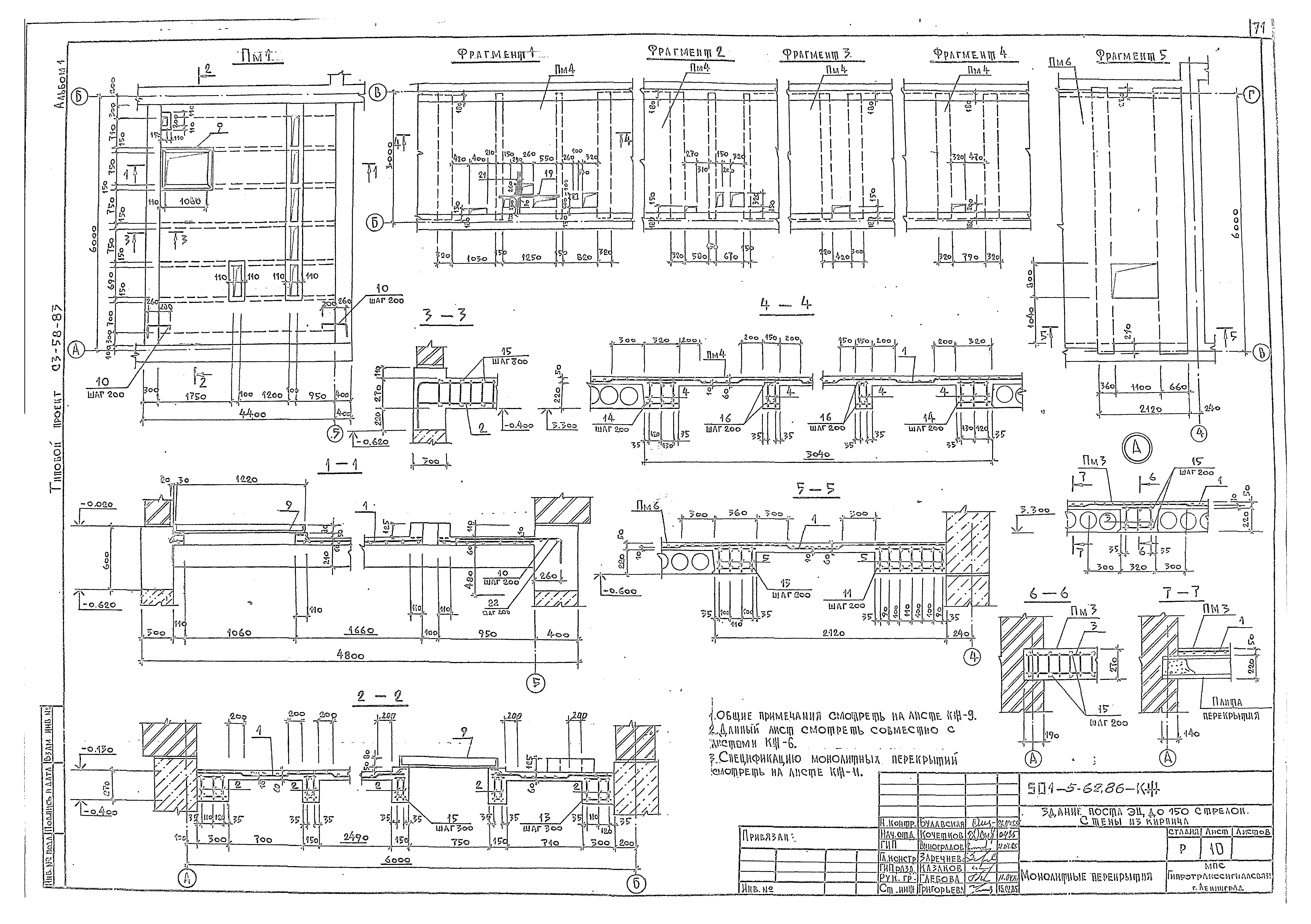
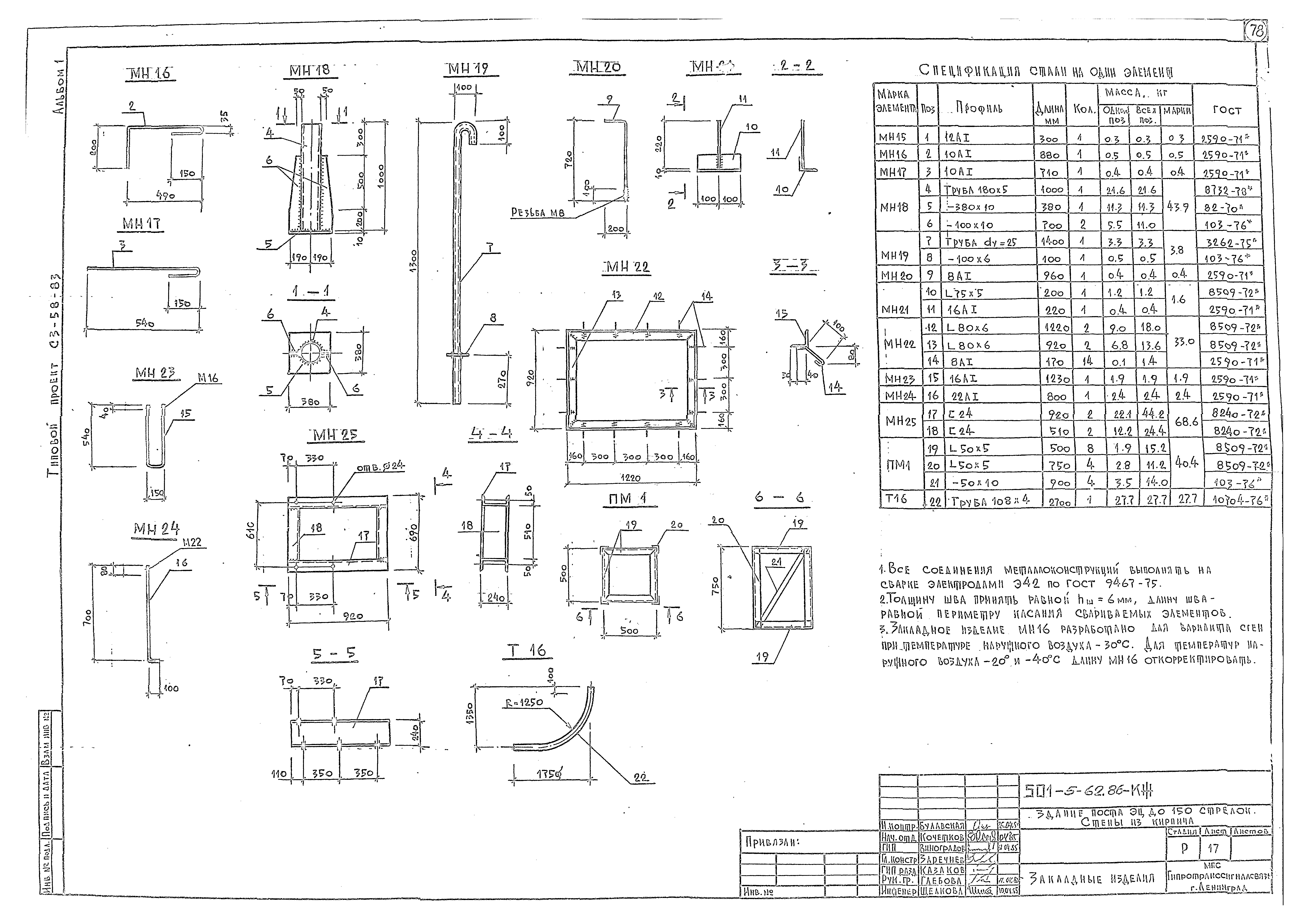
| Оглавление: | Содержание Пояснительная записка Технологические решения Общие данные План расположения технологического оборудования на 1 этаже План расположения технологического оборудования на 2 этаже Экспликация технологического оборудования Расположение элементов кабельростов релейной Расположение элементов кабельростов связевой Расположение элементов кабельростов кроссовой и подполья Узлы крепления кабельростов Связь и сигнализация Общие данные План расположения слаботочных устройств на 1 этаже План расположения слаботочных устройств на 2 этаже Схема расположения слаботочных устройств Слаботочные устройства. Спецификация Архитектурные решения Общие данные Схемы генеральных планов План 1 этажа (вариант плана с котельной) План 2 этажа Ведомость перемычек Спецификация перемычек Спецификации Фасад 1 - 6 Фасад 6 - 1 Фасады А - Д; Г - А Фасады 0/1 - 6; 6 - 0/1 (вариант с котельной) Фасады А - Д; Г - А (вариант с котельной) Разрезы 1-1, 2-2, 3-3 Фрагменты планов 1, 2, 3, 4 Фрагменты планов 5, 6 Фрагмент фасада 1 Детали планов Детали цоколя Детали цоколя. Обрамление ОС 15-15 План полов 1 этажа План полов 2 этажа Экспликация полов План каналов 1 этажа Сечения каналов План пола аппаратной План кабельного подполья аппаратной Фрагменты релейной при питающей установке с нижним подключением кабеля План кровли. Вариант кровли с котельной Планы подвесных потолков Дымовая труба. План фундаментов и борова Индивидуальные столярные изделия. Жалюзийные решетки Индивидуальные столярные изделия. Дверь ШД-1 Съемные щиты пола Закладные изделия Конструкции железобетонные Общие данные План фундаментов Сечения фундаментов Сечения фундаментов (вариант сборных фундаментов с полами по перекрытию) Сечения фундаментов (вариант из бутобетона) Схемы расположения элементов перекрытий и покрытий Схема расположения элементов покрытия котельной Схема расположения элементов перекрытия на отм. - 0.600 Монолитные участки Ум2 - Ум8 Монолитные перекрытия Спецификация элементов монолитных участков Ум2 - Ум9 и монолитных перекрытий Пм1 - Пм7 Каркасы Кр1 - Кр6. Ведомость расхода стали на один элемент Схемы расположения элементов лестниц Фундамент ФОм1 под дизель-генератор ДГА-2-48м. Фундамент ФОм2 Фундаменты под оборудование ФОм3, ФОм4, ФОм5, ФОм6 Сетчатое ограждение Закладные изделия |
| Разработан: | Гипротранссигналсвязь |
| Утверждён: | 24.10.1985 Министерство путей сообщения СССР (USSR Ministry of Railroads А-32899) |














































































