Скачать Типовой проект 802-5-78.88 Альбом 1. Пояснительная записка. Технология производства. Архитектурно-строительные решения. Конструкции металлические. Внутренние водопровод и канализация. Отопление и вентиляция. Электрооборудование. Автоматизация систем отопления и вентиляции. Связь и сигнализацияДата актуализации: 01.01.2021
|
| Обозначение: | Типовой проект 802-5-78.88 |
| Обозначение англ: | 802-5-78.88 |
| Статус: | не определен законодательством |
| Название рус.: | Альбом 1. Пояснительная записка. Технология производства. Архитектурно-строительные решения. Конструкции металлические. Внутренние водопровод и канализация. Отопление и вентиляция. Электрооборудование. Автоматизация систем отопления и вентиляции. Связь и сигнализация |
| Дата добавления в базу: | 01.10.2014 |
| Дата актуализации: | 01.01.2021 |
| Дата введения: | 22.08.1988 |
| Дата окончания срока действия: | 30.06.2003 |
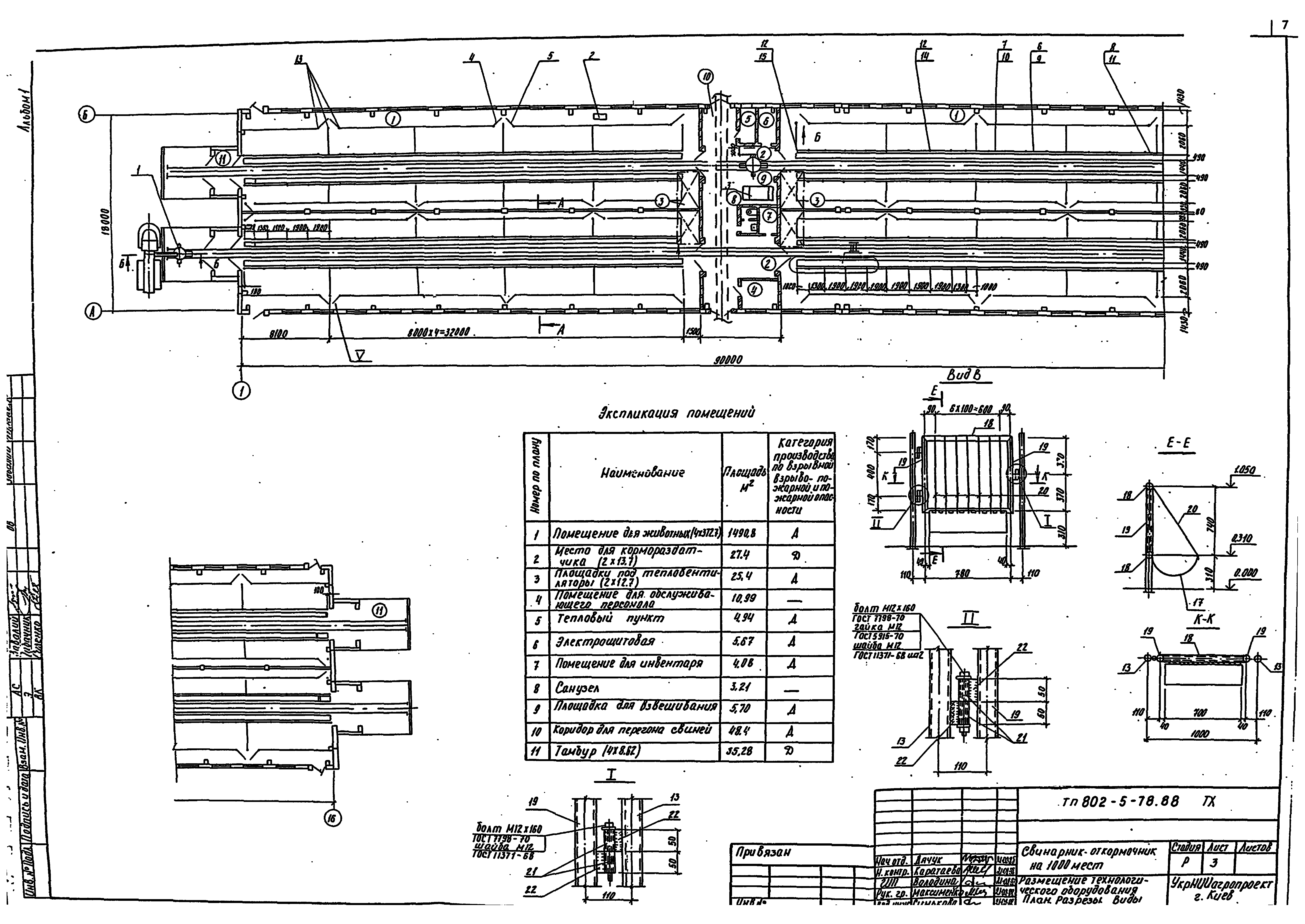
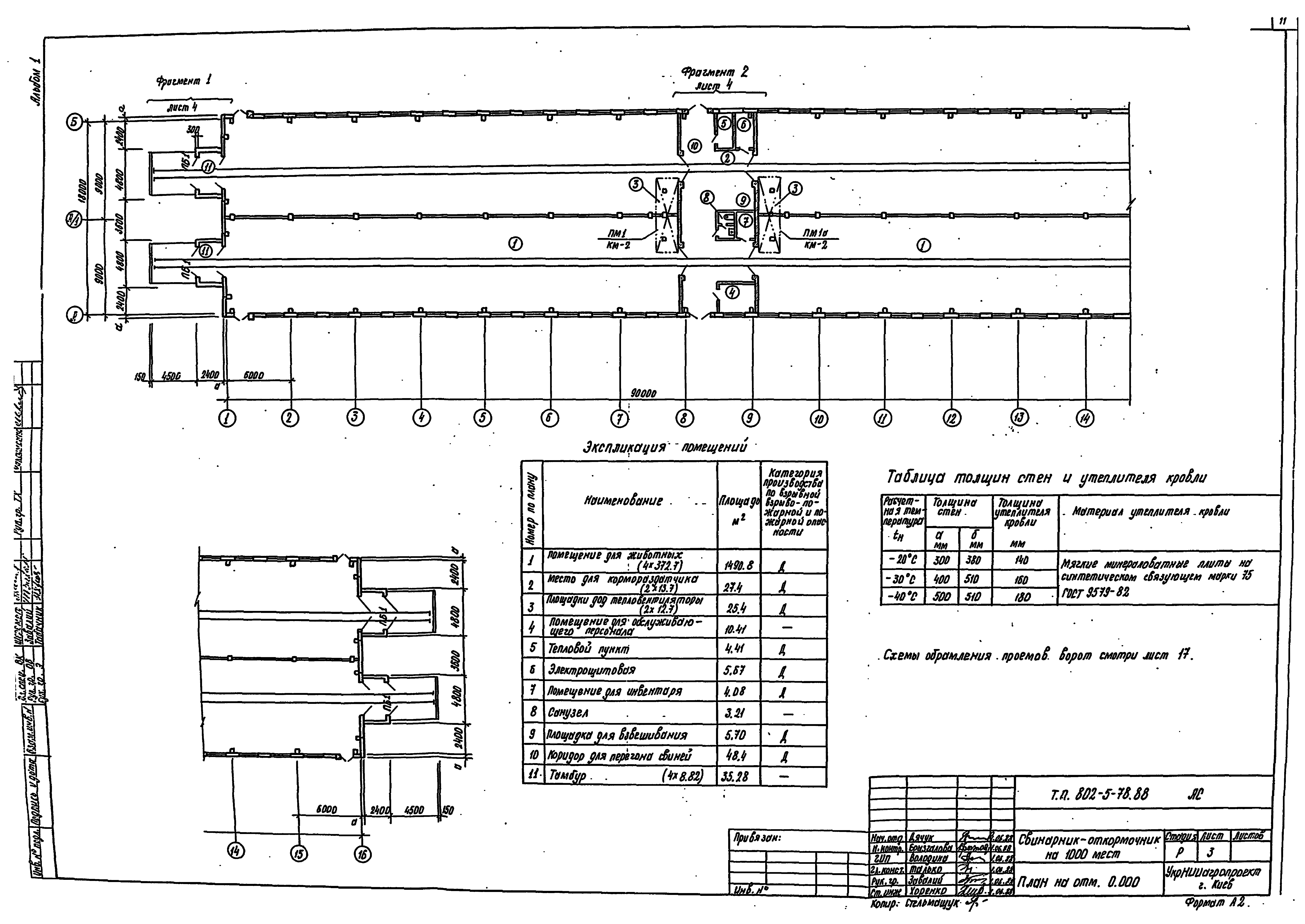
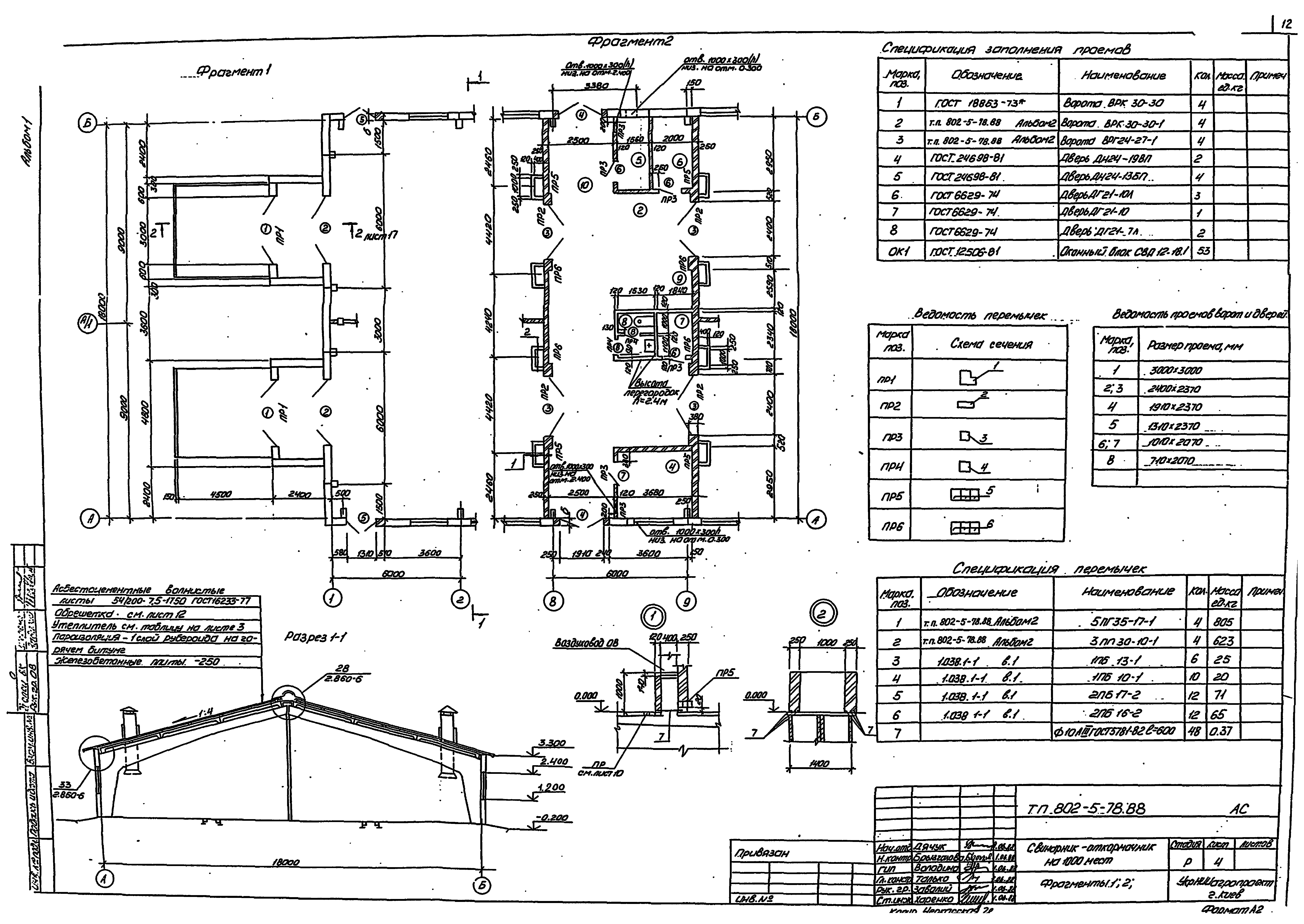
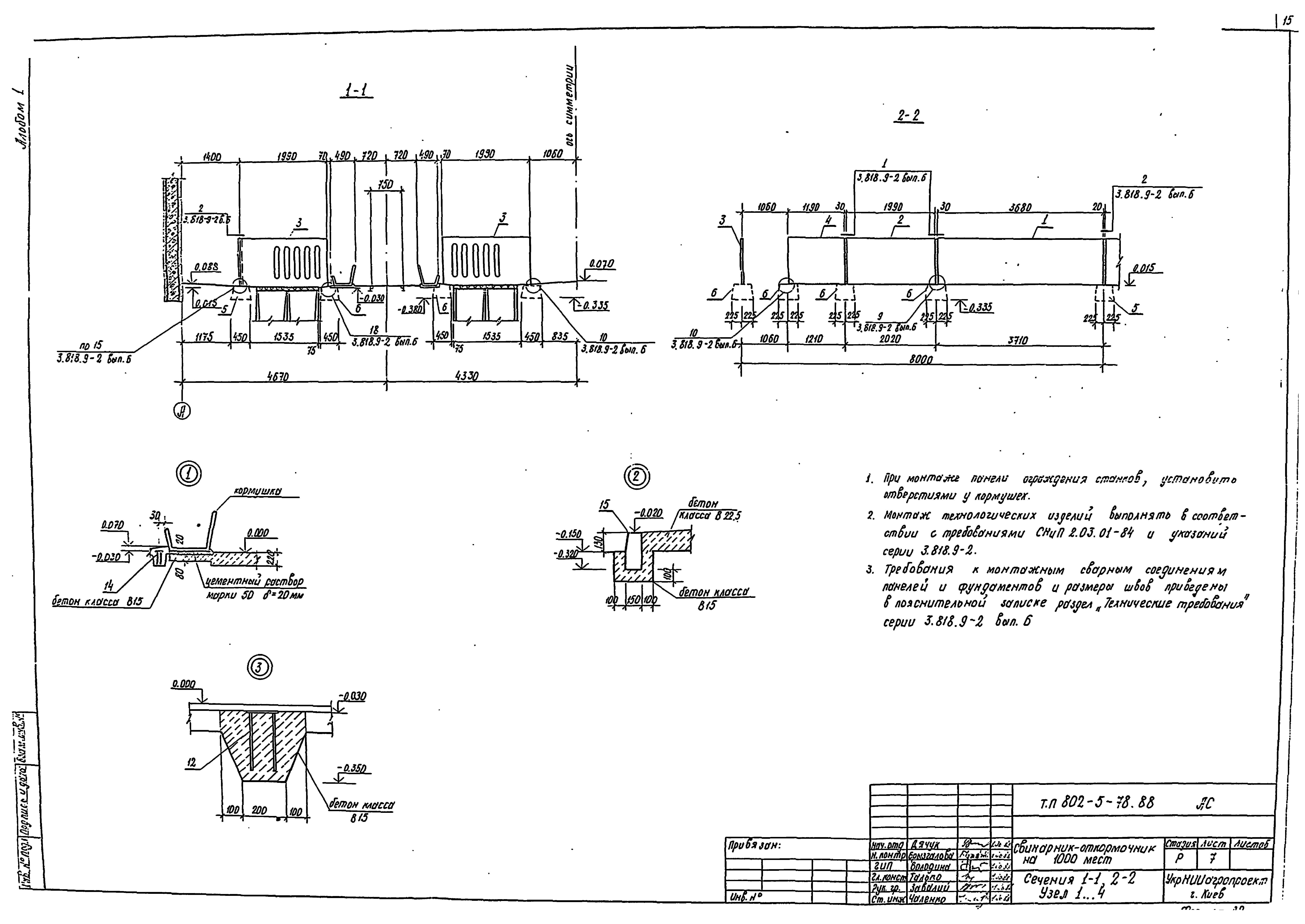
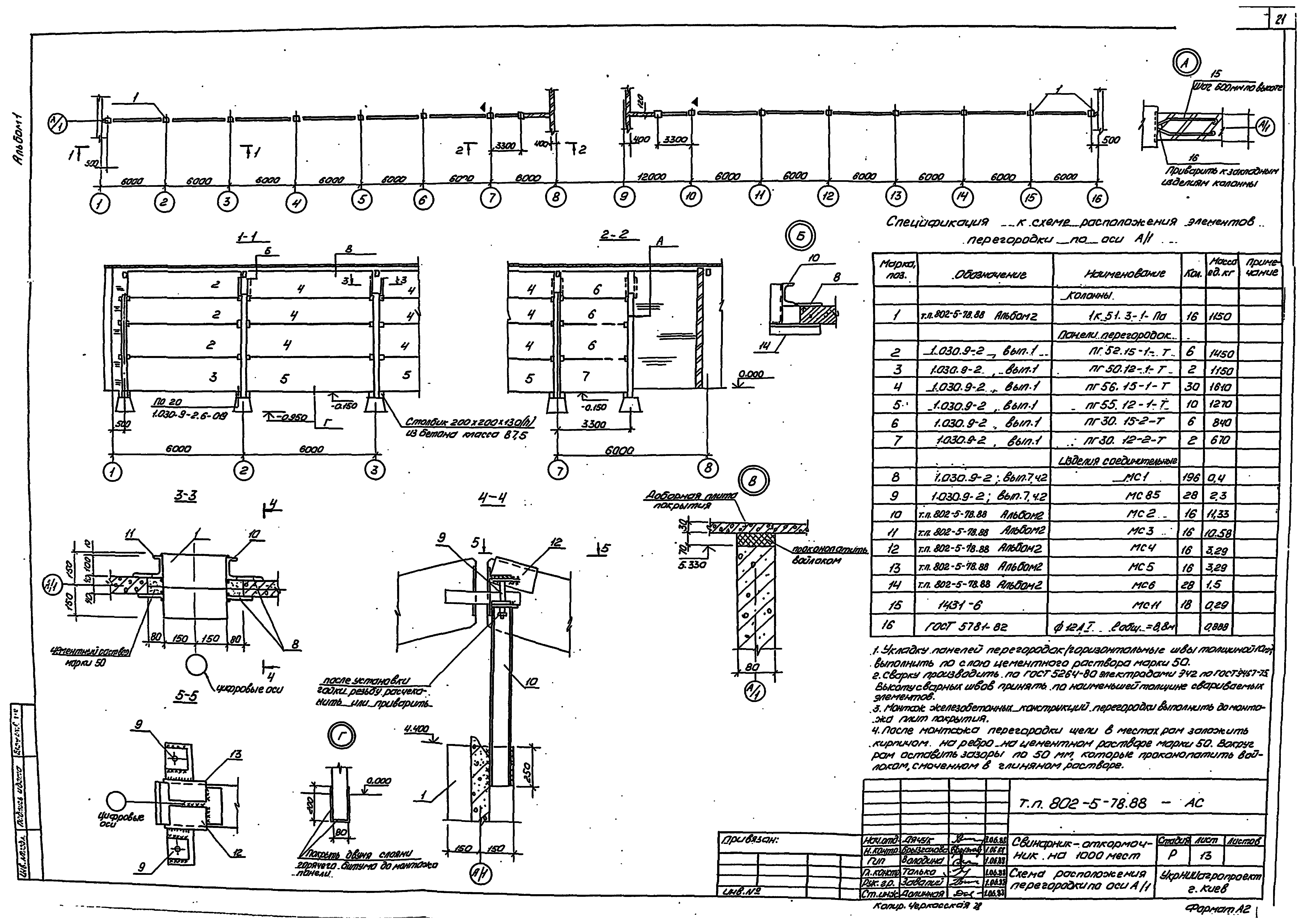
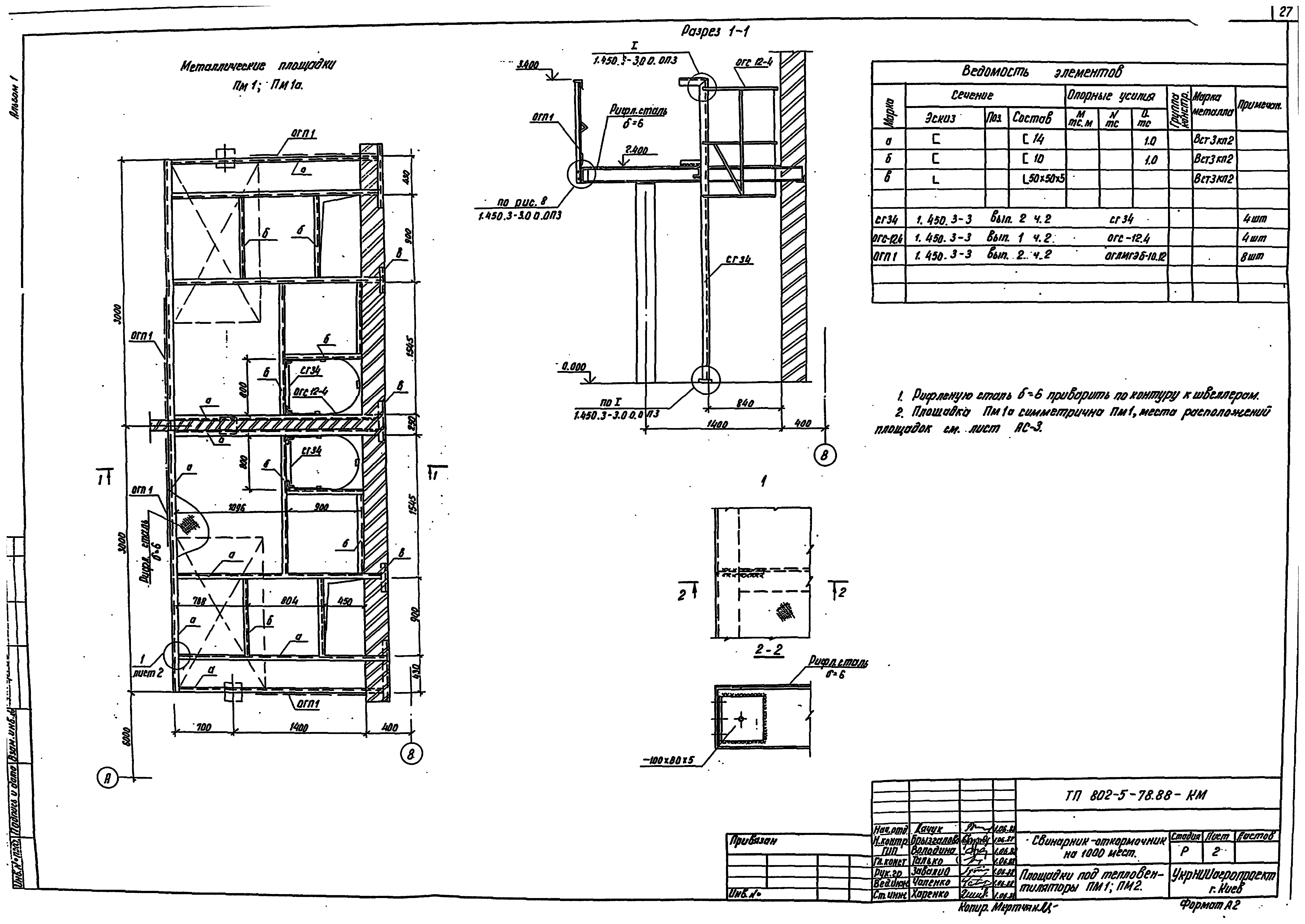
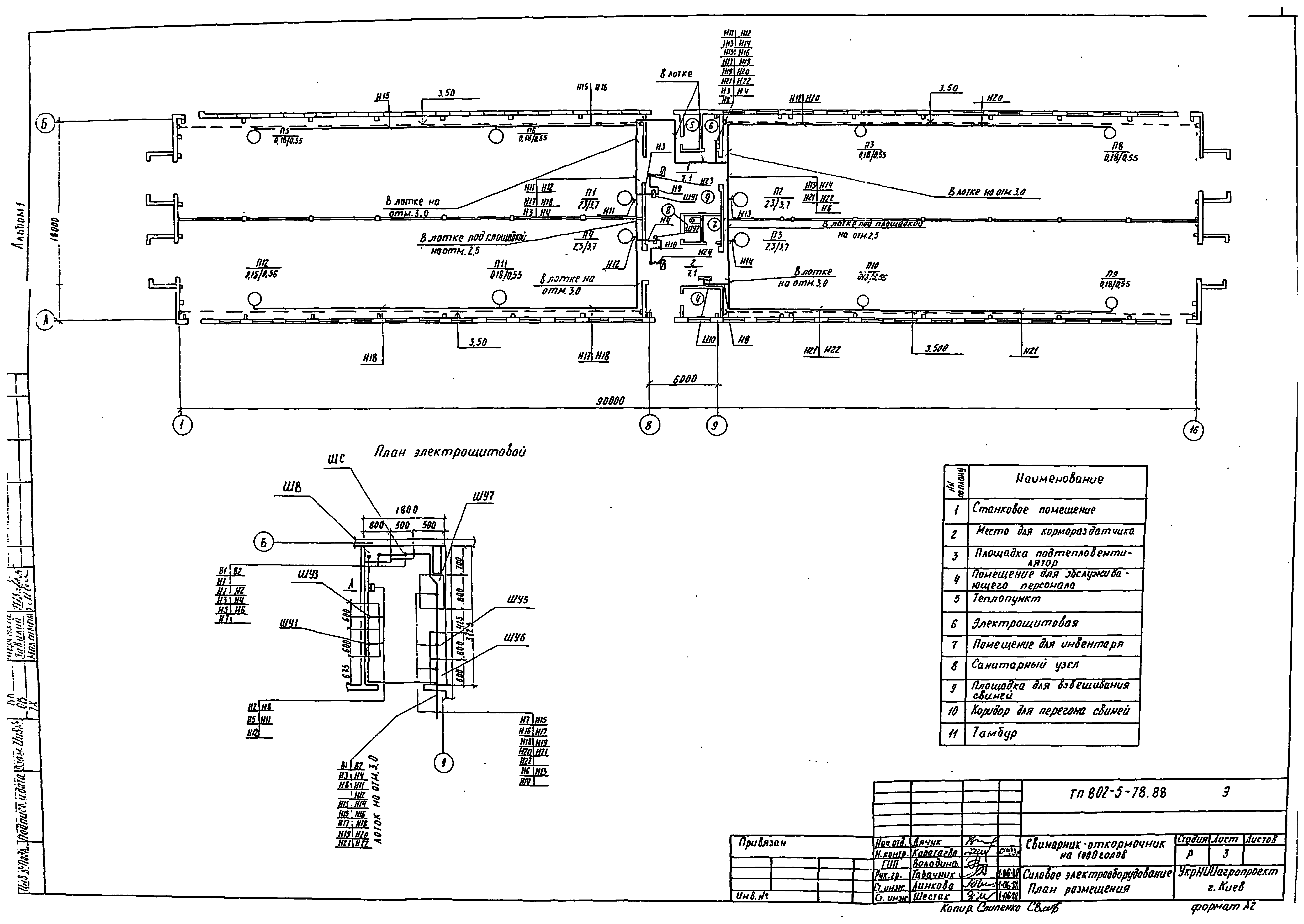
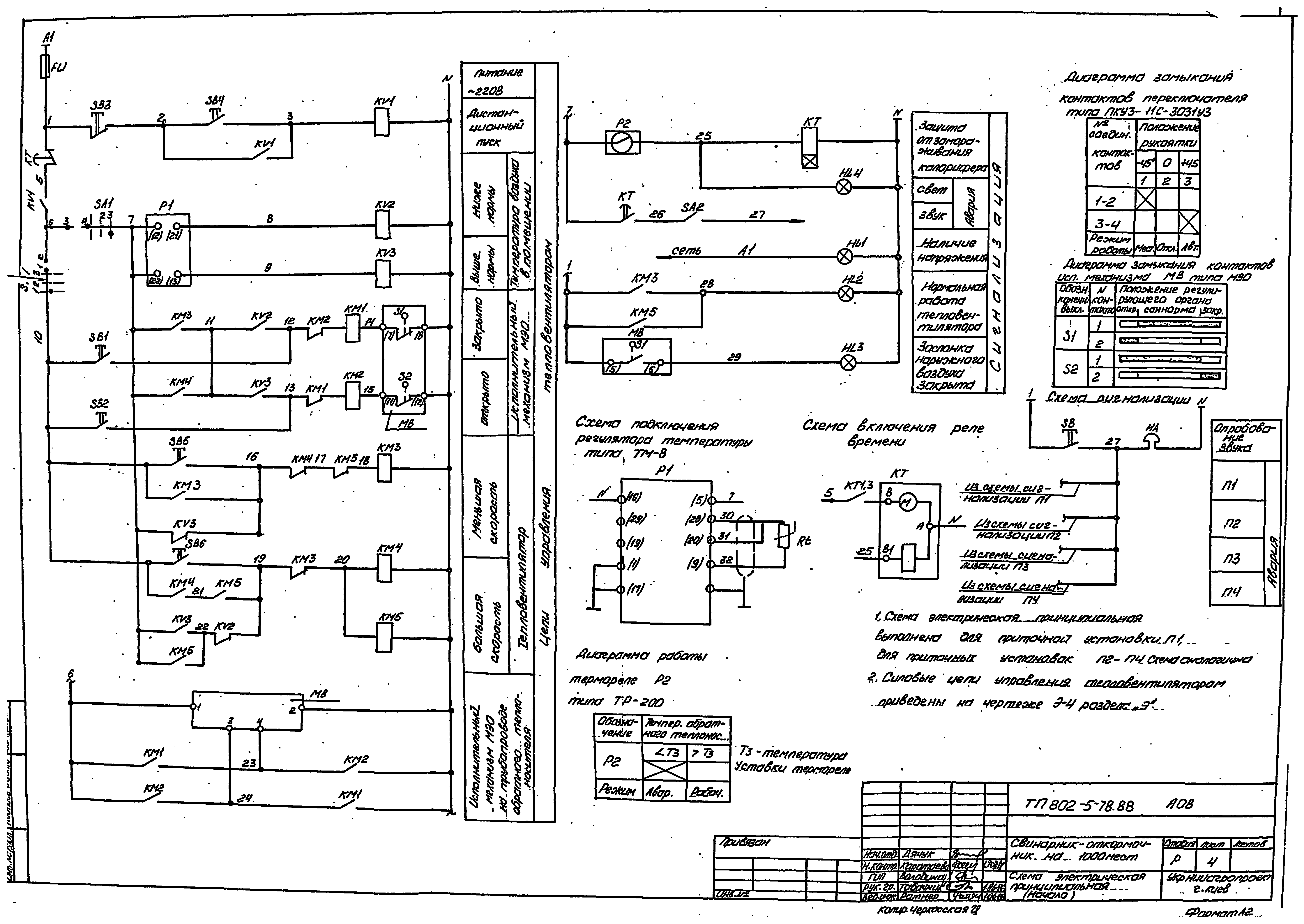
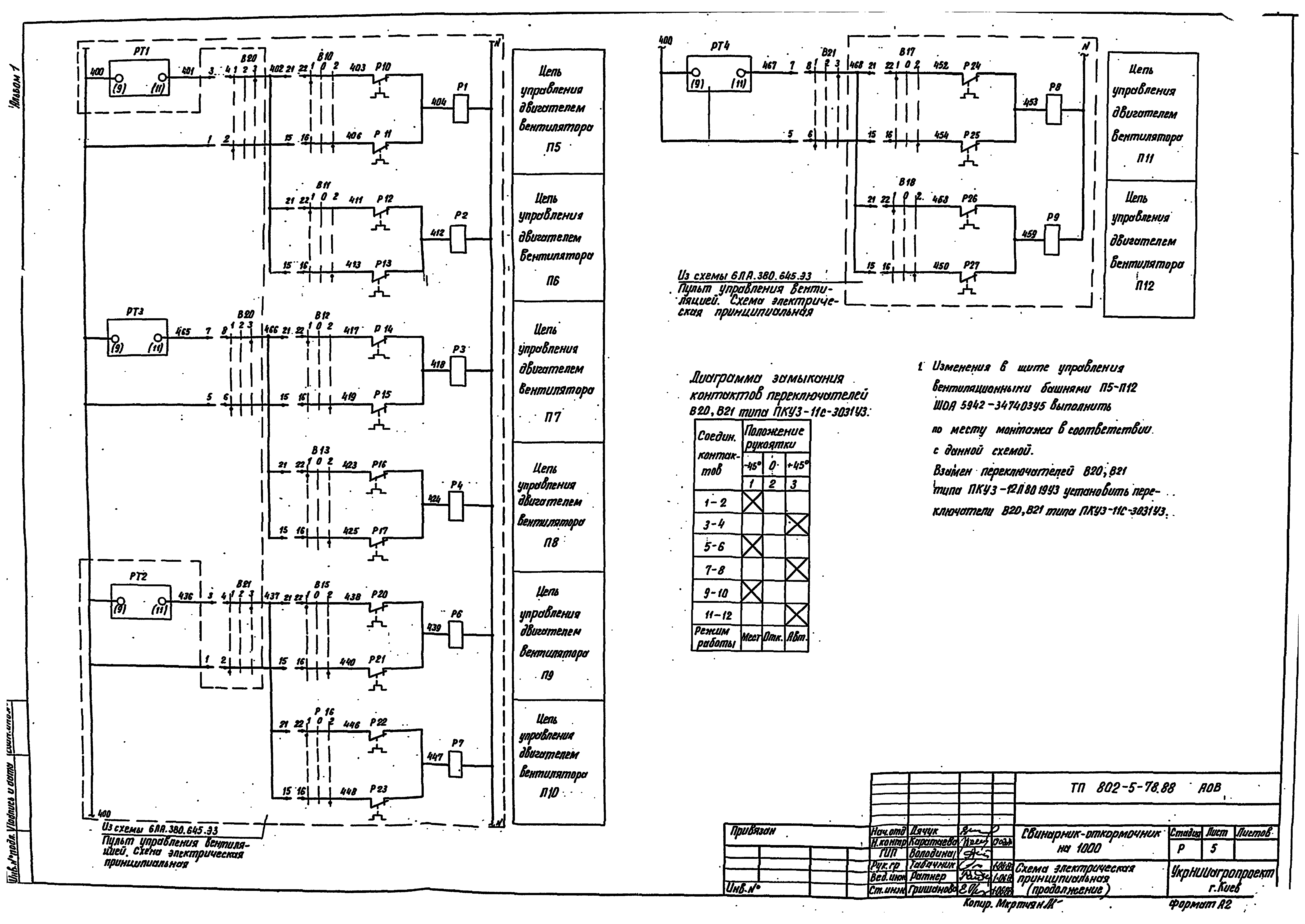
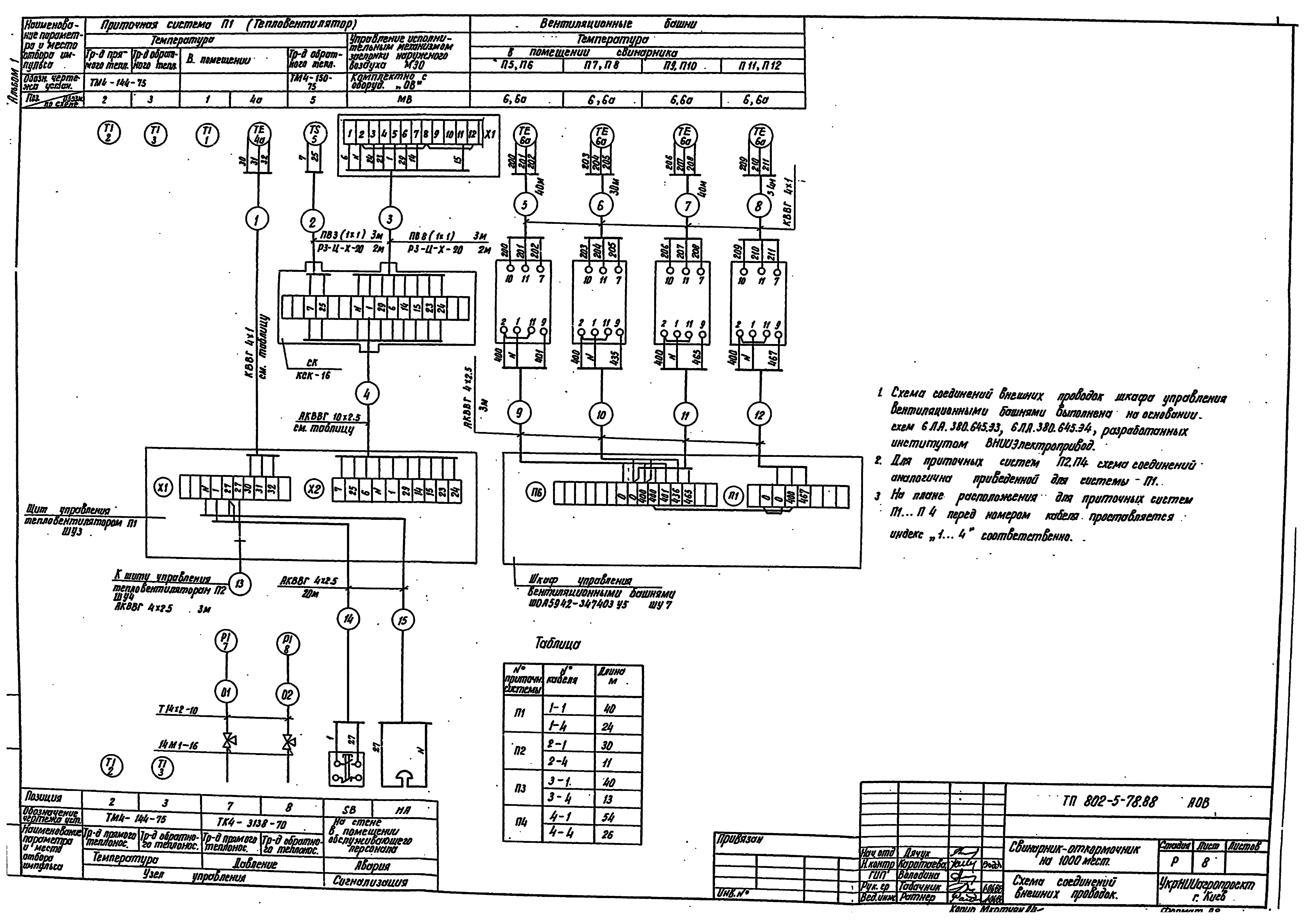
| Оглавление: | Содержание альбома Пояснительная записка Технология производства Общие данные по рабочим чертежам Размещение технологического оборудования. План. Разрезы. Виды Размещение технологического оборудования. Разрезы. Виды Архитектурно-строительные решения Общие данные по рабочим чертежам План на отм. 0.000 Фрагменты 1, 2 Фасады 1 - 16; 16 - 1; А - Б; Б - А Схема расположения панелей ограждения, кормушек рельсового пути. План полов Сечения 1-1, 2-2. Узел 1…4 Схема расположения элементов фундаментов Узел 1. Сечения 1-1…7-7 Схема расположения каналов навозоудаления Схема расположения элементов каркаса и плит покрытия Схема расположения обрешетки и брусков под обрешетки Схема расположения перегородки по оси А/1 Схема расположения стеновых панелей Спецификация к схеме расположения стеновых панелей Узлы 1…3. Сечение 4-4. Спецификации к схемам расположения плит покрытия и стеновых панелей Схемы обрамления проемов ворот. Сечение 1-1 Конструкции металлические Общие данные по рабочим чертежам Площадки под тепловентиляторы ПМ1, ПМ2 Внутренние водопровод и канализация Общие данные по рабочим чертежам План с системами В1, Т3, Т31 План с системами В3, К13 Схемы систем В1, Т3, Т31 Схемы систем В3, К, К13 Отопление и вентиляция Общие данные по рабочим чертежам План на отм. 0.000. Разрез 1-1 Схемы систем отопления, теплоснабжения. Схемы систем П1 - П12; ВЕ1 - ВЕ14. Узел управления Детали крепления и монтаж воздуховодов из полиэтиленовой пленки Электрооборудование Общие данные по рабочим чертежам Электроосвещение. План размещения Силовое электрооборудование. План размещения Силовое электрооборудование. Схема принципиальная Щит управления тепловентилятором. Общий вид. Эскиз Автоматизация систем отопления и вентиляции Общие данные по рабочим чертежам Схема функциональная Схема электрическая принципиальная Схема соединений внешних проводок План расположения Связь и сигнализация План сетей телефонизации и радиофикации |
| Разработан: | УкрНИИагропроект |
| Утверждён: | 22.08.1988 Госагропром СССР (USSR Gosagroprom ) |





















































