Скачать Серия 3.901-12 Выпуск 2. Затвор плоский глубинный 500х600 с электрическим или ручным приводом. Рабочие чертежиДата актуализации: 01.01.2021
|
| Обозначение: | Серия 3.901-12 |
| Обозначение англ: | Series 3.901-12 |
| Статус: | отменен |
| Название рус.: | Выпуск 2. Затвор плоский глубинный 500х600 с электрическим или ручным приводом. Рабочие чертежи |
| Дата добавления в базу: | 01.10.2014 |
| Дата актуализации: | 01.01.2021 |
| Дата введения: | 01.08.1973 |
| Дата окончания срока действия: | 01.11.1991 |
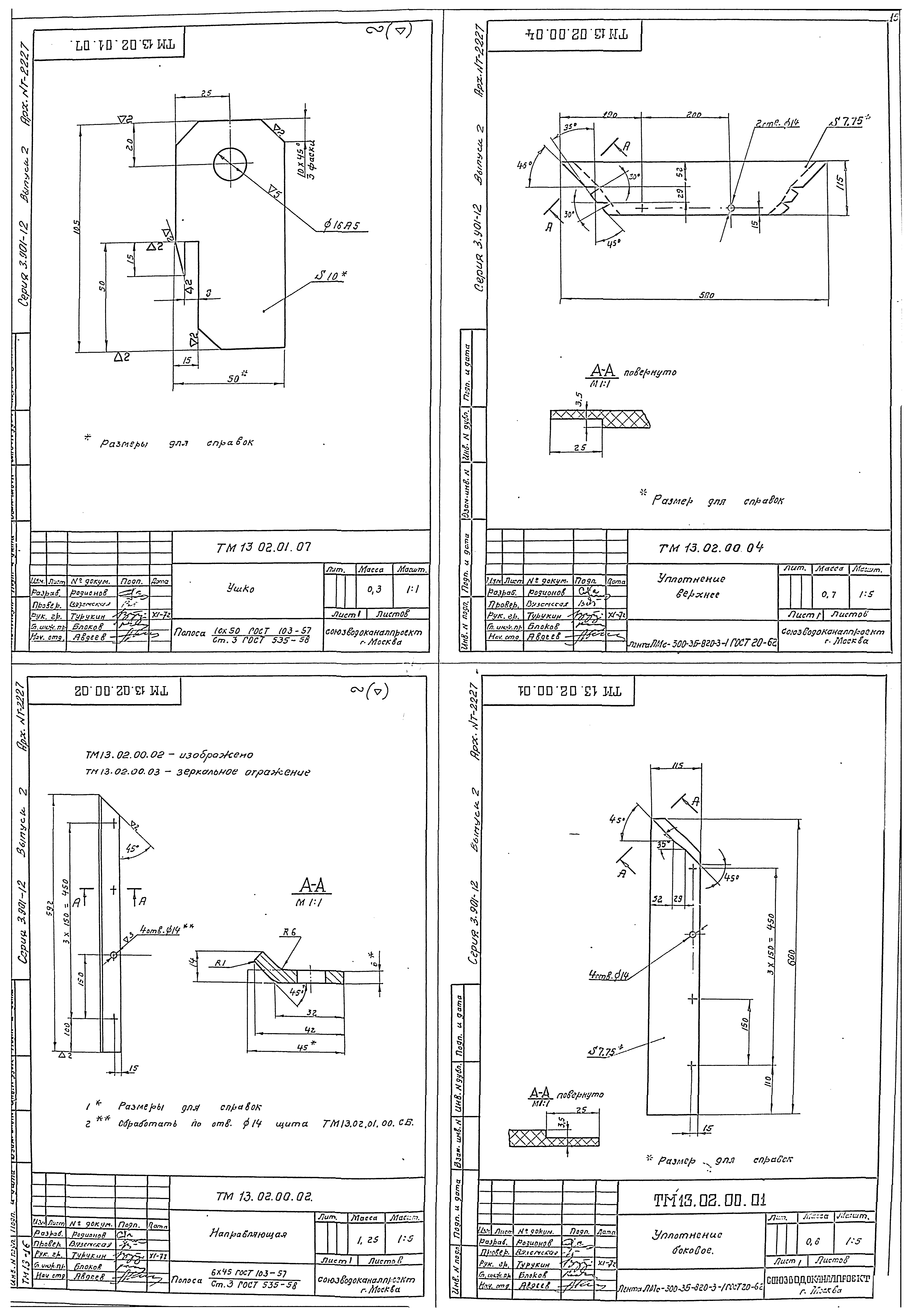
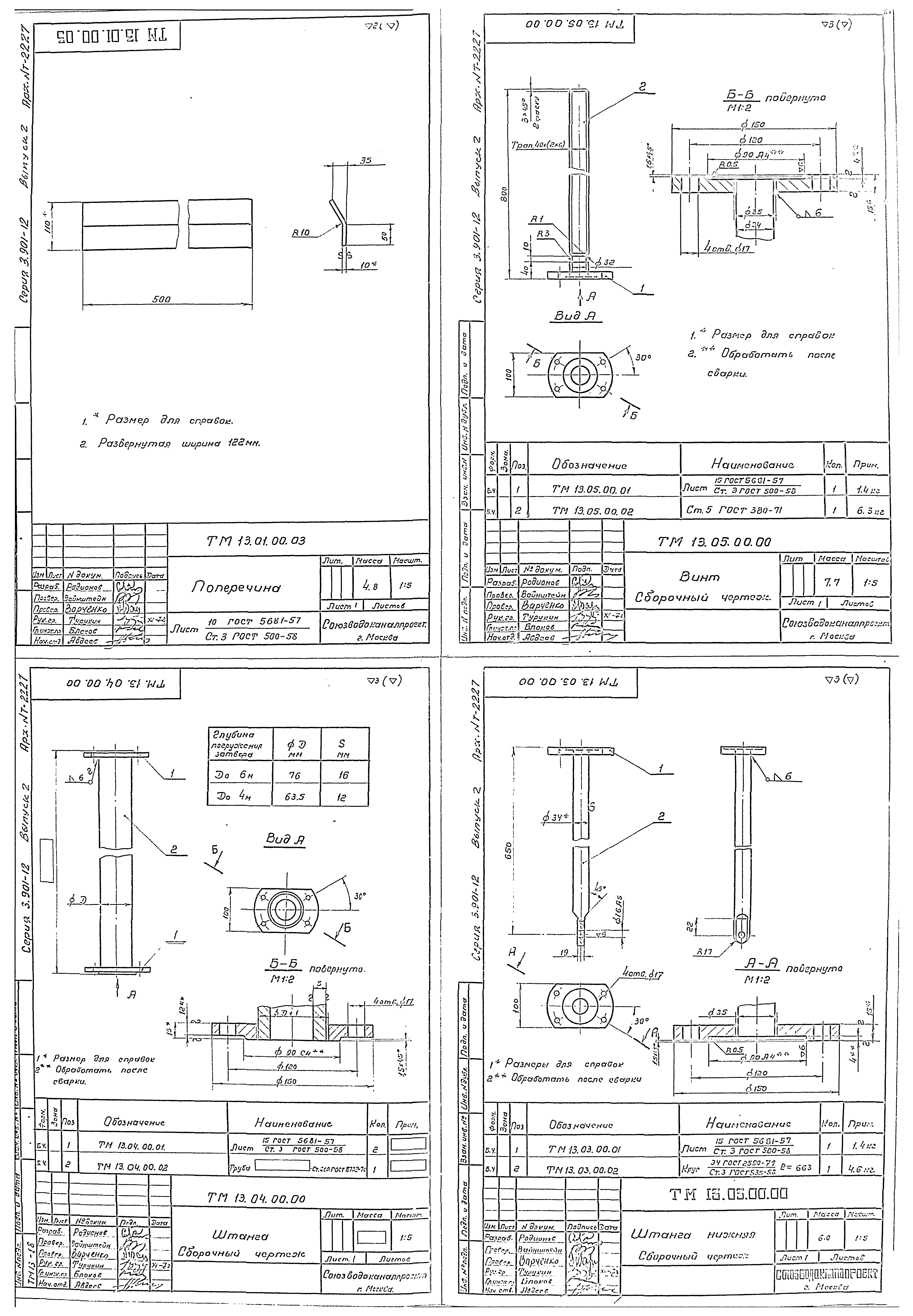
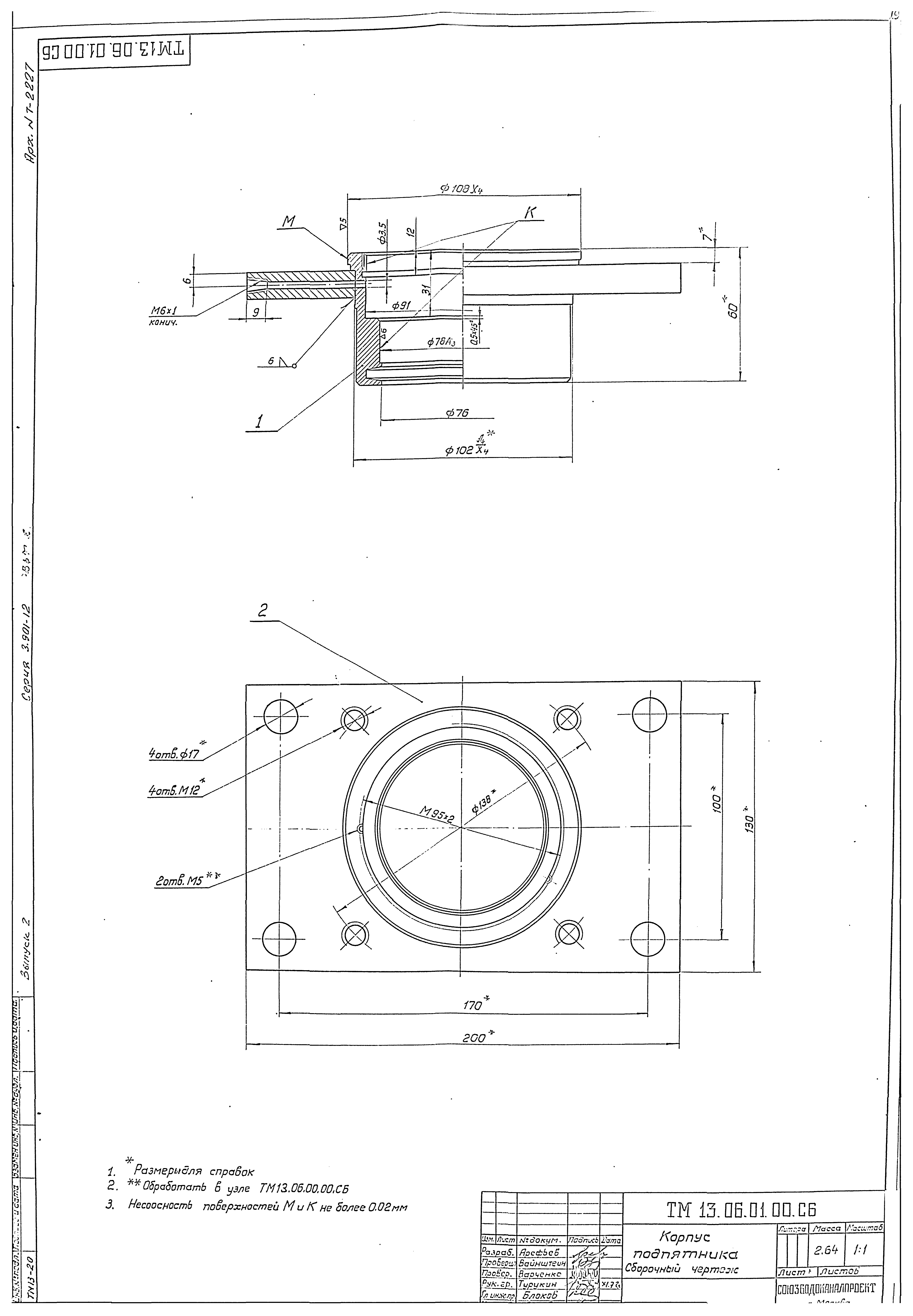
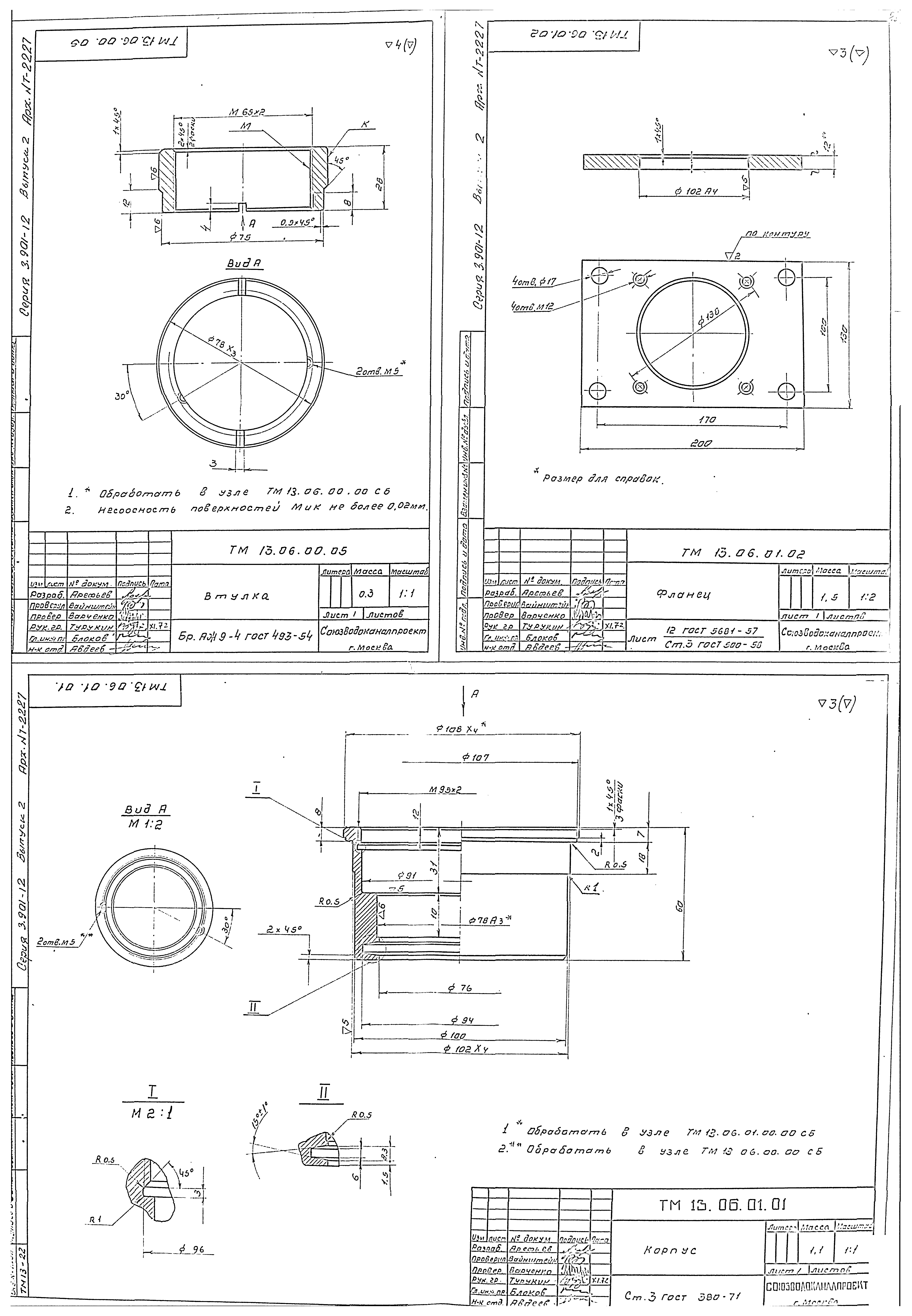
| Оглавление: | Содержание альбома ТМ13.00.00.00.ПЗ Пояснительная записка ТМ13.00.00.00.ТУ Технические условия Спецификации ТМ13.00.00.00СБ Затвор плоский глубинный 500х600 с электрическим приводом. Сборочный чертеж ТМ13.00.00.00СБ Затвор плоский глубинный 500х600 с ручным приводом. Сборочный чертеж ТМ13.00.00.00СБ Затвор плоский глубинный 500х600 с электрическим или ручным приводом. Сборочный чертеж ТМ13.01.00.00СБ Рама. Сборочный чертеж ТМ13.02.00.00СБ Щит в сборе. Сборочный чертеж ТМ13.02.01.00СБ Щит. Сборочный чертеж ТМ13.02.00.01 Уплотнение боковое ТМ13.02.00.02 Направляющая ТМ13.02.01.07 Ушко ТМ13.02.00.04 Уплотнение верхнее ТМ13.02.00.06 Уплотнение нижнее ТМ13.02.00.07 Планка ТМ13.02.00.05 Направляющая верхняя ТМ13.02.01.03 Ребро ТМ13.02.01.09 Ребро ТМ13.03.00.00СБ Штанга нижняя. Сборочный чертеж ТМ13.04.00.00СБ Штанга. Сборочный чертеж ТМ13.01.00.03 Поперечина ТМ13.05.00.00СБ Винт. Сборочный чертеж ТМ13.06.00.00СБ Подпятник. Сборочный чертеж ТМ13.06.01.00СБ Корпус подпятника. Сборочный чертеж ТМ13.06.00.06 Гайка ТМ13.06.00.03 Гайка направляющая ТМ13.06.00.02 Полумуфта кулачковая ТМ13.06.01.01 Корпус ТМ13.06.00.05 Втулка ТМ13.06.01.02 Фланец ТМ13.08.00.00СБ Подпятник. Сборочный чертеж ТМ13.08.01.00СБ Корпус подпятника. Сборочный чертеж ТМ13.08.01.02 Фланец ТМ13.08.01.01 Корпус (заготовка) ТМ13.08.00.01 Втулка ТМ13.08.00.02 Гайка направляющая ТМ13.08.00.03 Втулка ТМ13.08.00.04 Гайка ТМ13.09.00.00СБ Маховик. Сборочный чертеж ТМ13.09.00.01 Втулка ТМ13.09.00.02 Обод |
| Разработан: | Союзводоканалниипроект |
| Утверждён: | 31.07.1973 СоюзводоканалНИИпроект (SoyuzvodokanalNIIproject 170) |

























