Скачать Серия 3.901-12 Выпуск 6. Затвор плоский глубинный 1250х1500 с электрическим или ручным приводом. Рабочие чертежиДата актуализации: 01.01.2021
|
| Обозначение: | Серия 3.901-12 |
| Обозначение англ: | Series 3.901-12 |
| Статус: | отменен |
| Название рус.: | Выпуск 6. Затвор плоский глубинный 1250х1500 с электрическим или ручным приводом. Рабочие чертежи |
| Дата добавления в базу: | 01.10.2014 |
| Дата актуализации: | 01.01.2021 |
| Дата введения: | 01.08.1973 |
| Дата окончания срока действия: | 01.11.1991 |
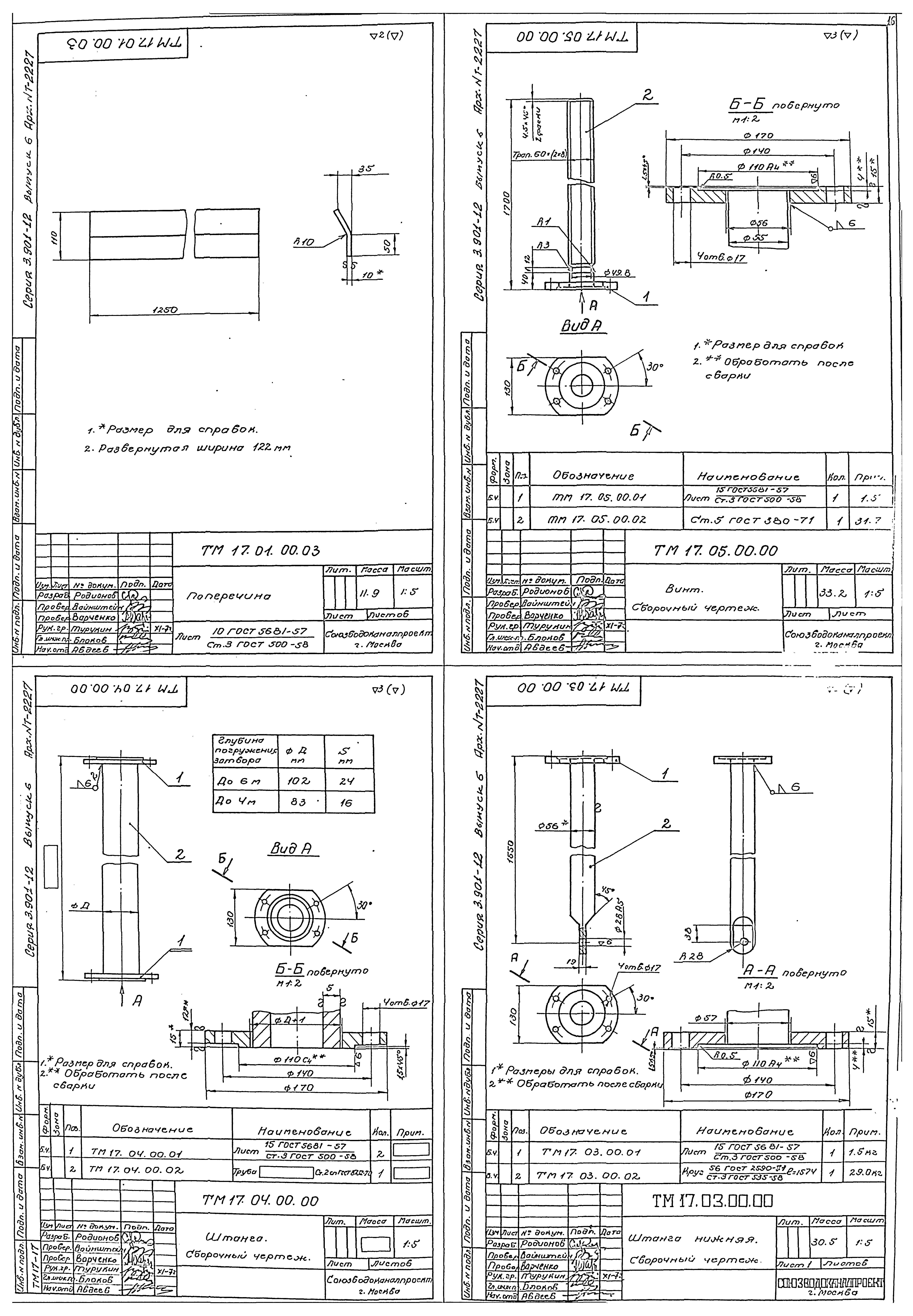
| Оглавление: | Содержание альбома ТМ17.00.00.00.ПЗ Пояснительная записка ТМ17.00.00.00.ТУ Технические условия Спецификации ТМ17.00.00.00СБ Затвор плоский глубинный 1250х1500 с электрическим приводом. Сборочный чертеж ТМ17.00.00.00СБ Затвор плоский глубинный 1250х1500 с ручным приводом. Сборочный чертеж ТМ17.00.00.00СБ Затвор плоский глубинный 1250х1500 с электрическим или ручным приводом. Сборочный чертеж ТМ17.01.00.00СБ Рама. Сборочный чертеж ТМ17.02.00.00СБ Щит в сборе. Сборочный чертеж ТМ17.02.01.00СБ Щит. Сборочный чертеж ТМ17.02.00.05 Направляющая верхняя ТМ17.02.00.02 Направляющая ТМ17.02.00.01 Уплотнение боковое ТМ17.02.00.04 Уплотнение верхнее ТМ17.02.01.02 Ребро ТМ17.02.01.04 Ребро ТМ17.02.01.07 Ушко ТМ17.02.00.07 Планка ТМ17.02.00.06 Уплотнение нижнее ТМ17.03.00.00СБ Штанга нижняя. Сборочный чертеж ТМ17.04.00.00СБ Штанга. Сборочный чертеж ТМ17.01.00.03 Поперечина ТМ17.05.00.00СБ Винт. Сборочный чертеж ТМ17.06.00.00СБ Подпятник. Сборочный чертеж ТМ17.06.01.00СБ Корпус подпятника. Сборочный чертеж ТМ17.06.00.02 Полумуфта кулачковая ТМ17.06.00.03 Гайка ТМ17.06.00.04 Гайка направляющая ТМ17.06.00.01 Втулка ТМ17.06.01.01 Корпус ТМ17.06.01.02 Фланец |
| Разработан: | Союзводоканалниипроект |
| Утверждён: | 31.07.1973 СоюзводоканалНИИпроект (SoyuzvodokanalNIIproject 170) |




















