Скачать Типовой проект 902-2-337 Альбом I. Технологическая часть. Заказные спецификацииДата актуализации: 01.01.2021
|
| Обозначение: | Типовой проект 902-2-337 |
| Обозначение англ: | 902-2-337 |
| Статус: | не определен законодательством |
| Название рус.: | Альбом I. Технологическая часть. Заказные спецификации |
| Дата добавления в базу: | 01.10.2014 |
| Дата актуализации: | 01.01.2021 |
| Дата введения: | 13.05.1980 |
| Дата окончания срока действия: | 30.06.2003 |
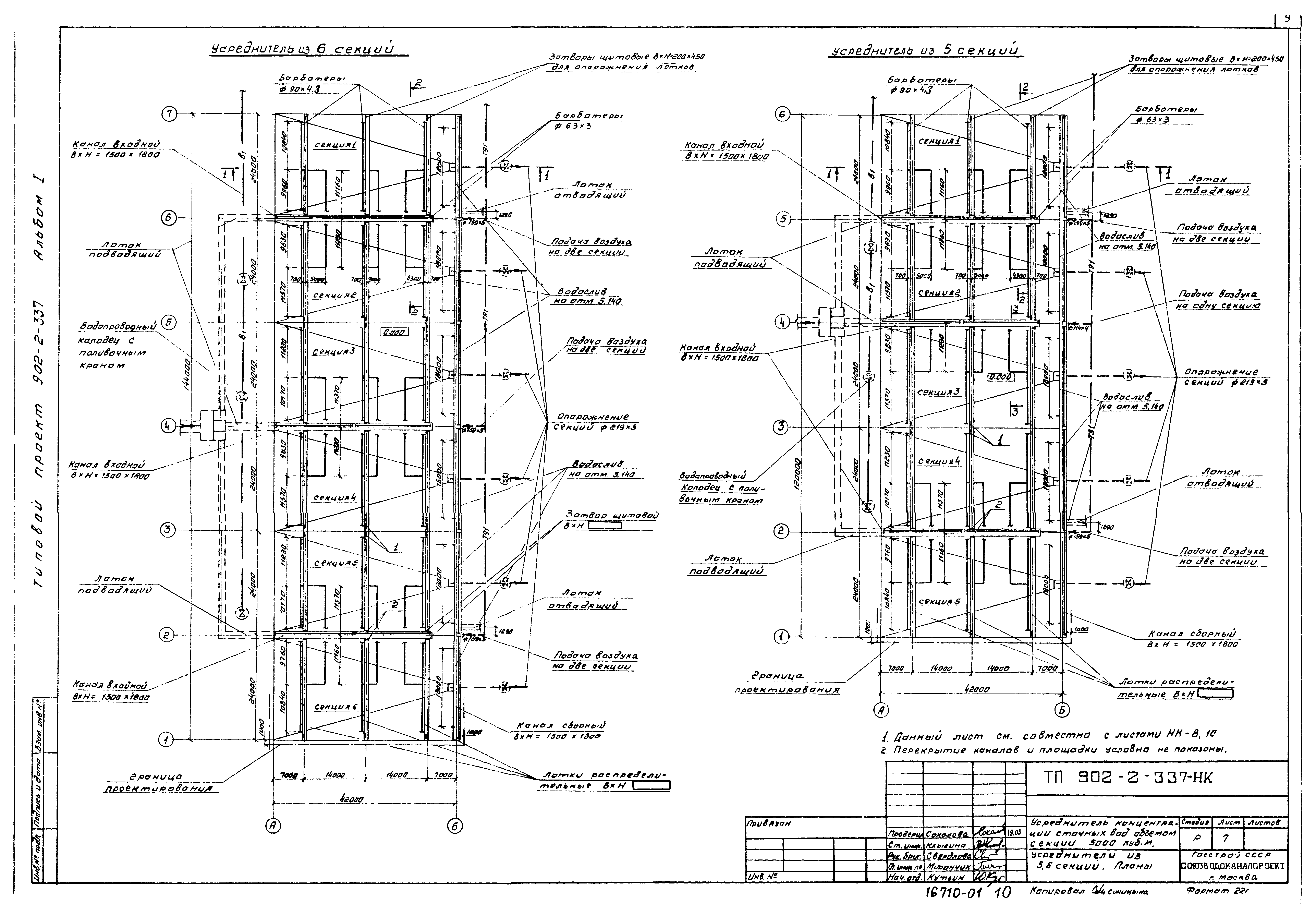
| Оглавление: | Содержание альбома Общие данные Усреднители из 2, 3, 4 секций. Планы Усреднители из 5, 6 секций. Планы Разрезы 1-1, 2-2, 3-3 Воздуховоды на одну и две секции. Планы. Разрезы 4-4, 5-5. Виды А, Б Воздуховоды на одну и две секции. Аксонометрические схемы Заказная спецификация на насосное оборудование Заказная спецификация на трубопроводную арматуру Заказная спецификация на нестандартизированное оборудование Заказная спецификация на материалы |
| Разработан: | Союзводоканалниипроект |
| Утверждён: | 15.02.1980 СоюзводоканалНИИпроект (SoyuzvodokanalNIIproject ) |

















