Скачать Типовой проект 903-4-54.86 Альбом 2. Архитектурно-строительные решения. Ведомости потребности в материалах к архитектурно-строительным решениям. Отопление, вентиляция, внутренний водопровод и канализацияДата актуализации: 01.01.2021
|
| Обозначение: | Типовой проект 903-4-54.86 |
| Обозначение англ: | 903-4-54.86 |
| Статус: | действует |
| Название рус.: | Альбом 2. Архитектурно-строительные решения. Ведомости потребности в материалах к архитектурно-строительным решениям. Отопление, вентиляция, внутренний водопровод и канализация |
| Дата добавления в базу: | 01.10.2014 |
| Дата актуализации: | 01.01.2021 |
| Дата введения: | 31.05.1985 |
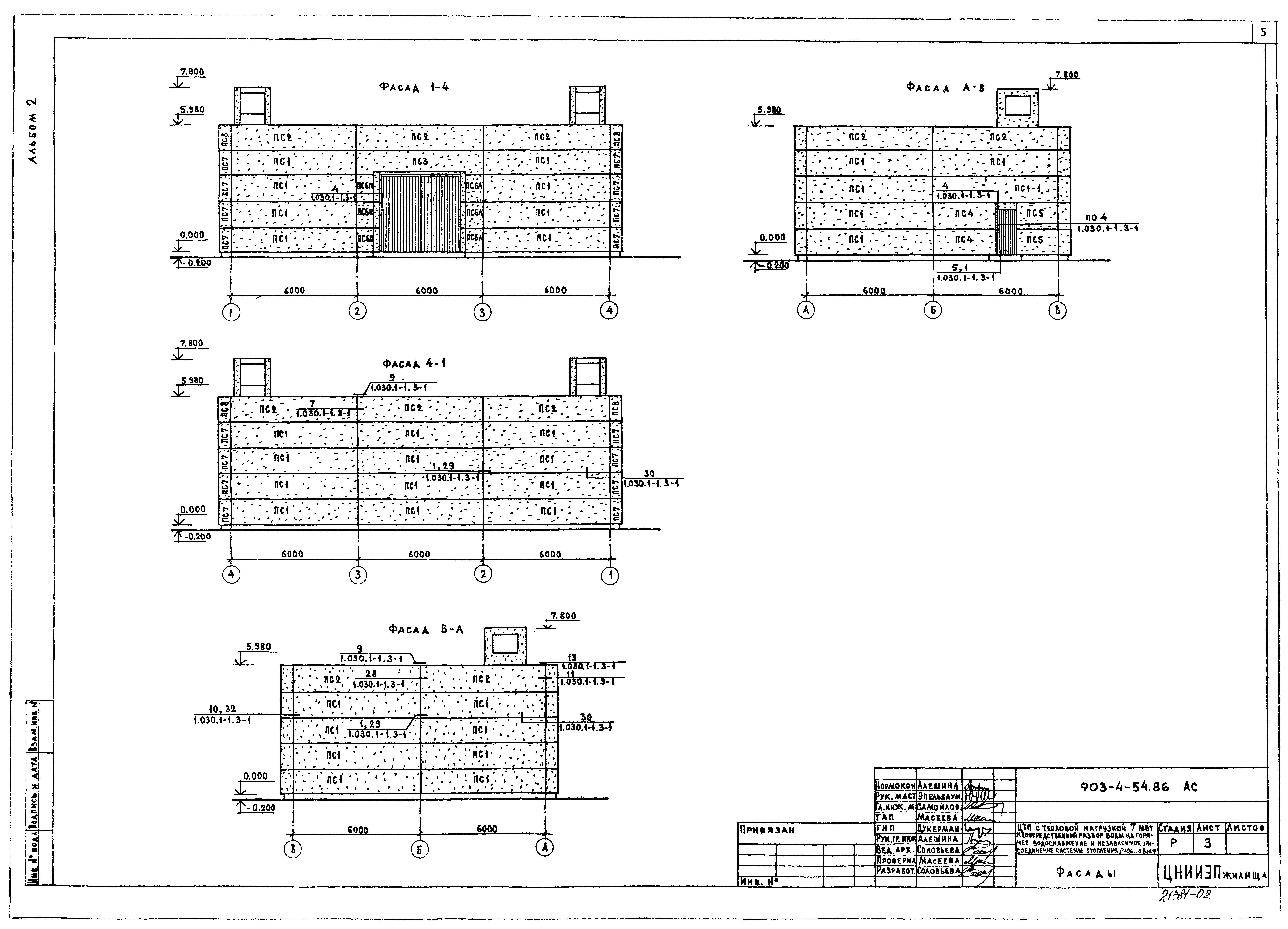
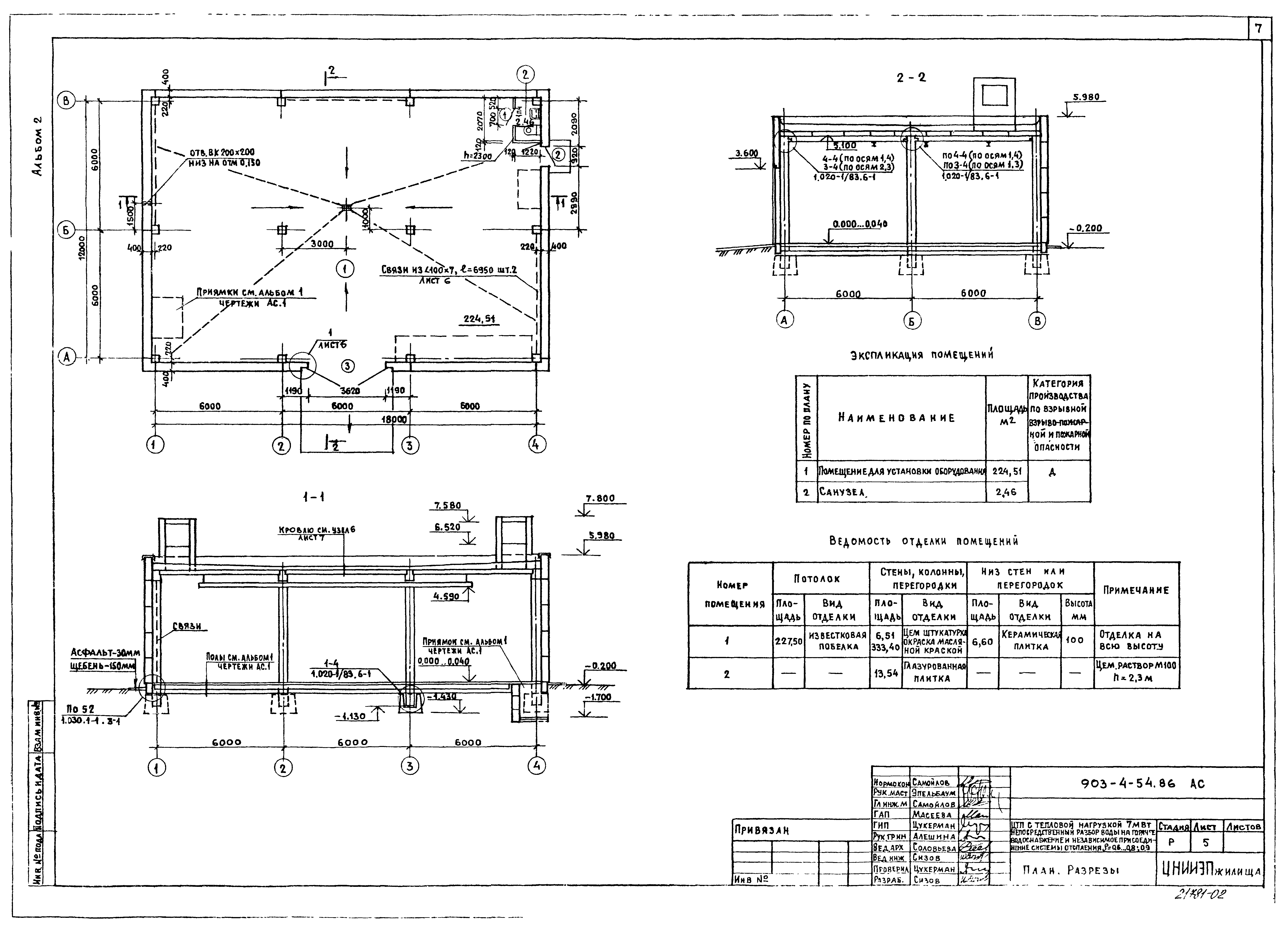
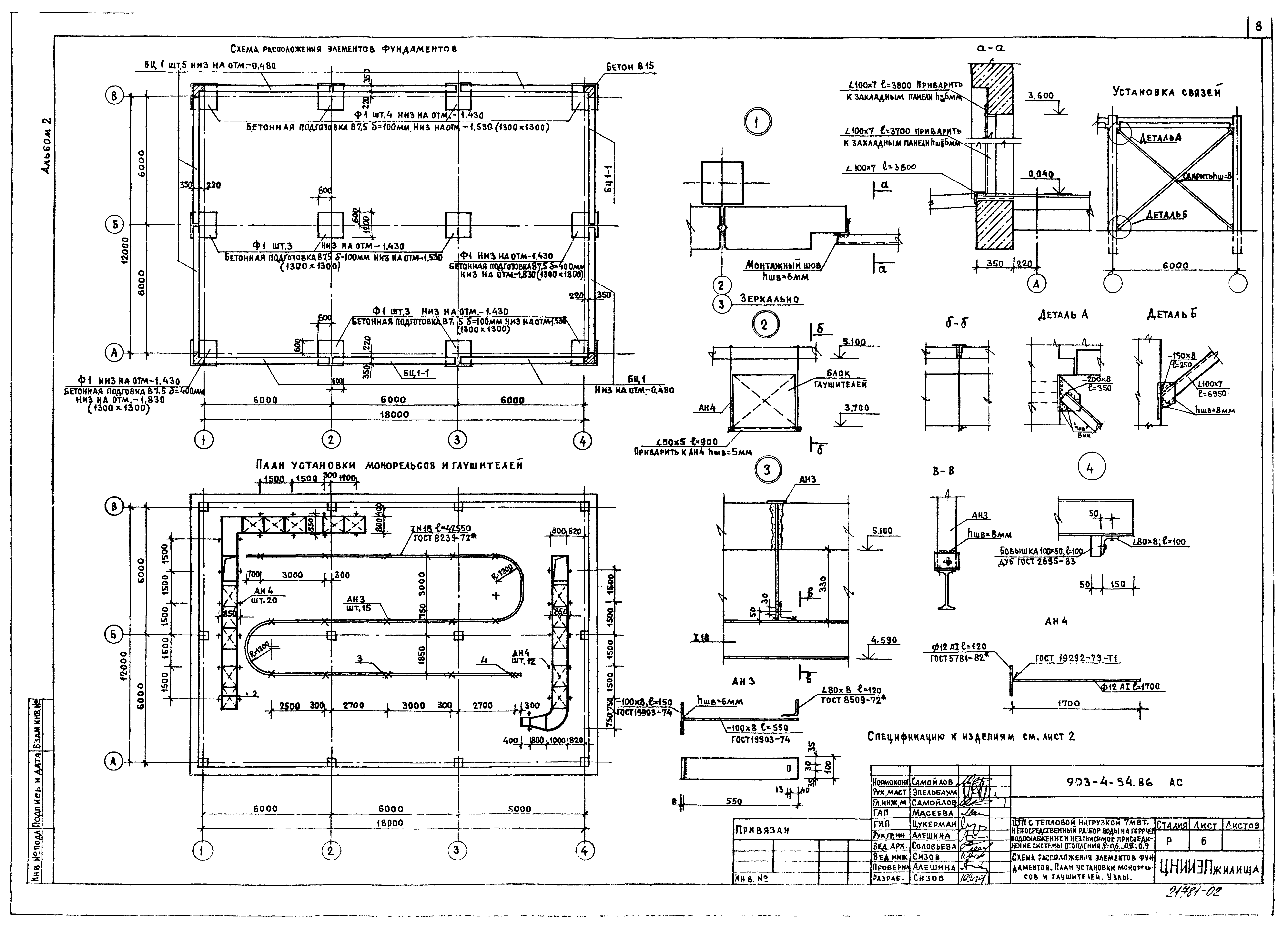
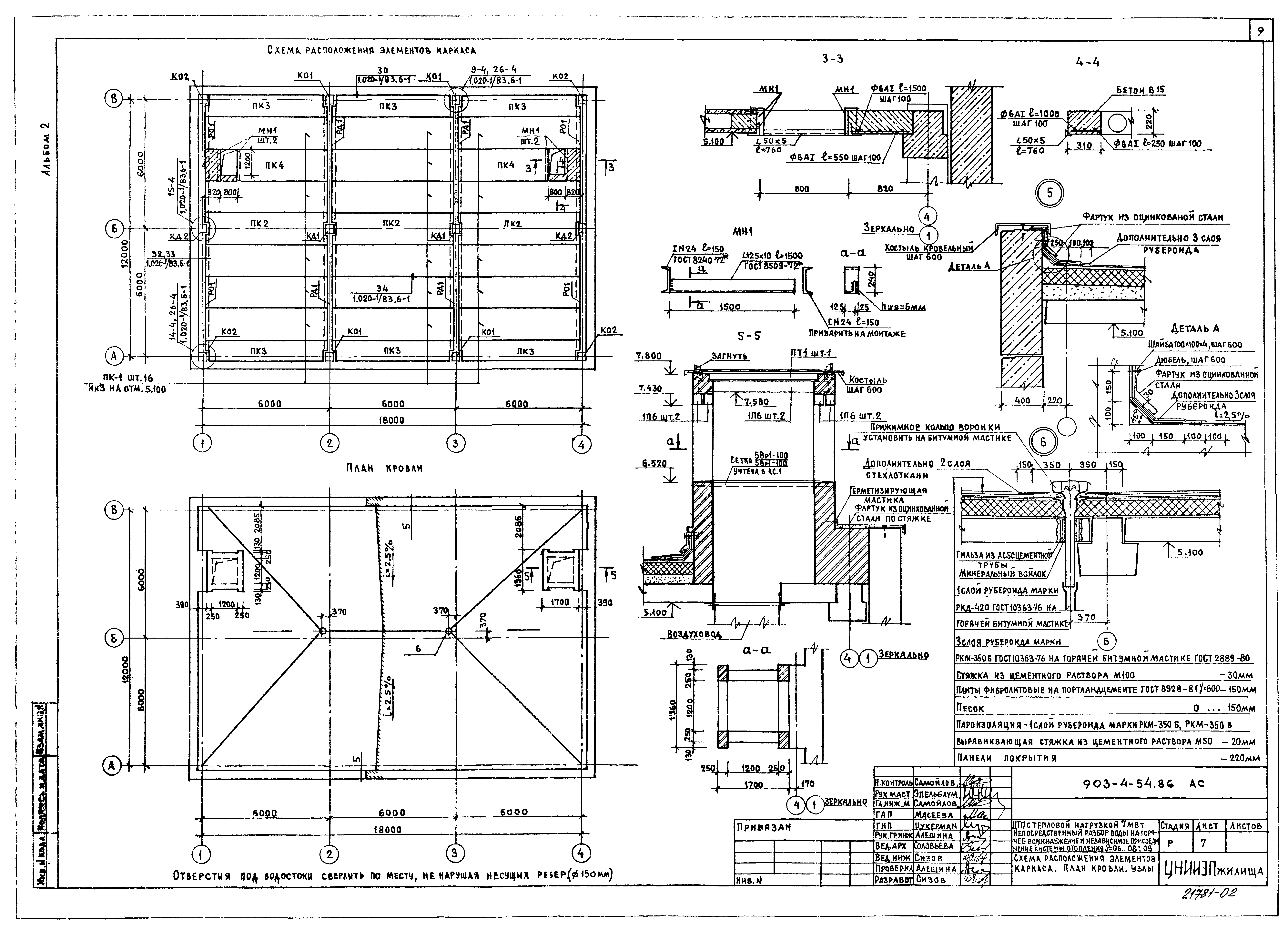
| Оглавление: | Содержание Архитектурно-строительные решения Общие данные Спецификация Фасады Варианты фасадов План. Разрезы Схема расположения элементов фундаментов. План установки монорельсов и глушителей. Узлы Схема расположения элементов каркаса. План кровли. Узлы Ведомость потребности в материалах Отопление и вентиляция Общие данные. План на отм. 0.000. Схемы систем П1, ВЕ1 Эскизные чертежи общих видов нетиповых конструкций Содержание Конфузор Звукоизоляция Водопровод и канализация Общие данные. Фрагмент плана на отм. 0.040. Выкопировка из плана кровли по оси Б. Схемы В1, Т3, К1, К2 |
| Разработан: | ЦНИИЭП ЦНИИЭП жилища |
| Утверждён: | 31.05.1985 Госгражданстрой (Gosgrazhdanstroy 174) |















