Скачать Типовые проектные решения 709-09-29.84 Альбом III. Строительные изделияДата актуализации: 01.01.2021
|
| Обозначение: | Типовые проектные решения 709-09-29.84 |
| Обозначение англ: | 709-09-29.84 |
| Статус: | справочные материалы, мп, тпр |
| Название рус.: | Альбом III. Строительные изделия |
| Дата добавления в базу: | 01.10.2014 |
| Дата актуализации: | 01.01.2021 |
| Дата окончания срока действия: | 25.09.1984 |
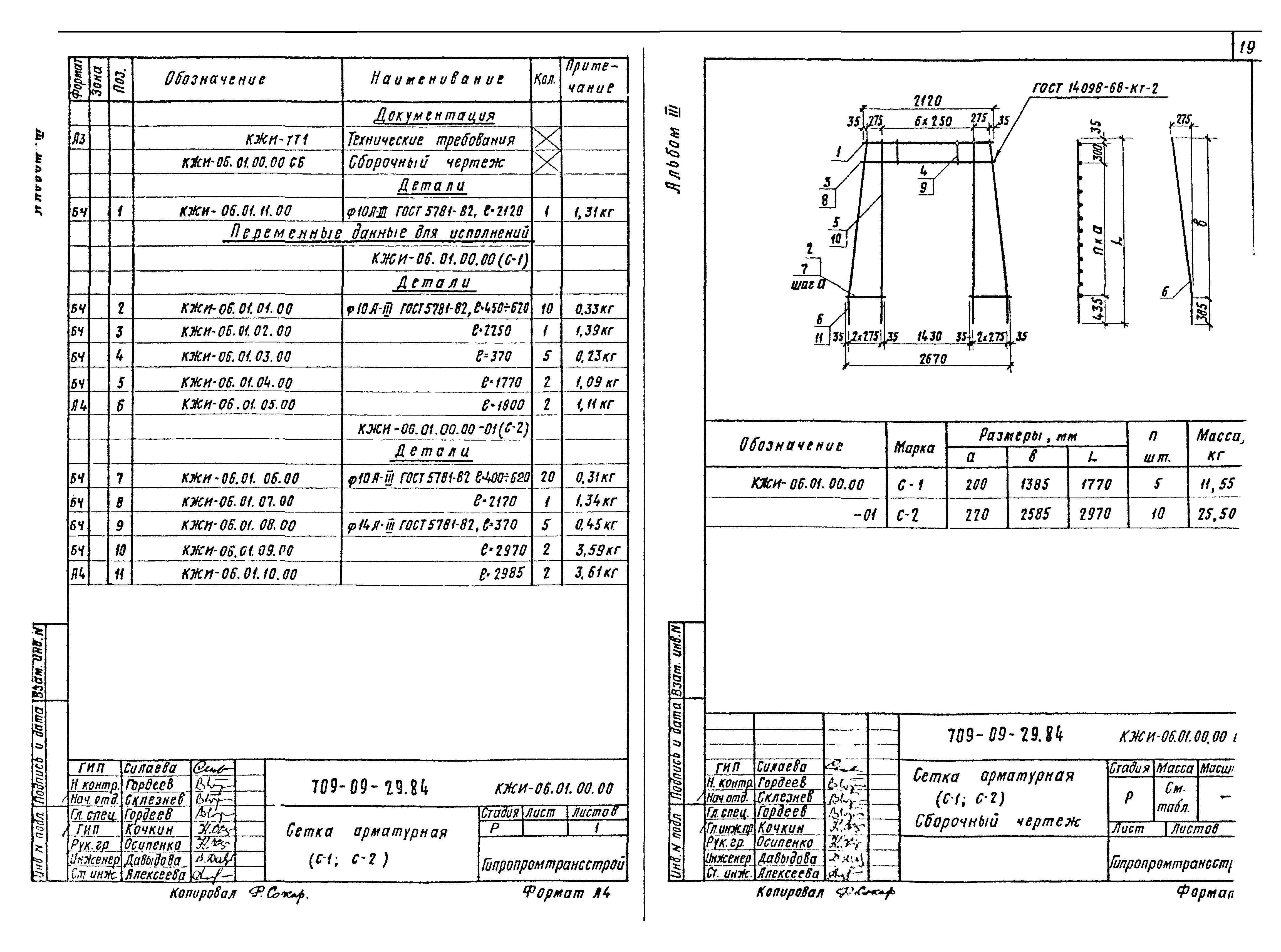
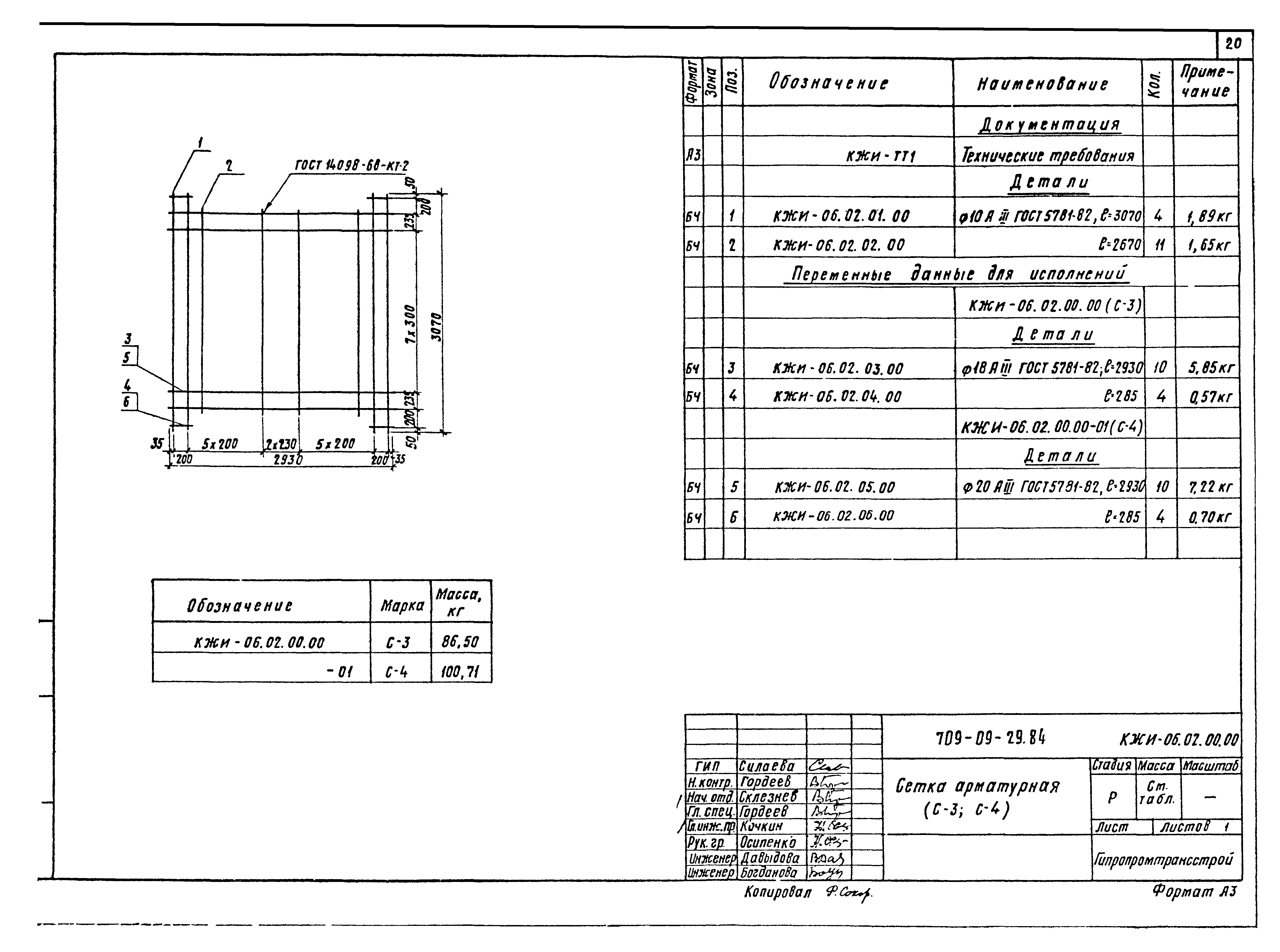
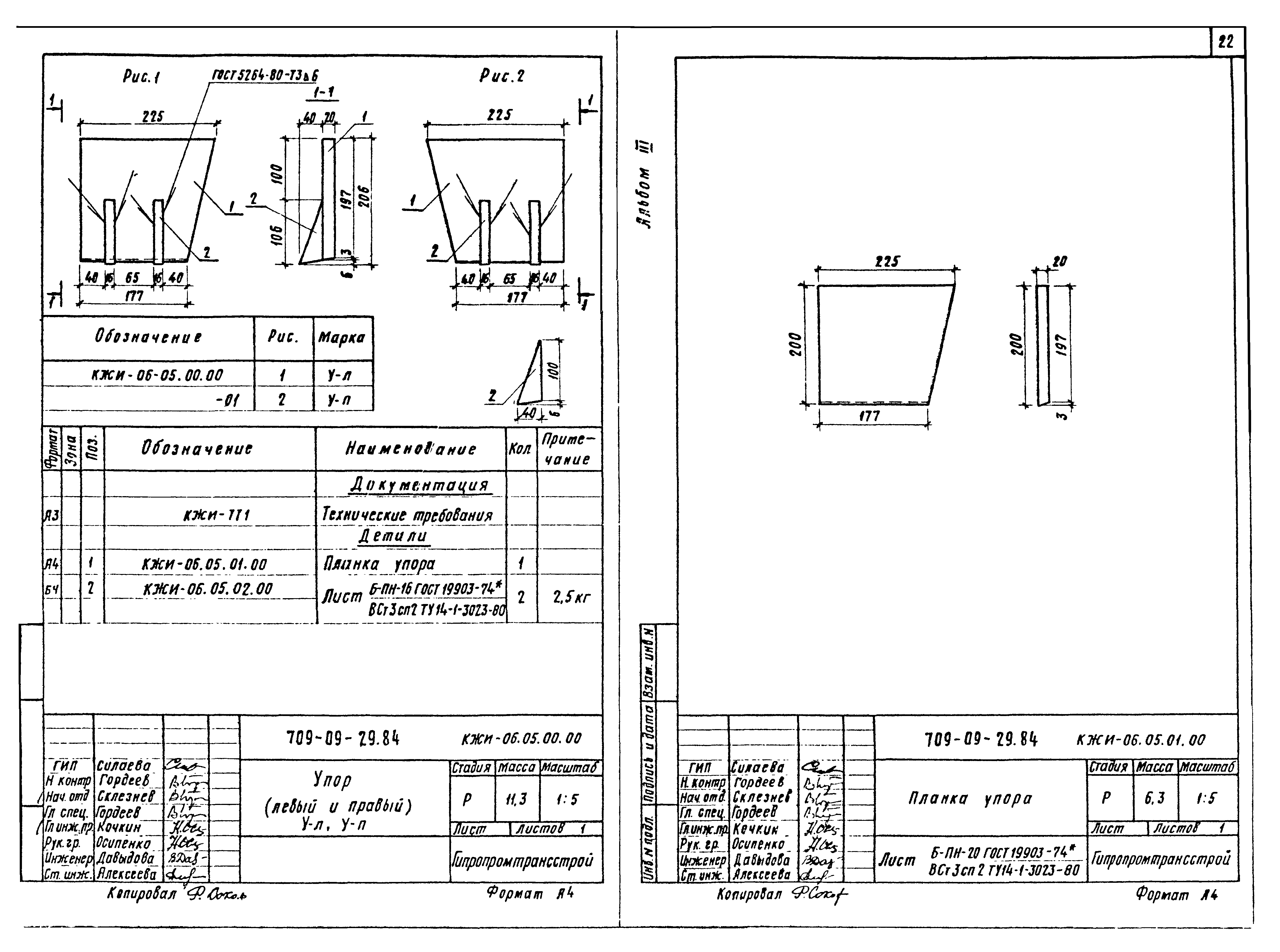
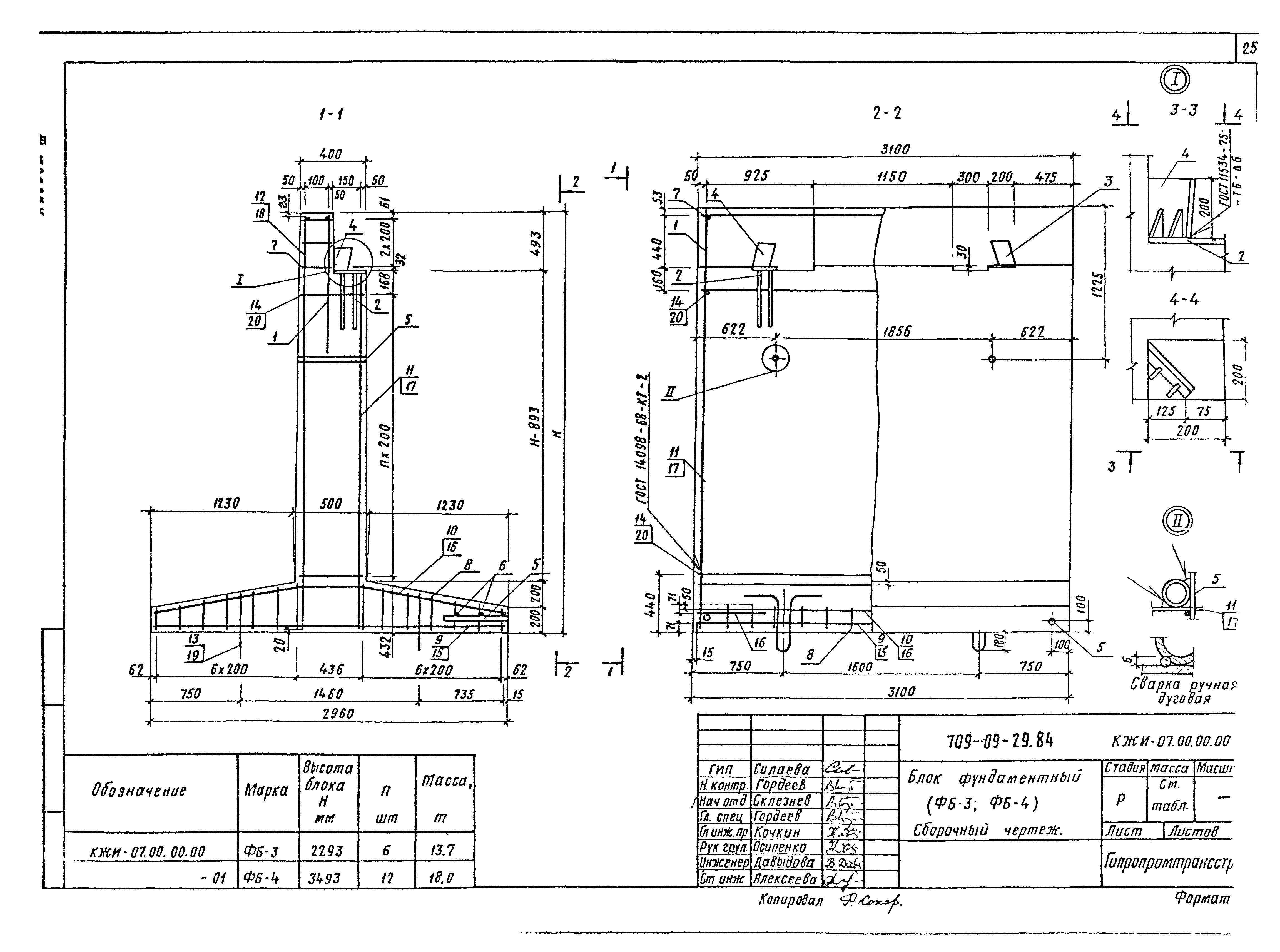
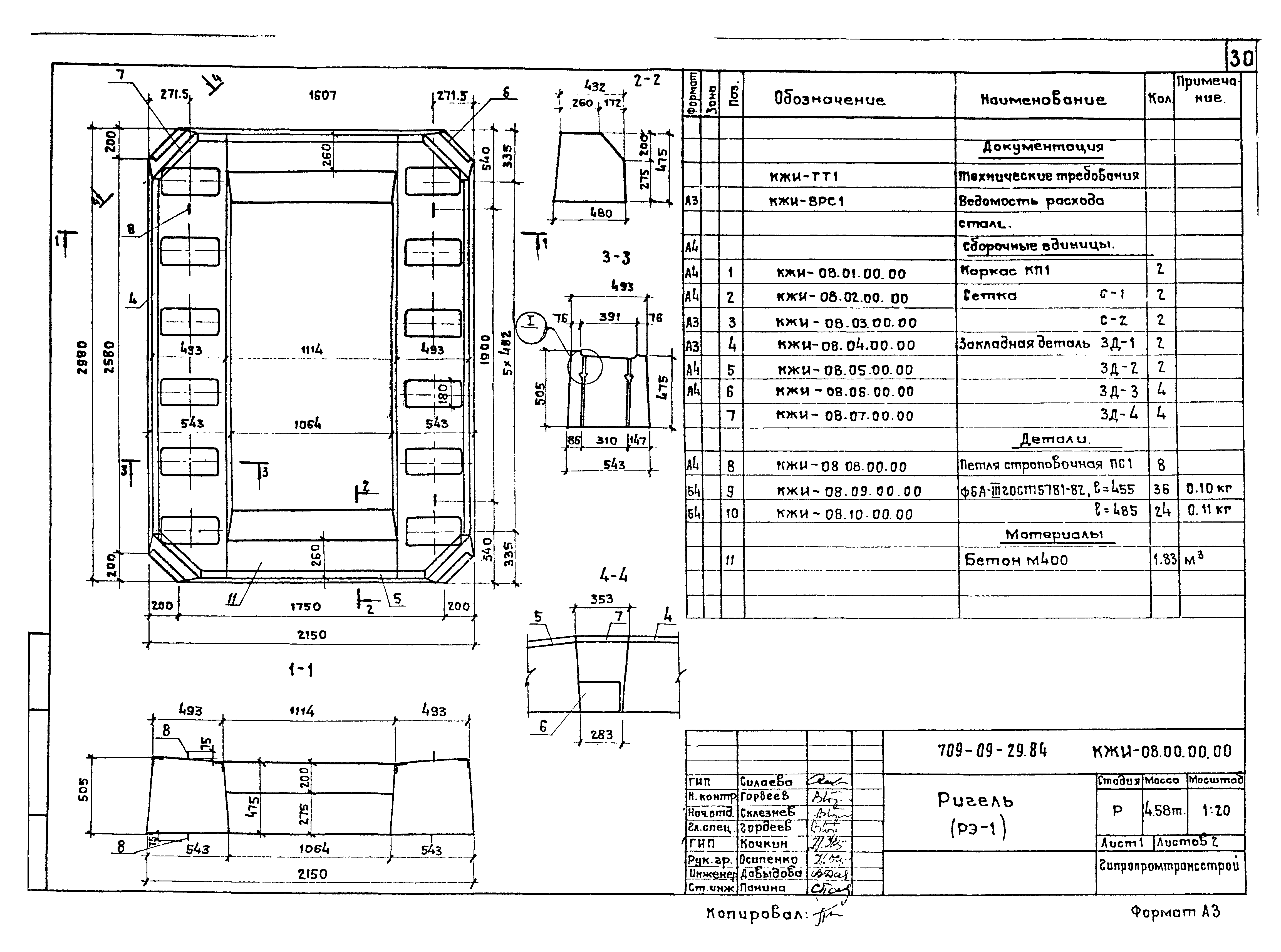
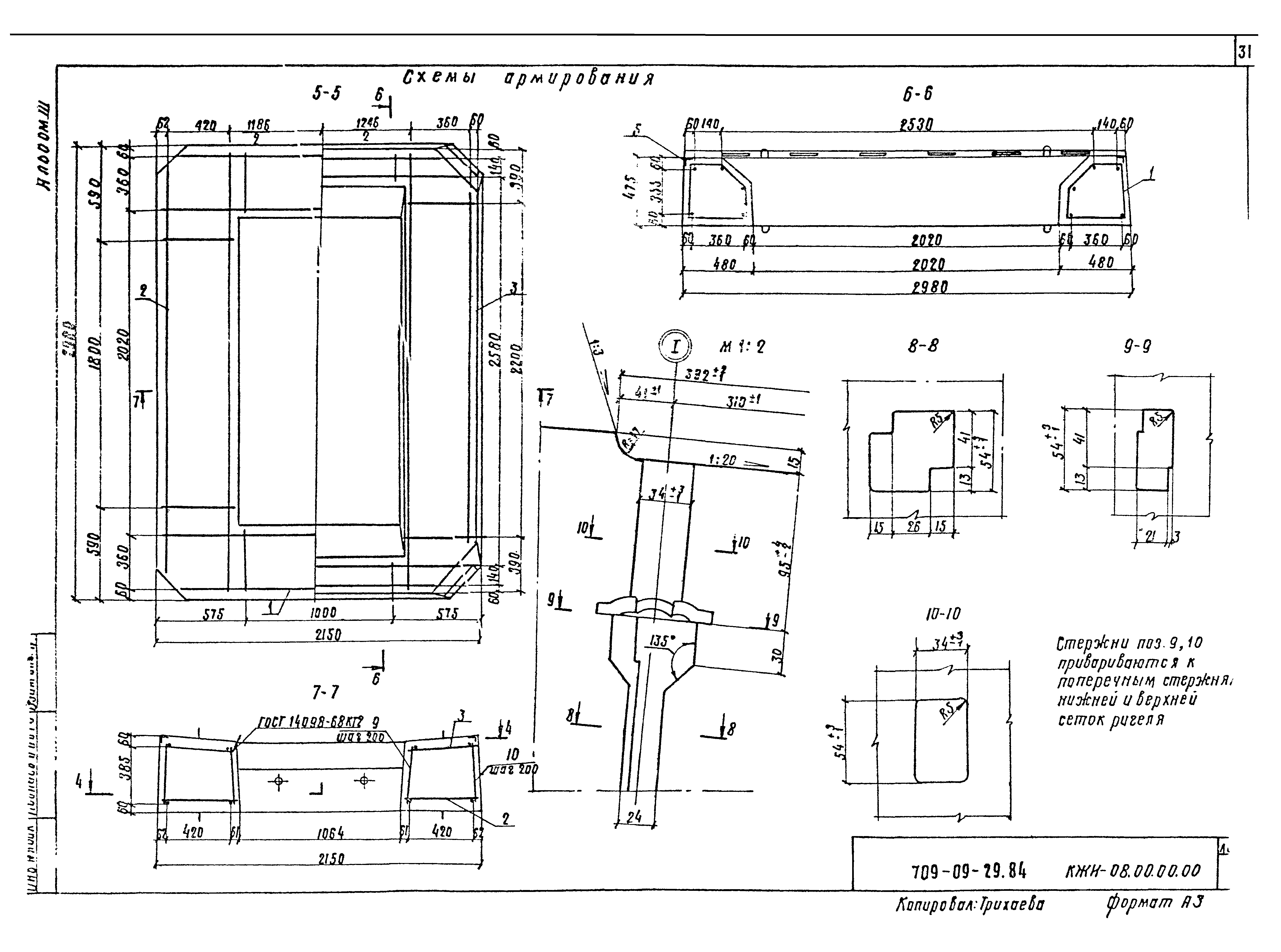
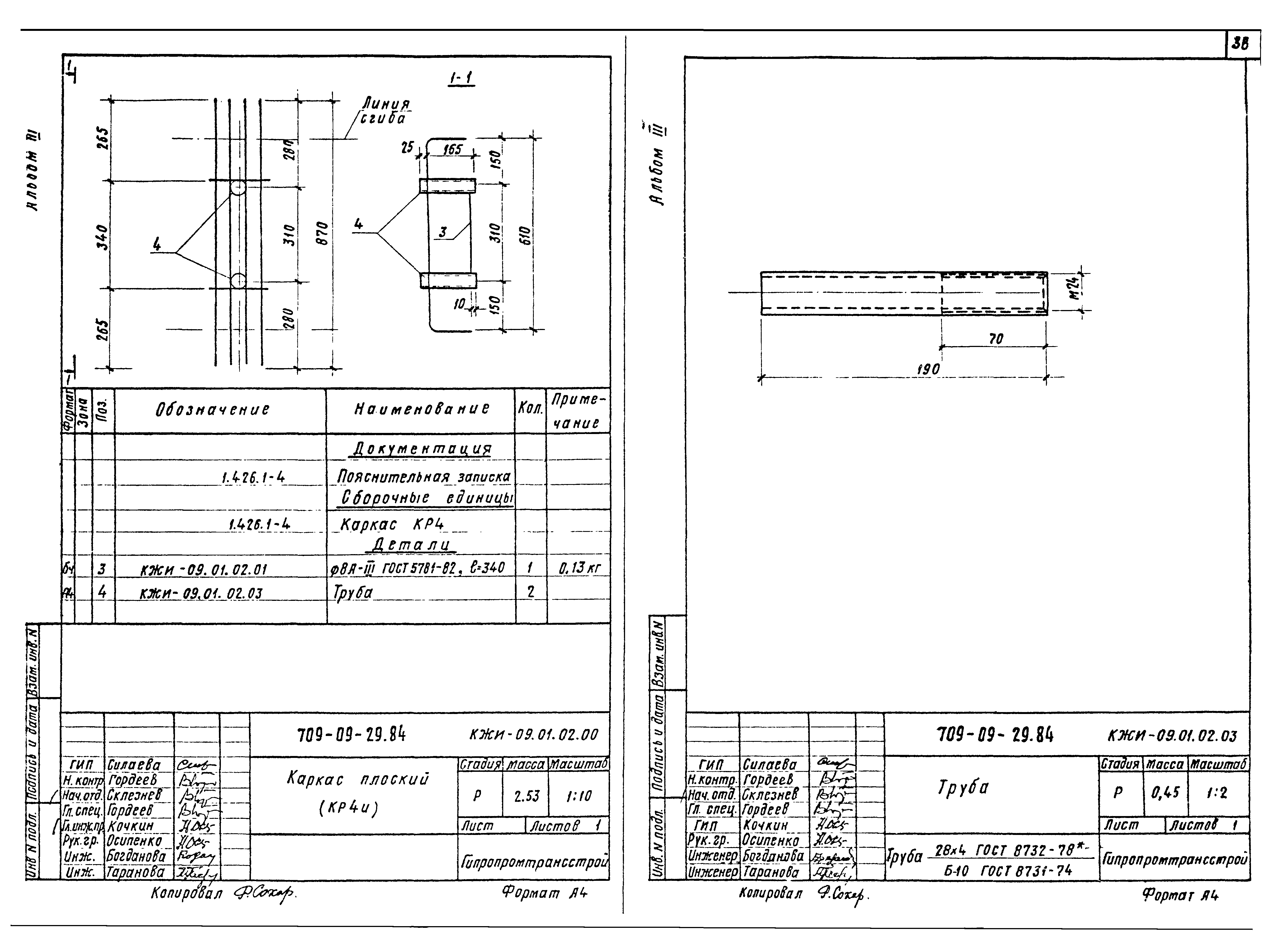
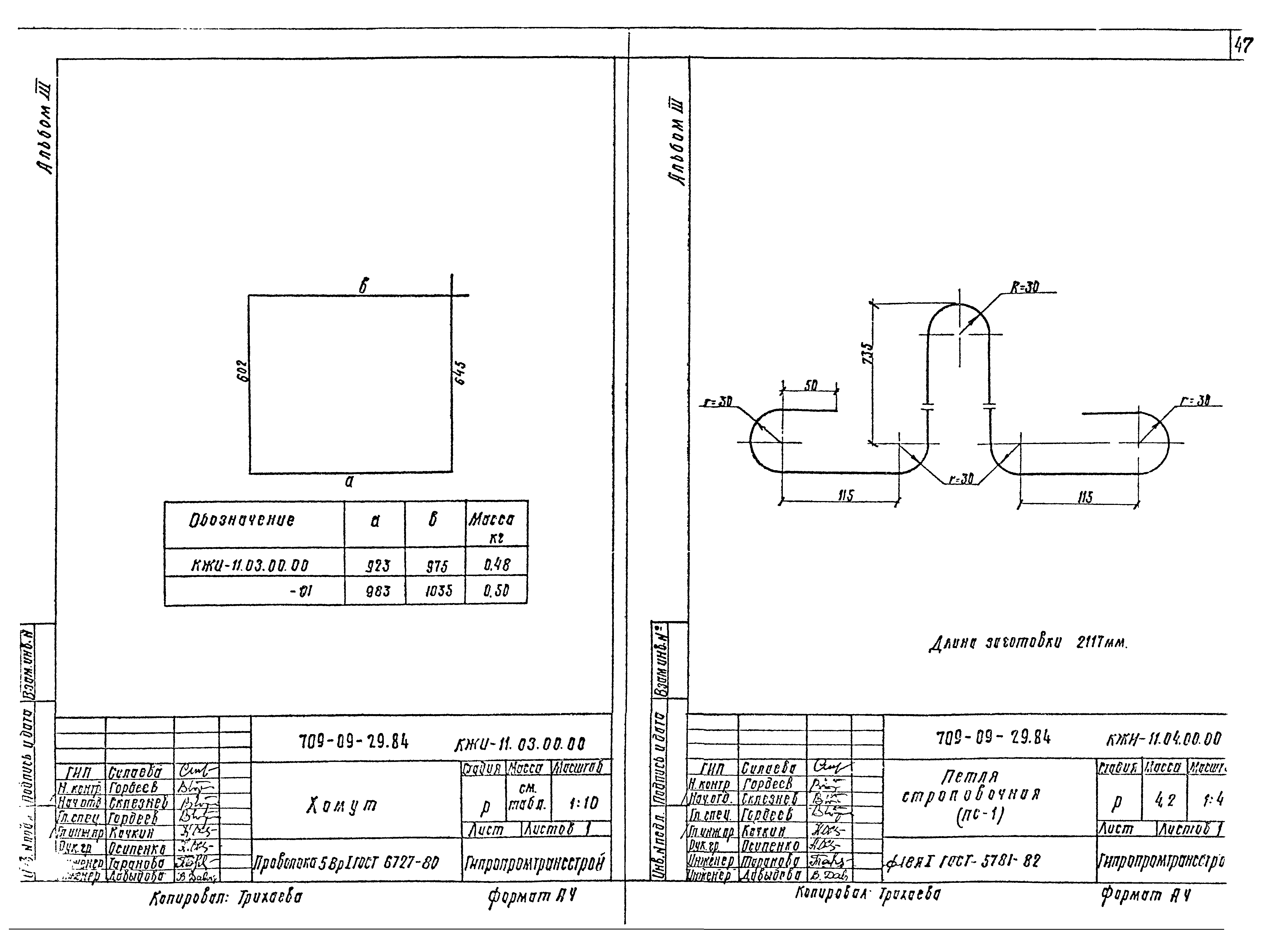
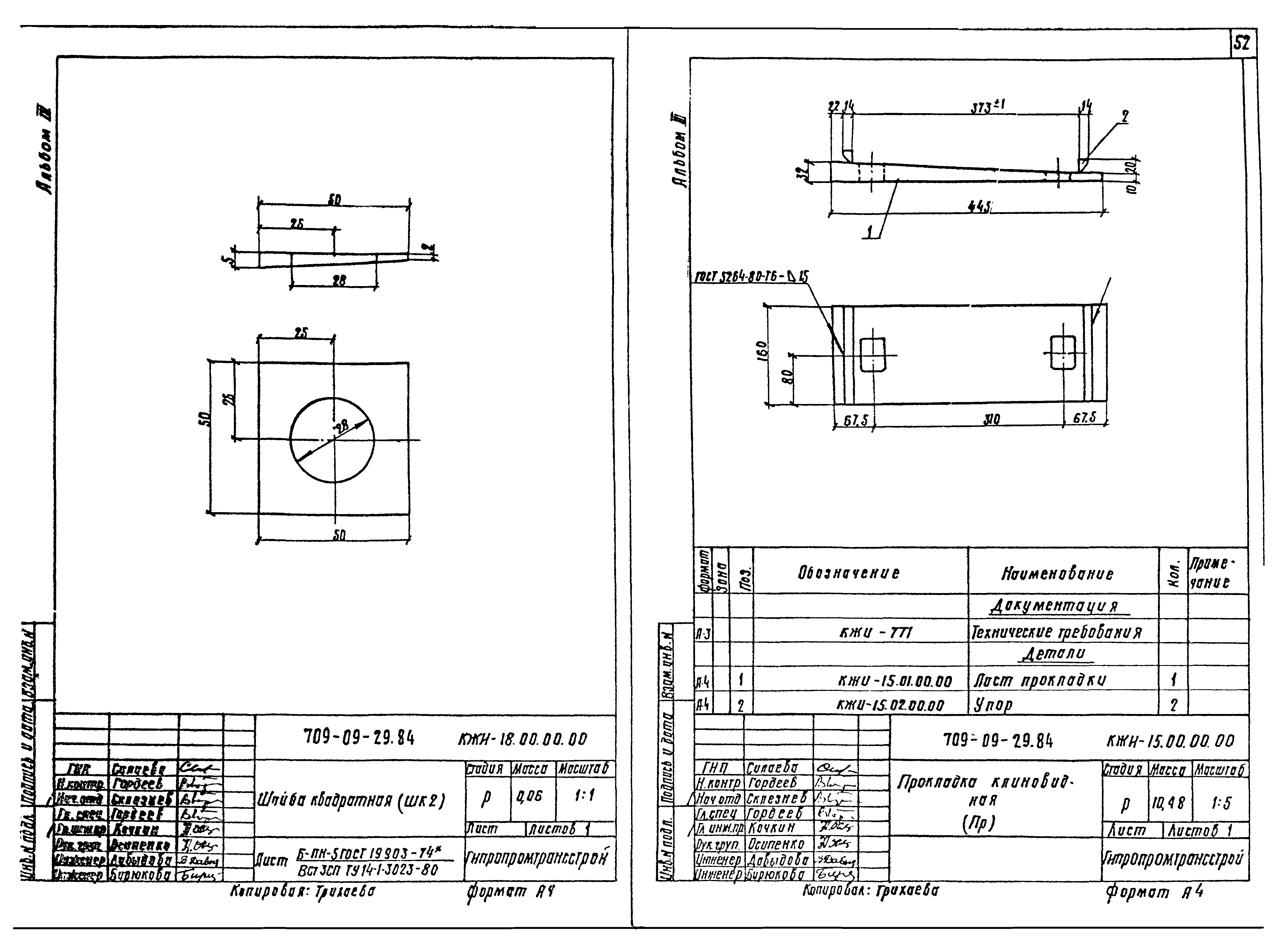
| Оглавление: | Содержание альбома КЖИ-ТТ1 Технические требования КЖИ-01.00.00.00 Блок шпальный (Б.24.20.7,5) КЖИ-01.01.00.00 Каркас пространственный (КП1) КЖИ-01.01.01.00 Каркас плоский (КР1) КЖИ-01.02.00.00 Каркас пространственный (КП2) КЖИ-01.02.01.00 Каркас плоский (КР2) КЖИ-01.03.00.00 Сетка (С1) КЖИ-01.04.00.00 Сетка (С2) КЖИ-01.05.00.00 Сетка (С3) КЖИ-01.06.00.00 Закладная деталь (ЗД1) КЖИ-01.06.00.01 Фланец КЖИ-01.07.00.00 Закладная деталь (ЗД-2) КЖИ-02.00.00.00 Плита фундаментная (ФЛ10.24-3и) КЖИ-02.01.00.00 Закладная деталь (ЗД-1) КЖИ-03.00.00.00 Плита фундаментная (ФЛ10.12-3и) КЖИ-04.00.00.00 Блок бетонный (ФБС12.4.6-Т-и) КЖИ-05.00.00.00 Блок бетонный (ФБС24.4.6-Т-и) КЖИ-06.00.00.00 Блок фундаментный (ФБ-1, ФБ-2) КЖИ-06.01.00.00 Сетка арматурная (С-1, С-2) КЖИ-06.02.00.00 Сетка арматурная (С-3, С-4) КЖИ-06.03.00.00 Сетка арматурная (С-5, С-6) КЖИ-06.05.00.00 Упор (левый и правый У-л, У-п) КЖИ-06.05.01.00 Планка упора КЖИ-06.06.00.00 Петля строповочная (ПС-1, ПС-2, ПС-3) КЖИ-06.07.00.00 Трубка КЖИ-07.00.00.00 Блок фундаментный (ФБ-3, ФБ-4) КЖИ-07.01.00.00 Сетка арматурная (С-1, С-2) КЖИ-07.02.00.00 Сетка арматурная (С-3, С-4) КЖИ-07.03.00.00 Сетка арматурная (С-5 - С-9) КЖИ-07.04.00.00 Закладная деталь (ЗД-1, ЗД-2) КЖИ-08.00.00.00 Ригель (РЭ-1) КЖИ-08.01.00.00 Каркас пространственный (КП1) КЖИ-08.07.00.00 Закладная деталь (ЗД-4) КЖИ-08.02.00.00 Сетка арматурная (С-1) КЖИ-08.03.00.00 Сетка арматурная (С-2) КЖИ-08.04.00.00 Закладная деталь (ЗД-1) КЖИ-08.05.00.00 Закладная деталь (ЗД-2) КЖИ-08.06.00.00 Закладная деталь (ЗД-3) КЖИ-08.08.00.00 Петля строповочная (ПС-1) КЖИ-09.00.00.00 Балка подкрановая (БК-12-5А-IV-С-И) КЖИ-09.01.00.00 Каркас пространственный (КП4и) КЖИ-09.01.01.00 Сетка арматурная (С13и) КЖИ-09.01.02.00 Каркас плоский (КР-4и) КЖИ-09.01.02.03 Труба КЖИ-09.02.00.00 Закладная деталь (ЗД-1) КЖИ-09.03.00.00 Закладная деталь (ЗД-2) КЖИ-10.00.00.00 Диаграмма (Д-1) КЖИ-10.01.00.00 Сетка арматурная (С-1) КЖИ-10.02.00.00 Закладная деталь (ЗД-1) КЖИ-10.03.00.00 Закладная деталь (ЗД-2) КЖИ-10.04.00.00 Шпилька КЖИ-10.05.00.00 Петля строповочная (ПС-1) КЖИ-11.00.00.00 Насадка промежуточной опоры (НП1) КЖИ-11.01.00.00 Сетка арматурная (С-1) КЖИ-11.02.00.00 Сетка арматурная (С-2) КЖИ-11.03.00.00 Хомут КЖИ-11.04.00.00 Петля строповочная (ПС-1) КЖИ-12.00.00.00 Подферменник (Пф1) КЖИ-12.01.00.00 Сетка арматурная (С-1) КЖИ-12.02.00.00 Петля строповочная (ПС-1) КЖИ-13.00.00.00 Сетка (С1, С4) КЖИ-14.00.00.00 Сетка (С2, С3) КЖИ-15.00.00.00 Прокладка клиновидная (Пр) КЖИ-18.00.00.00 Шайба квадратная (ШК2) КЖИ-15.01.00.00 Лист прокладки КЖИ-15.02.00.00 Упор КЖИ-16.00.00.00 Каркас (КП1 - КП3) КЖИ-17.00.00.00 Шайба квадратная (ШК1) КЖИ-ВРС1 Ведомость расхода стали |
| Разработан: | Гипропромтрансстрой |
| Утверждён: | 29.06.1982 МПС (Ministry of Railroads М-20810) |
























































