Скачать Типовой проект 901-7-17.90 Альбом 2. Технологические решенияДата актуализации: 01.01.2021
|
| Обозначение: | Типовой проект 901-7-17.90 |
| Обозначение англ: | 901-7-17.90 |
| Статус: | не действует |
| Название рус.: | Альбом 2. Технологические решения |
| Дата добавления в базу: | 01.10.2014 |
| Дата актуализации: | 01.01.2021 |
| Дата введения: | 30.10.1990 |
| Дата окончания срока действия: | 01.04.2003 |
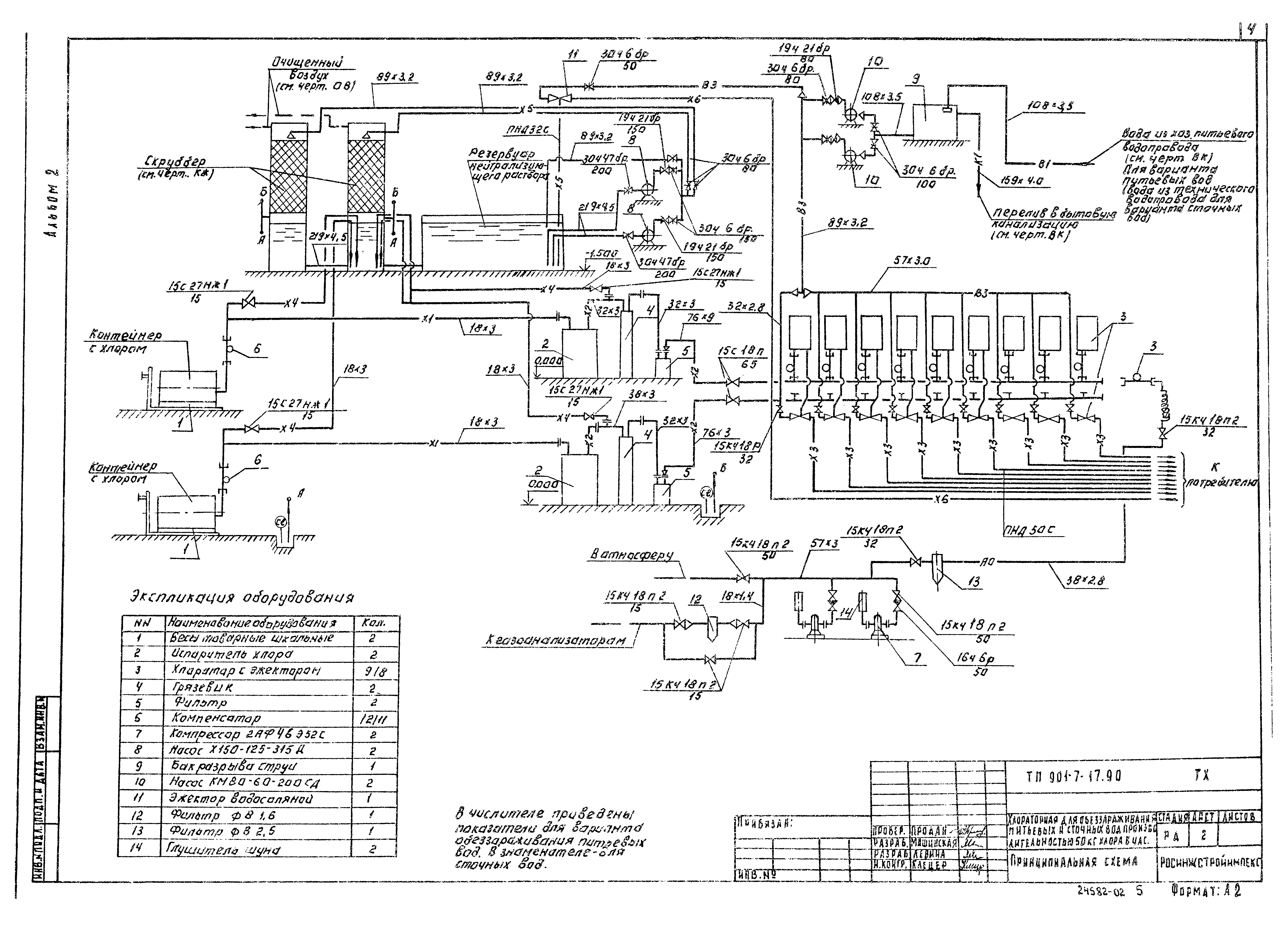
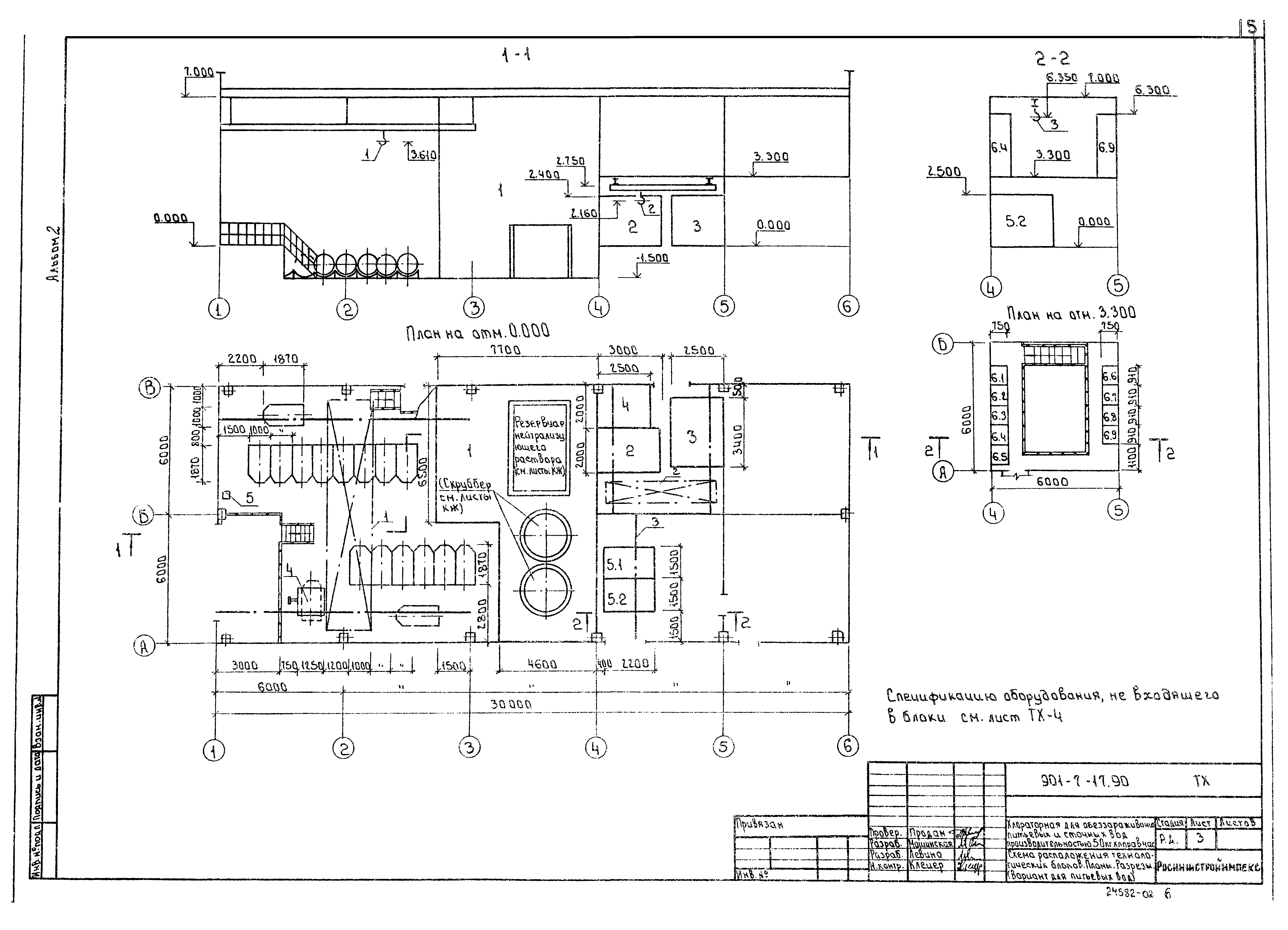
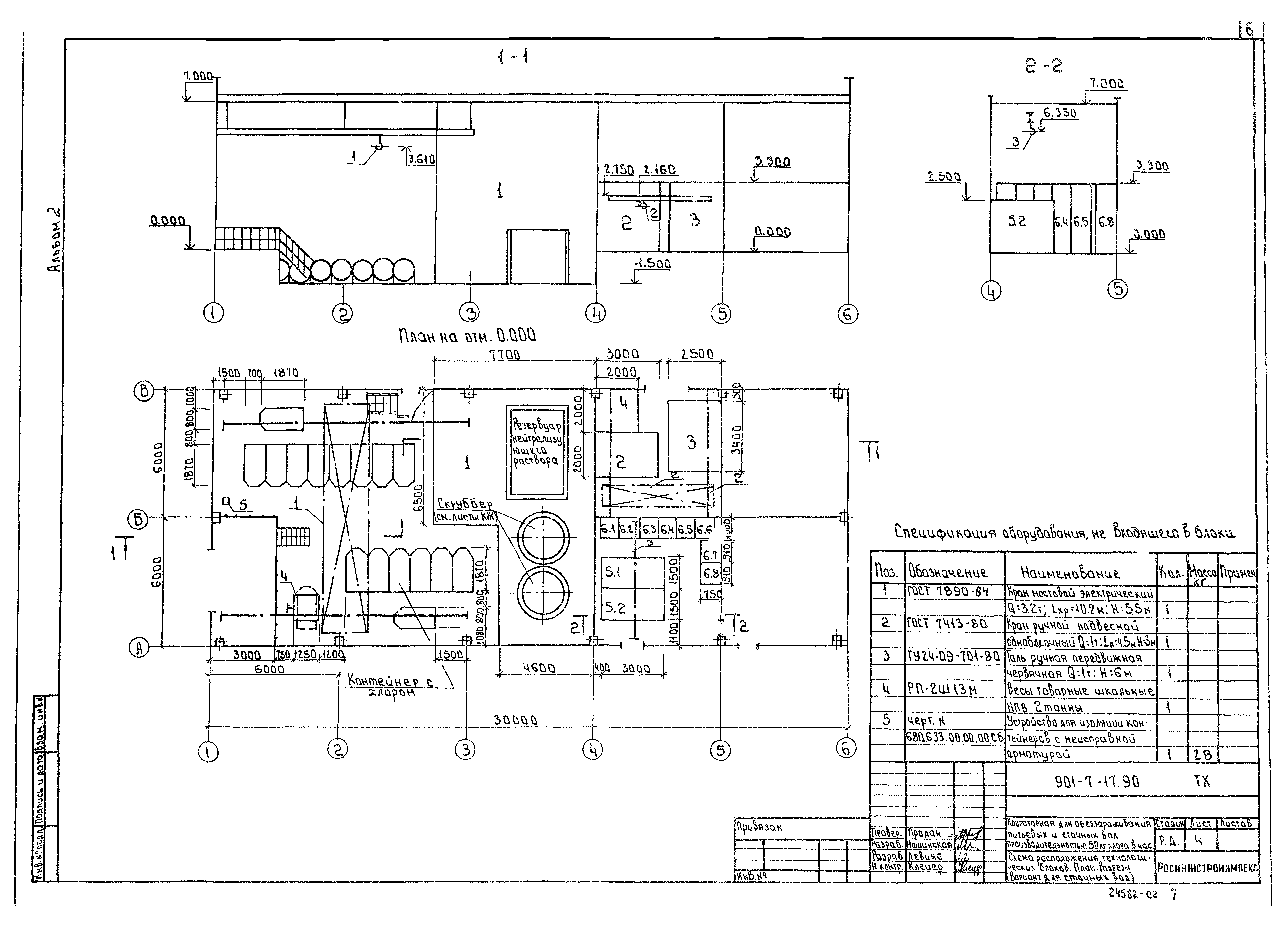
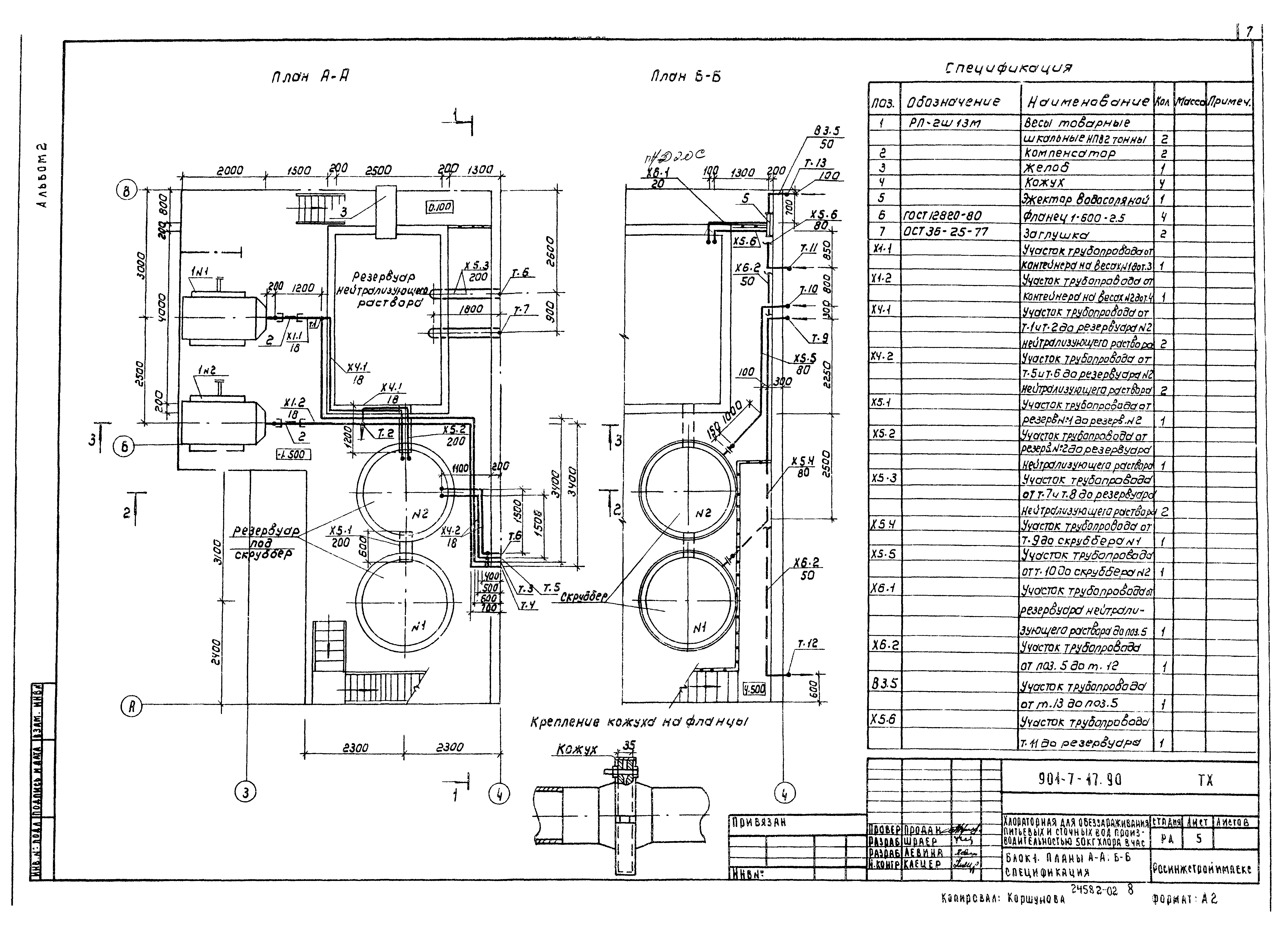
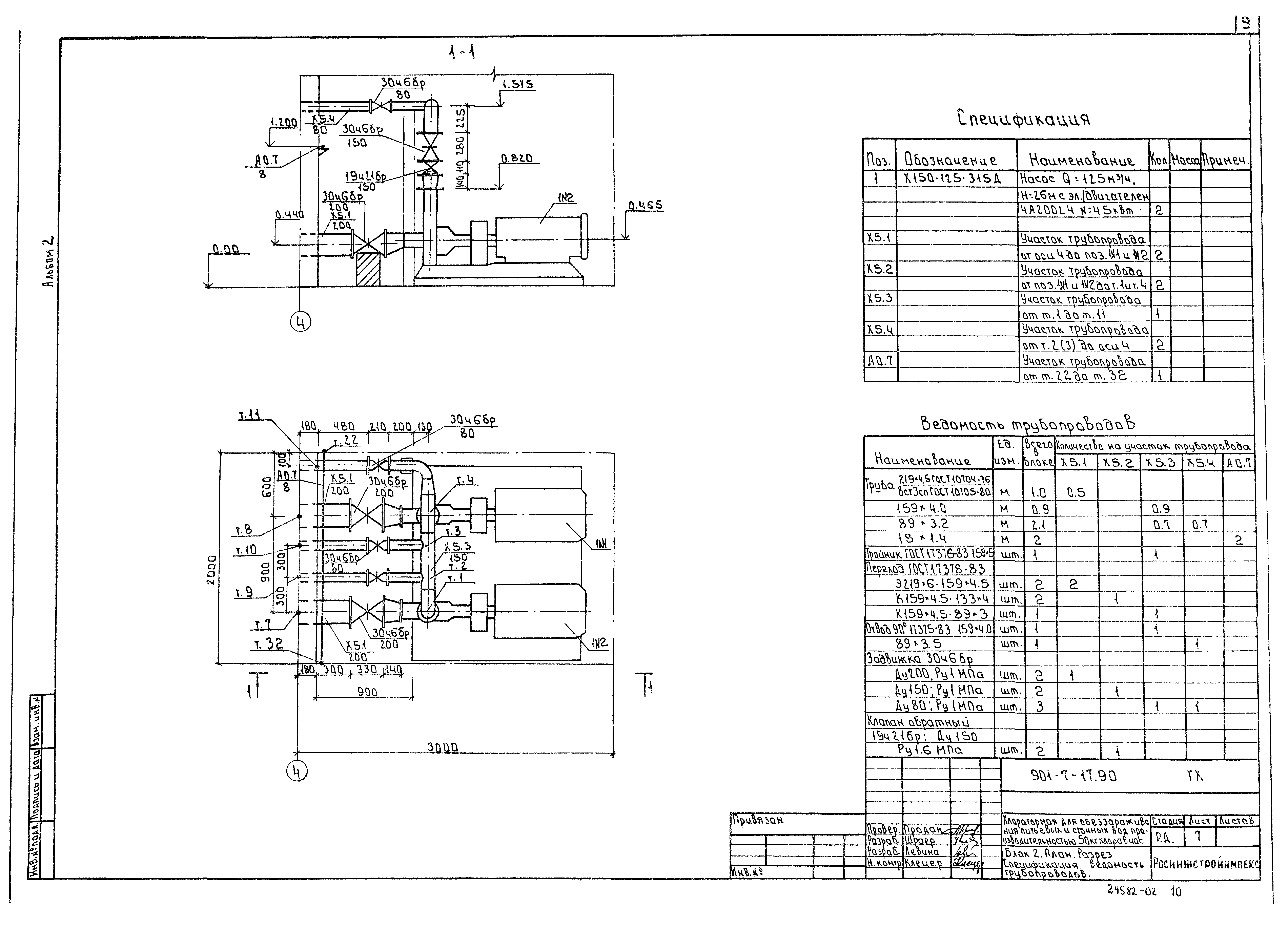
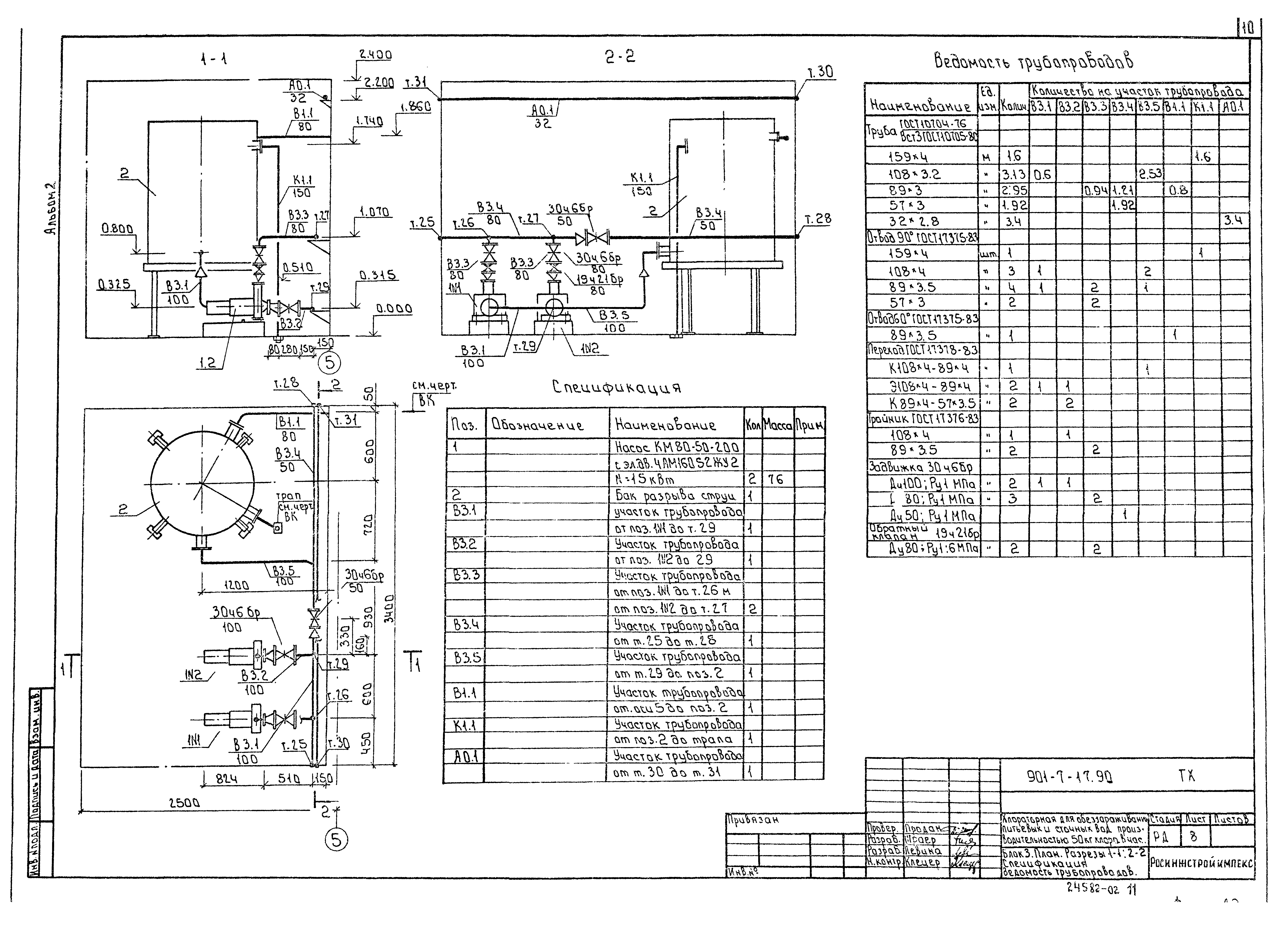
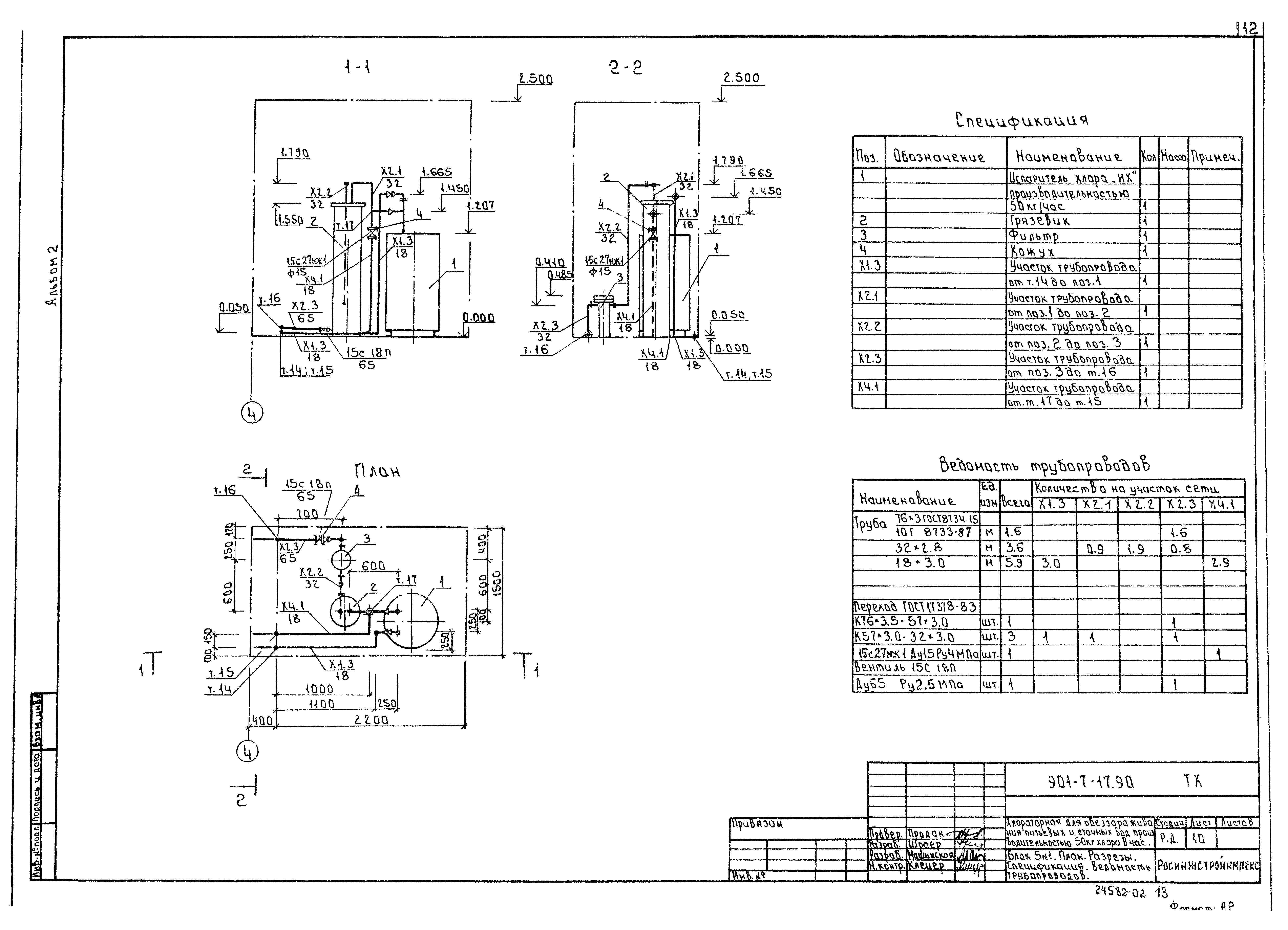
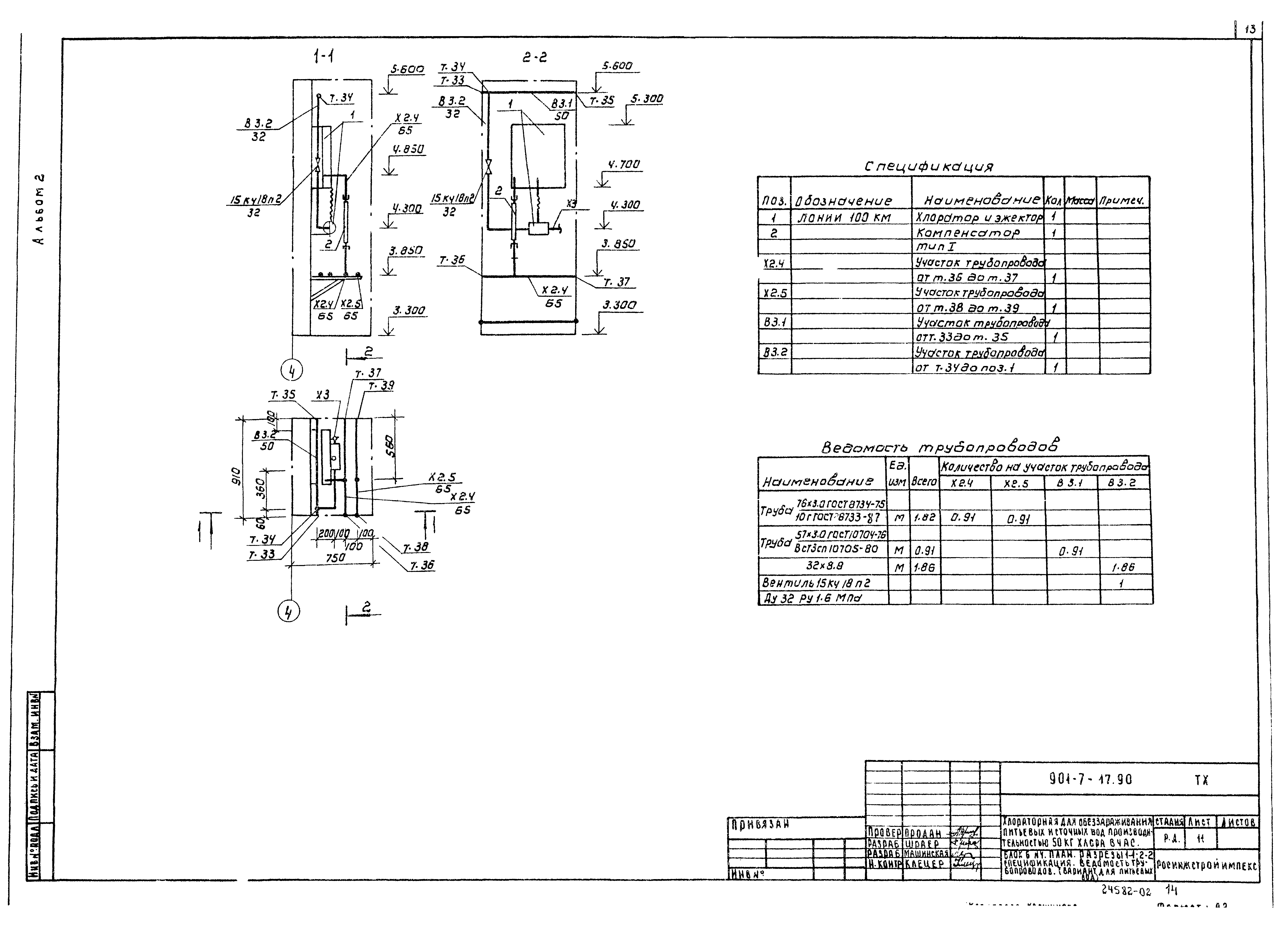
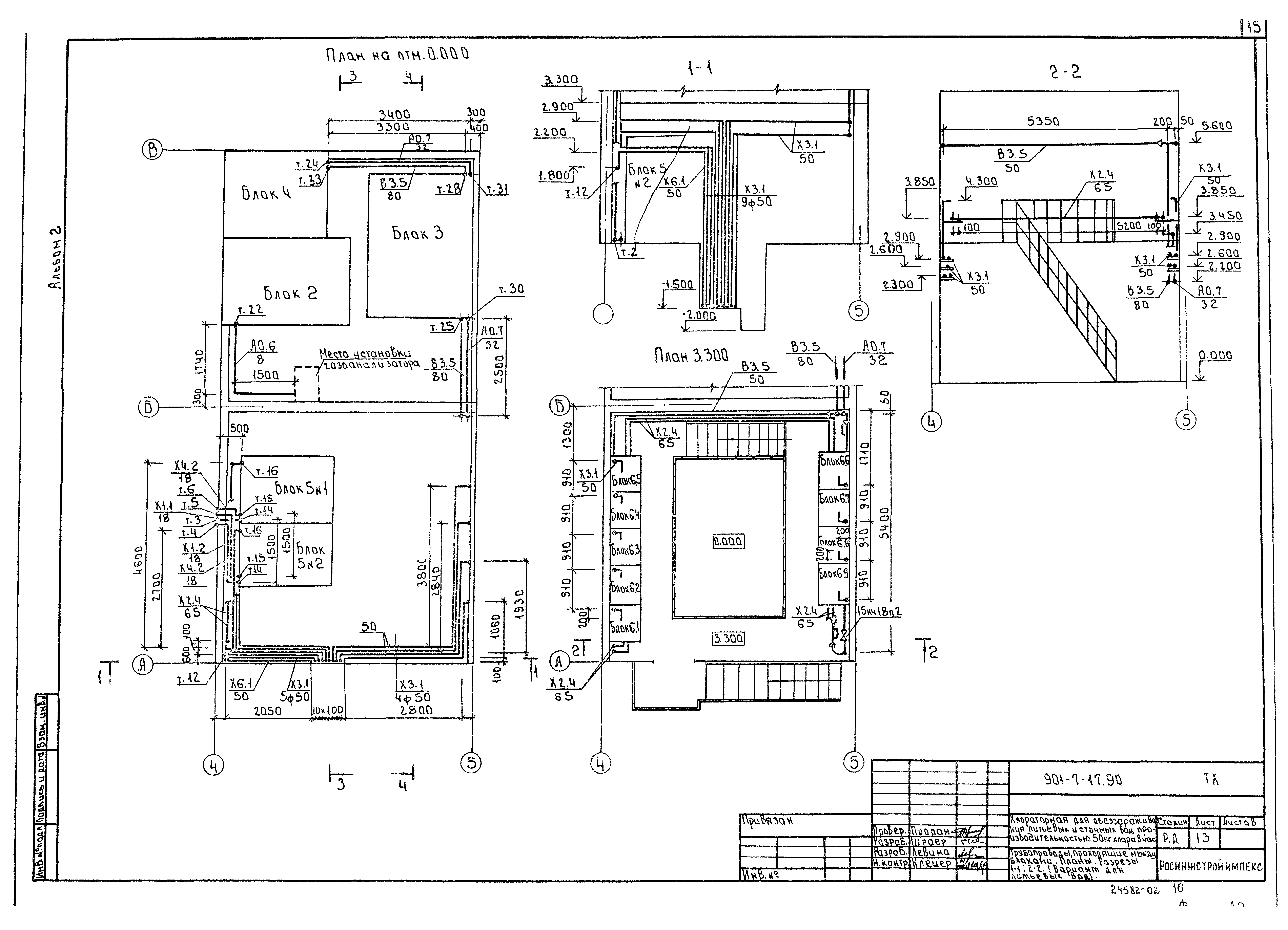
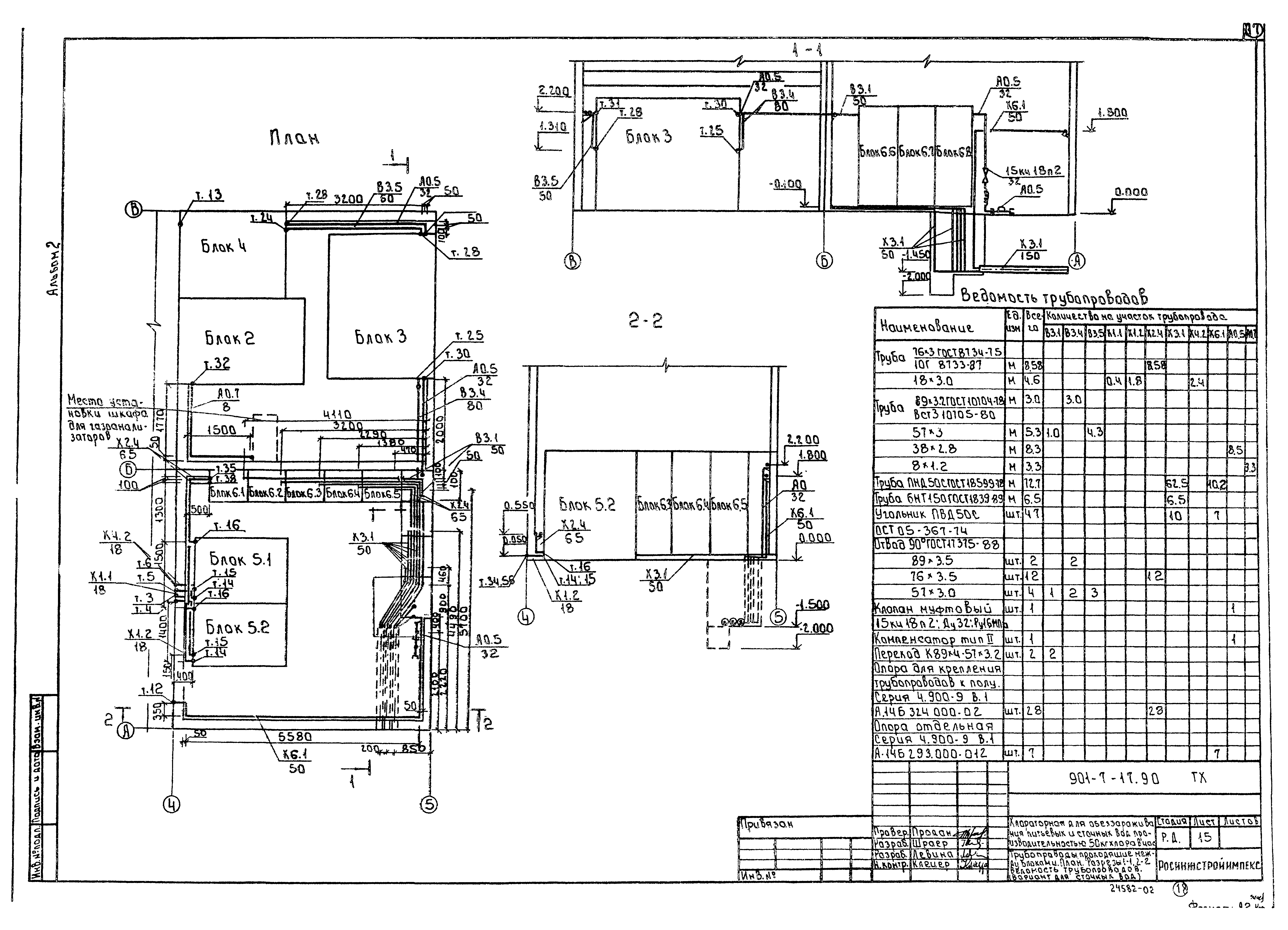
| Оглавление: | Содержание Общие данные Принципиальная схема Схема расположения технологических балок. План. Разрезы (вариант для питьевых вод) Схема расположения технологических блоков. План. Разрезы (вариант для сточных вод) Блок 1. Планы А-А, Б-Б. Спецификация Блок 1. Разрезы 1-1, 2-2, 3-3. Ведомость трубопроводов Блок 2. План. Разрез. Спецификация. Ведомость трубопроводов Блок 3. План. Разрезы 1-1, 2-2. Спецификация. Ведомость трубопроводов Блок 4. План. Разрезы 1-1, 2-2. Спецификация. Ведомость трубопроводов Блок 5 № 1. План. Разрезы 1-1, 2-2. Спецификация. Ведомость трубопроводов Блок 6 № 4. План. Разрезы 1-1, 2-2. Спецификация. Ведомость трубопроводов (вариант для питьевых вод) Блок 6 № 4. План. Разрезы 1-1, 2-2. Спецификация. Ведомость трубопроводов (вариант для сточных вод) Трубопроводы, проходящие между блоками. Планы. Разрезы 1-1, 2-2 (вариант для питьевых вод) Трубопроводы, проходящие между блоками. Разрезы 3-3, 4-4. Ведомость трубопроводов (вариант для питьевых вод) Трубопроводы, проходящие между блоками. Планы. Разрезы 1-1, 2-2. Ведомость трубопроводов (вариант для сточных вод) |
| Разработан: | Росинжстройимпекс |
| Утверждён: | 07.12.1989 Госкомархитектура (225) |
| Издан: | ЦИТП Госстроя СССР (CITP, Gosstroy (USSR) 1991 г. ) |
| Заменяет собой: |
















