Скачать Типовой проект 901-7-17.90 Альбом 3. Архитектурные решения. Конструкции железобетонные. Конструкции металлические. Организация строительства. Отопление и вентиляция. Внутренний водопровод и канализацияДата актуализации: 01.01.2021
|
| Обозначение: | Типовой проект 901-7-17.90 |
| Обозначение англ: | 901-7-17.90 |
| Статус: | не действует |
| Название рус.: | Альбом 3. Архитектурные решения. Конструкции железобетонные. Конструкции металлические. Организация строительства. Отопление и вентиляция. Внутренний водопровод и канализация |
| Дата добавления в базу: | 01.10.2014 |
| Дата актуализации: | 01.01.2021 |
| Дата введения: | 30.10.1990 |
| Дата окончания срока действия: | 01.04.2003 |
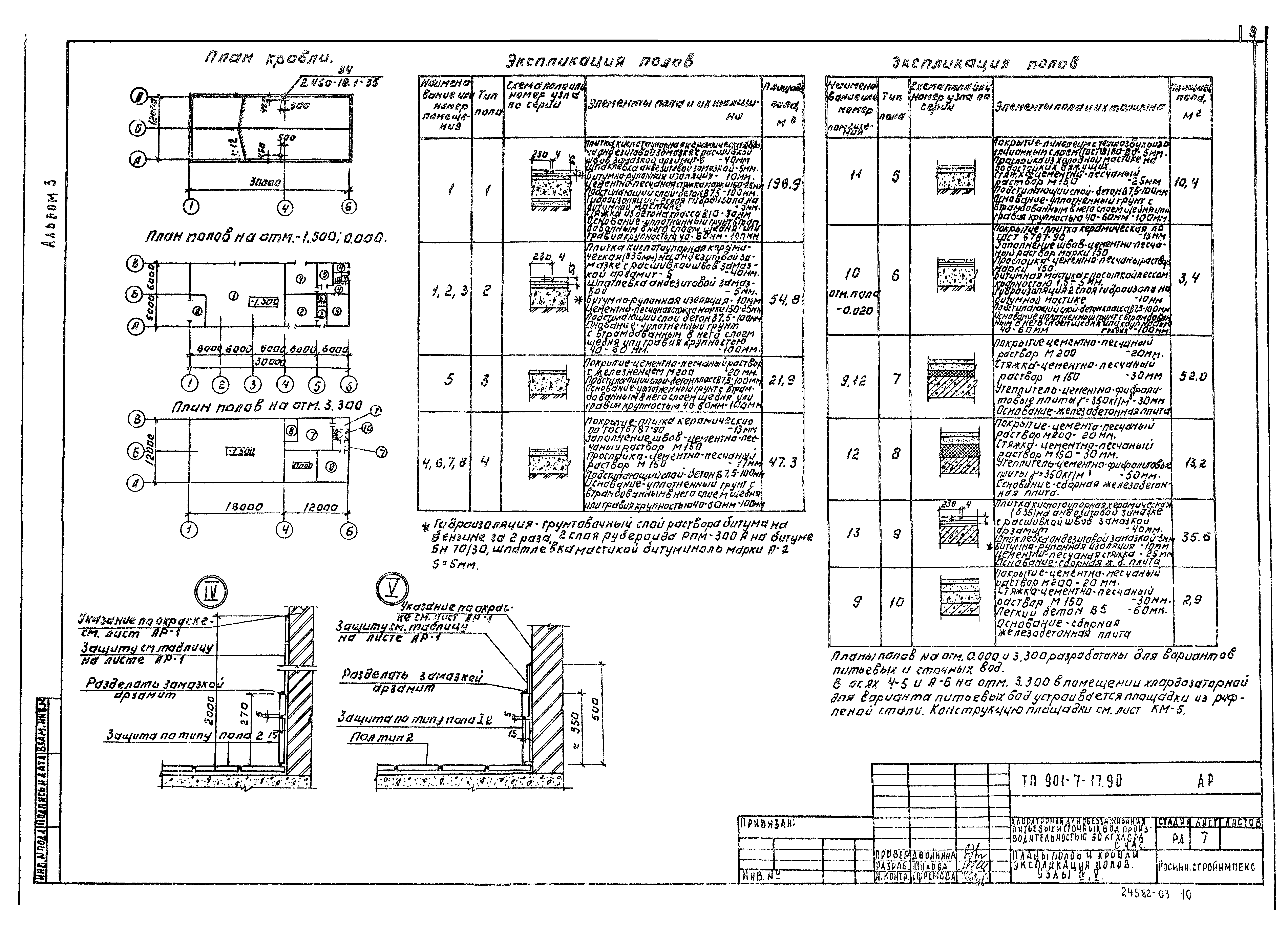
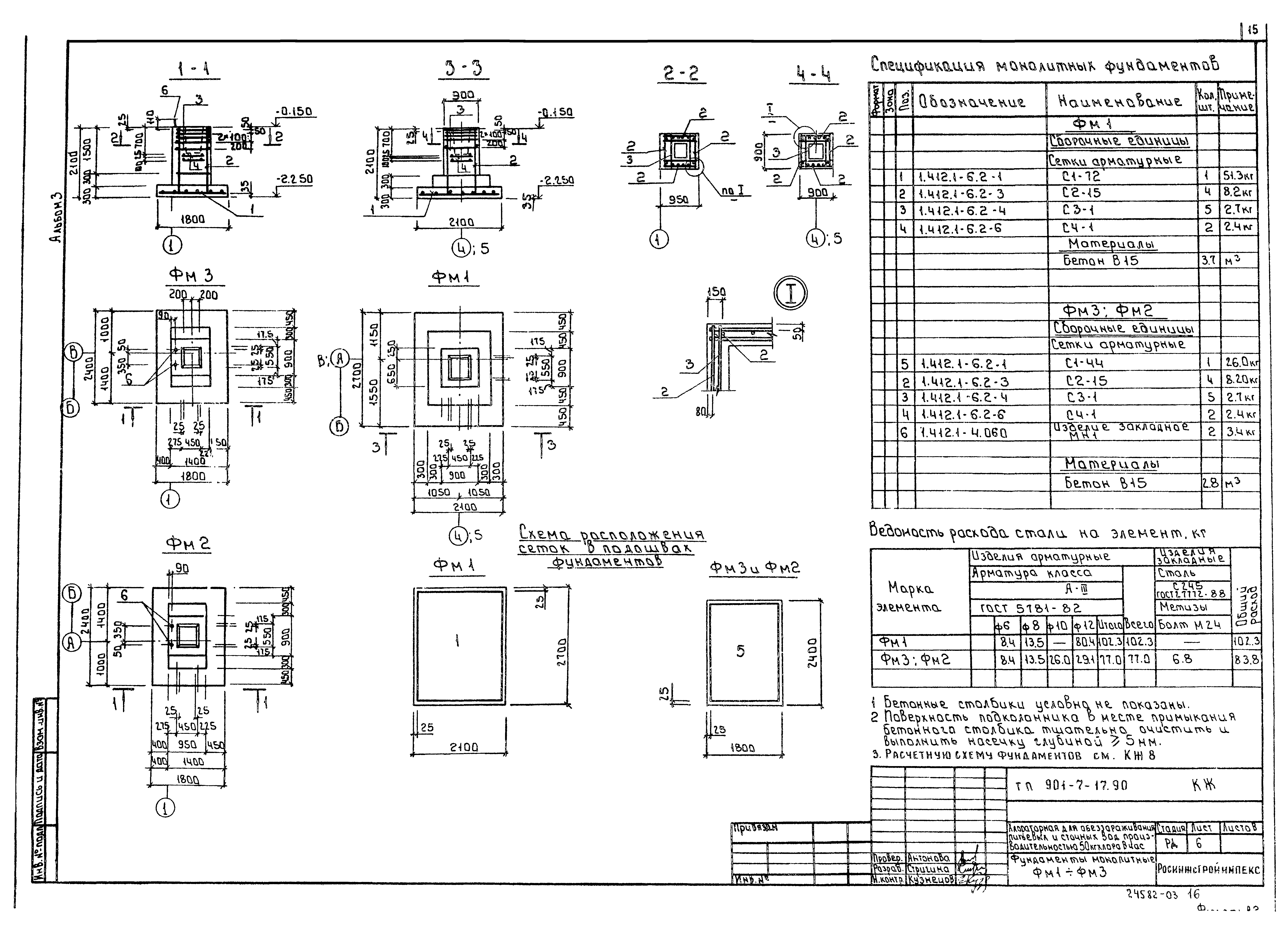
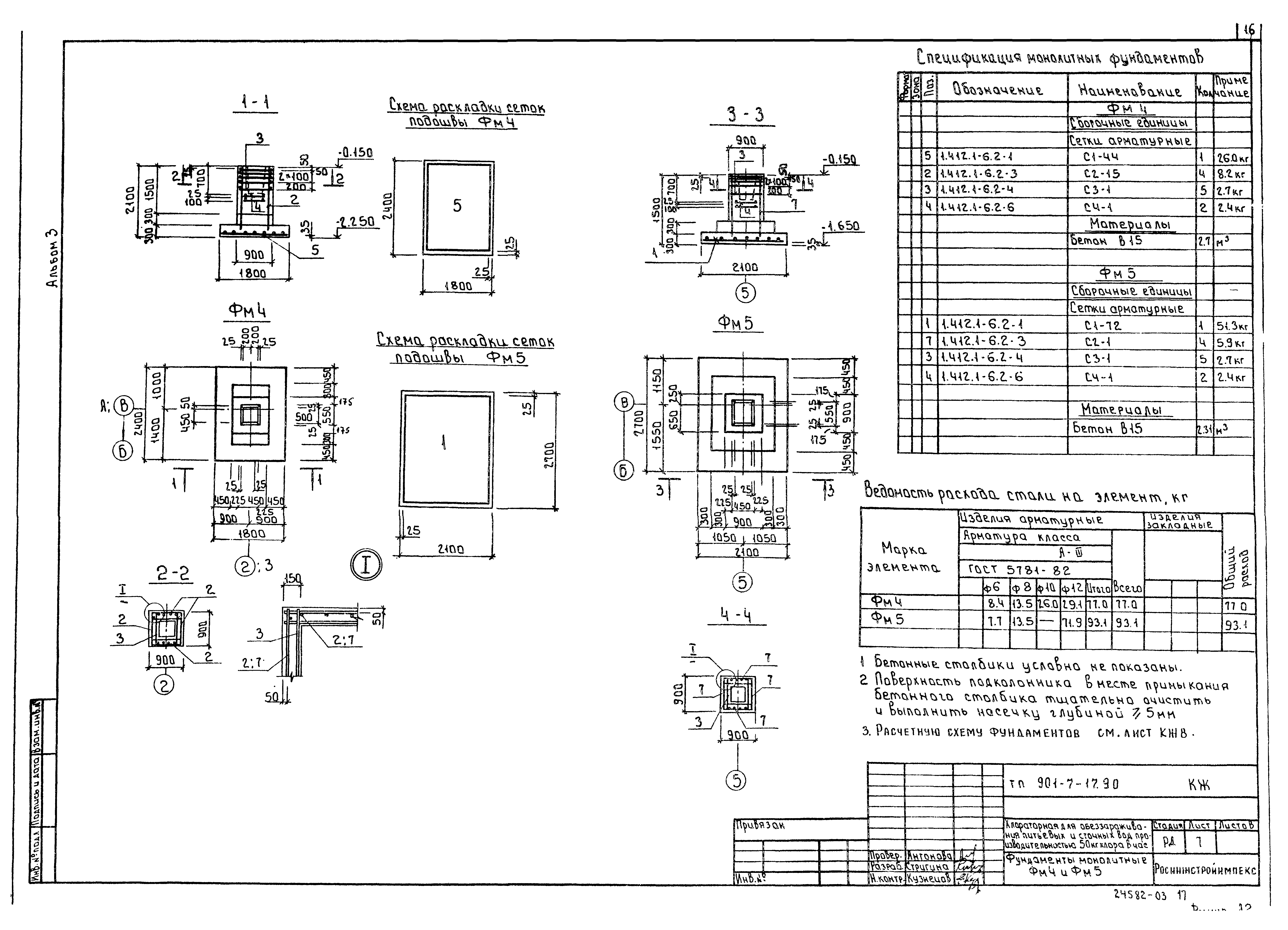
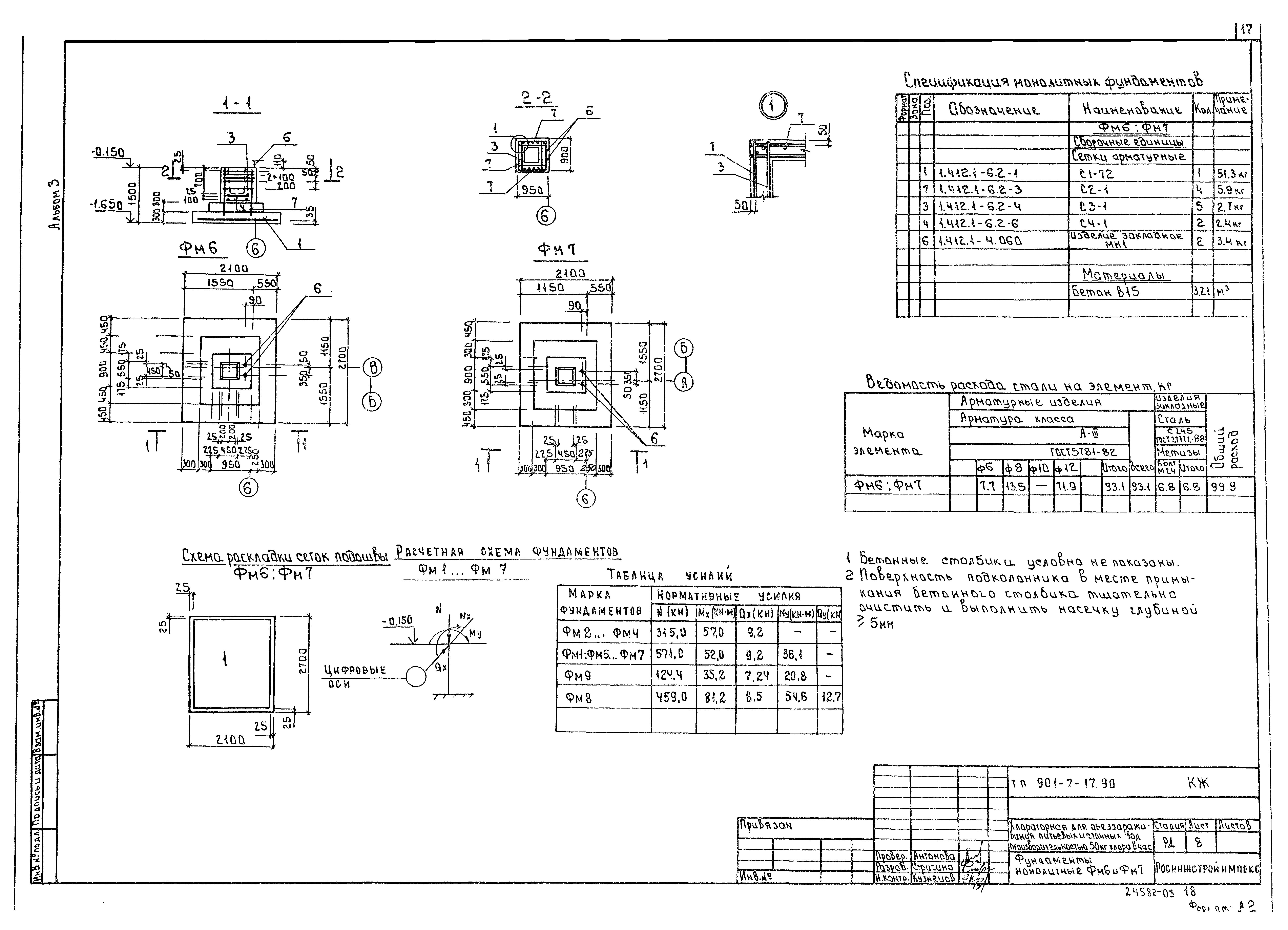
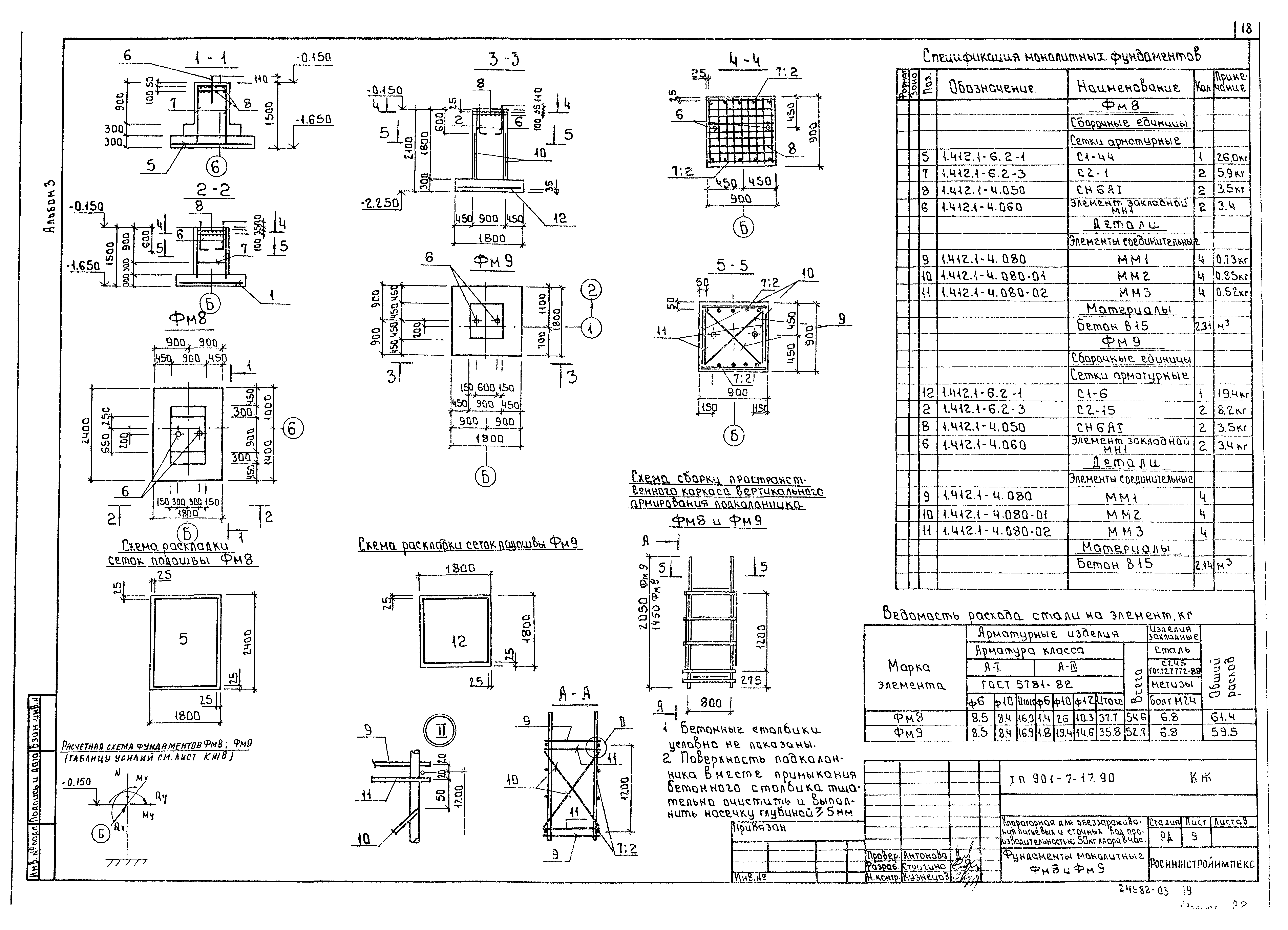
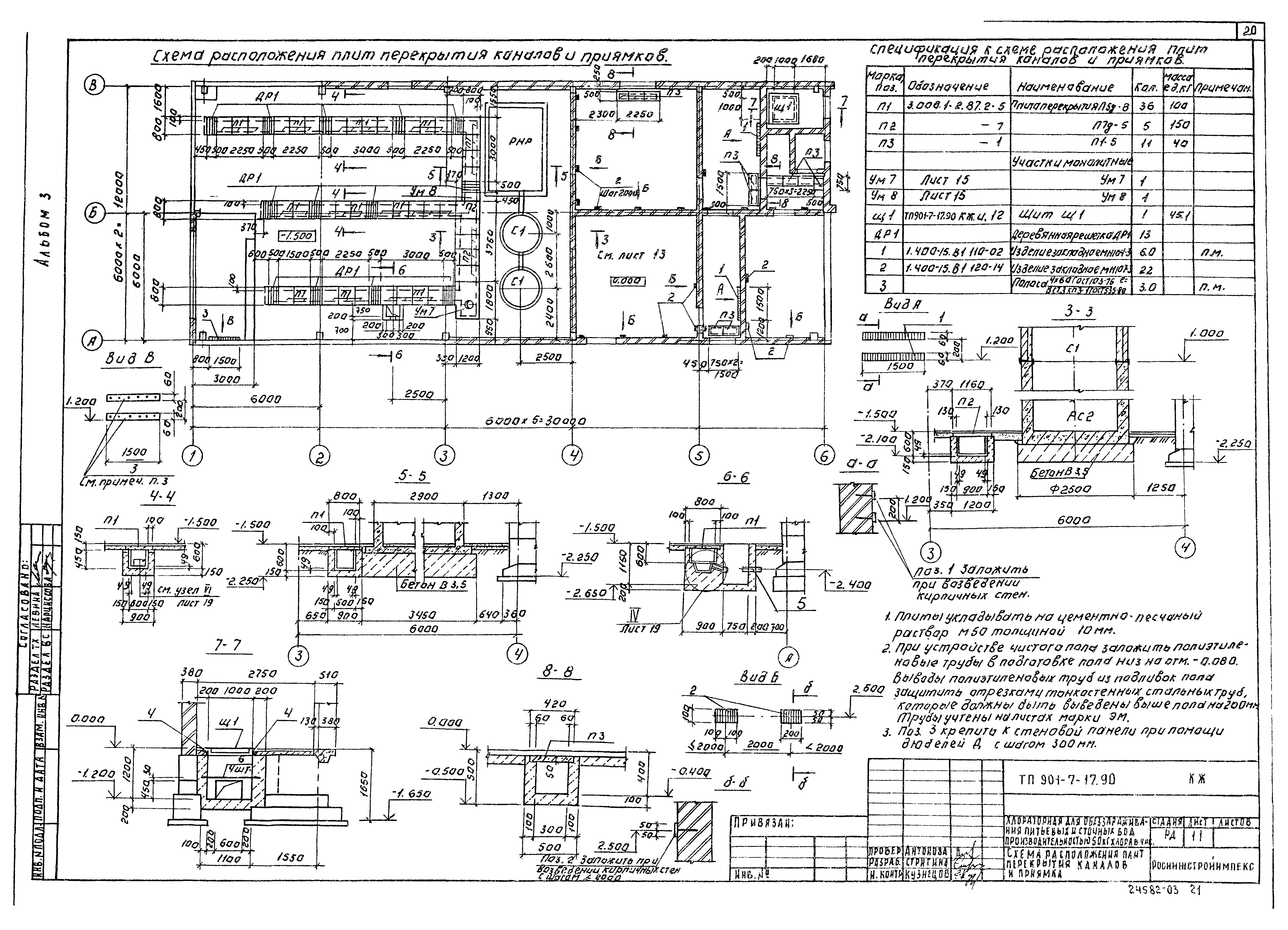
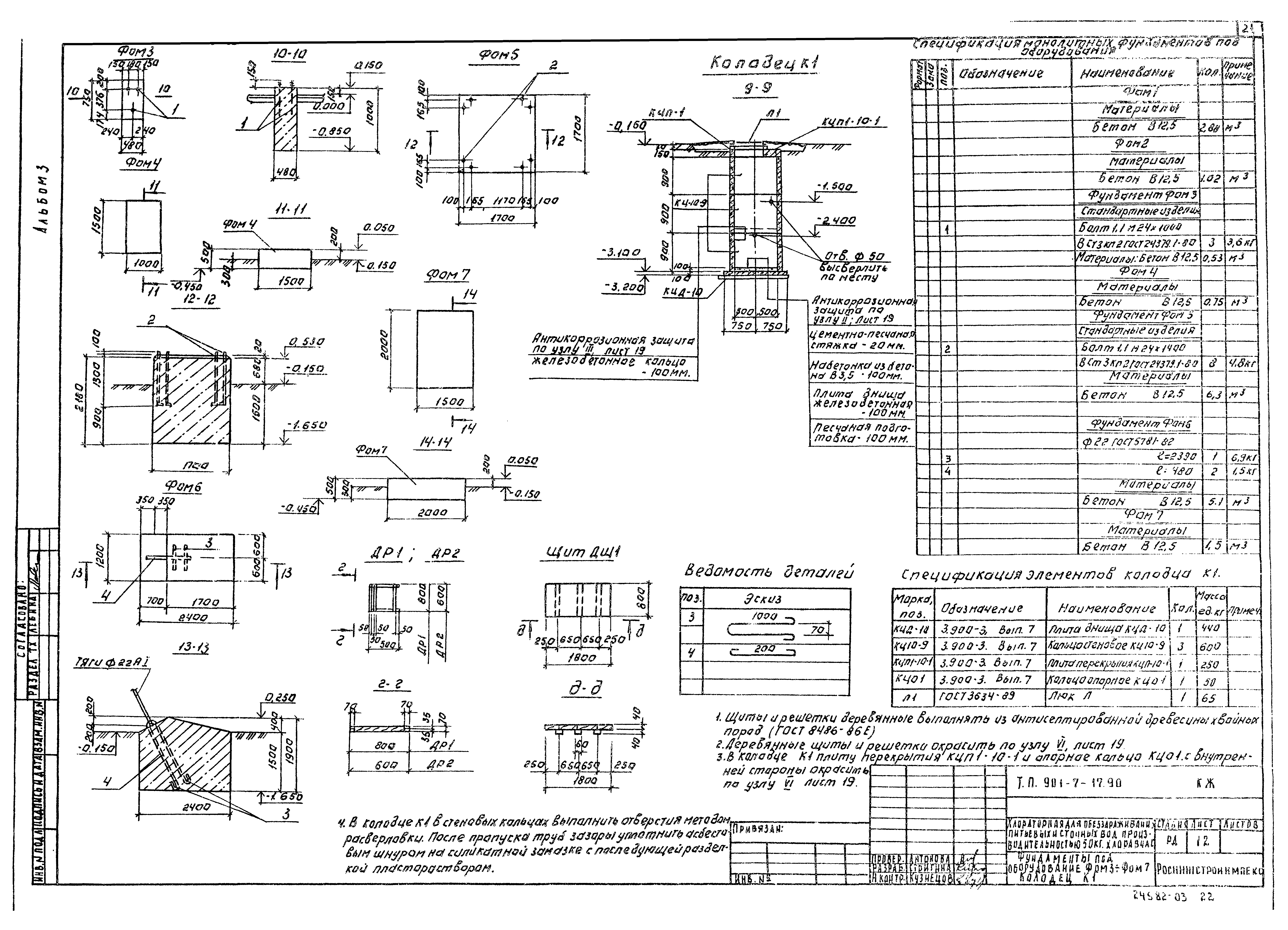
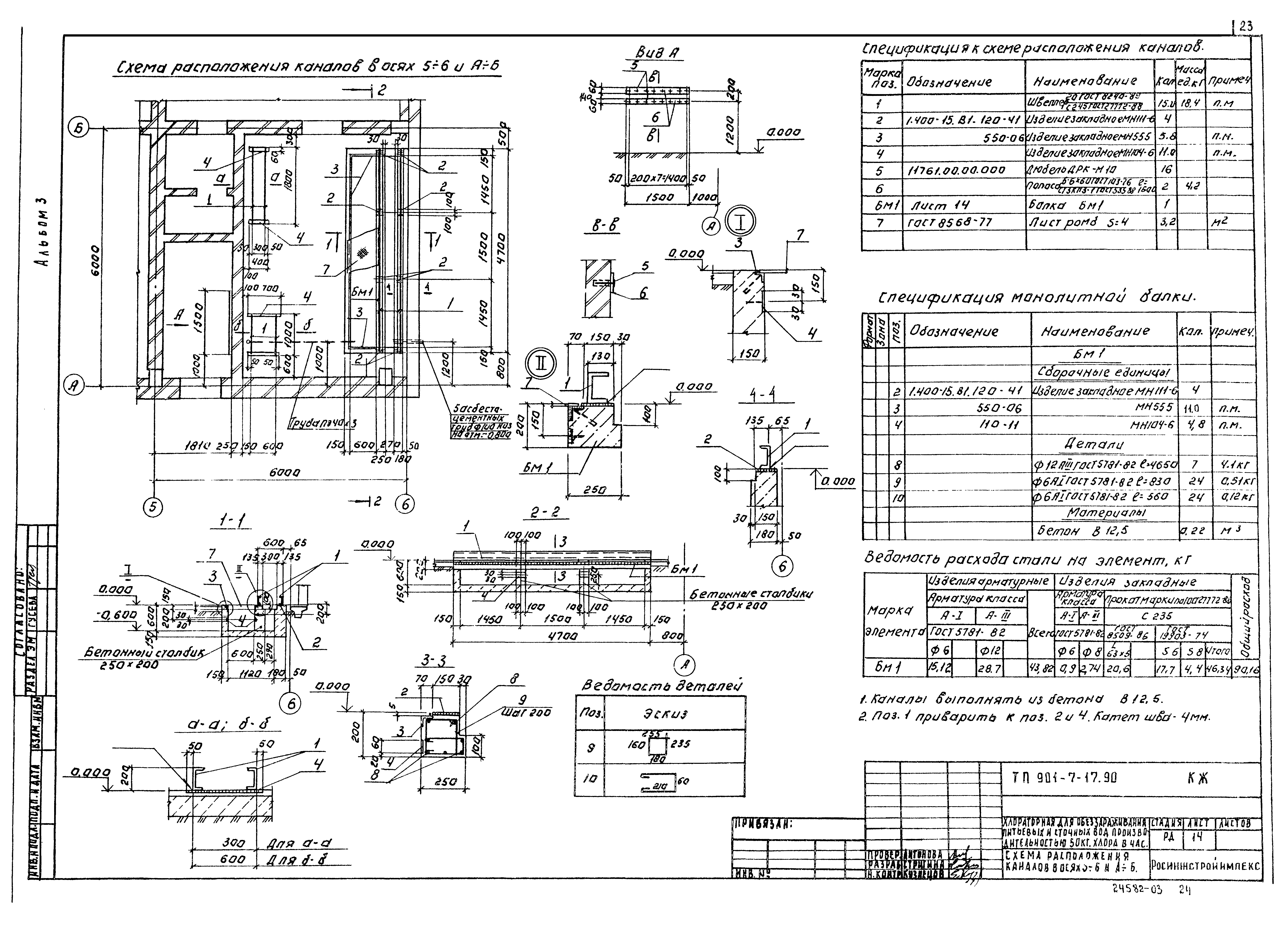
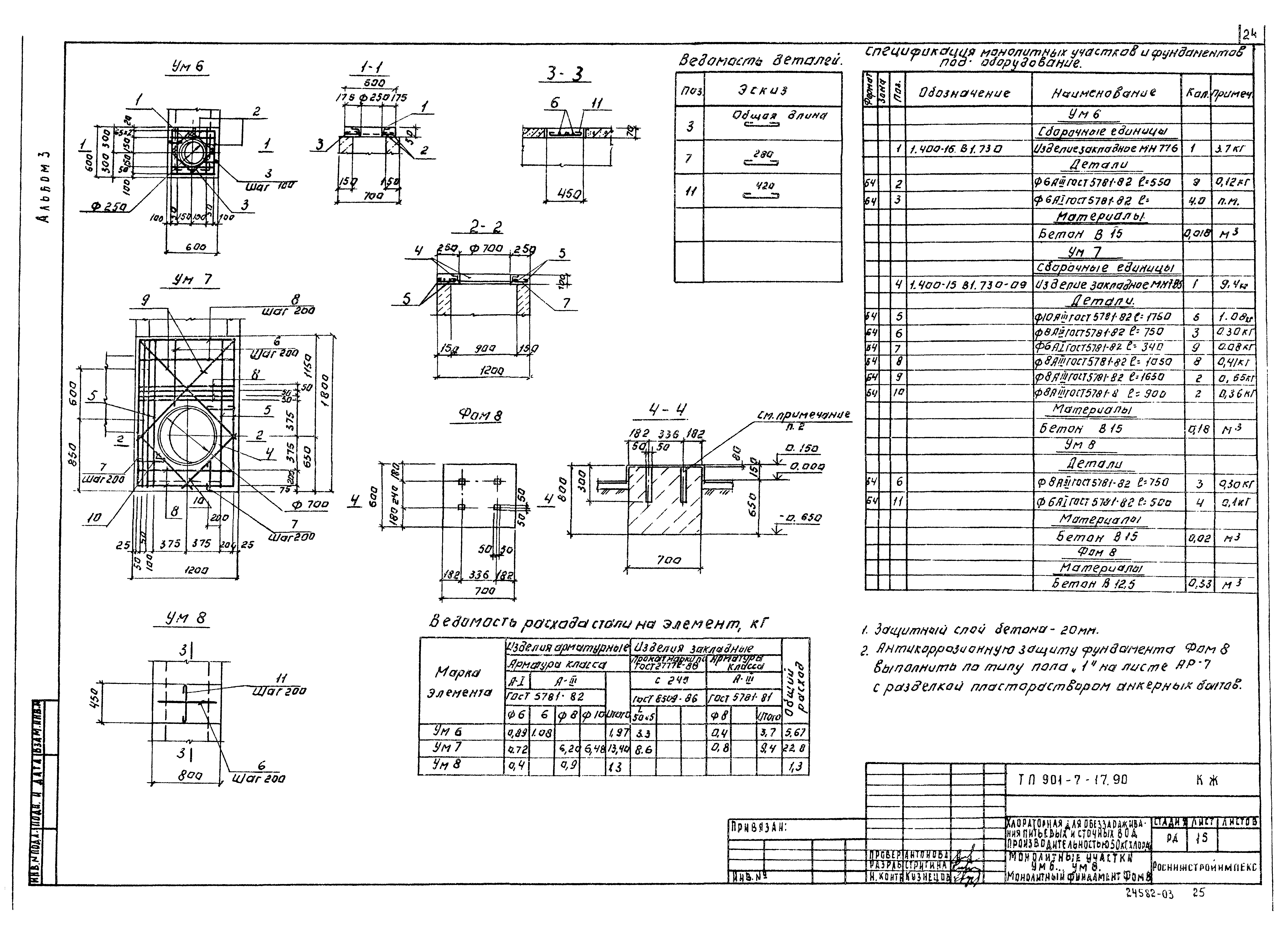
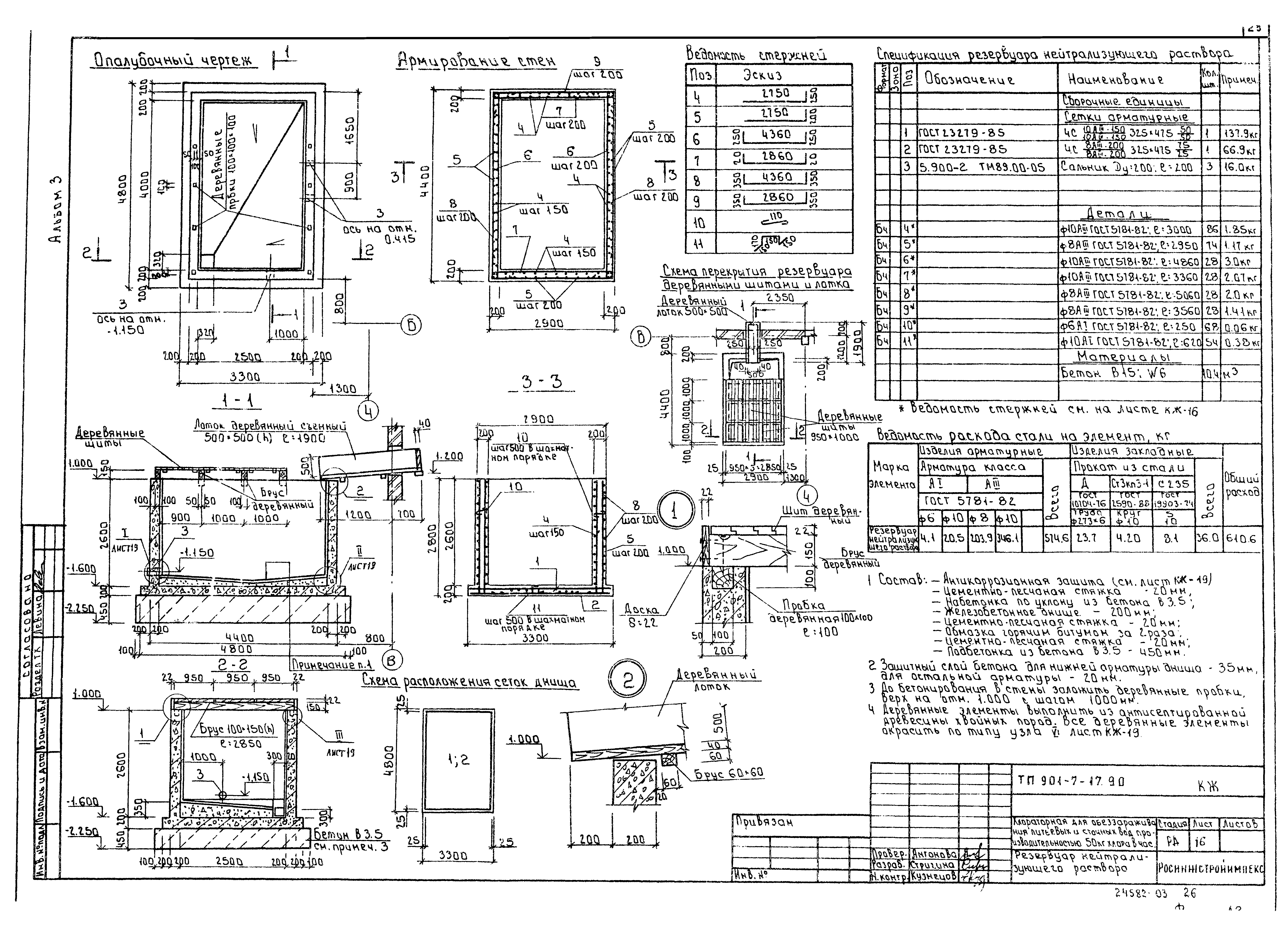
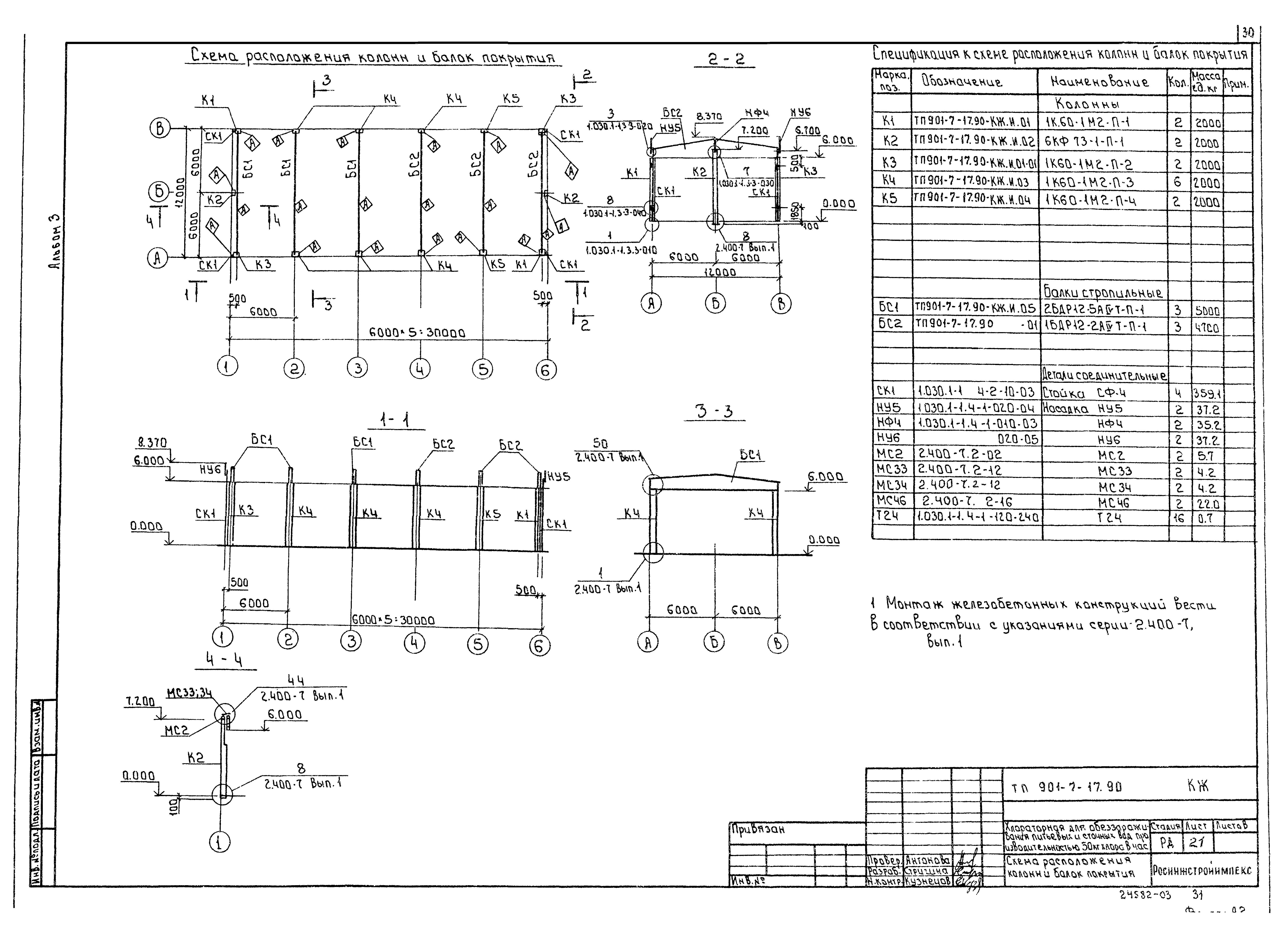
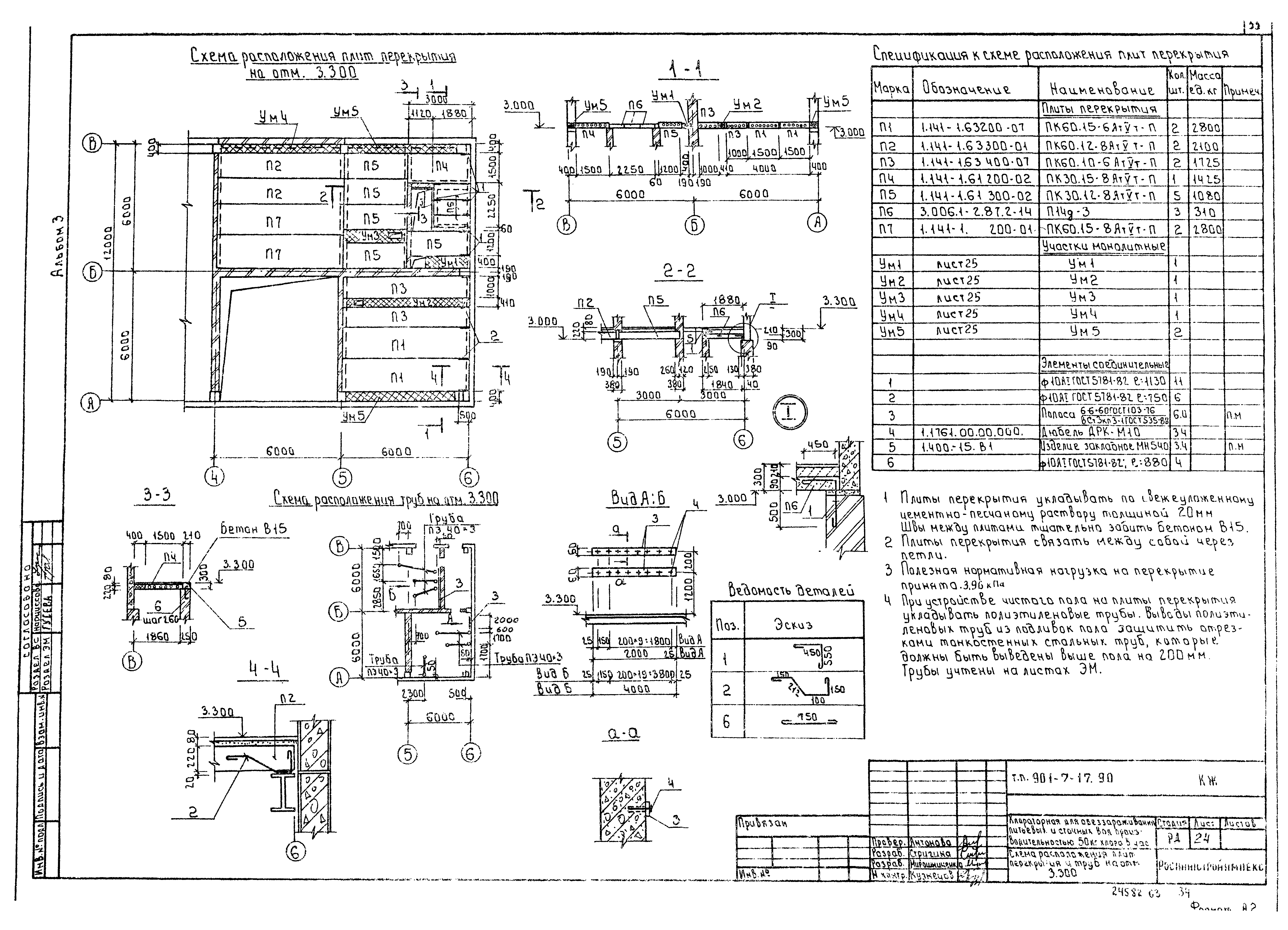
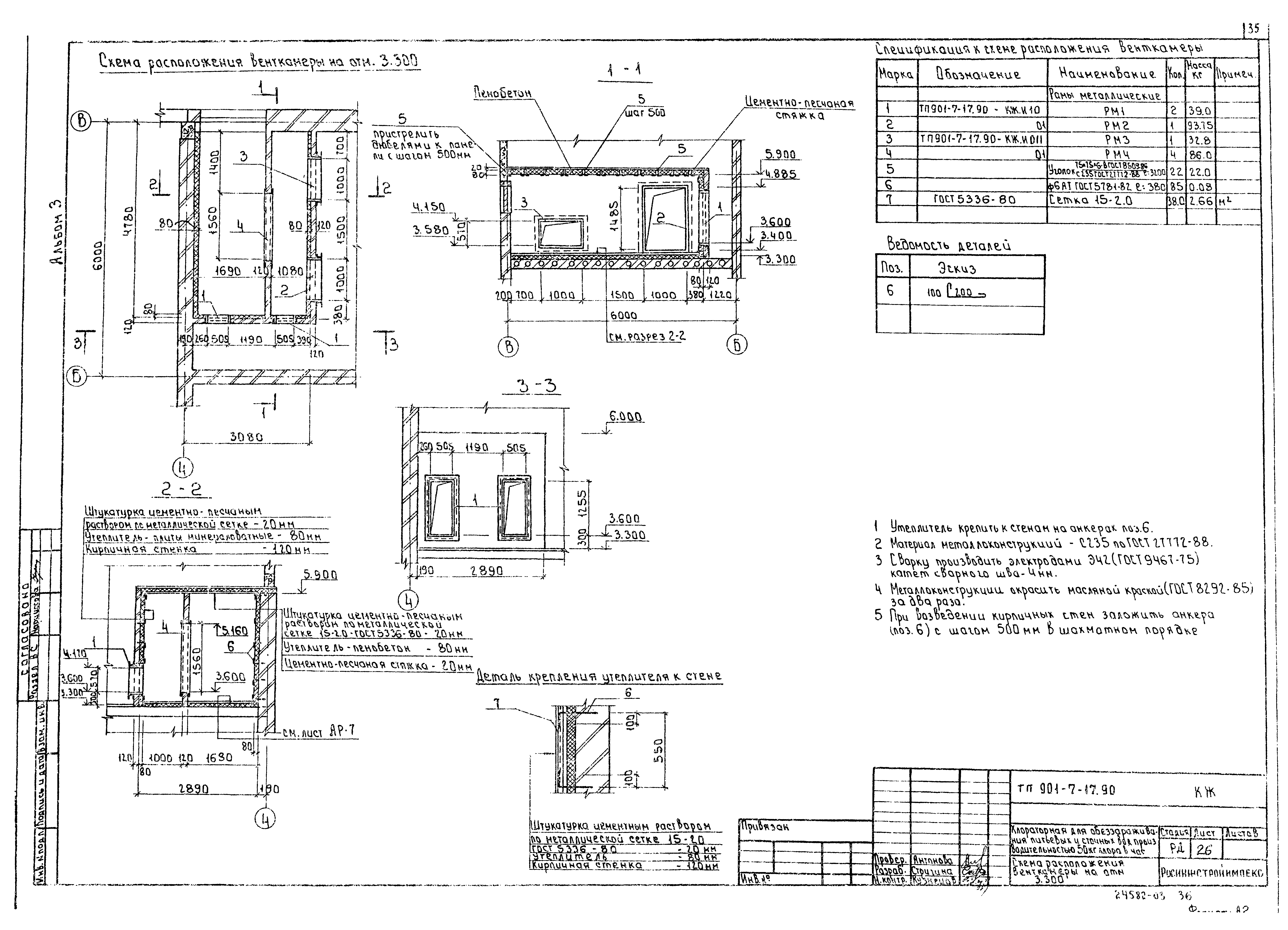
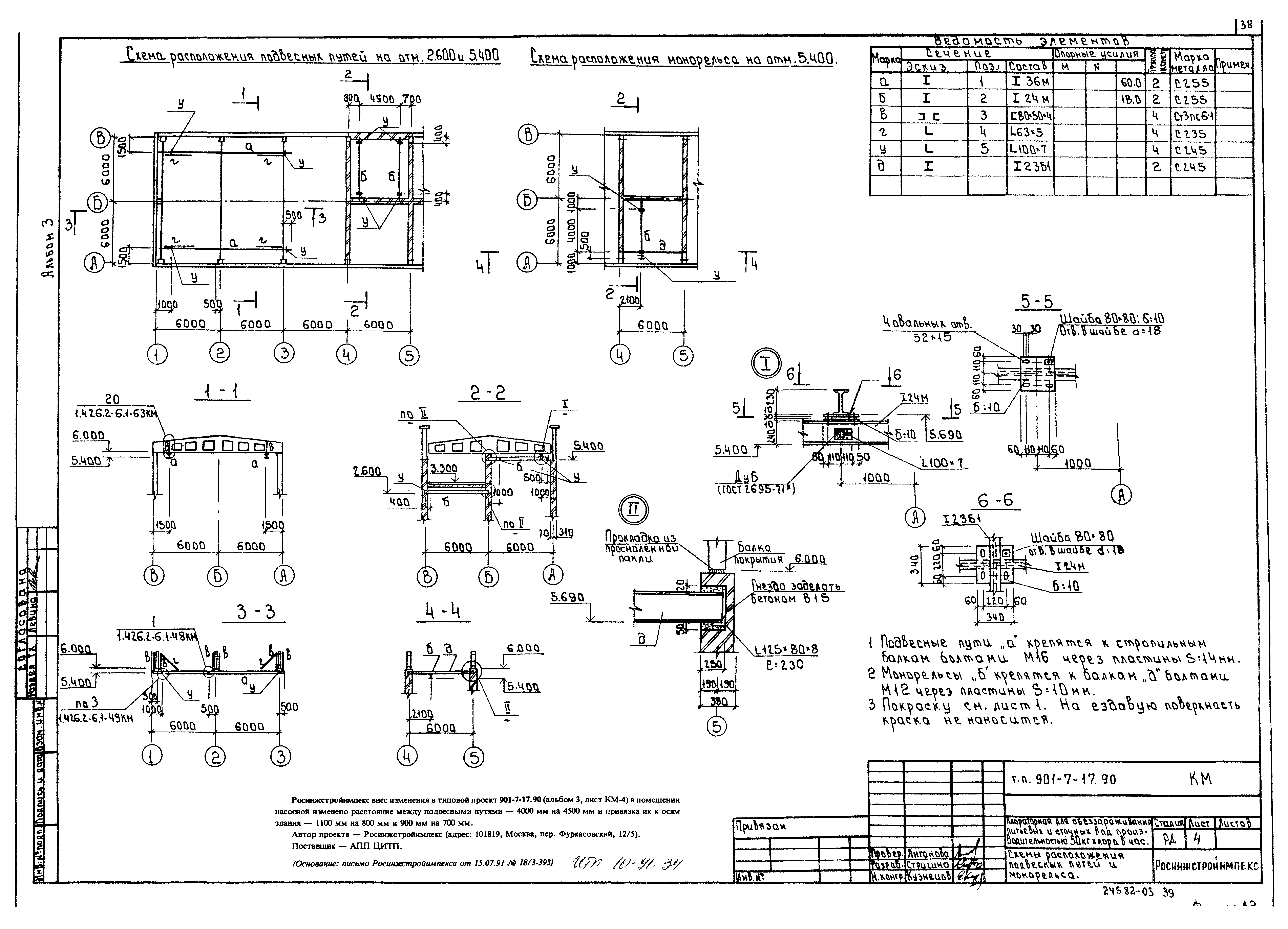
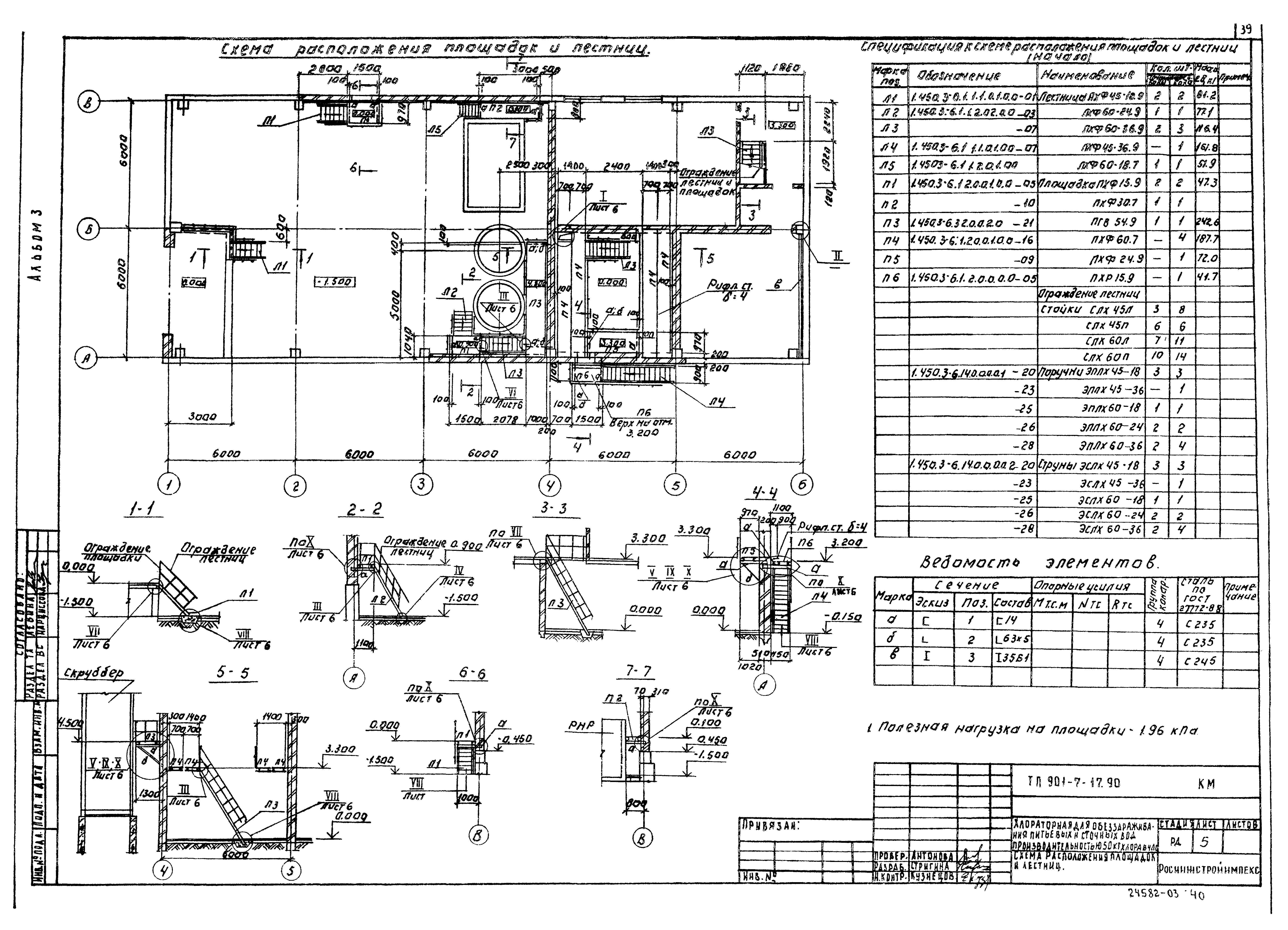
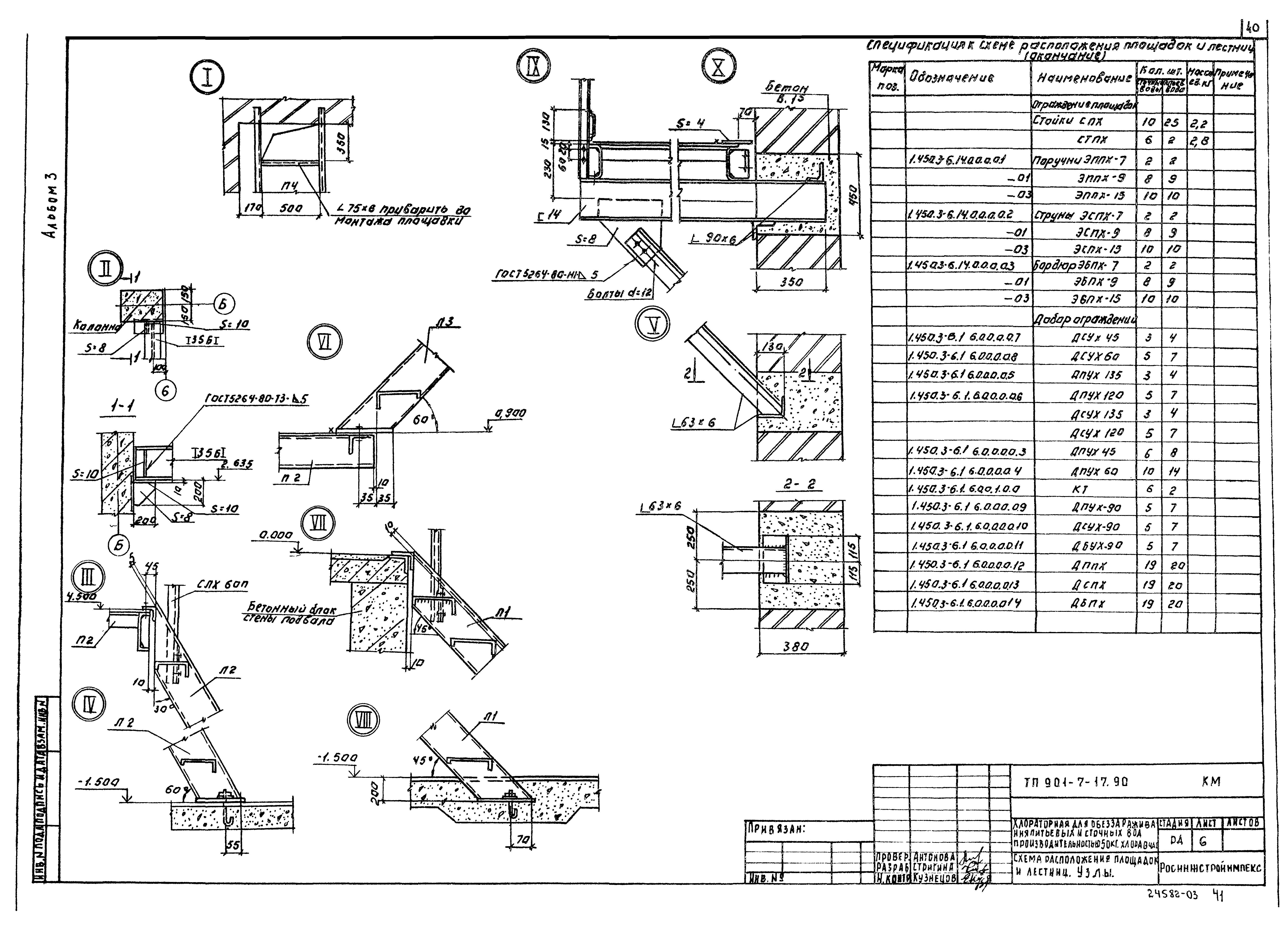
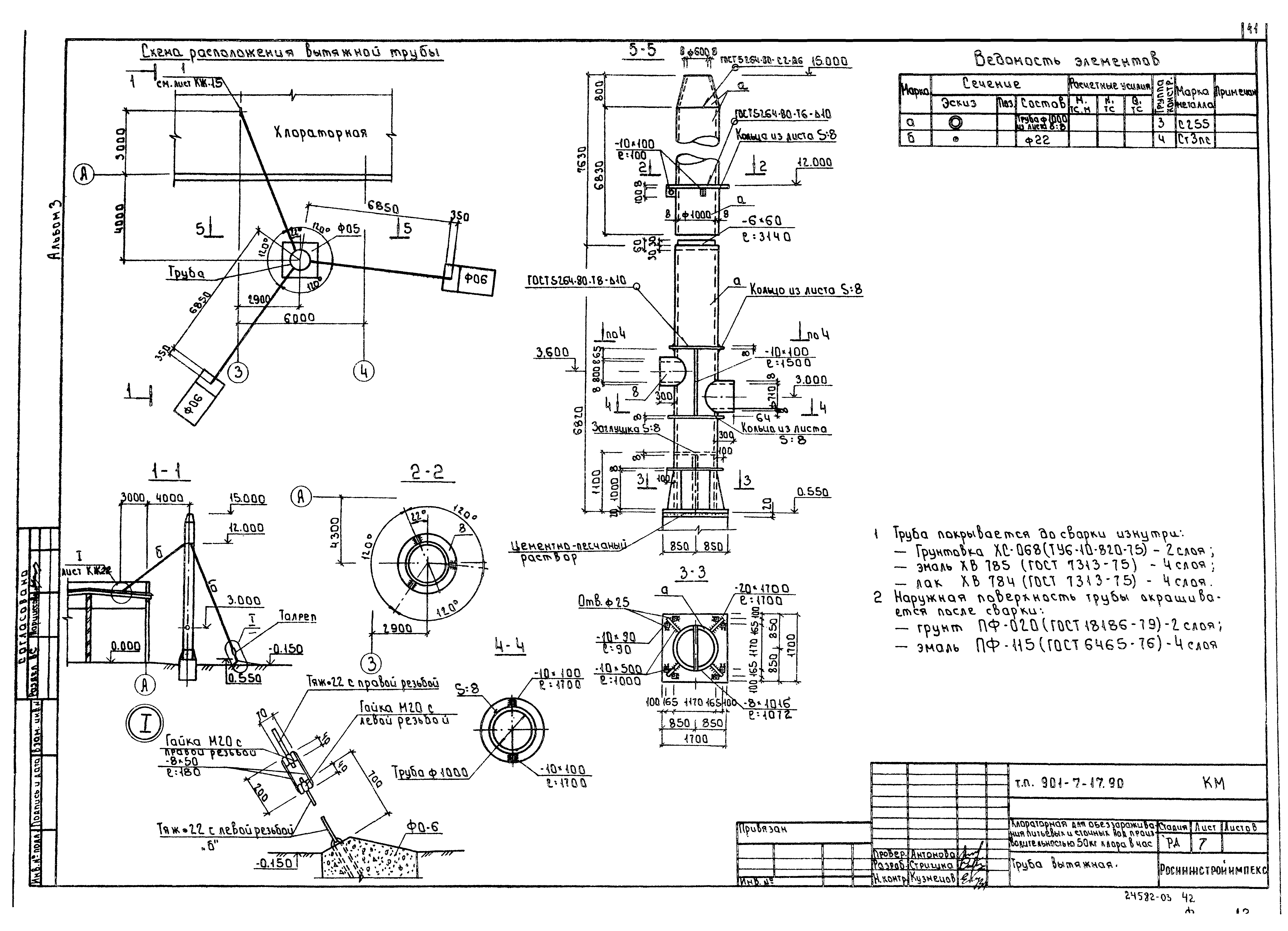
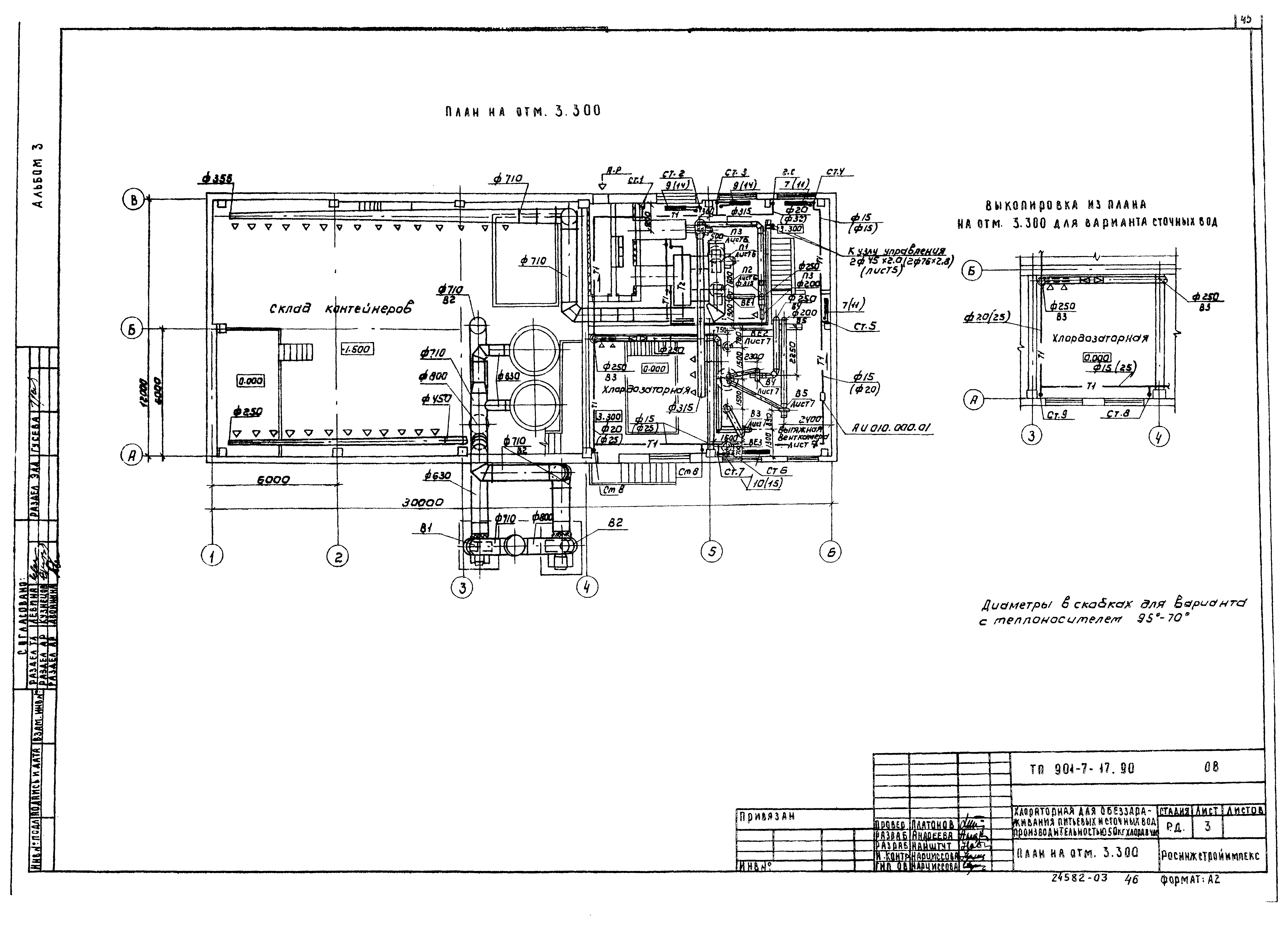
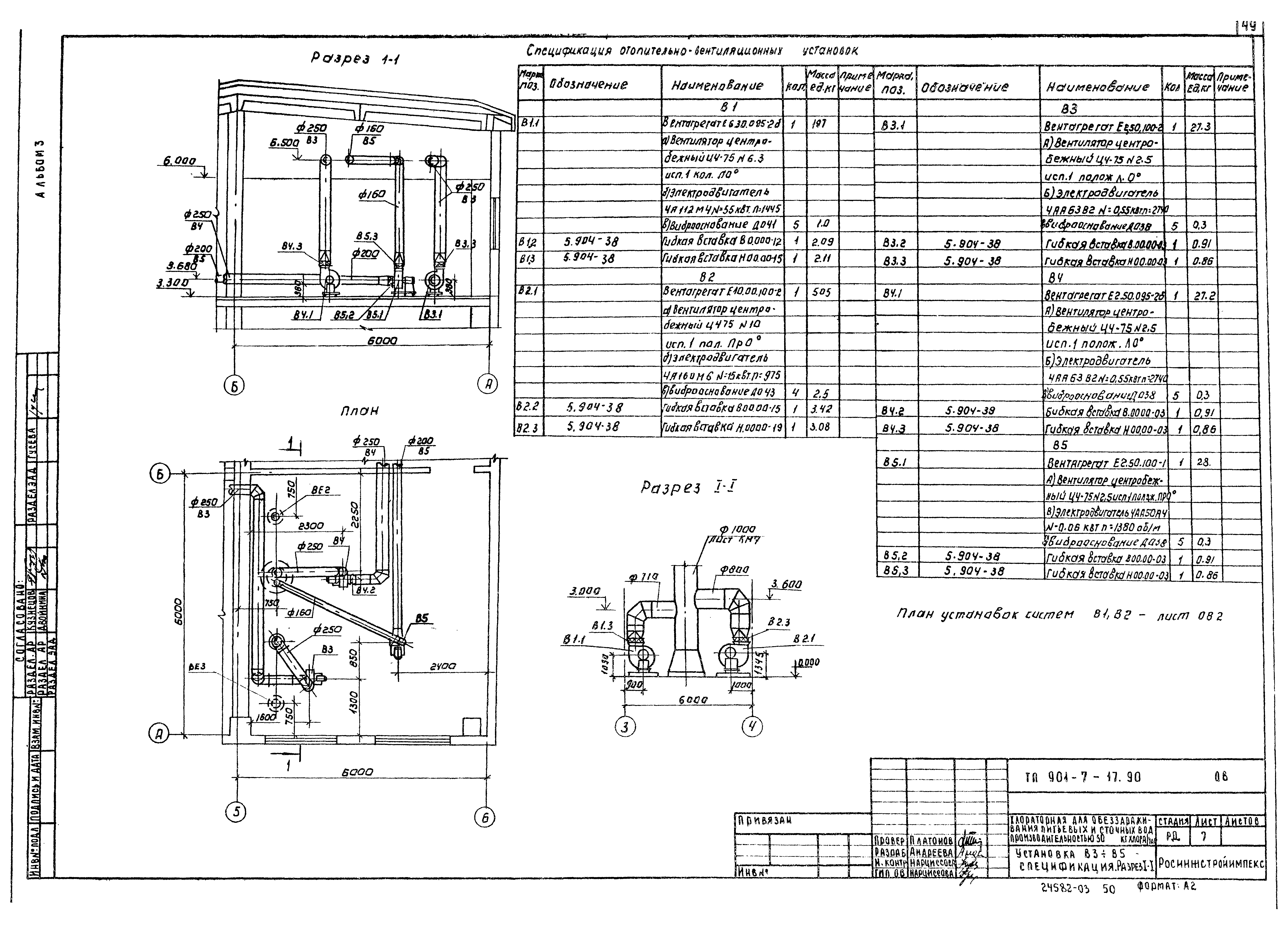
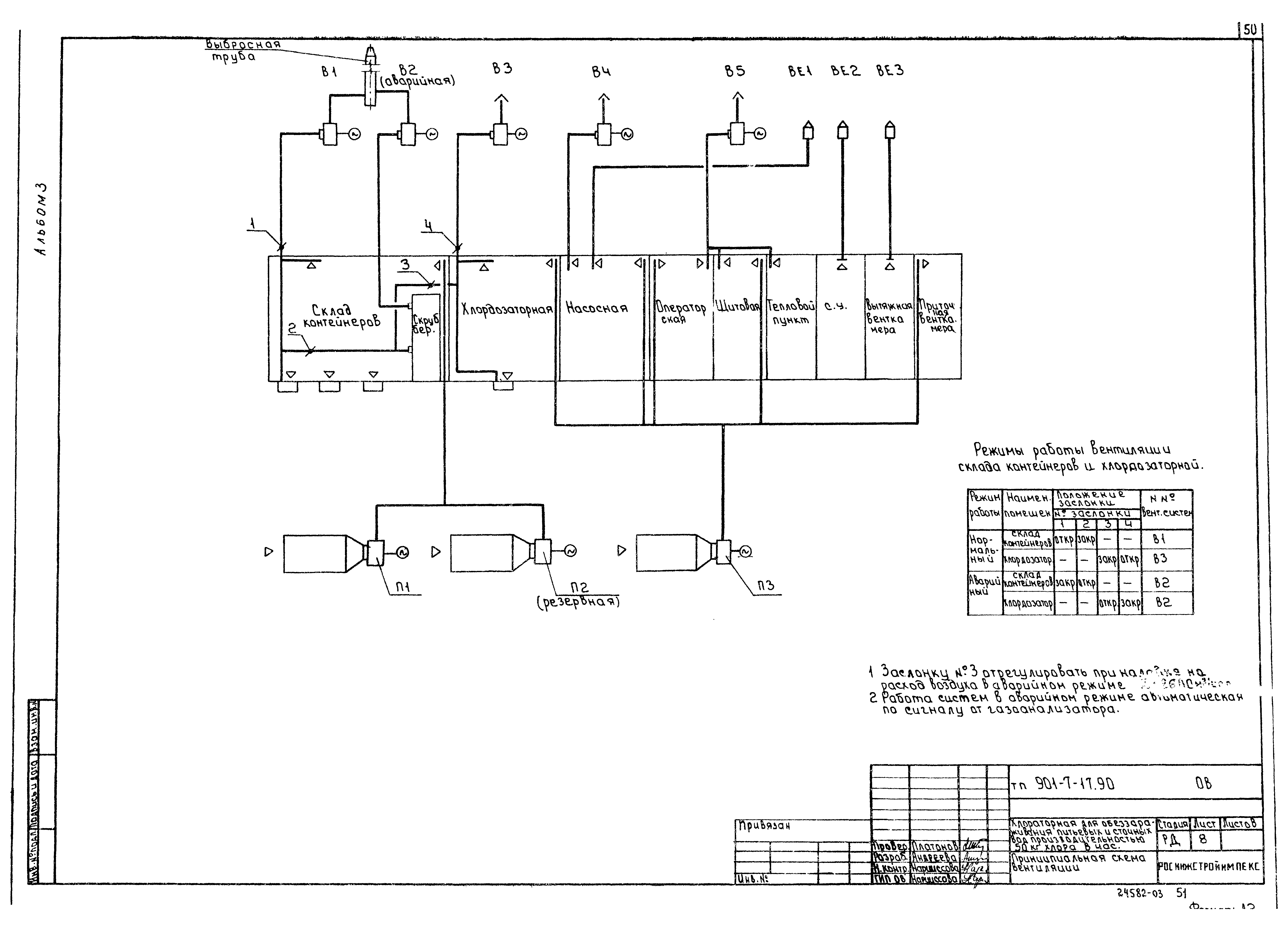
| Оглавление: | Архитектурные решения Общие данные Планы на отм. - 1.500; 0.000; 3.300. Разрез 3-3. Фасады А - В; 1 - 6; В - А (для варианта питьевых вод) Планы на отм. - 1.500; 0.000; 3.300. Разрез 3-3. Фасады А - В; 1 - 6; В - А (для варианта сточных вод) Разрезы 1-1, 2-2. Фасад 6 - 1. Схемы заполнения оконных проемов Ведомость и спецификация перемычек. Ведомость проемов ворот и дверей. Спецификация элементов заполнения проемов. Фрагмент плана Ведомость отделки помещений. Защита конструкций. Узлы I, II, III Планы полов и кровли. Экспликация полов. Узлы IV, V Конструкции железобетонные Общие данные Схема расположения фундаментов. Разрез 1-1 - 4-4; 11-11 Схема расположения фундаментов. Разрез 5-5 - 10-10. Разрез 12-12 - 18-18 Схема расположения фундаментов. Фрагменты планов. Сечения Фундаменты монолитные Фм1 - Фм3 Фундаменты монолитные Фм4 и Фм5 Фундаменты монолитные Фм6 и Фм7 Фундаменты монолитные Фм8 и Фм9 Схема расположения фундаментов под оборудование, каналов и приямков Схема расположения плит перекрытия каналов и приямка Фундаменты под оборудование Фом3 - Фом7. Колодец К1 Схема расположения каналов и приямков в осях 4 - 5 и А - Б Схема расположения каналов в осях 5 - 6 и А - Б Монолитные участки Ум6…Ум8. Монолитный фундамент Фом8 Резервуар нейтрализующего раствора Резервуар под скруббером "1" и "2" Схема расположения элементов скуббера Узлы антикоррозийной защиты резервуаров, каналов и приямков Узлы антикоррозийной защиты скруббера Схема расположения колонн и балок покрытия Схема расположения плит покрытия Схема расположения стеновых панелей Схема расположения плит перекрытия и труб на отм. 3.300 Монолитные участки Ум1…Ум5 Схема расположения венткамеры на отм. 3.300 Конструкции металлические Общие данные. Ведомость металлоконструкций по видам профилей Общие данные. Техническая спецификация металла Схемы расположения подвесных путей и монорельса Схема расположения площадок и лестниц Схема расположения площадок и лестниц. Узлы Труба вытяжная Организация строительства График производства работ Отопление и вентиляция Общие данные План на отм. - 1.500 План на отм. - 3.300 Схемы вентиляции П1, П2, П3, В4, В5, В21 - В23 Схемы вентиляции В1 - В3. Схема системы отопления. Узел управления Установка П1, П2, П3. Схема теплоснабжения систем П1, П2, П3 Установка В3 - В5 Принципиальная схема вентиляции Внутренний водопровод и канализация Общие данные. План Схемы В1, К1, К2, К3. План кровли |
| Разработан: | Росинжстройимпекс |
| Утверждён: | 07.12.1989 Госкомархитектура (225) |
| Издан: | ЦИТП Госстроя СССР (CITP, Gosstroy (USSR) 1991 г. ) |
| Заменяет собой: |



















































