Скачать Типовой проект 901-7-17.90 Альбом 5. Силовое электрооборудование. Автоматизация и КИП. Электроосвещение. Связь и сигнализацияДата актуализации: 01.01.2021
|
| Обозначение: | Типовой проект 901-7-17.90 |
| Обозначение англ: | 901-7-17.90 |
| Статус: | не действует |
| Название рус.: | Альбом 5. Силовое электрооборудование. Автоматизация и КИП. Электроосвещение. Связь и сигнализация |
| Дата добавления в базу: | 01.10.2014 |
| Дата актуализации: | 01.01.2021 |
| Дата введения: | 30.10.1990 |
| Дата окончания срока действия: | 01.04.2003 |
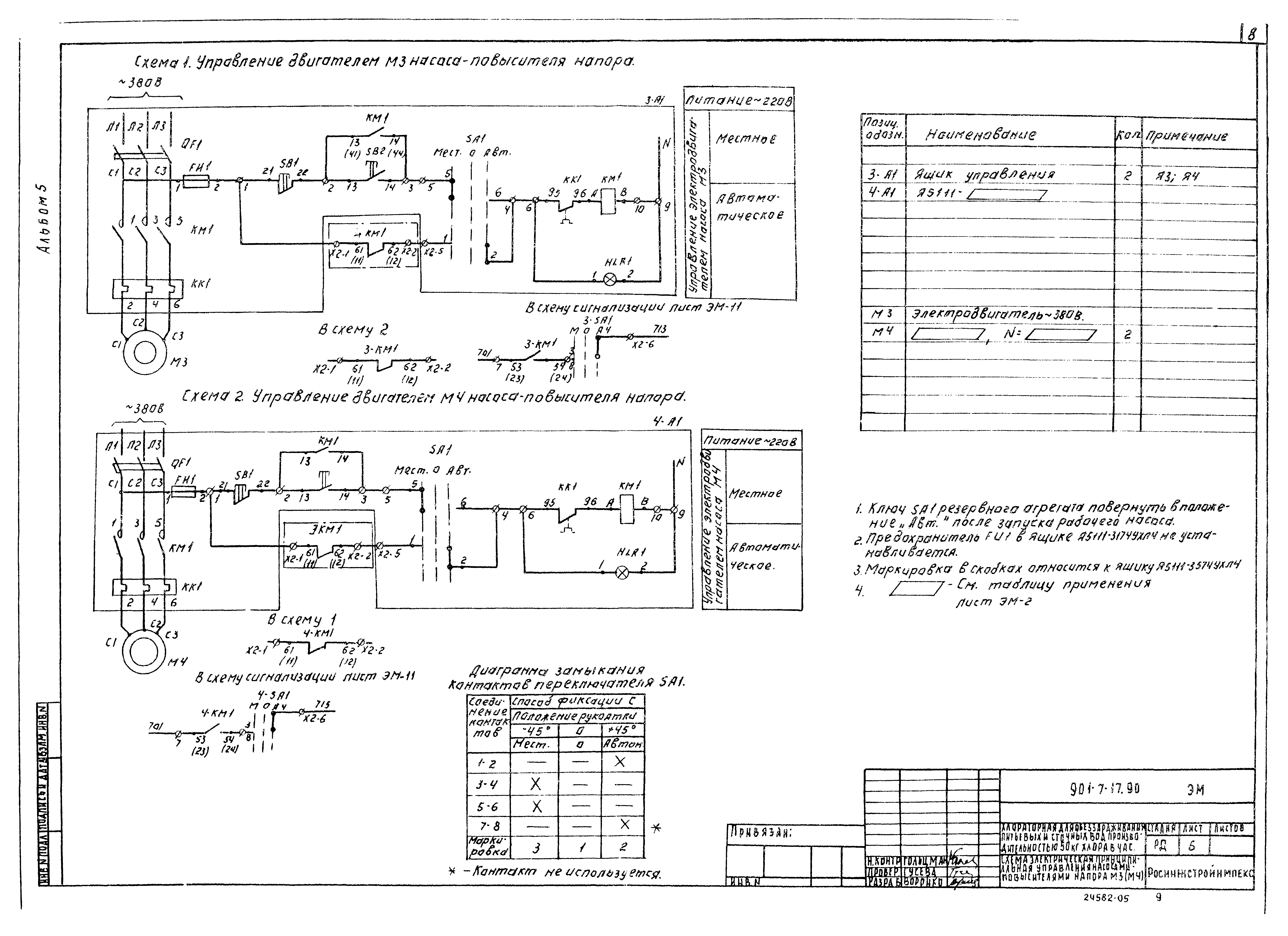
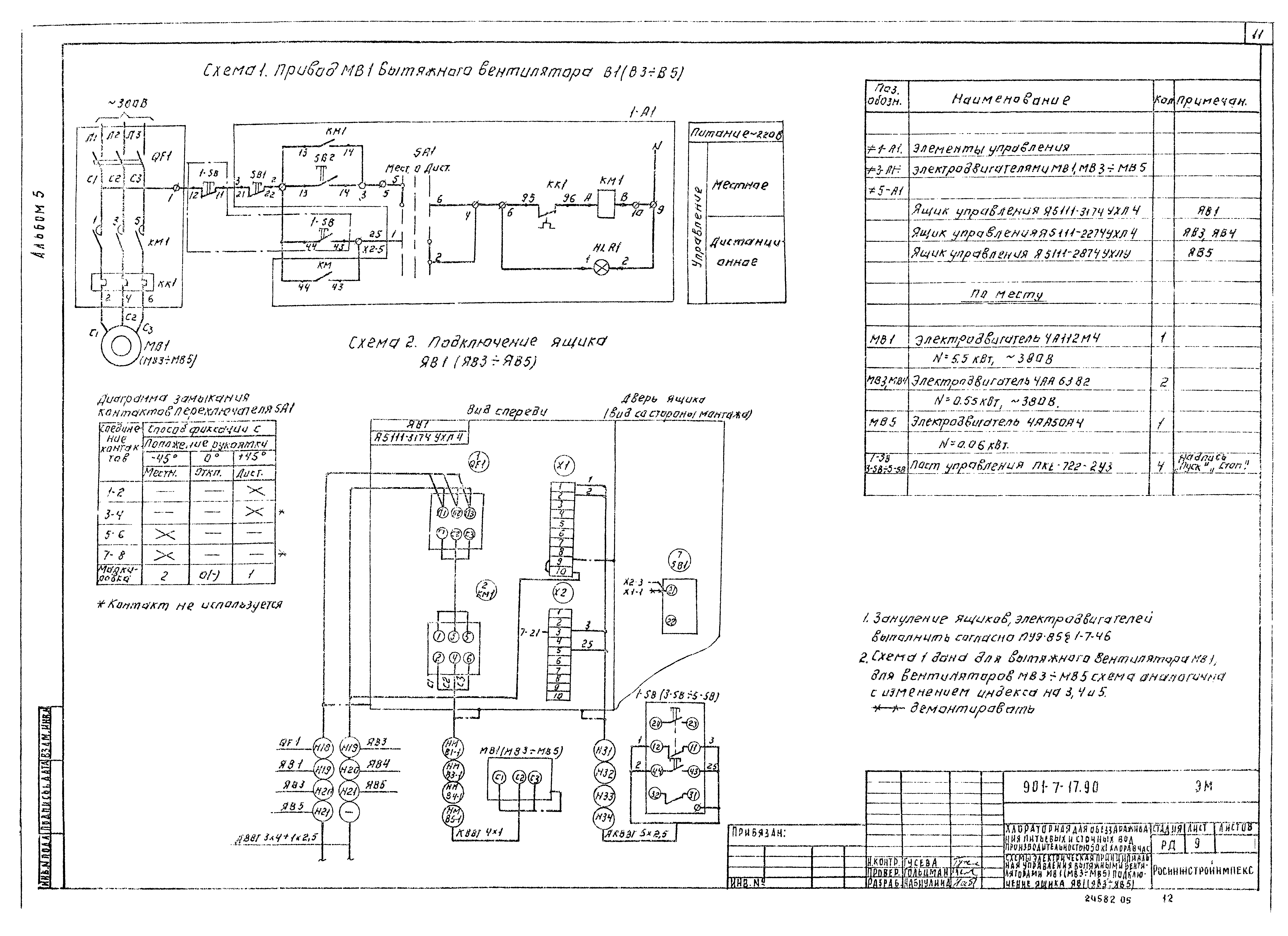
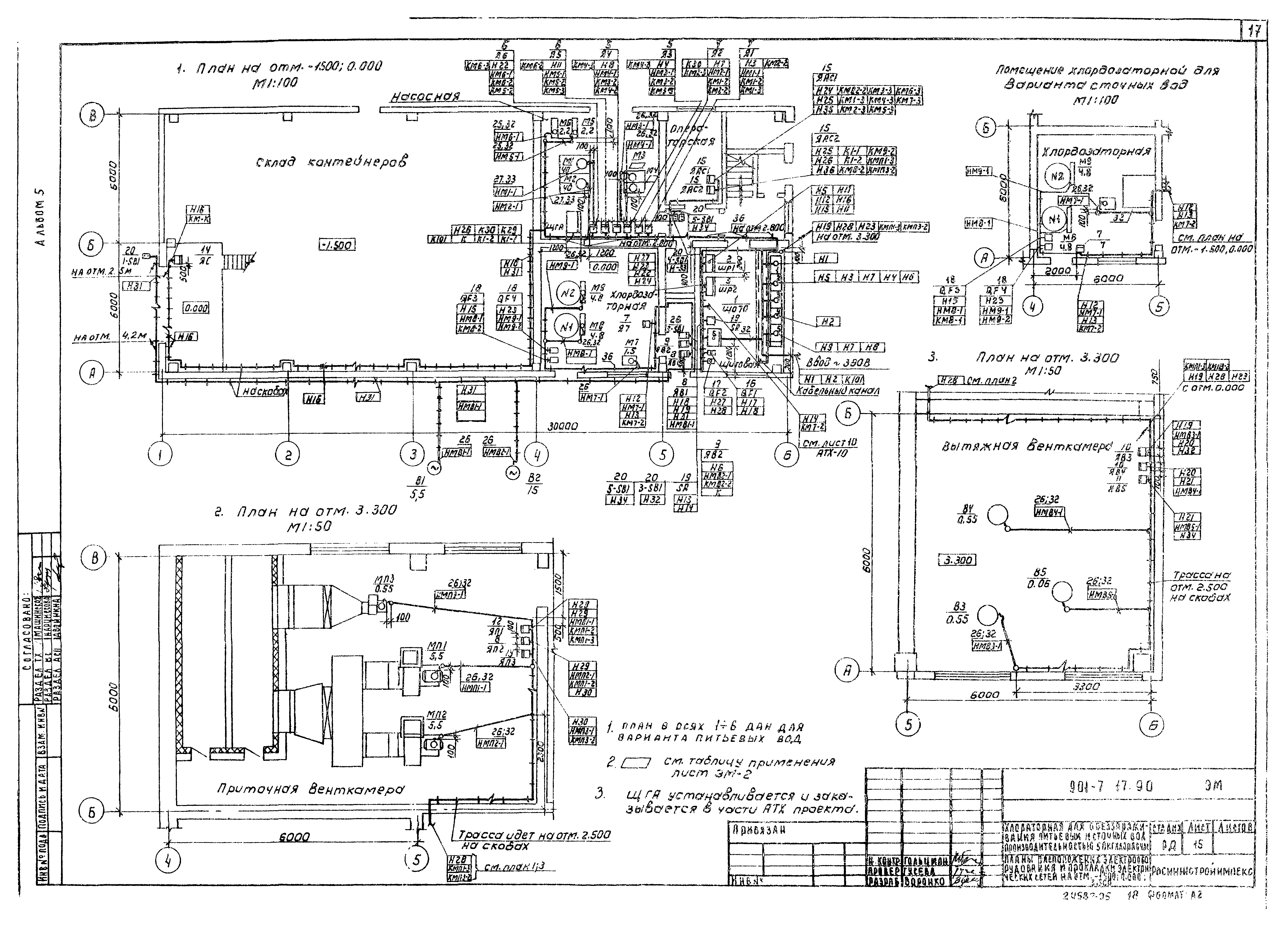
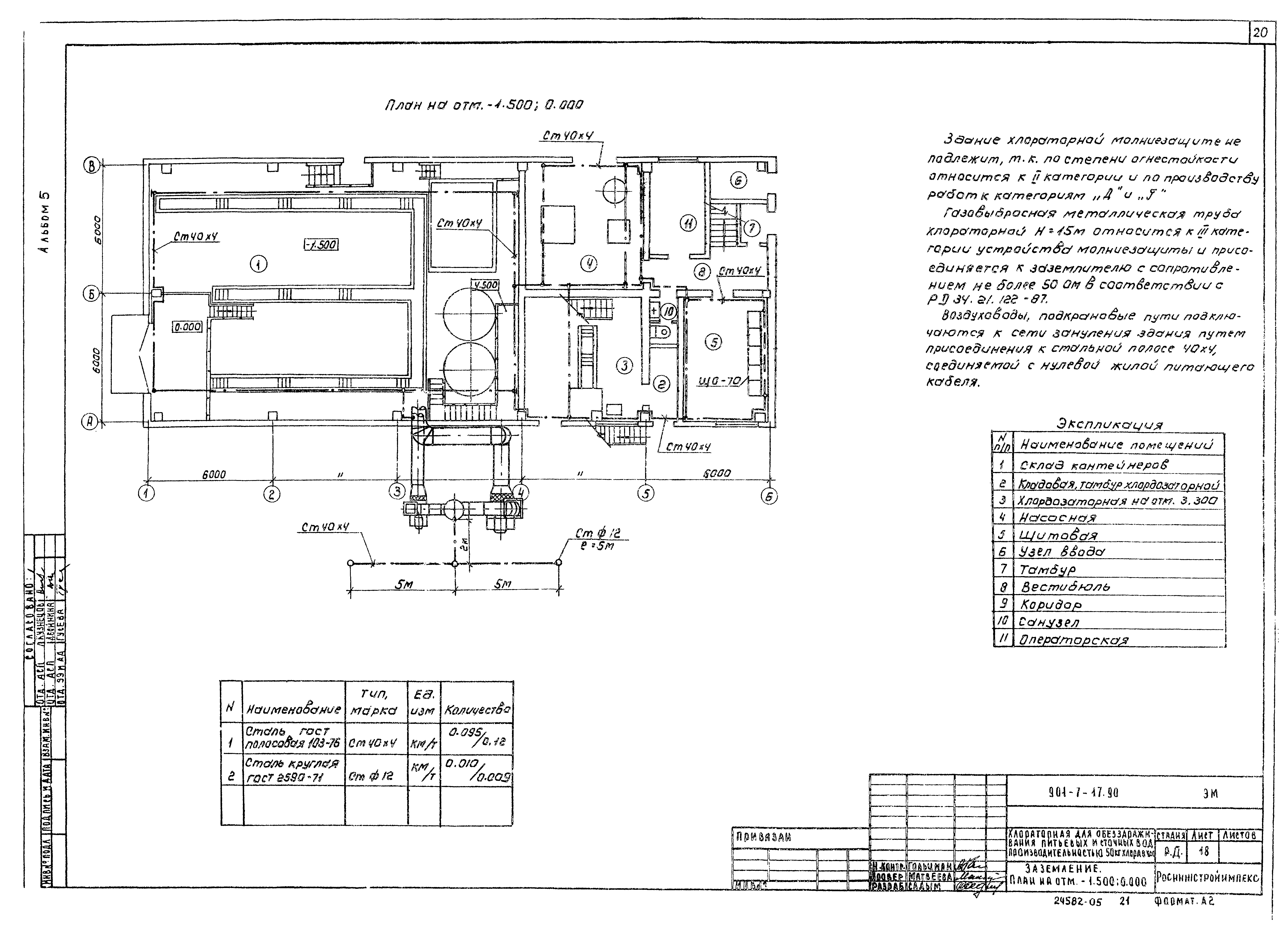
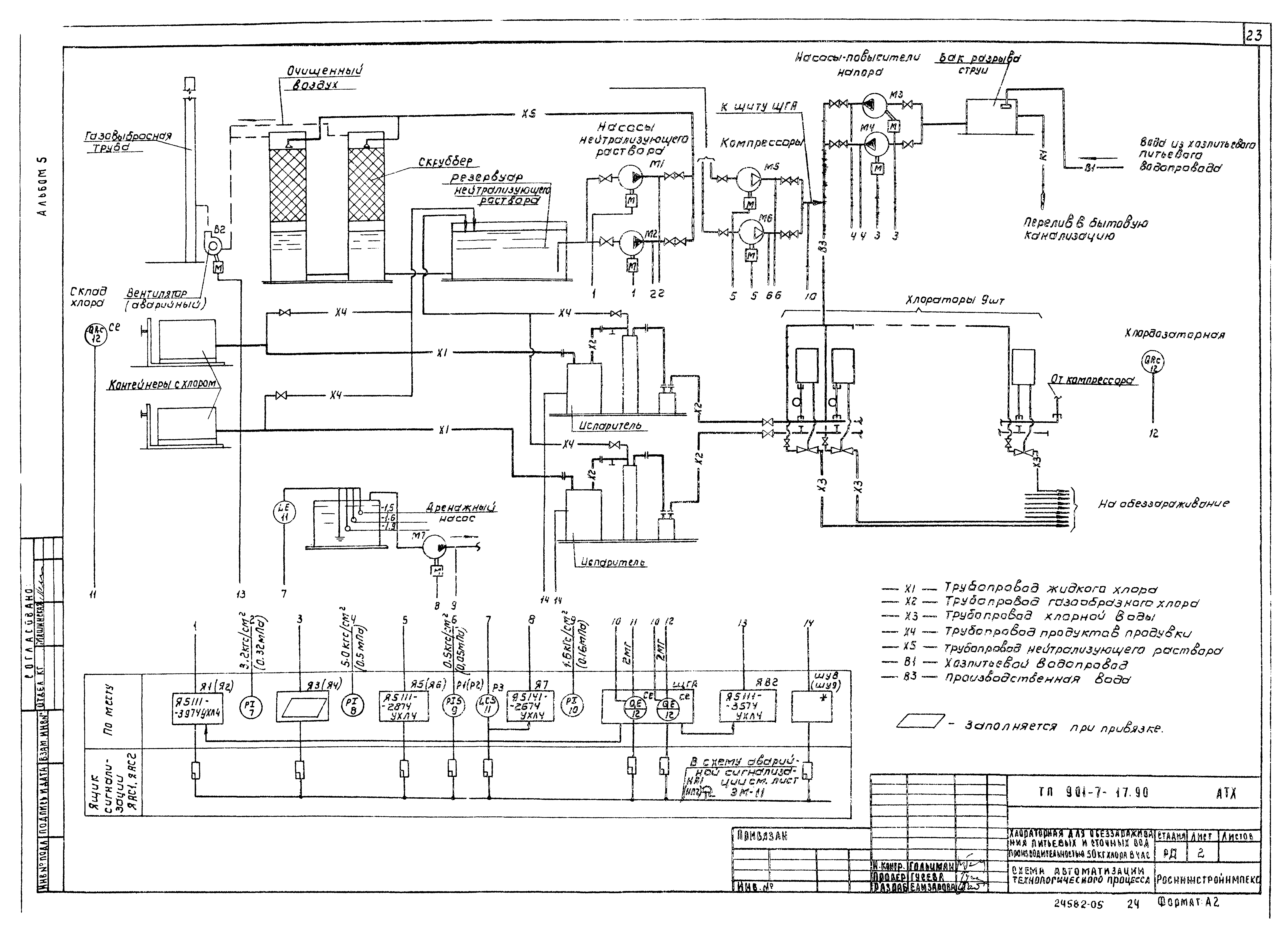
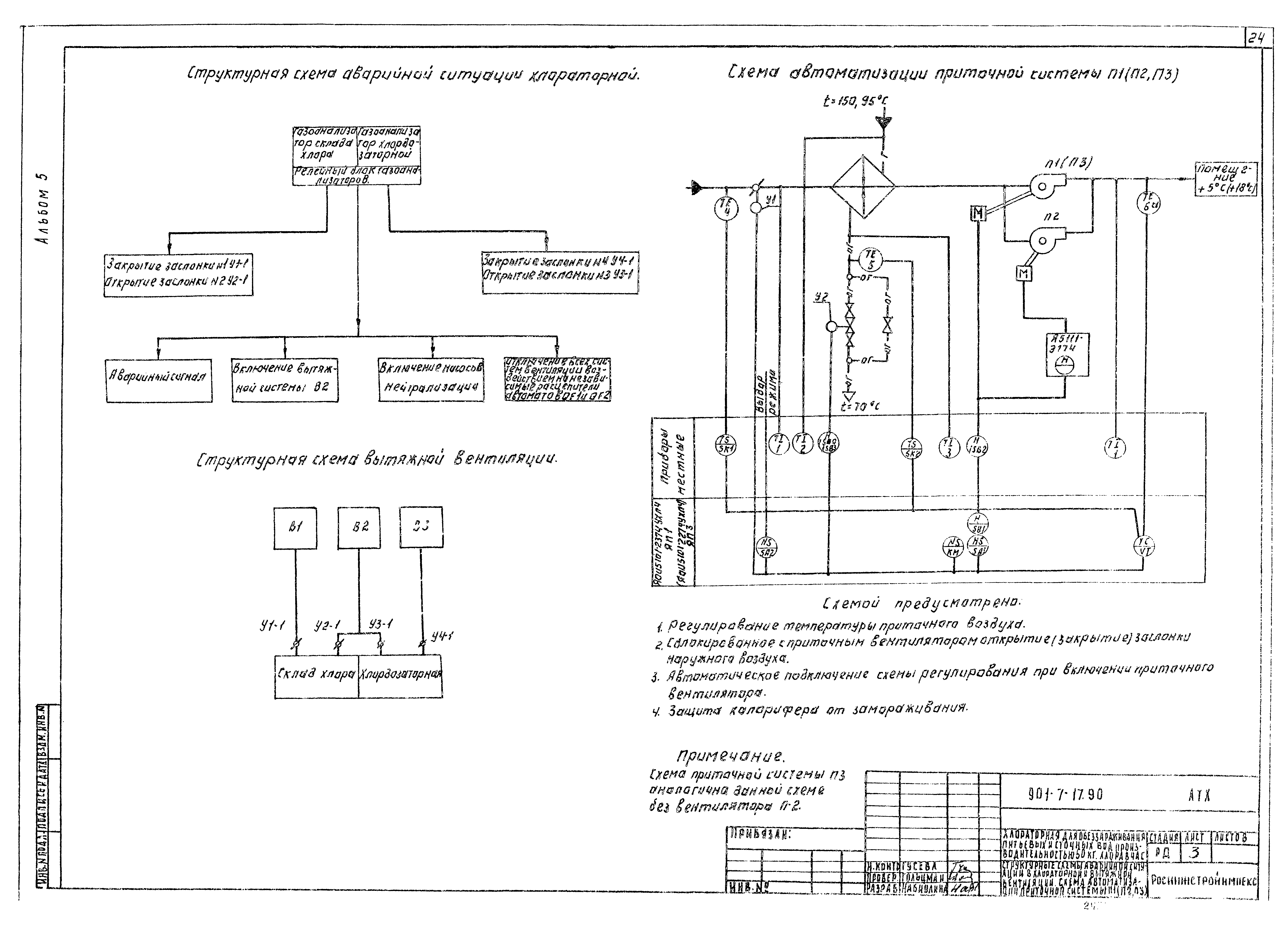
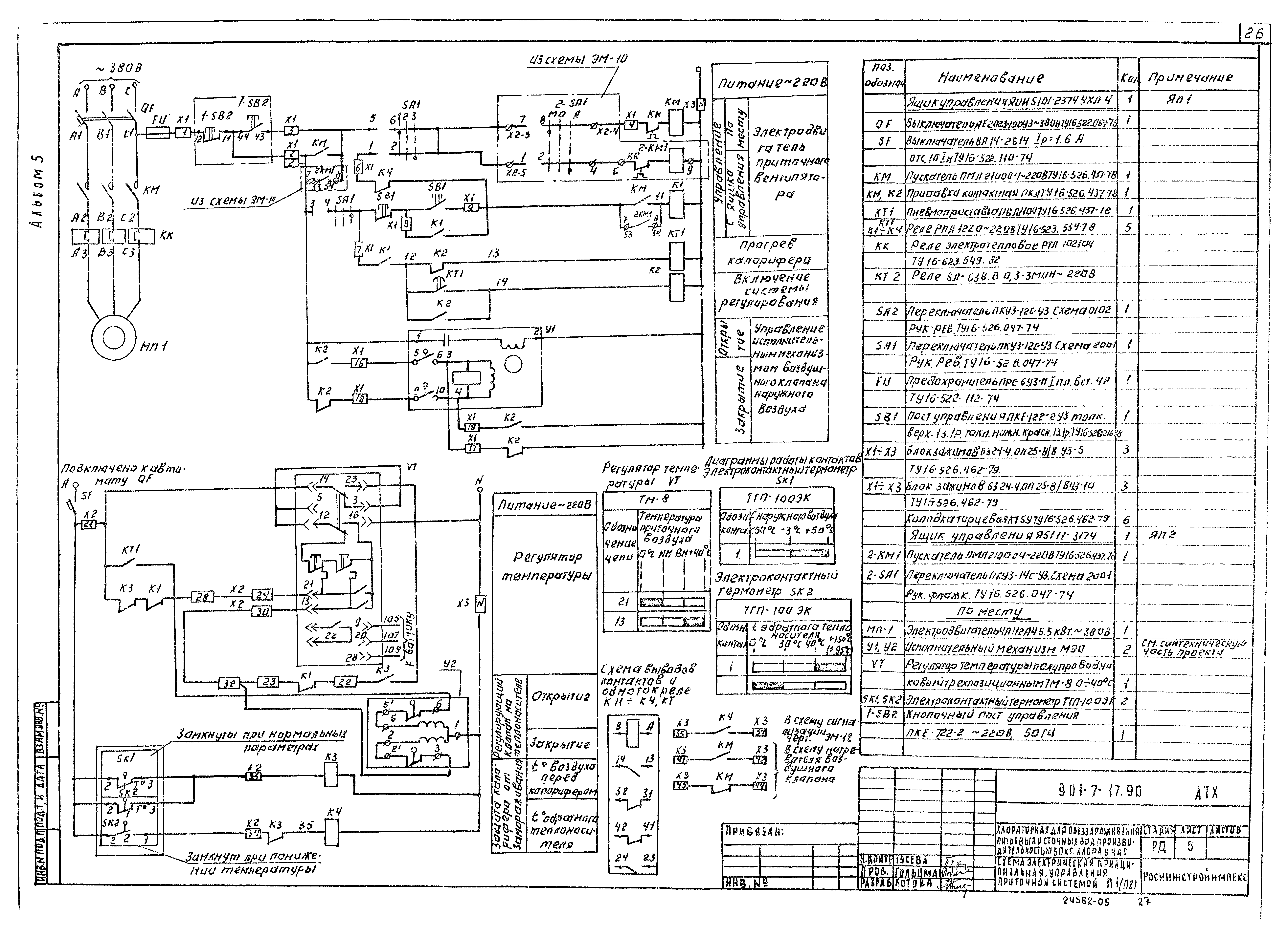
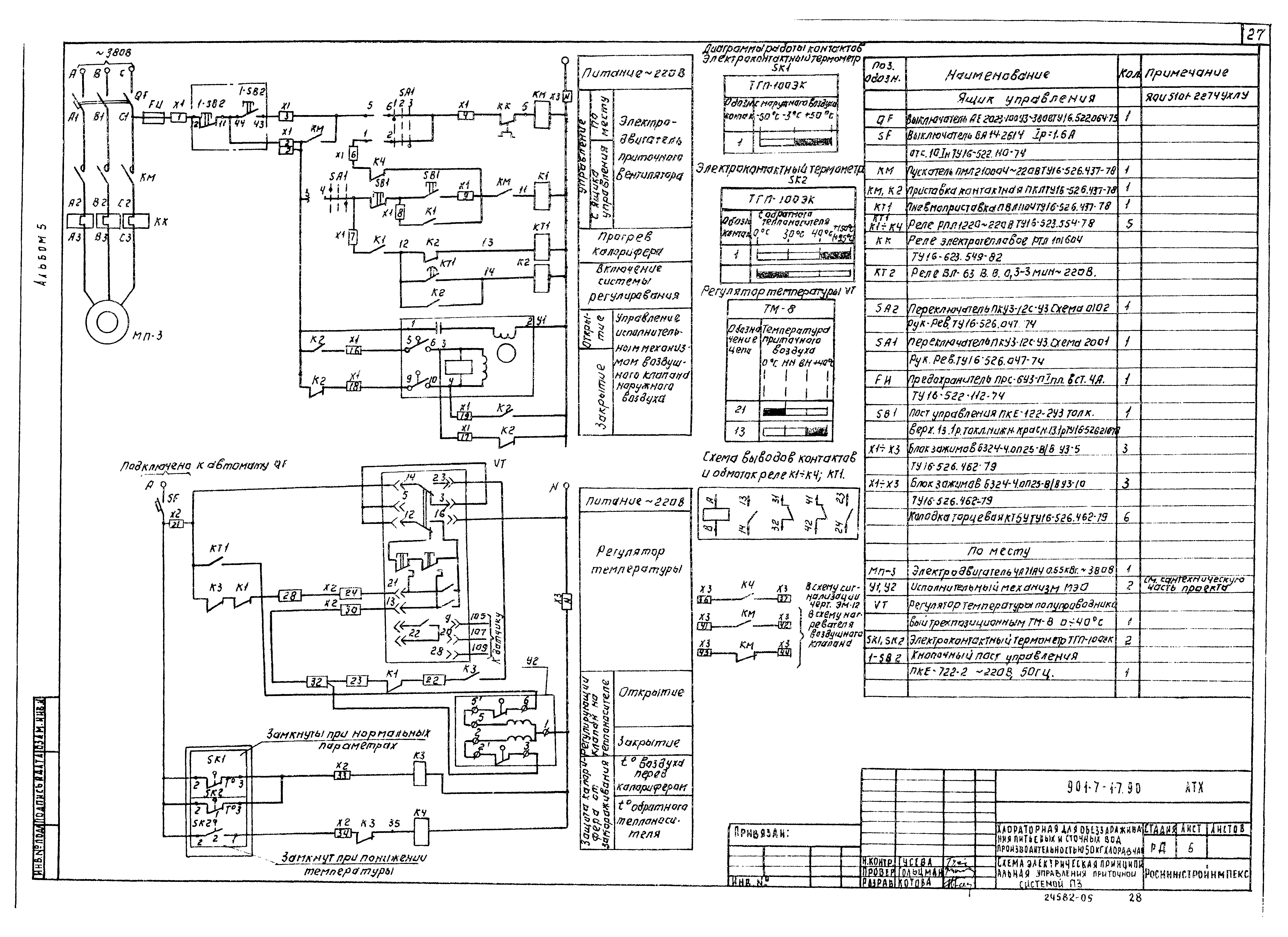
| Оглавление: | Содержание Силовое электрооборудование Общие данные Схема электрическая принципиальная питающей сети 0,4 кВ Схема электрическая принципиальная распределительной сети 380/220 В Кабельнотрубный журнал Схема электрическая принципиальная управления насосами подачи нейтрализующего раствора М1 (М2) Схема электрическая принципиальная управления насосами-повысителями напора М3 (М4) Схема электрическая принципиальная управления компрессорами М5 (М6) Схемы электрические принципиальные управления дренажным насосом М7, подключения ящика Я7 Схемы электрические принципиальные управления вытяжными вентиляторами МВ1 (МВ3 - МВ5), подключения ящика ЯВ1 (ЯВ3 - ЯВ5) Схемы электрические принципиальные управления приточной системой П2 и аварийным вентилятором МВ2 Схема электрическая принципиальная аварийной сигнализации, подключения ящика ЯАС1 Схемы электрические принципиальные аварийно-предупредительной сигнализации, подключения ящика ЯАС2 Схема подключения электрооборудования. Ящики Я1(Я2), Я3(Я4), Я5(Я6) Схема подключения электрооборудования. Ящики ЯП1, ЯП2, ЯП3, ЯВ2 Планы расположения электрооборудования и прокладки электрических сетей на отм. - 1.500; 0.000 и 3.300 Планы расположения электрооборудования и прокладки электрических сетей. Спецификация Прокладка гибкого токопровода для крана К. План на отм. - 1.500; 0.000 Заземление. План на отм. - 1.500; 0.000 Опросный лист для заказа щита из панелей ЩО70 Автоматизация Общие данные Схема автоматизации технологического процесса Структурные схемы аварийной ситуации в хлораторной и вытяжной вентиляции. Схема автоматизации приточной системы П1(П2), П3 Схемы электрические питания приборов и цепей управления, электрических соединений и общих цепей газоанализаторов Схема электрическая принципиальная управления приточной системой П1 Схема электрическая принципиальная управления приточной системой П3 Схемы электрические принципиальные управления заслонкой У2-1(У3-1); У1-1(У4-1) Схема соединений внешних проводок. Схема подключения щита ЩГА Размещение приборов и прокладка кабеля. План на отм. - 1.500; 0.000 и 3.300 Опросный лист для заказа газоанализатора "Сирена М" Электрическое освещение Общие данные Электрическое освещение. План на отм. - 1.500; 0.000. Фрагмент плана на отм. 4.500 Электрическое освещение. План на отм. 3.300. План питающих сетей Связь и сигнализация Общие данные. План на отм. 0.000 с сетями связи |
| Разработан: | Росинжстройимпекс |
| Утверждён: | 07.12.1989 Госкомархитектура (225) |
| Издан: | ЦИТП Госстроя СССР (CITP, Gosstroy (USSR) 1991 г. ) |
| Заменяет собой: |



































