Скачать Типовой проект 901-7-17.90 Альбом 7. Нестандартизированное оборудованиеДата актуализации: 01.01.2021
|
| Обозначение: | Типовой проект 901-7-17.90 |
| Обозначение англ: | 901-7-17.90 |
| Статус: | не действует |
| Название рус.: | Альбом 7. Нестандартизированное оборудование |
| Дата добавления в базу: | 01.10.2014 |
| Дата актуализации: | 01.01.2021 |
| Дата введения: | 30.10.1990 |
| Дата окончания срока действия: | 01.04.2003 |
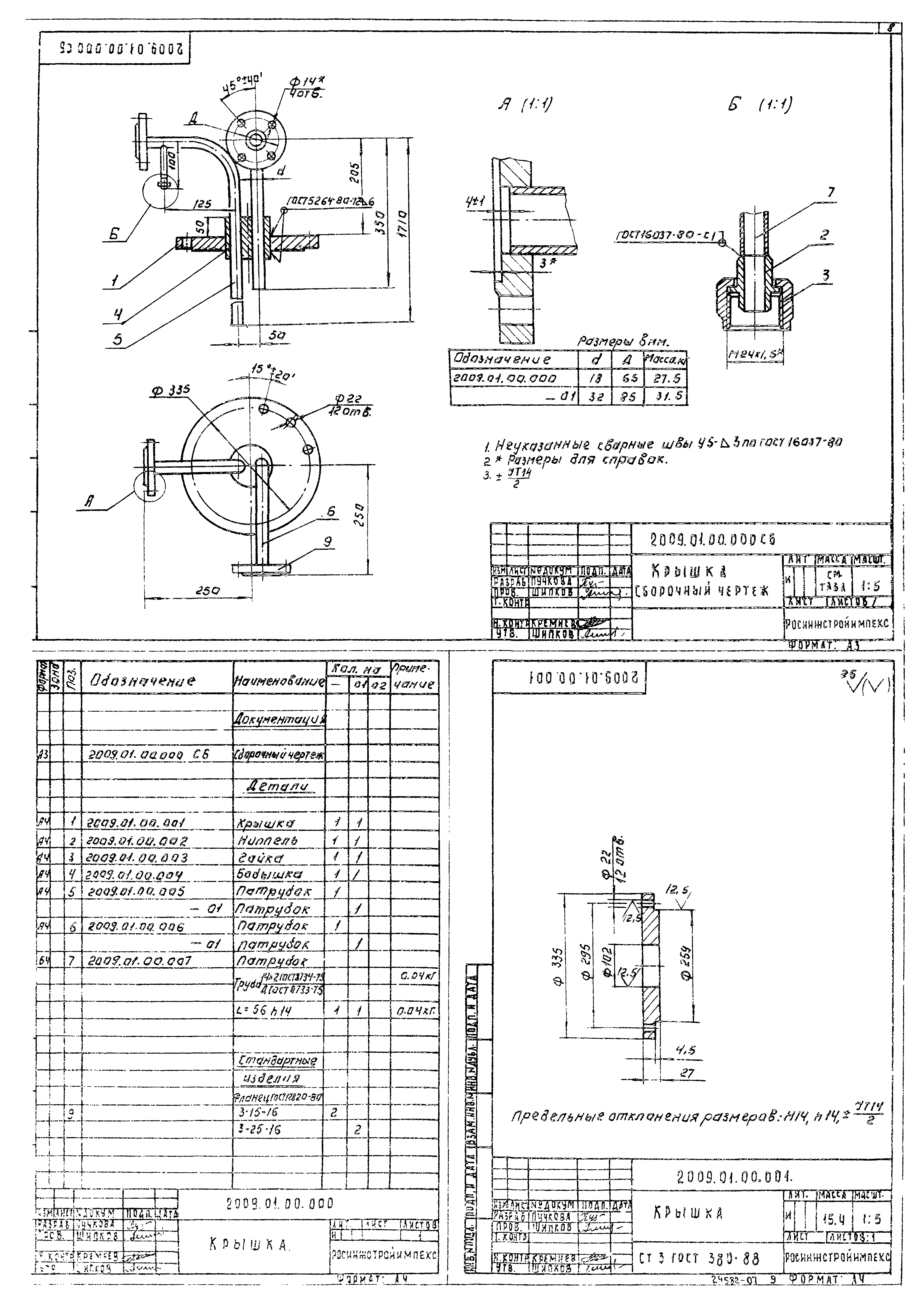
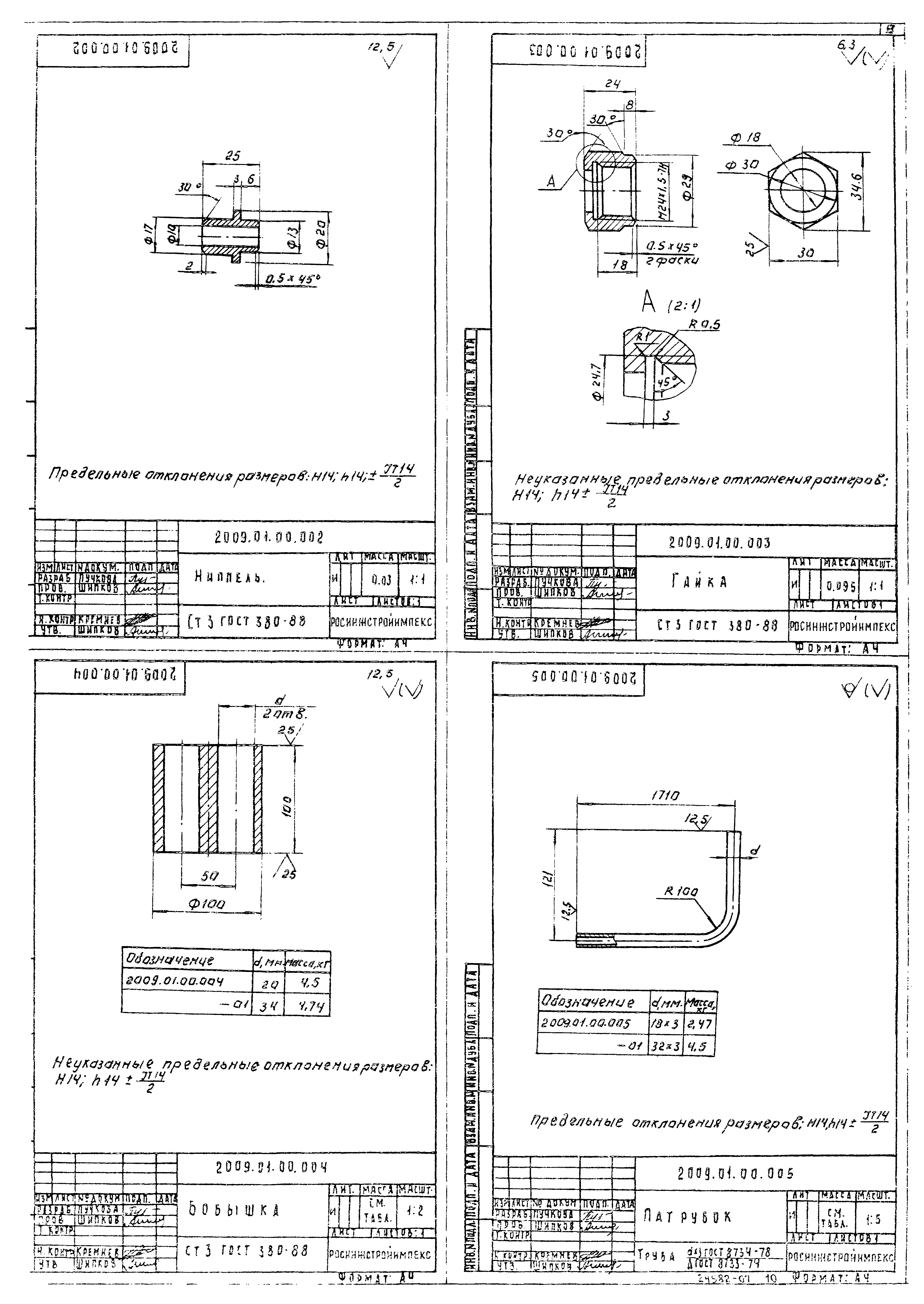
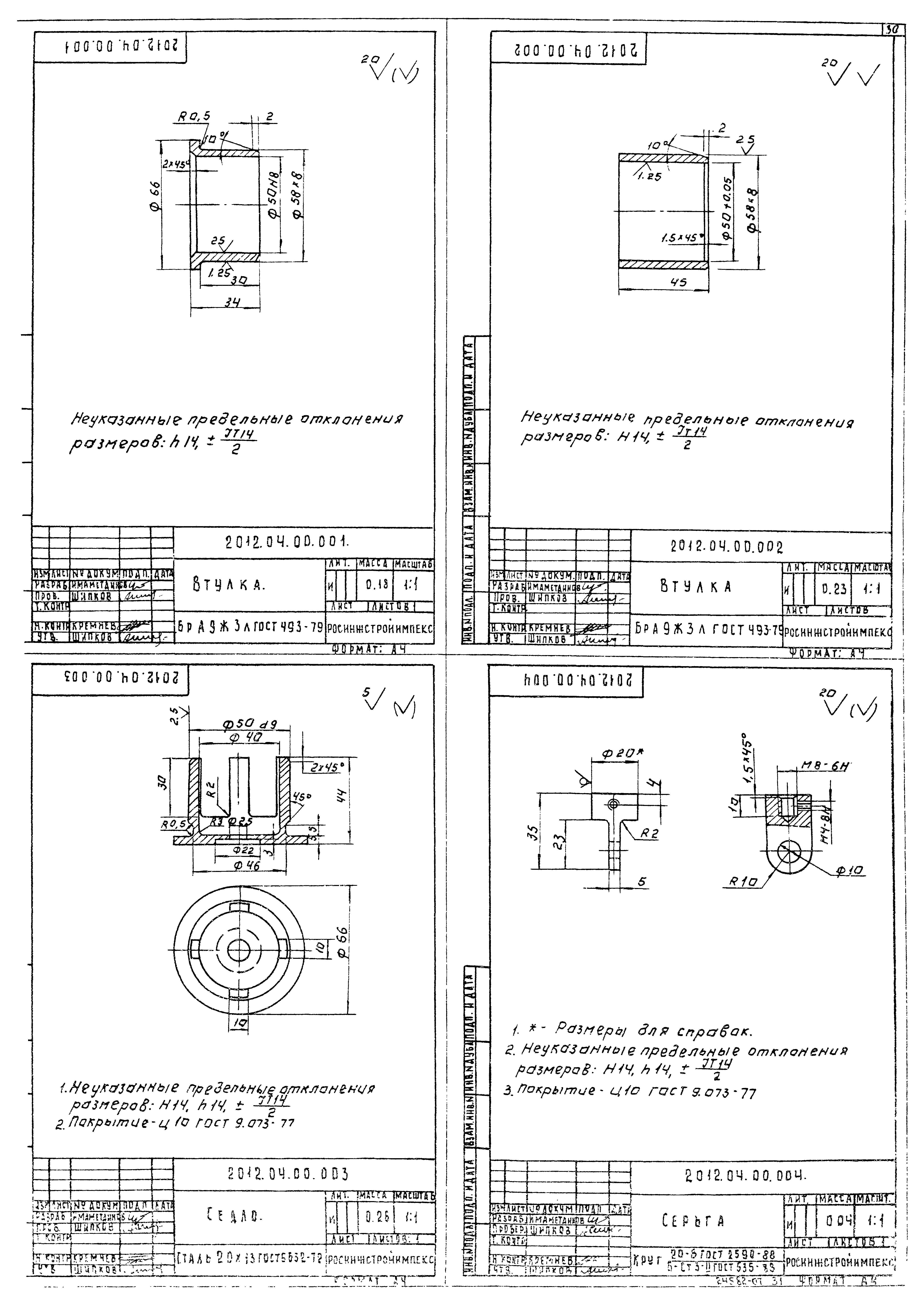
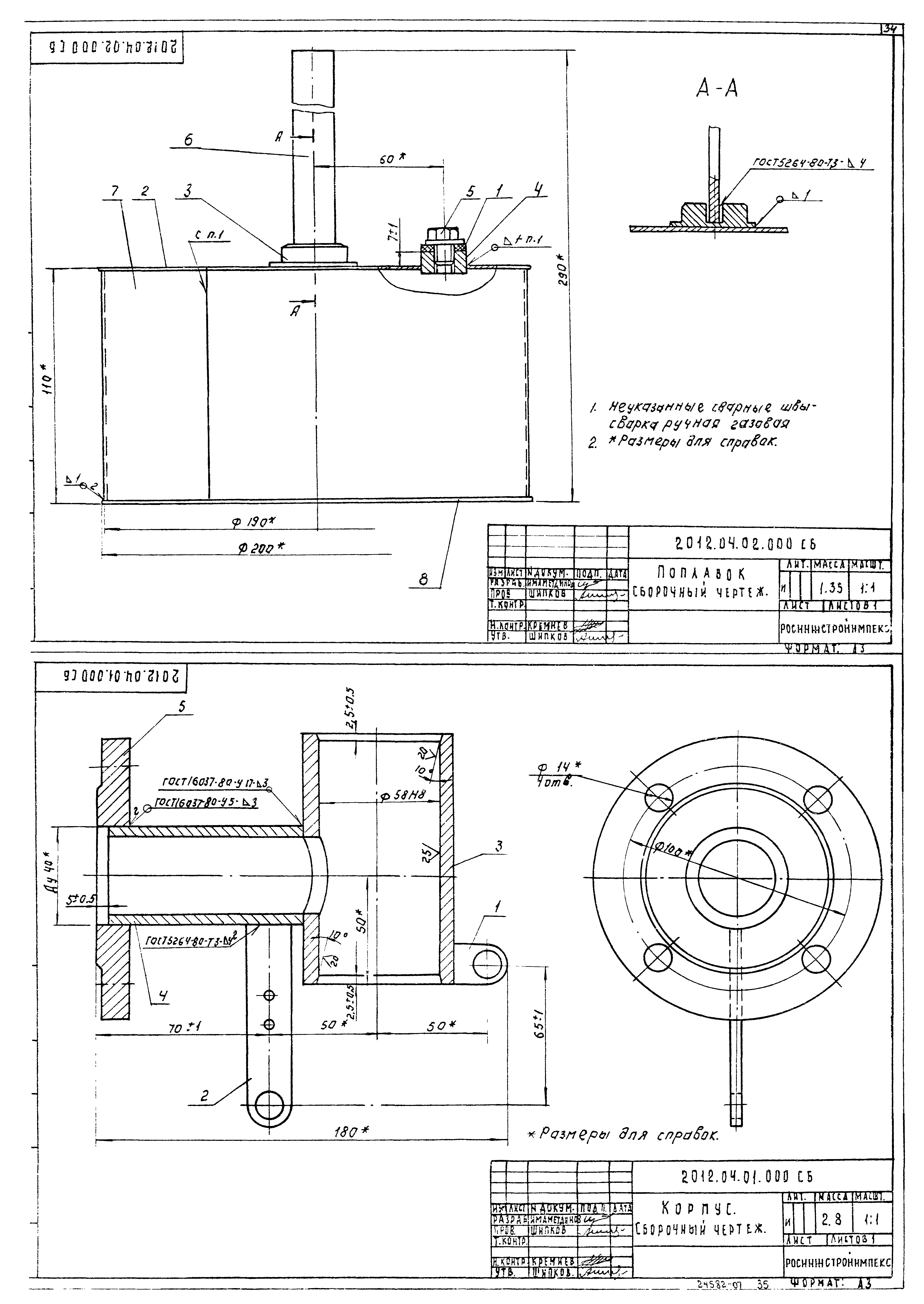
| Оглавление: | Содержание 2009.00.00.000 Расчеты 2010.00.00.000 Расчеты 2011.00.00.000 Расчеты 2009.00.00.000СБ Грязевик. Сборочный чертеж 2009.00.00.000 Грязевик. Спецификация 2009.00.00.001 Штуцер 2009.00.00.002 Прокладка 2009.01.00.000СБ Крышка. Сборочный чертеж 2009.01.00.000 Крышка. Спецификация 2009.01.00.001 Крышка 2009.01.00.002 Ниппель 2009.01.00.003 Гайка 2009.01.00.004 Бобышка 2009.01.00.005 Патрубок 2009.02.00.000СБ Корпус. Сборочный чертеж 2009.02.00.000 Корпус. Спецификация 2009.03.00.000 Подставка. Спецификация 2009.03.00.000СБ Подставка. Сборочный чертеж 2009.03.00.002 Опора 2009.01.00.006 Патрубок 2010.00.00.000СБ Фильтр. Сборочный чертеж 2010.00.00.000 Фильтр. Спецификация 2010.00.00.001 Крышка 2010.00.00.002 Прокладка 2010.01.00.000СБ Корпус. Сборочный чертеж 2010.01.00.000 Корпус. Спецификация 2010.01.00.001 Обечайка 2010.01.00.002 Кольцо 2010.02.00.000СБ Стакан. Сборочный чертеж 2010.02.00.001 Кольцо 2010.02.00.000 Стакан 2010.02.00.002 Стержень 2010.03.00.000СБ Ручка. Сборочный чертеж 2010.03.00.000 Ручка. Спецификация 2010.03.00.001 Рукоятка 2010.03.00.002 Бобышка 2010.04.00.000СБ Крышка. Сборочный чертеж 2010.04.00.000 Крышка. Спецификация 2010.04.00.001 Заглушка 2011.00.00.000СБ Траверса для подъема контейнера. Сборочный чертеж 2011.00.00.000 Траверса для подъема контейнера. Спецификация 2011.00.00.001 Подвеска 2011.00.00.002 Крюк 2011.00.00.003 Палец 2011.00.00.004 Кольцо нижнее 2011.01.00.000 Коромысло. Спецификация 2011.01.00.000СБ Коромысло. Сборочный чертеж 2012.00.00.000СБ Бак разрыва струи. Сборочный чертеж 2012.00.00.000 Бак разрыва струи. Спецификация 2012.01.00.000СБ Крышка. Сборочный чертеж 2012.01.00.001 Ручка 2012.02.00.000СБ Бак. Сборочный чертеж 2012.02.00.000 Бак. Спецификация 2012.02.00.001 Корпус 2012.02.00.002 Окантовка 2012.03.00.000 Подставка. Спецификация 2012.03.00.000СБ Подставка. Сборочный чертеж 2012.03.00.001 Связь 2012.03.00.002 Опора 2012.04.00.000СБ Клапан поплавковый Ду40 Ру6. Сборочный чертеж 2012.04.01.001 Ушко 2012.04.01.002 Ушко 2012.04.00.000 Клапан поплавковый Ду40 Ру6. Спецификация 2012.04.01.000 Корпус. Спецификация 2012.04.02.000 Поплавок. Спецификация 2012.04.00.001 Втулка 2012.04.00.002 Втулка 2012.04.00.003 Седло 2012.04.00.004 Серьга 2012.04.00.005 Шток 2012.04.00.006 Тяга 2012.04.00.007 Тяга 2012.04.00.008 Тяга 2012.04.00.009 Бобышка 2012.04.00.010 Шайба 2012.04.00.011 Шайба 2012.04.00.012 Прокладка 2012.04.00.013 Отражатель 2012.04.01.003 Стакан 2012.04.01.004 Патрубок 2012.04.02.000СБ Поплавок. Сборочный чертеж 2012.04.01.000СБ Корпус. Сборочный чертеж 2012.04.02.001 Крышка 2012.04.02.002 Бобышка 2012.04.02.003 Муфта 2012.04.02.004 Пробка 2013.00.00.000 Компенсатор. Спецификация 2018.00.00.001 Петля 2013.00.00.000СБ Компенсатор. Сборочный чертеж 2013.00.00.004 Ниппель 2013.00.00.002 Прокладка 2013.00.00.001 Петля 2013.00.00.003 Гайка 2014.00.00.001 Кожух 2018.00.00.000 Компенсатор. Спецификация 2018.00.00.000СБ Компенсатор. Сборочный чертеж 2018.00.00.005 Переходник 2018.00.00.003 Гайка 2018.00.00.004 Ниппель 2018.00.00.002 Прокладка |
| Разработан: | Росинжстройимпекс |
| Утверждён: | 07.12.1989 Госкомархитектура (225) |
| Издан: | ЦИТП Госстроя СССР (CITP, Gosstroy (USSR) 1991 г. ) |
| Заменяет собой: |







































