Скачать Типовой проект 707-2-22с.86 Альбом II. Технологическая часть. Системы объемоуказания. Электротехнические устройстваДата актуализации: 01.01.2021
|
| Обозначение: | Типовой проект 707-2-22с.86 |
| Обозначение англ: | 707-2-22с.86 |
| Статус: | действует |
| Название рус.: | Альбом II. Технологическая часть. Системы объемоуказания. Электротехнические устройства |
| Дата добавления в базу: | 01.10.2014 |
| Дата актуализации: | 01.01.2021 |
| Дата введения: | 10.09.1985 |
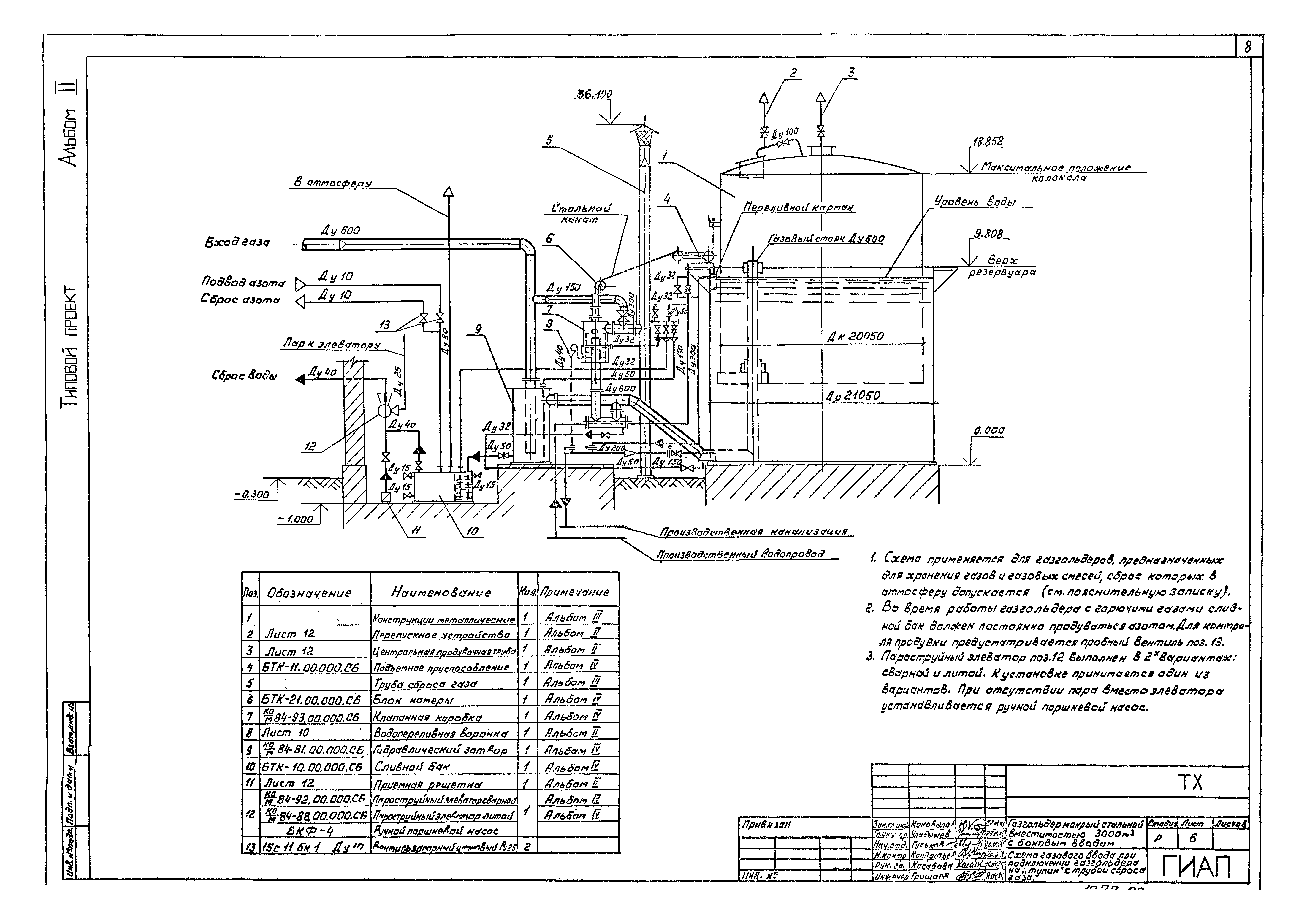
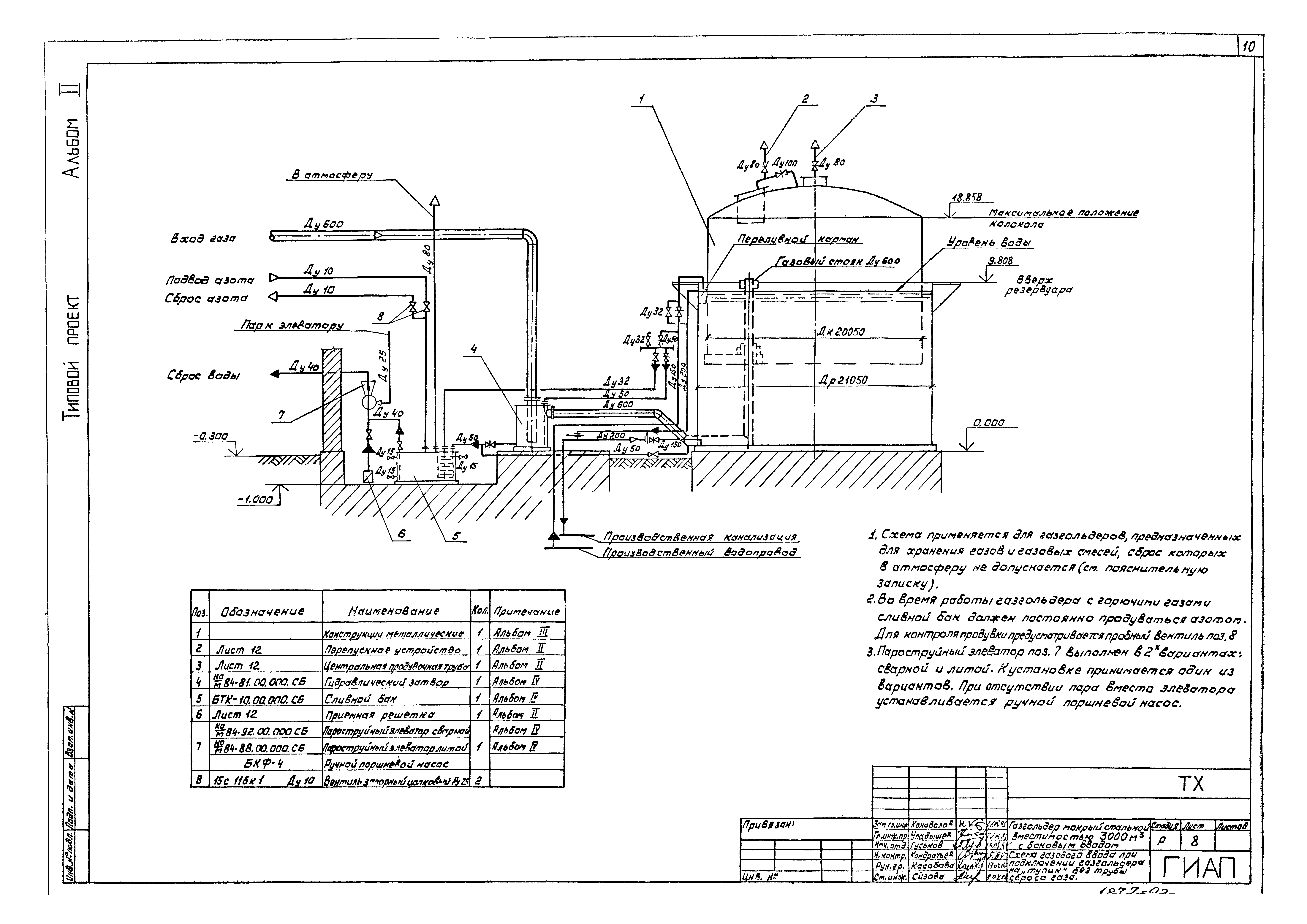
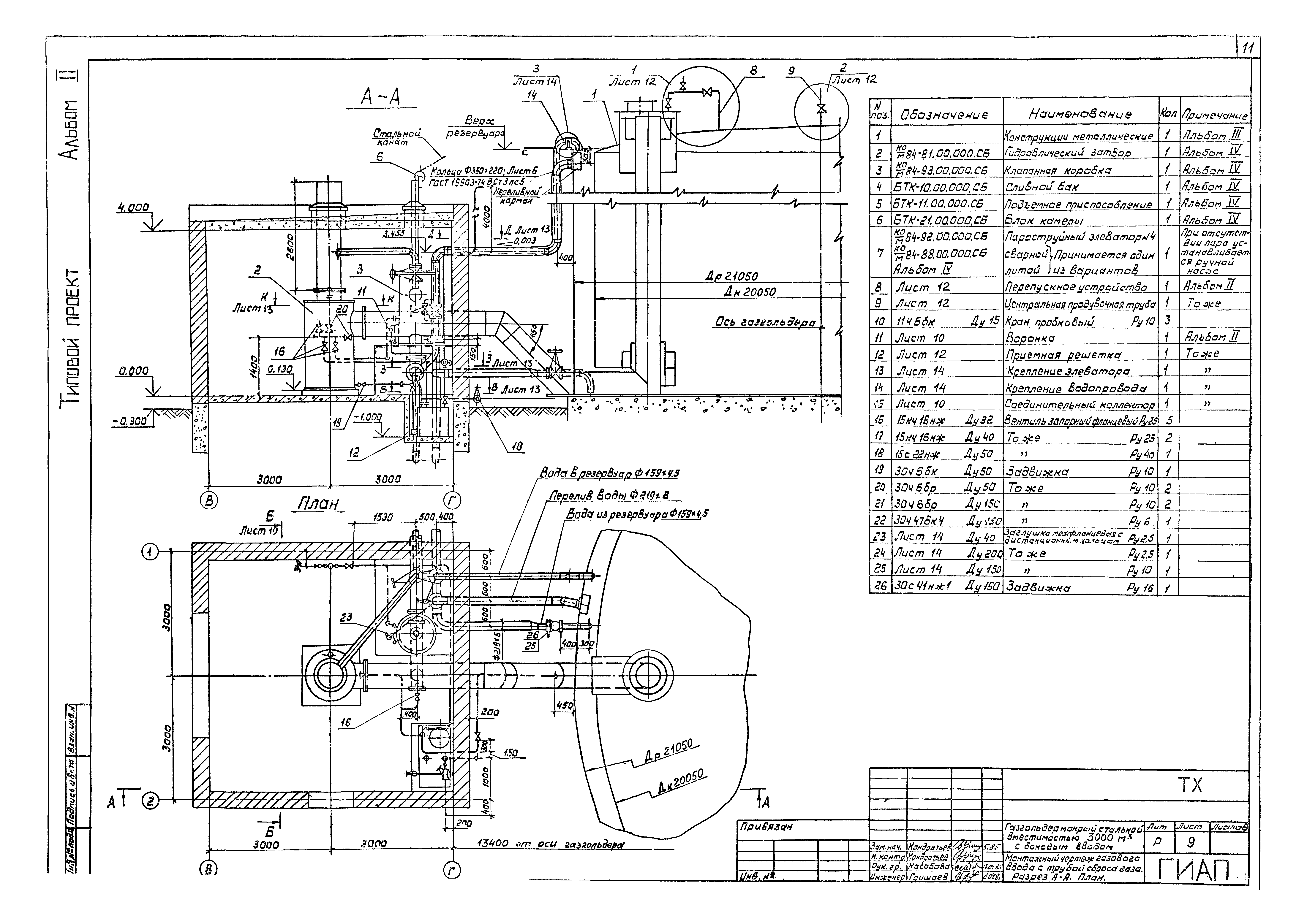
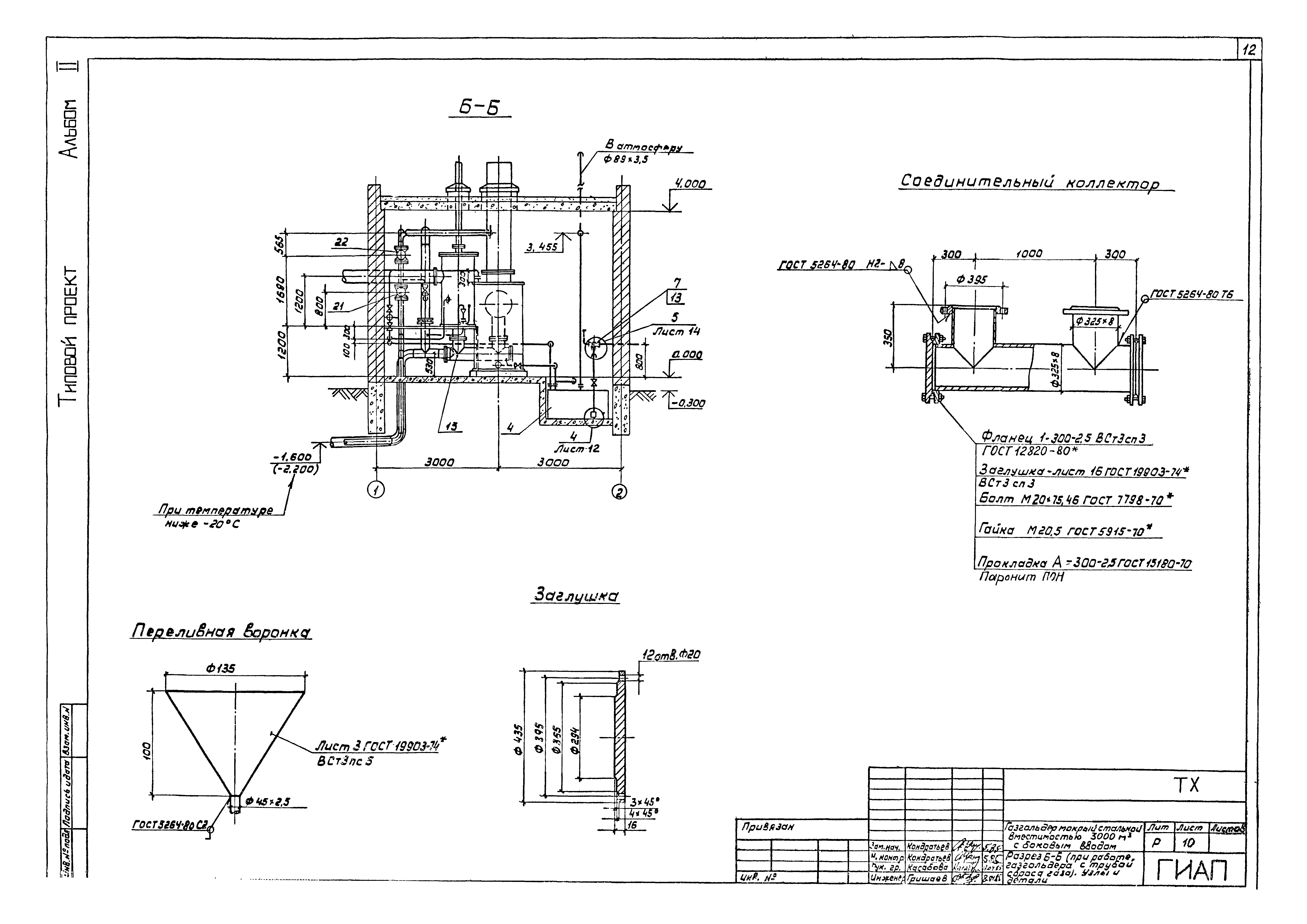
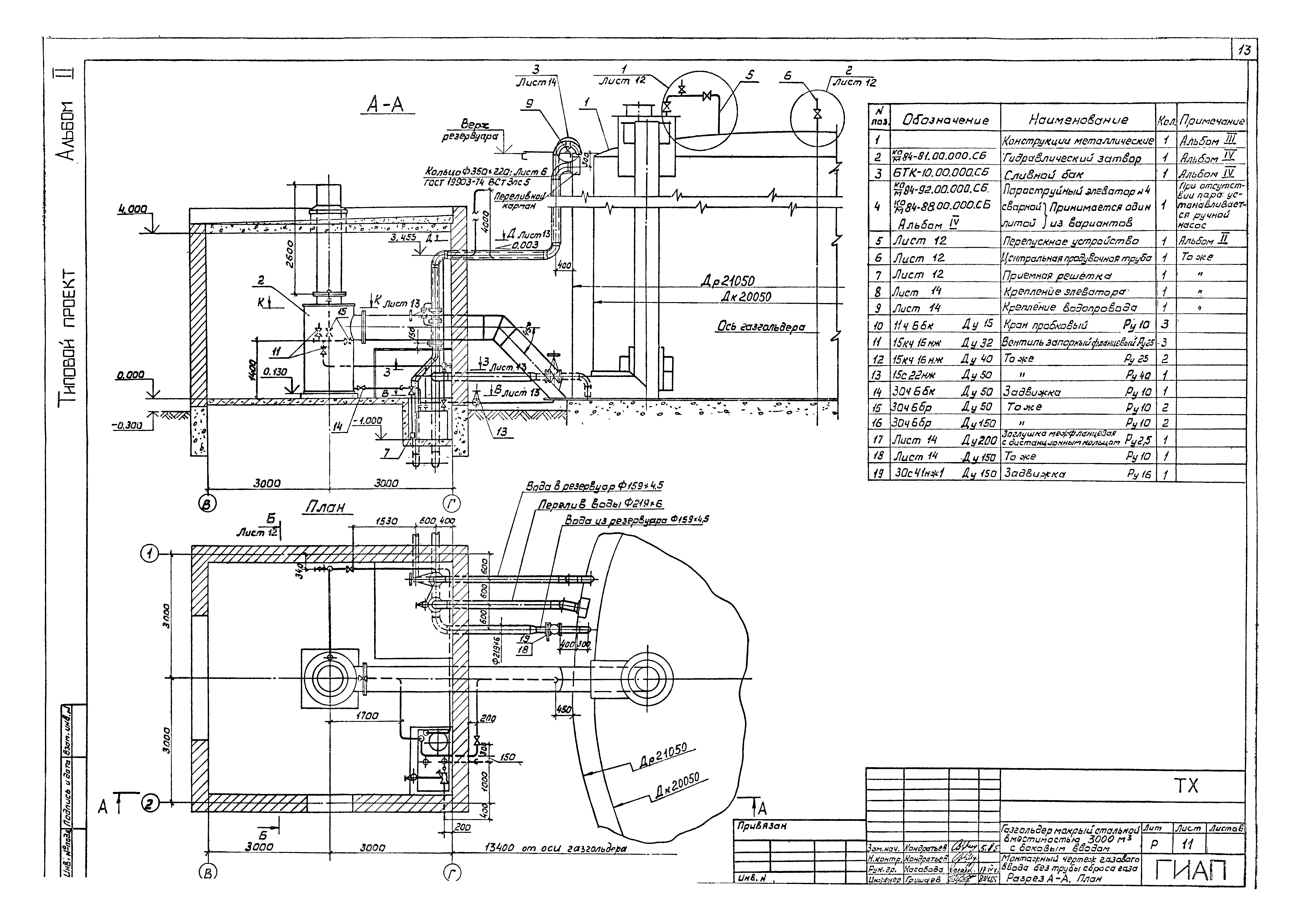
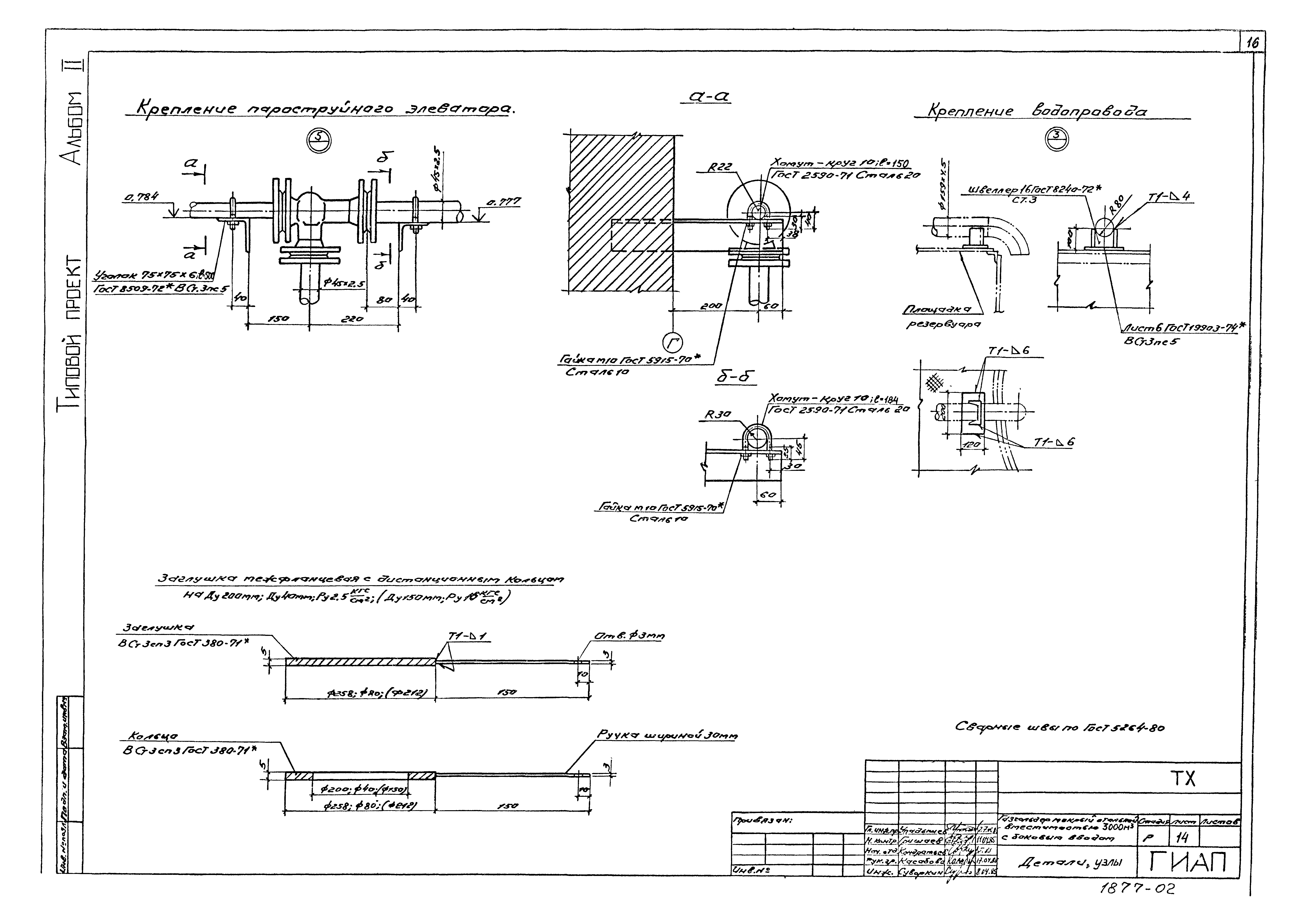
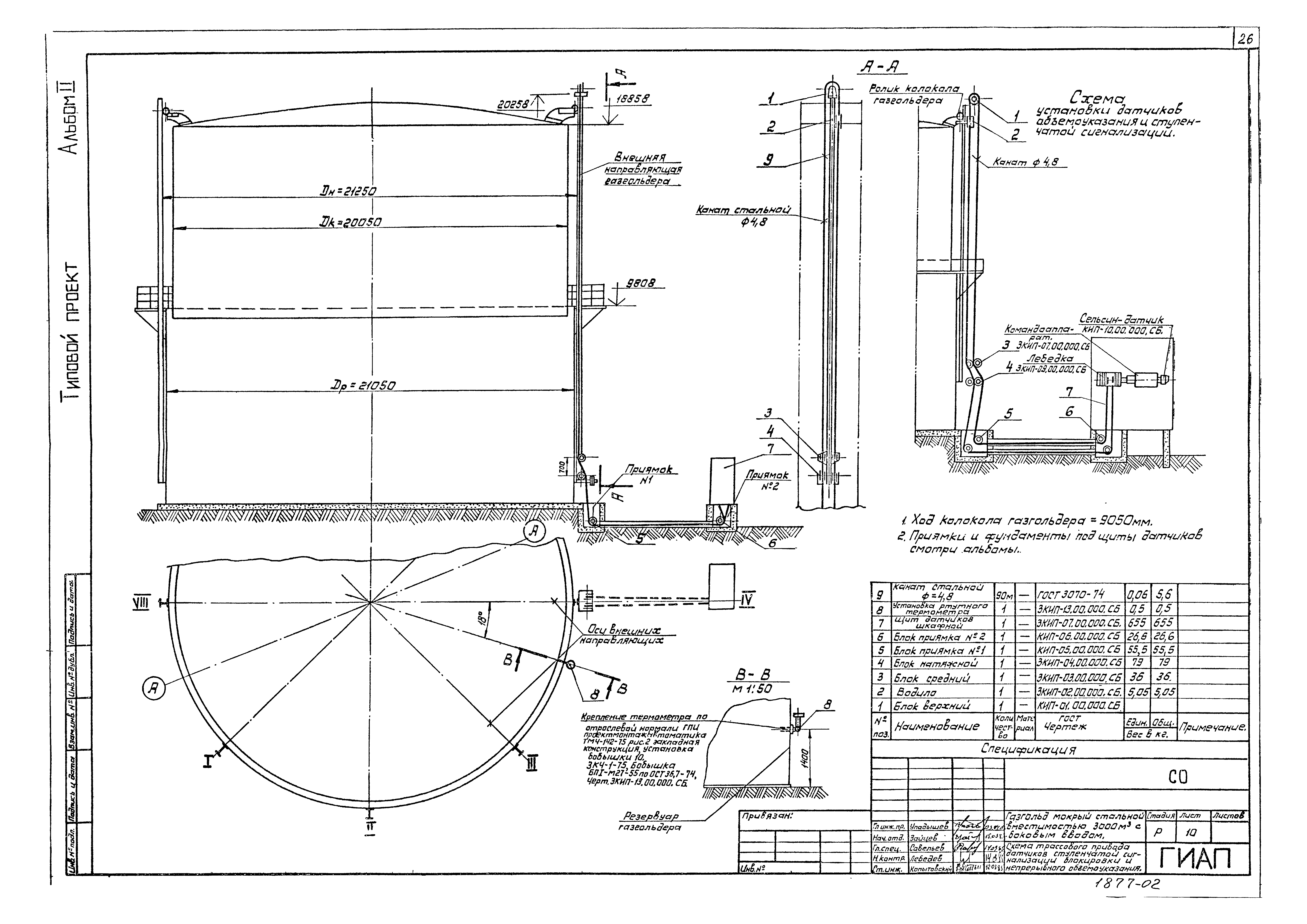
| Оглавление: | Технологическая часть Общие данные Схема газового ввода при подключении газгольдера "проход" с трубой сброса газа Схема газового ввода при подключении газгольдера "тупик" с трубой сброса газа Схема газового ввода при подключении газгольдера "проход" без трубы сброса газа Схема газового ввода при подключении газгольдера "тупик" без трубы сброса газа Монтажный чертеж газового ввода с трубой сброса газа. Разрез А-А. План Разрез Б-Б (при работе газгольдера с трубой сброса газа). Узлы и детали Монтажный чертеж газового ввода без трубы сброса газа. Разрез А-А. План Разрез Б-Б (при работе газгольдера без трубы сброса газа). Узлы Разрезы В-В, Г-Г, Д-Д, Е-Е, Ж-Ж, З-З, И-И, К-К, Л-Л Детали, узлы Системы объемоуказания Общие данные Принципиальные схемы непрерывного объемоуказания и ступенчатой сигнализации Принципиальные схемы подключения сельсин-датчиков и сельсин-приемников Диаграмма работы контактов командоаппарата Монтажная схема сельсина-датчика и командоаппарата Монтажная схема щитка сигнализации для нормальных помещений Схема троссового привода датчиков ступенчатой сигнализации блокировки и непрерывного объемоуказания Электротехническая часть Общие данные Электрооборудование газгольдера со взрывоопасным газом Электрооборудование газгольдера с невзрывоопасным газом Молниезащита и защита от статического электричества и вторичных проявлений молнии Ведомость объемов строительных и монтажных работ. Газгольдер со взрывоопасным газом. Схема "на проход" Ведомость объемов строительных и монтажных работ. Газгольдер со взрывоопасным газом. Схема "на тупик" Ведомость объемов строительных и монтажных работ. Газгольдер с невзрывоопасным газом. Схема "на проход" Ведомость объемов строительных и монтажных работ. Газгольдер с невзрывоопасным газом. Схема "на тупик" |
| Разработан: | ГИАП Минудобрений СССР |
| Утверждён: | 10.09.1985 Министерство по производству минеральных удобрений СССР (USSR Ministry of Mineral Fertilizer Production 25-111) |




































