Скачать Типовой проект 707-2-22с.86 Альбом III. Конструкции металлическиеДата актуализации: 01.01.2021
|
| Обозначение: | Типовой проект 707-2-22с.86 |
| Обозначение англ: | 707-2-22с.86 |
| Статус: | действует |
| Название рус.: | Альбом III. Конструкции металлические |
| Дата добавления в базу: | 01.10.2014 |
| Дата актуализации: | 01.01.2021 |
| Дата введения: | 10.09.1985 |
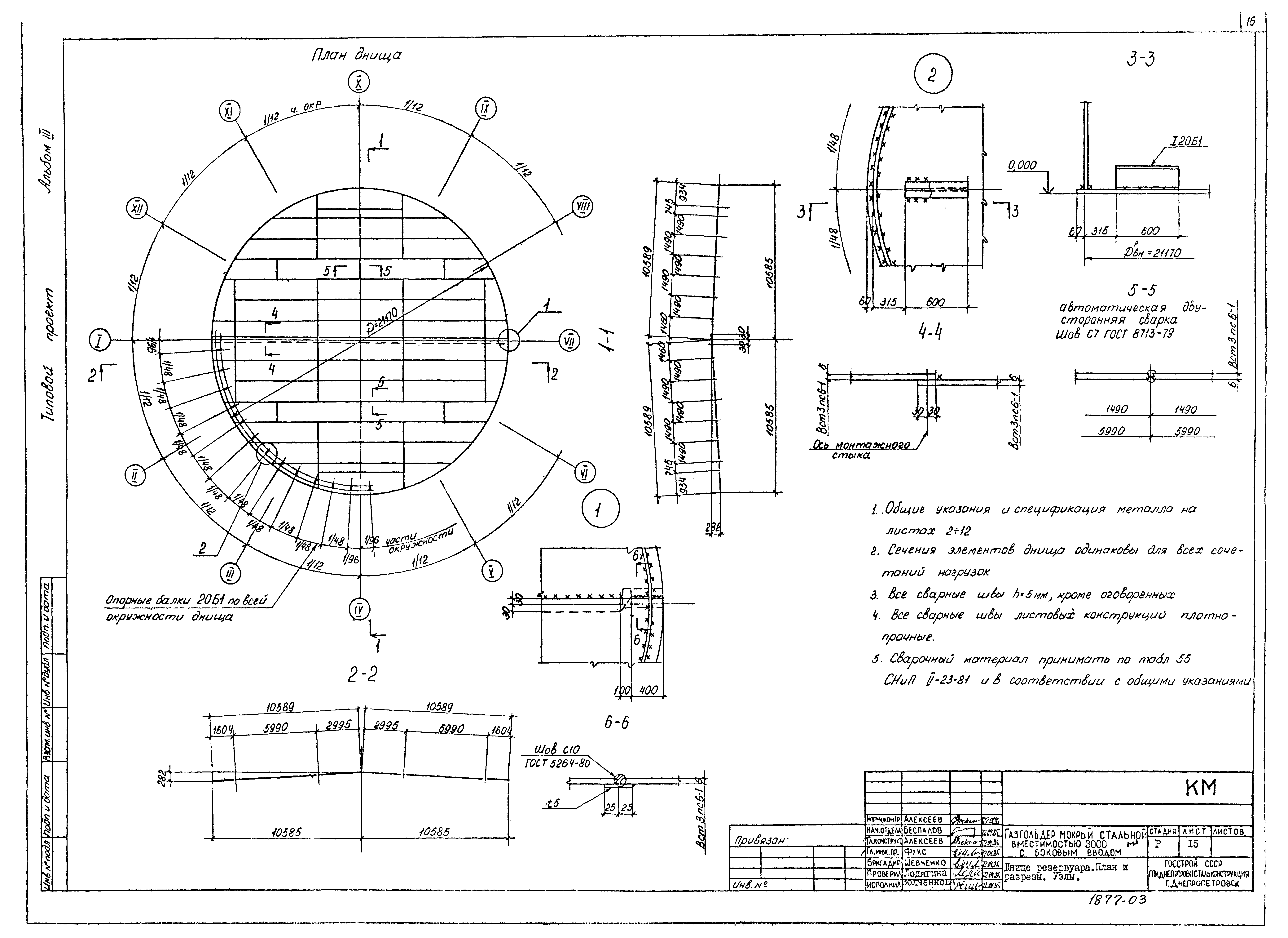
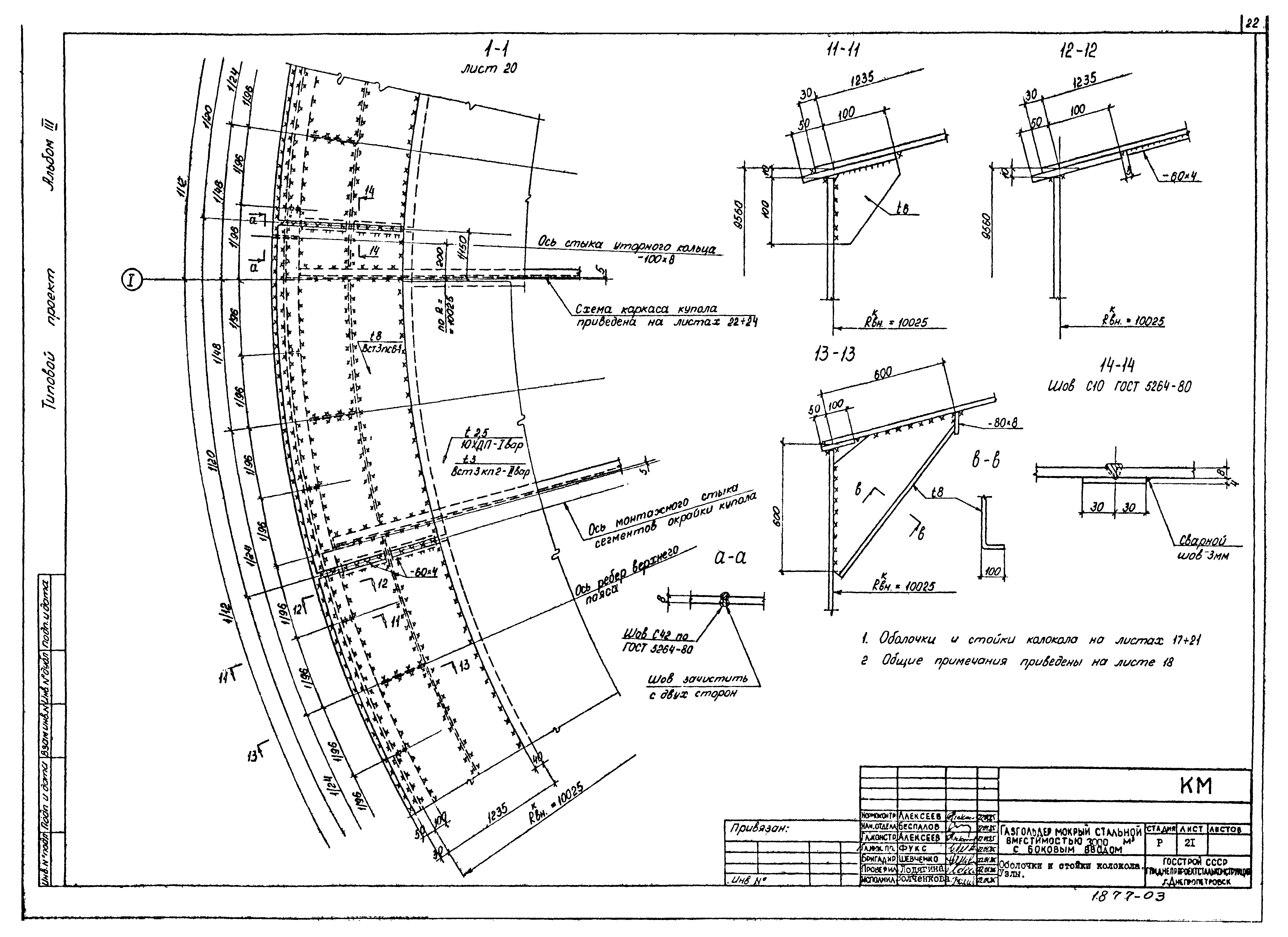
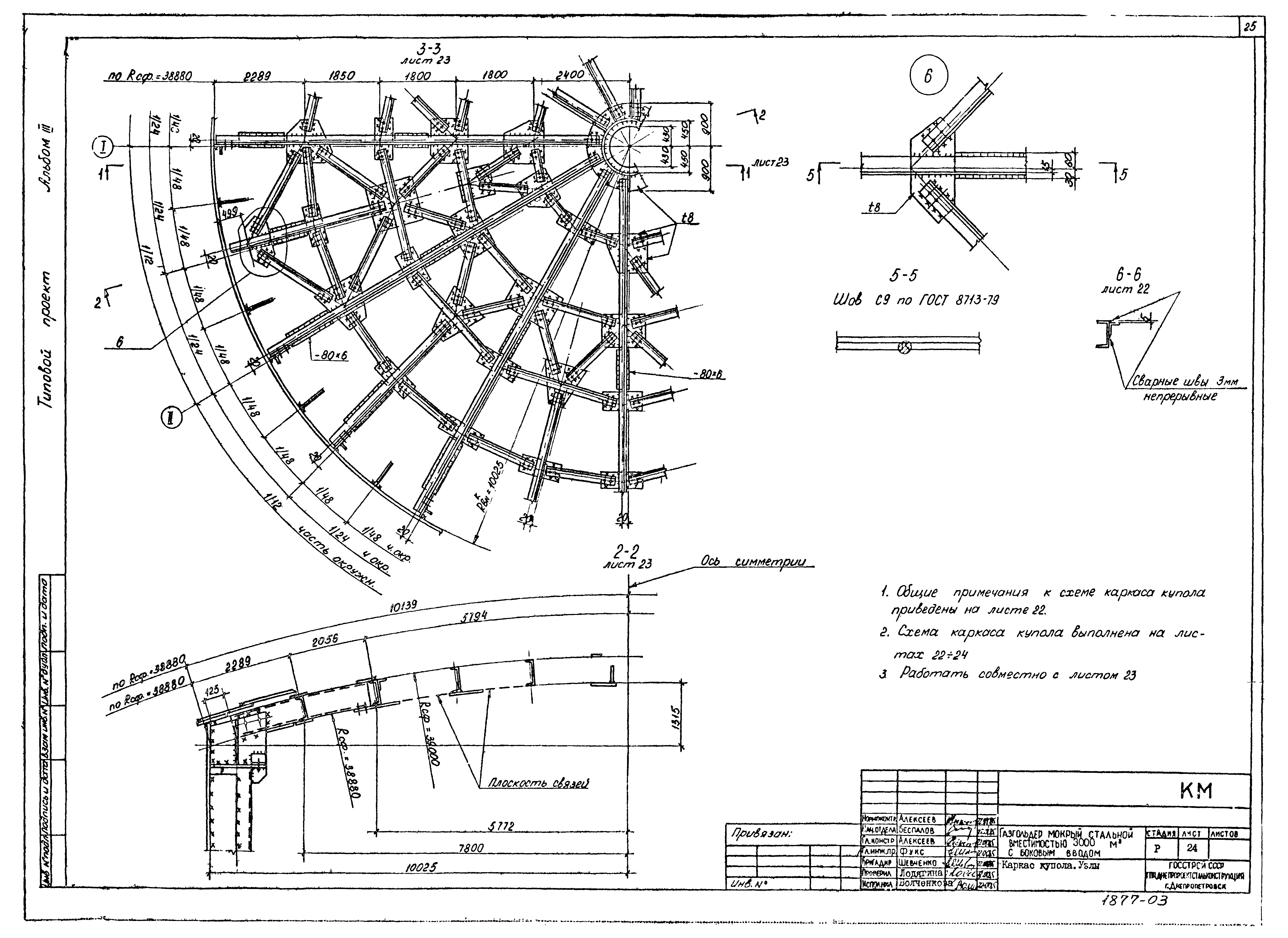
| Оглавление: | Общие данные. Ведомость чертежей основного комплекта Общие указания Техническая спецификация металла. Сочетание I, II Техническая спецификация металла. Сочетание III Общий вид. Фасад Общий вид. Разрезы Днище резервуара. План и разрезы. Узлы Стенка резервуара. Разрезы Оболочки и стойки колокола. Фасад, развертка Оболочки и стойки колокола. Разрезы Оболочки и стойки колокола. Разрезы. Развертки Оболочки и стойки колокола. Узлы Каркас купола. План Каркас купола. Узлы Внутренние направляющие в резервуаре Каркас внешних направляющих. Развертка Каркас внешних направляющих. Разрезы Каркас внешних направляющих. Узлы Площадка для пригрузки, стремянка. Схема Площадка для пригрузки, стремянка. Узлы Схема и таблица догрузок Шахтная лестница. Схема Шахтная лестница. Разрезы. Узлы Колпаки, люки, лазы. Установка роликов. Схемы Колпаки, люки, лазы. Установка роликов. Разрезы. Узлы Колпак КП, люк ЛК-1. Узлы Лазы ЛЗ-1, ЛЗ-2. Люк ЛК-2. Узлы Газовые вводы. Схема Газовые вводы. Узлы Газовые вводы. Разрезы. Узлы Труба сброса газа. Общий вид. План Труба сброса газа. Схема Труба сброса газа. Узлы Подвешивание колокола над резервуаром. Детали креплений. Схема Подвешивание колокола над резервуаром. Детали креплений. Узлы Молниеприемники. Схема. Узел Лист нагрузок на кольцевой фундамент газгольдера |
| Разработан: | ГИАП Минудобрений СССР |
| Утверждён: | 10.09.1985 Министерство по производству минеральных удобрений СССР (USSR Ministry of Mineral Fertilizer Production 25-111) |
























































