Скачать Типовой проект 707-2-22с.86 Альбом V. Нестандартизированное оборудование (системы объемоуказания)Дата актуализации: 01.01.2021
|
| Обозначение: | Типовой проект 707-2-22с.86 |
| Обозначение англ: | 707-2-22с.86 |
| Статус: | действует |
| Название рус.: | Альбом V. Нестандартизированное оборудование (системы объемоуказания) |
| Дата добавления в базу: | 01.10.2014 |
| Дата актуализации: | 01.01.2021 |
| Дата введения: | 10.09.1985 |
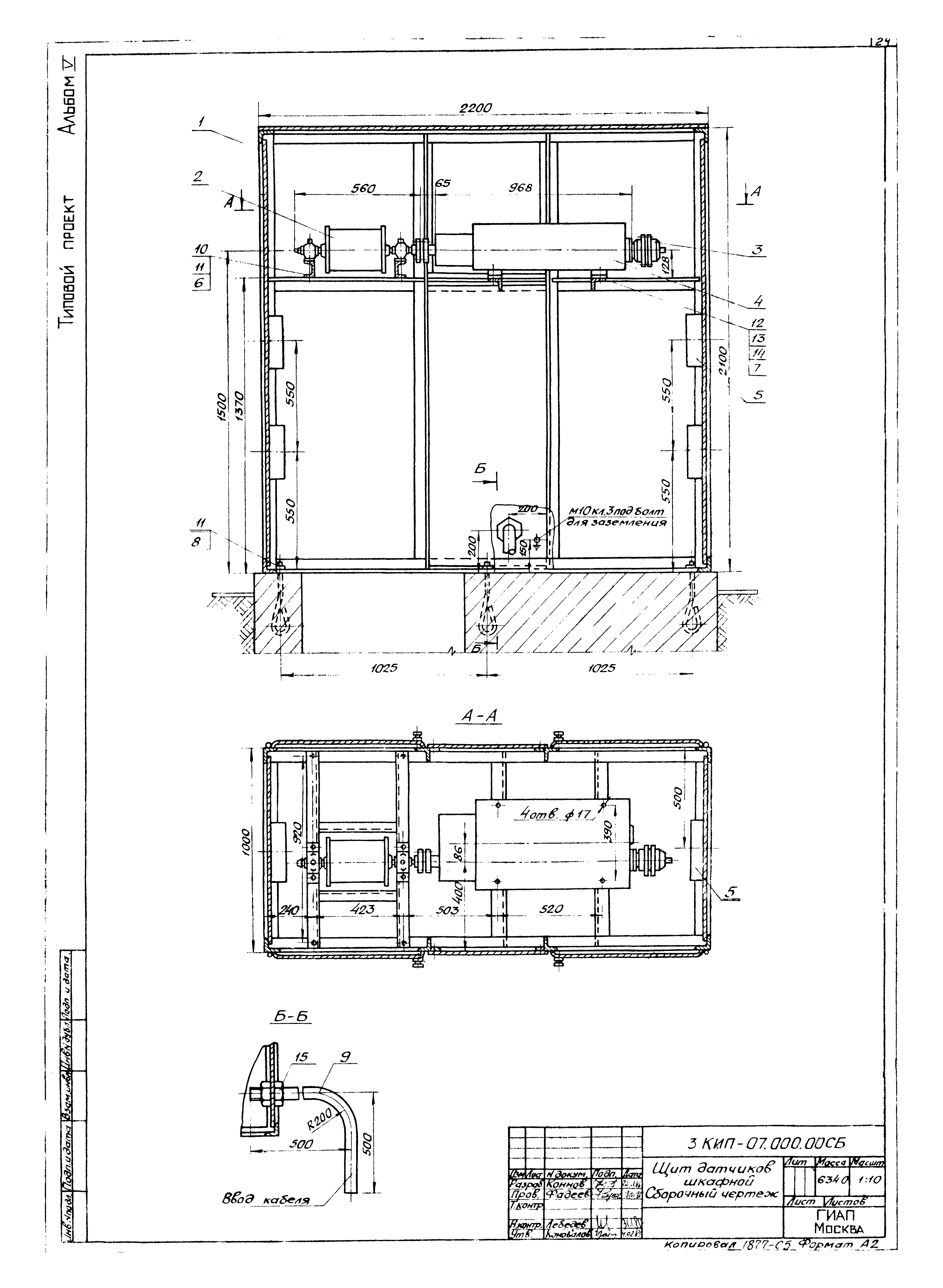
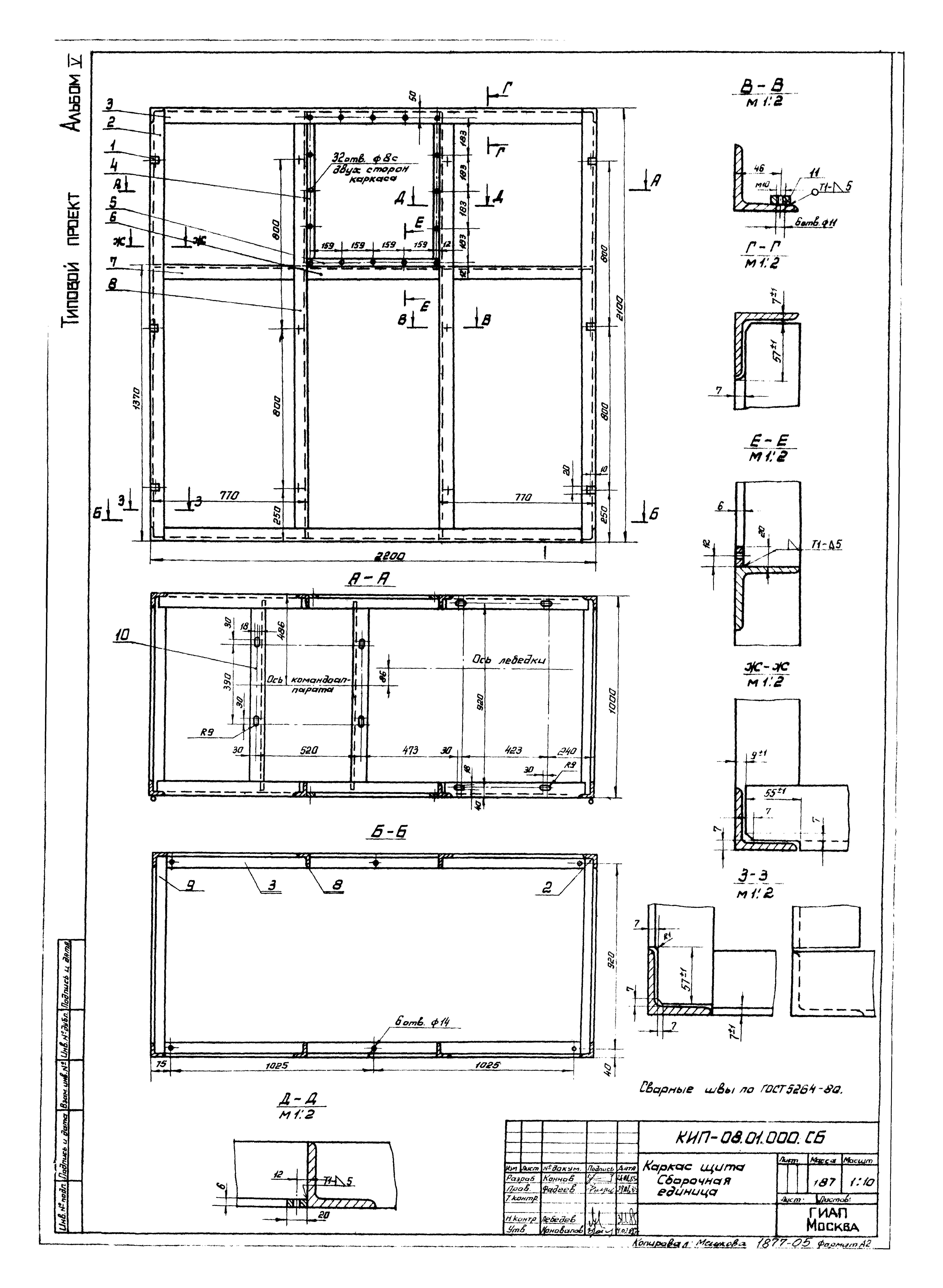
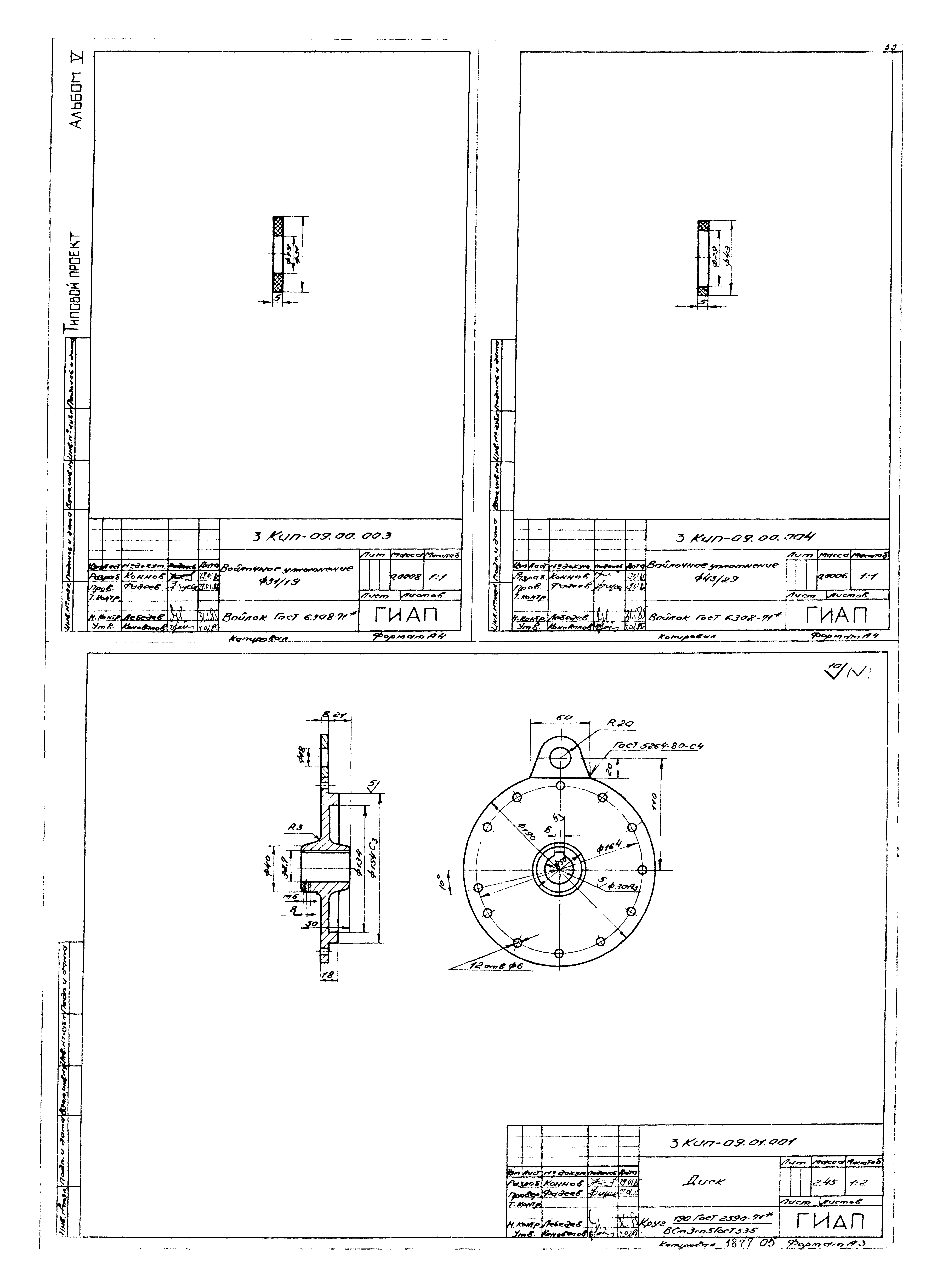
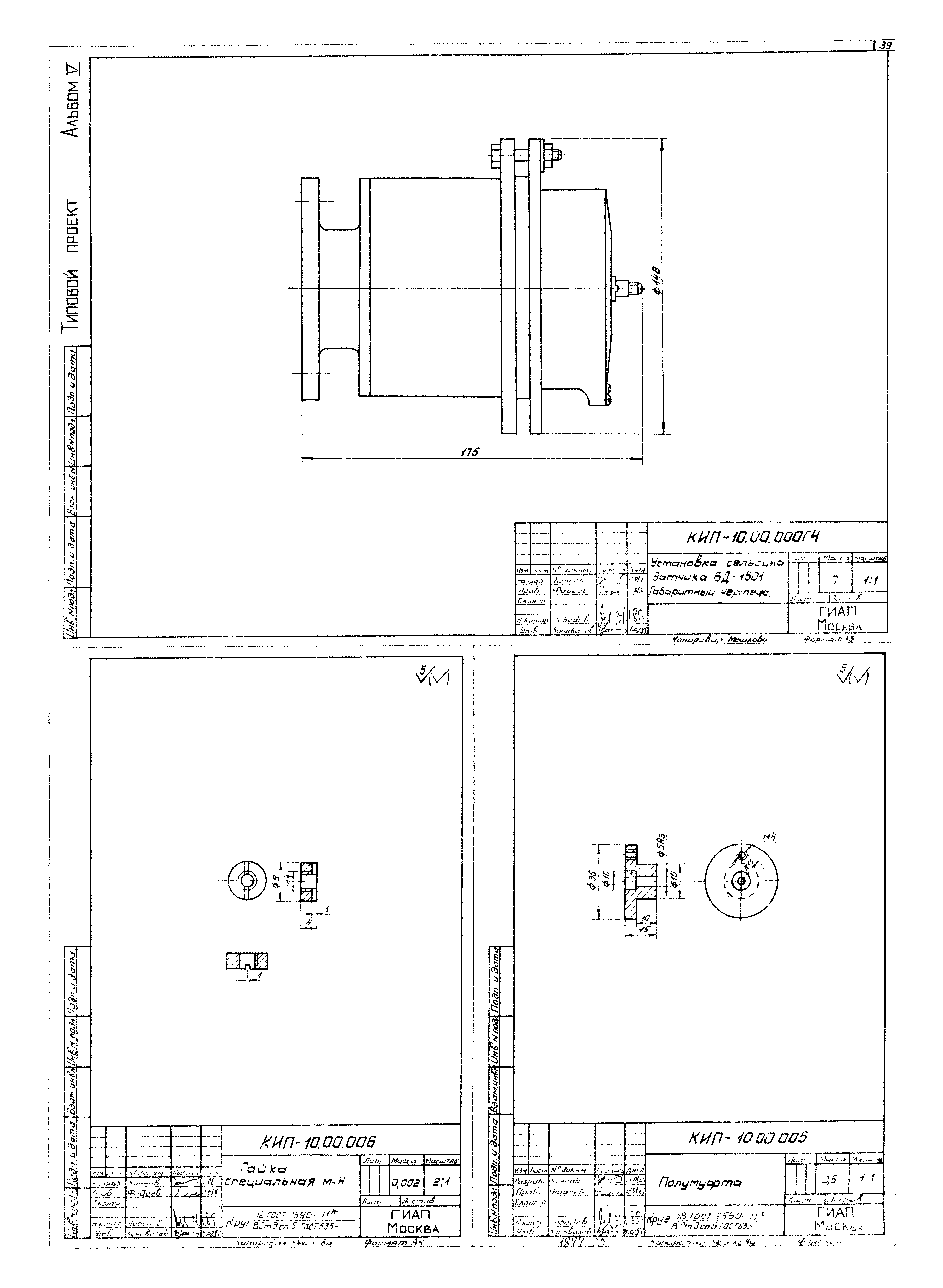
| Оглавление: | Содержание альбома КИП-0100000СБ Блок верхний. Сборочный чертеж КИП-0100000ГЧ Блок верхний. Габаритный чертеж КИП-0101000СБ Кожух защитный. Сборочная единица КИП-0100001 Ролик ф 350 КИП-0100002 Ось КИП-0100003 Крышка КИП-0100004 Плита КИП-0101001 Стенка кожуха КИП-0102000СБ Кронштейн. Сборочная единица КИП-0100000 Блок верхний 3КИП-0200000СБ Водило. Сборочный чертеж 3КИП-0200000ГЧ Водило. Габаритный чертеж 3КИП-0200001 Водило 3КИП-0200000 Водило 3КИП-0300000СБ Блок средний. Сборочный чертеж 3КИП-0300000ГЧ Блок средний. Габаритный чертеж 3КИП-0300001 Ось 3КИП-0301000СБ Кронштейн I. Сборочная единица 3КИП-0301001 Плита 3КИП-0302000СБ Кронштейн II. Сборочная единица 3КИП-0300000 Блок средний 3КИП-0400000СБ Блок натяжной. Сборочный чертеж 3КИП-0400002 Груз 3КИП-0400003 Щека рычага правая 3КИП-0400000ГЧ Блок натяжной. Габаритный чертеж 3КИП-0400001 Ось L = 145 3КИП-0400004 Ось L = 110 3КИП-0401000СБ Кронштейн. Сборочная единица 3КИП-0400000 Блок натяжной КИП-0500000СБ Блок приямка № 1. Сборочный чертеж КИП-0500000ГЧ Блок приямка № 1. Габаритный чертеж КИП-0500002 Ось КИП-0500001 Плита КИП-0501000СБ Кронштейн. Сборочная единица КИП-0501001 Плита КИП-0500000 Блок приямка № 1 КИП-0600000СБ Блок приямка № 2. Сборочный чертеж КИП-0600001 Ролик ф 200 КИП-0601000СБ Кронштейн. Сборочная единица КИП-0600000ГЧ Блок приямка № 2. Габаритный чертеж КИП-0600002 Крышка КИП-0600003 Ось КИП-0601001 Плита КИП-0600000 Блок приямка № 2 3КИП-0700000СБ Щит датчиков шкафной. Сборочный чертеж 3КИП-0700001 Шайба косая 12 3КИП-0700000 Щит датчиков шкафной КИП-0800000СБ Корпус щита. Сборочный чертеж КИП-0801000СБ Каркас щита. Сборочная единица КИП-0800001 Рукоятка КИП-0800002 Бонка заготовка КИП-0800003 Петля КИП-0801001 Петля КИП-0800000ГЧ Корпус щита. Габаритный чертеж КИП-0800004 Дверь 2020х720х30. Развертка КИП-0800005 Палец КИП-0800000 Корпус щита 3КИП-0900000СБ Лебедка. Сборочный чертеж 3КИП-0901000СБ Барабан. Сборочная единица 3КИП-0902000СБ Рамка лебедки. Сборочная единица 3КИП-0900003 Войлочное уплотнение ф 31/19 3КИП-0900004 Войлочное уплотнение ф 43/29 3КИП-0901001 Диск 3КИП-0900001 Шайба косая 3КИП-0900002 Кольцо 62/54; б = 9 3КИП-0900005 Вал 3КИП-0900000ГЧ Лебедка. Габаритный чертеж 3КИП-0900000 Лебедка КИП-1000000СБ Установка сельсина-датчика БД-1501. Сборочный чертеж КИП-1001000СБ Корпус. Сборочная единица КИП-1000001 Палец КИП-1000002 Валик КИП-1000003 Скоба КИП-1000004 Полумуфта КИП-1000005 Полумуфта КИП-1000006 Гайка специальная МЧ КИП-1000000ГЧ Установка сельсина-датчика БД-1501. Габаритный чертеж КИП-1000000 Установка сельсина-датчика БД-1501 3КИП-1100000СБ Сельсин-приемник. Сборочный чертеж 3КИП-1101000СБ Кронштейн. Сборочная единица 3КИП-1102000СБ Стрелка. Сборочная единица 3КИП-1100001 Циферблат 3КИП-1100002 Переходник 3КИП-1100003 Стойка 3КИП-1100004 Гайка специальная 3КИП-1100005 Скоба 3КИП-1100000ГЧ Сельсин-приемник. Габаритный чертеж 3КИП-1100000 Сельсин-приемник 3КИП-1200000СБ Установка датчиков в утепленной будке. Сборочный чертеж 3КИП-1201000СБ Опора под аппараты. Сборочная единица 3КИП-1201000ГЧ Опора под аппараты. Габаритный чертеж 3КИП-1200001 Шайба косая 12 3КИП-1200000 Установка датчиков в утепленной будке 3КИП-1300000СБ Установка ртутного термометра. Сборочный чертеж 3КИП-1300000 Установка ртутного термометра 3КИП-1400000 Сигнализация и объемоуказание. Вариант с утепленной будкой 3КИП-1400000СБ Сигнализация и объемоуказание. Вариант с утепленной будкой. Сборочный чертеж |
| Разработан: | ГИАП Минудобрений СССР |
| Утверждён: | 10.09.1985 Министерство по производству минеральных удобрений СССР (USSR Ministry of Mineral Fertilizer Production 25-111) |




















































