Скачать Типовой проект 707-2-22с.86 Альбом VII. Тепловая изоляция и проект производства работДата актуализации: 01.01.2021
|
| Обозначение: | Типовой проект 707-2-22с.86 |
| Обозначение англ: | 707-2-22с.86 |
| Статус: | действует |
| Название рус.: | Альбом VII. Тепловая изоляция и проект производства работ |
| Дата добавления в базу: | 01.10.2014 |
| Дата актуализации: | 01.01.2021 |
| Дата введения: | 10.09.1985 |
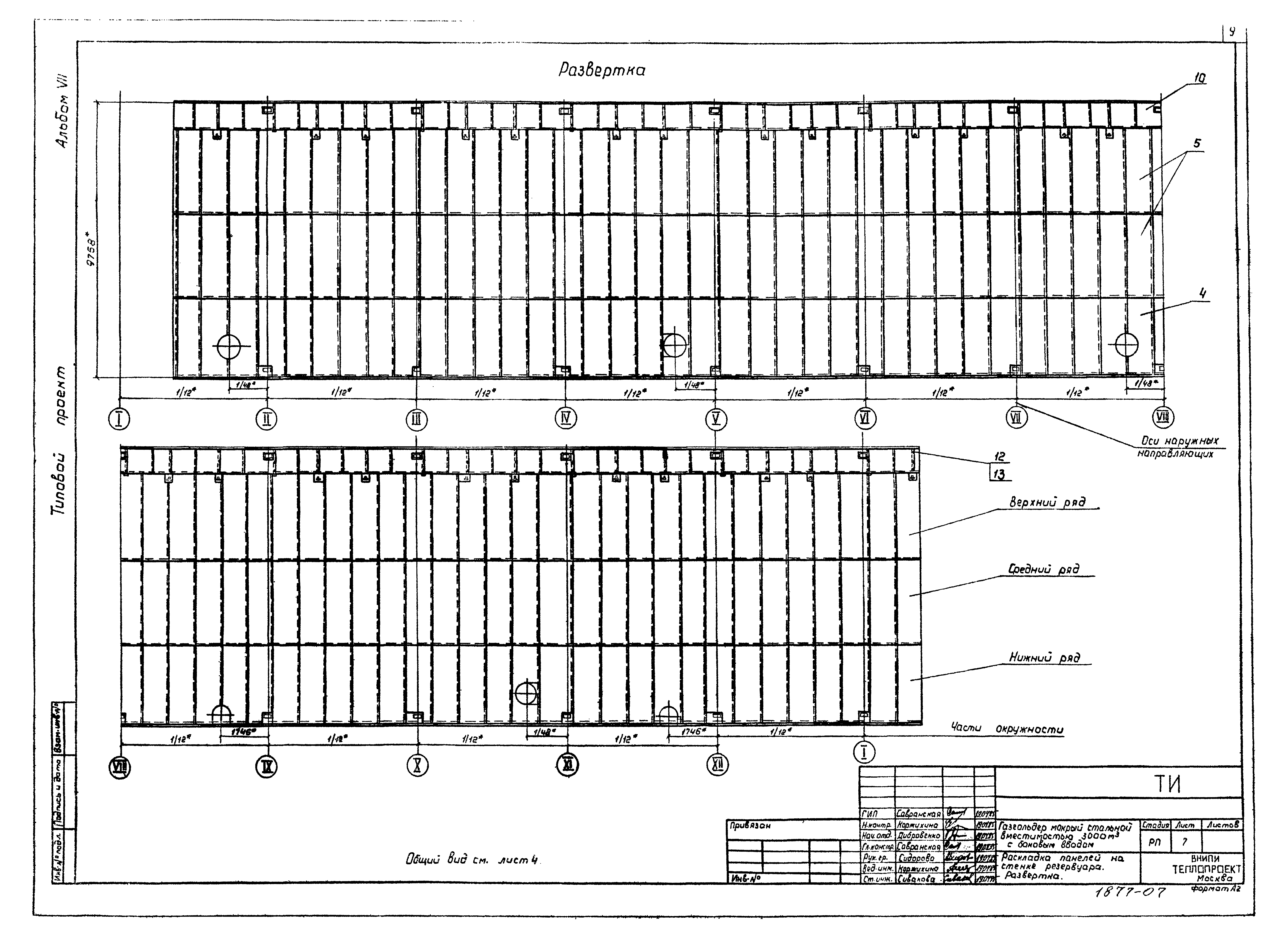
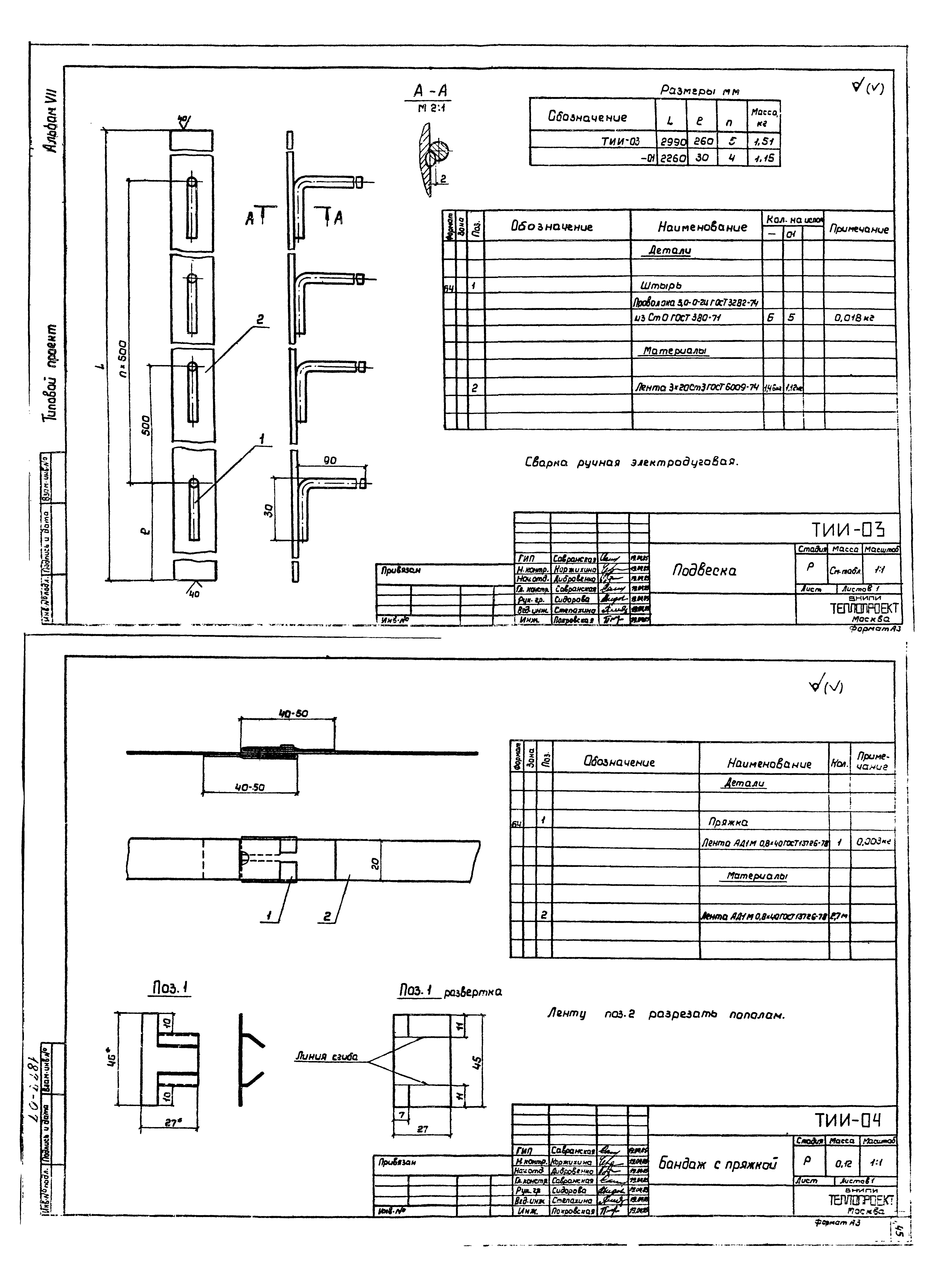
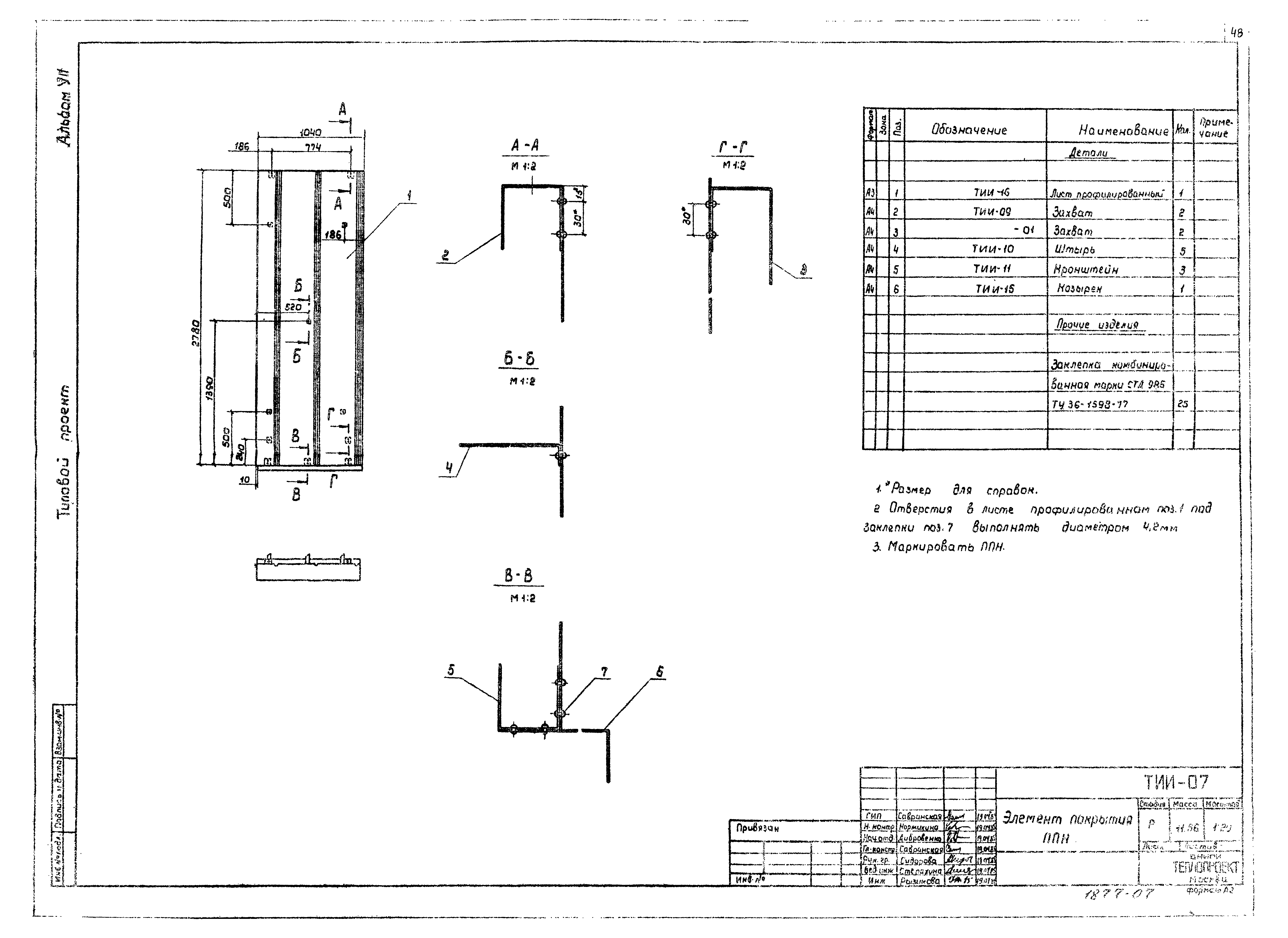
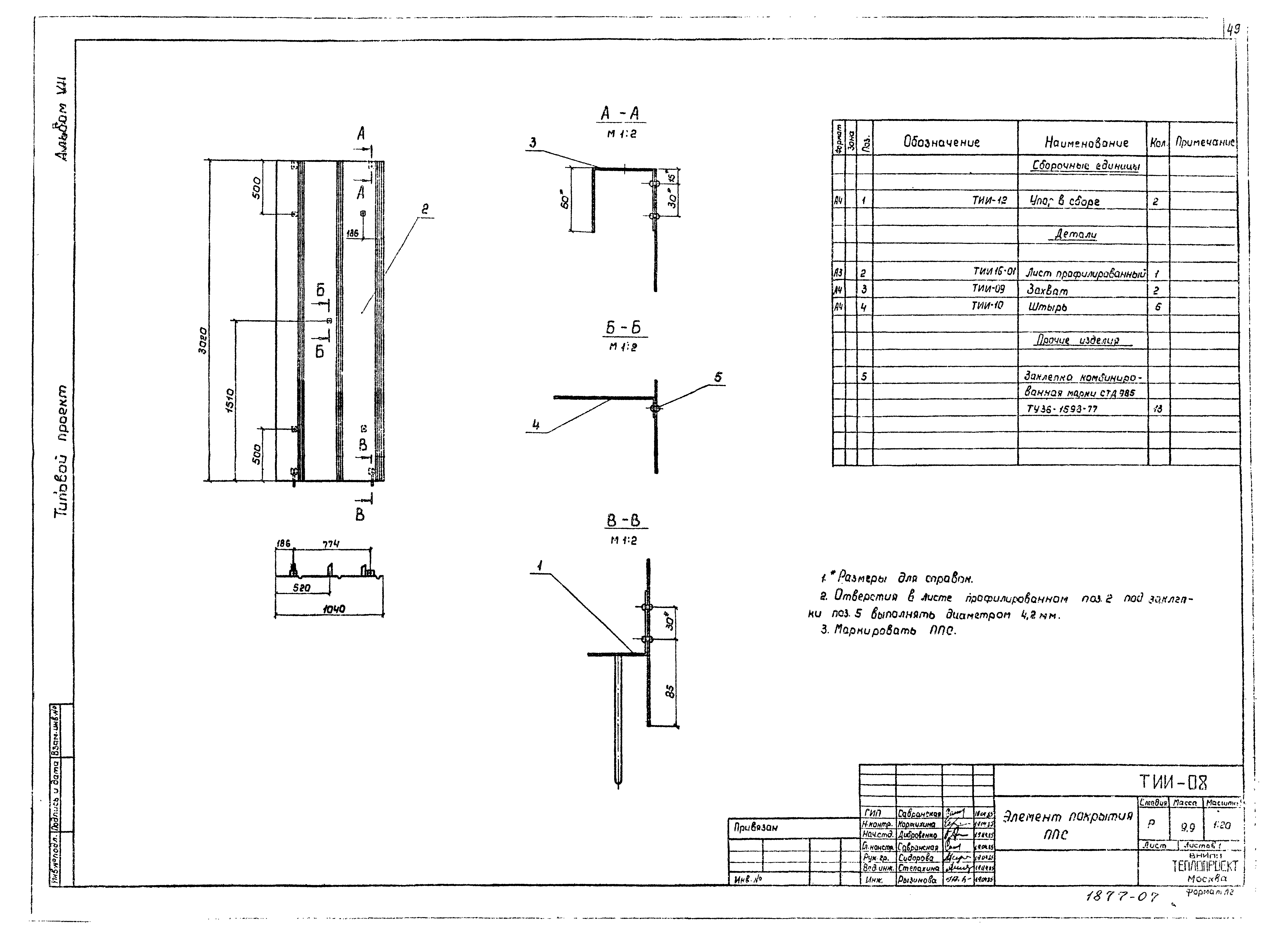
| Оглавление: | Содержание Чертежи основного комплекта марки ТИ Общие данные Тепловая изоляция резервуара панелями. Общий вид. Узел I Тепловая изоляция резервуара панелями. Сечения А-А, Б-Б. Разрезы В-В - К-К. Узел II Размещение приварных деталей для крепления панелей. Развертка стенки резервуара. Сечения Л-Л, Т-Т. Разрезы М-М - Р-Р. Вид С-С. Узел III Раскладка панелей на стенке резервуара. Развертка Тепловая изоляция резервуара матами минераловатными. Общий вид. Узел I Тепловая изоляция резервуара матами минераловатными. Сечения А-А - Г-Г. Разрезы Д-Д - К-К. Поз. 7 Размещение приварных деталей для крепления изоляции. Сечения Л-Л, С-С. Вид М-М. Разрезы Н-Н - Р-Р. Узел III Размещение приварных деталей для крепления изоляции. Фрагмент. Разрезы Т-Т - Ц-Ц Чертежи основного комплекта марки ППР Общие данные Схема организации работ по монтажу изоляции. I вариант. Разрез А-А Раскладка панелей на стенке резервуара и порядок монтажа Схема пооперационной установки одной панели Строповка панели. Узел I. Вид Б-Б Схема погрузки панелей на автомашину ЗИЛ-130-76 График производства работ. I вариант Калькуляция трудовых затрат. I вариант Схема организации работ по монтажу изоляции. II вариант. План Схема организации работ по монтажу изоляции. II вариант. Разрез Д-Д Схема установки стоечных лесов. План Схема установки стоечных лесов. Развертка одного модуля Схема установки стоечных лесов. План модуля. Сечения Е-Е, Ж-Ж Схемы установки стоечных лесов. Узлы II, III, IV Схема установки стоечных лесов. Вид П-П, С-С. Сечение Р-Р Устройство лестничной клетки. Вид И-И. Сечения К-К - Н-Н График производства работ. II вариант Калькуляция трудовых затрат. II вариант Чертежи основного комплекта марки ППРИ Поддон для перевозки панелей Стяжка Подкладка Доска бортовая ДН-3 Чертежи основного комплекта марки ТИИ Элемент бандажа Планка Подвеска Бандаж с пряжкой Панель ПН Панель ПС Элемент покрытия ППН Элемент покрытия ППС Захват Штырь Кронштейн Упор в сборе Упор Шпилька Козырек Лист профилированный |
| Разработан: | ГИАП Минудобрений СССР |
| Утверждён: | 10.09.1985 Министерство по производству минеральных удобрений СССР (USSR Ministry of Mineral Fertilizer Production 25-111) |


















































