Скачать Типовой проект 707-2-22с.86 Альбом IX. Проект производства работ (технология монтажа и сварки)Дата актуализации: 01.01.2021
|
| Обозначение: | Типовой проект 707-2-22с.86 |
| Обозначение англ: | 707-2-22с.86 |
| Статус: | действует |
| Название рус.: | Альбом IX. Проект производства работ (технология монтажа и сварки) |
| Дата добавления в базу: | 01.10.2014 |
| Дата актуализации: | 01.01.2021 |
| Дата введения: | 10.09.1985 |
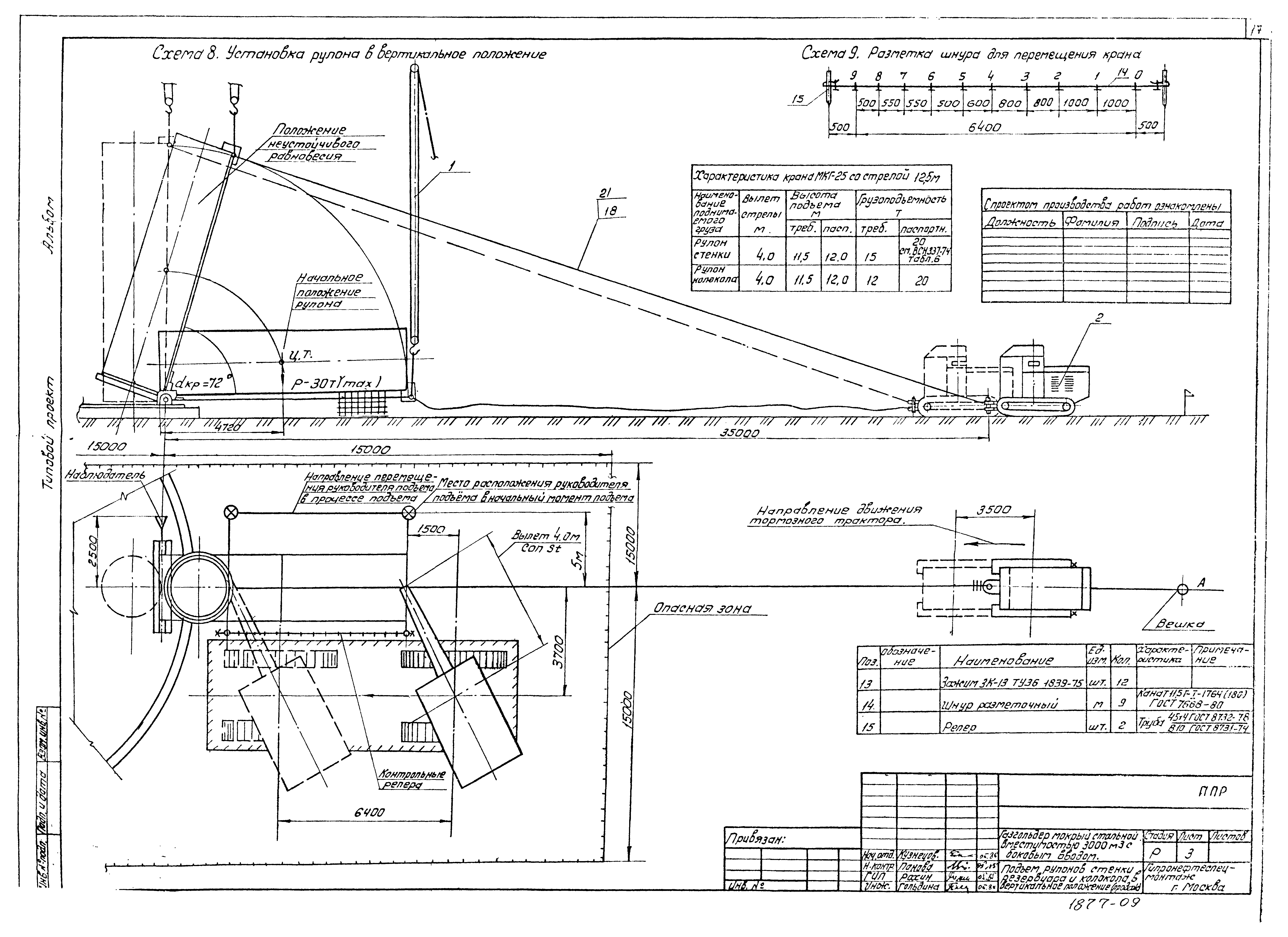
| Оглавление: | Технология монтажа Ведомость чертежей Пояснительная записка Ведомость приспособлений, механизмов и монтажной оснастки Ведомость оборудования, инструментов и материалов для сварки Общий вид газгольдера Монтаж днища газгольдера Разметка днища Подъем рулонов стенки резервуара и стенки колокола Развертывание стенок резервуара и колокола Монтаж кольцевой площадки Установка монтажной стойки Замыкание вертикальных монтажных стыков стенок резервуара и колокола Сборка каркаса купола Установка каркаса купола в проектное положение Демонтаж монтажной стойки Монтаж настила купола Сборка панелей внешних направляющих Монтаж панелей внешних направляющих Монтаж промежуточных связей внешних направляющих Монтаж верхних и нижних роликов Монтаж трубы сброса газа Монтаж бокового ввода Технология сварки Сварка днища Сварка при развертывании рулона стенки резервуара Сварка элементов стенки резервуара Сварка колокола Сварка вертикальных стыков стенок резервуара и колокола Сварка каркаса купола Сварка газового ввода |
| Разработан: | ГИАП Минудобрений СССР |
| Утверждён: | 10.09.1985 Министерство по производству минеральных удобрений СССР (USSR Ministry of Mineral Fertilizer Production 25-111) |





















































