Скачать Типовой проект 707-2-22с.86 Альбом X. Проект производства работ (приспособления)Дата актуализации: 01.01.2021
|
| Обозначение: | Типовой проект 707-2-22с.86 |
| Обозначение англ: | 707-2-22с.86 |
| Статус: | действует |
| Название рус.: | Альбом X. Проект производства работ (приспособления) |
| Дата добавления в базу: | 01.10.2014 |
| Дата актуализации: | 01.01.2021 |
| Дата введения: | 10.09.1985 |
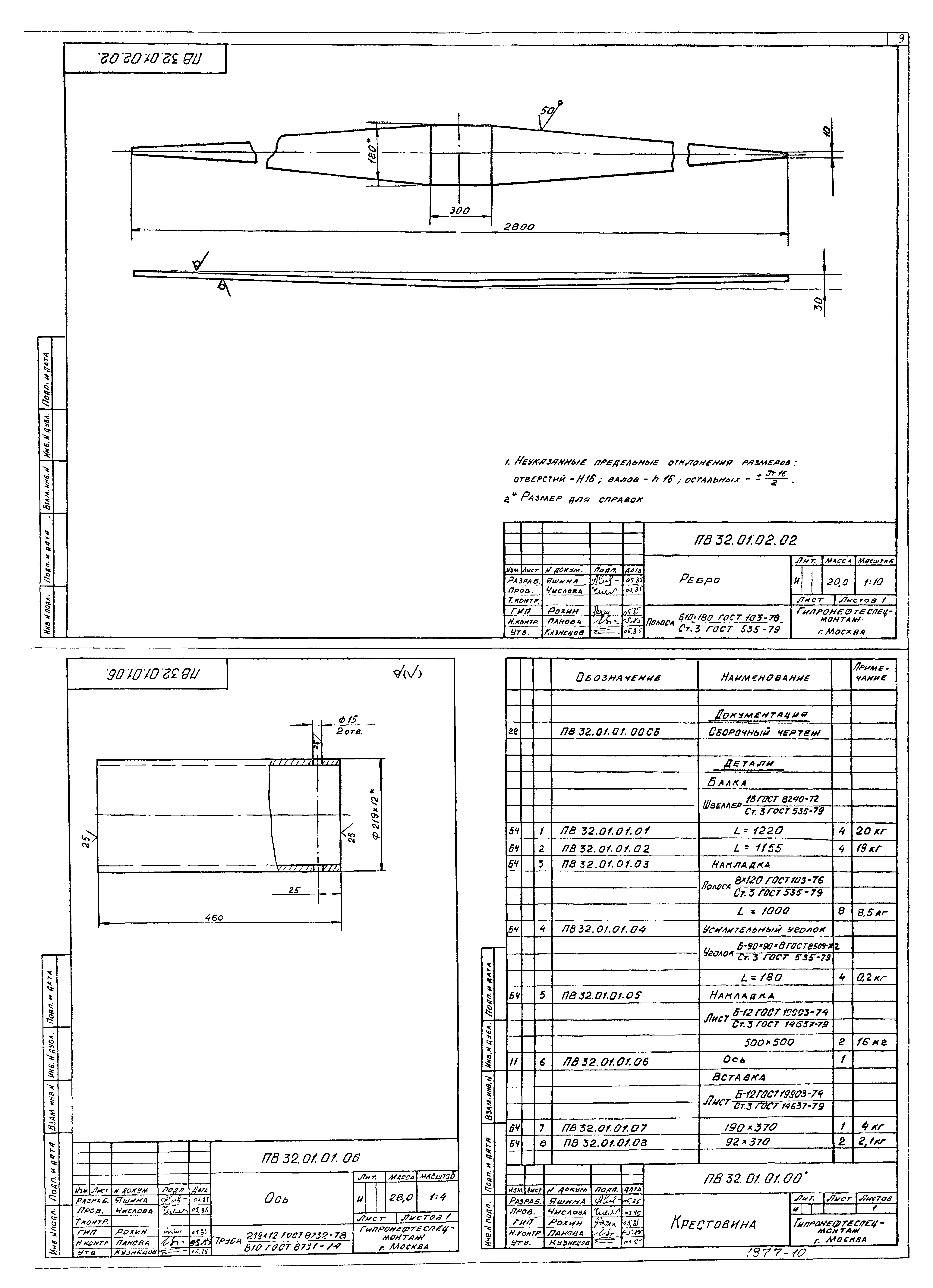
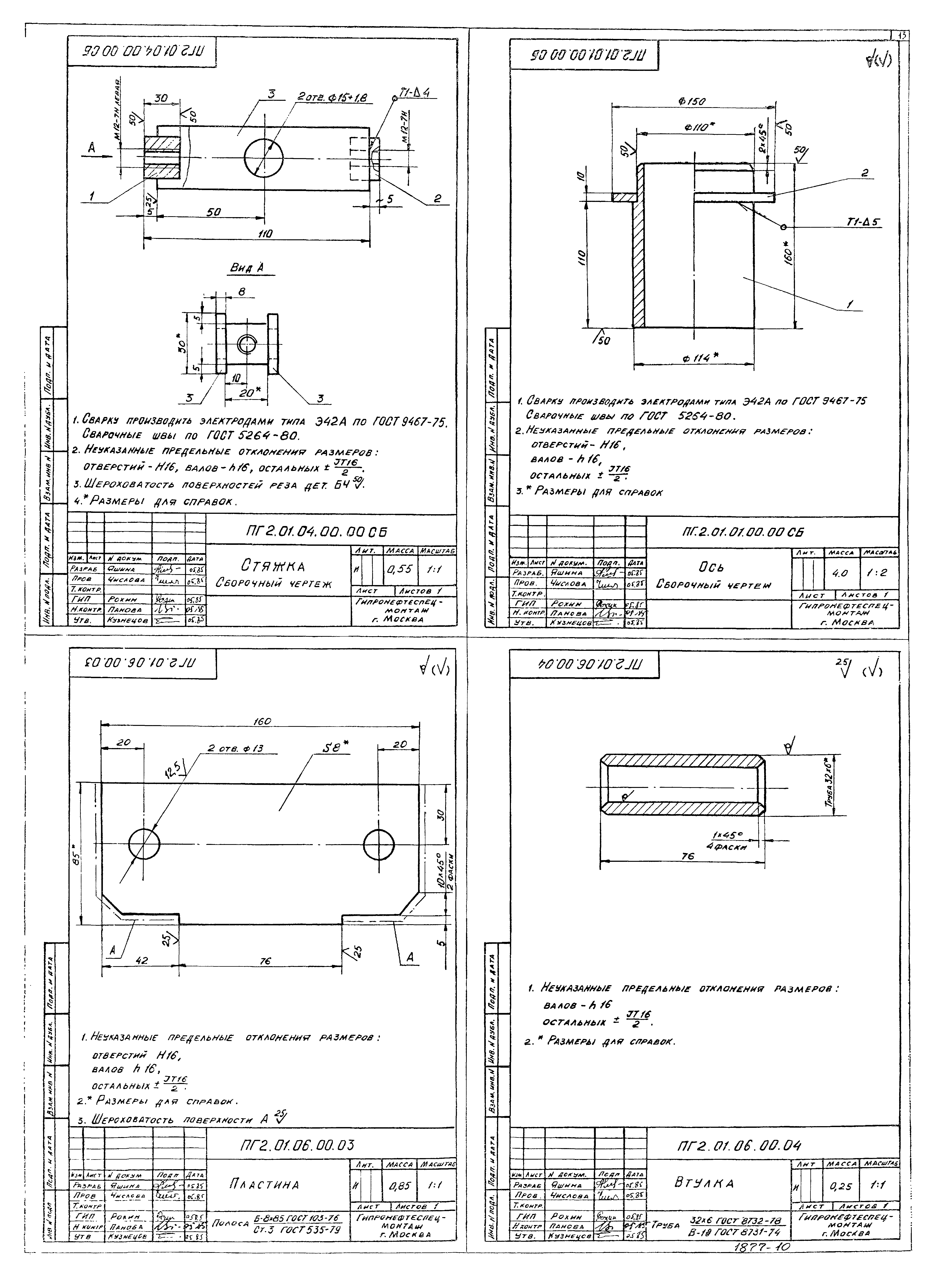
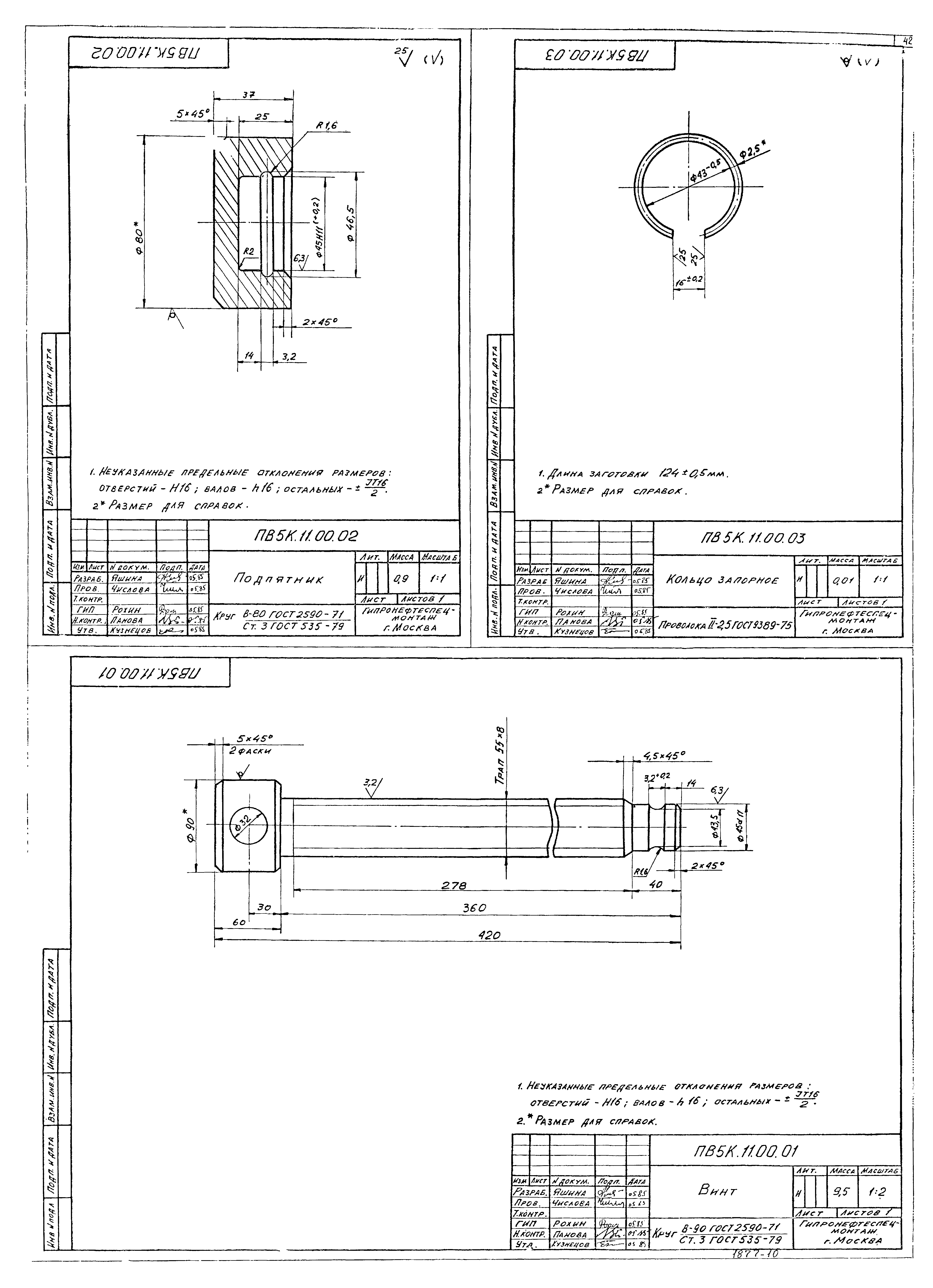
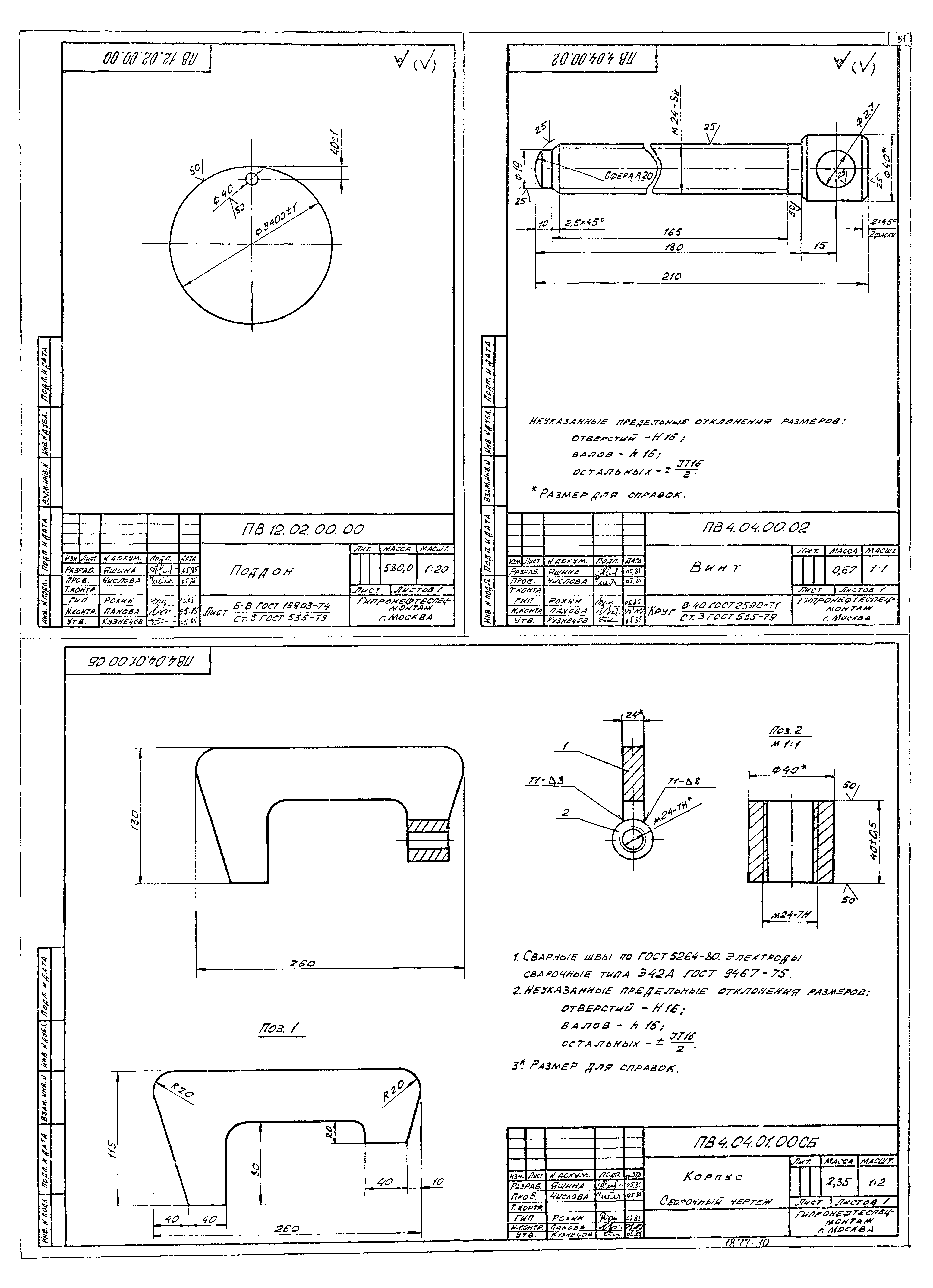
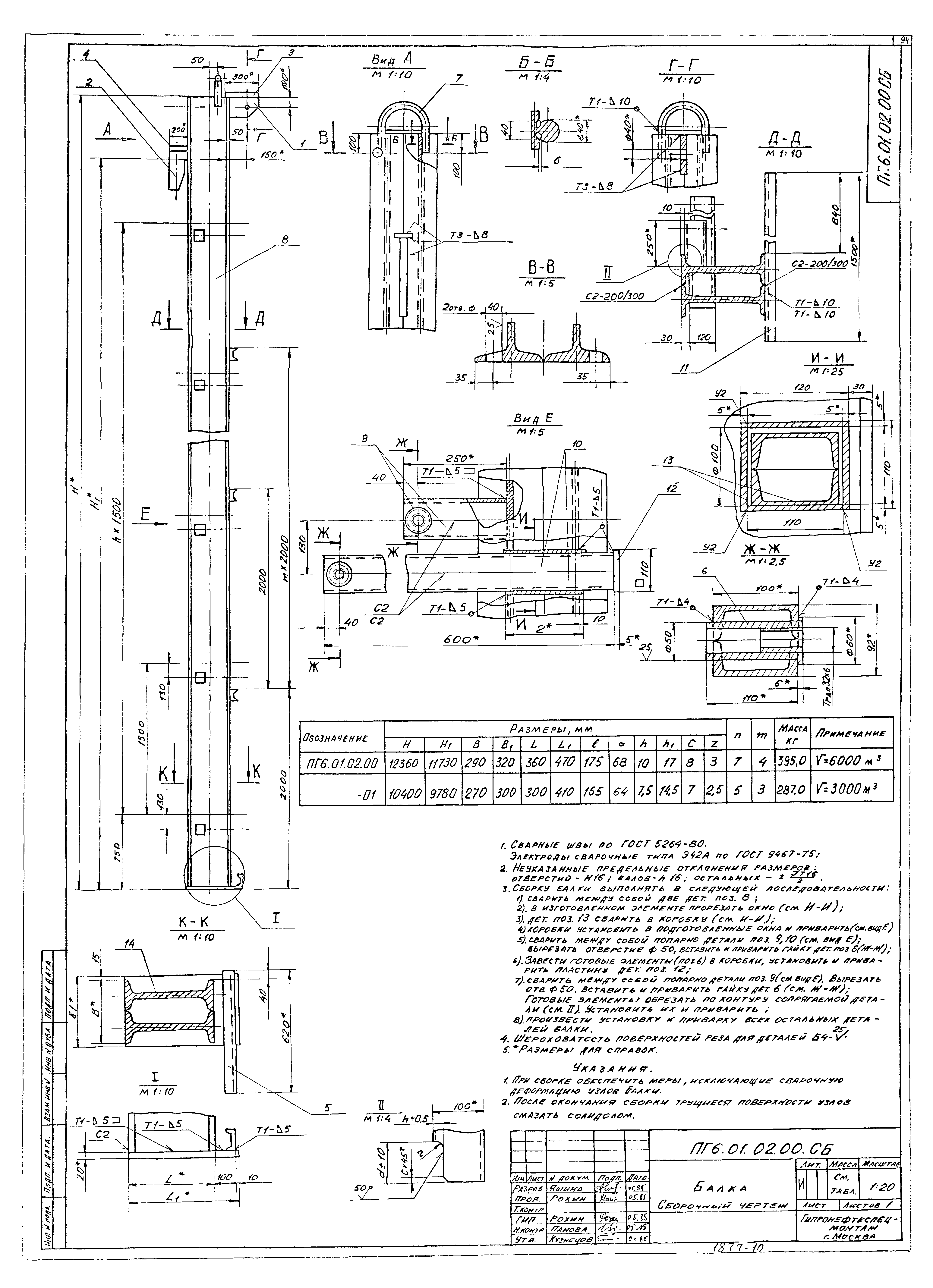
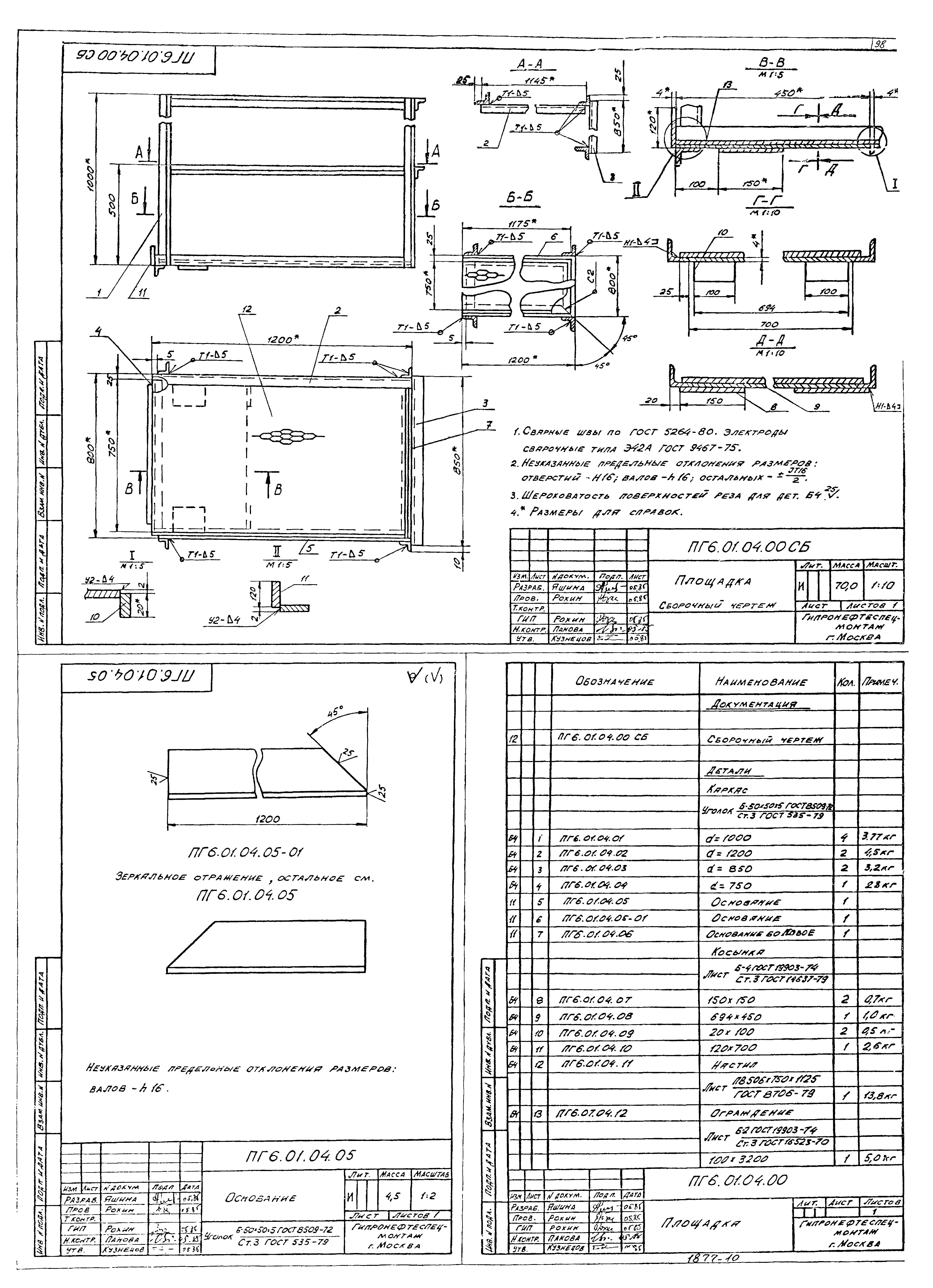
| Оглавление: | 15-1296.01.00.00 Ведомость приспособлений ПВ.32.01.00.00СБ Устройства для раскатки рулонов. Сборочный чертеж ПВ.32.01.00.00 Устройства для раскатки рулонов ПВ.32.01.00.02 Штырь ПВ.32.01.02.00 Щека тяговая ПВ.32.01.02.01 Ступица ПВ.32.01.01.00СБ Крестовина. Сборочный чертеж ПВ.32.01.01.00 Крестовина ПВ.32.01.02.02 Ребро ПВ.32.01.01.06 Ось ПВ.32.01.02.03 Накладка ПВ.32.01.02.00СБ Щека-тяговая. Сборочный чертеж ПГ2.01.00.00-01СБ Приспособление для разметки днища. Сборочный чертеж ПГ2.01.00.00-01 Приспособление для разметки днища ПГ2.01.06.00-01 Кронштейн ПГ2.01.06.00.05 Пластина ПГ2.01.06.00.04 Втулка ПГ2.01.01.00.00СБ Ось. Сборочный чертеж ПГ2.01.04.00.00СБ Стяжка. Сборочный чертеж ПГ2.01.06.00.03 Пластина ПГ2.01.02.00.01 Скоба I ПГ2.01.02.00.02 Бобышка ПГ2.01.05.00.00 Скоба. Сборочный чертеж ПГ2.01.02.00.00СБ Скоба I. Сборочный чертеж ПГ2.01.00.00.02 Чертилка ПГ2.01.00.00.03 Палец ПГ2.01.03.00.00СБ Скоба II. Сборочный чертеж ПГ2.01.00.00.01 Палец ПГ2.01.07.00.02 Штанга ПГ2.01.07.00.00СБ Тяга. Сборочный чертеж ПГ2.01.07.00.01 Винт ПГ2.01.07.00.00 Тяга ПГ2.01.01.00.00 Ось ПГ2.01.04.00.00 Стяжка ПГ2.01.05.00.00 Скоба ПГ2.01.03.00.00 Скоба II ПГ2.01.06.01.00 Опора ПГ2.01.06.01.00СБ Опора. Сборочный чертеж ПГ2.01.02.00.00 Скоба I ПГ2.01.06.00.00 Штанга ПГ2.01.06.00.00СБ Штанга. Сборочный чертеж ПГ2.01.06.01.02 Ролик ПГ2.01.06.01.03 Пластина ПГ2.01.06.01.01 Ребро ПГ2.01.06.00.02 Косынка ПВ5К.02.00.00СБ Шарнир для подъема рулона массой 30 - 45 т краном. Сборочный чертеж ПВ5К.02.00.01 Скоба ПВ5К.02.00.00 Шарнир для подъема рулона массой 30 - 45 т краном ПВ5К.02.01.00СБ Опора. Сборочный чертеж ПВ5К.02.02.00СБ Основание. Сборочный чертеж ПВ5К.02.02.00 Основание ПВ5К.02.01.03 Стойка ПВ5К.02.01.02 Ребро ПВ5К.02.01.01 Стойка ПВ5К.14.00.00СБ Шарнир для подъема рулонов массой 45 - 65 т краном. Сборочный чертеж ПВ5К.14.00.00 Шарнир для подъема рулонов массой 45 - 65 т краном ПВ5К.14.01.00 Опора ПВ5К.14.01.00СБ Опора. Сборочный чертеж ПВ5К.14.01.11 Сектор ПВ5К.14.01.08 Фиксатор ПВ5К.14.02.00СБ Основание. Сборочный чертеж ПВ5К.14.02.00 Основание ПВ5К.14.01.13 Ребро ПВ5К.14.03.00СБ Палец. Сборочный чертеж ПВ5К.14.03.00 Палец ПВ5К.14.01.14 Кронштейн ПВ5К.14.01.03 Ушко ПВ5К.14.01.05 Ребро ПВ5К.14.01.04 Кронштейн ПВ5К.12.00.00СБ Захват для подъема рулонов массой до 45 т. Сборочный чертеж ПВ5К.12.02.00СБ Упор. Сборочный чертеж ПВ5К.12.00.00 Захват для подъема рулонов массой до 30 - 45 т краном ПВ5К.12.01.00 Корпус ПВ5К.12.02.00 Упор ПВ5К.12.01.00СБ Корпус. Сборочный чертеж ПВ5К.12.01.07 Пластина ПВ5К.12.01.09 Ребро ПВ5К.12.01.11 Фланец ПВ5К.12.01.01 Щека ПВ5К.12.00.01 Винт ПВ5К.12.00.03 Кольцо запорное ПВ5К.12.00.02 Подпятник ПВ5К.12.01.05 Накладка ПВ5К.12.01.12 Ребро ПВ5К.12.01.03 Гайка ПВ5К.12.01.06 Стенка ПВ5К.11.00.00СБ Захват для подъема рулонов массой 45 - 65 т краном. Сборочный чертеж ПВ5К.11.02.00СБ Упор. Сборочный чертеж ПВ5К.11.00.00 Захват для подъема рулонов массой 45 - 65 т краном ПВ5К.11.01.00 Корпус ПВ5К.11.02.00 Упор ПВ5К.11.01.00СБ Корпус. Сборочный чертеж ПВ5К.11.01.07 Пластина ПВ5К.11.01.09 Ребро ПВ5К.11.01.11 Фланец ПВ5К.11.01.01 Щека ПВ5К.11.01.05 Накладка ПВ5К.11.01.13 Ребро ПВ5К.11.01.03 Гайка ПВ5К.11.01.06 Стенка ПВ5К.11.00.01 Винт ПВ5К.11.00.03 Кольцо запорное ПВ5К.11.00.02 Подпятник ПГ92.02.00.00СБ Постамент. Сборочный чертеж ПГ92.02.00.06 Швеллер ПГ92.02.00.01 Ребро ПГ92.02.00.00 Постамент ПГ92.02.00.03 Косынка ПГ92.02.00.04 Двутавр ПГ92.02.00.05 Двутавр ПГ92.02.00.07 Двутавр ПВ3.02.00.00 Скоба для развертывания рулона ПВ3.02.00.00СБ Скоба для развертывания рулона. Сборочный чертеж ПВ3.02.00.01 Палец ПВ3.02.01.00 Втулка ПВ3.02.01.02 Кольцо ПВ3.02.01.01 Втулка ПВ3.02.01.00СБ Втулка. Сборочный чертеж ПВ3.02.02.00 Корпус ПВ3.02.02.00СБ Корпус. Сборочный чертеж ПВ3.02.02.02 Щека ПВ12.01.00.00 Отвес ПВ12.01.00.00СБ Отвес. Сборочный чертеж ПВ12.01.00.01 Серьга ПВ12.01.00.02 Груз ПВ4.04.00.00СБ Струбцина для прижима уторного уголка. Сборочный чертеж ПВ4.04.00.00 Струбцина для прижима уторного уголка ПВ4.04.01.00 Корпус ПВ4.04.01.00СБ Корпус. Сборочный чертеж ПВ4.04.00.02 Винт ПВ12.02.00.00 Поддон ПВ8.05.00.00СБ Упор клиновой. Сборочный чертеж ПВ8.05.00.00 Упор клиновой ПВ8.05.00.01 Ось ПВ8.05.00.04 Диафрагма ПВ8.05.00.13 Уголок ПВ8.05.00.06 Перекладина ПВ8.05.00.05 Накладка ПВ8.05.00.11 Уголок ПВ8.05.00.10 Уголок ПВ8.05.00.09 Уголок ПВ8.05.00.07 Ручка ПВ8.05.00.08 Уголок ПВ4.05.01.02 Ребро ПВ4.05.01.01 Уголок ПВ4.05.00.03 Гайка ПВ4.05.00.00СБ Стяжное приспособление. Сборочный чертеж ПВ4.05.01.00СБ Кронштейн. Сборочный чертеж ПВ4.05.00.02 Сухарь ПВ4.05.01.00 Кронштейн ПВ4.05.00.00 Стяжное приспособление ПГ41.02.01.00-01СБ Корпус. Сборочный чертеж ПГ41.02.00.00-01СБ Струбцина для прижима кольцевой площадки. Сборочный чертеж ПГ41.02.01.01 Ручка ПГ41.02.00.00-01 Струбцина для прижима кольцевой площадки ПГ41.02.01.00-01 Корпус ПВ4.05.00.04 Болт ПГ41.02.00.01 Подпятник ПГ41.02.00.02 Кольцо пружинное ПГ41.02.01.02 Бобышка ПГ41.02.00.03 Винт ПГ72.02.00.05 Труба ПГ72.02.00.00СБ Стойка монтажная. Сборочный чертеж ПГ72.02.00.00 Стойка монтажная ПГ91.08.00.00-01СБ Леса навесные для замыкания вертикального стыка. Сборочный чертеж ПГ91.08.00.00-01СБ Леса навесные для замыкания вертикального стыка ПГ91.08.00.06 Крюк ПГ91.08.02.00-01СБ Лестница. Сборочный чертеж ПГ91.08.02.00-01 Лестница ПГ91.08.01.00СБ Площадка. Сборочный чертеж ПГ91.08.01.03 Крюк ПГ91.08.01.00 Площадка ПГ3.01.00.00 Сани ПГ3.01.00.00СБ Сани. Сборочный чертеж ПГ3.01.00.02 Швеллер ПГ8.01.00.00СБ Кронштейн для лесов. Сборочный чертеж ПГ8.01.00.01 Крюк ПГ8.01.00.00 Кронштейн для лесов ПГ91.11.00.00-01 Лестница нижняя для монтажа промежуточных связей внешних направляющих ПГ91.11.00.00-01СБ Лестница нижняя для монтажа промежуточных связей внешних направляющих. Сборочный чертеж ПГ91.11.00.01 Крюк ПГ92.11.00.00-01 Лестница верхняя для монтажа промежуточных связей внешних направляющих ПГ92.11.00.00-01СБ Лестница верхняя для монтажа промежуточных связей внешних направляющих. Сборочный чертеж ПГ71.03.00.00-01СБ Люлька для монтажа кольцевой площадки. Сборочный чертеж ПГ71.03.00.06 Ловитель ПГ71.03.00.00.01 Люлька для монтажа кольцевой площадки ПГ91.05.00.00.01СБ Леса подвесные для кольцевой площадки. Сборочный чертеж ПГ9.05.01.01 Кронштейн ПГ91.05.00.00-01 Леса подвесные для кольцевой площадки ПГ9.05.01.02 Скоба ПГ9.05.01.00СБ Кронштейн. Сборочный чертеж ПГ9.05.01.00 Кронштейн ПГ9.05.01.03 Кольцо ПГ91.05.01.00-01СБ Настил. Сборочный чертеж ПГ91.05.01.00-01 Настил ПГ51.05.00.00-01СБ Траверса для подъема панелей внешних направляющих. Сборочный чертеж ПГ51.05.01.00-01СБ Траверса. Сборочный чертеж ПГ51.05.00.00-01 Траверса для подъема панелей внешних направляющих ПГ51.05.02.03-01 Пластина ПГ51.05.00.01 Скоба ПГ51.05.01.00-01 Траверса ПГ51.05.01.02-01 Кольцо ПГ51.05.02.02-01 Пластина ПГ51.05.02.00-01 Кронштейн. Сборочный чертеж ПГ51.05.02.00-01 Кронштейн ПГ51.05.02.01 Ребро ПВ6.04.00.00СБ Приспособление для формообразования. Сборочный чертеж ПВ6.04.00.01 Скоба ПВ6.04.00.02 Ловитель ПВ6.04.00.00 Приспособление для формообразования ПВ6.04.00.10 Косынка ПВ6.04.01.00СБ Раскос. Сборочный чертеж ПВ6.04.01.00 Раскос ПВ6.04.00.11 Укосина ПВ6.04.01.01 Укосина ПВ6.04.00.03 Косынка ПВ6.04.00.04 Пластина ПВ6.04.00.07 Пластина ПВ6.04.00.08 Стойка ПВ82.04.00.00СБ Кронштейн для расчалок. Сборочный чертеж ПВ82.04.00.01 Пластина ПВ82.04.00.00 Кронштейн для расчалок ПВ82.04.00.03 Опора ПВ10.04.00.00СБ Строп 3-х ветвевой. Сборочный чертеж ПВ52.04.00.00СБ Строп 4-х ветвевой. Сборочный чертеж ПВ52.04.00.00 Строп 4-х ветвевой ПВ10.04.00.00 Строп 3-х ветвевой ПГ5.06.00.01 Звено ПГ5.06.00.00СБ Звено строповочное Q = 5 т. Сборочный чертеж ПГ5.06.00.00 Звено строповочное Q = 5 т ПГ91.14.00.00СБ Лестница накидная. Сборочный чертеж ПГ91.14.00.00 Лестница накидная ПГ4.05.00.00СБ Струбцина. Сборочный чертеж ПГ4.05.00.01 Винт ПГ4.05.00.00 Струбцина ПГ4.05.01.00СБ Скоба. Сборочный чертеж ПГ4.05.01.01 Пластина ПГ4.05.00.04 Пята ПГ4.05.00.00 Скоба ПГ6.01.00.00СБ Приспособление для замыкания вертикального монтажного стыка. Сборочный чертеж ПГ6.01.00.00 Приспособление для замыкания вертикального монтажного стыка ПГ6.01.04.06 Основание боковое ПГ6.01.01.00СБ Кронштейн. Сборочный чертеж ПГ6.01.01.01 Косынка ПГ6.01.00.02 Винт ПГ6.01.01.00 Кронштейн ПГ6.01.01.04 Швеллер ПГ6.01.01.02 Швеллер ПГ6.01.01.03 Швеллер ПГ6.01.01.05 Швеллер ПГ6.01.02.00СБ Балка. Сборочный чертеж ПГ6.01.02.00 Балка ПГ6.01.02.01 Кронштейн ПГ6.01.02.03 Пластина ПГ6.01.02.07 Скоба ПГ6.01.02.06 Гайка ПГ6.01.02.02 Ловитель ПГ6.01.03.00 Лестница ПГ6.01.03.00СБ Лестница. Сборочный чертеж ПГ6.01.04.00 Площадка ПГ6.01.04.00СБ Площадка. Сборочный чертеж ПГ6.01.04.05 Основание ПВ7.11.00.00СБ Клин. Сборочный чертеж ПВ7.11.00.01 Уголок ПВ7.11.00.00 Клин |
| Разработан: | ГИАП Минудобрений СССР |
| Утверждён: | 10.09.1985 Министерство по производству минеральных удобрений СССР (USSR Ministry of Mineral Fertilizer Production 25-111) |



































































































