Скачать Серия ИИ20-2 Типовые конструкции многоэтажных промышленных зданий. Указания по применению рабочих чертежей конструкций для зданий с сеткой колонн 9х6 м, с перекрытиями типа I из плит, опирающихся на полки ригелейДата актуализации: 01.01.2021
|
| Обозначение: | Серия ИИ20-2 |
| Обозначение англ: | Series ИИ20-2 |
| Статус: | заменен |
| Название рус.: | Типовые конструкции многоэтажных промышленных зданий. Указания по применению рабочих чертежей конструкций для зданий с сеткой колонн 9х6 м, с перекрытиями типа I из плит, опирающихся на полки ригелей |
| Дата добавления в базу: | 01.10.2014 |
| Дата актуализации: | 01.01.2021 |
| Дата введения: | 01.10.1964 |
| Дата окончания срока действия: | 01.04.1973 |
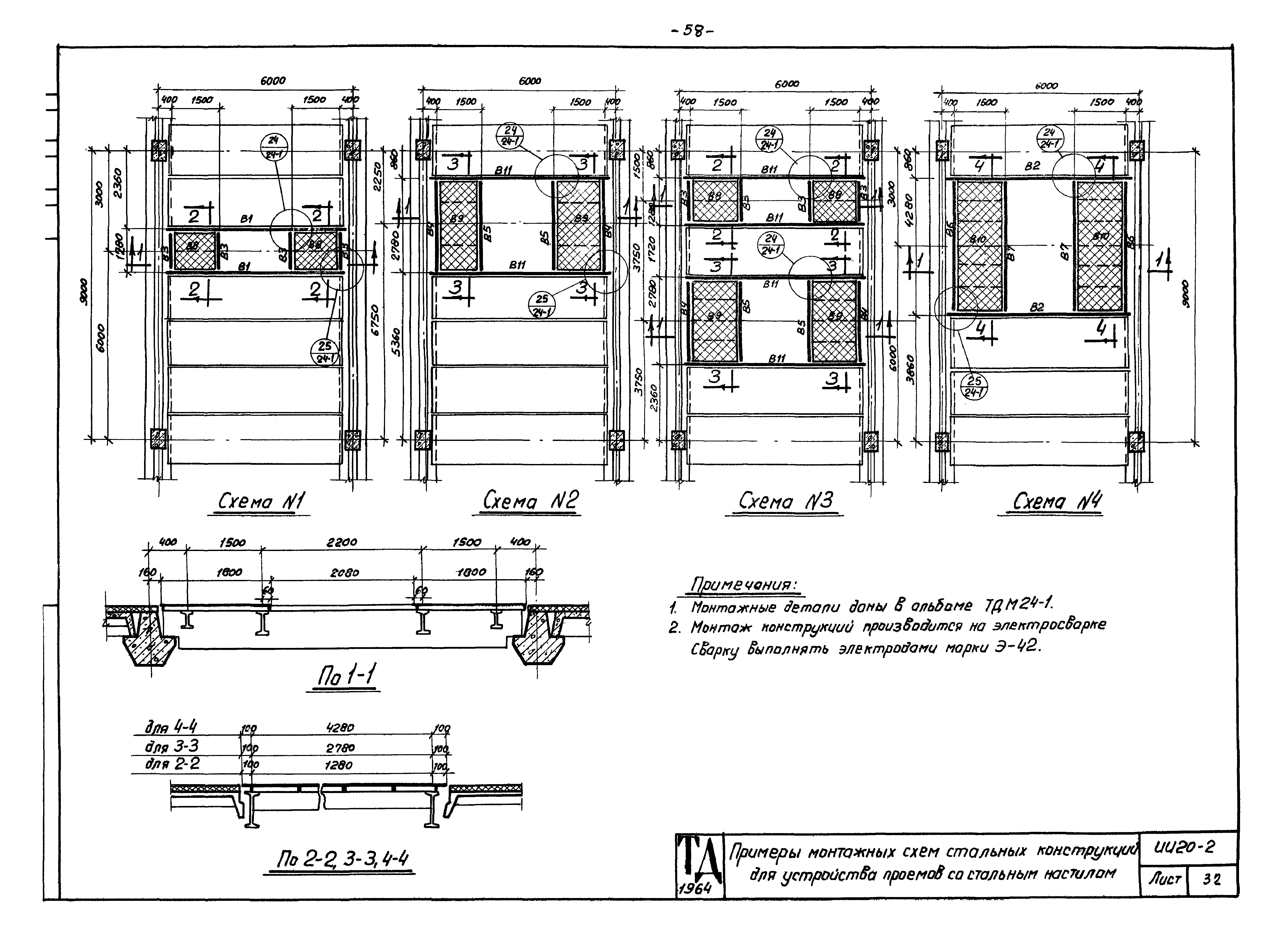
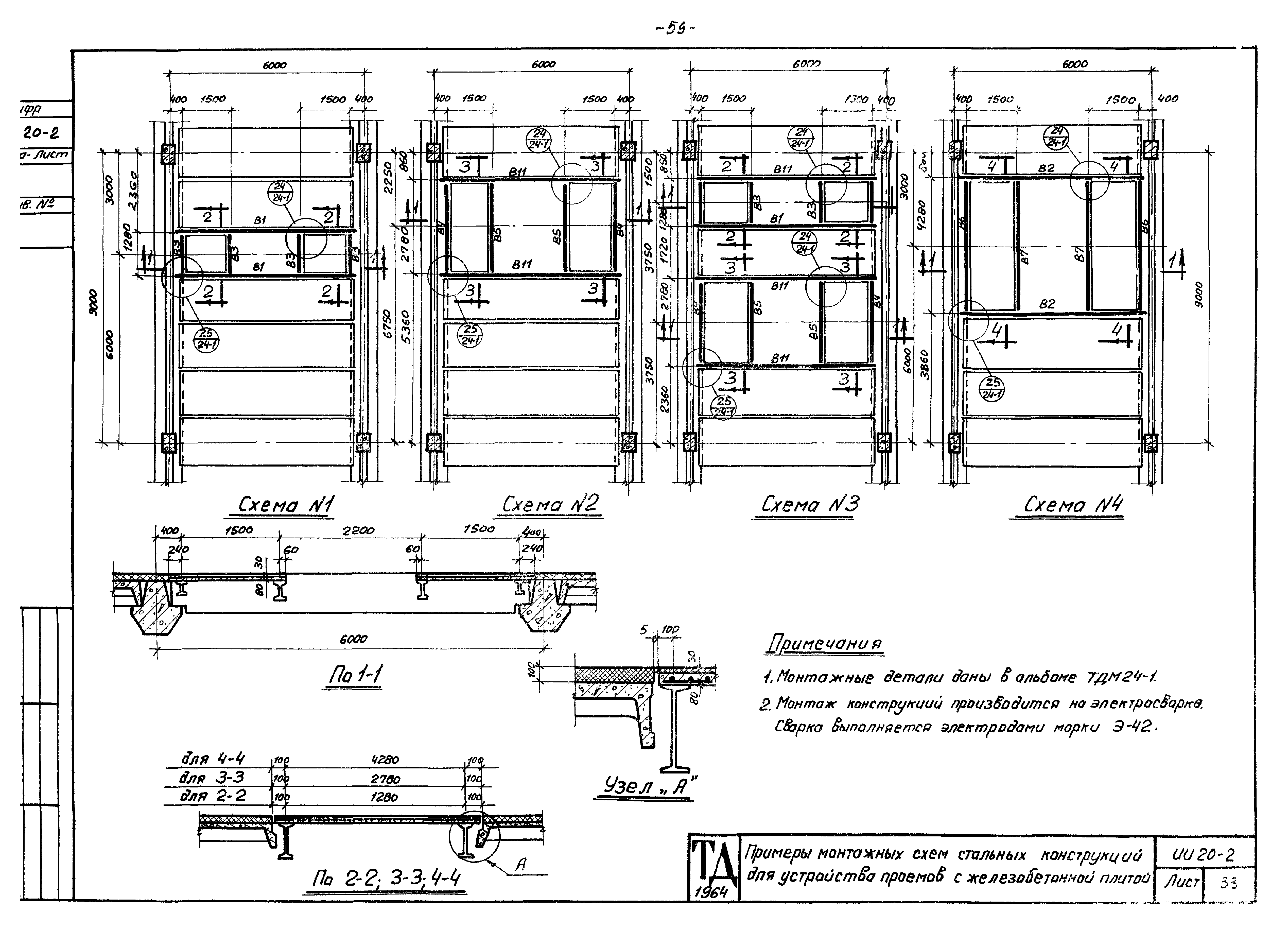
| Оглавление: | 1. Введение 2. Состав рабочих чертежей конструкций для зданий с сеткой колонн 9х6 с перекрытием типа I из плит, опирающихся на полки ригелей 3. Габаритные схемы, конструктивное решение 4. Сборные железобетонные изделия 5. Продольная устойчивость зданий, связи 6. Нагрузки на каркасы зданий 7. Основные расчетные положения 8. Общие указания по монтажу конструкций 9. Применение конструкций в зданиях с агрессивной средой 10. Применение конструкций в условиях низких температур 11. Указания по выбору несущих конструкций каркаса 12. Указания по применению рабочих чертежей 13. Маркировка железобетонных изделий 14. Показатели расхода материалов 15. Монтажные схемы рам 16. Монтажные схемы связей 17. Монтажные схемы раскладки плит междуэтажных перекрытий и покрытия 18. Примеры монтажных схем стальных конструкций для устройства проемов Приложение. Нагрузки на фундаменты колонн |
| Разработан: | ЦНИИпромзданий НИИЖБ Моспроект ГСПИ-10 ГСПИ-5 |
| Утверждён: | 29.08.1964 Государственный комитет СССР по делам строительства (151) |






































































