Скачать Серия 5.407-44 Выпуск 0. Материалы для проектированияДата актуализации: 01.01.2021
|
| Обозначение: | Серия 5.407-44 |
| Обозначение англ: | Series 5.407-44 |
| Статус: | заменен |
| Название рус.: | Выпуск 0. Материалы для проектирования |
| Дата добавления в базу: | 01.10.2014 |
| Дата актуализации: | 01.01.2021 |
| Дата введения: | 09.12.1983 |
| Дата окончания срока действия: | 01.03.1991 |
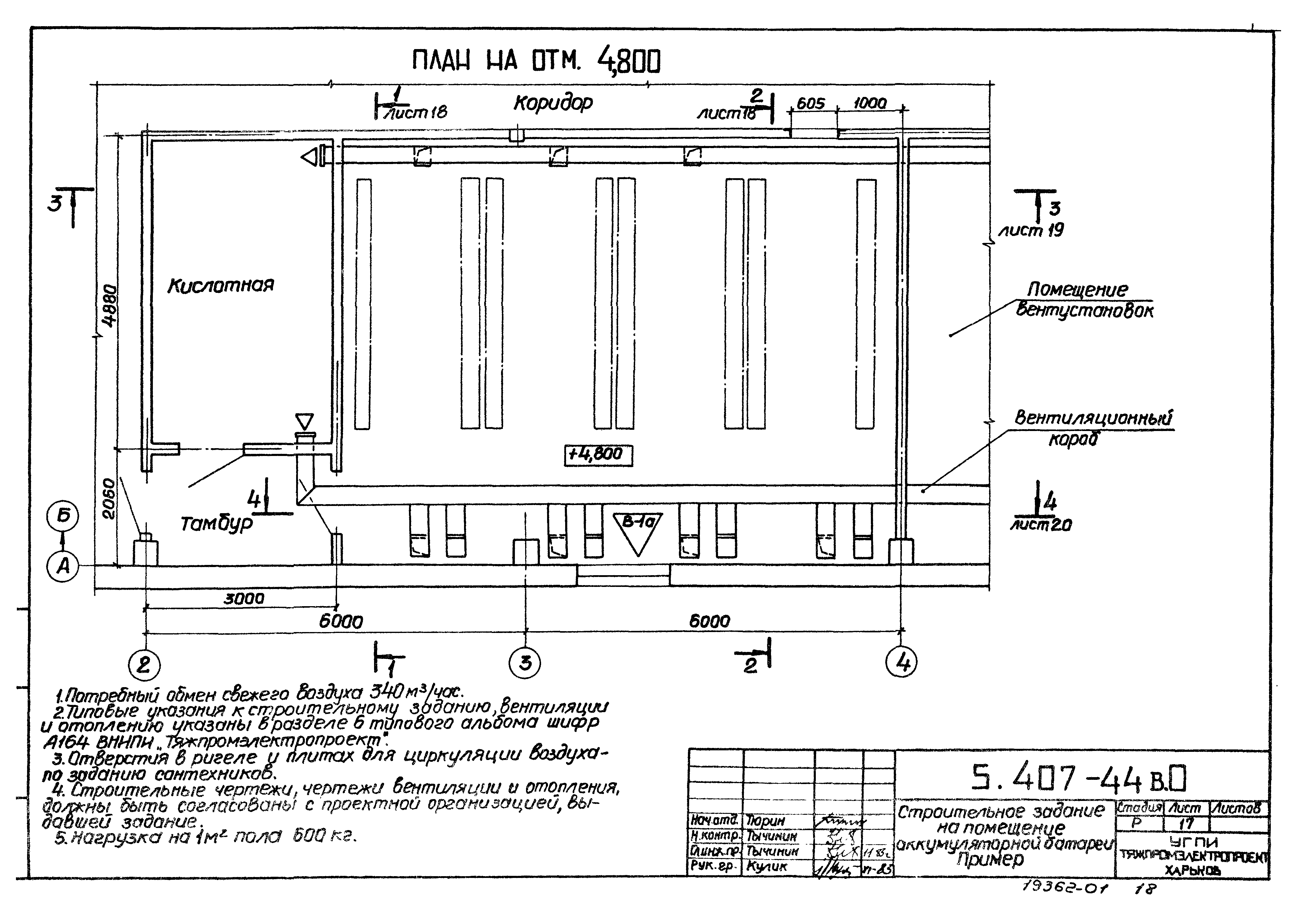
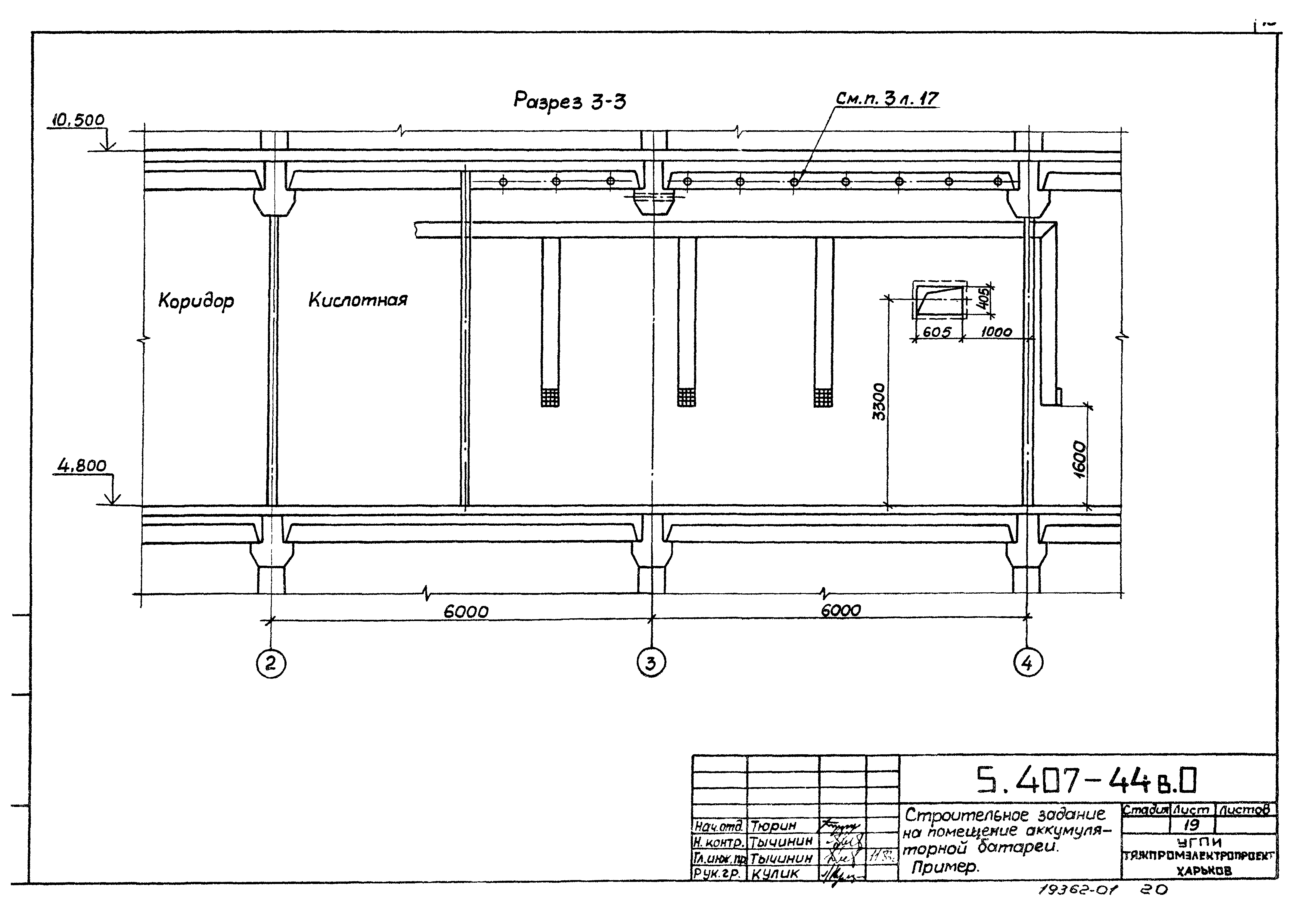
| Оглавление: | Содержание Общие указания Таблица выбора чертежей типовой серии Сводная ведомость материалов и изделий Установка аккумуляторной батареи 220 В. Пример Строительное задание на помещение аккумуляторной батареи. Пример |
| Разработан: | УГПИ Тяжпромэлектропроект Минмонтажспецстроя УССР |
| Утверждён: | 09.12.1983 Минмонтажспецстрой СССР (USSR Minmontazhspetsstroy ) |
| Издан: | ЦИТП Госстроя СССР (CITP, Gosstroy (USSR) 1988 г. ) |
| Заменяет собой: |
|
| Чем заменён: |





















