Скачать Серия 5.407-46 Выпуск 0. Материалы для проектированияДата актуализации: 01.01.2021
|
| Обозначение: | Серия 5.407-46 |
| Обозначение англ: | Series 5.407-46 |
| Статус: | заменен |
| Название рус.: | Выпуск 0. Материалы для проектирования |
| Дата добавления в базу: | 01.10.2014 |
| Дата актуализации: | 01.01.2021 |
| Дата введения: | 01.03.1984 |
| Дата окончания срока действия: | 01.12.1985 |
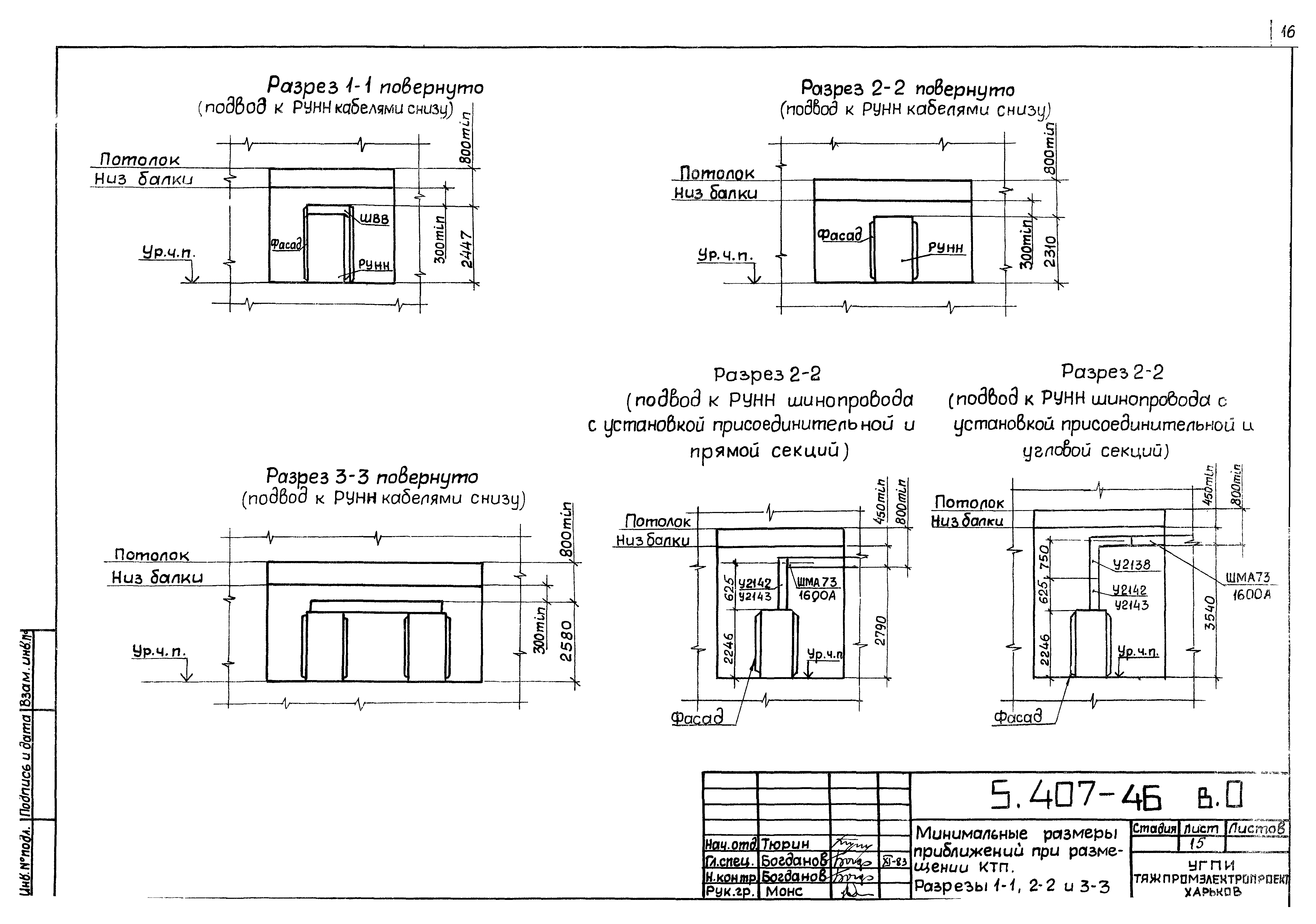
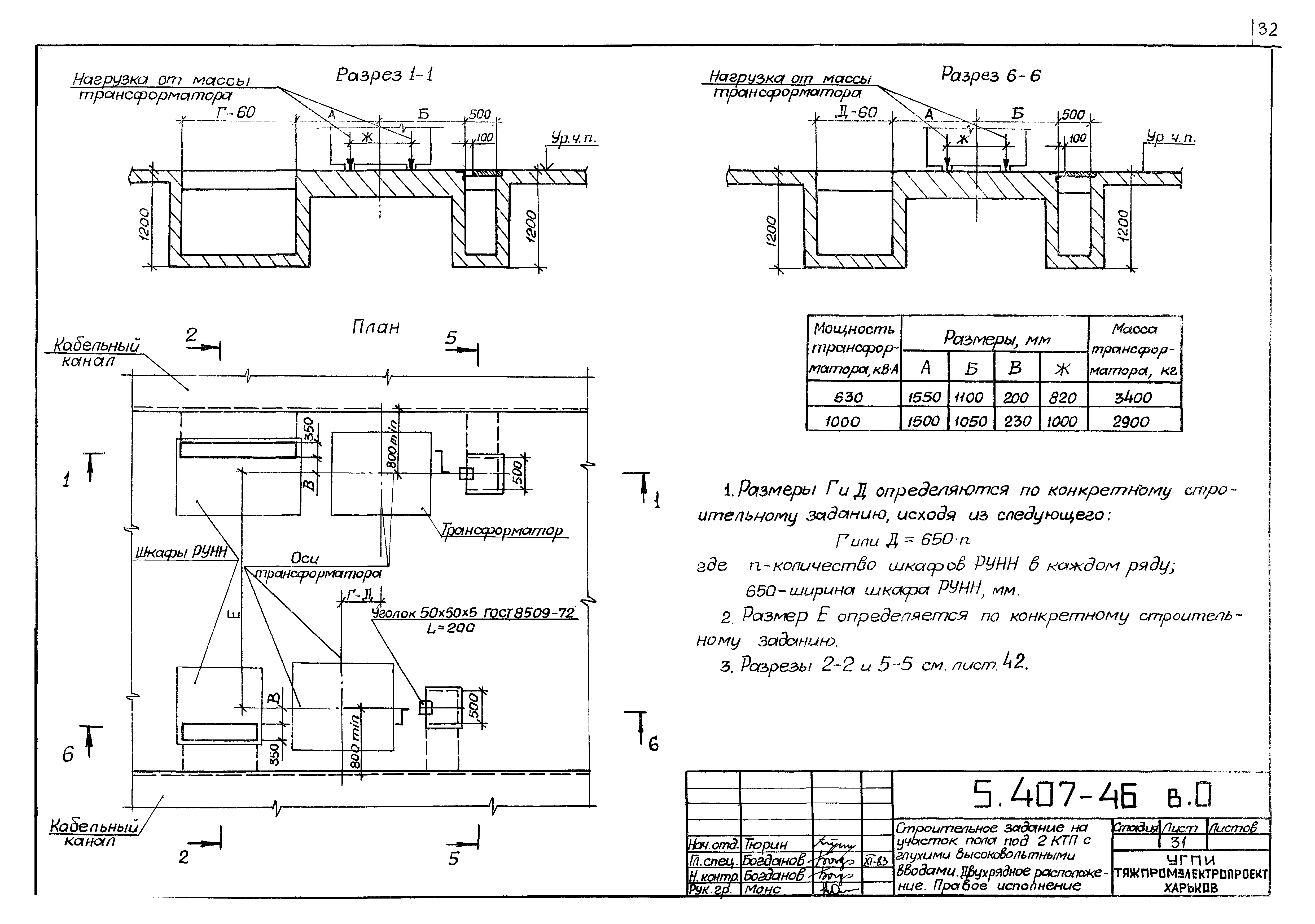
| Оглавление: | Содержание Общие указания Таблицы выбора чертежей строительных заданий для КТП-630-10-81У3 и КТП-1000-10-81У3 КТП-630-10-81У3 и КТП-1000-10-81У3. Габаритный чертеж Минимальные размеры приближений при размещении КТП. Разрезы 1-1, 2-2, 3-3 Сводная ведомость изделий и материалов Строительное задание на подстанцию 4ТП Строительное задание на подстанцию 5ТП Строительное задание на подстанцию 6ТП Расположение электрооборудования в помещении подстанции 4ТП Расположение подстанции 7ТП в электромашинном помещении 2ЭМП Строительное задание на участок пола под КТП со шкафом ввода ШВВ-1У3. Левое исполнение Строительное задание на участок пола под КТП со шкафом ввода ШВВ-1У3. Правое исполнение Строительное задание на участок пола под КТП с глухим высоковольтным вводом. Левое исполнение Строительное задание на участок пола под КТП с глухим высоковольтным вводом. Правое исполнение Строительное задание на участок пола под 2КТП со шкафом ввода ШВВ-1У3. Однорядное расположение Строительное задание на участок пола под 2КТП с глухими высоковольтными вводами. Однорядное расположение Строительное задание на участок пола под 2КТП со шкафом ввода ШВВ-1У3. Двухрядное расположение. Левое исполнение Строительное задание на участок пола под 2КТП со шкафом ввода ШВВ-1У3. Двухрядное расположение. Правое исполнение Строительное задание на участок пола под 2КТП с глухими высоковольтными вводами. Двухрядное расположение. Левое исполнение Строительное задание на участок пола под 2КТП с глухими высоковольтными вводами. Двухрядное расположение. Правое исполнение Строительное задание на участок перекрытия под КТП со шкафом ввода ШВВ-1У3. Левое исполнение Строительное задание на участок перекрытия под КТП со шкафом ввода ШВВ-1У3. Правое исполнение Строительное задание на участок перекрытия под КТП с глухим высоковольтным вводом. Левое исполнение Строительное задание на участок перекрытия под КТП с глухим высоковольтным вводом. Правое исполнение Строительное задание на участок перекрытия под 2КТП со шкафами ввода ШВВ-1У3. Однорядное расположение Строительное задание на участок перекрытия под 2КТП с глухими высоковольтными вводами. Однорядное расположение Строительное задание на участок перекрытия под 2КТП со шкафами ввода ШВВ-1У3. Двухрядное расположение. Левое исполнение Строительное задание на участок перекрытия под 2КТП со шкафами ввода ШВВ-1У3. Двухрядное расположение. Правое исполнение Строительное задание на участок перекрытия под 2КТП с глухими высоковольтными вводами. Двухрядное расположение. Левое исполнение Строительное задание на участок перекрытия под 2КТП с глухими высоковольтными вводами. Двухрядное расположение. Правое исполнение Строительное задание. Разрезы 2-2, 3-3, 4-4, 5-5 и 8-8 |
| Разработан: | УГПИ Тяжпромэлектропроект Минмонтажспецстроя УССР |
| Утверждён: | 01.11.1983 Тяжпромэлектропроект |
| Чем заменён: |
|










































