Скачать Типовые проектные решения А-IV-600-0480.90 Альбом 3. Конструкции железобетонныеДата актуализации: 01.01.2021
|
| Обозначение: | Типовые проектные решения А-IV-600-0480.90 |
| Обозначение англ: | А-IV-600-0480.90 |
| Статус: | справочные материалы, мп, тпр |
| Название рус.: | Альбом 3. Конструкции железобетонные |
| Дата добавления в базу: | 01.10.2014 |
| Дата актуализации: | 01.01.2021 |
| Дата введения: | 14.12.1990 |
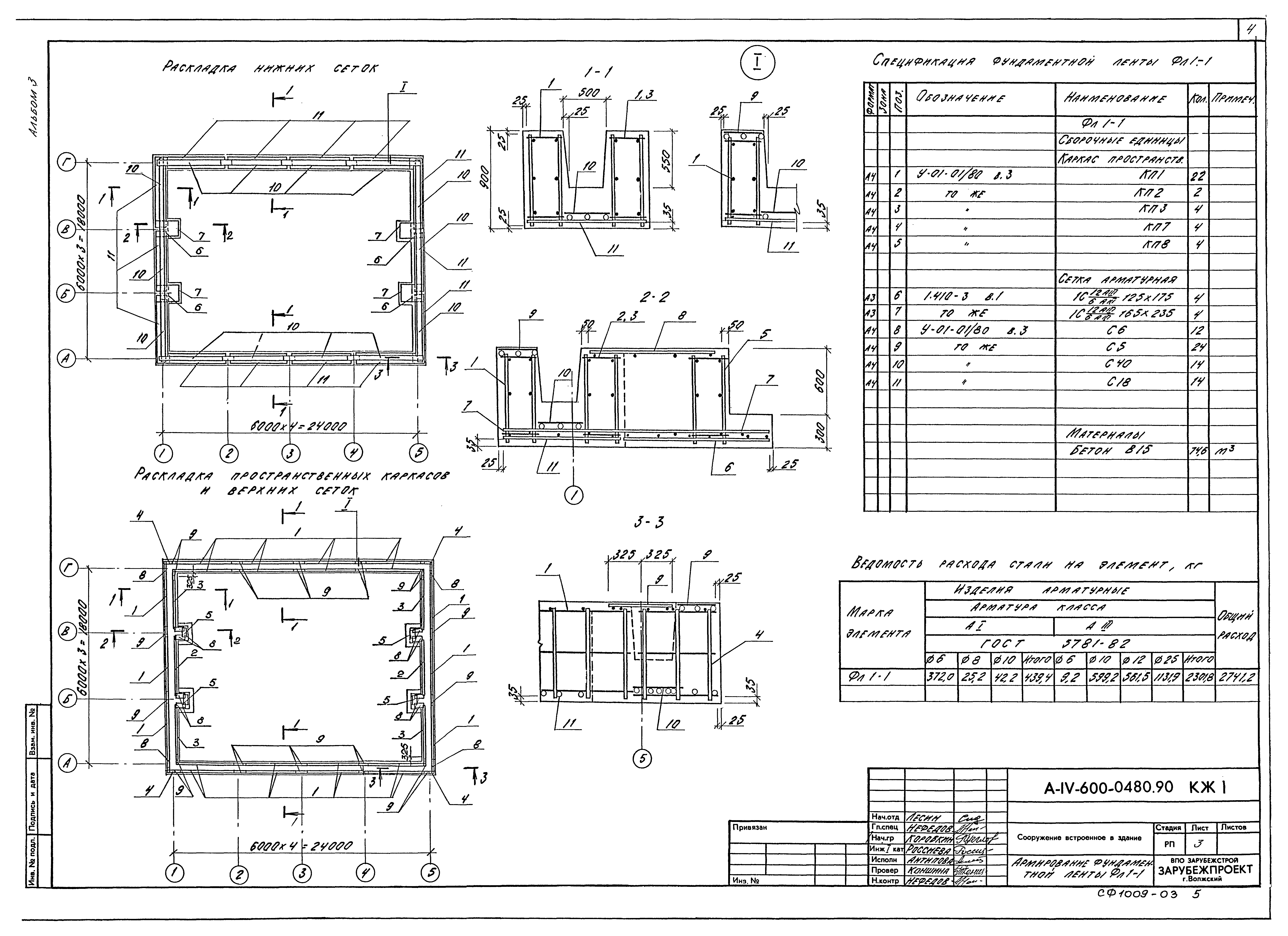
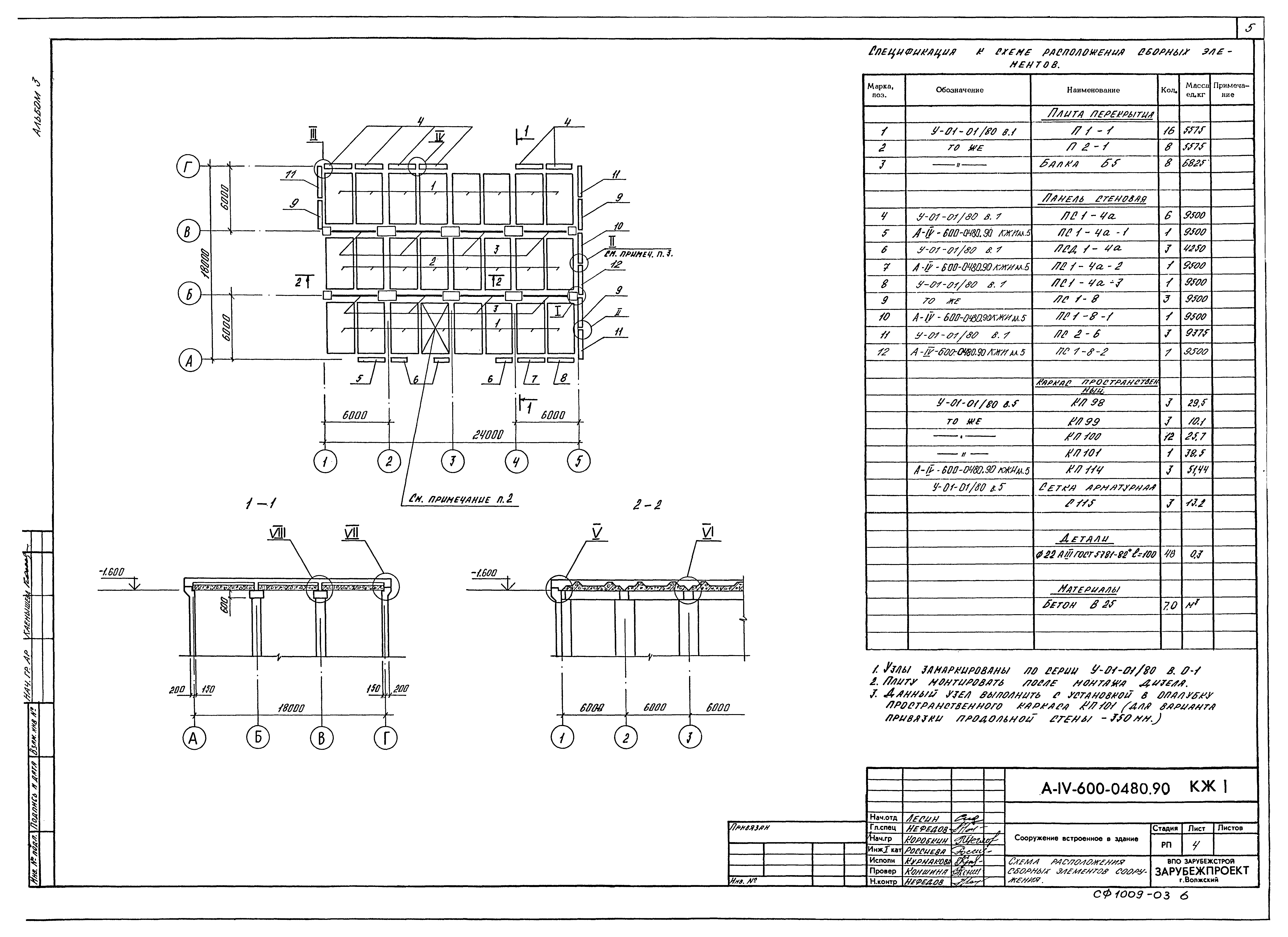
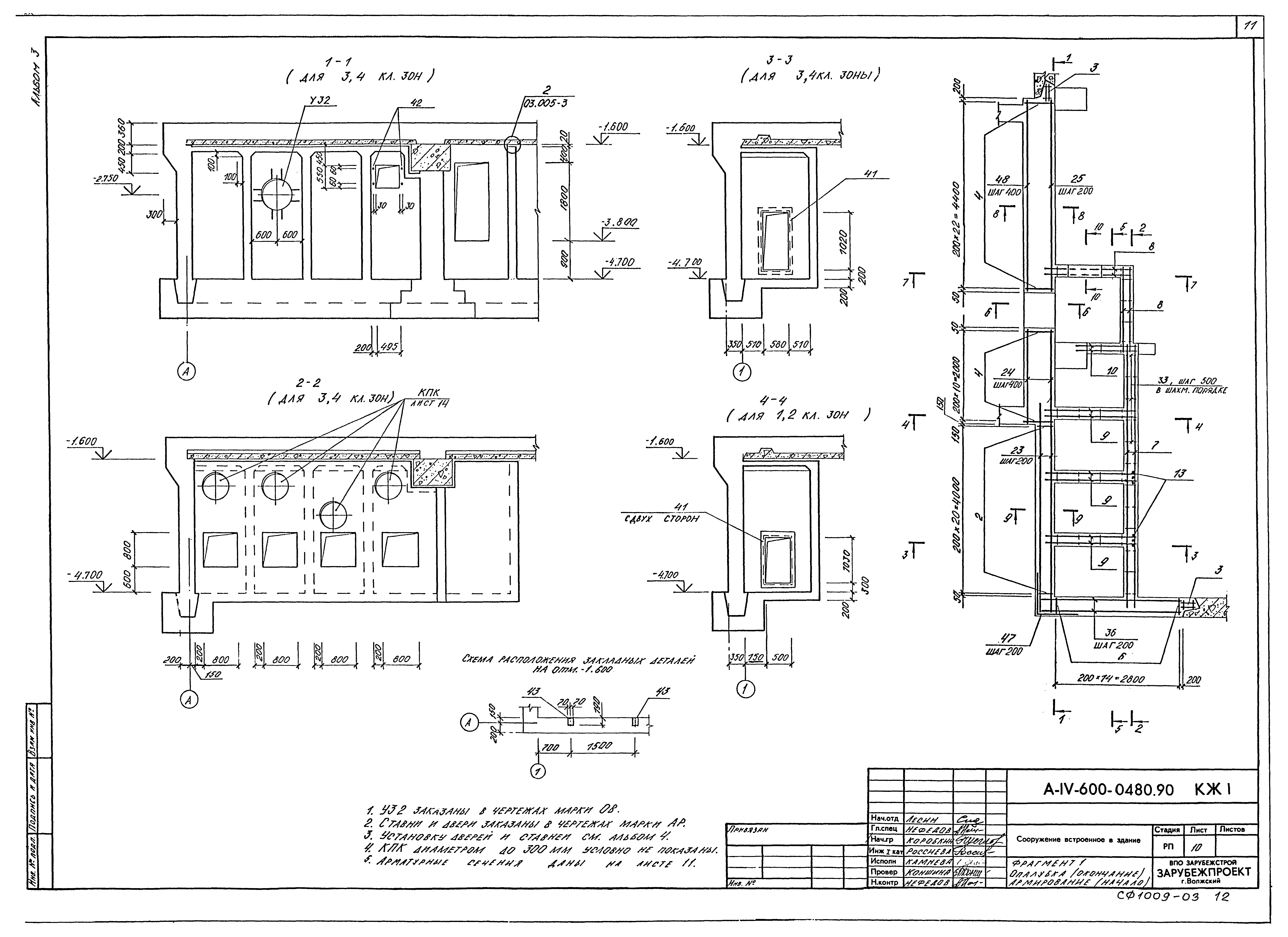
| Оглавление: | Общие данные Схема расположения фундаментов и колонн Армирование фундаментной ленты Схема расположения сборных элементов сооружения Расширительные камеры ДЭС. Опалубка Расширительные камеры ДЭС. Армирование Расширительные камеры ДЭС. Спецификация. Узлы А, Б. Ведомость расхода стали Фрагмент 1. Опалубка Фрагмент 1. Армирование Фрагмент 1. Спецификация Схема расположения узлов ввода коммуникаций |
| Разработан: | Зарубежпроект |
| Утверждён: | 12.12.1990 Штаб гражданской обороны СССР (USSR Civil Defense Headquarters ) |















