Скачать Типовые проектные решения А-IV-600-0480.90 Альбом 7. Часть 1. Силовое электрооборудование. Автоматизация водопровода и канализации. Электроосвещение. Связь и сигнализацияДата актуализации: 01.01.2021
|
| Обозначение: | Типовые проектные решения А-IV-600-0480.90 |
| Обозначение англ: | А-IV-600-0480.90 |
| Статус: | справочные материалы, мп, тпр |
| Название рус.: | Альбом 7. Часть 1. Силовое электрооборудование. Автоматизация водопровода и канализации. Электроосвещение. Связь и сигнализация |
| Дата добавления в базу: | 01.10.2014 |
| Дата актуализации: | 01.01.2021 |
| Дата введения: | 14.12.1990 |
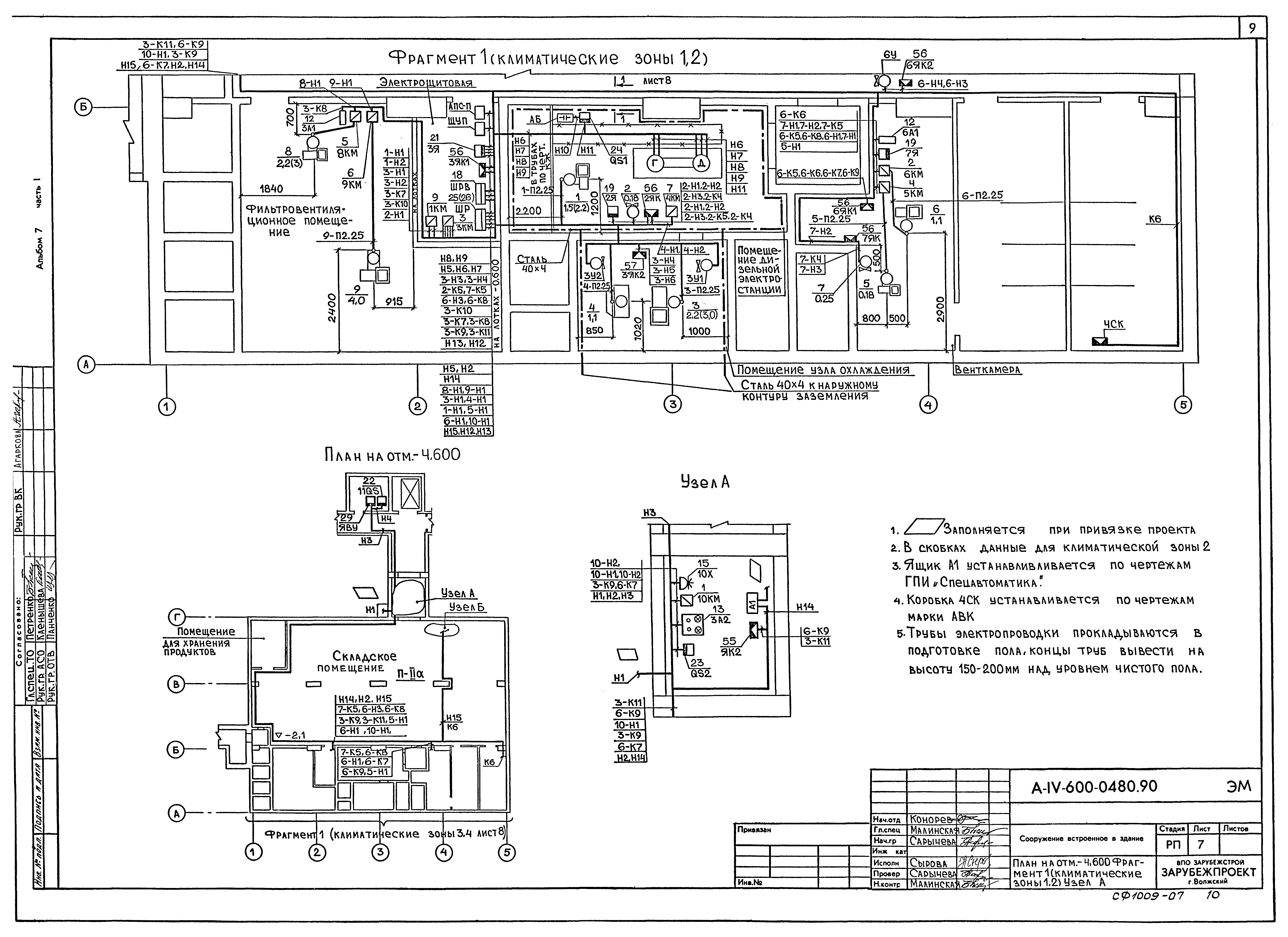
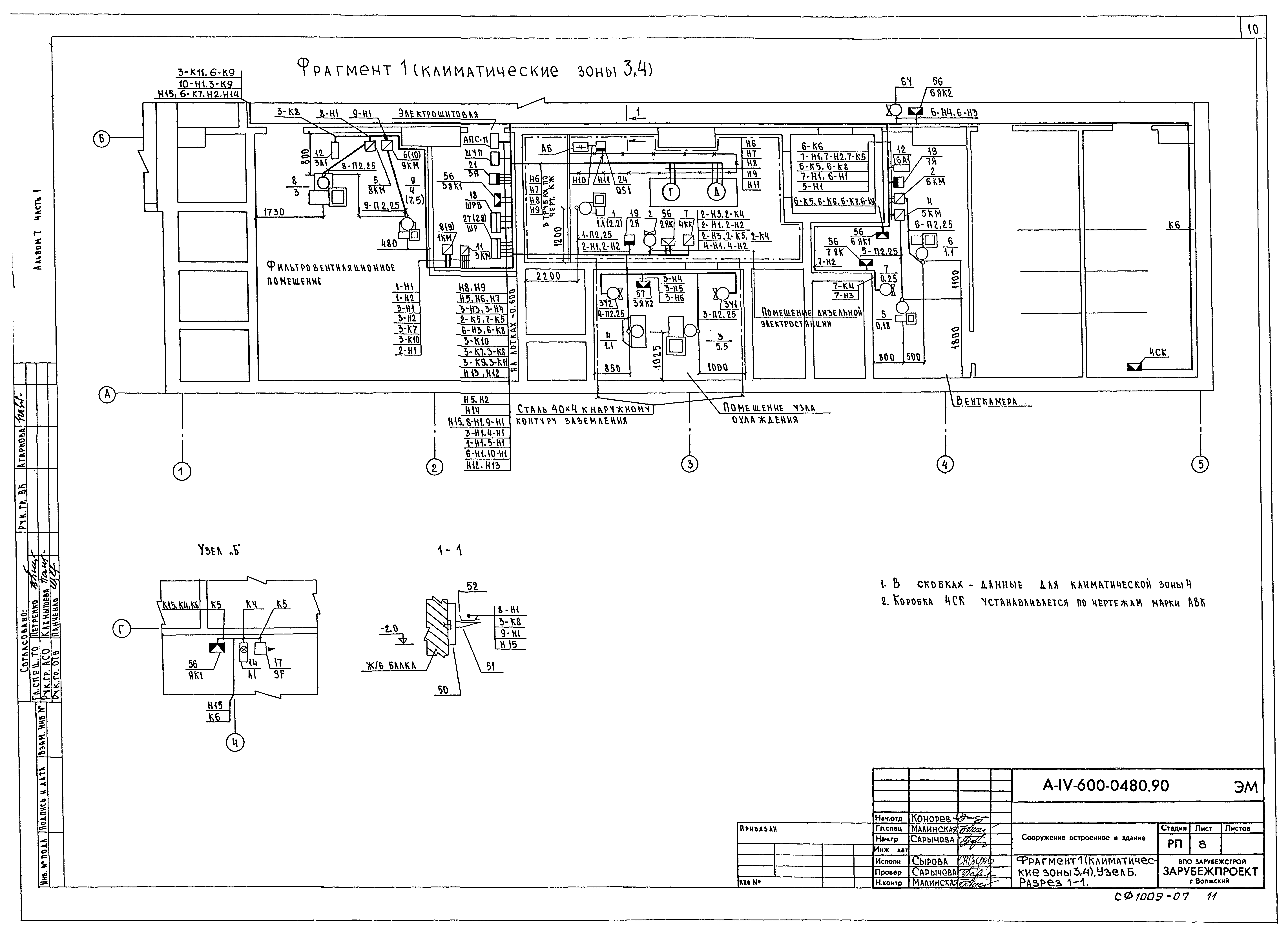
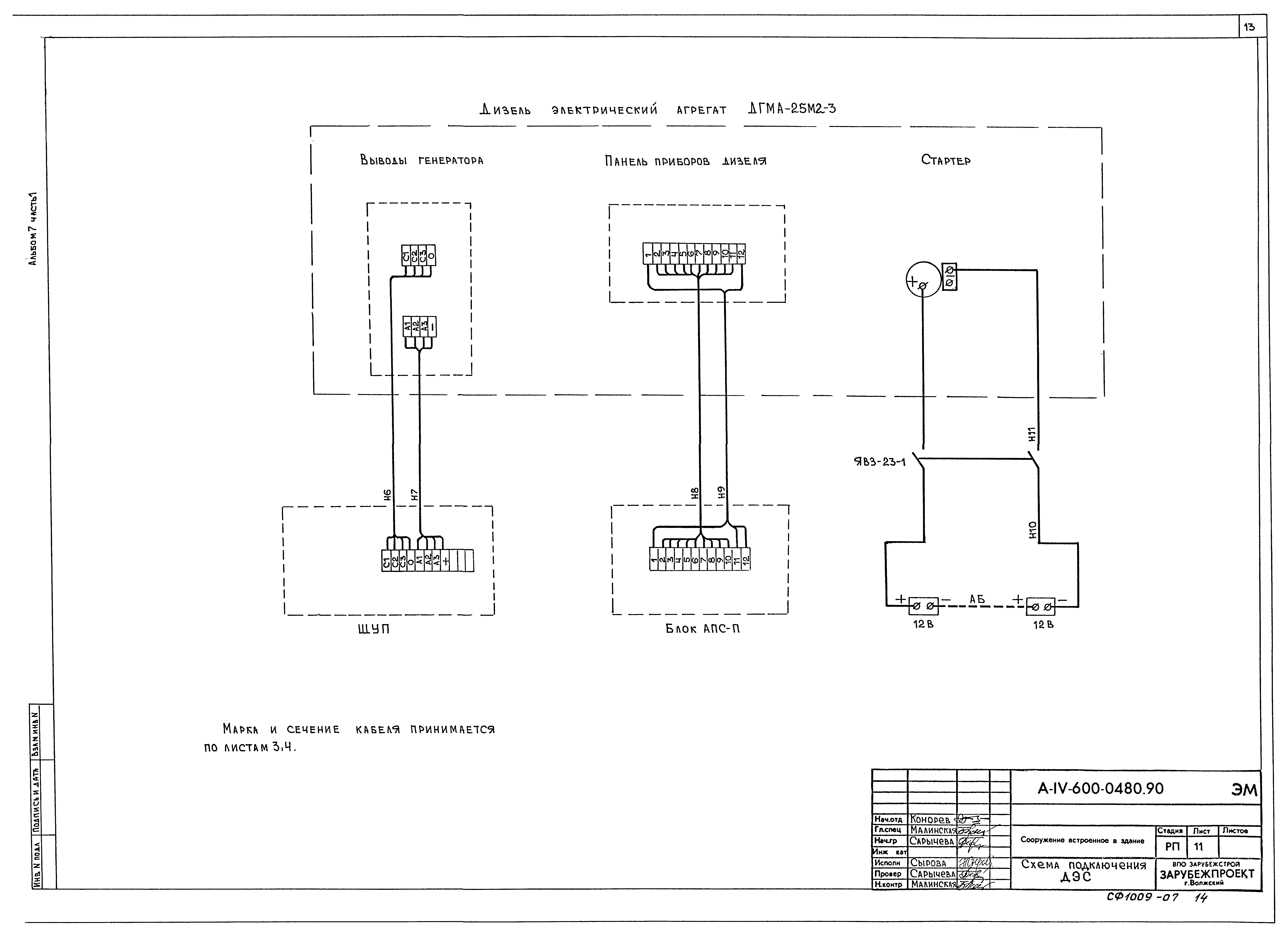
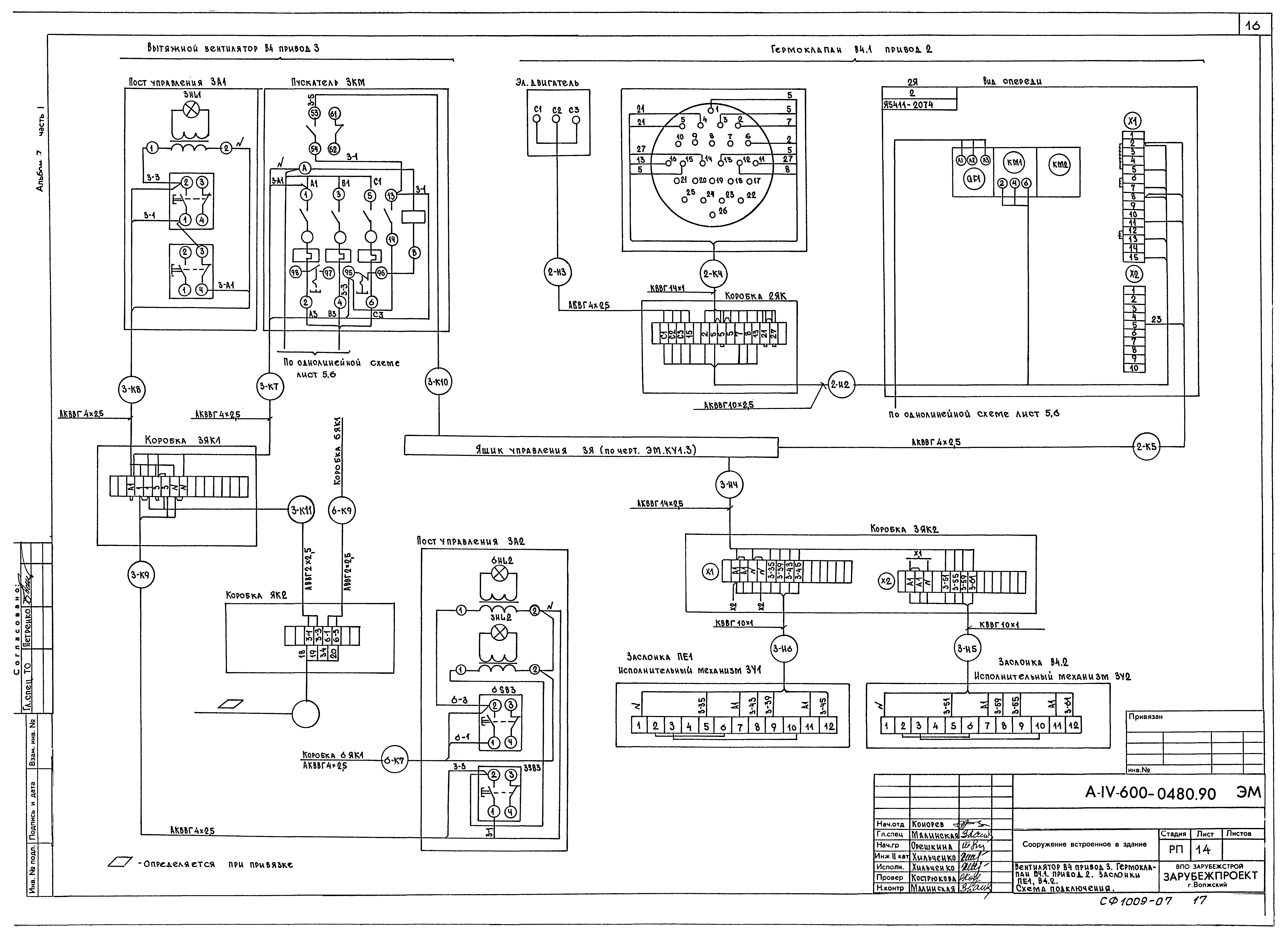
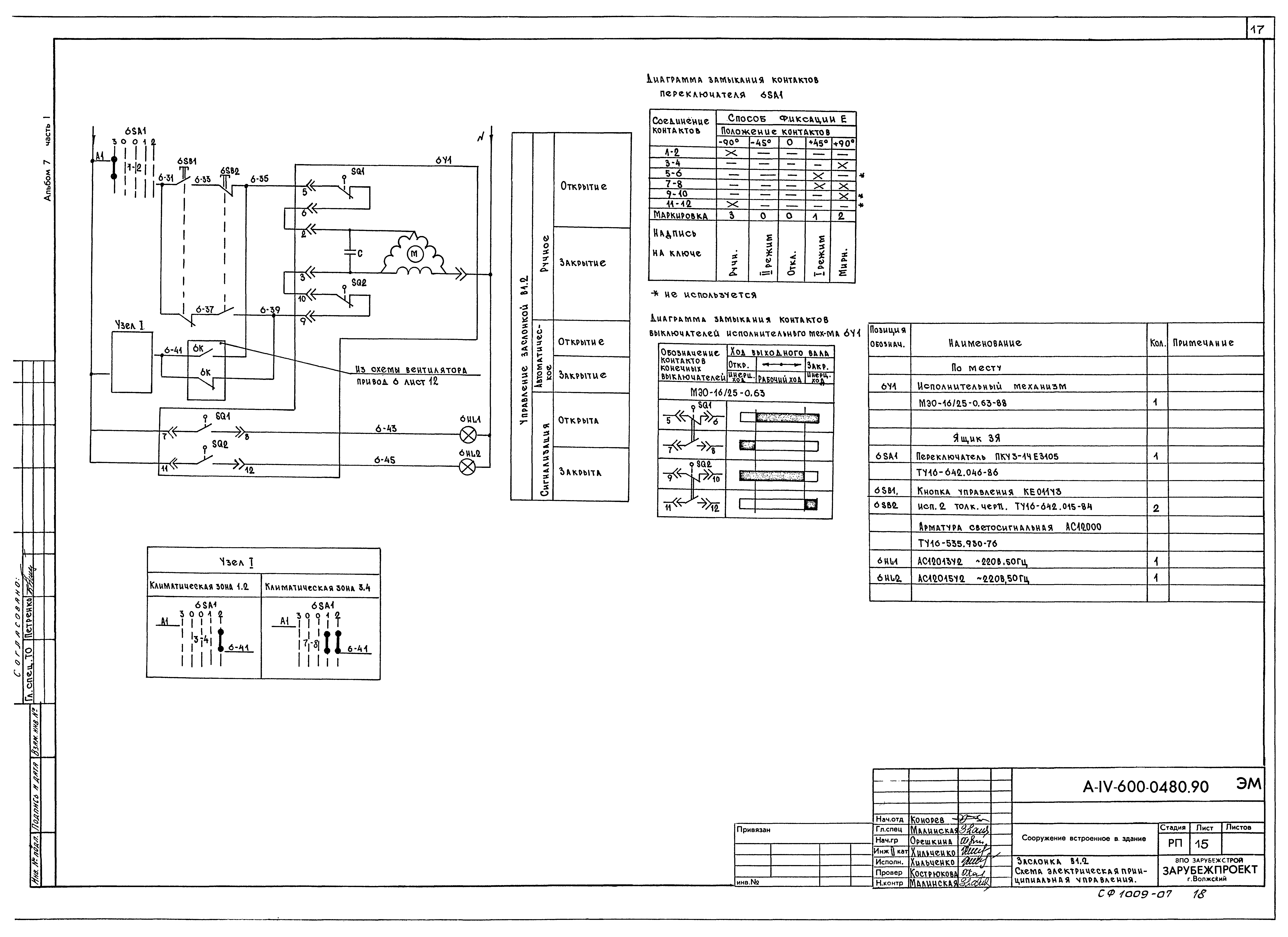
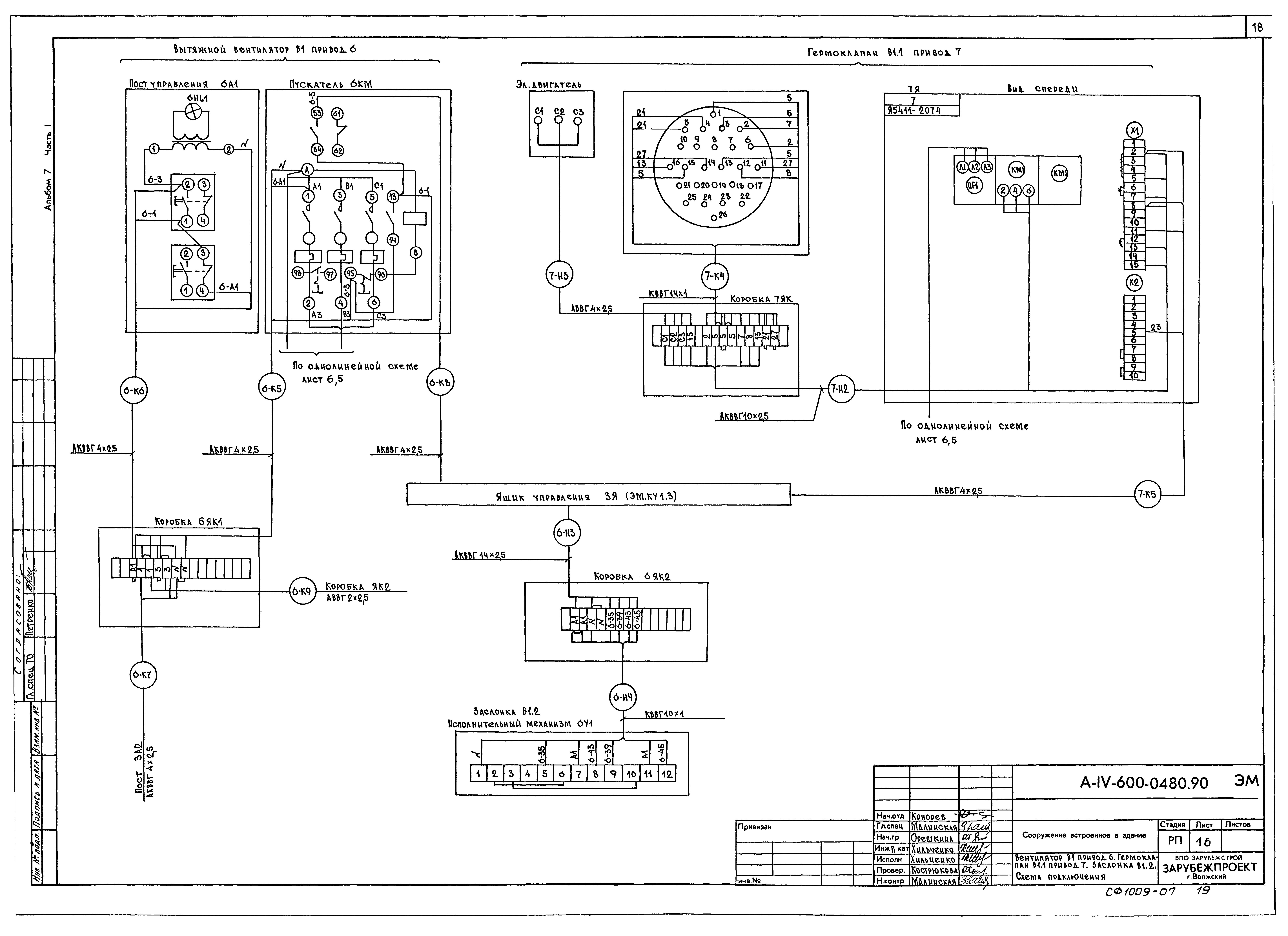
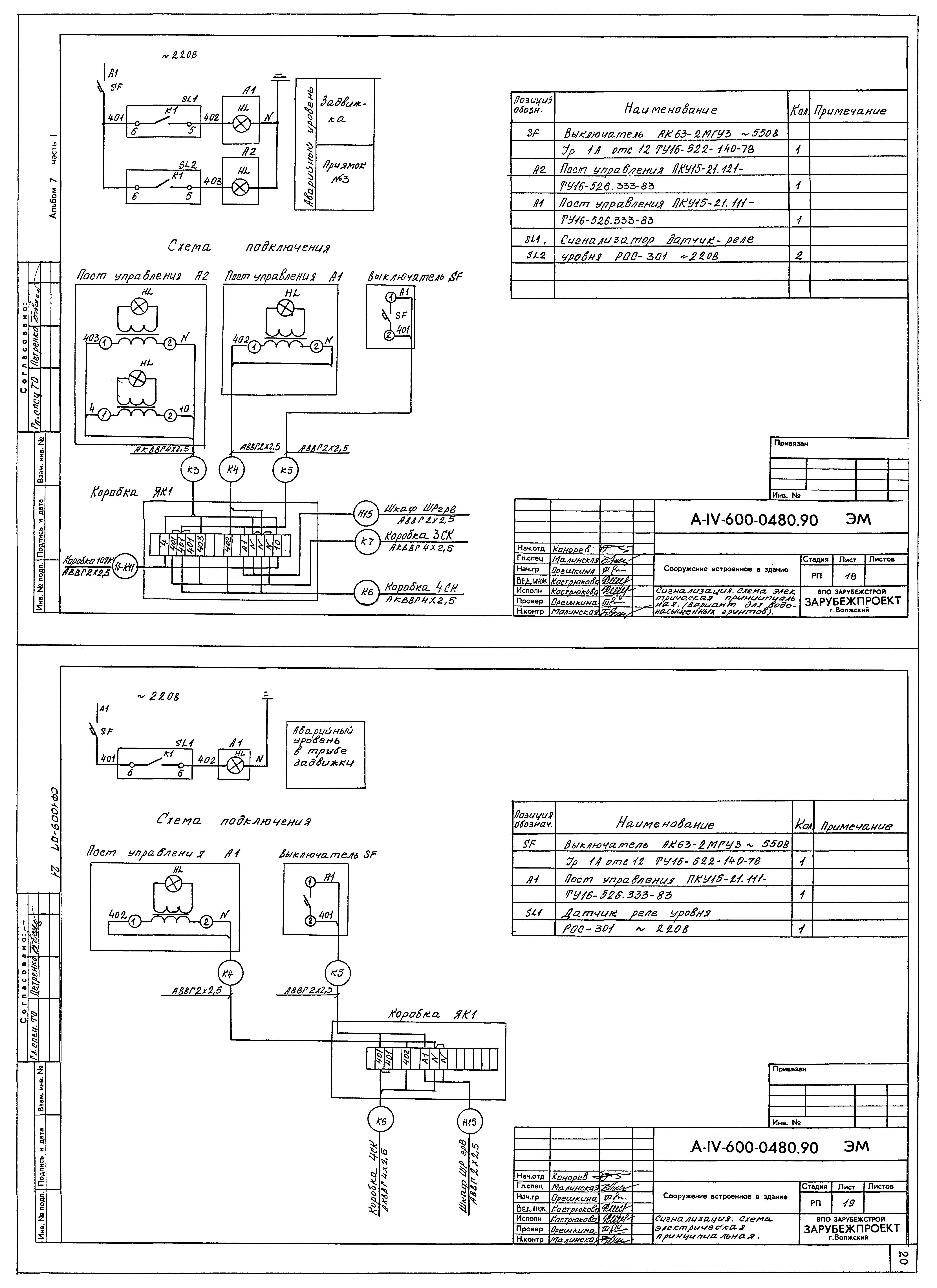
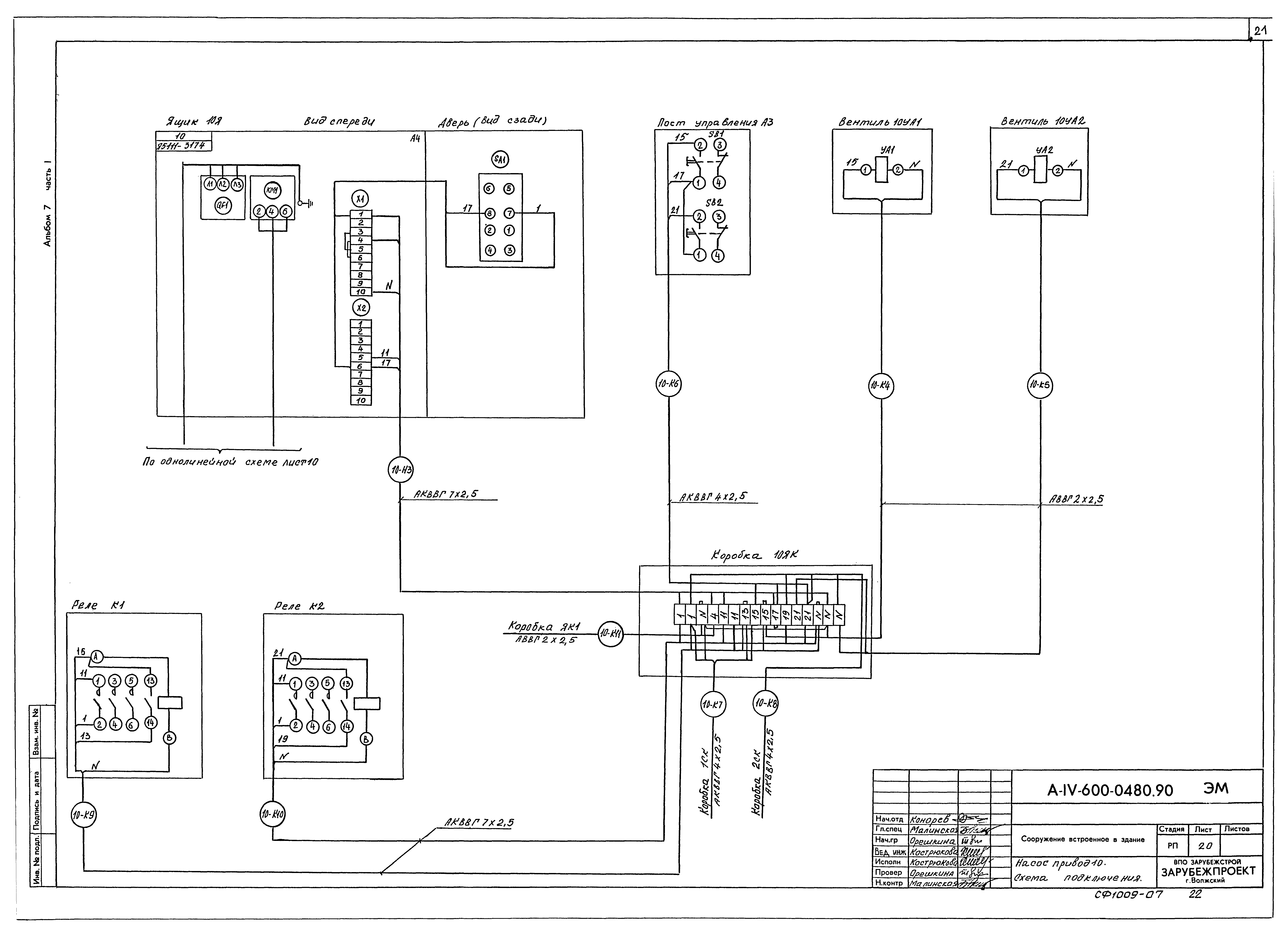
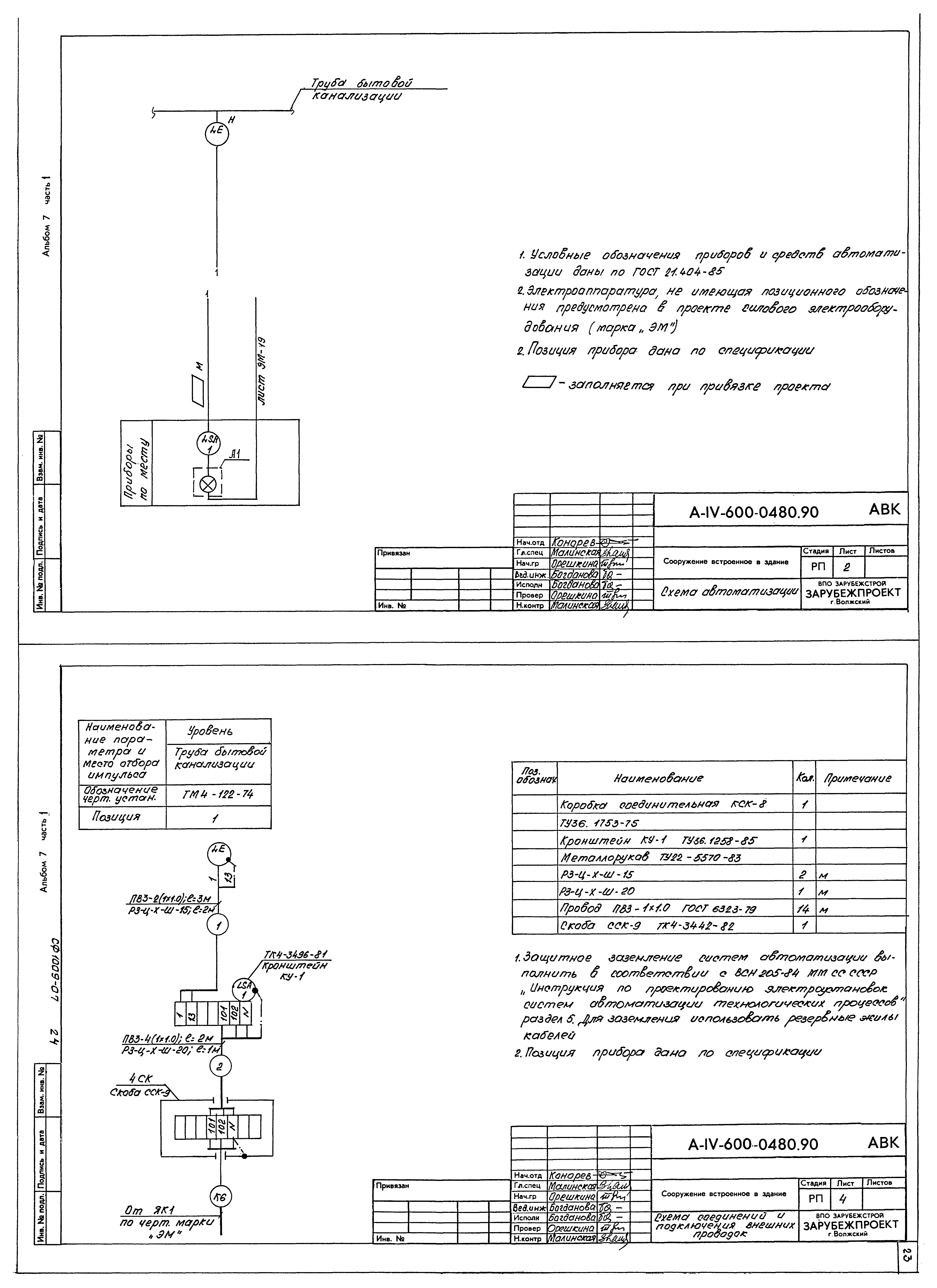
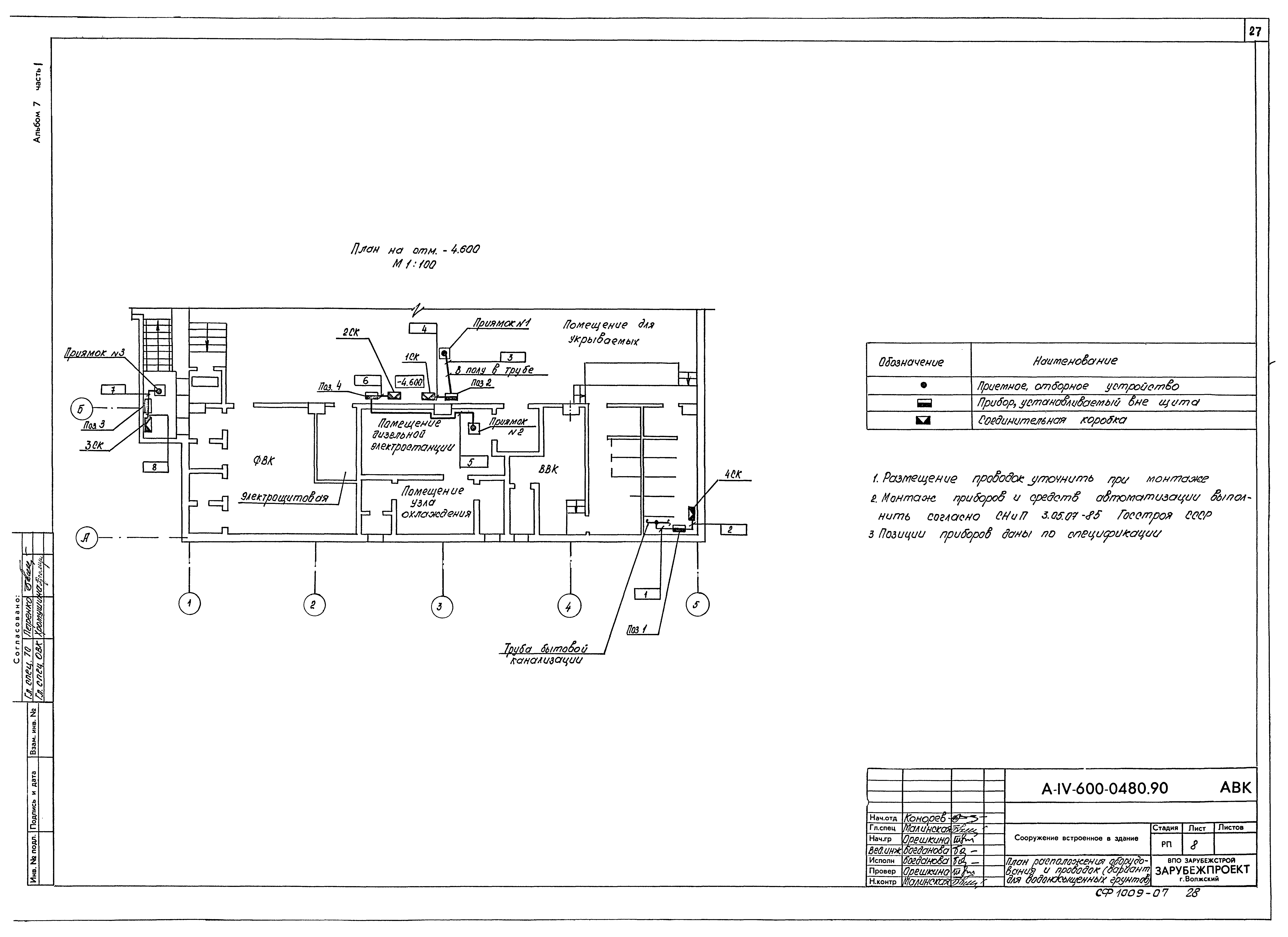
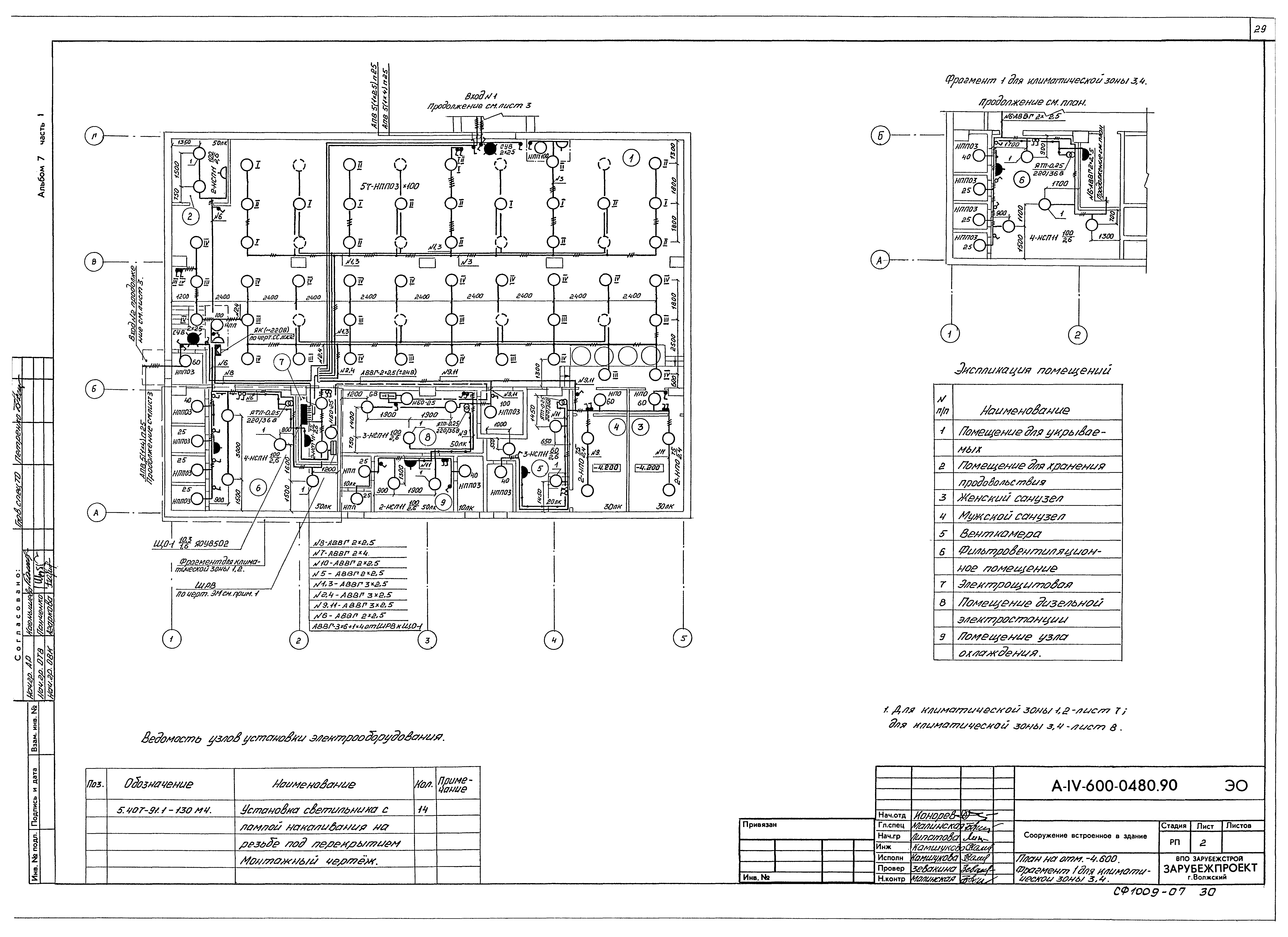
| Оглавление: | Силовое электрооборудование Общие данные Схема однолинейная принципиальная магистральных сетей 0,4 кВ (ВРУ1). Климатические зоны 1, 2 Схема однолинейная принципиальная магистральных сетей 0,4 кВ (ВРУ1). Климатические зоны 3, 4 Схема однолинейная принципиальная распределительных сетей 0,4 кВ (ШР). Климатические зоны 1, 2 Схема однолинейная принципиальная распределительных сетей 0,4 кВ (ШР). Климатические зоны 3, 4 План на отм. - 4.600. Фрагмент 1 (климатические зоны 1, 2). Узел А Фрагмент 1 (климатические зоны 3, 4). Узел Б. Разрез 1-1 План на отм. - 4.600 (вариант для водонасыщенных грунтов) Кабельный журнал Схема подключения ДЭС Вентилятор В4(В1) привод 3(6). Гермоклапан В4.1(В1.1) привод 2(7). Схема электрическая принципиальная управления Заслонки ПЕ1, В4.2. Схема электрическая принципиальная управления Вентилятор В4. Привод 3. Гермоклапан В4.1. Привод 2. Заслонки ПЕ1.В4.2. Схема подключения Заслонка В1.2. Схема электрическая принципиальная управления Вентилятор В1. Привод 6. Гермоклапан В1.1. Привод 7. Заслонка В1.2. Схема подключения Насос привод 10. Схема электрическая принципиальная управления Сигнализация. Схема электрическая принципиальная (вариант для водонасыщенных грунтов) Сигнализация. Схема электрическая принципиальная Насос привод 10. Схема подключения Автоматизация водопровода и канализации Общие данные по рабочим чертежам Схема автоматизации Схема подключений Схема соединений и подключения внешних проводок План расположения оборудования и проводок Схема автоматизации (вариант для водонасыщенных грунтов) Схема соединений и подключения внешних проводок (вариант для водонасыщенных грунтов) План расположения оборудования и проводок (вариант для водонасыщенных грунтов) Электроосвещение Общие данные. Схема принципиальная однолинейная План на отм. - 4.600. Фрагмент 1 для климатических зон 3, 4 Планы входов № 1, 2. План на отм. 0,050 Связь и сигнализация Общие данные. Схемы скелетные План на отм. - 4.600 Схема электрическая принципиальная вызова. Схема подключения |
| Разработан: | Зарубежпроект Киевское отделение Промтрансниипроект Ростовский ГПИ Спецавтоматика |
| Утверждён: | 12.12.1990 Штаб гражданской обороны СССР (USSR Civil Defense Headquarters ) |

































