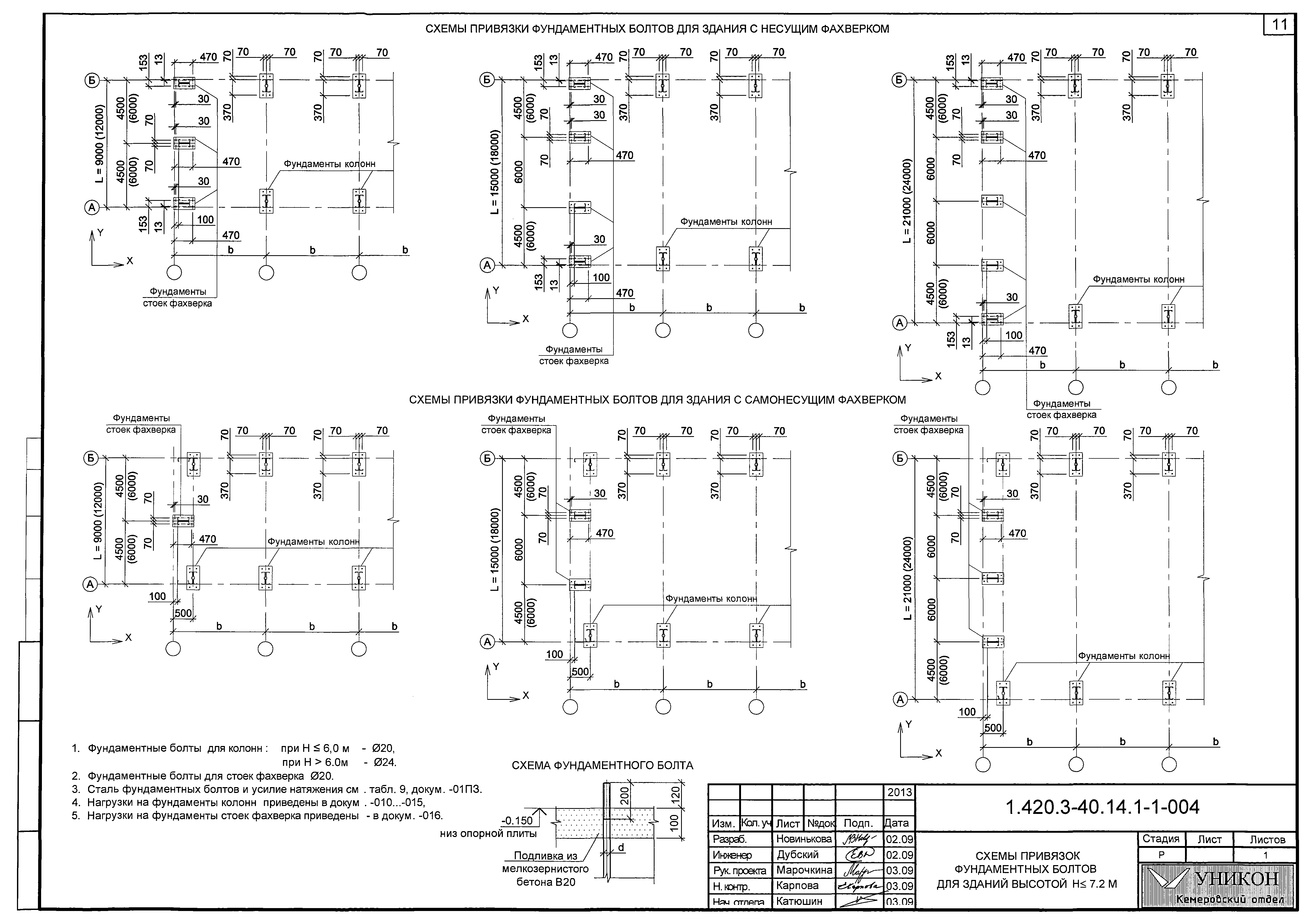
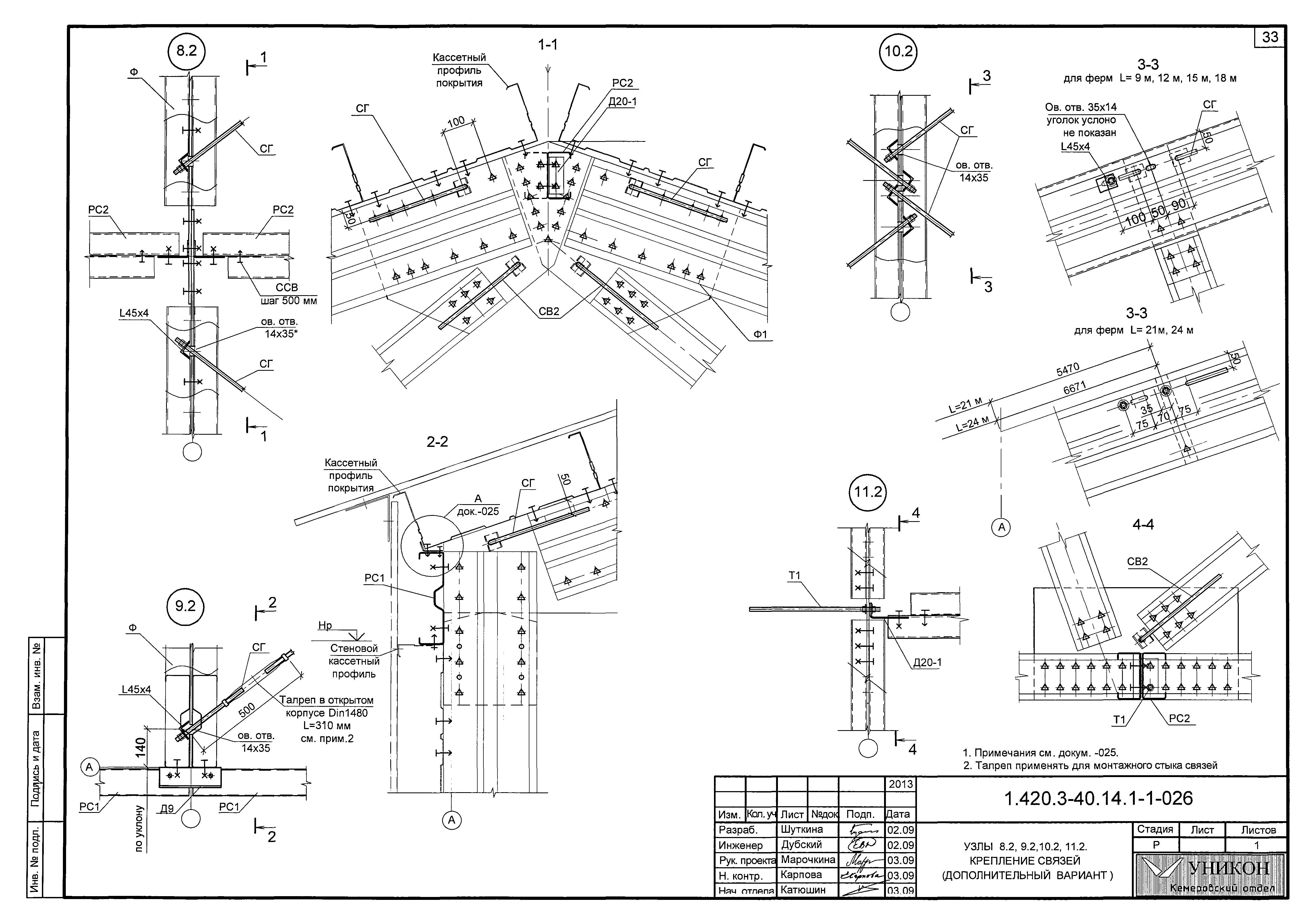
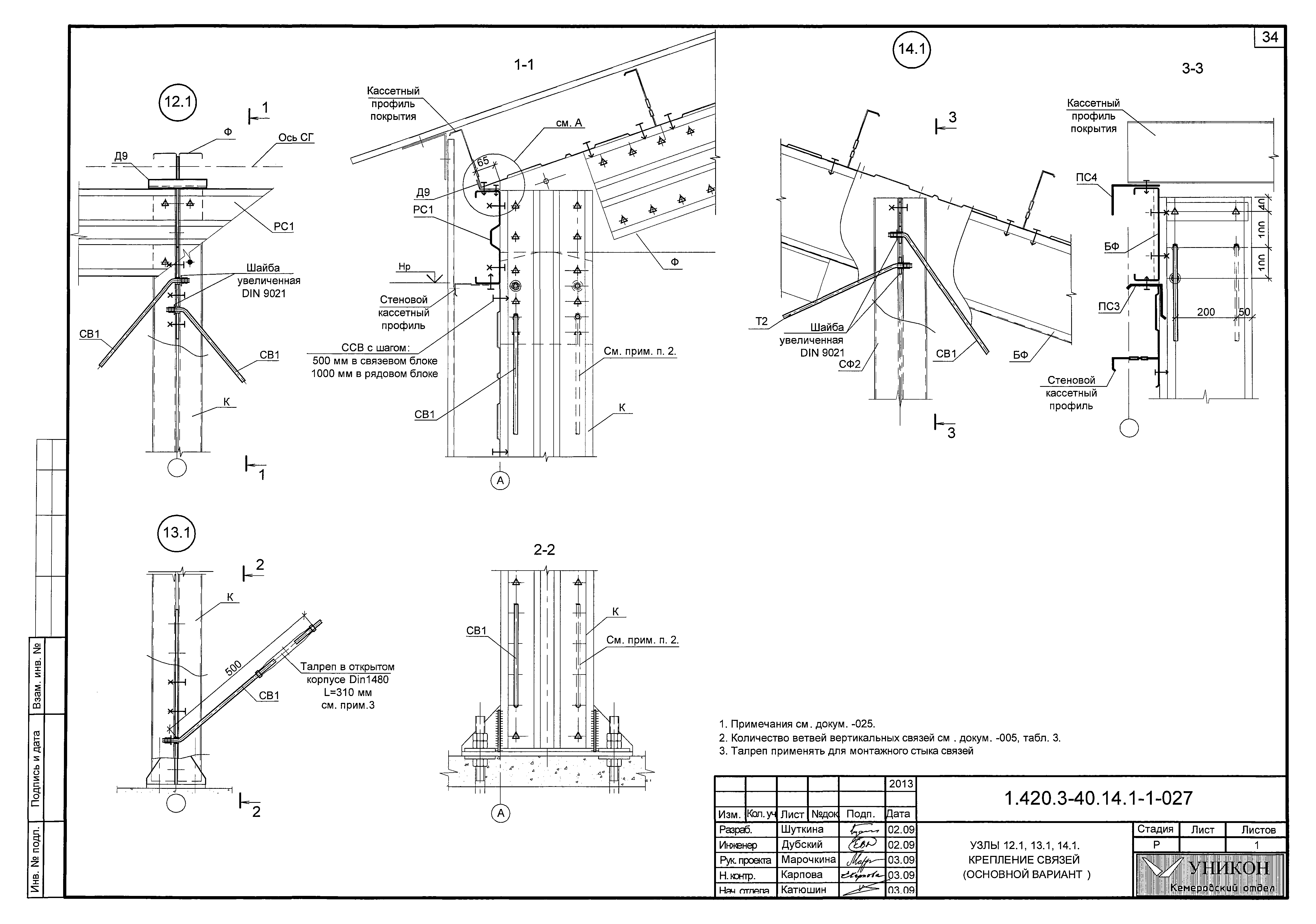
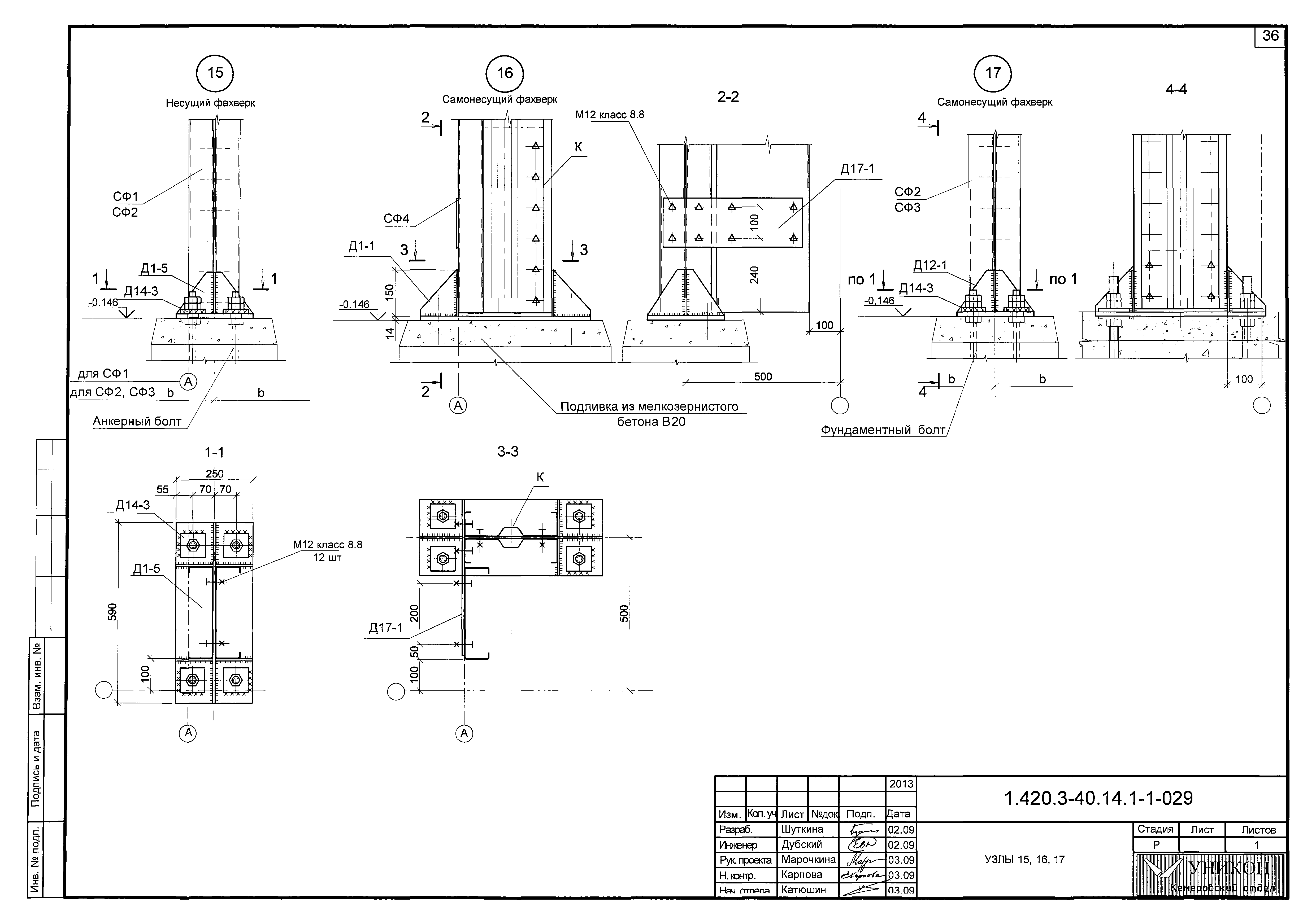
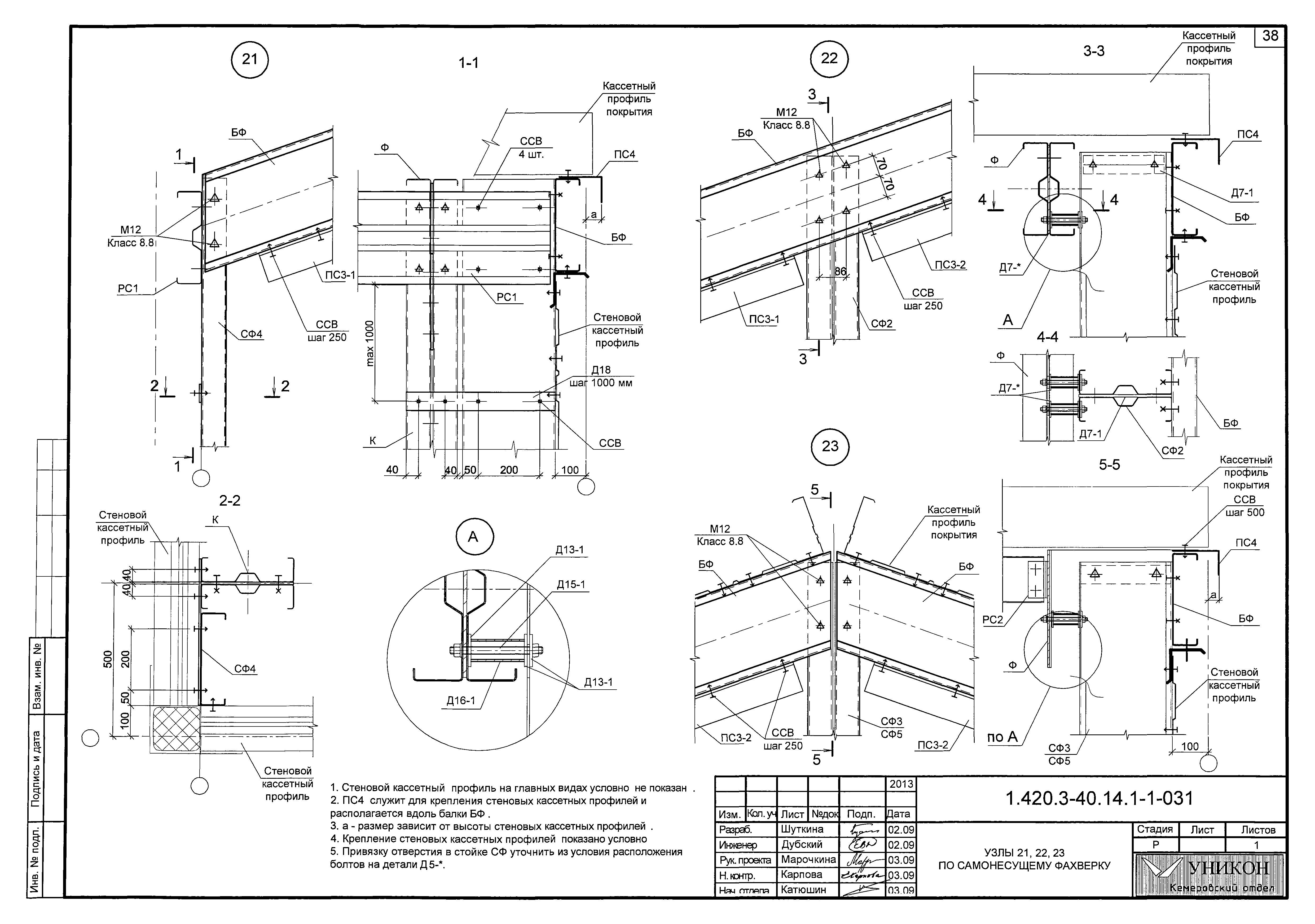
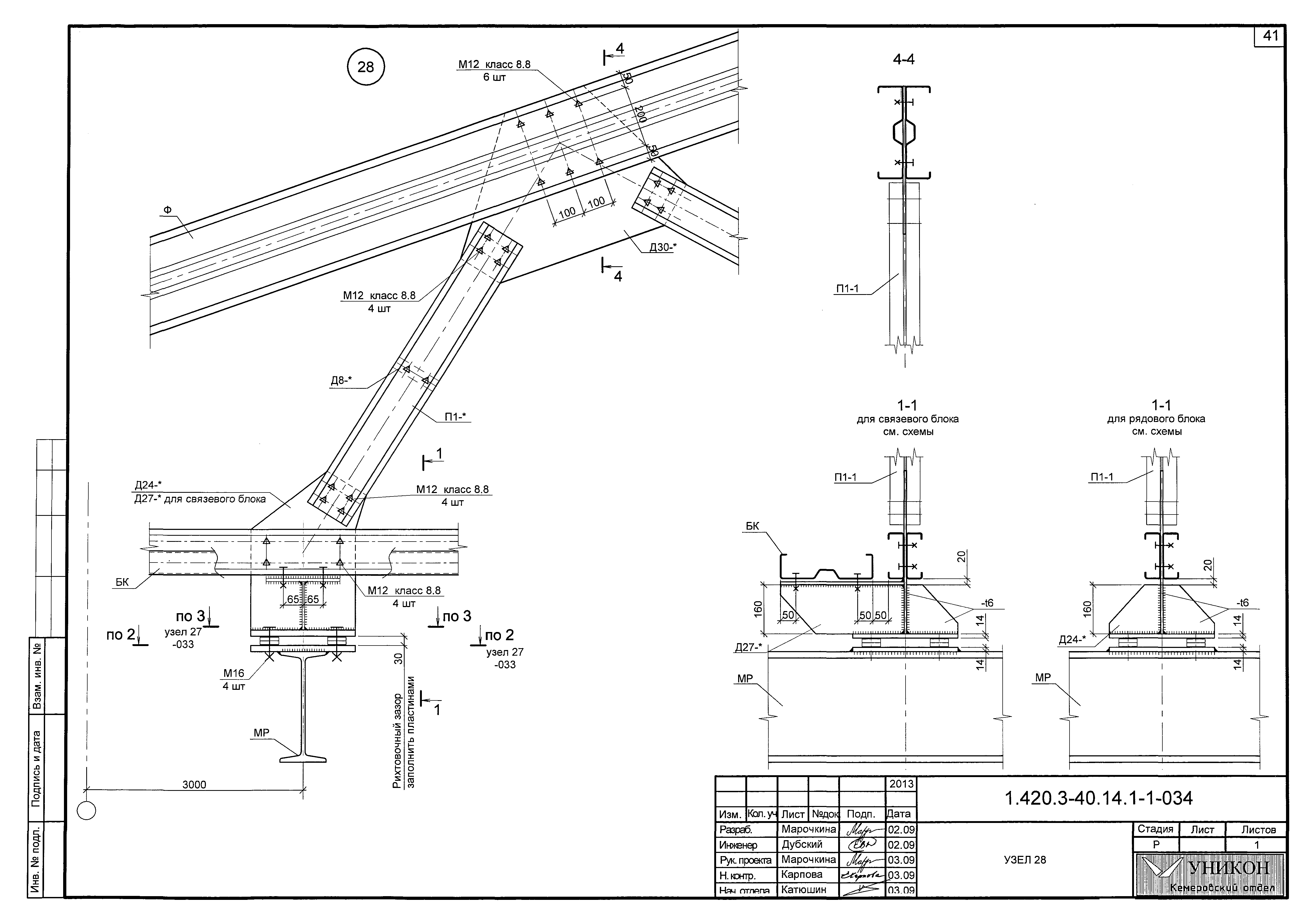
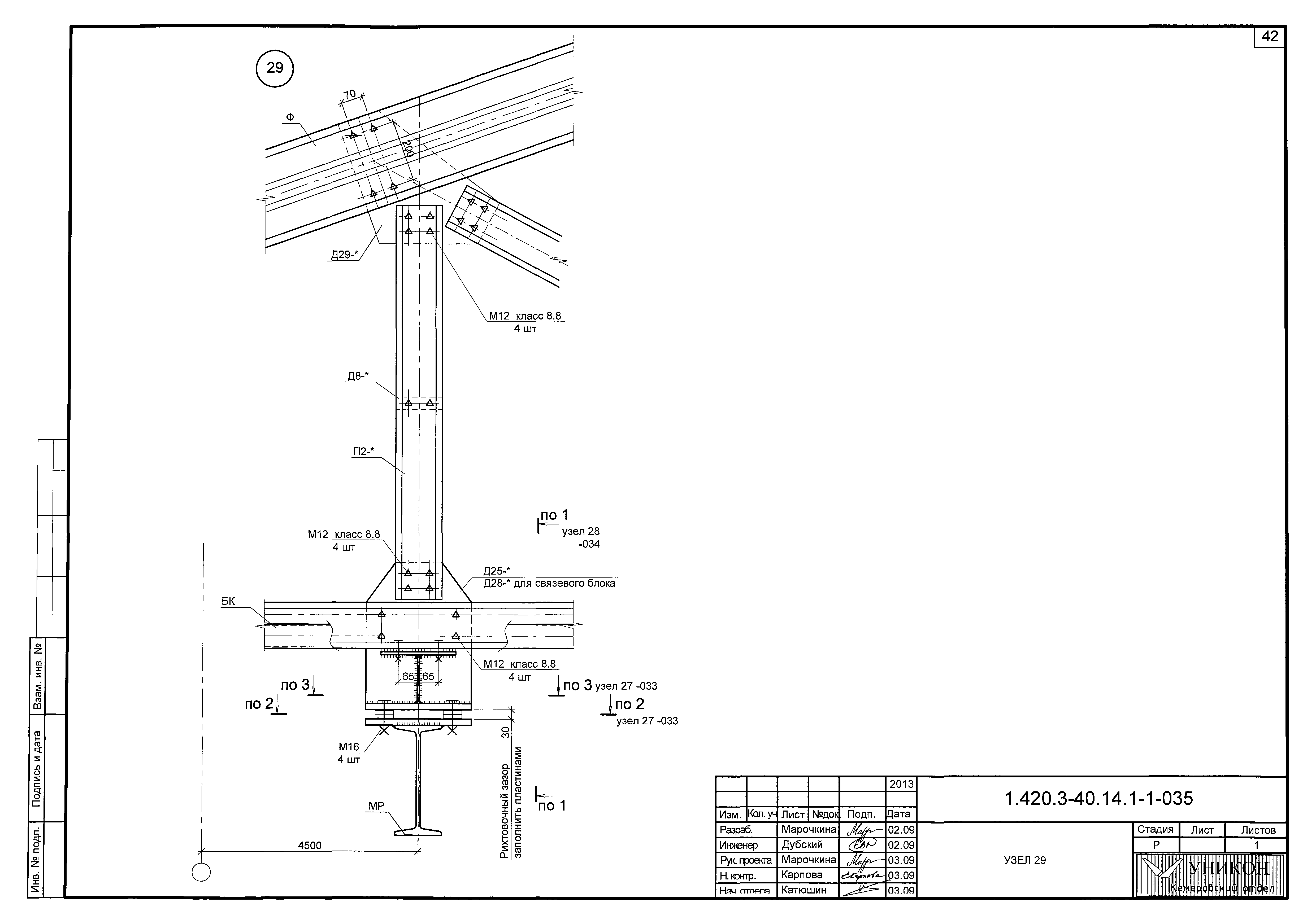
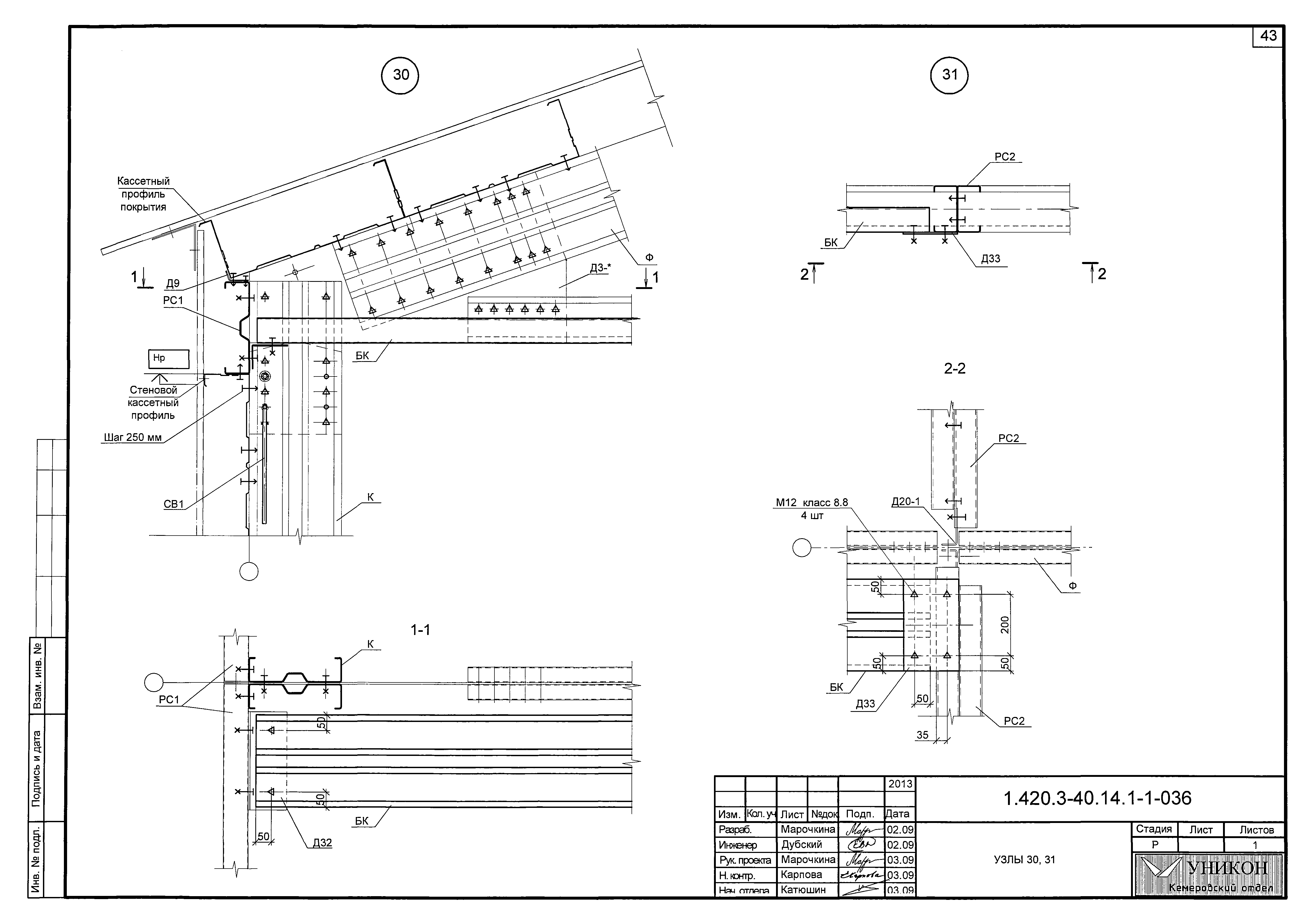
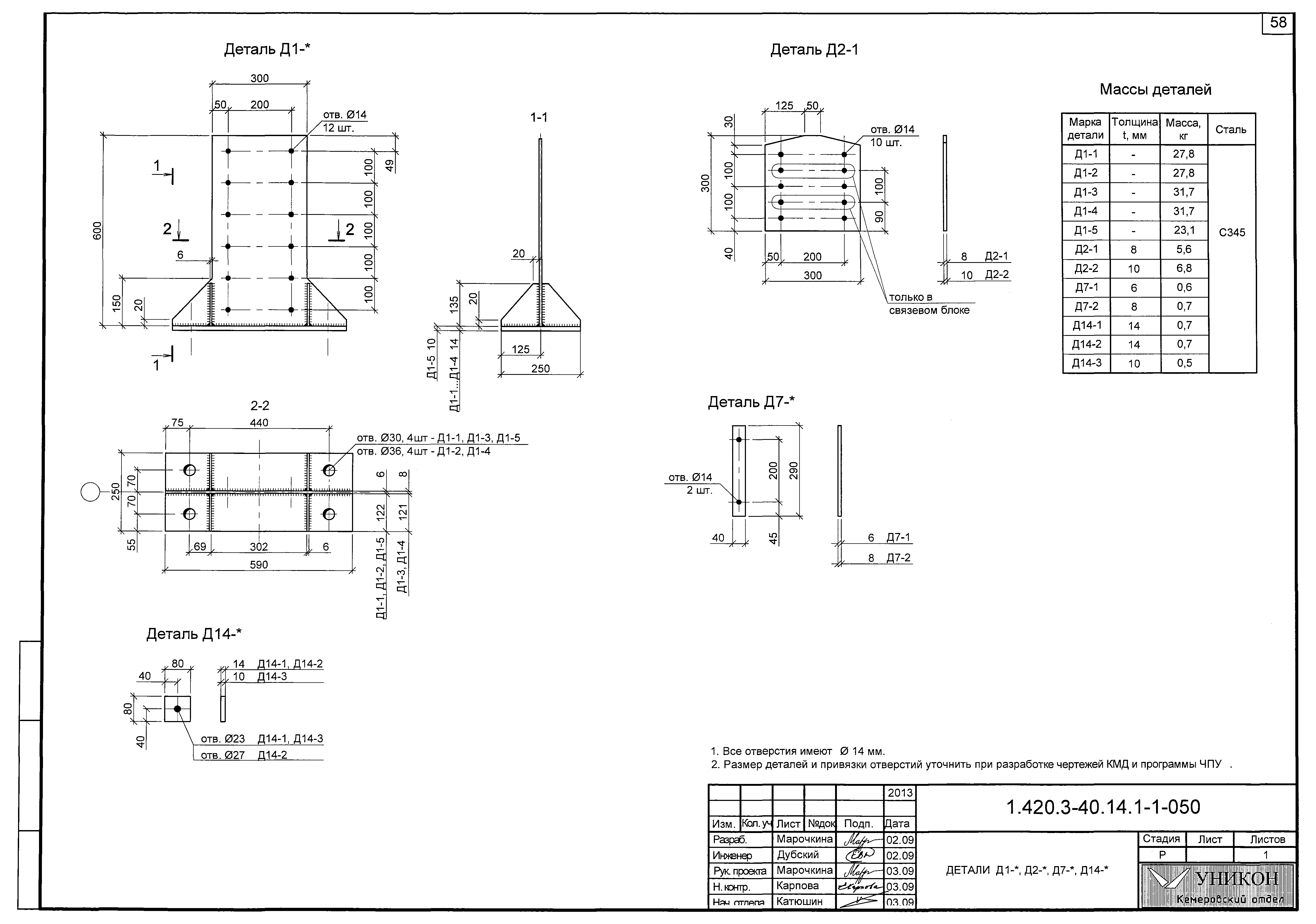
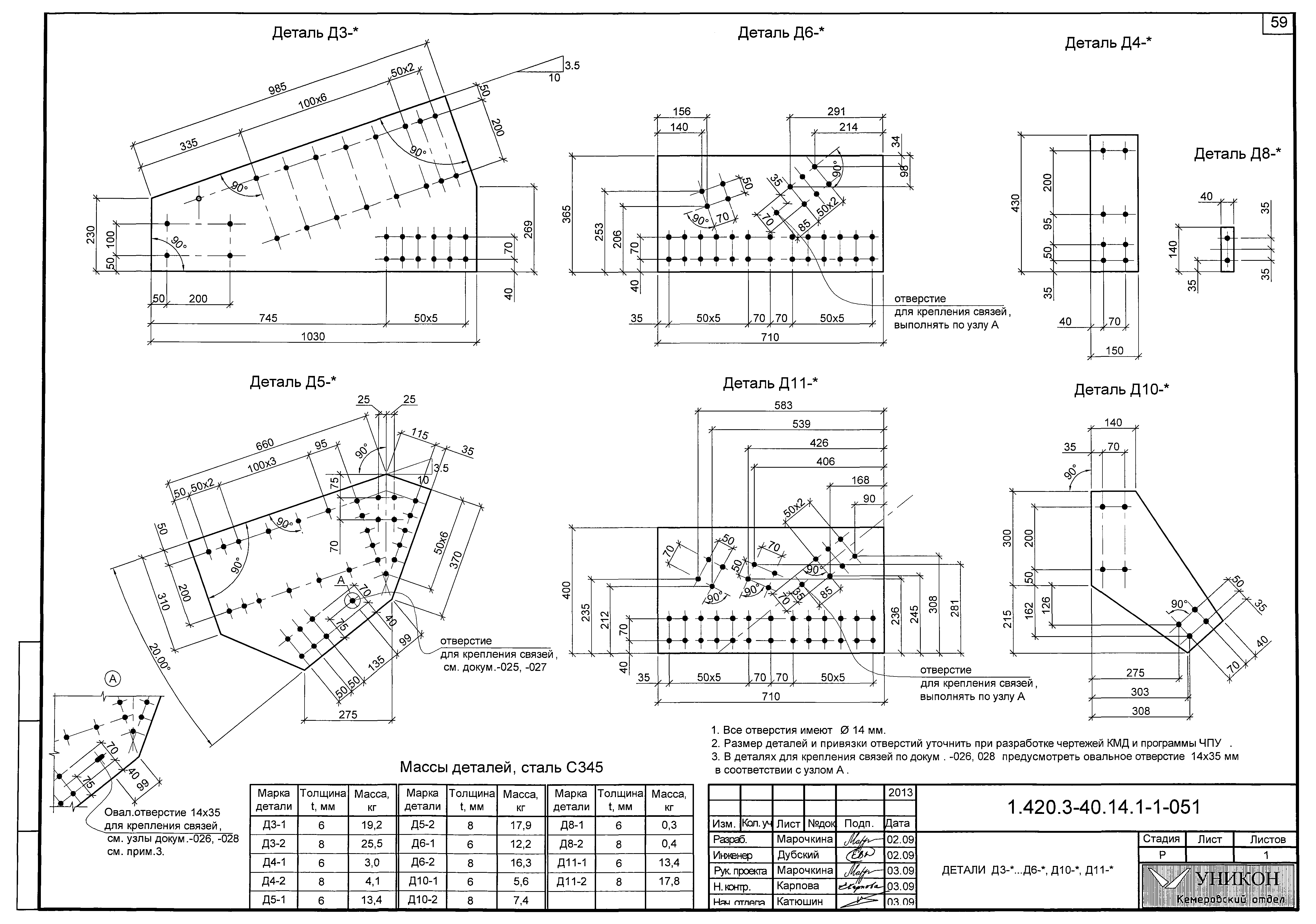
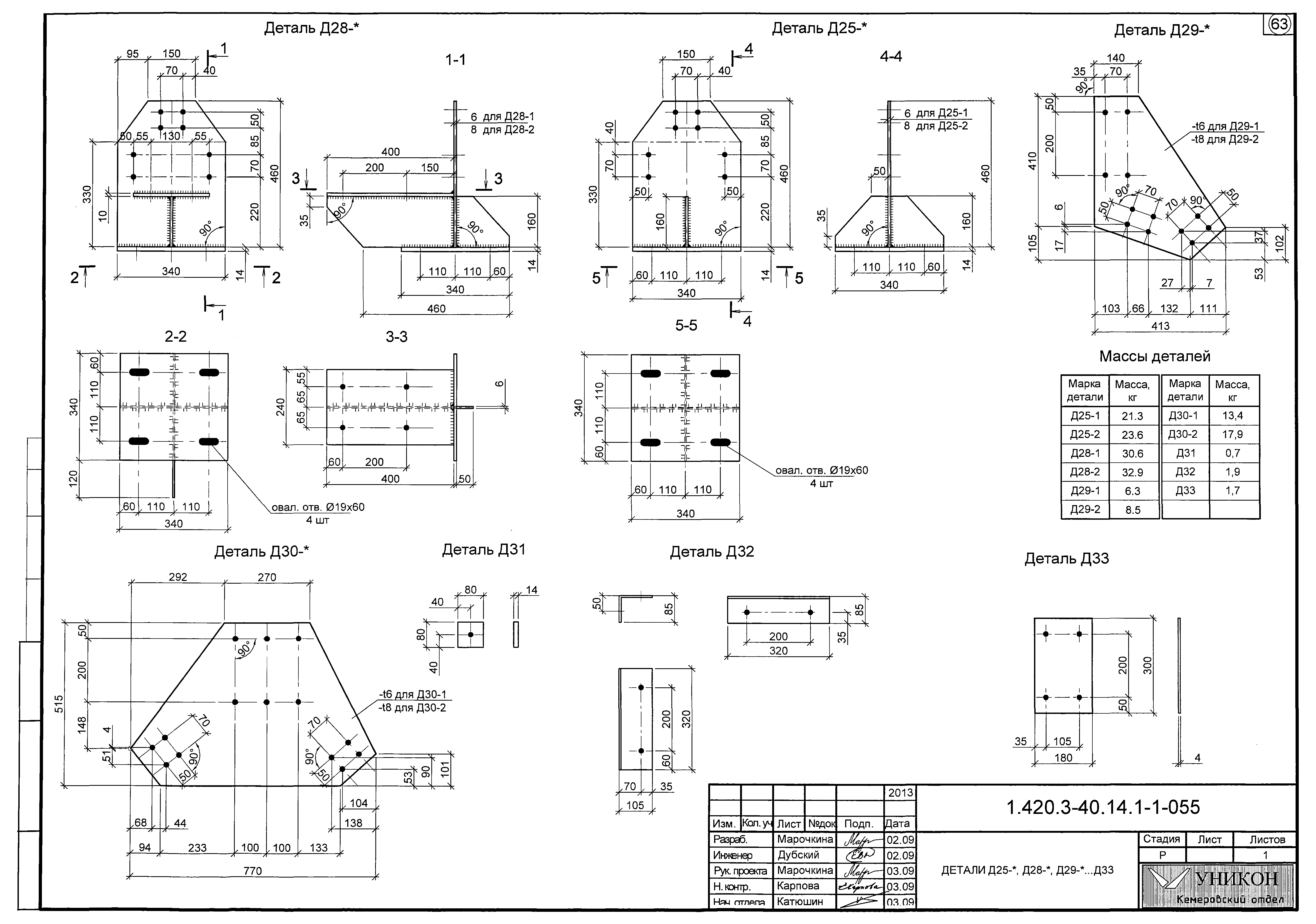
Скачать Серия 1.420.3-40.14 Выпуск 1-1. Беспрогонные каркасы зданий высотой до 7,2 м из гнутых профилей без кранов, с подвесными мостовыми кранами грузоподъемностью 1, 2 тДата актуализации: 01.01.2021 Серия 1.420.3-40.14
Выпуск 1-1. Беспрогонные каркасы зданий высотой до 7,2 м из гнутых профилей без кранов, с подвесными мостовыми кранами грузоподъемностью 1, 2 т| Обозначение: | Серия 1.420.3-40.14 | | Обозначение англ: | Series 1.420.3-40.14 | | Статус: | не определен законодательством | | Название рус.: | Выпуск 1-1. Беспрогонные каркасы зданий высотой до 7,2 м из гнутых профилей без кранов, с подвесными мостовыми кранами грузоподъемностью 1, 2 т | | Дата добавления в базу: | 01.01.2019 | | Дата актуализации: | 01.01.2021 | | Дата введения: | 12.08.2013 | | Разработан: | ООО Научно-исследовательская и проектно-строительная фирма УНИКОН
| | Утверждён: | 12.08.2013 ООО ТСФ Спецпрокат (70)
|
                                                        
|