Скачать Типовой проект 902-9-1 Выпуск V. Альбом 2. Перепадные колодцы для хозяйственно-бытовой и ливневой канализации. Перепадные колодцы ливневой канализации для труб Ду 500 - 1600 ммДата актуализации: 01.01.2021
|
| Обозначение: | Типовой проект 902-9-1 |
| Обозначение англ: | 902-9-1 |
| Статус: | не действует |
| Название рус.: | Выпуск V. Альбом 2. Перепадные колодцы для хозяйственно-бытовой и ливневой канализации. Перепадные колодцы ливневой канализации для труб Ду 500 - 1600 мм |
| Дата добавления в базу: | 01.10.2014 |
| Дата актуализации: | 01.01.2021 |
| Дата введения: | 19.06.1973 |
| Дата окончания срока действия: | 01.12.1989 |
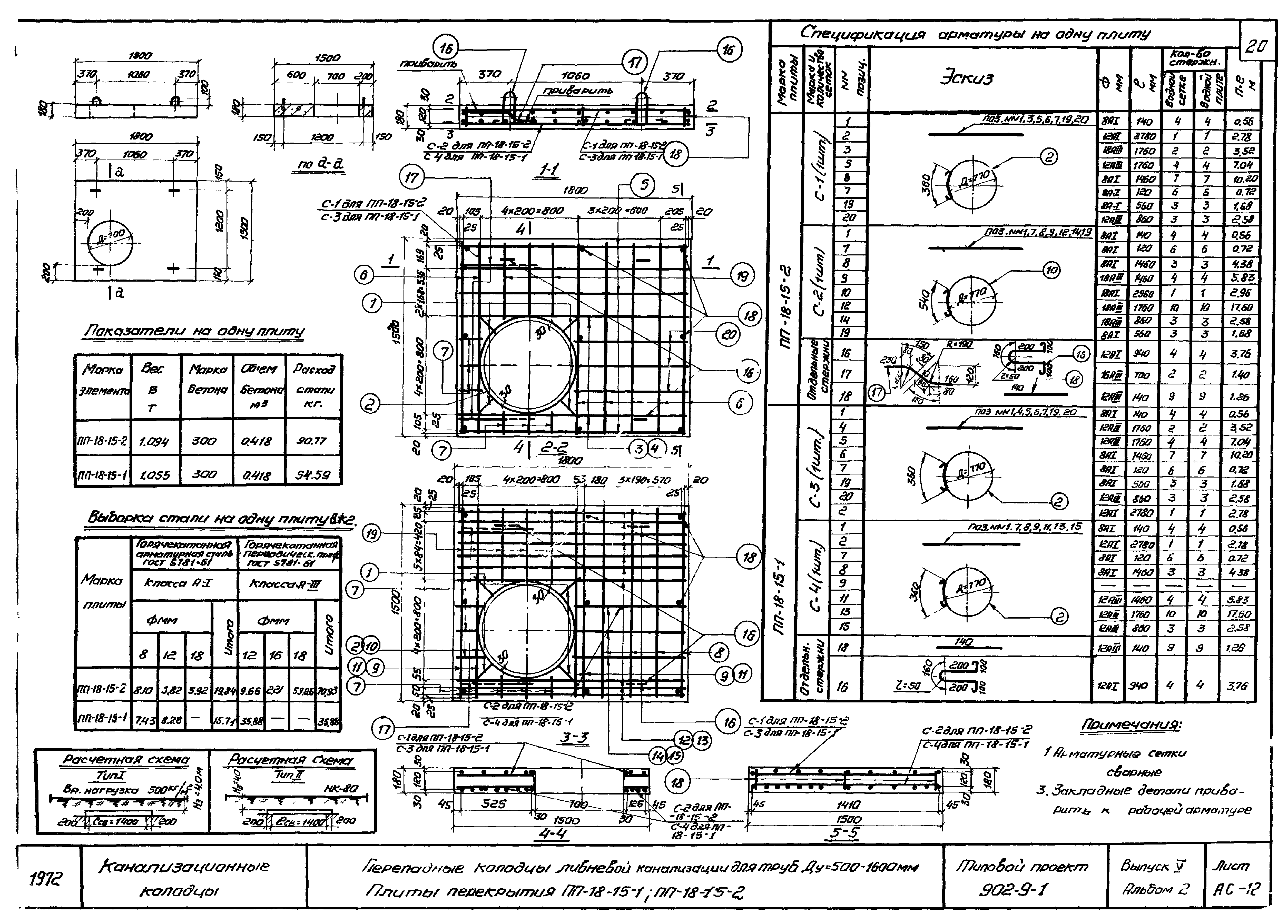
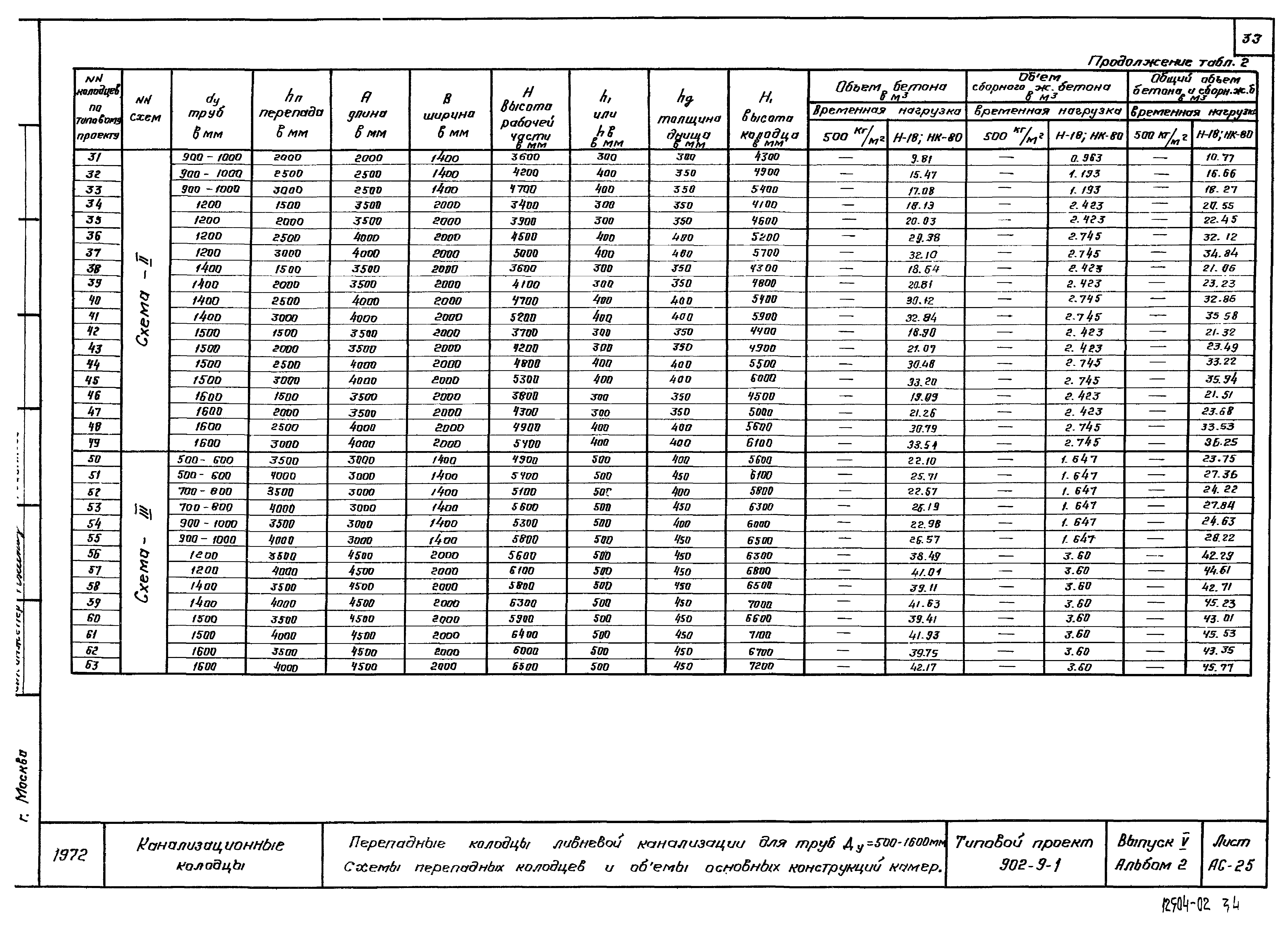
| Оглавление: | Содержание альбома Пояснительная записка Перепадные колодцы для труб dу = 500 - 1600 мм при перепаде hn = 500, 600 мм Перепадные колодцы для труб dу = 500 - 1000 мм при перепаде hn = 700, 800, 900, 1000 мм Перепадные колодцы для труб dу = 1200 - 1600 мм при перепаде hn = 700, 800, 900, 1000 мм Перепадные колодцы для труб dу = 500 - 1000 мм при перепаде hn = 1500, 2000, 2500, 3000 мм Перепадные колодцы для труб dу = 1200 - 1600 мм при перепаде hn = 1500, 2000, 2500, 3000 мм Перепадные колодцы для труб dу = 500 - 1000 мм при перепаде hn = 3500, 4000 мм Перепадные колодцы для труб dу = 1200 - 1600 мм при перепаде hn = 3500, 4000 мм Перепадные колодцы круглые для труб dу = 500 - 1000 мм при перепаде hn = 1500, 2000, 2500, 3000 мм Устройство основания под трубы в примыкании к перепадным колодцам Заделка труб и ходовые скобы Плиты перекрытия ПП-24-15-1; ПП-24-15-2 Плиты перекрытия ПП-18-15-1; ПП-18-15-2 Плиты перекрытия ПП-14-15-1; ПП-14-15-2 Плиты перекрытия ПП-24-5-1; ПП-24-5-2 Плиты перекрытия ПП-18-5-1; ПП-18-5-2 Плиты перекрытия ПП-14-5-1; ПП-14-5-2 Водобойные плиты ВП-1, ВП-2, ВП-3, ВП-4 Водобойные плиты ВП-5, ВП-6, ВП-7, ВП-8, ВП-9, ВП-10, ВП-11 Арматурные сетки стен С-1 - С-10 Арматурные сетки стен С-11 - С-19 Арматурные сетки днища колодцев С-1 - С-8 Арматурные сетки днища колодцев С-9 - С-13 Горловины d = 700 мм Схемы перепадных колодцев и объемы основных конструкций камер Схемы перепадных колодцев и объемы основных конструкций камер и горловины Таблица привязки колодцев |
| Разработан: | Гипрокоммундортранс |
| Утверждён: | 19.06.1973 Госгражданстрой (Gosgrazhdanstroy 131) |
| Чем заменён: |



































