Скачать Типовой проект 0901-9-15.2.87 Альбом I. Общая пояснительная записка. Технологическая часть. Архитектурно-строительная часть. Отопление и вентиляция (из ТП 0901-9-15.1.87)Дата актуализации: 01.01.2021
|
| Обозначение: | Типовой проект 0901-9-15.2.87 |
| Обозначение англ: | 0901-9-15.2.87 |
| Статус: | не определен законодательством |
| Название рус.: | Альбом I. Общая пояснительная записка. Технологическая часть. Архитектурно-строительная часть. Отопление и вентиляция (из ТП 0901-9-15.1.87) |
| Дата добавления в базу: | 01.10.2014 |
| Дата актуализации: | 01.01.2021 |
| Дата введения: | 16.10.1987 |
| Дата окончания срока действия: | 30.06.2003 |
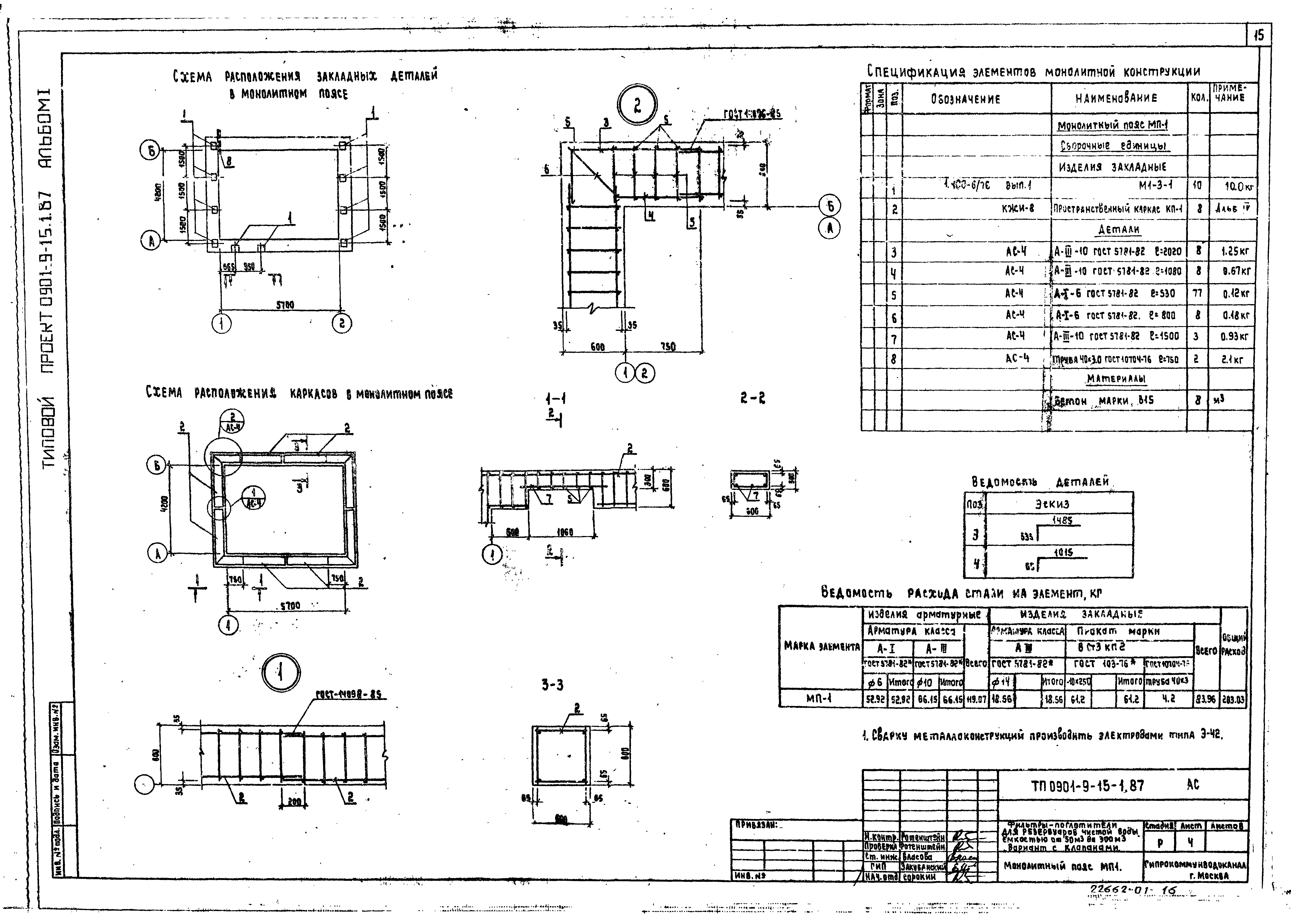
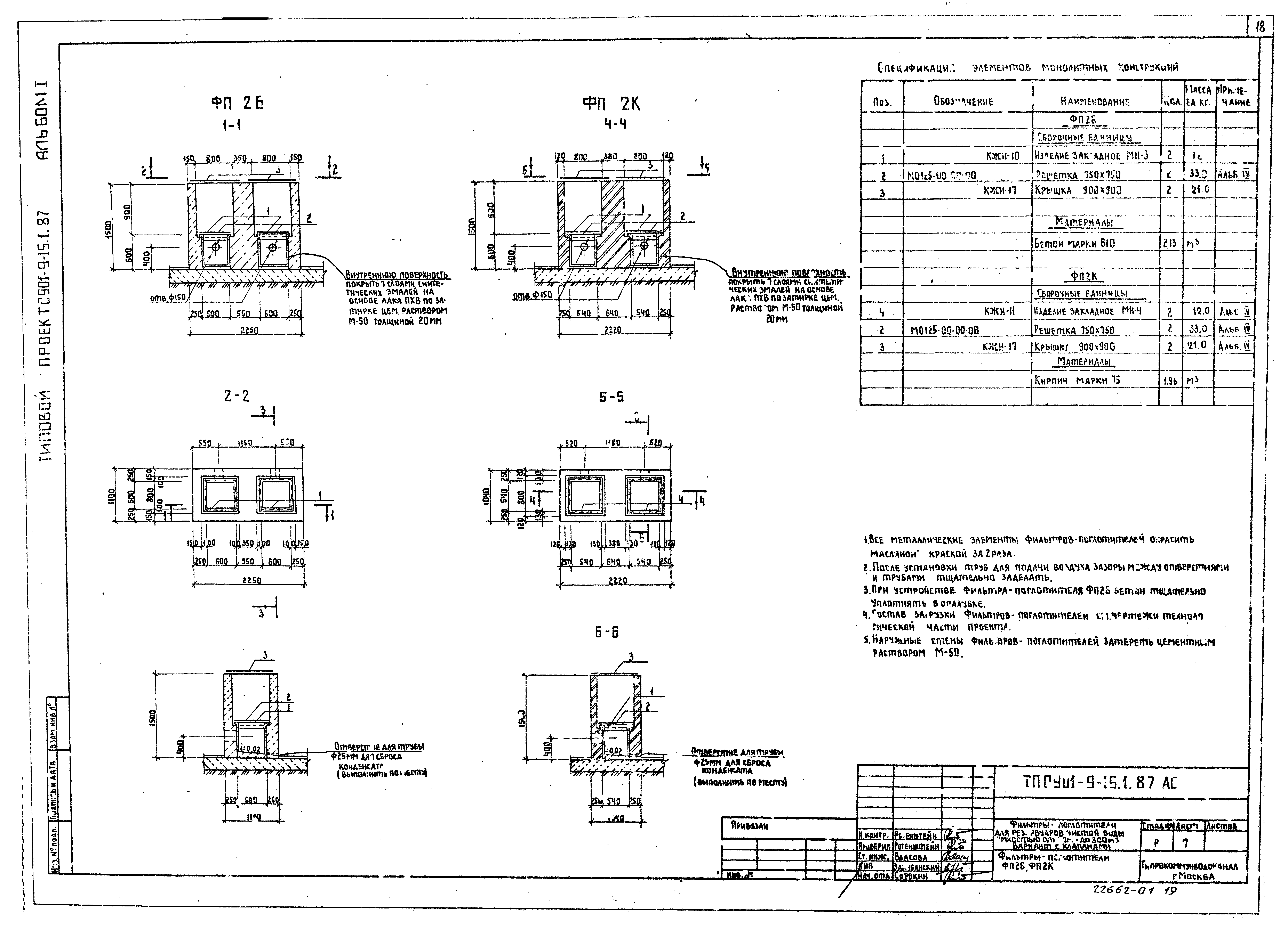
| Оглавление: | Содержание альбома Общая пояснительная записка Технологическая часть Общие данные ФП1, ФП1М. План на отм. 0.000. Разрезы 1-1, 2-2. Схема ФП2Б, ФП2К. План на отм. 0.000. Разрезы 1-1, 2-2. Схема Архитектурно-строительная часть Общие данные План на отм. 0.000. Разрезы 1-1 - 3-3 Схема расположения стеновых блоков на отм. 0.000. Раскладка блоков по осям 1, 2, А, Б. Схемы расположения плит покрытия Монолитный пояс МП-1 Узлы 1 - 6 Фильтры-поглотители ФП1, ФП1М Фильтры-поглотители ФП2Б, ФП2К Чертежи основного комплекта марки ОВ Общие данные План на отм. 0.000. Разрез 1-1. Схема системы В1. Схемы систем отопления Общие виды нетиповых конструкций марки ОВН Ограждения отверстия входного патрубка центробежного вентилятора |
| Разработан: | Гипрокоммунводоканал Минжилкомхоза РСФСР |
| Утверждён: | 16.10.1987 Минжилкомхоз РСФСР (Russian Federation Minzhilkomkhoz 12-ТД) |





















