Скачать Типовой проект 903-1-236.87 Альбом 2. Тепломеханическая часть. Водопровод и канализация (из ТП 903-1-235.87)Дата актуализации: 01.01.2021
|
| Обозначение: | Типовой проект 903-1-236.87 |
| Обозначение англ: | 903-1-236.87 |
| Статус: | не определен законодательством |
| Название рус.: | Альбом 2. Тепломеханическая часть. Водопровод и канализация (из ТП 903-1-235.87) |
| Дата добавления в базу: | 01.10.2014 |
| Дата актуализации: | 01.01.2021 |
| Дата введения: | 27.11.1986 |
| Дата окончания срока действия: | 30.06.2003 |
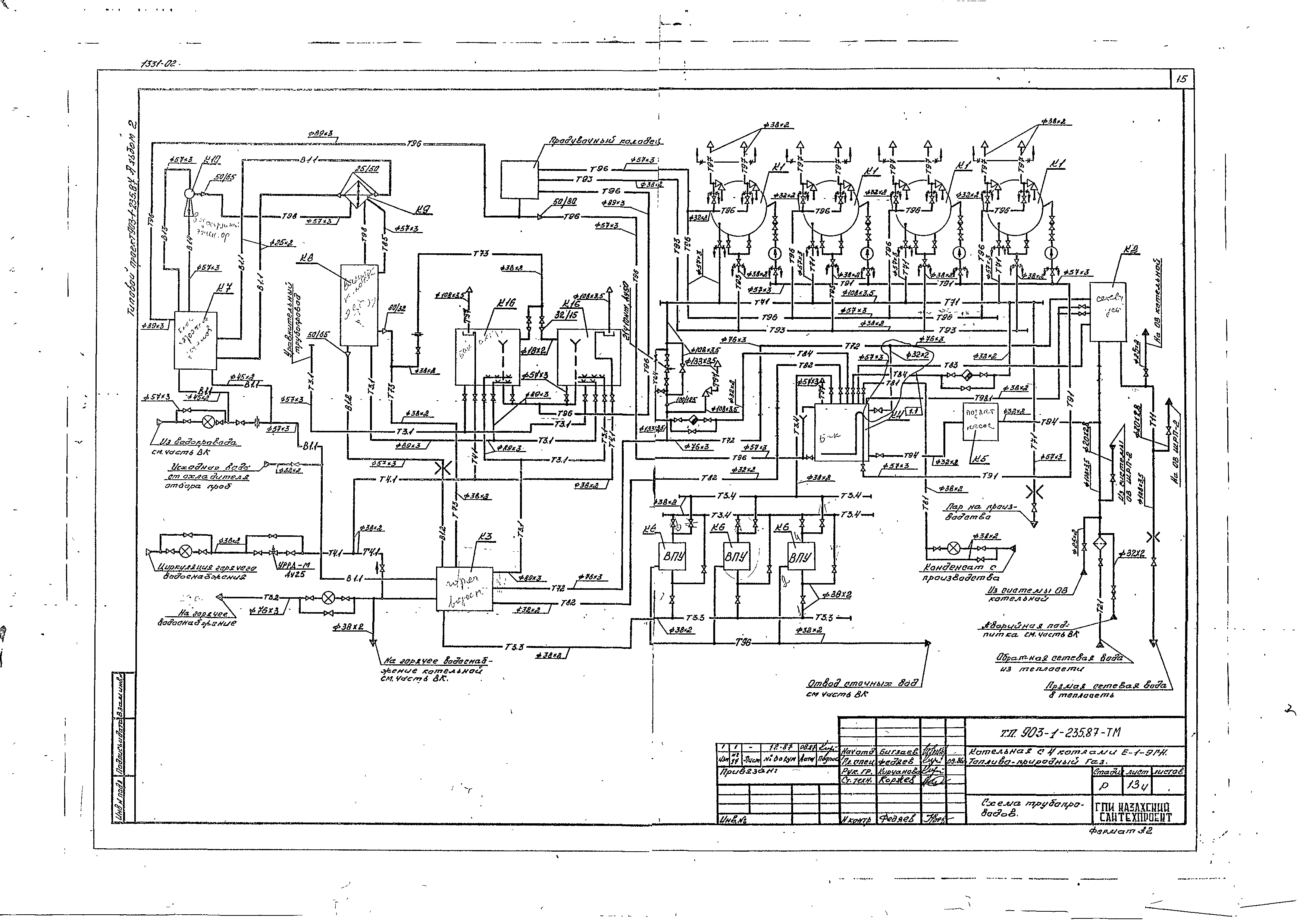
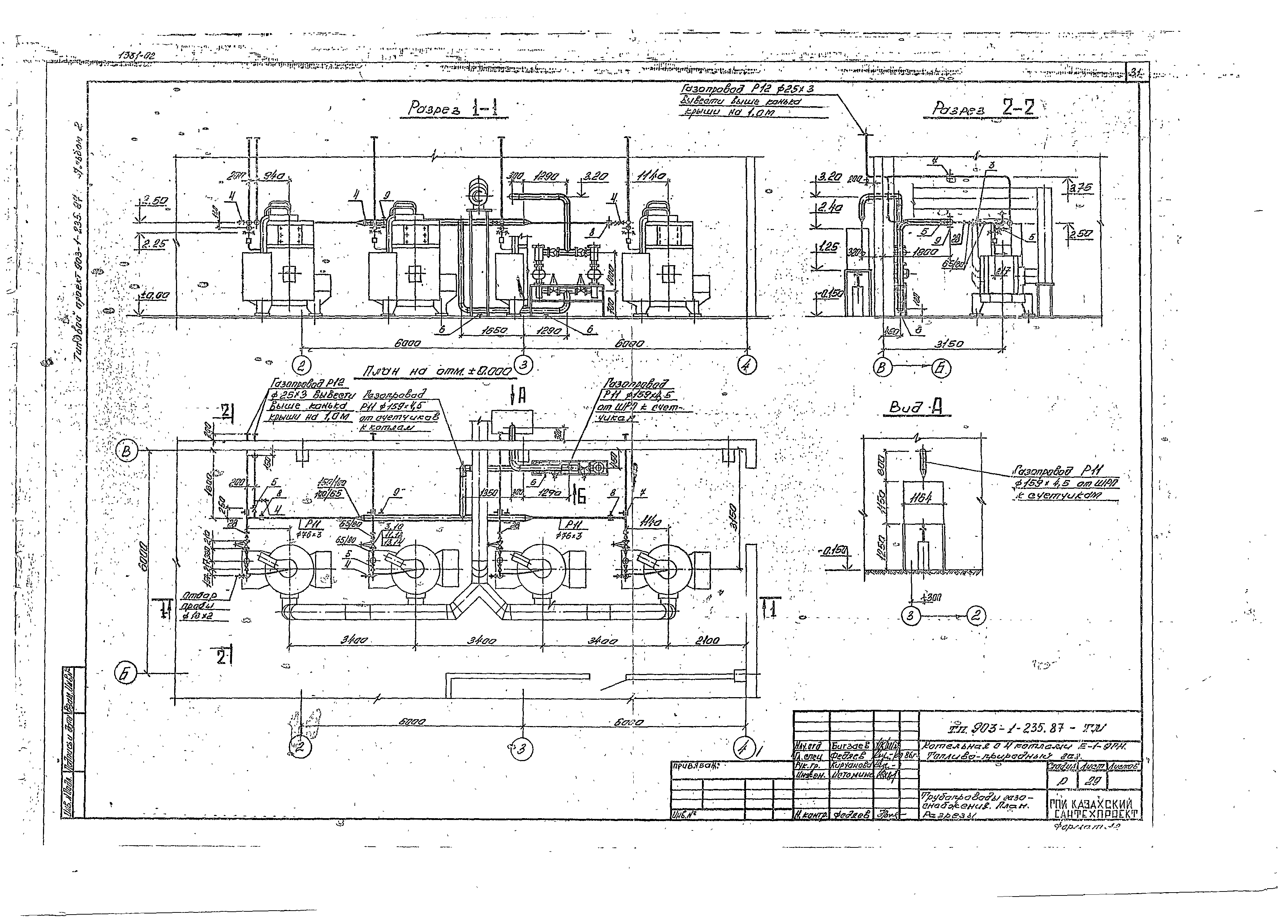
| Оглавление: | Чертежи основного комплекта марки ТХ Общие данные Спецификация оборудования Компоновка оборудования Установка бака-аккумулятора V = 2,5 куб. м Установка бака питательной воды V = 2,5 куб. м Крепление № 1. Установка холодильника отбора проб двухточечного Схема трубопроводов Трубопроводы котельной. План. Разрезы 1-1, 2-2 Трубопроводы котельной. Разрезы 3-3, 4-4 Трубопроводы котельной. Разрезы 5-5, 6-6, 7-7, 8-8, 9-9, 10-10, 11-11 Трубопроводы котельной. Разрезы 12-12, 13-13, 14-14, 15-15, 16-16, 17-17, 18-18, 19-19 Трубопроводы котельной. Спецификация Трубопроводы котельной. Схема пробоотборных точек Трубопроводы вне здания котельной (наружные). План. Разрезы Трубопроводы вне здания котельной (наружные). Разрезы. Виды Трубопроводы вне здания котельной (наружные). Спецификация Узлы изоляции трубопроводов и арматуры Схема трубопроводов газоснабжения Трубопроводы газоснабжения. План. Разрезы Трубопроводы газоснабжения. Вид Б. Спецификация Фланцевые соединения для установки заглушки с токопроводящей перемычкой Чертежи основного комплекта марки ВК Общие данные План на отм. 0.000. Схемы систем В1, К1, Т3 |
| Разработан: | ГПИ Казахский Сантехпроект Госстроя СССР |
| Утверждён: | 27.11.1986 ГПИ Сантехпроект (16/КУ-86) |
| Заменяет собой: |
|




































