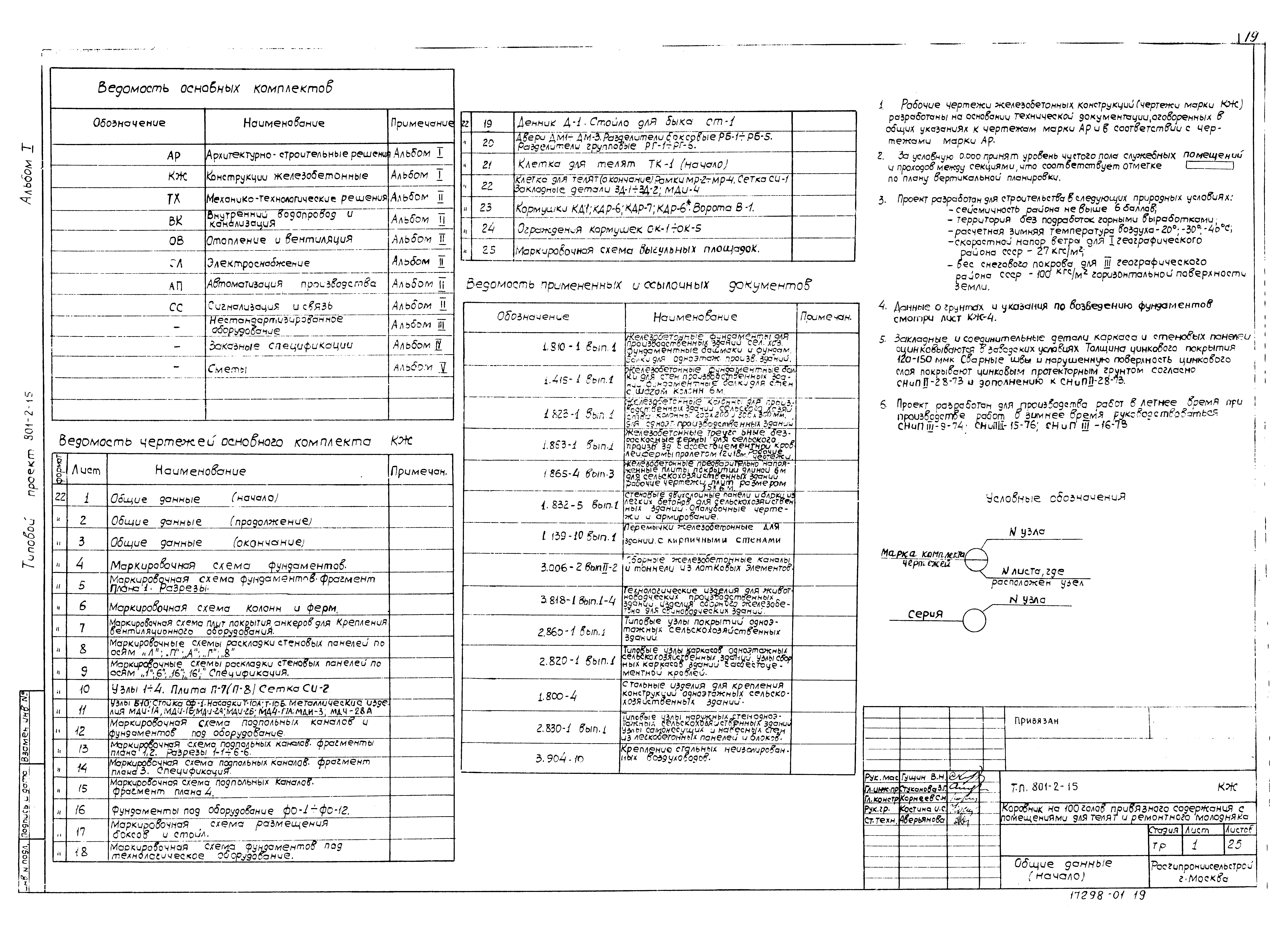
Скачать Типовой проект 801-2-15 Альбом I. Архитектурно-строительные решения. Конструкции железобетонныеДата актуализации: 01.01.2021
|
| Обозначение: | Типовой проект 801-2-15 |
| Обозначение англ: | 801-2-15 |
| Статус: | не определен законодательством |
| Название рус.: | Альбом I. Архитектурно-строительные решения. Конструкции железобетонные |
| Дата добавления в базу: | 01.10.2014 |
| Дата актуализации: | 01.01.2021 |
| Дата введения: | 07.09.1981 |
| Дата окончания срока действия: | 30.06.2003 |
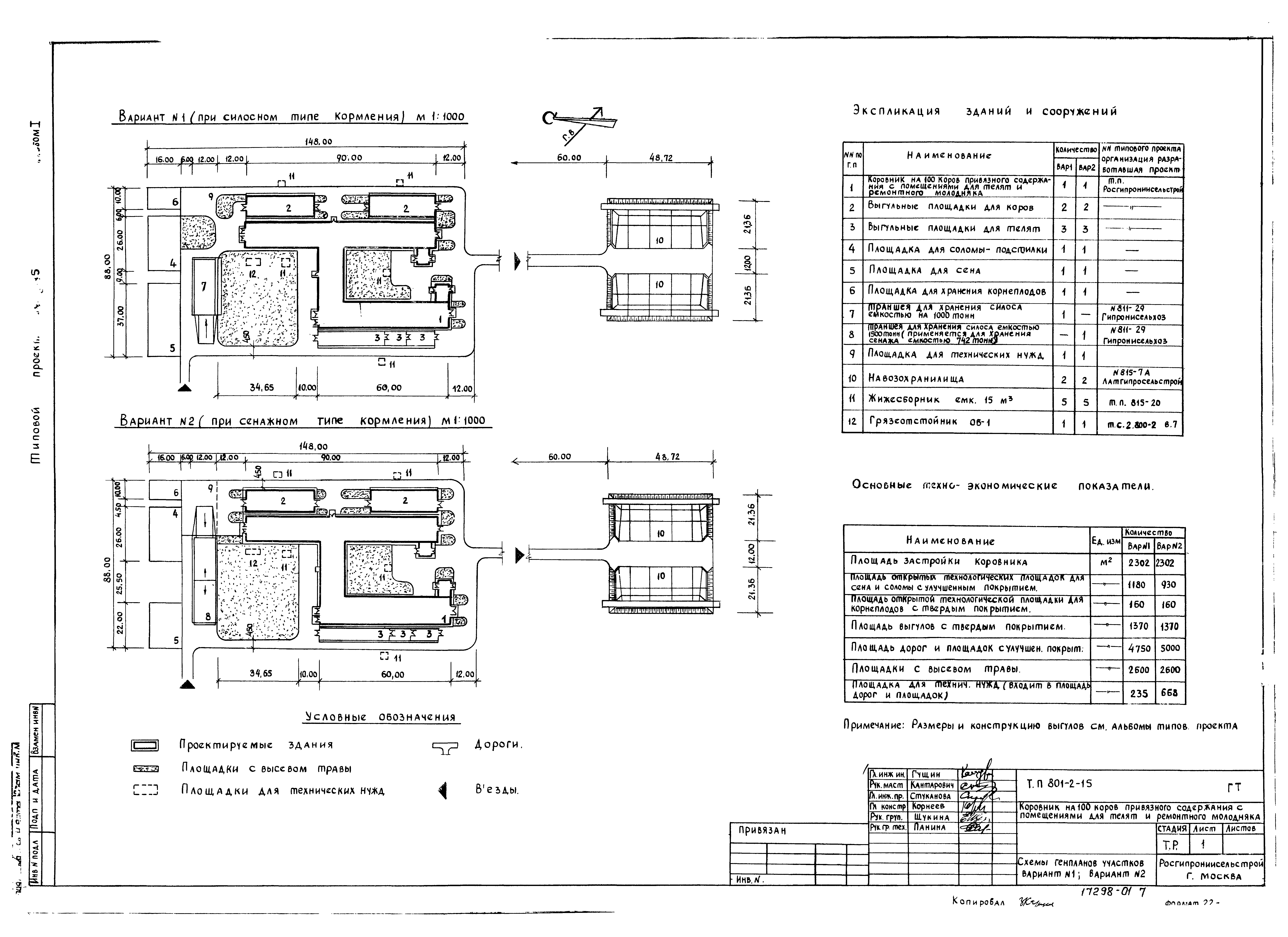
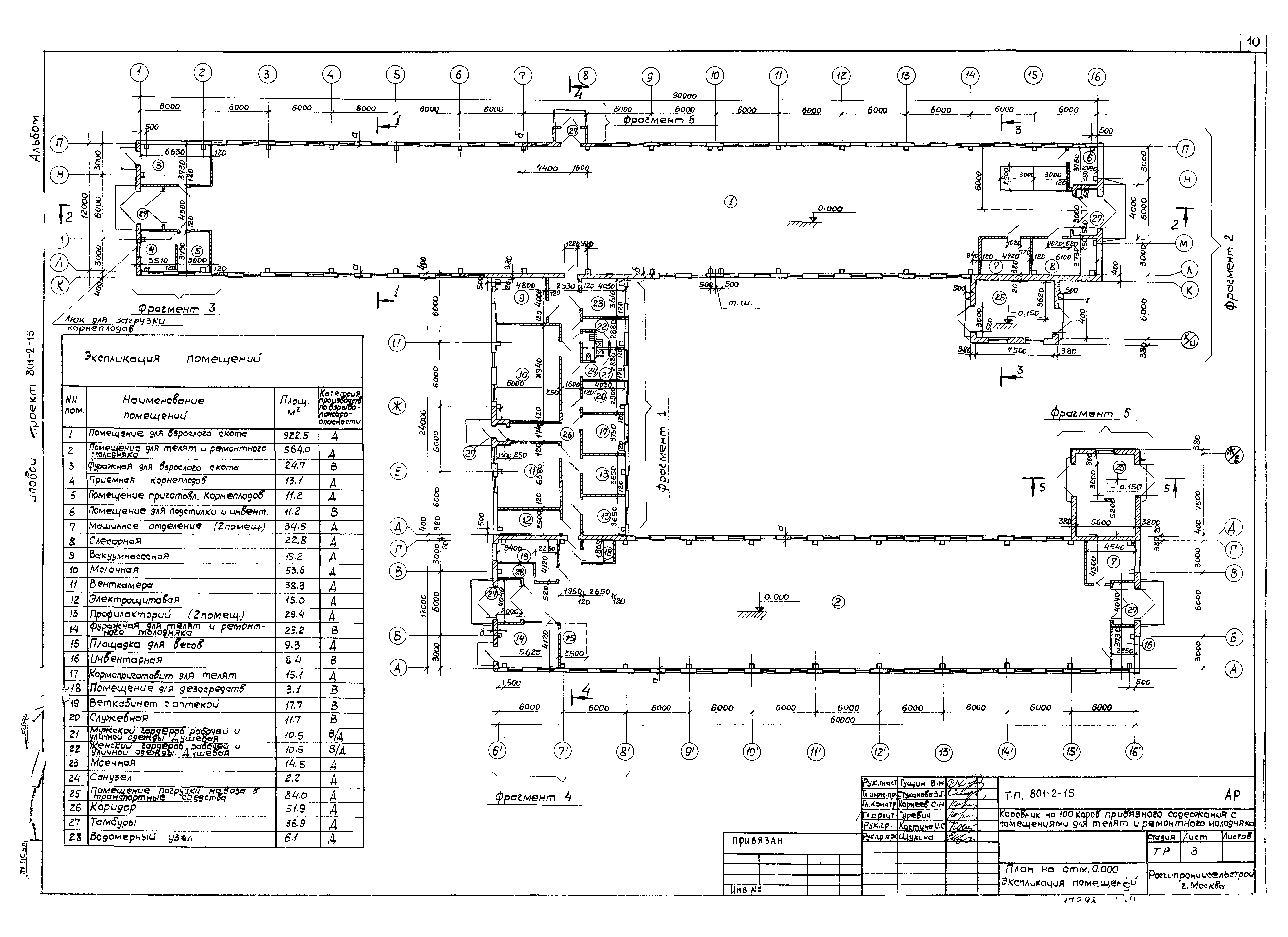
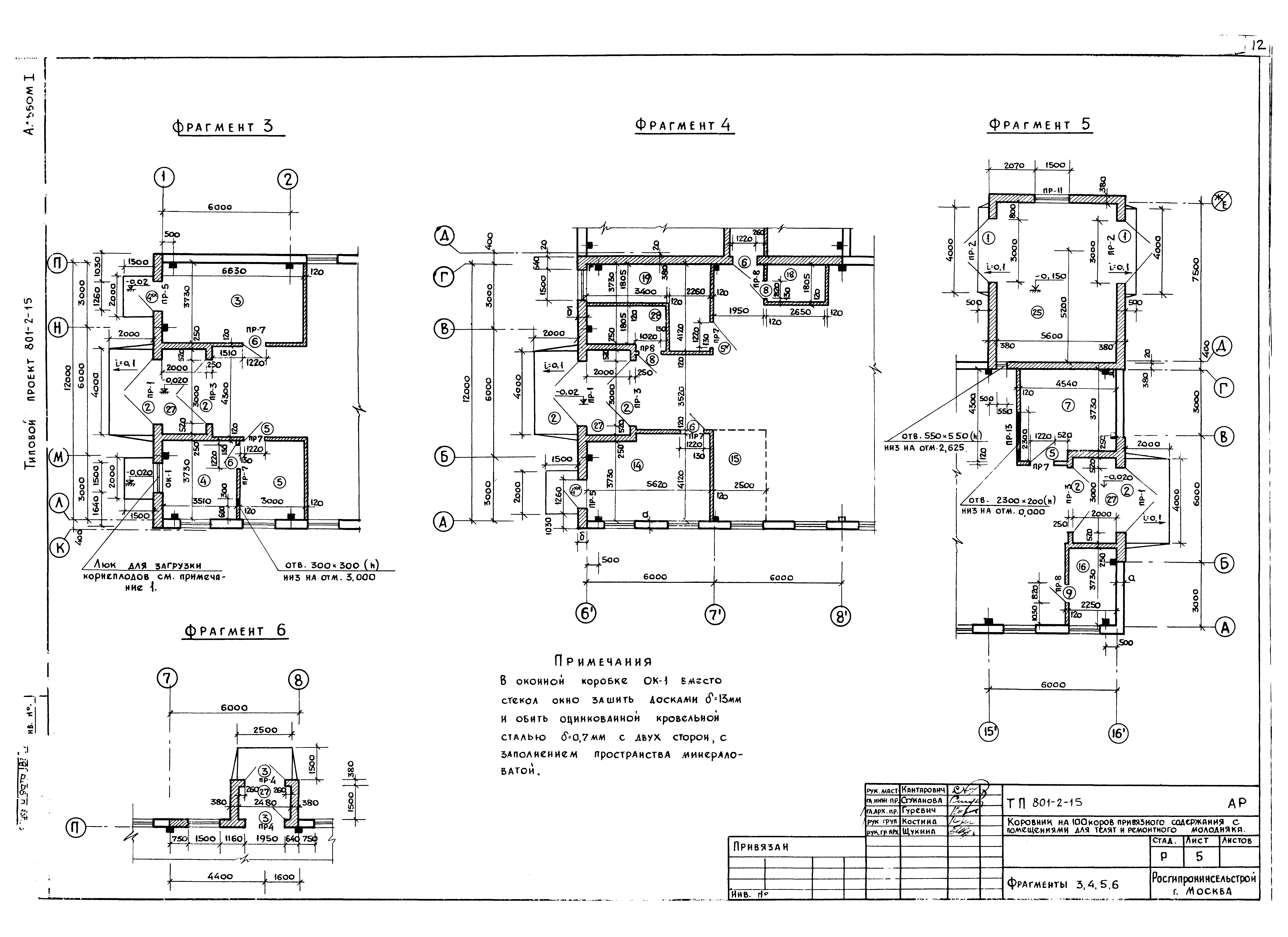
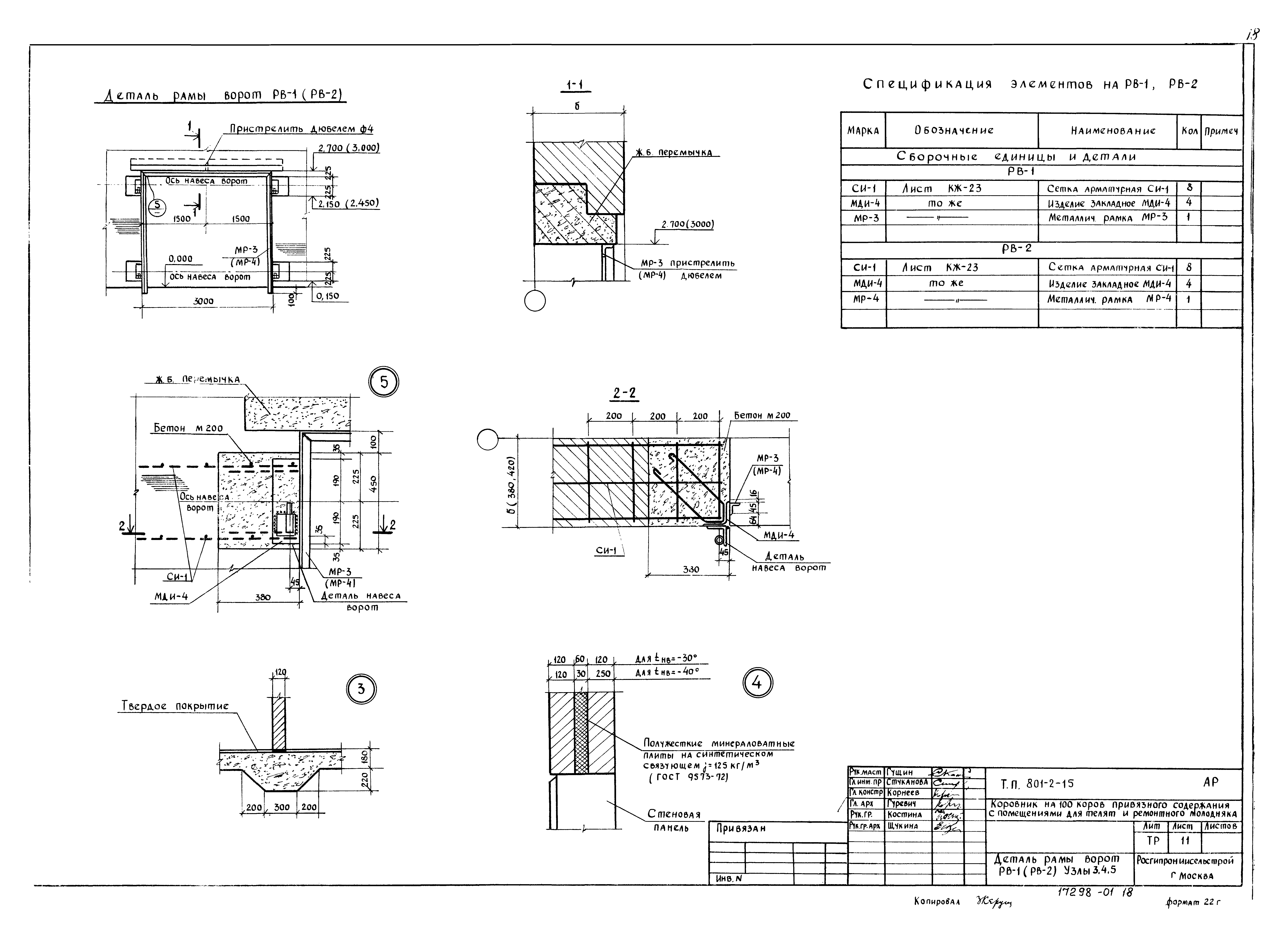
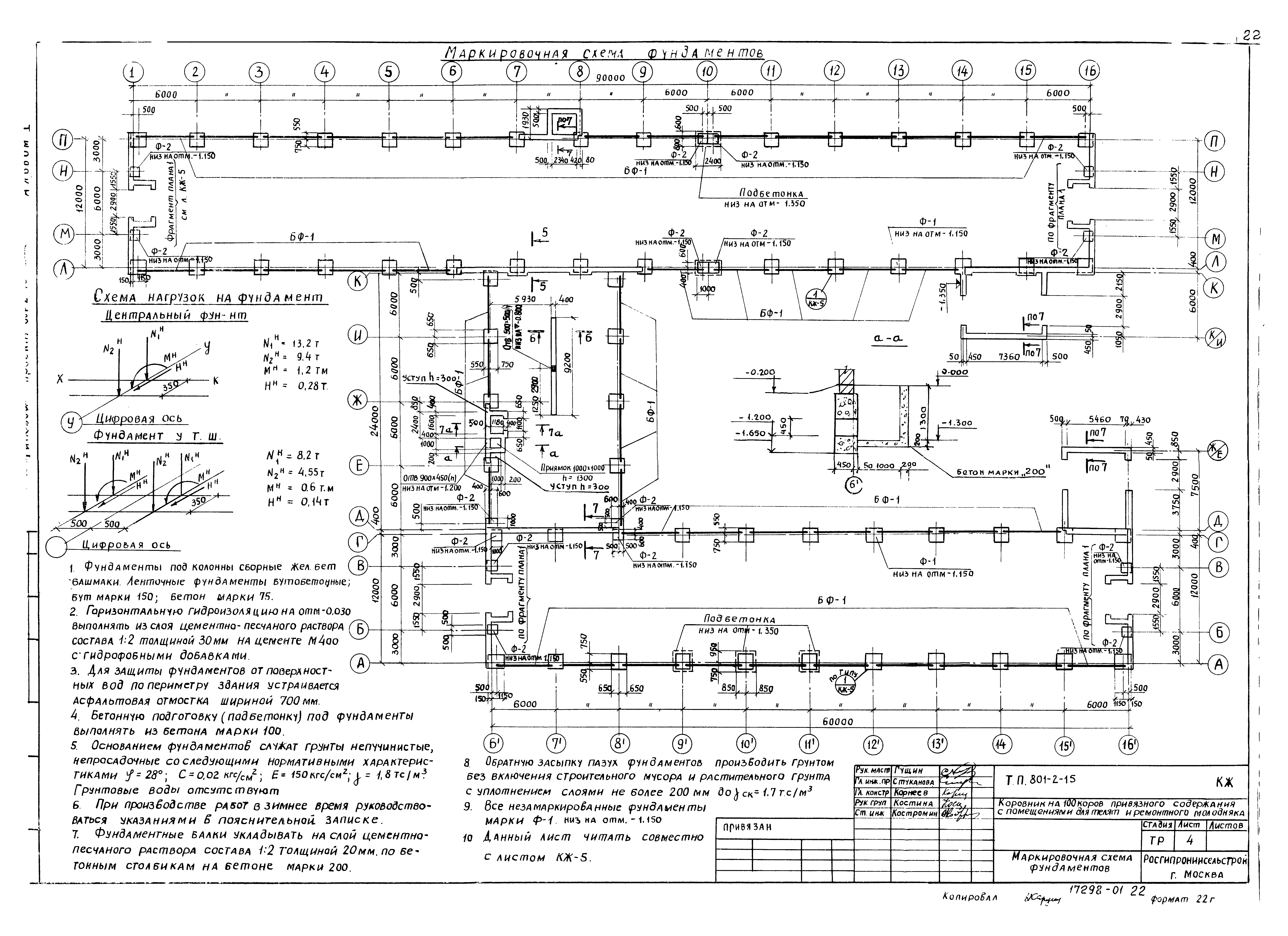
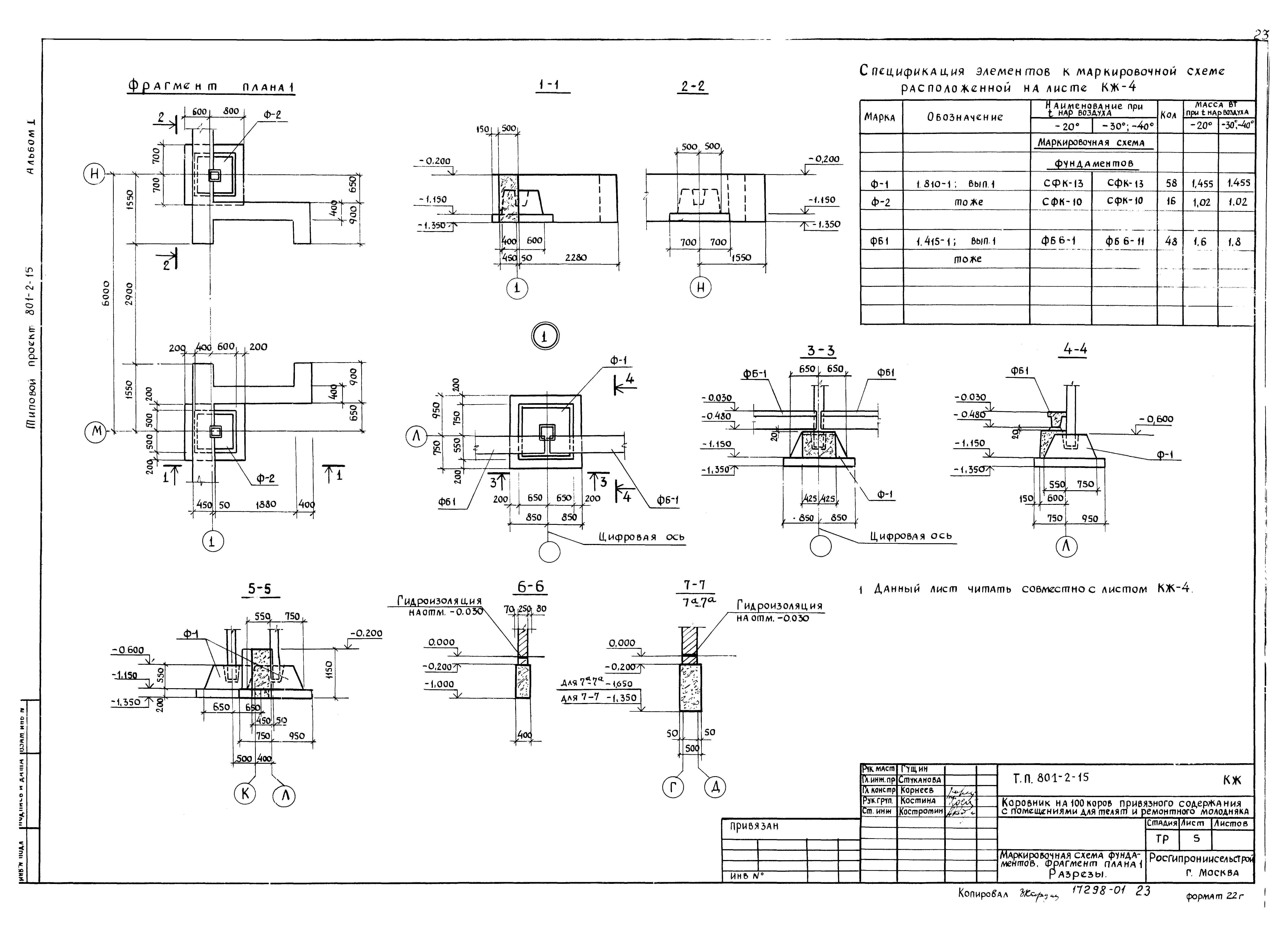
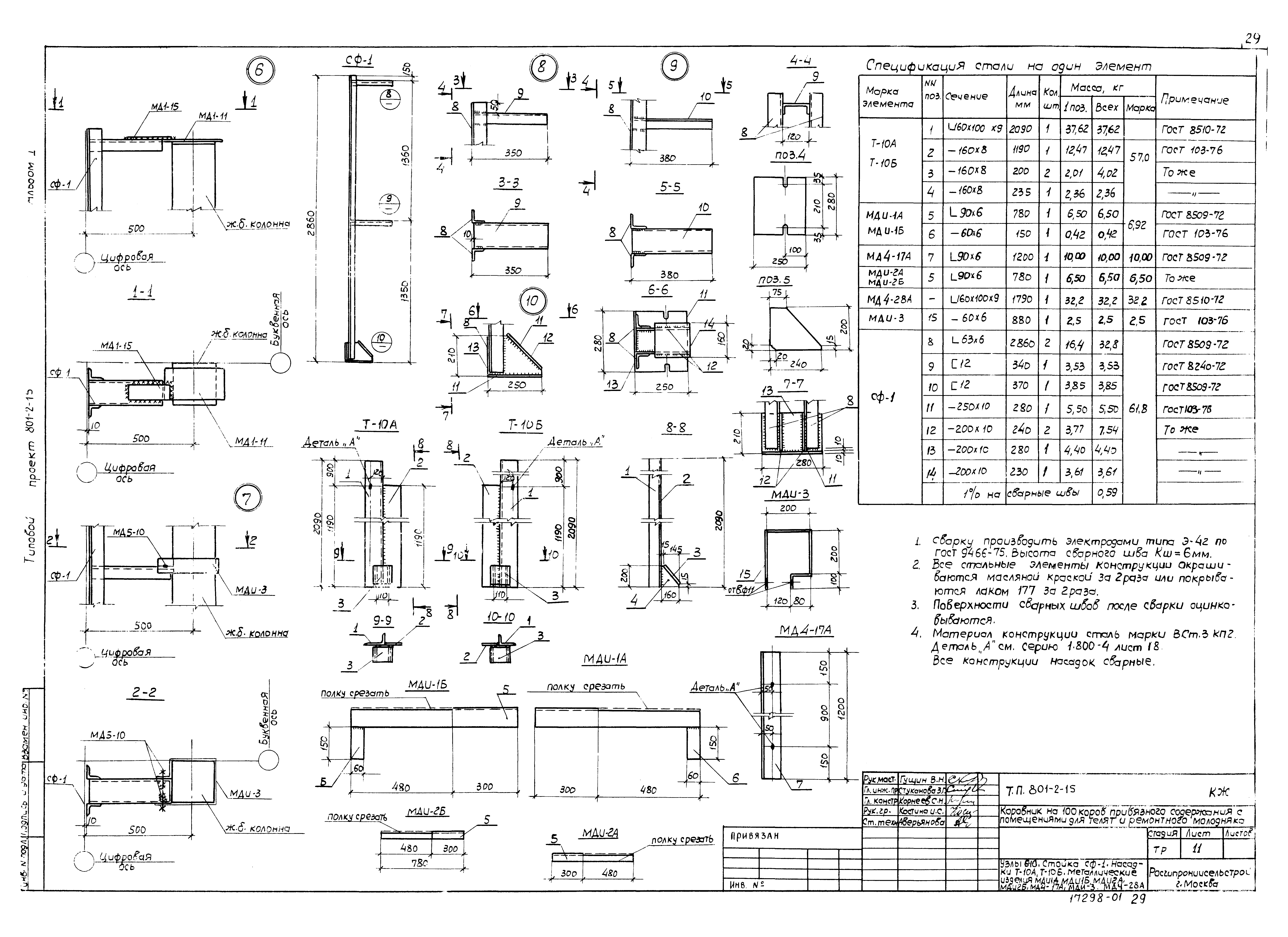
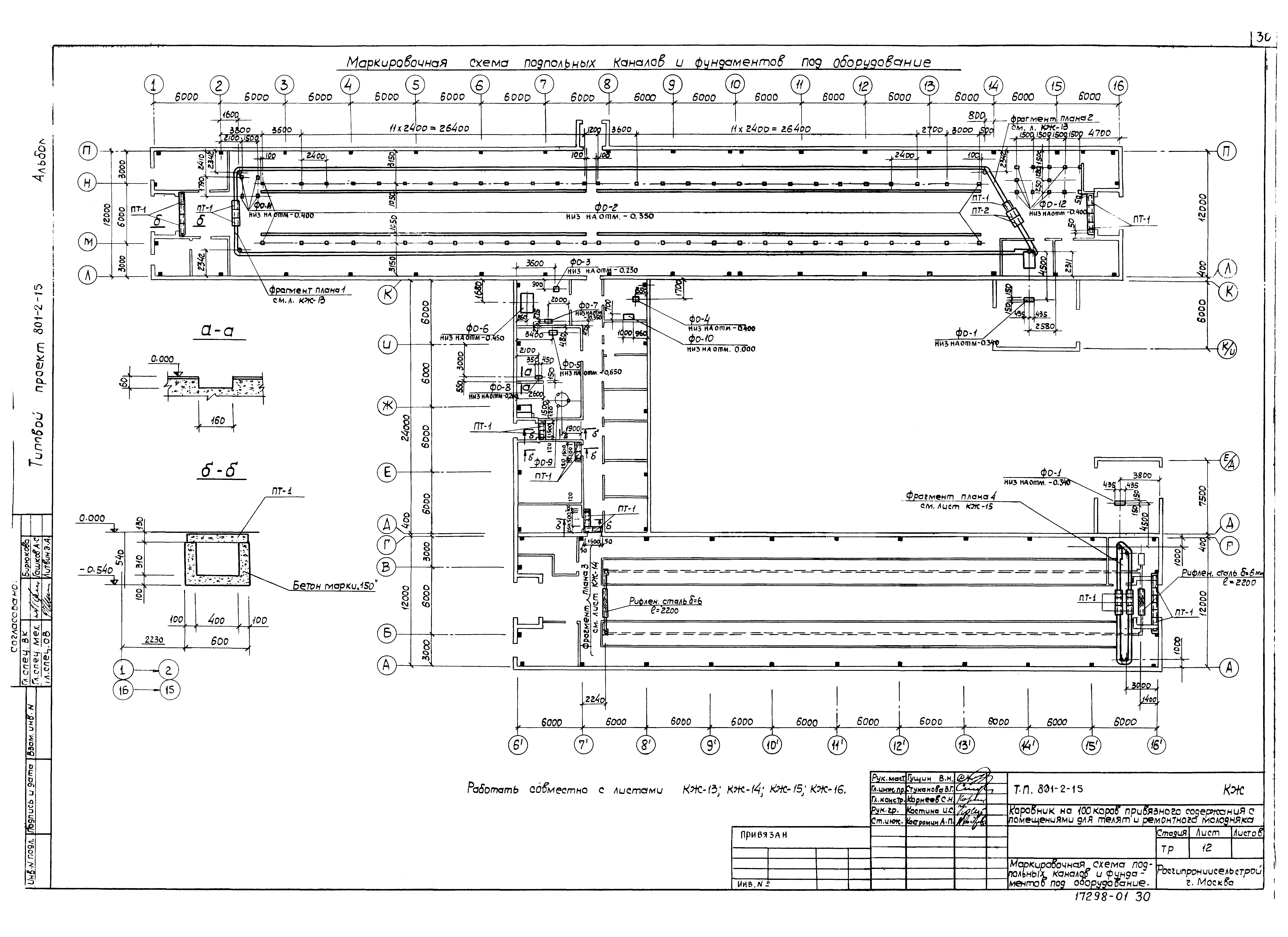
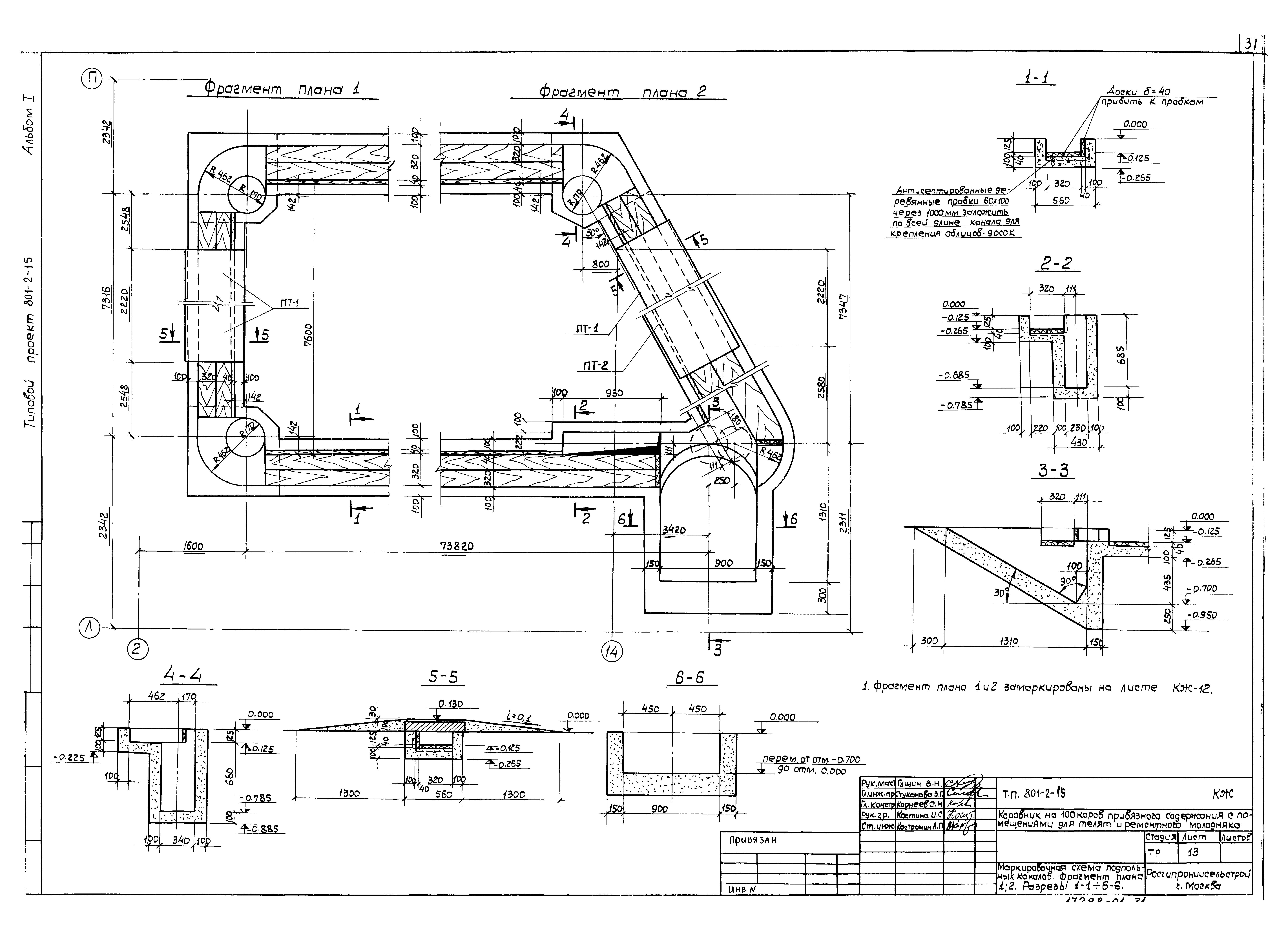
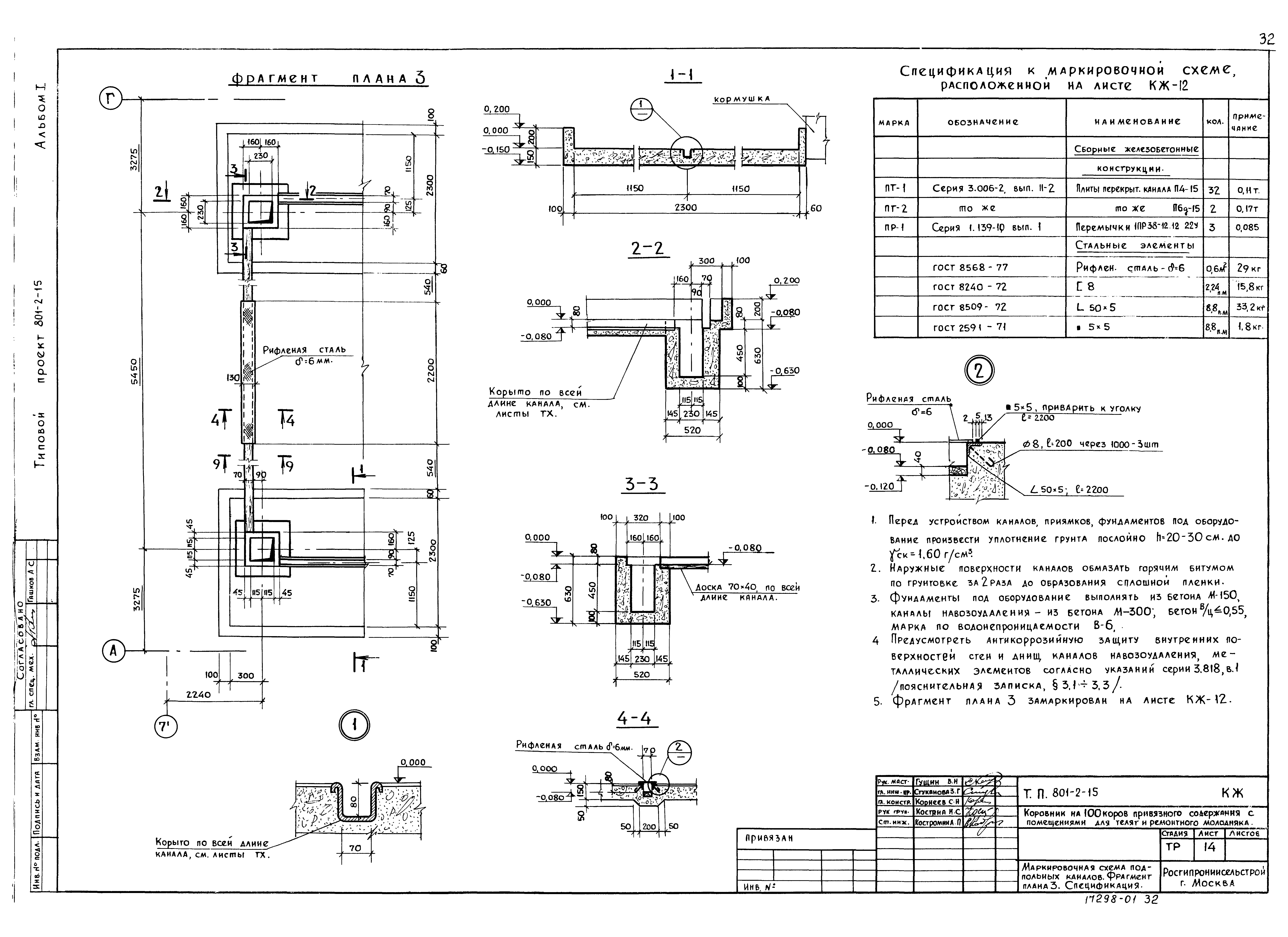
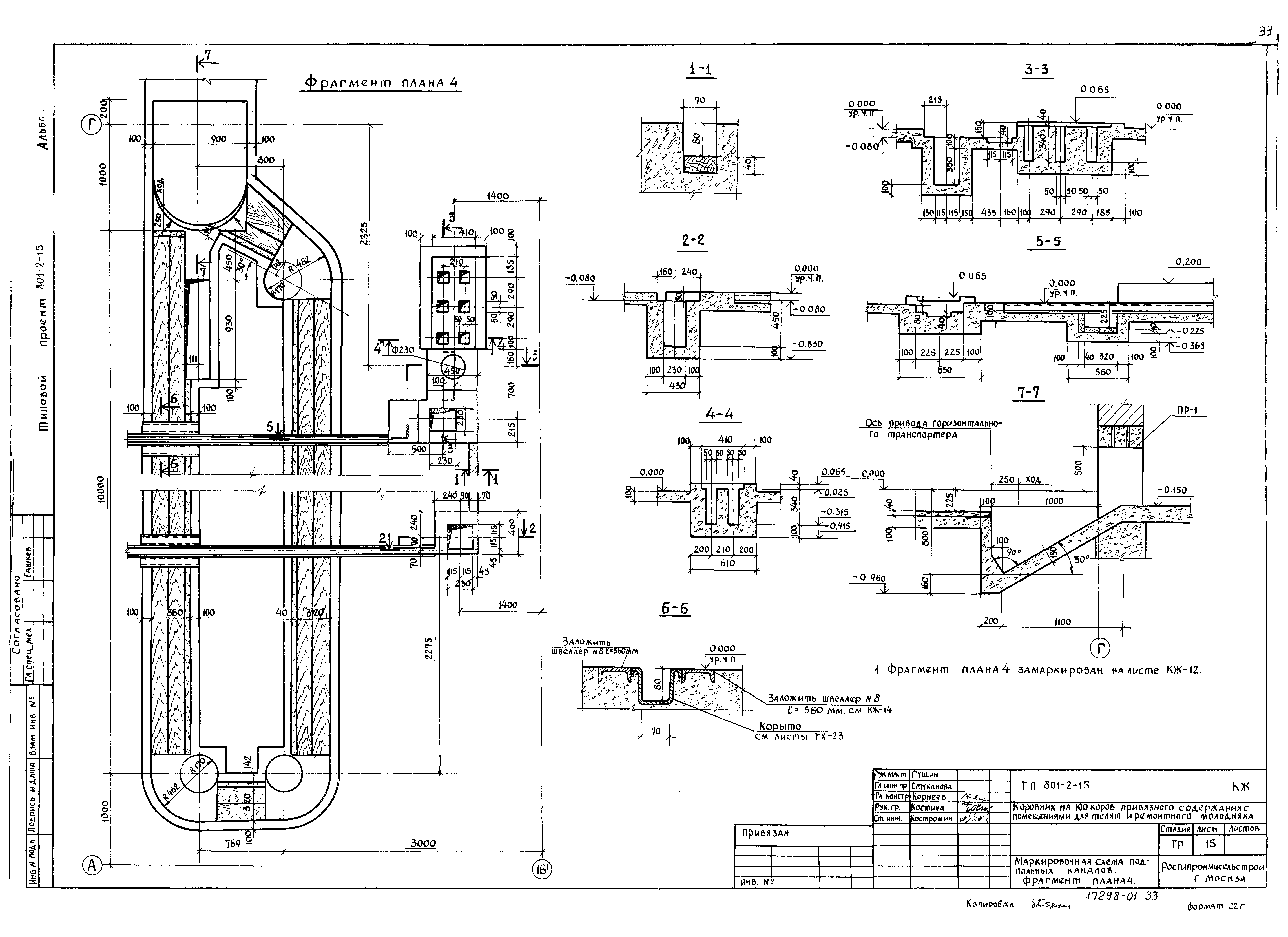
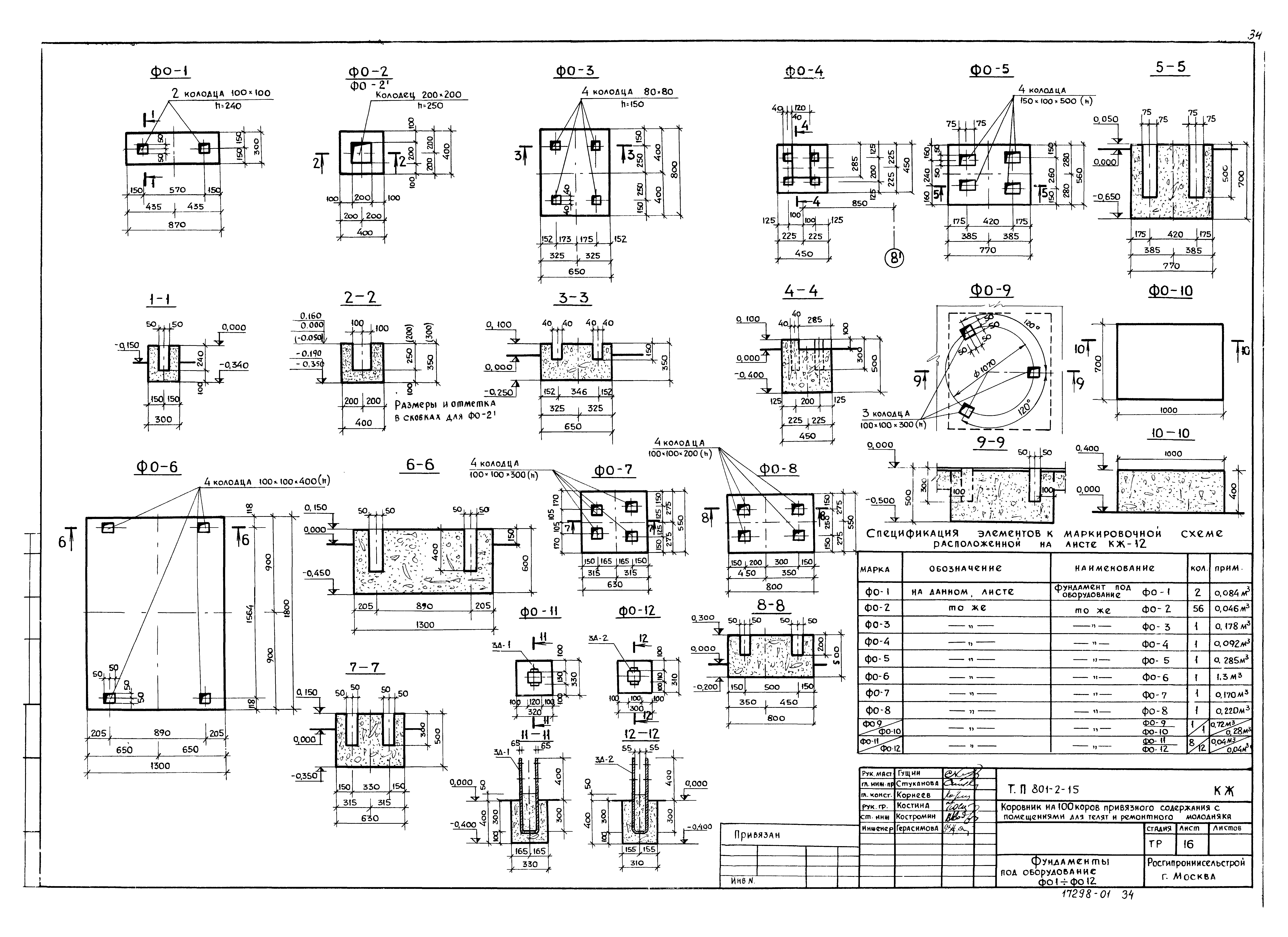
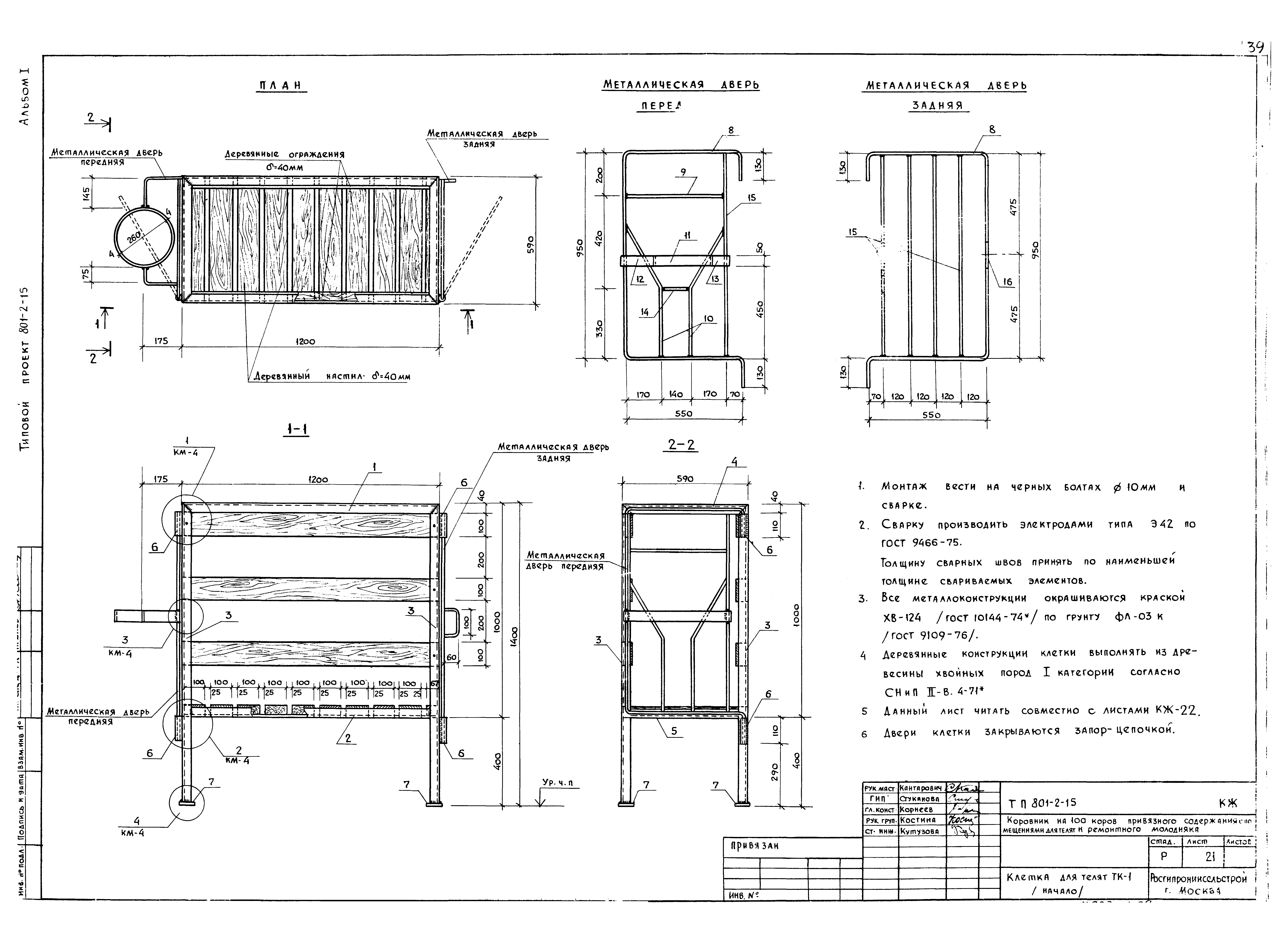
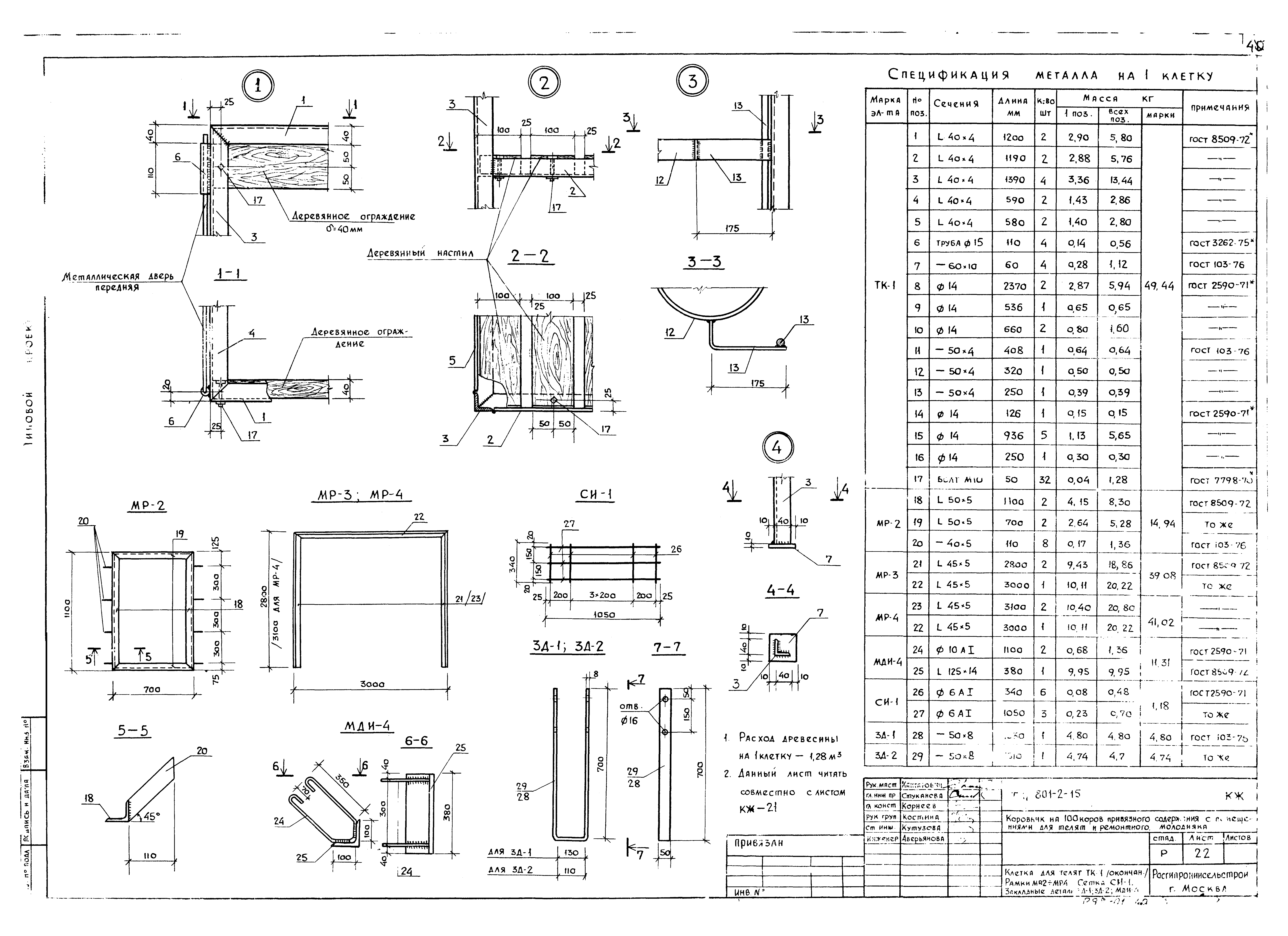
| Оглавление: | Содержание альбома Пояснительная записка Схема генпланов участков варианта № 1, 2 Архитектурно-строительная часть Общие данные План на отм. 0.000. Экспликация помещений Фрагменты 1, 2 Фрагменты 3, 4, 5, 6 Фасады в осях 16 - 1; 1 - 16; П - А; Д - К Фасады в осях А - П; 16` - 8`. Разрезы 1-1, 2-2, 3-3, 4-4 План кровли и маркировочная схема асбестоцементных листов покрытия План кровли. Узлы. Сечения План полов Деталь рамы ворот РВ-1 (РВ-2). Узлы 3, 4, 5 Конструкции железобетонные Общие данные Маркировочная схема фундаментов Маркировочная схема фундаментов. Фрагмент плана 1. Разрезы Маркировочная схема колонн и ферм Маркировочная схема плит покрытия, анкеров для крепления вентиляционного оборудования Маркировочные схемы раскладки стеновых панелей по осям "Л", "П", "А", "Г", "В" Маркировочные схемы раскладки стеновых панелей по осям "1", "6", "16", "16". Спецификация Узлы 1 - 4. Плита П-7 (П-8). Сетка СИ-2 Узлы 6 - 18. Стойка СФ-1. Насадки Т-10А; Т-10Б. Металлические изделия МДИ-1А, МДИ-1Б; МДИ-2Б; МДИ-2А; МДИ-17А; МДИ-3; МД4-28А Маркировочная схема подпольных каналов и фундаментов под оборудование Маркировочная схема подпольных каналов. Фундаменты плана 1, 2. Разрезы 1-1 - 6-6 Маркировочная схема подпольных каналов. Фрагмент плана 3. Спецификация Маркировочная схема подпольных каналов. Фрагмент плана 4 Фундаменты под оборудование ФО-1 - ФО-12 Маркировочная схема размещения боксов и стойл Маркировочная схема фундаментов под технологическое оборудование Денник Д-1. Стойло для быка СТ-1 Двери ДМ-1 - ДМ3. Разделители боксовые РБ1 - РБ5. Разделители групповые РГ-1 - РГ-6 Клетка для телят Клетка для телят. Рамки МР-2 - МР-4. Сетка СИ-1. Закладные детали ЗД-1 - ЗД-2, МДИ-4 Кормушки КД-1; КДР-6; КДР-7; КД6-6*. Ворота В-1 Ограждения кормушек ОК-1 - ОК-5 Маркировочная схема выгульных площадок |
| Разработан: | Росгипрониисельстрой |
| Утверждён: | 18.02.1980 МСХ СССР Главное управление лугов, кормов и пастбищ (9/18) |











































