Скачать Типовой проект 901-5-39.87 Альбом III. Сборные железобетонные конструкции и арматурные изделияДата актуализации: 01.01.2021
|
| Обозначение: | Типовой проект 901-5-39.87 |
| Обозначение англ: | 901-5-39.87 |
| Статус: | не определен законодательством |
| Название рус.: | Альбом III. Сборные железобетонные конструкции и арматурные изделия |
| Дата добавления в базу: | 01.10.2014 |
| Дата актуализации: | 01.01.2021 |
| Дата введения: | 27.05.1986 |
| Дата окончания срока действия: | 30.06.2003 |
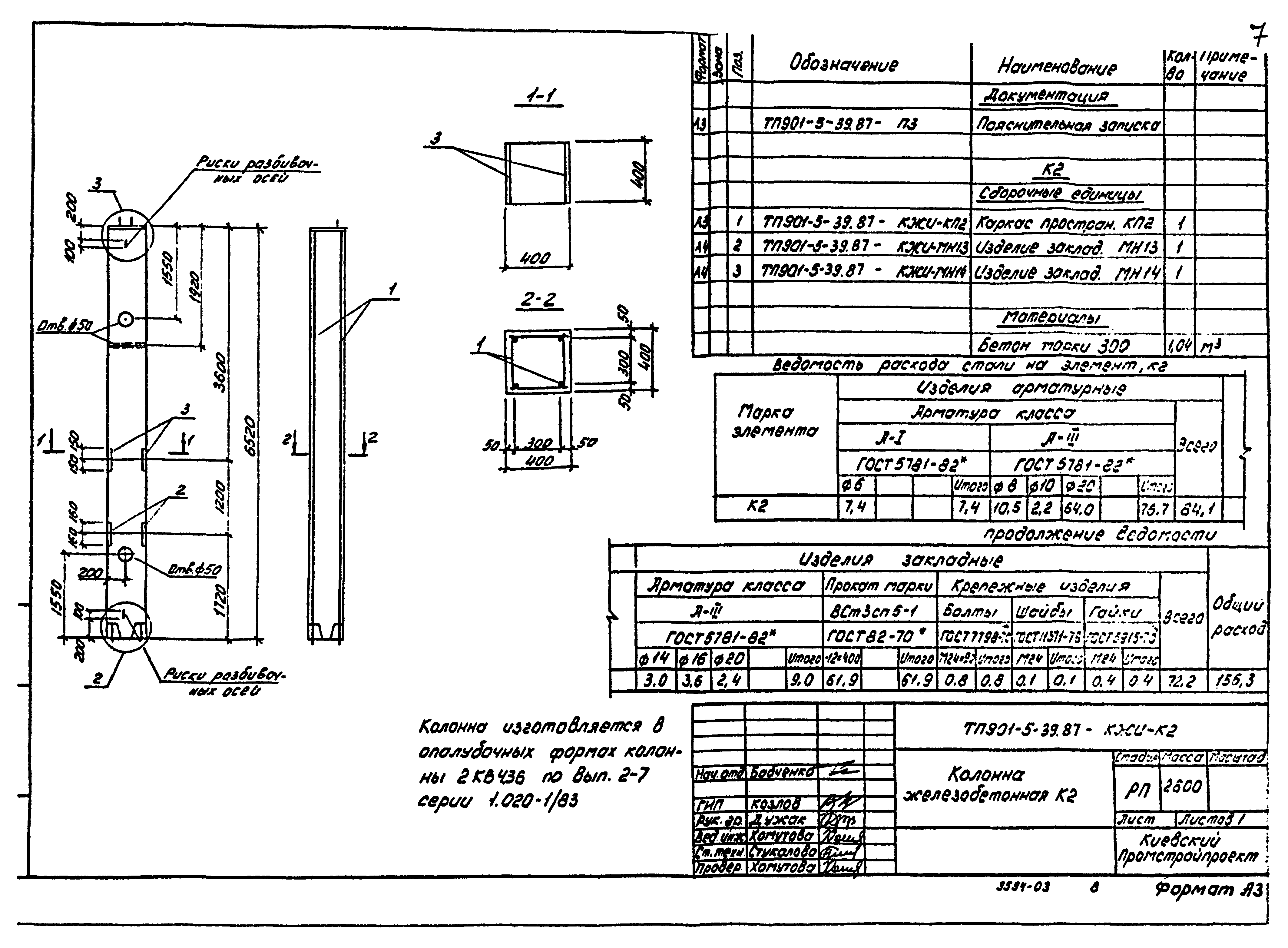
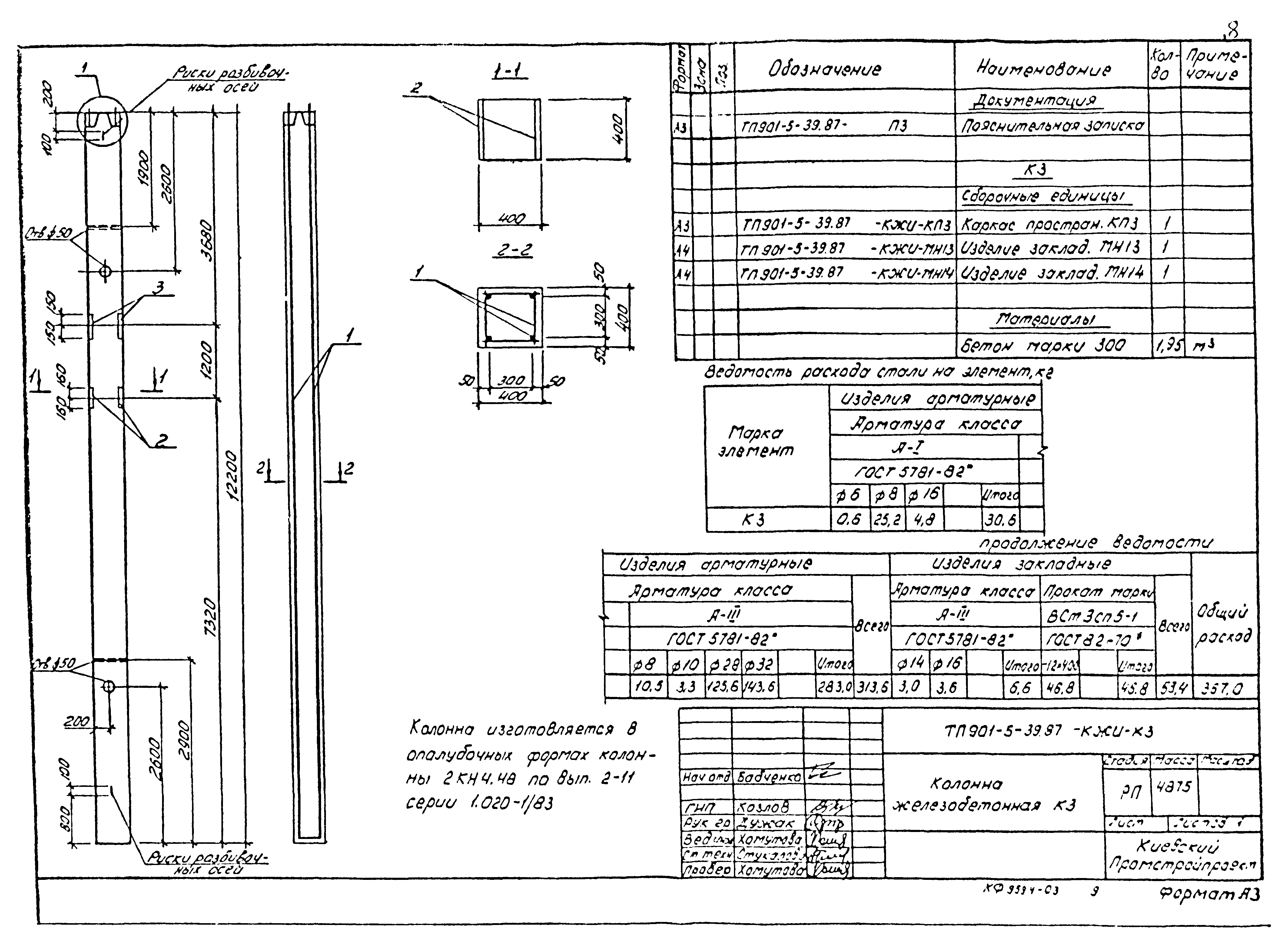
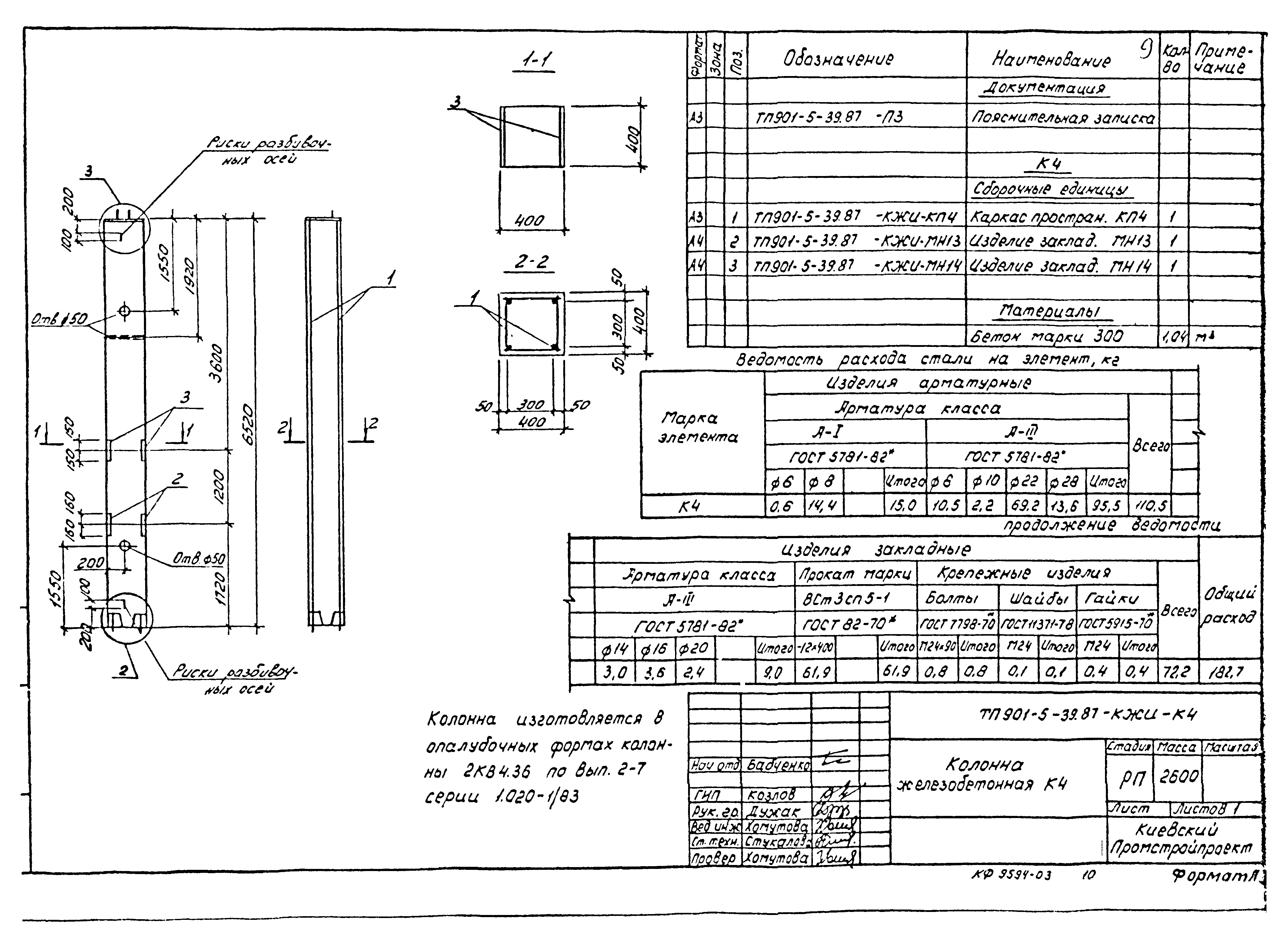
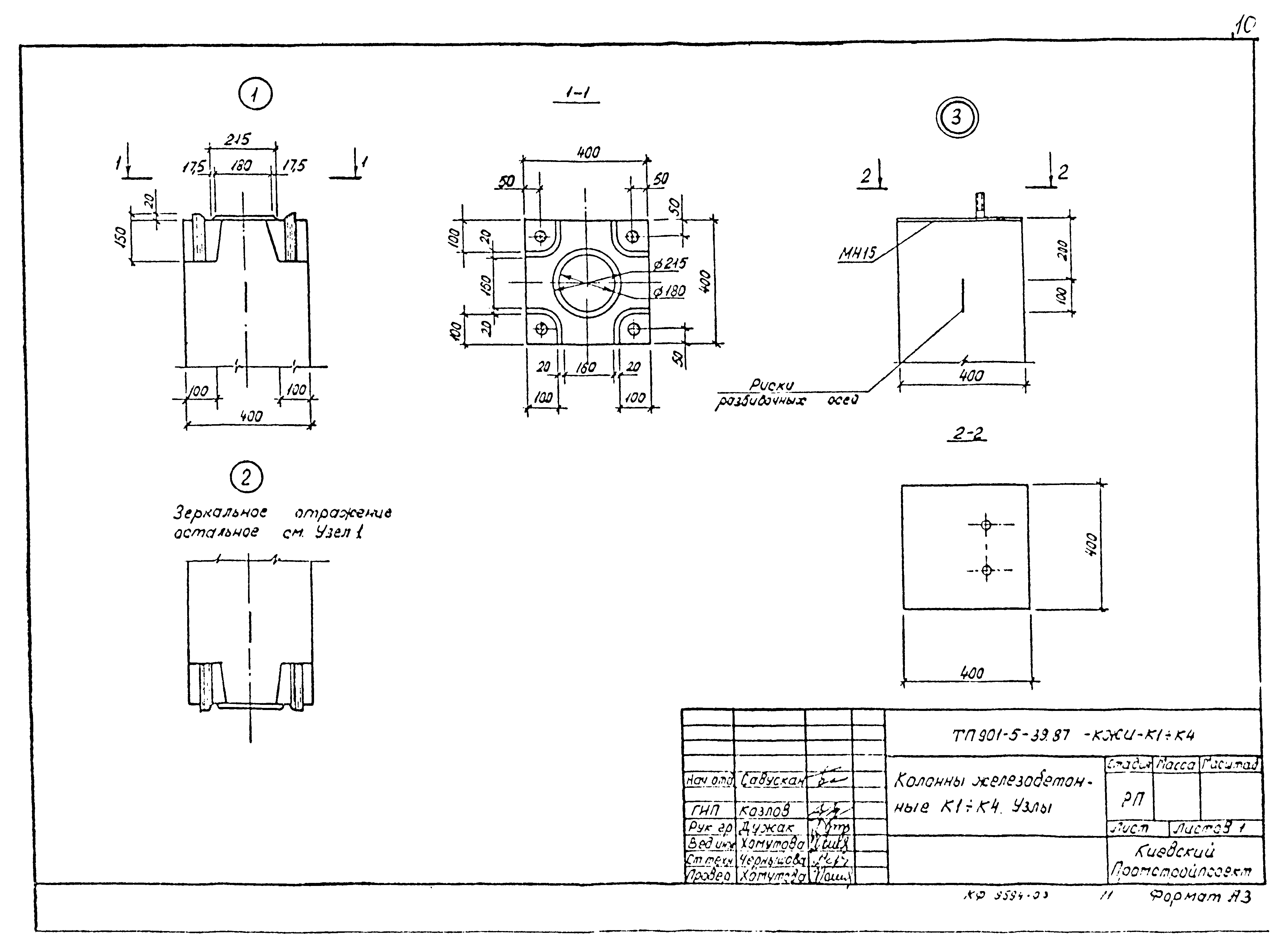
| Оглавление: | ТП 901-5-39.87-СА Содержание альбома ТП 901-5-39.87-ПЗ Пояснительная записка ТП 901-5-39.87-КЖИ-К1 Колонна железобетонная К1 ТП 901-5-39.87-КЖИ-К2 Колонна железобетонная К2 ТП 901-5-39.87-КЖИ-К3 Колонна железобетонная К3 ТП 901-5-39.87-КЖИ-К4 Колонна железобетонная К4 ТП 901-5-39.87-КЖИ-К1 - К4 Колонны железобетонные К1 - К4. Узлы ТП 901-5-39.87-КЖИ-КП1 Каркас пространственный КП1 ТП 901-5-39.87-КЖИ-КП2 Каркас пространственный КП2 ТП 901-5-39.87-КЖИ-КП3 Каркас пространственный КП3 ТП 901-5-39.87-КЖИ-КП4 Каркас пространственный КП4 ТП 901-5-39.87-КЖИ-КР1 Каркас плоский КР1 ТП 901-5-39.87-КЖИ-КР2 Каркас плоский КР2 ТП 901-5-39.87-КЖИ-КР3 Каркас плоский КР3 ТП 901-5-39.87-КЖИ-КР4 Каркас плоский КР4 ТП 901-5-39.87-КЖИ-С1 Сетка С1 ТП 901-5-39.87-КЖИ-С2 Сетка С2 ТП 901-5-39.87-КЖИ-С3 Сетка С3 ТП 901-5-39.87-КЖИ-С4 Сетка С4 ТП 901-5-39.87-КЖИ-С5 Сетка С5 ТП 901-5-39.87-КЖИ-МН1 Изделие закладное МН1 ТП 901-5-39.87-КЖИ-МН2 Изделие закладное МН2 ТП 901-5-39.87-КЖИ-МН3 Изделие закладное МН3 ТП 901-5-39.87-КЖИ-МН4 Изделие закладное МН4 ТП 901-5-39.87-КЖИ-МН5 Изделие закладное МН5 ТП 901-5-39.87-КЖИ-МН6 Изделие закладное МН6 ТП 901-5-39.87-КЖИ-МН7 Изделие закладное МН7 ТП 901-5-39.87-КЖИ-МН8 Изделие закладное МН8 ТП 901-5-39.87-КЖИ-МН9 Изделие закладное МН9 ТП 901-5-39.87-КЖИ-МН10 Изделие закладное МН10 ТП 901-5-39.87-КЖИ-МН11 Изделие закладное МН11 ТП 901-5-39.87-КЖИ-МН12 Изделие закладное МН12 ТП 901-5-39.87-КЖИ-МН13 Изделие закладное МН13 ТП 901-5-39.87-КЖИ-МН14 Изделие закладное МН14 ТП 901-5-39.87-КЖИ-МН15 Изделие закладное МН15 ТП 901-5-39.87-КЖИ-МС1 Изделие соединительное МС1 ТП 901-5-39.87-КЖИ-МС2 Изделие соединительное МС2 ТП 901-5-39.87-КЖИ-МС3 Изделие соединительное МС3 ТП 901-5-39.87-КЖИ-МС4 Изделие соединительное МС4 ТП 901-5-39.87-КЖИ-МС5, МС6 Изделия соединительные МС5, МС6 ТП 901-5-39.87-КЖИ-МС7 Изделие соединительное МС7 |
| Разработан: | Киевский Промстройпроект |
| Утверждён: | 29.04.1986 Госстрой СССР (АЧ-25) |





























