Скачать Типовой проект 86-08/1 Часть 0. Раздел 0-1/80. Общая часть. Общая характеристика проектаДата актуализации: 01.01.2021
|
| Обозначение: | Типовой проект 86-08/1 |
| Обозначение англ: | 86-08/1 |
| Статус: | действует |
| Название рус.: | Часть 0. Раздел 0-1/80. Общая часть. Общая характеристика проекта |
| Дата добавления в базу: | 01.10.2014 |
| Дата актуализации: | 01.01.2021 |
| Дата введения: | 30.12.1976 |
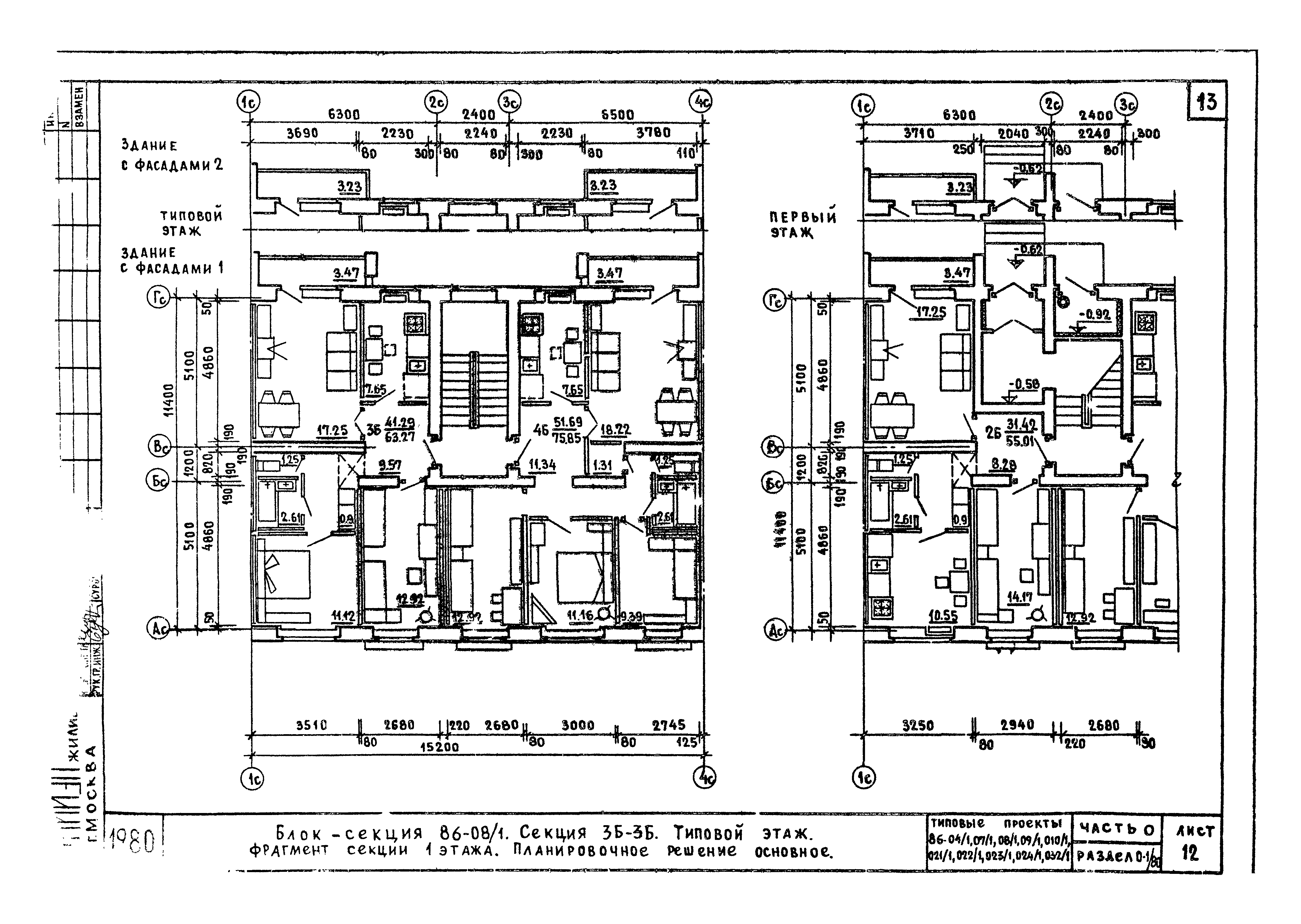
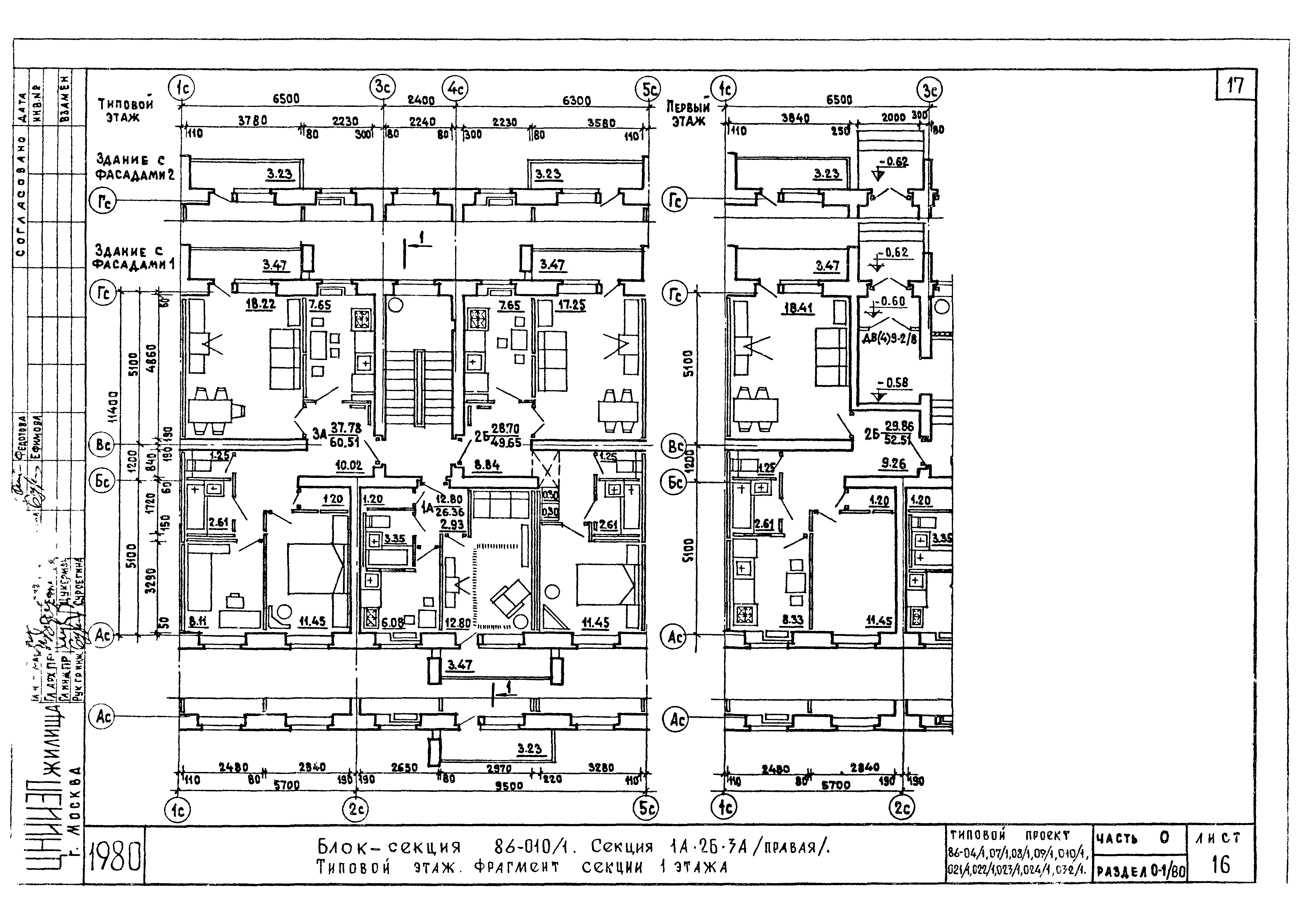
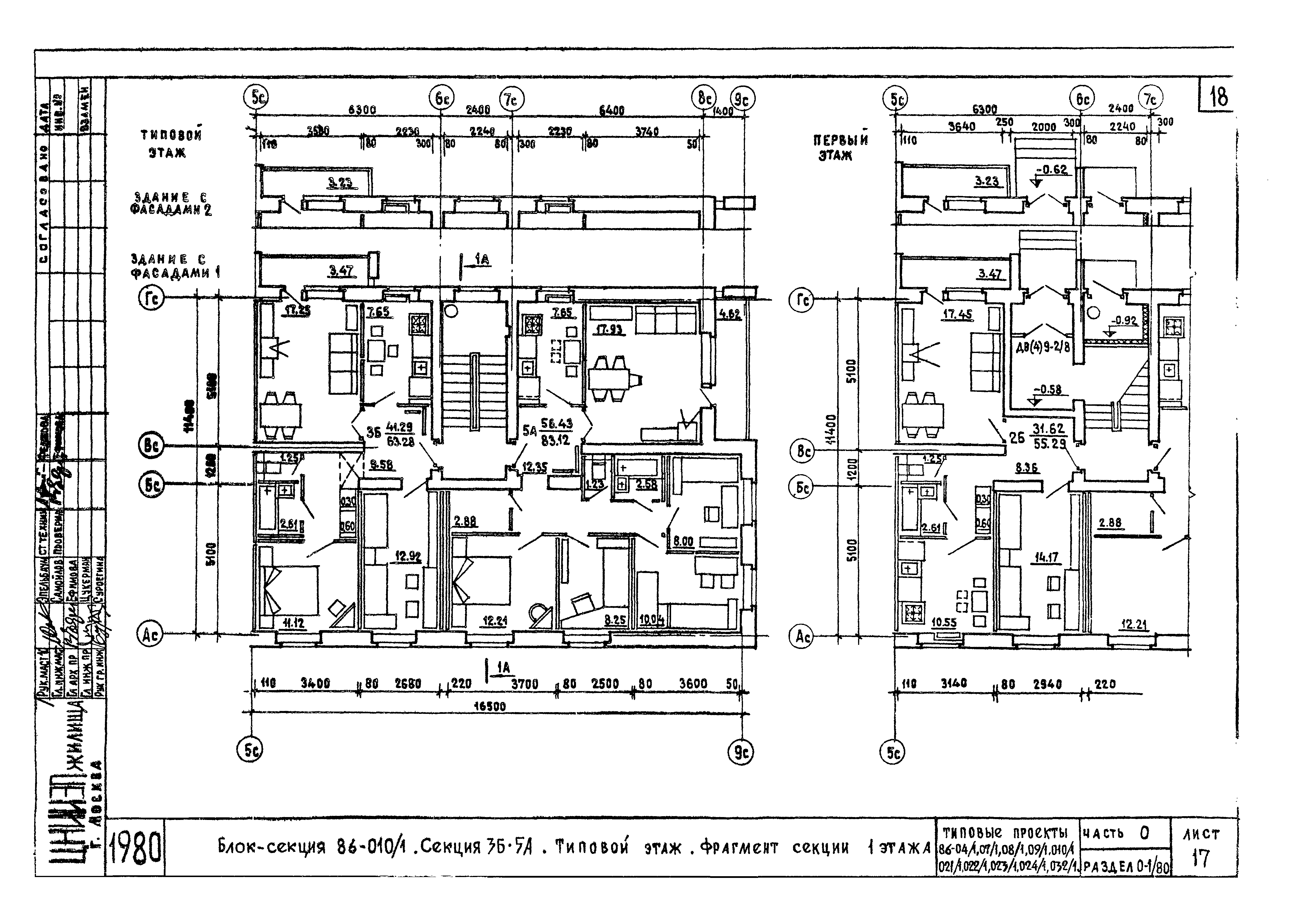
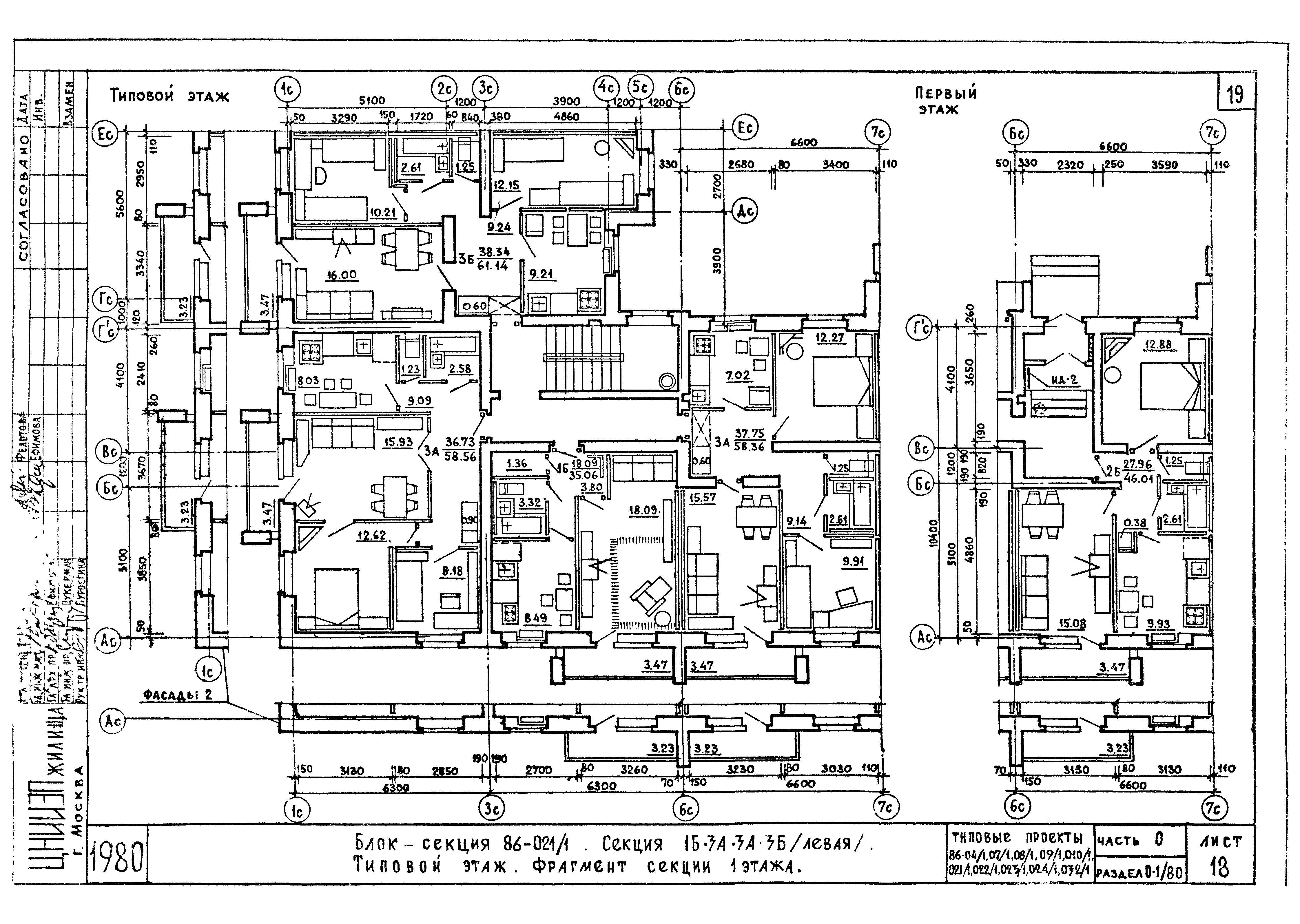
| Оглавление: | Заглавный лист Номенклатура 5-этажных блок-секций Схемы блокировок блок-секций Состав проекта Варианты проектных решений Блок-секции 86-04/1 и 86-021/1. Секция 1Б-2Б-2Б (левая) типовой этаж. Первый этаж. Планировочное решение основное Блок-секции 86-04/1 и 86-022/1. Секция 1Б-2Б-2Б (правая). Типовой и первый этажи Блок-секции 86-04/1. Секция 1Б-2Б-2Б (левая). Первый этаж. Планировочное решение со сквозным проходом. Разрез 1-1 Блок-секции 86-07/1. Секция 3А-3А. Типовой этаж. Фрагмент секции 1 этажа. Планировочное решение основное Блок-секции 86-08/1. Секция 3Б-4Б. Типовой этаж. Фрагмент секции 1 этажа. Планировочное решение основное Блок-секции 86-07/1 и 86-08/1. Первый этаж. Планировочное решение со сквозным проходом Блок-секции 86-09/1. Секция 1А-2Б-3А (левая). Типовой этаж. Фрагмент секции 1 этажа Блок-секции 86-09/1. Секция 3Б-5А. Типовой этаж. Фрагмент секции 1 этажа Блок-секции 86-010/1. Секция 1А-2Б-3А (правая). Типовой этаж. Фрагмент секции 1 этажа Блок-секции 86-010/1. Секция 3Б-5А. Типовой этаж. Фрагмент секции 1 этажа Блок-секции 86-021/1. Секция 1Б-3А-3А-5Б (левая). Типовой этаж. Фрагмент секции 1 этажа Блок-секции 86-022/1. Секция 1Б-3А-3А-5Б (правая). Типовой этаж. Фрагмент секции 1 этажа Блок-секции 86-023/1. Секция 3А-4Б. Типовой этаж Блок-секции 86-023/1. Фрагмент секции 1 этажа Блок-секции 86-024/1. Секция 3А-4Б. Типовой этаж Блок-секции 86-024/1. Фрагмент секции 1 этажа Блок-секции 86-032/1. Секция 1Б-2А-3Б-3Б. Типовой этаж Блок-секции 86-032/1. Секция 1Б-2А-3Б-3Б. Первый этаж. Разрез 1-1 Таблица площадей Таблица площадей и объемов Блок-секции 86-07/1, 86-09/1. Фасады 1 Блок-секции 86-07/1, 86-010/1. Фасады 1 Блок-секции 86-08/1, 86-021/1. Фасады 1 Блок-секции 86-07/1, 86-022/1. Фасады 1 Блок-секции 86-04/1, 86-023/1. Фасады 1 Блок-секции 86-07/1, 86-024/1. Фасады 1 Блок-секции 86-04/1, 86-023/1, 86-032/1. Фасады 1 Блок-секции 86-04/1, 86-09/1, 86-010/1, 86-021/1, 86-022/1, 86-024/1. Фрагмент фасада по оси Ас. Фасад 1 Блок-секции 86-07/1, 86-021/1, 86-022/1, 86-023/1. Фрагмент фасада по оси Ас. Фасад 1 Блок-секция 86-032/1. Фрагмент фасада по оси Ас Блок-секции 86-04/1, 86-08/1, 86-09/1, 86-010/1. Фрагмент фасада по оси Гс. Фасад 1 Блок-секции 86-07/1, 86-023/1. Фрагмент фасада по оси Гс. Фасады 1 и 2 Блок-секция 86-024/1. Фрагмент фасада по оси Гс. Фасад 1 Блок-секции 86-04/1, 86-08/1, 86-09/1, 86-010/1. Фрагмент фасада по оси Гс. Фасад 1. Вариант кирпичного ограждения Блок-секции 86-07/1, 86-09/1. Фасады 2 Блок-секции 86-07/1, 86-010/1. Фасады 2 Блок-секции 86-08/1, 86-021/1. Фасады 2 Блок-секции 86-07/1, 86-022/1. Фасады 2 Блок-секции 86-04/1, 86-023/1. Фасады 2 Блок-секции 86-04/1, 86-07/1, 86-024/1. Фасады 2 Блок-секции 86-04/1, 86-09/1, 86-022/1, 86-024/1. Фрагмент фасада по оси Ас. Фасад 2 Блок-секции 86-07/1, 86-021/1, 86-022/1, 86-023/1. Фрагмент фасада по оси Ас. Фасад 2 Блок-секция 86-024/1. Фрагмент фасада по оси Гс. Фасад 2 Блок-секции 86-04/1, 86-08/1, 86-09/1, 86-010/1. Фрагмент фасада по оси Гс. Фасад 2 Блок-секции 86-04/1, 86-08/1, 86-09/1, 86-010/1. Фрагмент фасада по оси Гс. Фасад 2. Вариант кирпичного ограждения |
| Разработан: | ЦНИИЭП жилища |
| Утверждён: | 27.11.1969 Госгражданстрой (Gosgrazhdanstroy 250) |





















































